Этапы строительного проектирования
Этапы строительного проектирования
Строительное проектирование является важным этапом в реализации любого строительного проекта. Оно включает в себя множество процессов, которые должны быть выполнены в строгом соответствии с действующими нормами и правилами. В России строительное проектирование регламентируется 87 постановлением правительства, которое определяет основные требования и этапы проектирования. В данной статье мы рассмотрим ключевые этапы строительного проектирования, а также их значимость для успешного завершения строительных работ.
В статье представлены следующие разделы:
- Общие сведения о строительном проектировании
- Этапы проектирования: от концепции до реализации
- Роль 87 постановления правительства в процессе проектирования
- Заключение и рекомендации
Каждый из этих этапов играет свою уникальную роль и требует внимательного подхода, чтобы обеспечить соответствие всем требованиям и стандартам. Читайте далее, чтобы узнать больше о каждом из них и о том, как правильно организовать процесс строительного проектирования.
Согласно 87 ПП (87 постановление правительства)
Строительное проектирование – это сложный и многоэтапный процесс, который включает в себя множество различных стадий и аспектов. В соответствии с 87 постановлением правительства, проектирование зданий и сооружений должно осуществляться с учетом ряда требований и норм, что обеспечивает безопасность, функциональность и эстетическую привлекательность объектов. Рассмотрим основные этапы строительного проектирования.
1. Подготовительный этап
На этом этапе осуществляется сбор и анализ исходных данных, необходимых для проектирования. Включает в себя:
- Изучение градостроительной документации;
- Проведение геодезических и геологических изысканий;
- Определение условий подключения к инженерным сетям;
- Сбор информации о существующих объектах и их состоянии.
Подготовительный этап является основой для дальнейшего проектирования, так как от качества собранной информации зависит успешность всего проекта. Важно учитывать все возможные ограничения и требования, которые могут повлиять на проект.
2. Эскизное проектирование
На этом этапе разрабатываются предварительные концепции и эскизы будущего объекта. Основные задачи включают:
- Определение функционального назначения здания;
- Разработка предварительных планировочных решений;
- Создание эскизов фасадов и интерьеров;
- Оценка предварительных затрат на строительство.
Эскизное проектирование позволяет визуализировать идеи и концепции, а также получить обратную связь от заказчика и заинтересованных сторон. На этом этапе могут быть внесены изменения в проект, что поможет избежать значительных затрат на более поздних стадиях.
3. Техническое проектирование
После утверждения эскизов начинается техническое проектирование, которое включает в себя более детальную проработку всех аспектов проекта. Важные моменты на этом этапе:
- Разработка архитектурных чертежей;
- Проектирование конструктивных решений;
- Разработка систем инженерного обеспечения (водоснабжение, отопление, электроснабжение и т.д.);
- Согласование проектной документации с контролирующими органами.
Техническое проектирование требует высокой квалификации специалистов, так как на этом этапе закладываются все ключевые параметры будущего объекта. Важно учитывать не только эстетические, но и функциональные характеристики, а также требования безопасности.
4. Рабочее проектирование
На этом этапе создаются рабочие чертежи и спецификации, которые будут использоваться непосредственно в процессе строительства. Основные задачи включают:
- Подготовка детализированных чертежей всех конструктивных элементов;
- Составление сметной документации;
- Разработка инструкций по монтажу и эксплуатации;
- Проведение экспертизы проектной документации.
Рабочее проектирование является завершающим этапом перед началом строительных работ. На этом этапе важно обеспечить полное соответствие проектной документации действующим нормам и стандартам, а также учесть все замечания, высказанные на предыдущих этапах.
5. Согласование проектной документации
После завершения рабочего проектирования необходимо пройти процедуру согласования проектной документации. Этот этап включает в себя:
- Подачу проектной документации в соответствующие органы для экспертизы;
- Получение разрешений на строительство;
- Согласование с различными инстанциями, включая пожарные, санитарные и экологические службы;
- Устранение замечаний, выявленных в ходе экспертизы.
Согласование проектной документации является критически важным этапом, так как от него зависит возможность легального начала строительных работ. На этом этапе также могут быть внесены изменения в проект, если это необходимо для соответствия требованиям законодательства.
6. Подготовка к строительству
После получения всех необходимых разрешений начинается подготовка к строительству. Этот этап включает в себя:
- Организацию строительной площадки;
- Заключение договоров с подрядчиками и поставщиками;
- Закупку необходимых материалов и оборудования;
- Разработку графика выполнения работ.
Подготовка к строительству требует тщательной организации и планирования, чтобы избежать задержек и дополнительных затрат. Важно обеспечить наличие всех ресурсов и материалов, необходимых для начала работ.
7. Строительство
На этом этапе осуществляется непосредственное строительство объекта. Важные аспекты включают:
- Контроль за качеством выполняемых работ;
- Соблюдение сроков и бюджета;
- Регулярное взаимодействие с проектировщиками для решения возникающих вопросов;
- Проведение промежуточных проверок и инспекций.
Строительство – это наиболее длительный и трудоемкий этап, который требует постоянного контроля и управления. Важно обеспечить соблюдение всех норм и стандартов, а также учитывать возможные изменения в проекте, которые могут возникнуть в процессе работы.
8. Завершение строительства и ввод в эксплуатацию
После завершения строительных работ необходимо провести ряд мероприятий для ввода объекта в эксплуатацию. Этот этап включает в себя:
- Проведение финальных проверок и испытаний;
- Получение разрешения на ввод в эксплуатацию;
- Подготовка документации для передачи объекта заказчику;
- Обучение персонала, если это необходимо.
Завершение строительства и ввод в эксплуатацию – это заключительный этап проектирования, который подтверждает, что объект готов к использованию. На этом этапе важно обеспечить полное соответствие всем требованиям и стандартам, а также подготовить все необходимые документы для дальнейшей эксплуатации.
Таким образом, этапы строительного проектирования представляют собой последовательный и логически обоснованный процесс, который требует внимательного подхода на каждом этапе. Соблюдение всех норм и стандартов, а также тщательное планирование и организация работ являются залогом успешного завершения проекта.
Пояснительная записка
Строительное проектирование – это сложный и многоэтапный процесс, который включает в себя множество различных стадий и задач. Каждый этап проектирования имеет свои особенности и требует внимательного подхода, чтобы обеспечить успешное завершение всего проекта. В данной статье мы рассмотрим основные этапы строительного проектирования, их цели и задачи, а также важные аспекты, которые необходимо учитывать на каждом из них.
1. Предпроектные исследования
На этом этапе осуществляется сбор и анализ информации, необходимой для дальнейшего проектирования. Предпроектные исследования включают в себя:
- Изучение условий застройки, включая геологические, гидрологические и климатические характеристики местности;
- Анализ существующей инфраструктуры и инженерных сетей;
- Оценка правовых аспектов, включая земельные права и разрешения на строительство;
- Изучение потребностей заказчика и функциональных требований к объекту.
Эти исследования позволяют определить целесообразность проекта и его соответствие требованиям заказчика и действующему законодательству.
2. Концептуальное проектирование
На этом этапе разрабатывается общая концепция проекта, которая включает в себя:
- Определение основных функциональных зон и их взаимосвязей;
- Разработка предварительных эскизов и планировочных решений;
- Оценка экономической целесообразности проекта;
- Согласование концепции с заказчиком и другими заинтересованными сторонами.
Концептуальное проектирование позволяет сформировать общее представление о будущем объекте и его функциональности, а также выявить возможные проблемы на ранних стадиях.
3. Архитектурное проектирование
На этом этапе разрабатываются архитектурные решения, которые включают в себя:
- Создание архитектурных чертежей и визуализаций;
- Разработку фасадов и планов этажей;
- Определение материалов и технологий строительства;
- Согласование архитектурных решений с органами местного самоуправления.
Архитектурное проектирование является ключевым этапом, так как именно на этом этапе формируется внешний вид и функциональность здания.
4. Инженерное проектирование
На этом этапе разрабатываются инженерные системы, которые обеспечивают функционирование здания. Это включает в себя:
- Проектирование систем водоснабжения и водоотведения;
- Разработку систем отопления, вентиляции и кондиционирования;
- Проектирование электрических и слаботочных систем;
- Создание систем безопасности и автоматизации.
Инженерное проектирование должно учитывать все требования безопасности и эффективности, а также соответствовать современным стандартам и нормам.
5. Проектирование конструкций
На этом этапе разрабатываются конструктивные решения, которые обеспечивают прочность и устойчивость здания. Основные задачи включают:
- Определение типов и размеров конструктивных элементов (фундаментов, стен, перекрытий и кровли);
- Расчет нагрузок и воздействий на конструкции;
- Выбор материалов для строительства, учитывая их прочностные характеристики;
- Разработка чертежей и спецификаций для строительных конструкций.
Проектирование конструкций должно соответствовать действующим строительным нормам и правилам, а также учитывать климатические и геологические условия местности.
6. Согласование проектной документации
После завершения проектирования необходимо согласовать всю документацию с различными инстанциями. Этот этап включает:
- Подготовку и подачу документов в органы местного самоуправления;
- Получение разрешений на строительство;
- Согласование проектных решений с контролирующими и надзорными органами;
- Устранение замечаний и доработка проектной документации при необходимости.
Согласование проектной документации является важным этапом, так как от него зависит возможность начала строительных работ.
7. Подготовка к строительству
На этом этапе осуществляется подготовка к началу строительных работ, которая включает:
- Организацию строительной площадки;
- Заключение договоров с подрядчиками и поставщиками;
- Разработку графиков выполнения работ;
- Обеспечение необходимыми материалами и оборудованием.
Подготовка к строительству требует тщательной организации и планирования, чтобы избежать задержек и дополнительных затрат в процессе выполнения работ.
8. Строительство
На этом этапе осуществляется непосредственно строительство объекта. Основные задачи включают:
- Выполнение строительных работ в соответствии с проектной документацией;
- Контроль качества выполняемых работ;
- Соблюдение сроков и бюджета проекта;
- Взаимодействие с подрядчиками и поставщиками.
Строительство – это наиболее трудоемкий и ответственный этап, который требует постоянного контроля и управления.
9. Завершение строительства и ввод в эксплуатацию
После завершения строительных работ необходимо провести ряд мероприятий для ввода объекта в эксплуатацию:
- Проведение финальных проверок и испытаний систем;
- Подготовка и подача документов для получения разрешения на ввод в эксплуатацию;
- Устранение выявленных недостатков и недочетов;
- Организация передачи объекта заказчику.
Завершение строительства и ввод в эксплуатацию – это заключительный этап, который подтверждает успешное выполнение проекта и готовность объекта к использованию.
Схема планировочной организации земельного участка
Строительное проектирование – это сложный и многоступенчатый процесс, который включает в себя несколько ключевых этапов. Каждый из этих этапов играет важную роль в создании качественного и безопасного объекта. В данной статье мы рассмотрим основные этапы строительного проектирования, начиная с анализа земельного участка и заканчивая подготовкой проектной документации.
1. Предпроектные исследования
На этом этапе осуществляется сбор и анализ информации о земельном участке, на котором планируется строительство. Важными аспектами являются:
- Геодезические исследования, которые помогают определить рельеф, границы участка и его размеры.
- Геологические исследования, позволяющие оценить состав и свойства грунтов, а также уровень грунтовых вод.
- Экологические исследования, которые помогают выявить возможные негативные воздействия на окружающую среду.
- Правовые аспекты, включая проверку правоустанавливающих документов на земельный участок и наличие ограничений по его использованию.
Собранные данные позволяют сформировать общее представление о возможностях и ограничениях участка, что является основой для дальнейшего проектирования.
2. Разработка концепции проекта
На этом этапе проектировщики разрабатывают концепцию будущего объекта. Это включает в себя:
- Определение функционального назначения здания или сооружения.
- Разработка предварительных эскизов и планировочных решений.
- Оценку экономической целесообразности проекта, включая предварительные расчеты стоимости строительства.
Концепция проекта должна учитывать не только технические, но и эстетические аспекты, а также соответствовать требованиям заказчика и действующим нормам.
3. Подготовка проектной документации
После утверждения концепции начинается подготовка проектной документации, которая включает в себя:
- Архитектурные чертежи, показывающие внешний вид и планировку здания.
- Конструктивные решения, описывающие используемые материалы и технологии строительства.
- Инженерные системы, включая электроснабжение, водоснабжение, отопление и вентиляцию.
- Сметную документацию, которая включает в себя расчеты стоимости всех работ и материалов.
Проектная документация должна быть выполнена в соответствии с действующими стандартами и нормами, а также пройти экспертизу для получения разрешения на строительство.
4. Получение разрешений и согласований
На этом этапе необходимо получить все необходимые разрешения и согласования от государственных органов и местных властей. Это может включать:
- Разрешение на строительство, которое выдается после проверки проектной документации.
- Согласования с различными службами, такими как пожарная безопасность, санитарно-эпидемиологическая служба и другие.
- Согласование с соседями, если проект может повлиять на их интересы.
Получение всех необходимых разрешений является обязательным условием для начала строительных работ и позволяет избежать юридических проблем в будущем.
5. Подбор подрядчиков и заключение контрактов
После получения всех необходимых разрешений и согласований наступает этап выбора подрядчиков для выполнения строительных работ. Этот процесс включает в себя:
- Проведение тендера или конкурса на выполнение строительных работ, где участвуют различные строительные компании.
- Оценку предложений подрядчиков по критериям стоимости, сроков выполнения работ и качества.
- Заключение контрактов с выбранными подрядчиками, в которых прописываются все условия сотрудничества, включая сроки, стоимость и ответственность сторон.
Правильный выбор подрядчиков является ключевым фактором для успешного завершения проекта в срок и в рамках бюджета.
6. Строительство
На этом этапе начинается непосредственное строительство объекта. Он включает в себя несколько подэтапов:
- Подготовительные работы, такие как расчистка участка, выемка грунта и установка временных сооружений.
- Фундаментные работы, которые включают в себя устройство фундамента в соответствии с проектными решениями.
- Возведение каркаса здания, включая стены, перекрытия и крышу.
- Монтаж инженерных систем, таких как электроснабжение, водоснабжение, отопление и вентиляция.
- Отделочные работы, которые завершают внешний и внутренний вид здания.
В процессе строительства важно осуществлять постоянный контроль за качеством выполняемых работ и соблюдением проектной документации. Это позволяет избежать ошибок и недочетов, которые могут привести к дополнительным затратам и задержкам.
7. Контроль качества и приемка работ
По завершении строительных работ необходимо провести контроль качества и приемку выполненных работ. Этот этап включает в себя:
- Проверку соответствия выполненных работ проектной документации и строительным нормам.
- Проведение испытаний инженерных систем и конструкций для подтверждения их работоспособности.
- Составление актов приемки выполненных работ, которые фиксируют результаты проверок и подтверждают их соответствие требованиям.
Приемка работ является важным этапом, так как от этого зависит дальнейшая эксплуатация объекта и его безопасность.
8. Ввод в эксплуатацию
После успешной приемки всех работ наступает этап ввода объекта в эксплуатацию. Он включает в себя:
- Подготовку и подачу документов в соответствующие органы для получения разрешения на ввод в эксплуатацию.
- Проведение финальных проверок и инспекций со стороны государственных органов.
- Оформление всех необходимых документов, включая свидетельство о праве собственности и технический паспорт объекта.
Ввод в эксплуатацию завершает процесс строительного проектирования и позволяет начать использование объекта в соответствии с его назначением.
Таким образом, этапы строительного проектирования являются важными и взаимосвязанными процессами, которые требуют тщательной проработки и контроля на каждом этапе. Это обеспечивает успешное завершение проекта и его дальнейшую эксплуатацию.
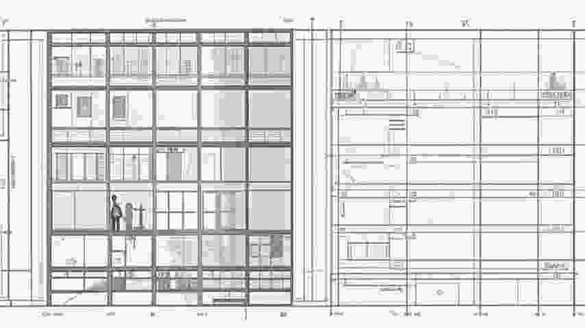
Объемно-планировочные и архитектурные решения
Этапы строительного проектирования представляют собой последовательность действий, необходимых для создания качественного и функционального объекта. На каждом из этих этапов важно учитывать объемно-планировочные и архитектурные решения, которые будут определять не только внешний вид здания, но и его внутреннюю организацию, а также соответствие современным требованиям и стандартам.
Первый этап проектирования начинается с предварительного анализа и формирования концепции. На этом этапе важно определить основные цели и задачи проекта, а также провести анализ территории, на которой будет располагаться объект. Это включает в себя изучение существующей инфраструктуры, природных условий, а также правовых аспектов, таких как градостроительные нормы и правила.
После этого следует разработка эскизного проекта, который включает в себя создание первых набросков и схем. Архитекторы и проектировщики работают над объемно-планировочными решениями, определяя основные параметры здания: его высоту, площадь, количество этажей и функциональные зоны. Важно, чтобы на этом этапе были учтены все пожелания заказчика, а также требования к эстетике и функциональности.
На следующем этапе происходит разработка рабочей документации. Это включает в себя создание детализированных чертежей, спецификаций и расчетов. Рабочая документация должна быть максимально точной и полной, чтобы избежать ошибок на этапе строительства. Важно также учитывать все инженерные системы, такие как водоснабжение, отопление, электроснабжение и вентиляция, которые должны быть интегрированы в общий проект.
После завершения рабочей документации наступает этап согласования проекта с различными инстанциями. Это может включать в себя получение разрешений от местных властей, согласование с пожарной службой, санитарными и экологическими службами. На этом этапе важно обеспечить соответствие проекта всем действующим нормам и стандартам, чтобы избежать задержек в процессе строительства.
Следующий этап — это подготовка к строительству. Он включает в себя выбор подрядчиков, закупку необходимых материалов и оборудования, а также организацию строительного процесса. Важно, чтобы все участники проекта были вовлечены в процесс и понимали свои задачи и обязанности. На этом этапе также разрабатываются графики работ и бюджет проекта.
Наконец, завершающим этапом является реализация проекта. Это включает в себя непосредственно строительные работы, контроль за качеством выполнения работ, а также соблюдение сроков. Важно, чтобы на этом этапе все объемно-планировочные и архитектурные решения были реализованы в соответствии с проектной документацией. Регулярные проверки и контроль помогут избежать отклонений от плана и обеспечить успешное завершение проекта.
После завершения строительных работ наступает этап приемки объекта. На этом этапе осуществляется проверка соответствия построенного здания проектной документации. Специалисты проводят комплексные испытания всех систем и конструкций, чтобы убедиться в их работоспособности и безопасности. Приемка включает в себя как визуальный осмотр, так и технические испытания, которые могут выявить возможные недостатки или отклонения от проекта.
Если в процессе приемки выявляются недостатки, подрядчик обязан устранить их в установленный срок. После устранения всех замечаний и получения положительного заключения о соответствии объекта проекту, происходит оформление документации для ввода здания в эксплуатацию. Это включает в себя получение необходимых актов и разрешений от контролирующих органов.
Следующим важным этапом является эксплуатация здания. На этом этапе важно обеспечить надлежащее обслуживание и эксплуатацию объекта. Это включает в себя регулярные проверки инженерных систем, проведение профилактических работ и ремонтных мероприятий. Эффективное управление эксплуатацией здания позволяет продлить его срок службы и сохранить функциональность.
В процессе эксплуатации также может возникнуть необходимость в модернизации или реконструкции объекта. Это может быть связано с изменением функциональных требований, улучшением энергоэффективности или адаптацией к новым стандартам. Модернизация может включать в себя как незначительные изменения, так и капитальные работы, требующие повторного проектирования и согласования.
Важно отметить, что на всех этапах проектирования и строительства необходимо учитывать экологические аспекты. Современные требования к строительству предполагают минимизацию негативного воздействия на окружающую среду. Это может включать в себя использование экологически чистых материалов, внедрение систем энергосбережения и рациональное использование ресурсов.
Таким образом, этапы строительного проектирования представляют собой сложный и многогранный процесс, который требует тщательной проработки на каждом уровне. Объемно-планировочные и архитектурные решения играют ключевую роль в создании качественного и функционального объекта, который будет соответствовать всем современным требованиям и ожиданиям заказчика.
Каждый из этапов проектирования требует взаимодействия различных специалистов: архитекторов, инженеров, проектировщиков, строителей и менеджеров. Эффективная коммуникация и координация действий всех участников проекта являются залогом успешного завершения строительства и дальнейшей эксплуатации объекта.
В заключение, можно сказать, что этапы строительного проектирования — это не просто последовательность действий, а целая система, в которой каждый элемент взаимосвязан и влияет на конечный результат. Успех проекта зависит от того, насколько тщательно и профессионально будут выполнены все этапы, начиная от концепции и заканчивая эксплуатацией здания.
Конструктивные решения
Этапы строительного проектирования представляют собой последовательность действий, необходимых для успешной реализации строительного объекта. Каждый из этих этапов требует тщательной проработки и внимания к деталям, так как от этого зависит не только качество конечного продукта, но и соблюдение сроков и бюджета. В данной статье мы рассмотрим основные конструктивные решения, которые принимаются на каждом из этапов проектирования.
Первый этап проектирования — это предпроектные исследования. На этом этапе осуществляется сбор информации о месте строительства, анализ условий, в которых будет возводиться объект. Важными аспектами являются:
- Геодезические исследования, которые помогают определить рельеф местности, наличие подземных вод и других факторов, влияющих на строительство.
- Геологические исследования, позволяющие оценить состав и прочность грунтов, что критично для выбора фундамента.
- Экологические исследования, которые помогают выявить возможные негативные воздействия на окружающую среду и разработать меры по их минимизации.
На основе собранной информации разрабатывается предварительный проект, который включает в себя общие характеристики объекта, его функциональное назначение и основные конструктивные решения. Важно, чтобы на этом этапе были учтены все требования заказчика и нормативные документы.
Следующий этап — это разработка проектной документации. Этот процесс включает в себя создание детализированных чертежей, спецификаций и расчетов. Проектная документация должна содержать:
- Архитектурные чертежи, которые показывают внешний вид здания и его планировку.
- Конструктивные чертежи, где описываются все элементы конструкции, такие как фундаменты, стены, перекрытия и крыши.
- Инженерные системы, включая электроснабжение, водоснабжение, отопление и вентиляцию.
На этом этапе также проводятся расчеты по нагрузкам, устойчивости и прочности конструкций. Это позволяет убедиться, что проект соответствует всем требованиям безопасности и эксплуатационным характеристикам.
После завершения проектной документации наступает этап экспертизы проекта. На этом этапе проект проходит проверку на соответствие действующим нормам и стандартам. Экспертиза может быть государственной или независимой, и ее результатом является получение разрешения на строительство.
Следующий этап — это подготовка к строительству. На этом этапе осуществляется выбор подрядчиков, закупка материалов и оборудования, а также составление графиков работ. Важно, чтобы все участники проекта были вовлечены в процесс и понимали свои задачи и сроки выполнения работ.
На этапе строительства происходит реализация проектных решений на практике. Здесь важно следить за качеством выполняемых работ, соблюдением технологий и сроков. Регулярные проверки и контроль со стороны проектировщиков и заказчика помогут избежать ошибок и недочетов.
Завершающим этапом является приемка объекта. После завершения всех строительных работ проводится проверка готовности объекта к эксплуатации. Это включает в себя проверку всех систем, соответствие проектной документации и устранение возможных недостатков.
После успешной приемки объекта наступает этап ввод в эксплуатацию. На этом этапе осуществляется окончательная проверка всех систем и оборудования, а также подготовка необходимых документов для официального ввода здания в эксплуатацию. Важно, чтобы все работы были выполнены в соответствии с проектной документацией и действующими нормами. Ввод в эксплуатацию включает в себя:
- Проверку работоспособности всех инженерных систем, таких как электроснабжение, водоснабжение, отопление и вентиляция.
- Проведение испытаний на соответствие проектным требованиям и стандартам безопасности.
- Подготовку и подачу отчетов о выполненных работах и получении всех необходимых разрешений.
После ввода в эксплуатацию начинается эксплуатация объекта. На этом этапе важно обеспечить надлежащее обслуживание и эксплуатацию здания. Это включает в себя регулярные проверки состояния конструкций, систем и оборудования, а также выполнение планового ремонта и модернизации. Эффективная эксплуатация позволяет продлить срок службы здания и снизить затраты на его содержание.
В процессе эксплуатации также может возникнуть необходимость в модернизации или реконструкции объекта. Это может быть вызвано изменением функционального назначения, требованиями к энергоэффективности или изменениями в законодательстве. Модернизация может включать в себя обновление инженерных систем, изменение планировки или даже полную реконструкцию здания.
Важно отметить, что на каждом из этапов проектирования и строительства необходимо учитывать нормативные требования и стандарты, которые регулируют все аспекты проектирования, строительства и эксплуатации зданий. Это включает в себя строительные нормы и правила (СНиП), санитарные нормы, экологические требования и другие регуляторные документы.
Кроме того, в процессе проектирования и строительства необходимо учитывать инновационные технологии и материалы, которые могут повысить эффективность и безопасность объекта. Например, использование современных систем автоматизации, энергоэффективных материалов и технологий может значительно снизить эксплуатационные расходы и улучшить комфорт для пользователей.
Таким образом, этапы строительного проектирования представляют собой сложный и многогранный процесс, который требует комплексного подхода и взаимодействия всех участников. Каждый этап имеет свои особенности и задачи, которые необходимо решать для достижения успешного результата. Важно помнить, что качественное проектирование и строительство — это залог долговечности и безопасности объекта, а также удовлетворенности заказчика и пользователей.
Системы электроснабжения
Проектирование систем электроснабжения является важным этапом в строительстве, который включает в себя несколько ключевых этапов. Каждый из этих этапов требует тщательного планирования и координации, чтобы обеспечить надежное и эффективное электроснабжение. Рассмотрим основные этапы строительного проектирования систем электроснабжения.
1. Предпроектные исследования
На этом этапе проводятся предварительные исследования, которые включают в себя анализ потребностей в электроэнергии, оценку существующих условий и возможностей для подключения к электросетям. Важным аспектом является изучение местных норм и правил, касающихся электроснабжения, а также требований к безопасности.
2. Составление технического задания
На основе проведенных исследований разрабатывается техническое задание, в котором определяются основные параметры системы электроснабжения. Это включает в себя:
- потребляемая мощность;
- тип источников питания;
- схема распределения электроэнергии;
- требования к качеству электроэнергии;
- сроки реализации проекта.
3. Проектирование
На этом этапе разрабатываются проектные документы, которые включают в себя схемы, чертежи и спецификации. Проектирование систем электроснабжения включает в себя:
- разработку схемы электроснабжения;
- выбор оборудования и материалов;
- расчет нагрузок и режимов работы;
- определение мест установки оборудования;
- разработку мер по обеспечению безопасности и надежности системы.
4. Согласование проекта
После завершения проектирования необходимо согласовать проект с соответствующими органами и службами. Это может включать в себя:
- проверку соответствия проектных решений действующим нормам;
- получение разрешений на строительство;
- согласование с поставщиками электроэнергии.
5. Подготовка к строительству
На этом этапе осуществляется подготовка к строительству, которая включает в себя:
- заключение контрактов с подрядчиками;
- закупку необходимого оборудования и материалов;
- организацию строительного процесса.
Каждый из этих этапов требует внимательного подхода и профессионализма, так как от качества проектирования зависит не только эффективность работы системы, но и безопасность эксплуатации электроснабжения в целом.
6. Строительство и монтаж
На этом этапе осуществляется непосредственное строительство и монтаж систем электроснабжения. Важно, чтобы все работы выполнялись в соответствии с проектной документацией и действующими нормами. Основные задачи на этом этапе включают:
- монтаж электрических сетей и оборудования;
- проведение испытаний на соответствие проектным требованиям;
- обеспечение контроля качества выполняемых работ;
- организацию безопасных условий труда для рабочих.
7. Пусконаладочные работы
После завершения монтажа систем электроснабжения проводятся пусконаладочные работы. Эти работы необходимы для проверки работоспособности системы и ее соответствия проектным требованиям. Включают в себя:
- проверку всех электрических соединений;
- тестирование оборудования на различных режимах работы;
- настройку защитных устройств;
- проверку систем автоматизации и управления.
8. Ввод в эксплуатацию
После успешного завершения пусконаладочных работ система электроснабжения вводится в эксплуатацию. На этом этапе важно провести:
- обучение персонала, который будет обслуживать систему;
- разработку инструкций по эксплуатации и техническому обслуживанию;
- оформление необходимой документации для передачи системы в эксплуатацию.
9. Обслуживание и эксплуатация
После ввода системы в эксплуатацию начинается этап ее обслуживания. Это включает в себя регулярные проверки, техническое обслуживание и ремонт оборудования. Важно обеспечить:
- плановое обслуживание для предотвращения аварий;
- мониторинг состояния оборудования;
- своевременное реагирование на возникающие неисправности.
Эффективное обслуживание систем электроснабжения позволяет продлить срок службы оборудования и обеспечить его надежную работу. Важно также учитывать изменения в потреблении электроэнергии и, при необходимости, вносить коррективы в систему.
10. Модернизация и развитие
С течением времени может возникнуть необходимость в модернизации систем электроснабжения. Это может быть связано с увеличением потребностей в электроэнергии, внедрением новых технологий или изменением нормативных требований. Модернизация может включать:
- замену устаревшего оборудования;
- внедрение систем автоматизации;
- оптимизацию схемы электроснабжения.
Таким образом, проектирование и реализация систем электроснабжения — это сложный и многоэтапный процесс, который требует профессионального подхода на каждом этапе. От качества проектирования и выполнения работ зависит не только эффективность работы системы, но и безопасность эксплуатации.
системы водоснабжения
Проектирование систем водоснабжения – это сложный и многоэтапный процесс, который требует тщательной подготовки и планирования. Каждый этап проектирования имеет свои особенности и задачи, которые необходимо решить для успешной реализации проекта. В данной статье мы рассмотрим основные этапы строительного проектирования систем водоснабжения.
1. Предпроектные исследования
На этом этапе осуществляется сбор и анализ информации, необходимой для дальнейшего проектирования. Включает в себя:
- Изучение существующих систем водоснабжения в районе проектирования;
- Оценка потребностей в водоснабжении для различных категорий пользователей;
- Анализ геологических и гидрогеологических условий;
- Изучение экологических аспектов и возможного воздействия на окружающую среду.
Предпроектные исследования позволяют определить основные параметры системы, такие как объемы водопотребления, источники водоснабжения и возможные пути транспортировки воды.
2. Разработка концепции проекта
На этом этапе формируется общая концепция системы водоснабжения. Основные задачи включают:
- Определение источников водоснабжения (подземные или поверхностные воды);
- Выбор схемы водоснабжения (централизованная или децентрализованная);
- Разработка предварительных расчетов по водопотреблению и водоотведению;
- Определение основных технических решений и оборудования.
Концепция проекта должна учитывать не только технические, но и экономические аспекты, такие как стоимость строительства и эксплуатации системы.
3. Проектирование
На этом этапе разрабатываются детальные проектные документы, включая:
- Схемы расположения объектов системы водоснабжения;
- Технические характеристики оборудования;
- Расчеты гидравлических режимов;
- Проектирование сетей водоснабжения и водоотведения;
- Разработка сметной документации.
Проектирование требует тесного взаимодействия между различными специалистами, такими как инженеры, архитекторы и экологи, для обеспечения комплексного подхода к созданию системы.
4. Согласование проектной документации
После завершения проектирования необходимо согласовать проектную документацию с различными инстанциями. Это включает:
- Получение разрешений от местных органов власти;
- Согласование с экологическими службами;
- Утверждение проектных решений с заинтересованными сторонами.
Согласование проектной документации является важным этапом, так как оно позволяет избежать возможных правовых и экологических проблем в будущем.
5. Подготовка к строительству
На этом этапе осуществляется подготовка к строительству системы водоснабжения. Включает в себя:
- Выбор подрядчиков и поставщиков оборудования;
- Разработка графиков выполнения работ;
- Организация строительного процесса;
- Подготовка строительной площадки.
Эффективная подготовка к строительству позволяет минимизировать риски и обеспечить своевременное выполнение всех работ.
6. Строительство
На этапе строительства осуществляется реализация проектных решений. Этот процесс включает в себя:
- Проведение земляных работ для прокладки трубопроводов;
- Монтаж насосных станций и очистных сооружений;
- Установку резервуаров для хранения воды;
- Прокладку распределительных сетей и подключение к существующим системам.
Строительство требует строгого соблюдения проектной документации и стандартов безопасности. Важно обеспечить контроль качества на всех этапах, чтобы избежать возможных проблем в будущем.
7. Пусконаладочные работы
После завершения строительных работ начинается этап пусконаладочных работ, который включает:
- Проверку всех систем и оборудования на соответствие проектным требованиям;
- Настройку и тестирование насосов, фильтров и других устройств;
- Проведение гидравлических испытаний трубопроводов;
- Обучение персонала, который будет эксплуатировать систему.
Пусконаладочные работы являются критически важными для обеспечения надежной и безопасной работы системы водоснабжения. На этом этапе выявляются и устраняются возможные недостатки, что позволяет избежать серьезных проблем в будущем.
8. Ввод в эксплуатацию
После успешного завершения пусконаладочных работ система водоснабжения вводится в эксплуатацию. Этот этап включает:
- Оформление необходимых документов для официального ввода в эксплуатацию;
- Проведение финальных проверок и тестов;
- Запуск системы в рабочий режим;
- Мониторинг работы системы в первые месяцы эксплуатации.
Ввод в эксплуатацию – это важный момент, который подтверждает готовность системы к полноценной работе и ее соответствие всем установленным требованиям.
9. Обслуживание и эксплуатация
После ввода в эксплуатацию начинается этап обслуживания и эксплуатации системы водоснабжения. Основные задачи на этом этапе включают:
- Регулярное техническое обслуживание оборудования;
- Мониторинг качества воды и состояния трубопроводов;
- Проведение плановых ремонтов и модернизации системы;
- Обучение и повышение квалификации персонала.
Эффективное обслуживание и эксплуатация системы водоснабжения обеспечивают ее надежную работу на протяжении всего срока службы, что, в свою очередь, гарантирует бесперебойное водоснабжение для пользователей.
10. Оценка эффективности и анализ
На завершающем этапе проектирования и строительства систем водоснабжения проводится оценка эффективности работы системы. Это включает:
- Анализ данных о потреблении воды и ее качестве;
- Оценку затрат на эксплуатацию и обслуживание;
- Выявление проблем и недостатков в работе системы;
- Разработку рекомендаций по улучшению работы системы.
Оценка эффективности позволяет не только выявить слабые места в системе, но и разработать стратегии для их устранения, что способствует повышению качества водоснабжения и удовлетворенности пользователей.
системы водоотведения
Проектирование систем водоотведения является важным этапом в строительстве, который требует тщательного планирования и учета множества факторов. Этот процесс включает в себя несколько ключевых этапов, каждый из которых играет свою роль в создании эффективной и надежной системы. Ниже представлены основные этапы строительного проектирования систем водоотведения.
1. Исследование и анализ территории
На первом этапе необходимо провести детальное исследование территории, где будет осуществляться строительство. Это включает в себя:
- Изучение геологических и гидрологических условий.
- Анализ существующих систем водоотведения и их состояния.
- Оценка потенциальных источников загрязнения.
- Определение уровня грунтовых вод и их колебаний.
Эти данные помогут определить, какие технологии и материалы будут наиболее эффективными для конкретных условий.
2. Проектирование системы
На этом этапе разрабатывается проект системы водоотведения. Включает в себя:
- Определение типа системы (открытая, закрытая, комбинированная).
- Разработка схемы расположения трубопроводов и других элементов.
- Выбор материалов для труб, колодцев и других конструкций.
- Расчет пропускной способности системы.
Проект должен учитывать не только технические характеристики, но и экологические аспекты, чтобы минимизировать негативное воздействие на окружающую среду.
3. Согласование проекта
После завершения проектирования необходимо согласовать проект с соответствующими органами. Это включает в себя:
- Подготовку документации для подачи в государственные органы.
- Получение разрешений на строительство.
- Согласование с местными властями и коммунальными службами.
Согласование проекта может занять значительное время, поэтому важно заранее подготовить все необходимые документы.
4. Подготовка строительной площадки
Перед началом строительных работ необходимо подготовить площадку. Это включает в себя:
- Очистку территории от мусора и растительности.
- Разметку границ строительного участка.
- Проведение необходимых земляных работ.
Подготовка площадки является важным шагом, так как от этого зависит качество и скорость выполнения строительных работ.
5. Строительство системы
На этом этапе осуществляется непосредственное строительство системы водоотведения. Включает в себя:
- Монтаж трубопроводов и колодцев.
- Установку насосных станций (если необходимо).
- Проведение работ по благоустройству территории после завершения монтажа.
Важно следить за качеством выполнения работ и соответствием проектной документации.
6. Тестирование и ввод в эксплуатацию
После завершения строительных работ необходимо провести тестирование системы. Это включает в себя:
- Проверку герметичности трубопроводов.
- Тестирование работы насосных станций.
- Оценку эффективности системы в различных режимах работы.
Тестирование позволяет выявить возможные недостатки и устранить их до ввода системы в эксплуатацию.
7. Обслуживание и мониторинг
После ввода системы в эксплуатацию необходимо организовать ее регулярное обслуживание и мониторинг. Это включает в себя:
- Плановые проверки состояния системы.
- Очистку и ремонт элементов системы при необходимости.
- Мониторинг качества сточных вод.
Регулярное обслуживание позволяет продлить срок службы системы и обеспечить ее эффективную работу.8. Оценка эффективности системы
После завершения всех этапов проектирования и строительства важно провести оценку эффективности системы водоотведения. Это включает в себя:
- Анализ данных о количестве и качестве сточных вод, которые система обрабатывает.
- Сравнение фактических показателей с проектными значениями.
- Оценку влияния системы на окружающую среду и здоровье населения.
Эта оценка позволяет выявить возможные недостатки и определить, требуется ли модернизация или улучшение системы.
9. Модернизация и обновление системы
С течением времени системы водоотведения могут требовать модернизации. Это может быть вызвано:
- Увеличением объемов сточных вод из-за роста населения или промышленности.
- Износом оборудования и трубопроводов.
- Изменениями в законодательстве и требованиях к экологии.
Модернизация может включать в себя замену устаревших элементов, установку новых технологий очистки и улучшение управления системой.
10. Обучение персонала
Не менее важным аспектом является обучение персонала, который будет обслуживать систему водоотведения. Это включает в себя:
- Обучение основам работы с оборудованием и технологиями.
- Проведение инструктажей по безопасности и экологии.
- Регулярные тренинги по новым методам и технологиям в области водоотведения.
Квалифицированный персонал способен обеспечить надежную и эффективную работу системы, что в свою очередь влияет на качество обслуживания и защиту окружающей среды.
11. Взаимодействие с населением
Важно также наладить взаимодействие с населением, которое может быть затронуто работой системы водоотведения. Это включает в себя:
- Информирование жителей о планируемых работах и возможных неудобствах.
- Сбор обратной связи и предложений от населения.
- Организацию мероприятий по повышению осведомленности о важности систем водоотведения.
Такое взаимодействие способствует созданию доверительных отношений между коммунальными службами и населением, а также повышает уровень общественного сознания в вопросах экологии.
12. Устойчивое развитие и инновации
Современные системы водоотведения должны соответствовать принципам устойчивого развития. Это включает в себя:
- Использование экологически чистых технологий и материалов.
- Оптимизацию процессов для снижения энергозатрат.
- Внедрение инновационных решений, таких как системы повторного использования сточных вод.
Инновации в области водоотведения могут значительно повысить эффективность систем и снизить их воздействие на окружающую среду.
Таким образом, проектирование и строительство систем водоотведения — это многогранный процесс, который требует комплексного подхода и учета множества факторов. Каждый этап, начиная от исследования территории и заканчивая обслуживанием и модернизацией, играет важную роль в создании эффективной и надежной системы, способной справляться с вызовами современности.
системы отопление вентиляции и кондиционирования воздуха
Проектирование систем отопления, вентиляции и кондиционирования воздуха (ОВК) является важным этапом в строительстве, который требует тщательного планирования и учета множества факторов. Этот процесс включает в себя несколько ключевых этапов, каждый из которых играет свою роль в создании эффективной и надежной системы. Рассмотрим подробнее основные этапы строительного проектирования систем ОВК.
1. Предварительное обследование и анализ объекта
На первом этапе проектирования необходимо провести детальное обследование объекта, где будет установлена система ОВК. Это включает в себя:
- Оценку существующих условий: анализ состояния здания, его конструкции, а также существующих систем отопления и вентиляции.
- Изучение климатических условий региона: определение среднегодовых температур, влажности и других климатических факторов, которые могут повлиять на проектирование.
- Определение потребностей пользователей: сбор информации о том, как будет использоваться помещение, какие требования предъявляются к температурному режиму и качеству воздуха.
2. Разработка концепции системы
На основе собранной информации разрабатывается концепция системы ОВК. Этот этап включает в себя:
- Выбор типа системы: определение, будет ли это централизованная или децентрализованная система, а также выбор между различными типами отопления (водяное, электрическое и т.д.).
- Определение схемы распределения: проектирование схемы, по которой будут распределяться тепло и воздух по помещению, включая расположение радиаторов, воздуховодов и кондиционеров.
- Оценка энергоэффективности: анализ возможных решений с точки зрения их энергоэффективности и воздействия на окружающую среду.
3. Подбор оборудования
На этом этапе происходит выбор конкретного оборудования, которое будет использоваться в системе. Важно учитывать:
- Технические характеристики: мощность, производительность, эффективность и другие параметры оборудования.
- Совместимость: проверка совместимости выбранного оборудования с существующими системами и конструкцией здания.
- Доступность и стоимость: анализ рынка на предмет доступности оборудования и его стоимости, а также возможных альтернатив.
4. Проектирование системы
После выбора оборудования начинается этап проектирования, который включает в себя:
- Создание проектной документации: разработка чертежей, схем и спецификаций для всех элементов системы.
- Расчет тепловых и воздушных нагрузок: определение необходимых параметров для обеспечения комфортного микроклимата в помещениях.
- Согласование проекта: получение необходимых разрешений и согласований от соответствующих органов и служб.
Каждый из этих этапов требует внимательного подхода и профессионального анализа, чтобы обеспечить эффективное функционирование системы отопления, вентиляции и кондиционирования воздуха в будущем. Важно помнить, что качественное проектирование напрямую влияет на комфорт и безопасность пользователей помещений.
5. Монтаж системы
После завершения проектирования и получения всех необходимых разрешений начинается этап монтажа системы ОВК. Этот процесс включает в себя:
- Подготовку строительной площадки: очистка и подготовка помещений для установки оборудования, а также обеспечение доступа к необходимым коммуникациям.
- Установку оборудования: монтаж котлов, кондиционеров, вентиляторов, радиаторов и других элементов системы в соответствии с проектной документацией.
- Прокладку трубопроводов и воздуховодов: установка всех необходимых коммуникаций для обеспечения циркуляции воздуха и теплоносителя.
6. Пусконаладочные работы
После завершения монтажа системы необходимо провести пусконаладочные работы, которые включают:
- Проверку работоспособности оборудования: тестирование всех элементов системы на предмет их корректной работы.
- Настройку параметров: регулировка температуры, давления и других параметров для достижения оптимального функционирования системы.
- Обучение персонала: проведение инструктажей для пользователей и обслуживающего персонала по правильной эксплуатации системы.
7. Эксплуатация и обслуживание
После успешного завершения пусконаладочных работ система ОВК вводится в эксплуатацию. Важно обеспечить регулярное обслуживание, которое включает:
- Плановые проверки: регулярные осмотры и техническое обслуживание оборудования для предотвращения поломок и повышения его срока службы.
- Ремонтные работы: оперативное устранение неисправностей и замена изношенных элементов системы.
- Мониторинг эффективности: анализ работы системы для выявления возможных улучшений и повышения энергоэффективности.
8. Оценка эффективности системы
На завершающем этапе необходимо провести оценку эффективности работы системы ОВК. Это включает в себя:
- Сбор данных о потреблении энергии: анализ расхода энергии на отопление, вентиляцию и кондиционирование воздуха.
- Оценка качества воздуха: измерение параметров воздуха в помещениях, таких как температура, влажность и содержание загрязняющих веществ.
- Сравнение с проектными показателями: сопоставление фактических данных с проектными для выявления отклонений и необходимости корректировок.
Эти этапы проектирования систем отопления, вентиляции и кондиционирования воздуха являются основой для создания эффективных и надежных систем, которые обеспечивают комфортные условия для пользователей. Каждый из этапов требует внимательного подхода и профессионализма, что в конечном итоге влияет на качество жизни и работы в помещениях.
слаботочные системы
Строительное проектирование слаботочных систем включает в себя несколько ключевых этапов, каждый из которых играет важную роль в создании эффективной и безопасной инфраструктуры. Эти системы охватывают широкий спектр технологий, таких как системы видеонаблюдения, охранные сигнализации, системы контроля доступа, а также сети передачи данных и телефонные системы. Важно понимать, что каждый этап проектирования требует тщательной проработки и координации между различными специалистами.
1. Предпроектные исследования
На этом этапе осуществляется сбор информации о проектируемом объекте, его функциональных требованиях и условиях эксплуатации. Важными аспектами являются:
- Анализ существующих систем и технологий, которые могут быть интегрированы в новый проект.
- Изучение нормативных документов и стандартов, касающихся слаботочных систем.
- Оценка потребностей заказчика и пользователей, чтобы определить, какие функции должны быть реализованы в проекте.
Предпроектные исследования помогают сформировать общее представление о проекте и выявить возможные ограничения и риски, которые могут возникнуть в процессе его реализации.
2. Разработка концепции проекта
На этом этапе создается концепция, которая включает в себя общие принципы проектирования и основные решения по выбору технологий и оборудования. Важные моменты, которые следует учесть:
- Определение архитектуры системы, включая выбор типов оборудования и технологий.
- Разработка схемы взаимодействия различных компонентов системы.
- Оценка бюджета проекта и сроков его реализации.
Концепция проекта должна быть согласована с заказчиком и другими заинтересованными сторонами, чтобы убедиться, что все требования учтены.
3. Проектирование
На этом этапе осуществляется детальная проработка всех аспектов проекта. Включает в себя:
- Создание проектной документации, включая схемы, спецификации и расчеты.
- Выбор конкретных моделей оборудования и материалов, которые будут использоваться в проекте.
- Разработка планов установки и настройки систем.
Проектирование требует тесного сотрудничества между инженерами, архитекторами и другими специалистами, чтобы обеспечить совместимость всех систем и их соответствие требованиям безопасности.
4. Согласование проектной документации
После завершения проектирования необходимо согласовать всю документацию с заказчиком и соответствующими контролирующими органами. Этот этап включает в себя:
- Проверку проектной документации на соответствие действующим нормам и стандартам.
- Получение разрешений и согласований от местных властей и других заинтересованных сторон.
- Внесение необходимых изменений в проект на основе полученных замечаний и рекомендаций.
Согласование документации является критически важным этапом, так как от него зависит возможность реализации проекта в будущем.
5. Подбор и закупка оборудования
На этом этапе осуществляется выбор и закупка необходимого оборудования и материалов для реализации проекта. Важные аспекты включают:
- Проведение тендеров и выбор поставщиков, которые смогут предоставить качественное оборудование по конкурентоспособным ценам.
- Оценка технических характеристик и совместимости оборудования с проектируемыми системами.
- Заключение договоров на поставку и установку оборудования.
Правильный выбор оборудования на этом этапе обеспечивает надежность и эффективность работы слаботочных систем в будущем.
6. Монтаж и настройка систем
После закупки оборудования начинается этап монтажа и настройки слаботочных систем. Этот процесс включает в себя:
- Установку оборудования в соответствии с проектной документацией и схемами.
- Проведение необходимых электрических и сетевых подключений.
- Настройку программного обеспечения и тестирование всех систем на работоспособность.
Монтаж и настройка должны проводиться квалифицированными специалистами, чтобы избежать ошибок, которые могут привести к сбоям в работе систем.
7. Тестирование и ввод в эксплуатацию
После завершения монтажа необходимо провести тестирование всех систем. Этот этап включает:
- Проверку работоспособности всех компонентов системы и их взаимодействия.
- Проведение испытаний на соответствие проектным требованиям и стандартам безопасности.
- Подготовку отчетов о проведенных испытаниях и выявленных недостатках.
Тестирование позволяет выявить и устранить возможные проблемы до ввода системы в эксплуатацию, что значительно снижает риски в будущем.
8. Обучение персонала и передача системы заказчику
На завершающем этапе осуществляется обучение персонала заказчика, который будет эксплуатировать и обслуживать слаботочные системы. Важные моменты:
- Проведение обучающих семинаров и практических занятий по работе с оборудованием и программным обеспечением.
- Передача всей необходимой документации, включая инструкции по эксплуатации и техническому обслуживанию.
- Обсуждение условий гарантии и послепродажного обслуживания.
Обучение персонала является важным шагом для обеспечения эффективной эксплуатации систем и минимизации рисков возникновения неисправностей.
Таким образом, этапы строительного проектирования слаботочных систем требуют комплексного подхода и взаимодействия различных специалистов. Каждый из этапов играет ключевую роль в успешной реализации проекта и обеспечении его функциональности и безопасности.
системы газоснабжения
Проектирование систем газоснабжения – это сложный и многоэтапный процесс, который требует тщательной подготовки и соблюдения всех норм и стандартов. Этапы строительного проектирования можно разделить на несколько ключевых фаз, каждая из которых играет важную роль в создании эффективной и безопасной газоснабжающей системы.
1. Предпроектные исследования
На этом этапе осуществляется сбор и анализ информации о проектируемом объекте и его окружении. Важными аспектами являются:
- Изучение геологических и гидрогеологических условий местности.
- Анализ существующих инженерных сетей и коммуникаций.
- Оценка потребностей в газе для различных потребителей.
- Изучение нормативных документов и требований к проектированию систем газоснабжения.
Предпроектные исследования позволяют определить основные параметры будущей системы, а также выявить возможные риски и ограничения, которые могут повлиять на проект.
2. Разработка проектной документации
На этом этапе создается основная проектная документация, которая включает в себя:
- Техническое задание, в котором определяются цели и задачи проектирования.
- Эскизный проект, который визуализирует основные решения и концепции системы.
- Рабочая документация, включающая чертежи, схемы и спецификации.
Рабочая документация должна соответствовать всем действующим стандартам и нормам, а также учитывать результаты предпроектных исследований. Важно, чтобы проект был понятен и доступен для дальнейшего исполнения.
3. Согласование проектной документации
После завершения разработки проектной документации необходимо пройти процедуру согласования с различными инстанциями. Это может включать:
- Согласование с местными органами власти.
- Получение разрешений от контролирующих организаций.
- Согласование с поставщиками газа и другими заинтересованными сторонами.
Согласование проектной документации – это важный этап, который позволяет избежать возможных правовых и технических проблем в будущем. На этом этапе также могут быть внесены изменения в проект в соответствии с требованиями согласующих органов.
4. Подготовка к строительству
После получения всех необходимых согласований начинается подготовка к строительству. Этот этап включает в себя:
- Выбор подрядчиков и поставщиков материалов.
- Разработка графика выполнения работ.
- Организацию строительной площадки и подготовку необходимых ресурсов.
Подготовка к строительству требует тщательной координации всех участников процесса, чтобы обеспечить своевременное и качественное выполнение работ.
5. Строительство и монтаж
На этом этапе осуществляется непосредственное строительство и монтаж систем газоснабжения. Важные аспекты этого этапа включают:
- Подготовка строительной площадки, включая разметку и установку временных сооружений.
- Монтаж трубопроводов, арматуры и оборудования в соответствии с проектной документацией.
- Проведение необходимых земляных работ и благоустройство территории.
Строительство должно проводиться с соблюдением всех норм безопасности и качества. Важно, чтобы все работы выполнялись квалифицированными специалистами, а также чтобы проводился постоянный контроль за качеством выполняемых работ.
6. Пусконаладочные работы
После завершения строительных работ начинается этап пусконаладки, который включает в себя:
- Проверку всех систем и оборудования на соответствие проектным требованиям.
- Проведение испытаний на герметичность и прочность трубопроводов.
- Настройку и калибровку оборудования для обеспечения его корректной работы.
Пусконаладочные работы являются критически важными, так как от их качества зависит безопасность и эффективность работы всей системы газоснабжения. На этом этапе также проводятся обучающие мероприятия для персонала, который будет эксплуатировать систему.
7. Ввод в эксплуатацию
После успешного завершения пусконаладочных работ система газоснабжения готова к вводу в эксплуатацию. Этот этап включает:
- Оформление всех необходимых документов для официального ввода в эксплуатацию.
- Проведение финальных проверок и согласований с контролирующими органами.
- Запуск системы и начало ее эксплуатации.
Ввод в эксплуатацию – это завершающий этап проектирования и строительства, который подтверждает готовность системы к безопасной и эффективной работе. На этом этапе также важно обеспечить передачу всей необходимой документации и инструкций для дальнейшей эксплуатации.
8. Обслуживание и эксплуатация
После ввода в эксплуатацию начинается этап обслуживания и эксплуатации системы газоснабжения. Это включает в себя:
- Регулярные проверки и техническое обслуживание оборудования.
- Мониторинг состояния системы и выявление возможных неисправностей.
- Обучение персонала и проведение инструктажей по безопасности.
Обслуживание и эксплуатация системы газоснабжения являются важными для обеспечения ее надежной работы на протяжении всего срока службы. Необходимо следить за состоянием оборудования и проводить профилактические мероприятия для предотвращения аварийных ситуаций.
Таким образом, этапы строительного проектирования систем газоснабжения охватывают весь процесс – от предпроектных исследований до эксплуатации. Каждый из этих этапов требует внимательного подхода и соблюдения всех норм и стандартов, что в конечном итоге обеспечивает безопасность и эффективность газоснабжающей системы.
Технологические решения
Строительное проектирование — это сложный и многоэтапный процесс, который требует тщательной подготовки и координации различных специалистов. В этом разделе мы рассмотрим основные этапы строительного проектирования, которые помогут обеспечить успешное выполнение проекта.
1. Предпроектные исследования
На этом этапе осуществляется сбор и анализ информации, необходимой для дальнейшего проектирования. Основные задачи включают:
- Изучение условий участка: геология, гидрология, климатические условия.
- Анализ существующих зданий и сооружений на территории.
- Оценка инфраструктуры: дороги, коммуникации, транспортные связи.
- Сбор данных о нормативных документах и требованиях к проекту.
Предпроектные исследования позволяют выявить возможные риски и ограничения, которые могут повлиять на проект.
2. Разработка концепции проекта
На этом этапе формируется общая концепция будущего объекта. Основные действия включают:
- Определение функционального назначения здания или сооружения.
- Разработка предварительных эскизов и планировочных решений.
- Оценка экономической целесообразности проекта.
- Согласование концепции с заказчиком и заинтересованными сторонами.
Концепция проекта служит основой для дальнейшего проектирования и помогает установить основные параметры будущего объекта.
3. Архитектурное проектирование
На этом этапе разрабатываются архитектурные решения, которые включают:
- Создание архитектурных чертежей и визуализаций.
- Определение материалов и технологий строительства.
- Разработка фасадов и интерьеров.
- Согласование архитектурных решений с местными органами власти.
Архитектурное проектирование играет ключевую роль в создании эстетически привлекательного и функционального объекта.
4. Инженерное проектирование
На этом этапе разрабатываются инженерные системы, необходимые для функционирования здания. Основные направления включают:
- Проектирование систем водоснабжения и канализации.
- Разработка систем отопления, вентиляции и кондиционирования.
- Проектирование электрических и слаботочных систем.
- Создание систем безопасности и автоматизации.
Инженерное проектирование обеспечивает комфортные условия для пользователей и безопасность объекта.
5. Согласование проектной документации
На этом этапе осуществляется проверка и согласование всех проектных решений с различными инстанциями. Важные шаги включают:
- Подготовка и подача проектной документации в государственные органы.
- Получение разрешений на строительство.
- Согласование проектных решений с заказчиком и подрядчиками.
- Корректировка проекта в соответствии с замечаниями и требованиями.
Согласование проектной документации является важным этапом, который позволяет избежать юридических и технических проблем в будущем.
6. Подготовка рабочей документации
На этом этапе разрабатывается рабочая документация, которая включает все необходимые чертежи и спецификации для строительства. Основные задачи:
- Создание детализированных чертежей всех конструктивных элементов.
- Разработка спецификаций на материалы и оборудование.
- Подготовка сметной документации для определения стоимости строительства.
- Согласование рабочей документации с подрядчиками и поставщиками.
Рабочая документация является основой для выполнения строительных работ и должна быть максимально точной и полной.
7. Организация строительного процесса
На этом этапе начинается непосредственное строительство объекта. Важные аспекты включают:
- Формирование строительной площадки и подготовка территории.
- Заключение договоров с подрядчиками и поставщиками.
- Организация логистики и поставок материалов.
- Контроль за выполнением строительных работ в соответствии с проектом.
Организация строительного процесса требует тщательной координации всех участников и соблюдения сроков.
8. Контроль качества и безопасности
На этом этапе осуществляется контроль за качеством выполняемых работ и соблюдением норм безопасности. Основные действия:
- Проведение регулярных проверок качества строительных материалов.
- Контроль за соблюдением технологий и стандартов строительства.
- Оценка состояния строительных конструкций на каждом этапе.
- Обучение работников правилам безопасности на строительной площадке.
Контроль качества и безопасности является критически важным для успешного завершения проекта и предотвращения аварий.
9. Завершение строительства и сдача объекта
На этом этапе происходит окончание строительных работ и подготовка объекта к эксплуатации. Важные шаги:
- Проведение финальных проверок и испытаний всех систем.
- Подготовка документации для сдачи объекта в эксплуатацию.
- Согласование с заказчиком и получение разрешения на ввод в эксплуатацию.
- Организация передачи объекта заказчику.
Завершение строительства и сдача объекта — это финальный этап, который требует внимательности и тщательной подготовки.
10. Эксплуатация и обслуживание
После сдачи объекта начинается его эксплуатация, которая включает:
- Регулярное техническое обслуживание всех систем и конструкций.
- Мониторинг состояния здания и выявление возможных проблем.
- Проведение плановых ремонтов и модернизаций.
- Обучение персонала правилам эксплуатации и обслуживания.
Эксплуатация и обслуживание объекта обеспечивают его долговечность и безопасность для пользователей.
Проект организации строительства
Строительное проектирование – это сложный и многоступенчатый процесс, который включает в себя несколько ключевых этапов. Каждый из этих этапов играет важную роль в успешной реализации строительного проекта. В данной статье мы рассмотрим основные этапы строительного проектирования, их особенности и значимость.
1. Предпроектные исследования
На этом этапе осуществляется сбор и анализ информации, необходимой для дальнейшего проектирования. Включает в себя:
- Изучение условий участка: геологические, гидрологические, климатические и экологические факторы.
- Анализ существующей инфраструктуры: наличие дорог, коммуникаций, транспортных путей.
- Оценка правовых аспектов: получение разрешений, согласование с местными органами власти.
Предпроектные исследования позволяют выявить возможные риски и ограничения, которые могут повлиять на проект. Это важный этап, так как он закладывает основу для дальнейшего проектирования.
2. Разработка концепции проекта
На этом этапе формируется общая идея и концепция будущего объекта. Основные задачи включают:
- Определение функционального назначения здания или сооружения.
- Разработка предварительных эскизов и планировочных решений.
- Оценка экономической целесообразности проекта.
Концепция проекта должна учитывать не только технические, но и эстетические аспекты, а также соответствовать требованиям заказчика и нормативным документам.
3. Архитектурное проектирование
Этот этап включает в себя создание архитектурных чертежей и моделей. Основные задачи:
- Разработка архитектурных решений, включая фасады, планировки и объемно-пространственные решения.
- Создание 3D-моделей для визуализации проекта.
- Согласование архитектурных решений с заказчиком и другими заинтересованными сторонами.
Архитектурное проектирование – это не только создание красивого здания, но и обеспечение его функциональности и безопасности.
4. Инженерное проектирование
На этом этапе разрабатываются все необходимые инженерные системы, такие как:
- Электроснабжение и освещение.
- Отопление, вентиляция и кондиционирование.
- Водоснабжение и водоотведение.
- Системы безопасности и автоматизации.
Инженерное проектирование должно учитывать все особенности здания и его эксплуатации, а также соответствовать современным стандартам и требованиям.
5. Проектирование конструкций
На этом этапе разрабатываются конструктивные решения, которые обеспечивают прочность и устойчивость здания. Основные задачи включают:
- Определение типов конструкций (бетонные, металлические, деревянные и т.д.).
- Расчет нагрузок и определение прочностных характеристик материалов.
- Создание чертежей конструктивных элементов (фундаментов, стен, перекрытий и кровли).
Проектирование конструкций требует глубоких знаний в области строительной механики и материаловедения, а также соблюдения всех норм и стандартов.
6. Согласование проектной документации
После завершения проектирования необходимо согласовать всю документацию с различными инстанциями. Этот этап включает:
- Подготовку и подачу документов в государственные органы для получения разрешений на строительство.
- Согласование проектных решений с местными властями и службами (пожарная безопасность, санитарные нормы и т.д.).
- Получение заключений от экспертов и специализированных организаций.
Согласование проектной документации – это важный этап, который может занять значительное время, поэтому его необходимо планировать заранее.
7. Подготовка рабочей документации
На этом этапе разрабатывается рабочая документация, которая включает в себя все необходимые чертежи и спецификации для строительства. Основные задачи:
- Создание детализированных чертежей для всех этапов строительства.
- Подготовка сметной документации и спецификаций на материалы.
- Разработка инструкций по монтажу и эксплуатации систем.
Рабочая документация должна быть максимально точной и понятной для строителей, чтобы избежать ошибок в процессе реализации проекта.
8. Подготовка к строительству
На этом этапе осуществляется подготовка к началу строительных работ. Включает в себя:
- Организацию строительной площадки и подготовку территории.
- Заключение договоров с подрядчиками и поставщиками.
- Обеспечение необходимыми ресурсами (материалами, техникой, рабочей силой).
Подготовка к строительству – это важный этап, который определяет эффективность и сроки выполнения работ.
9. Строительство
На этом этапе осуществляется непосредственное строительство объекта. Основные задачи:
- Монтаж конструкций и инженерных систем согласно рабочей документации.
- Контроль качества выполняемых работ и соблюдение сроков.
- Взаимодействие с надзорными органами и решение возникающих вопросов.
Строительство – это финальная стадия проектирования, где все предыдущие этапы должны быть реализованы на практике.
10. Завершение проекта и ввод в эксплуатацию
После завершения строительных работ необходимо провести ряд мероприятий для ввода объекта в эксплуатацию. Включает в себя:
- Проведение приемки выполненных работ и проверка соответствия проекту.
- Получение разрешения на ввод в эксплуатацию от государственных органов.
- Подготовка документации для передачи объекта заказчику.
Завершение проекта и ввод в эксплуатацию – это заключительный этап, который подтверждает успешное выполнение всех работ и готовность объекта к использованию.
Мероприятия по охране окружающей среды
Строительное проектирование — это сложный и многоэтапный процесс, который требует тщательного планирования и учета множества факторов, включая охрану окружающей среды. Важность мероприятий по охране окружающей среды в процессе проектирования не может быть переоценена, так как они помогают минимизировать негативное воздействие на природу и способствуют устойчивому развитию. Рассмотрим основные этапы строительного проектирования с акцентом на экологические аспекты.
1. Предварительное исследование и анализ
На этом этапе осуществляется сбор информации о проектируемом объекте и его окружении. Важно провести экологическую оценку, которая включает в себя:
- Изучение существующих природных ресурсов и экосистем в районе строительства;
- Оценку воздействия на окружающую среду (ОВОС);
- Анализ существующих экологических норм и требований;
- Сбор данных о возможных источниках загрязнения и их влиянии на здоровье населения.
Эти исследования позволяют выявить потенциальные экологические риски и определить меры по их минимизации. Например, если в районе строительства находятся редкие виды растений или животных, необходимо разработать специальные меры по их охране.
2. Проектирование концепции
На этом этапе разрабатывается концепция проектируемого объекта, которая должна учитывать экологические аспекты. Важно, чтобы проект соответствовал принципам устойчивого развития. Ключевые моменты, которые следует учесть:
- Выбор места для строительства с минимальным воздействием на экосистему;
- Использование экологически чистых и безопасных материалов;
- Проектирование систем энергосбережения и водоотведения;
- Создание зеленых зон и сохранение существующих природных ландшафтов.
На этом этапе также разрабатываются предварительные планы по утилизации отходов и минимизации загрязнения во время строительства.
3. Разработка проектной документации
После утверждения концепции начинается разработка проектной документации, которая включает в себя все необходимые чертежи, схемы и расчеты. Важно, чтобы проектная документация содержала разделы, касающиеся охраны окружающей среды. Это может включать:
- Технические решения по минимизации воздействия на природу;
- Планы по рекультивации земель после завершения строительства;
- Меры по контролю за выбросами и сбросами;
- Системы мониторинга состояния окружающей среды в процессе эксплуатации объекта.
На этом этапе также важно получить все необходимые разрешения и согласования от экологических органов, что является обязательным условием для дальнейшего продвижения проекта.
4. Подбор подрядчиков и поставщиков
На этом этапе происходит выбор подрядчиков и поставщиков, которые будут участвовать в строительстве. Важно, чтобы они имели опыт работы с экологическими проектами и соблюдали принципы устойчивого развития. Критерии выбора могут включать:
- Наличие сертификатов по экологии и качеству;
- Опыт реализации аналогичных проектов;
- Способность предложить экологически чистые материалы и технологии;
- Готовность к соблюдению экологических норм и стандартов.
Также на этом этапе важно провести обучение персонала по вопросам охраны окружающей среды, чтобы все работники были осведомлены о мерах по минимизации воздействия на природу.
5. Строительство и контроль за соблюдением экологических норм
На этапе строительства необходимо обеспечить строгий контроль за соблюдением всех экологических норм и требований, прописанных в проектной документации. Это включает в себя:
- Регулярные проверки состояния окружающей среды;
- Мониторинг выбросов и сбросов;
- Контроль за утилизацией строительных отходов;
- Обеспечение защиты водоемов и зеленых зон от загрязнения.
Важно, чтобы все изменения в процессе строительства, которые могут повлиять на экологическую ситуацию, были документированы и согласованы с экологическими органами. Это поможет избежать штрафов и других санкций.
6. Завершение строительства и рекультивация
После завершения строительных работ необходимо провести рекультивацию территории. Это включает в себя:
- Восстановление нарушенных экосистем;
- Посадку деревьев и кустарников;
- Создание зеленых зон для отдыха и рекреации;
- Мониторинг состояния окружающей среды в течение определенного времени после завершения работ.
Рекультивация помогает восстановить природный баланс и минимизировать негативные последствия, вызванные строительством. Также важно провести оценку воздействия на окружающую среду после завершения проекта, чтобы выявить возможные проблемы и разработать меры по их устранению.
7. Эксплуатация и мониторинг
На этапе эксплуатации проектируемого объекта необходимо продолжать мониторинг состояния окружающей среды. Это включает в себя:
- Регулярные проверки на соответствие экологическим нормам;
- Оценку эффективности внедренных экологических решений;
- Сбор данных о воздействии объекта на окружающую среду;
- Корректировку эксплуатационных процессов в случае выявления негативных последствий.
Мониторинг позволяет своевременно реагировать на изменения и минимизировать негативное воздействие на природу. Важно, чтобы все данные о состоянии окружающей среды были доступны для анализа и оценки.
Таким образом, мероприятия по охране окружающей среды на всех этапах строительного проектирования играют ключевую роль в обеспечении устойчивого развития и сохранении природных ресурсов. Соблюдение экологических норм и стандартов не только защищает природу, но и способствует созданию комфортной и безопасной среды для жизни людей.
Мероприятия по обеспечению пожарной безопасности
Проектирование зданий и сооружений — это сложный и многоэтапный процесс, который требует тщательного планирования и соблюдения всех норм и правил, особенно в области пожарной безопасности. На каждом этапе проектирования необходимо учитывать различные аспекты, которые могут повлиять на безопасность объекта в случае возникновения пожара.
1. Предпроектные исследования
На этом этапе проводятся исследования, которые помогают определить основные требования к проекту. Включает в себя:
- Анализ местоположения: изучение окружающей инфраструктуры, доступности, а также потенциальных рисков.
- Оценка пожарной опасности: определение классов пожарной опасности для будущего объекта.
- Сбор данных о существующих системах противопожарной защиты в районе.
2. Разработка концепции проекта
На этом этапе формируется общая концепция здания, включая:
- Определение функционального назначения объекта.
- Разработка предварительных планов эвакуации и размещения систем противопожарной защиты.
- Согласование концепции с местными органами власти и пожарной службой.
3. Архитектурное проектирование
Архитектурное проектирование включает в себя создание детальных чертежей и моделей здания. Важные аспекты:
- Проектирование путей эвакуации: обеспечение свободного доступа к выходам и минимизация расстояний до них.
- Размещение огнестойких конструкций: использование материалов, которые замедляют распространение огня.
- Учет требований к системам вентиляции и дымоудаления.
4. Инженерное проектирование
На этом этапе разрабатываются все инженерные системы, включая:
- Системы противопожарной защиты: автоматические системы пожаротушения, сигнализации и оповещения.
- Электроснабжение: проектирование электросетей с учетом требований к безопасности.
- Системы водоснабжения: обеспечение наличия достаточного количества воды для тушения пожара.
5. Согласование проектной документации
После завершения проектирования необходимо согласовать документацию с различными инстанциями:
- Пожарная служба: проверка соответствия проектных решений требованиям пожарной безопасности.
- Органы местного самоуправления: получение разрешений на строительство.
- Экологические службы: оценка воздействия на окружающую среду.
Каждый из этих этапов играет ключевую роль в обеспечении пожарной безопасности и требует внимательного подхода к деталям. Важно помнить, что соблюдение всех норм и правил на этапе проектирования может значительно снизить риски и повысить безопасность будущего объекта.
6. Строительство и монтаж
На этапе строительства важно строго следовать проектной документации и учитывать все аспекты пожарной безопасности. Ключевые моменты:
- Контроль за качеством строительных материалов: использование сертифицированных огнестойких материалов.
- Соблюдение технологий монтажа: правильная установка систем противопожарной защиты и вентиляции.
- Обучение рабочих: проведение инструктажей по правилам пожарной безопасности на строительной площадке.
7. Тестирование систем противопожарной защиты
После завершения строительства необходимо провести тестирование всех систем, связанных с пожарной безопасностью:
- Проверка работоспособности автоматических систем пожаротушения и сигнализации.
- Тестирование систем дымоудаления и вентиляции на предмет их эффективности.
- Проведение учений по эвакуации для персонала и жильцов.
8. Ввод в эксплуатацию
Перед вводом здания в эксплуатацию необходимо получить все необходимые разрешения и сертификаты:
- Проверка соответствия объекта проектной документации.
- Получение заключения от пожарной службы о соответствии требованиям безопасности.
- Оформление актов о готовности к эксплуатации всех систем противопожарной защиты.
9. Эксплуатация и обслуживание
После ввода в эксплуатацию важно обеспечить регулярное обслуживание и проверку систем пожарной безопасности:
- Плановые проверки и техническое обслуживание систем противопожарной защиты.
- Обучение персонала по действиям в случае возникновения пожара.
- Проведение регулярных тренировок по эвакуации.
Эти мероприятия помогут поддерживать высокий уровень безопасности и минимизировать риски в случае возникновения чрезвычайной ситуации. Важно помнить, что пожарная безопасность — это не только соблюдение норм и правил, но и постоянное внимание к деталям на всех этапах проектирования, строительства и эксплуатации объекта.
10. Аудит и обновление систем
С течением времени может возникнуть необходимость в проведении аудита систем пожарной безопасности:
- Оценка эффективности существующих систем и их соответствие современным требованиям.
- Обновление оборудования и технологий в соответствии с новыми стандартами.
- Анализ инцидентов и внесение изменений в проектные решения для повышения безопасности.
Таким образом, мероприятия по обеспечению пожарной безопасности на этапе строительного проектирования являются важной частью общего процесса, который требует комплексного подхода и постоянного контроля. Каждый этап, начиная от предпроектных исследований и заканчивая эксплуатацией, должен быть тщательно проработан, чтобы гарантировать безопасность людей и имущества.
Требования к обеспечению безопасной эксплуатации объектов капитального строительства
Строительное проектирование – это сложный и многоэтапный процесс, который включает в себя несколько ключевых этапов, каждый из которых имеет свои особенности и требования. На каждом из этих этапов важно учитывать требования к обеспечению безопасной эксплуатации объектов капитального строительства, что является основой для успешного завершения проекта.
Первый этап проектирования – это предпроектные исследования. На этом этапе осуществляется сбор и анализ информации о проектируемом объекте, его местоположении, условиях эксплуатации и других факторах. Важным аспектом является оценка геологических и гидрогеологических условий, а также изучение существующей инфраструктуры. Это позволяет выявить потенциальные риски и ограничения, которые могут повлиять на проект.
Второй этап – разработка концепции проекта. На этом этапе формируется общее представление о будущем объекте, его функциональных характеристиках и архитектурных решениях. Важно учитывать требования к безопасности, включая соблюдение норм и стандартов, а также экологические аспекты. Концепция должна быть согласована с заказчиком и другими заинтересованными сторонами.
Третий этап – разработка проектной документации. Этот этап включает в себя создание детальных чертежей, спецификаций и расчетов, необходимых для реализации проекта. Проектная документация должна соответствовать действующим строительным нормам и правилам, а также учитывать требования к безопасности. Важно, чтобы все элементы проекта были взаимосвязаны и согласованы между собой.
Четвертый этап – экспертиза проектной документации. На этом этапе проект проходит проверку на соответствие требованиям законодательства, нормам и стандартам. Экспертиза может быть обязательной или добровольной, в зависимости от типа и сложности объекта. Важно, чтобы все замечания и рекомендации экспертов были учтены и исправлены до начала строительных работ.
Пятый этап – подготовка к строительству. На этом этапе осуществляется выбор подрядчика, заключение контрактов и получение необходимых разрешений. Важно, чтобы подрядчик имел опыт работы с аналогичными проектами и соблюдал требования к безопасности. Также на этом этапе разрабатываются планы по организации строительного процесса, включая меры по охране труда и технике безопасности.
Шестой этап – строительство. На этом этапе осуществляется непосредственное возведение объекта. Важно, чтобы все работы выполнялись в соответствии с проектной документацией и соблюдением норм безопасности. Регулярные проверки и контроль качества работ помогут избежать ошибок и несоответствий, которые могут привести к авариям или другим негативным последствиям.
Седьмой этап – приемка объекта в эксплуатацию. После завершения строительных работ объект проходит финальную проверку, в ходе которой оценивается его соответствие проекту и требованиям безопасности. Приемка включает в себя проверку всех систем и конструкций, а также оформление необходимых документов для ввода объекта в эксплуатацию.
Каждый из этих этапов требует внимательного подхода и соблюдения всех норм и стандартов, что обеспечивает безопасную эксплуатацию объектов капитального строительства. Важно помнить, что безопасность – это не только соблюдение правил, но и комплексный подход к проектированию и строительству, который включает в себя все аспекты, от выбора материалов до организации рабочего процесса.
Восьмой этап – обслуживание и эксплуатация объекта. После ввода в эксплуатацию начинается период, когда объект должен функционировать в соответствии с проектными решениями и требованиями безопасности. Важно организовать регулярное техническое обслуживание, которое включает в себя проверку всех систем, конструкций и оборудования. Это позволяет выявлять и устранять потенциальные проблемы до того, как они приведут к серьезным последствиям.
На этом этапе также важно проводить обучение персонала, который будет работать на объекте. Все сотрудники должны быть ознакомлены с правилами безопасности, а также с особенностями эксплуатации конкретного объекта. Это включает в себя как общие правила охраны труда, так и специфические инструкции, касающиеся работы с оборудованием и системами, установленными на объекте.
Девятый этап – мониторинг и оценка состояния объекта. В процессе эксплуатации необходимо регулярно проводить мониторинг состояния объекта, что включает в себя как визуальные осмотры, так и использование специализированных инструментов для диагностики. Это позволяет своевременно выявлять изменения в состоянии конструкций и систем, которые могут указывать на необходимость проведения ремонтных работ или модернизации.
Десятый этап – ремонт и реконструкция. В случае выявления дефектов или износа конструкций может потребоваться проведение ремонтных работ. Важно, чтобы все работы выполнялись в соответствии с проектной документацией и с соблюдением всех норм безопасности. Реконструкция может включать в себя как частичную замену элементов, так и полное обновление систем, что требует повторного проектирования и согласования с соответствующими органами.
Одиннадцатый этап – долговременное планирование. На этом этапе важно учитывать не только текущие потребности, но и перспективы развития объекта. Это может включать в себя планирование расширения, модернизации или изменения функционального назначения. Долговременное планирование позволяет заранее предусмотреть возможные изменения и адаптировать объект к новым условиям эксплуатации.
Каждый из перечисленных этапов проектирования и эксплуатации объектов капитального строительства требует комплексного подхода и взаимодействия всех участников процесса. Важно, чтобы на каждом этапе соблюдались требования к безопасности, что позволит минимизировать риски и обеспечить надежную эксплуатацию объекта на протяжении всего его жизненного цикла.
Таким образом, этапы строительного проектирования и эксплуатации объектов капитального строительства представляют собой взаимосвязанную систему, где каждый этап влияет на последующий. Соблюдение всех норм и стандартов на каждом из этапов является залогом успешного завершения проекта и безопасной эксплуатации объекта в будущем.
Мероприятия по обеспечению доступа инвалидов к объекту капитального строительства
Проектирование объектов капитального строительства с учетом потребностей инвалидов является важным этапом, который требует особого внимания и тщательной проработки. В этом процессе необходимо учитывать не только архитектурные и инженерные аспекты, но и требования, связанные с доступностью для людей с ограниченными возможностями. Этапы строительного проектирования можно разделить на несколько ключевых фаз, каждая из которых играет свою роль в создании доступной среды.
1. Исследование и анализ потребностей
На первом этапе проектирования важно провести исследование, которое позволит выявить потребности людей с ограниченными возможностями. Это может включать в себя:
- Опросы и интервью с инвалидами и их представителями;
- Анализ существующих объектов и их доступности;
- Изучение нормативных документов и стандартов, касающихся доступности.
Собранные данные помогут сформировать четкое представление о том, какие элементы инфраструктуры необходимо адаптировать для обеспечения комфортного доступа.
2. Разработка концепции проектирования
На основе полученной информации разрабатывается концепция проектирования, которая включает в себя основные принципы доступности. Важно учитывать:
- Удобство передвижения по территории;
- Наличие необходимых вспомогательных средств (пандусов, лифтов, поручней);
- Обеспечение визуальной и тактильной доступности информации.
Концепция должна быть согласована с заинтересованными сторонами, включая организации, представляющие интересы инвалидов.
3. Архитектурное проектирование
На этом этапе разрабатываются архитектурные решения, которые учитывают все аспекты доступности. Важно, чтобы проектировщики:
- Создавали удобные и безопасные маршруты передвижения;
- Обеспечивали достаточную ширину проходов и дверей;
- Разрабатывали элементы интерьера с учетом потребностей инвалидов (например, высота выключателей, наличие тактильных указателей).
Архитектурное проектирование должно соответствовать действующим строительным нормам и правилам, а также рекомендациям по доступности.
4. Инженерное проектирование
На этапе инженерного проектирования необходимо учитывать все технические аспекты, которые могут повлиять на доступность. Это включает в себя:
- Проектирование систем освещения, которые обеспечивают достаточную видимость;
- Разработку систем сигнализации и оповещения, доступных для людей с нарушениями слуха;
- Обеспечение доступности санитарных узлов и других вспомогательных помещений.
Инженерные решения должны быть интегрированы в общий проект, чтобы обеспечить максимальную функциональность и безопасность.
5. Подготовка проектной документации
На этом этапе создается полная проектная документация, которая включает в себя все необходимые чертежи, спецификации и расчеты. Важно, чтобы документация содержала:
- Подробные описания всех элементов, обеспечивающих доступность;
- Ссылки на нормативные документы и стандарты;
- Рекомендации по эксплуатации и обслуживанию доступных объектов.
Качественная проектная документация является основой для успешной реализации проекта и его дальнейшей эксплуатации.
6. Согласование проектной документации
После подготовки проектной документации необходимо пройти этап согласования с различными инстанциями. Это может включать:
- Проверку проектной документации на соответствие строительным нормам и правилам;
- Согласование с органами местного самоуправления;
- Получение разрешений от организаций, представляющих интересы инвалидов.
Согласование является важным этапом, так как оно позволяет выявить возможные недостатки и внести необходимые изменения до начала строительных работ.
7. Строительство и реализация проекта
На этапе строительства важно строго следовать проектной документации и учитывать все рекомендации, касающиеся доступности. Строители должны:
- Обеспечить соблюдение всех норм и стандартов при выполнении работ;
- Контролировать качество используемых материалов;
- Проводить регулярные проверки на соответствие проекту.
В процессе строительства также важно взаимодействовать с представителями организаций инвалидов, чтобы оперативно решать возникающие вопросы и корректировать работы при необходимости.
8. Тестирование и приемка объекта
После завершения строительных работ необходимо провести тестирование объекта на соответствие всем требованиям доступности. Это включает в себя:
- Проверку всех элементов, обеспечивающих доступность (пандусы, лифты, тактильные указатели);
- Оценку удобства передвижения по территории;
- Проведение опросов среди пользователей, включая людей с ограниченными возможностями.
Приемка объекта должна осуществляться с участием представителей организаций инвалидов, чтобы гарантировать, что все потребности учтены.
9. Эксплуатация и обслуживание
После завершения всех этапов проектирования и строительства объект вводится в эксплуатацию. Важно обеспечить его дальнейшее обслуживание с учетом потребностей инвалидов. Это может включать:
- Регулярные проверки состояния доступных элементов;
- Обучение персонала по вопросам работы с инвалидами;
- Обеспечение возможности обратной связи от пользователей для выявления проблем и их оперативного решения.
Поддержание доступности объекта на высоком уровне является залогом его успешной эксплуатации и удовлетворенности пользователей.
10. Мониторинг и оценка
На завершающем этапе необходимо проводить мониторинг и оценку доступности объекта в процессе его эксплуатации. Это включает в себя:
- Сбор данных о количестве пользователей с ограниченными возможностями;
- Анализ отзывов и предложений по улучшению доступности;
- Проведение регулярных аудитов доступности.
Мониторинг позволяет выявлять недостатки и вносить изменения в эксплуатацию объекта, что способствует его постоянному улучшению.
Смета на строительство, реконструкцию, капитальный ремонт, снос объекта капитального строительства
Строительное проектирование – это сложный и многоэтапный процесс, который включает в себя несколько ключевых этапов. Каждый из них играет важную роль в создании качественного и безопасного объекта капитального строительства. Рассмотрим подробнее основные этапы строительного проектирования.
1. Предпроектные исследования
На этом этапе осуществляется сбор и анализ информации, необходимой для дальнейшего проектирования. Включает в себя:
- Изучение земельного участка, его геологических и геодезических характеристик;
- Анализ существующей инфраструктуры и инженерных сетей;
- Оценка экологических условий и возможных воздействий на окружающую среду;
- Изучение градостроительных норм и правил, а также требований местных органов власти.
Предпроектные исследования позволяют определить целесообразность строительства, а также выявить возможные риски и ограничения, которые могут повлиять на проект.
2. Разработка концепции проекта
На этом этапе формируется общая идея и концепция будущего объекта. Это включает в себя:
- Определение функционального назначения здания;
- Разработка предварительных эскизов и планировочных решений;
- Оценка экономической целесообразности проекта;
- Согласование концепции с заказчиком и другими заинтересованными сторонами.
Концепция проекта должна учитывать все аспекты, включая архитектурные, инженерные и экономические, чтобы обеспечить успешное выполнение проекта в дальнейшем.
3. Подготовка проектной документации
На этом этапе разрабатывается полная проектная документация, которая включает в себя:
- Архитектурные чертежи и схемы;
- Инженерные расчеты и схемы систем водоснабжения, отопления, электроснабжения;
- Спецификации материалов и конструкций;
- Сметы на строительство и другие необходимые документы.
Проектная документация должна соответствовать всем действующим нормам и стандартам, а также быть согласована с соответствующими органами контроля.
4. Согласование проектной документации
После завершения разработки проектной документации необходимо пройти процедуру согласования. Это включает в себя:
- Подачу документов в местные органы власти для получения разрешений;
- Согласование с различными инстанциями, такими как пожарная служба, санитарно-эпидемиологическая служба и другие;
- Получение заключений и экспертиз от специализированных организаций.
Согласование проектной документации является важным этапом, так как от него зависит возможность начала строительных работ.
5. Подготовка к строительству
На этом этапе осуществляется подготовка к началу строительных работ, которая включает в себя:
- Выбор подрядчика и заключение контрактов;
- Организацию строительной площадки;
- Закупку необходимых материалов и оборудования;
- Разработку графика выполнения работ.
Подготовка к строительству требует тщательной организации и планирования, чтобы избежать задержек и дополнительных затрат в процессе реализации проекта.
6. Строительство
На этом этапе начинается непосредственное выполнение строительных работ. Он включает в себя:
- Подготовку строительной площадки, включая разметку и очистку;
- Заливку фундамента и возведение конструкций;
- Монтаж инженерных систем, таких как электроснабжение, водоснабжение и отопление;
- Выполнение отделочных работ и благоустройство территории.
Строительство требует строгого соблюдения проектной документации и технологий, а также постоянного контроля качества выполняемых работ. Важно обеспечить безопасность на строительной площадке и соблюдение всех норм охраны труда.
7. Контроль качества и приемка работ
На этом этапе осуществляется контроль качества выполненных работ. Включает в себя:
- Проверку соответствия выполненных работ проектной документации;
- Проведение испытаний и проверок инженерных систем;
- Составление актов выполненных работ и дефектных ведомостей;
- Приемку объекта заказчиком и получение необходимых разрешений на ввод в эксплуатацию.
Контроль качества является важным этапом, так как от него зависит безопасность и долговечность построенного объекта. Все выявленные недостатки должны быть устранены до завершения работ.
8. Ввод в эксплуатацию
После завершения всех строительных работ и их приемки объект готов к вводу в эксплуатацию. Этот этап включает в себя:
- Подготовку и подачу документов для получения разрешения на ввод в эксплуатацию;
- Проведение финальных проверок и испытаний;
- Оформление необходимых актов и сертификатов;
- Передачу объекта заказчику.
Ввод в эксплуатацию является завершающим этапом строительного проектирования, который подтверждает, что объект готов к использованию и соответствует всем установленным требованиям.
9. Эксплуатация и обслуживание
После ввода в эксплуатацию начинается этап эксплуатации, который включает в себя:
- Регулярное техническое обслуживание и ремонт;
- Мониторинг состояния объекта и его систем;
- Проведение плановых проверок и обследований;
- Обновление и модернизация систем по мере необходимости.
Этап эксплуатации важен для обеспечения долговечности и безопасности объекта, а также для поддержания его функциональности на высоком уровне.
Таким образом, этапы строительного проектирования представляют собой последовательный и взаимосвязанный процесс, который требует тщательного планирования и контроля на каждом этапе. Каждый из них играет ключевую роль в успешной реализации проекта и создании качественного объекта капитального строительства.


















