Состав проектная документация
Состав проектная документация
В современном строительстве проектирование играет ключевую роль в обеспечении качества и безопасности возводимых объектов. Важным аспектом этого процесса является соблюдение нормативных актов, таких как 87 постановление правительства, которое регламентирует состав проектной документации. В данной статье мы рассмотрим основные элементы проектной документации, а также их значение в строительном проектировании.
Статья включает в себя следующие разделы:
- Общие требования к проектной документации
- Состав проектной документации
- Этапы разработки проектной документации
- Роль проектной документации в строительстве
Каждый из этих разделов поможет глубже понять, как правильно организовать проектирование и какие документы необходимы для успешной реализации строительных проектов.
Согласно 87 ПП (87 постановление правительства)
Проектная документация является важным элементом в процессе проектирования и строительства. Она включает в себя набор документов, которые описывают все аспекты проекта, начиная от концепции и заканчивая деталями реализации. В соответствии с 87 постановлением правительства, проектная документация должна соответствовать определенным требованиям и стандартам, что обеспечивает ее качество и полноту.
Состав проектной документации может варьироваться в зависимости от типа и сложности проекта, однако существуют общие категории, которые должны быть учтены. Важно отметить, что каждая категория документации играет свою уникальную роль в процессе проектирования и строительства.
- Техническое задание (ТЗ) - это документ, который определяет цели и задачи проекта, а также требования к его результатам. Техническое задание служит основой для разработки проектной документации и должно быть согласовано с заказчиком.
- Предпроектные материалы - включают в себя различные исследования и анализы, которые необходимы для понимания условий, в которых будет реализован проект. Это могут быть геодезические, геологические, экологические и другие исследования.
- Эскизный проект - это предварительная версия проектной документации, которая включает в себя основные решения по архитектуре, планировке и инженерным системам. Эскизный проект позволяет визуализировать идеи и получить предварительные согласования.
- Рабочая документация - это наиболее детализированная часть проектной документации, которая включает в себя чертежи, спецификации и расчеты. Рабочая документация необходима для непосредственного выполнения строительных работ.
- Сметная документация - содержит информацию о стоимости проекта, включая расчеты затрат на материалы, работы и услуги. Смета является важным инструментом для контроля бюджета проекта.
- Документация по охране труда и экологии - включает в себя меры, направленные на обеспечение безопасности работников и минимизацию негативного воздействия на окружающую среду. Эти документы должны быть разработаны в соответствии с действующими нормами и стандартами.
- Технические условия - это документы, которые определяют требования к проектируемым объектам и системам, включая стандарты качества и безопасности. Технические условия должны быть согласованы с соответствующими органами.
- Заключения и согласования - это документы, подтверждающие соответствие проектной документации действующим нормам и требованиям. Они могут включать в себя заключения экспертиз, согласования с органами власти и другие необходимые документы.
Каждый из перечисленных элементов проектной документации имеет свои особенности и требования, которые необходимо учитывать при разработке. Важно, чтобы все документы были подготовлены квалифицированными специалистами и соответствовали актуальным нормам и стандартам.
При разработке проектной документации необходимо учитывать не только требования законодательства, но и специфику конкретного проекта. Например, для жилых зданий и общественных сооружений могут потребоваться различные подходы к проектированию, что отразится на составе и содержании документации.
Важным аспектом является также соблюдение сроков разработки проектной документации. В соответствии с 87 постановлением правительства, сроки должны быть четко определены и согласованы с заказчиком. Это позволяет избежать задержек в реализации проекта и обеспечивает его своевременное завершение.
Кроме того, проектная документация должна проходить этапы согласования и экспертизы. На этом этапе проверяется соответствие документации действующим нормам и стандартам, а также ее полнота и качество. Экспертиза может быть как внутренней, так и внешней, в зависимости от требований законодательства и специфики проекта.
Не менее важным является вопрос актуализации проектной документации. В процессе реализации проекта могут возникать изменения, которые требуют внесения корректив в уже разработанные документы. Это может быть связано с изменением условий строительства, новыми требованиями со стороны заказчика или изменениями в законодательстве. Поэтому важно, чтобы проектная документация была гибкой и могла адаптироваться к новым условиям.
Также стоит отметить, что проектная документация должна быть доступна для всех участников проекта. Это включает в себя не только проектировщиков и строителей, но и заказчиков, а также контролирующие органы. Прозрачность и доступность информации способствуют более эффективному взаимодействию между всеми сторонами и повышают качество реализации проекта.
В заключение, состав проектной документации в соответствии с 87 постановлением правительства включает в себя множество элементов, каждый из которых играет важную роль в процессе проектирования и строительства. Качественная и полная документация является залогом успешной реализации проекта и его соответствия всем требованиям и стандартам.
Таким образом, проектная документация представляет собой комплексный и многоуровневый процесс, который требует внимательного подхода и профессионализма со стороны всех участников. Соблюдение всех норм и стандартов, а также актуализация и согласование документации являются ключевыми факторами, способствующими успешному завершению проекта.
Пояснительная записка
Проектная документация является важным элементом в процессе проектирования и реализации различных объектов, будь то строительство, разработка программного обеспечения или создание новых продуктов. Она включает в себя набор документов, которые описывают все аспекты проекта, начиная от его концепции и заканчивая детальными техническими решениями. В данной статье мы рассмотрим состав проектной документации, ее основные элементы и их значение для успешного завершения проекта.
Проектная документация может быть разделена на несколько категорий, каждая из которых выполняет свою уникальную функцию. Основные категории проектной документации включают в себя:
- Предварительная документация — включает в себя концептуальные документы, такие как технико-экономическое обоснование, которые помогают определить целесообразность проекта.
- Рабочая документация — это детализированные чертежи, схемы и спецификации, которые необходимы для реализации проекта.
- Исполнительная документация — включает в себя документы, которые подтверждают выполнение всех работ в соответствии с проектом, такие как акты выполненных работ и отчеты.
- Техническая документация — описывает технические характеристики и параметры, необходимые для эксплуатации объекта.
Каждая из этих категорий имеет свои подкатегории и специфические документы, которые могут варьироваться в зависимости от типа проекта. Например, в строительстве проектная документация может включать в себя архитектурные, конструктивные и инженерные разделы, тогда как в разработке программного обеспечения — технические задания, архитектурные схемы и пользовательские инструкции.
Важным аспектом проектной документации является ее структурированность и последовательность. Каждый документ должен быть логически связан с другими, чтобы обеспечить целостное понимание проекта. Это особенно важно в крупных проектах, где участвует множество специалистов, и каждый из них отвечает за свою часть работы.
Кроме того, проектная документация должна быть актуальной и обновляться по мере необходимости. Изменения в проекте, вызванные новыми требованиями, изменениями в законодательстве или техническими инновациями, должны отражаться в документации, чтобы избежать недоразумений и ошибок в процессе реализации.
В процессе разработки проектной документации важно учитывать требования всех заинтересованных сторон, включая заказчиков, подрядчиков и конечных пользователей. Это позволяет создать документ, который будет не только технически корректным, но и соответствующим ожиданиям всех участников проекта.
Таким образом, состав проектной документации является многоуровневым и многогранным процессом, который требует внимательного подхода и тщательной проработки каждого элемента. В следующих разделах мы более подробно рассмотрим каждый из компонентов проектной документации, их содержание и значение для успешного завершения проекта.
Одним из ключевых документов в проектной документации является техническое задание (ТЗ). Оно служит основой для разработки проекта и содержит все требования к объекту, включая функциональные, технические и эстетические характеристики. Техническое задание должно быть четким и однозначным, чтобы избежать недопонимания между заказчиком и исполнителем. Важно, чтобы ТЗ включало в себя:
- Цели и задачи проекта — описание того, что должно быть достигнуто в результате реализации проекта.
- Функциональные требования — перечень функций, которые должен выполнять объект.
- Технические характеристики — параметры, такие как размеры, материалы, производительность и т.д.
- Сроки выполнения — временные рамки, в которые должен быть завершен проект.
- Бюджет — финансовые ограничения, в рамках которых необходимо реализовать проект.
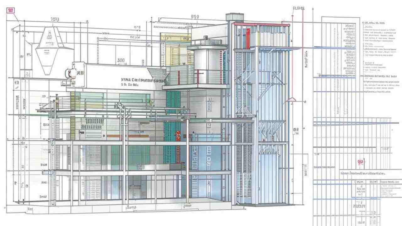
Следующим важным элементом проектной документации является архитектурный раздел. Он включает в себя все чертежи и схемы, необходимые для визуализации и понимания проектируемого объекта. Архитектурный раздел должен содержать:
- Планировки — общие планы этажей, показывающие расположение помещений и их назначение.
- Фасады — изображения внешнего вида здания с разных ракурсов.
- Разрезы — вертикальные сечения, которые помогают понять внутреннюю структуру объекта.
- Детали — специфические элементы, требующие особого внимания, такие как соединения, отделка и т.д.
Не менее важным является конструктивный раздел, который описывает все строительные конструкции и материалы, используемые в проекте. Он включает в себя:
- Расчеты нагрузок — определение всех нагрузок, которые будут действовать на конструкции.
- Схемы конструкций — чертежи, показывающие, как будут соединяться различные элементы.
- Спецификации материалов — перечень всех материалов, необходимых для строительства, с указанием их характеристик.
Инженерные разделы проектной документации охватывают все системы, необходимые для функционирования объекта, такие как водоснабжение, отопление, вентиляция и электроснабжение. Эти разделы должны содержать:
- Схемы инженерных систем — графические представления всех систем, их расположение и соединения.
- Расчеты — необходимые расчеты для обеспечения надежности и эффективности систем.
- Спецификации оборудования — перечень всего оборудования, которое будет установлено, с указанием его характеристик и производителей.
Кроме того, проектная документация должна включать в себя план управления проектом, который описывает, как будет организован процесс реализации проекта. Этот план должен содержать:
- Структуру команды — описание ролей и обязанностей всех участников проекта.
- График выполнения работ — временные рамки для каждой стадии проекта.
- Методы контроля и оценки — способы мониторинга хода выполнения проекта и оценки его результатов.
Таким образом, состав проектной документации является многоуровневым процессом, который требует тщательной проработки каждого элемента. Каждый документ играет свою уникальную роль и вносит вклад в успешное завершение проекта. Важно помнить, что качественная проектная документация не только облегчает процесс реализации, но и служит основой для дальнейшей эксплуатации объекта.
Схема планировочной организации земельного участка
Проектная документация является основой для успешной реализации любого строительного проекта, включая планировочную организацию земельного участка. Она включает в себя множество различных документов, которые обеспечивают полное понимание и контроль над всеми аспектами проектирования и строительства. Важно отметить, что состав проектной документации может варьироваться в зависимости от типа и масштаба проекта, а также от требований местного законодательства.
Основные элементы проектной документации, которые должны быть включены в схему планировочной организации земельного участка, можно разделить на несколько категорий:
- Техническая документация: включает в себя чертежи, схемы и спецификации, которые описывают проектируемые объекты и их характеристики. Это может быть план участка, разрезы, фасады, а также схемы инженерных сетей.
- Геодезические материалы: содержат данные о рельефе, грунтах и других природных условиях, которые могут повлиять на проект. Эти материалы необходимы для правильного размещения объектов на участке.
- Экологические исследования: включают в себя анализ воздействия проекта на окружающую среду, а также меры по минимизации негативных последствий. Это особенно важно для проектов, расположенных в экологически чувствительных зонах.
- Сметная документация: содержит расчеты стоимости строительства, включая материалы, трудозатраты и другие расходы. Это позволяет оценить финансовую целесообразность проекта.
- Технические условия: предоставляются различными службами и организациями, которые будут участвовать в проекте. Они определяют требования к подключению к инженерным сетям, а также другие условия, которые необходимо учесть при проектировании.
Каждый из этих элементов играет важную роль в процессе проектирования и строительства. Например, техническая документация позволяет архитекторам и инженерам визуализировать проект и понять, как различные элементы будут взаимодействовать друг с другом. Геодезические материалы помогают избежать проблем, связанных с рельефом и грунтовыми условиями, что может привести к значительным задержкам и дополнительным расходам.
Экологические исследования становятся все более важными в современных проектах, так как общественное мнение и законодательство требуют от застройщиков учитывать влияние на природу. Сметная документация, в свою очередь, помогает контролировать бюджет и избегать перерасходов, что критично для успешного завершения проекта.
Важно также отметить, что проектная документация должна быть согласована с местными органами власти и другими заинтересованными сторонами. Это может включать в себя получение разрешений на строительство, согласование проектных решений и другие формальности, которые могут занять значительное время.
Таким образом, состав проектной документации для схемы планировочной организации земельного участка является многоуровневым процессом, который требует тщательной проработки и внимания к деталям. Каждый элемент документации должен быть подготовлен с учетом специфики проекта и требований законодательства, что обеспечит успешную реализацию задуманного.
При разработке проектной документации также необходимо учитывать различные нормативные и правовые акты, регулирующие строительство и использование земельных участков. Это может включать в себя градостроительные кодексы, санитарные нормы, правила охраны окружающей среды и другие документы, которые могут варьироваться в зависимости от региона. Соблюдение этих норм не только обеспечивает законность проекта, но и способствует его устойчивости и безопасности.
Одним из ключевых аспектов проектной документации является ее визуализация. Чертежи и схемы должны быть понятными и доступными для всех участников проекта, включая архитекторов, инженеров, строителей и заказчиков. Для этого часто используются специальные программные средства, которые позволяют создавать 3D-модели и интерактивные визуализации, что значительно упрощает процесс согласования и обсуждения проектных решений.
Кроме того, проектная документация должна включать в себя разделы, касающиеся организации строительного процесса. Это может быть график выполнения работ, планирование ресурсов, а также меры по обеспечению безопасности на строительной площадке. Эти аспекты особенно важны для крупных проектов, где координация действий различных подрядчиков и служб играет решающую роль в успешной реализации.
Не менее важным является раздел, посвященный благоустройству территории. Он включает в себя проектирование зеленых насаждений, освещения, дорожной инфраструктуры и других элементов, которые способствуют созданию комфортной и безопасной городской среды. Благоустройство должно быть продумано с учетом потребностей будущих пользователей, а также с учетом принципов устойчивого развития.
Важным этапом в процессе разработки проектной документации является ее экспертиза. Это независимая проверка, которая позволяет выявить возможные недостатки и несоответствия, а также оценить соответствие проекта действующим нормам и требованиям. Экспертиза может быть обязательной или добровольной, в зависимости от типа проекта и его масштабов.
После завершения всех этапов разработки и согласования проектной документации, она передается на стадию реализации. Важно, чтобы все участники проекта имели доступ к актуальной информации и могли оперативно реагировать на изменения и возникающие проблемы. Для этого часто используются системы управления проектами, которые позволяют отслеживать прогресс, контролировать бюджет и обеспечивать коммуникацию между всеми сторонами.
Таким образом, состав проектной документации для схемы планировочной организации земельного участка является сложным и многоступенчатым процессом, который требует внимательного подхода и профессионализма. Каждый элемент документации играет свою уникальную роль в обеспечении успешной реализации проекта, и их интеграция является залогом достижения поставленных целей.
Объемно-планировочные и архитектурные решения
Проектная документация является основным инструментом, который используется в процессе проектирования и строительства. Она включает в себя все необходимые материалы, которые обеспечивают понимание, реализацию и контроль за выполнением проектных решений. Важно отметить, что проектная документация должна быть четкой, понятной и соответствовать действующим нормам и стандартам.
Состав проектной документации может варьироваться в зависимости от типа и сложности проекта, однако существуют общие элементы, которые присутствуют в большинстве случаев. К ним относятся:
- Техническое задание (ТЗ) - документ, который определяет цели и задачи проекта, а также требования к его реализации.
- Эскизный проект - предварительное представление о проекте, которое включает в себя основные объемно-планировочные решения и архитектурные концепции.
- Рабочая документация - детализированные чертежи и спецификации, которые содержат всю необходимую информацию для строительства.
- Сметная документация - расчеты стоимости проекта, включая материалы, работы и другие затраты.
- Графики выполнения работ - планы, которые показывают последовательность и сроки выполнения различных этапов проекта.
- Документы по охране труда и экологии - материалы, которые обеспечивают безопасность работников и защиту окружающей среды в процессе строительства.
Каждый из этих элементов играет важную роль в успешной реализации проекта. Например, техническое задание служит основой для всех последующих этапов проектирования, а рабочая документация является основным инструментом для строителей.
При разработке проектной документации необходимо учитывать множество факторов, таких как местные строительные нормы, требования заказчика, а также особенности участка, на котором будет осуществляться строительство. Это требует от проектировщиков высокой квалификации и опыта, а также способности к творческому подходу.
Важным аспектом проектной документации является ее согласование с различными инстанциями. Это может включать в себя получение разрешений на строительство, согласование проектных решений с органами местного самоуправления и другими заинтересованными сторонами. Процесс согласования может быть длительным и сложным, однако он необходим для обеспечения законности и безопасности проекта.
Кроме того, проектная документация должна быть актуализирована на всех этапах реализации проекта. Это означает, что любые изменения, которые происходят в процессе строительства, должны быть отражены в документации. Это позволяет избежать недоразумений и обеспечивает контроль за выполнением проектных решений.
Таким образом, состав проектной документации является ключевым элементом в процессе проектирования и строительства. Он включает в себя множество различных документов, каждый из которых выполняет свою уникальную функцию и способствует успешной реализации проекта.
Одним из ключевых аспектов проектной документации является архитектурное проектирование. Этот процесс включает в себя создание концептуальных решений, которые определяют внешний вид и функциональность здания. Архитектурные решения должны учитывать не только эстетические, но и практические аспекты, такие как удобство использования, доступность и соответствие нормам безопасности.
В рамках архитектурного проектирования разрабатываются архитектурные чертежи, которые включают в себя планы этажей, фасады, разрезы и детали. Эти чертежи служат основой для дальнейшего проектирования и строительства. Они должны быть выполнены с высокой точностью и содержать все необходимые размеры и аннотации.
Кроме того, важным элементом проектной документации являются инженерные решения. Они охватывают все аспекты, связанные с инженерными системами здания, такими как водоснабжение, канализация, отопление, вентиляция и электроснабжение. Инженерные решения должны быть интегрированы с архитектурными, чтобы обеспечить эффективное функционирование здания в целом.
При разработке инженерных систем необходимо учитывать нормативные требования и стандарты, которые регулируют проектирование и эксплуатацию таких систем. Это включает в себя расчеты нагрузок, выбор оборудования и материалов, а также схемы подключения. Все эти элементы должны быть четко задокументированы в проектной документации.
Не менее важным является ландшафтное проектирование, которое включает в себя разработку внешнего пространства вокруг здания. Это может включать в себя планировку территории, озеленение, создание дорожек и площадок, а также другие элементы благоустройства. Ландшафтное проектирование должно гармонично сочетаться с архитектурным решением и учитывать природные условия участка.
В процессе проектирования также необходимо учитывать экологические аспекты. Это включает в себя оценку воздействия проекта на окружающую среду, выбор экологически чистых материалов и технологий, а также разработку мероприятий по охране окружающей среды. Все эти аспекты должны быть отражены в проектной документации, что позволит минимизировать негативное воздействие на природу.
После завершения проектирования и подготовки всей необходимой документации, наступает этап согласования проекта. Этот процесс может включать в себя представление проекта на рассмотрение различных инстанций, таких как архитектурные советы, экологические комиссии и органы местного самоуправления. Согласование может занять значительное время, и важно заранее подготовить все необходимые материалы для успешного прохождения этого этапа.
В случае получения всех необходимых разрешений, проект переходит к этапу реализации. На этом этапе проектная документация становится основным инструментом для строителей. Рабочие чертежи и спецификации используются для выполнения строительных работ, а сметная документация служит основой для финансового контроля.
Важно отметить, что в процессе строительства могут возникать изменения, которые требуют актуализации проектной документации. Это может быть связано с изменением условий на строительной площадке, корректировкой проектных решений или изменением требований заказчика. Все изменения должны быть документированы и согласованы с соответствующими инстанциями.
Таким образом, проектная документация является неотъемлемой частью всего процесса проектирования и строительства. Она обеспечивает четкость и последовательность на всех этапах, начиная от разработки концепции и заканчивая реализацией проекта. Качественная проектная документация способствует успешному выполнению строительных работ и минимизации рисков, связанных с реализацией проекта.
Конструктивные решения
Проектная документация является важным элементом в процессе проектирования и реализации строительных и инженерных объектов. Она включает в себя набор документов, которые описывают все аспекты проекта, начиная от концепции и заканчивая деталями исполнения. Важно понимать, что качественная проектная документация не только облегчает процесс строительства, но и минимизирует риски, связанные с возможными ошибками и недоразумениями.
Состав проектной документации может варьироваться в зависимости от типа проекта, его масштаба и специфики. Однако, существуют общие элементы, которые должны присутствовать в любой проектной документации. Рассмотрим их подробнее.
1. Техническое задание (ТЗ)
Техническое задание является основой для разработки проектной документации. Оно включает в себя:
- Цели и задачи проекта;
- Требования к функциональности и производительности;
- Ограничения по времени и бюджету;
- Критерии оценки успешности проекта.
2. Предварительные исследования
На этом этапе проводятся исследования, которые помогут определить целесообразность проекта. Это может включать:
- Анализ рынка;
- Изучение существующих решений;
- Оценка рисков;
- Сбор данных о потребностях целевой аудитории.
3. Эскизный проект
Эскизный проект представляет собой предварительное визуальное представление будущего объекта. Он включает в себя:
- Схемы и чертежи;
- Общие характеристики объекта;
- Предварительные расчеты и оценки;
- Предложения по использованию материалов и технологий.
4. Рабочая документация
Рабочая документация является наиболее детализированной частью проектной документации. Она включает в себя:
- Технические чертежи;
- Спецификации на материалы;
- Инструкции по монтажу и эксплуатации;
- Расчеты и обоснования проектных решений.
5. Сметная документация
Сметная документация необходима для определения стоимости проекта. Она включает в себя:
- Сметы на материалы и работы;
- Оценку затрат на проектирование и управление;
- Анализ возможных рисков и непредвиденных расходов.
6. Документация по охране труда и экологии
Важным аспектом проектной документации является соблюдение норм охраны труда и экологии. Это включает в себя:
- Оценку воздействия на окружающую среду;
- Меры по обеспечению безопасности работников;
- План действий в случае аварийных ситуаций.
Таким образом, состав проектной документации является многоуровневым и требует тщательной проработки на каждом этапе. Каждый из перечисленных элементов играет важную роль в успешной реализации проекта и должен быть подготовлен с учетом всех требований и стандартов.
7. Документация по согласованиям и разрешениям
Для реализации любого проекта необходимо получить соответствующие разрешения и согласования от государственных и местных органов. Эта документация включает в себя:
- Заявления на получение разрешений;
- Согласования с различными инстанциями (пожарная безопасность, санитарные службы и т.д.);
- Документы, подтверждающие право на земельный участок;
- Проектные декларации и другие обязательные документы.
8. Документация по контролю и управлению проектом
Эта часть проектной документации необходима для обеспечения контроля за выполнением проекта. Она включает в себя:
- План управления проектом;
- Графики выполнения работ;
- Отчеты о ходе выполнения;
- Методы оценки и контроля качества.
9. Финальная документация
После завершения проекта необходимо подготовить финальную документацию, которая включает в себя:
- Акты выполненных работ;
- Технические паспорта на оборудование;
- Инструкции по эксплуатации и обслуживанию;
- Документы по передаче объекта заказчику.
10. Архивная документация
После завершения проекта все документы должны быть собраны и систематизированы для архивирования. Это необходимо для:
- Сохранения информации о проекте на случай будущих проверок;
- Обеспечения доступа к данным для последующих проектов;
- Анализа и оценки выполненных работ.
Каждый из этих элементов проектной документации требует внимательного подхода и тщательной проработки. Неправильное оформление или отсутствие необходимых документов может привести к задержкам, дополнительным расходам и даже к юридическим последствиям. Поэтому важно, чтобы все участники процесса проектирования и реализации проекта были вовлечены в создание и согласование проектной документации.
В заключение, состав проектной документации является основой для успешного выполнения любого проекта. Каждый элемент играет свою уникальную роль и должен быть подготовлен с учетом всех требований и стандартов. Качественная проектная документация не только упрощает процесс реализации, но и обеспечивает безопасность, эффективность и соответствие всем нормам и правилам.
Системы электроснабжения
Проектная документация для систем электроснабжения является важным этапом в процессе проектирования и реализации электрических сетей. Она включает в себя множество различных документов, которые обеспечивают правильное выполнение всех этапов работ, начиная от проектирования и заканчивая эксплуатацией системы. В данной статье мы рассмотрим основные составные части проектной документации, их назначение и важность.
1. Техническое задание
Техническое задание (ТЗ) является основным документом, который определяет требования к проектируемой системе электроснабжения. В ТЗ должны быть указаны:
- Цели и задачи проекта;
- Объемы и сроки выполнения работ;
- Требования к качеству и надежности системы;
- Условия эксплуатации и обслуживания;
- Бюджетные ограничения.
Техническое задание служит основой для дальнейшей разработки проектной документации и согласования всех этапов работ с заказчиком.
2. Предпроектные исследования
На этом этапе проводятся исследования, которые помогают определить оптимальные решения для проектируемой системы. К ним относятся:
- Анализ существующих систем электроснабжения;
- Изучение потребностей потребителей;
- Оценка технических условий;
- Исследование географических и климатических условий;
- Оценка экономической целесообразности.
Результаты предпроектных исследований фиксируются в отчетах, которые также являются частью проектной документации.
3. Проектные решения
На основе технического задания и результатов предпроектных исследований разрабатываются проектные решения. В этом разделе документации должны быть представлены:
- Схемы электрических сетей;
- Выбор оборудования и материалов;
- Расчет нагрузок и режимов работы;
- Определение мест установки оборудования;
- Планирование мероприятий по обеспечению безопасности.
Проектные решения должны быть обоснованы и соответствовать действующим нормам и стандартам.
4. Рабочая документация
Рабочая документация включает в себя все необходимые чертежи, схемы и спецификации, которые будут использоваться в процессе строительства и монтажа системы электроснабжения. В нее входят:
- Чертежи расположения оборудования;
- Схемы подключения;
- Спецификации на материалы и оборудование;
- Инструкции по монтажу и наладке;
- Планы по охране труда и технике безопасности.
Рабочая документация должна быть подготовлена с учетом всех требований и стандартов, чтобы обеспечить качественное выполнение работ.
5. Сметная документация
Сметная документация включает в себя расчеты стоимости всех работ и материалов, необходимых для реализации проекта. В ней должны быть указаны:
- Смета на проектные работы;
- Смета на строительные и монтажные работы;
- Смета на пусконаладочные работы;
- Расходы на эксплуатацию и обслуживание системы.
Сметная документация позволяет контролировать бюджет проекта и обеспечивает прозрачность всех финансовых операций.
6. Документация по охране окружающей среды
Важным аспектом проектирования систем электроснабжения является соблюдение экологических норм и стандартов. Документация по охране окружающей среды должна включать:
- Оценку воздействия на окружающую среду;
- Мероприятия по минимизации негативного воздействия;
- Планы по утилизации отходов;
- Документы
по контролю за соблюдением экологических норм.
7. Документация по безопасности
Безопасность является ключевым аспектом при проектировании систем электроснабжения. Документация по безопасности должна включать:
- Анализ рисков и опасностей;
- Планы по предотвращению аварийных ситуаций;
- Инструкции по действиям в случае аварий;
- Мероприятия по обучению персонала;
- Документы по сертификации оборудования.
Эта документация помогает обеспечить безопасность как работников, так и конечных пользователей системы.
8. Пусконаладочная документация
После завершения монтажа системы электроснабжения необходимо провести пусконаладочные работы. Пусконаладочная документация включает:
- Программы и методики пусконаладочных работ;
- Протоколы испытаний и проверок;
- Отчеты о результатах пусконаладочных работ;
- Рекомендации по дальнейшей эксплуатации системы.
Эта документация необходима для подтверждения работоспособности системы и ее соответствия проектным требованиям.
9. Эксплуатационная документация
Эксплуатационная документация включает в себя все необходимые материалы для дальнейшей эксплуатации и обслуживания системы электроснабжения. В нее входят:
- Руководства по эксплуатации оборудования;
- Планы технического обслуживания;
- Журналы учета и контроля;
- Документы по ремонту и модернизации.
Эксплуатационная документация обеспечивает эффективное управление системой и позволяет минимизировать время простоя.
10. Заключительная документация
Заключительная документация подводит итоги всего проекта и включает в себя:
- Отчет о выполненных работах;
- Акты выполненных работ;
- Документы по передаче системы в эксплуатацию;
- Отчеты о проведенных испытаниях и проверках.
Эта документация необходима для завершения проекта и передачи системы заказчику.
Таким образом, проектная документация для систем электроснабжения включает в себя множество различных документов, каждый из которых выполняет свою уникальную функцию. Правильное оформление и соблюдение всех этапов проектирования и реализации системы электроснабжения обеспечивают ее надежность, безопасность и эффективность в эксплуатации.
системы водоснабжения
Проектная документация для систем водоснабжения является важным этапом в процессе проектирования и строительства. Она включает в себя все необходимые документы, которые обеспечивают правильное выполнение работ и соответствие установленным стандартам. В данной статье мы рассмотрим основные составные части проектной документации, их назначение и важность.
1. Техническое задание
Техническое задание (ТЗ) является основой для разработки проектной документации. Оно определяет основные требования к системе водоснабжения, включая:
- Цели и задачи проекта;
- Объемы и параметры водоснабжения;
- Требования к качеству воды;
- Сроки выполнения работ;
- Бюджетные ограничения.
Техническое задание должно быть согласовано с заказчиком и другими заинтересованными сторонами, чтобы избежать недоразумений на последующих этапах проектирования.
2. Предварительные расчеты
На этом этапе проводятся предварительные расчеты, которые включают в себя:
- Расчет потребности в воде для различных категорий пользователей;
- Определение необходимого давления в системе;
- Выбор источников водоснабжения;
- Оценка возможных потерь воды в системе.
Эти расчеты помогают определить основные параметры системы и служат основой для дальнейшего проектирования.
3. Схемы и чертежи
Схемы и чертежи являются визуальным представлением проектной документации. Они включают в себя:
- Схемы расположения водопроводных сетей;
- Чертежи узлов и соединений;
- Планы расположения оборудования;
- Схемы электроснабжения и автоматизации.
Эти документы необходимы для понимания общей структуры системы и ее компонентов, а также для обеспечения точности выполнения работ.
4. Спецификации
Спецификации содержат детальную информацию о материалах и оборудовании, которые будут использоваться в проекте. Они включают в себя:
- Наименования и характеристики труб, фитингов и других компонентов;
- Требования к качеству и стандартам;
- Количество и стоимость материалов;
- Рекомендации по монтажу и эксплуатации.
Спецификации помогают избежать ошибок при закупке материалов и обеспечивают соответствие проекту.
5. Расчетные документы
Расчетные документы включают в себя все необходимые расчеты, которые подтверждают правильность проектных решений. Это могут быть:
- Гидравлические расчеты;
- Расчеты прочности конструкций;
- Экономические расчеты.
Эти документы необходимы для обоснования проектных решений и их соответствия действующим нормам и стандартам.
6. Технические условия
Технические условия (ТУ) определяют требования к проектируемой системе водоснабжения, включая:
- Требования к качеству воды;
- Условия эксплуатации оборудования;
- Требования к безопасности и охране окружающей среды.
Технические условия должны быть согласованы с соответствующими органами и организациями, чтобы обеспечить соответствие проекту всем необходимым требованиям.
7. Пояснительная записка
Пояснительная записка является обобщающим документом, который содержит информацию о проекте, его целях, задачах и основных решениях. Она включает в себя:
- Обоснование выбора решений;
- Описание проект
ных решений;
- Анализ возможных рисков и предложенные меры по их минимизации;
- Ссылки на нормативные документы и стандарты, используемые при проектировании.
Пояснительная записка помогает всем участникам проекта понять его суть и обоснование принятых решений, а также служит основой для дальнейшего согласования документации.
8. Сметная документация
Сметная документация включает в себя расчеты стоимости всех работ и материалов, необходимых для реализации проекта. Она состоит из:
- Сметы на проектные работы;
- Сметы на строительные и монтажные работы;
- Сметы на оборудование и материалы;
- Сметы на пуско-наладочные работы.
Сметная документация позволяет заказчику оценить общую стоимость проекта и спланировать бюджет, а также служит основой для контроля затрат в процессе реализации.
9. Документация по охране труда и экологии
Важным аспектом проектирования систем водоснабжения является соблюдение норм охраны труда и экологии. Эта документация включает в себя:
- Оценку воздействия на окружающую среду;
- Меры по предотвращению аварий и инцидентов;
- Требования к безопасным условиям труда для работников;
- План мероприятий по утилизации отходов.
Соблюдение этих требований позволяет минимизировать негативное воздействие на окружающую среду и обеспечить безопасность работников на строительной площадке.
10. Документация по контролю качества
Контроль качества является неотъемлемой частью проектирования и строительства систем водоснабжения. Документация по контролю качества включает в себя:
- Планы контроля качества на различных этапах работ;
- Методы испытаний и проверки материалов и оборудования;
- Протоколы испытаний и результаты проверок;
- Меры по устранению выявленных недостатков.
Эта документация обеспечивает соответствие выполненных работ установленным стандартам и требованиям, а также позволяет выявлять и устранять недостатки на ранних стадиях.
11. Заключительная документация
После завершения всех работ по проекту составляется заключительная документация, которая включает в себя:
- Акты выполненных работ;
- Документы о приемке оборудования;
- Инструкции по эксплуатации и обслуживанию системы;
- Гарантийные обязательства.
Заключительная документация необходима для передачи объекта заказчику и обеспечивает дальнейшую эксплуатацию системы водоснабжения.
Таким образом, проектная документация для систем водоснабжения включает в себя множество различных документов, каждый из которых выполняет свою уникальную функцию. Правильное составление и согласование всех этих документов является залогом успешной реализации проекта и его соответствия всем установленным требованиям и стандартам.
системы водоотведения
Проектная документация для систем водоотведения является важным этапом в процессе проектирования и строительства. Она включает в себя набор документов, которые обеспечивают полное понимание и реализацию проекта, а также соответствие всем нормам и стандартам. Основные компоненты проектной документации можно разделить на несколько ключевых категорий.
1. Техническое задание
Техническое задание (ТЗ) является основой для разработки проектной документации. В нем описываются основные требования к системе водоотведения, включая:
- Цели и задачи проекта;
- Объемы и характеристики сточных вод;
- Требования к качеству очистки;
- Условия эксплуатации и обслуживания;
- Сроки выполнения работ.
2. Предварительные расчеты
На этом этапе проводятся предварительные расчеты, которые включают в себя:
- Гидравлические расчеты для определения необходимого диаметра трубопроводов;
- Расчеты нагрузки на конструкции;
- Оценка объемов сточных вод в зависимости от типа и количества потребителей.
3. Схемы и чертежи
Схемы и чертежи являются визуальным представлением проектируемой системы. Они включают в себя:
- Схемы расположения трубопроводов;
- Чертежи узлов и соединений;
- Планы расположения очистных сооружений;
- Схемы электроснабжения и управления.
4. Спецификации
Спецификации содержат детальную информацию о материалах и оборудовании, которые будут использоваться в проекте. В них указываются:
- Типы и марки труб и фитингов;
- Оборудование для очистки сточных вод;
- Электрические компоненты и системы управления;
- Дополнительные материалы, такие как изоляция и герметики.
5. Сметная документация
Сметная документация включает в себя расчет стоимости всех работ и материалов, необходимых для реализации проекта. Она позволяет:
- Определить бюджет проекта;
- Сравнить стоимость различных решений;
- Планировать финансирование и сроки выполнения работ.
6. Экологические и санитарные заключения
Важным аспектом проектной документации являются экологические и санитарные заключения, которые подтверждают соответствие проекта действующим нормам и требованиям. Эти документы включают в себя:
- Оценку воздействия на окружающую среду;
- Заключения санитарно-эпидемиологических служб;
- Разработку мероприятий по охране окружающей среды.
Таким образом, проектная документация для систем водоотведения представляет собой комплексный набор документов, который обеспечивает успешную реализацию проекта и его соответствие всем необходимым требованиям. Каждый из перечисленных компонентов играет важную роль в процессе проектирования и строительства, обеспечивая надежность и эффективность системы водоотведения.
7. Проектные решения
Проектные решения представляют собой конкретные рекомендации и подходы к реализации системы водоотведения. Они могут включать в себя:
- Выбор типа системы водоотведения (централизованная или децентрализованная);
- Определение оптимальных технологий очистки сточных вод;
- Рекомендации по выбору оборудования и материалов;
- Разработка схемы управления и мониторинга системы.
8. Технические условия
Технические условия (ТУ) представляют собой набор требований, которые должны быть соблюдены при проектировании и строительстве системы водоотведения. Они могут включать в себя:
- Требования к качеству используемых материалов;
- Нормы по шуму и вибрации;
- Требования к безопасности и охране труда;
- Условия подключения к существующим инженерным сетям.
9. Пояснительная записка
Пояснительная записка является важным документом, который обобщает все аспекты проектирования и обосновывает принятые решения. В ней должны быть отражены:
- Обоснование выбора проектных решений;
- Анализ альтернативных вариантов;
- Оценка рисков и возможных проблем;
- Рекомендации по дальнейшему обслуживанию и эксплуатации системы.
10. Документация по безопасности
Документация по безопасности включает в себя все необходимые меры, направленные на предотвращение аварий и обеспечение безопасной эксплуатации системы водоотведения. В нее входят:
- Планы эвакуации и действия в чрезвычайных ситуациях;
- Инструкции по безопасной эксплуатации оборудования;
- Оценка потенциальных опасностей и меры по их минимизации.
11. Согласования и разрешения
Перед началом строительства необходимо получить все необходимые согласования и разрешения от государственных органов и контролирующих организаций. Это может включать в себя:
- Разрешение на строительство;
- Согласование проектной документации;
- Получение экологических разрешений.
Таким образом, проектная документация для систем водоотведения является многоуровневым и комплексным процессом, который требует тщательной проработки всех аспектов. Каждый элемент документации играет свою уникальную роль в обеспечении успешной реализации проекта, начиная от первоначального технического задания и заканчивая получением всех необходимых разрешений. Важно, чтобы все документы были согласованы и соответствовали действующим нормам, что позволит избежать проблем в процессе строительства и эксплуатации системы водоотведения.
системы отопление вентиляции и кондиционирования воздуха
Проектная документация для систем отопления, вентиляции и кондиционирования воздуха (ОВК) является важным этапом в процессе проектирования и реализации данных систем. Она включает в себя набор документов, которые обеспечивают правильное функционирование систем, их безопасность и соответствие действующим нормам и стандартам. В данной статье мы рассмотрим основные компоненты проектной документации, их назначение и содержание.
Проектная документация делится на несколько основных разделов, каждый из которых выполняет свою функцию и содержит специфическую информацию. К основным разделам можно отнести:
- Техническое задание – это документ, который определяет требования к проектируемой системе, включая ее параметры, функциональные характеристики и условия эксплуатации.
- Схемы и чертежи – визуальные материалы, которые показывают расположение оборудования, трубопроводов, воздуховодов и других элементов системы. Эти документы необходимы для понимания общей конфигурации системы и ее компонентов.
- Расчетные документы – включают в себя расчеты тепловых нагрузок, воздухообмена, гидравлических сопротивлений и других параметров, необходимых для проектирования систем ОВК.
- Спецификации оборудования – содержат информацию о выбранном оборудовании, его характеристиках, производителях и поставщиках. Эти документы помогают в выборе оптимальных решений для конкретного проекта.
- Сметная документация – включает в себя расчет стоимости проектирования и установки систем ОВК, а также эксплуатационных расходов.
- Технические условия – документы, которые определяют требования к качеству и безопасности материалов и оборудования, используемых в проекте.
Каждый из этих разделов играет ключевую роль в успешной реализации проекта. Рассмотрим их более подробно.
Техническое задание является основой для разработки проектной документации. В нем должны быть четко прописаны цели и задачи проекта, а также требования к системе. Это может включать в себя:
- Тип здания и его назначение (жилое, коммерческое, производственное);
- Площадь и объем помещений;
- Климатические условия региона;
- Требования к энергоэффективности;
- Уровень шума и другие параметры комфорта.
На основании технического задания разрабатываются схемы и чертежи, которые представляют собой графическое отображение системы. Эти документы должны включать:
- Схемы расположения оборудования;
- Чертежи воздуховодов и трубопроводов;
- Схемы подключения к существующим системам;
- Планы этажей с указанием мест установки оборудования.
Расчетные документы являются важной частью проектирования, так как они позволяют определить необходимые параметры для эффективной работы системы. Включают в себя:
- Расчет тепловых нагрузок для каждого помещения;
- Определение необходимого воздухообмена;
- Гидравлические расчеты для систем отопления;
- Расчеты по шуму и вибрации.
Спецификации оборудования содержат детальную информацию о каждом элементе системы, включая:
- Наименование и модель оборудования;
- Технические характеристики (мощность, производительность, размеры и т.д.);
- Сертификаты соответствия и гарантии;
- Рекомендации по установке и эксплуатации.
Эти спецификации помогают не только в выборе оборудования, но и в дальнейшем обслуживании системы, так как содержат важные данные о производителе и условиях гарантии.
Сметная документация является неотъемлемой частью проектной документации, так как она позволяет оценить стоимость проекта и его реализацию. Включает в себя:
- Расчет стоимости оборудования;
- Затраты на монтажные работы;
- Расходы на проектирование и согласование;
- Оценка эксплуатационных расходов (энергия, обслуживание и т.д.).
Технические условия определяют стандарты и требования к качеству материалов и оборудования, которые будут использоваться в проекте. Эти документы могут включать:
- Требования к теплоизоляции;
- Стандарты по шуму и вибрации;
- Экологические нормы;
- Требования к безопасности.
Важно отметить, что проектная документация должна соответствовать действующим нормативным актам и стандартам, таким как СНиП, ГОСТ и другим. Это обеспечивает не только безопасность, но и эффективность работы систем ОВК.
Кроме того, проектная документация должна быть согласована с соответствующими органами и инстанциями, что может включать:
- Согласование с местными органами власти;
- Получение разрешений на строительство;
- Согласование с пожарной службой и другими контролирующими органами.
Таким образом, проектная документация для систем отопления, вентиляции и кондиционирования воздуха является комплексным набором документов, который обеспечивает успешную реализацию проекта. Каждый из ее разделов выполняет свою уникальную функцию и вносит вклад в создание эффективной и безопасной системы. Важно уделять внимание каждому этапу разработки документации, так как это напрямую влияет на качество и надежность конечного результата.
слаботочные системы
Проектная документация для слаботочных систем является важным этапом в процессе их разработки и внедрения. Она включает в себя набор документов, которые описывают все аспекты проектирования, установки и эксплуатации слаботочных систем. К таким системам относятся системы видеонаблюдения, охранной сигнализации, контроля доступа, структурированной кабельной системы и другие. Правильная проектная документация позволяет избежать ошибок на этапе реализации и обеспечивает эффективное функционирование системы в дальнейшем.
Проектная документация для слаботочных систем может быть разделена на несколько ключевых категорий:
- Предпроектная документация: включает в себя анализ требований заказчика, исследование объекта, на котором будет установлена система, а также предварительные расчеты и выбор оборудования.
- Проектная документация: содержит детальные чертежи, схемы, спецификации и описания всех компонентов системы. Включает в себя как общие схемы, так и детализированные планы установки.
- Техническая документация: включает в себя инструкции по эксплуатации, технические паспорта на оборудование, а также схемы подключения и настройки.
- Сметная документация: содержит расчеты стоимости всех работ и материалов, необходимых для реализации проекта.
- Документация по тестированию и приемке: описывает процедуры тестирования системы, а также критерии приемки работ.
Каждый из этих разделов играет свою уникальную роль в процессе проектирования и внедрения слаботочных систем. Рассмотрим их подробнее.
Предпроектная документация является основой для дальнейшего проектирования. На этом этапе важно провести тщательный анализ требований заказчика и оценить технические возможности объекта. Это может включать в себя:
- Оценку существующих систем и инфраструктуры;
- Определение целей и задач, которые должна решать новая система;
- Сбор информации о потенциальных рисках и ограничениях;
- Выбор подходящих технологий и оборудования.
На основании собранной информации разрабатывается предварительный проект, который может включать в себя эскизные схемы и описания. Это позволяет заказчику получить общее представление о будущем проекте и внести необходимые коррективы до начала основного проектирования.
Проектная документация включает в себя более детализированные документы, которые необходимы для реализации проекта. Важнейшими элементами проектной документации являются:
- Чертежи и схемы: они показывают расположение оборудования, прокладку кабелей, точки подключения и другие важные аспекты установки.
- Спецификации оборудования: содержат информацию о каждом компоненте системы, включая его характеристики, производителя и стоимость.
- Технические описания: объясняют, как будет функционировать система, какие протоколы и стандарты будут использоваться.
Эти документы должны быть подготовлены с учетом всех норм и стандартов, действующих в области проектирования слаботочных систем. Это поможет избежать проблем на этапе установки и эксплуатации системы.
Техническая документация является неотъемлемой частью проектной документации и включает в себя все необходимые материалы для правильной эксплуатации и обслуживания слаботочных систем. Ключевыми элементами технической документации являются:
- Инструкции по эксплуатации: содержат пошаговые рекомендации по использованию системы, включая описание функционала и возможностей каждого компонента.
- Технические паспорта: предоставляют информацию о характеристиках оборудования, его производительности, условиях эксплуатации и гарантийных обязательствах.
- Схемы подключения: показывают, как правильно подключать оборудование, включая электрические и сетевые соединения.
- Руководства по настройке: описывают процесс конфигурации системы, включая программное обеспечение и параметры, которые необходимо установить для корректной работы.
Эти документы помогают не только в процессе установки, но и в дальнейшем обслуживании системы, что особенно важно для обеспечения ее надежности и долговечности.
Сметная документация играет важную роль в планировании бюджета проекта. Она включает в себя:
- Расчет стоимости оборудования: включает в себя цены на все компоненты системы, включая кабели, устройства и программное обеспечение.
- Оценка трудозатрат: учитывает время, необходимое для установки и настройки системы, а также затраты на обучение персонала.
- Дополнительные расходы: могут включать в себя транспортные расходы, налоги и другие сопутствующие затраты.
Сметная документация позволяет заказчику заранее оценить финансовые затраты и принять обоснованные решения о целесообразности проекта.
Документация по тестированию и приемке является завершающим этапом проектирования и включает в себя процедуры, которые необходимо выполнить для проверки работоспособности системы. Важные элементы этой документации:
- План тестирования: описывает, какие тесты будут проводиться, чтобы убедиться в соответствии системы заявленным требованиям.
- Критерии приемки: определяют, какие параметры должны быть достигнуты для успешной приемки системы.
- Отчеты о тестировании: фиксируют результаты проведенных тестов и могут служить основанием для внесения изменений или доработок в систему.
Эта документация обеспечивает уверенность в том, что система будет функционировать должным образом и удовлетворять потребности заказчика.
Таким образом, проектная документация для слаботочных систем является комплексным набором документов, который охватывает все этапы от предпроектного анализа до приемки готовой системы. Каждый из разделов документации играет свою важную роль и способствует успешной реализации проекта. Правильное оформление и тщательная проработка всех аспектов проектной документации позволяют минимизировать риски и обеспечить высокое качество работы слаботочных систем.
системы газоснабжения
Проектная документация для систем газоснабжения является важным этапом в процессе проектирования и строительства. Она включает в себя набор документов, которые обеспечивают правильное и безопасное функционирование газовых систем. Основная цель проектной документации — это создание четкого и понятного плана, который будет служить основой для реализации проекта.
Проектная документация для систем газоснабжения состоит из нескольких ключевых разделов, каждый из которых выполняет свою функцию. Рассмотрим основные компоненты проектной документации:
- Техническое задание (ТЗ) — это документ, который определяет требования к проекту, включая цели, задачи, объем работ и сроки выполнения. Техническое задание служит основой для разработки проектной документации и согласования всех участников проекта.
- Предварительное проектирование — на этом этапе разрабатываются концептуальные решения, которые включают в себя схемы газоснабжения, выбор оборудования и материалов, а также предварительные расчеты. Этот раздел позволяет оценить целесообразность проекта и его соответствие требованиям.
- Рабочая документация — это наиболее объемный раздел проектной документации, который включает в себя чертежи, схемы, спецификации и расчеты. Рабочая документация должна содержать все необходимые данные для выполнения строительных и монтажных работ. Важно, чтобы все чертежи были выполнены в соответствии с действующими стандартами и нормами.
- Сметная документация — включает в себя расчеты стоимости всех работ и материалов, необходимых для реализации проекта. Смета должна быть составлена с учетом всех затрат, включая трудозатраты, стоимость оборудования и материалов, а также накладные расходы.
- Документация по безопасности — в этом разделе описываются меры по обеспечению безопасности при эксплуатации газовых систем. Включает в себя анализ рисков, инструкции по безопасной эксплуатации и меры по предотвращению аварийных ситуаций.
- Экологическая документация — включает в себя оценку воздействия на окружающую среду, а также меры по минимизации негативного влияния газоснабжения на природу. Этот раздел становится все более важным в свете современных экологических требований.
- Технические условия — это документы, которые содержат требования к проектируемым системам газоснабжения, включая параметры газа, условия эксплуатации и требования к оборудованию. Технические условия разрабатываются в соответствии с действующими стандартами и нормами.
Каждый из этих разделов проектной документации играет важную роль в успешной реализации проекта. Они обеспечивают не только техническую, но и правовую основу для строительства и эксплуатации систем газоснабжения. Важно, чтобы все документы были согласованы с соответствующими органами и соответствовали действующим нормативам.
Проектная документация должна быть тщательно проверена и утверждена перед началом строительных работ. Это позволяет избежать ошибок и недоразумений в процессе реализации проекта, а также гарантирует безопасность и эффективность работы газоснабжающих систем.
Важным аспектом проектной документации является согласование и экспертиза. Все документы должны пройти процедуру согласования с различными инстанциями, включая местные органы власти, пожарные службы и экологические инспекции. Это необходимо для получения разрешений на строительство и эксплуатацию газоснабжающих систем. Экспертиза проектной документации позволяет выявить возможные недостатки и несоответствия, что способствует повышению качества проекта.
Кроме того, в процессе разработки проектной документации необходимо учитывать нормативные и законодательные требования. В разных странах и регионах могут действовать различные правила и стандарты, касающиеся проектирования и эксплуатации газоснабжения. Поэтому важно следить за актуальностью нормативной базы и вносить изменения в проектную документацию при необходимости.
Следующим важным элементом является проектирование систем автоматизации. Современные газоснабжающие системы часто включают в себя автоматизированные системы управления, которые позволяют контролировать и регулировать процессы подачи газа. Проектная документация должна содержать схемы и описания этих систем, а также требования к их функциональности и надежности.
Не менее важным является раздел по монтажу и наладке. В проектной документации должны быть четко прописаны этапы монтажа, порядок выполнения работ, а также требования к квалификации специалистов, выполняющих эти работы. Наладка систем газоснабжения — это критически важный этап, который требует особого внимания, так как от качества наладки зависит безопасность и эффективность работы всей системы.
Также стоит отметить, что проектная документация должна включать в себя план по обслуживанию и ремонту
В заключение, проектная документация для систем газоснабжения — это комплексный набор документов, который охватывает все аспекты проектирования, строительства и эксплуатации. Каждый раздел документации играет свою уникальную роль и должен быть тщательно проработан. Это обеспечивает не только успешную реализацию проекта, но и безопасность, надежность и эффективность работы газоснабжающих систем.
Технологические решения
Проектная документация является важнейшим элементом в процессе разработки и реализации технологических решений. Она включает в себя набор документов, которые описывают все аспекты проекта, начиная от его концепции и заканчивая детальными техническими спецификациями. Правильное оформление проектной документации позволяет обеспечить высокое качество выполнения работ, минимизировать риски и повысить эффективность взаимодействия между всеми участниками проекта.
Состав проектной документации может варьироваться в зависимости от типа проекта, его масштаба и специфики. Однако, как правило, в нее входят следующие основные разделы:
- Техническое задание (ТЗ) — это документ, который определяет цели и задачи проекта, а также требования к его результатам. Техническое задание должно быть четким и конкретным, чтобы избежать недопонимания между заказчиком и исполнителем.
- Проектная документация — включает в себя схемы, чертежи, спецификации и другие графические материалы, которые иллюстрируют проектные решения. Эти документы помогают визуализировать конечный результат и служат основой для дальнейших работ.
- Календарный план — это график выполнения работ, который включает в себя сроки выполнения отдельных этапов проекта. Он позволяет контролировать процесс и своевременно реагировать на возможные задержки.
- Смета — документ, в котором указаны все затраты, связанные с реализацией проекта. Смета помогает оценить финансовые риски и спланировать бюджет.
- Отчеты о ходе выполнения работ — регулярные отчеты, которые содержат информацию о текущем состоянии проекта, выполненных работах и возникших проблемах. Эти документы необходимы для контроля и управления проектом.
Каждый из этих разделов играет свою уникальную роль в процессе проектирования и реализации технологических решений. Например, техническое задание служит основой для всех последующих этапов, а проектная документация обеспечивает необходимую детализацию и ясность в исполнении. Календарный план и смета, в свою очередь, помогают управлять временем и ресурсами, что критически важно для успешного завершения проекта.
Важно отметить, что проектная документация должна быть актуальной и регулярно обновляться в процессе выполнения работ. Это позволяет избежать ошибок и недоразумений, а также обеспечивает прозрачность и подотчетность всех участников проекта. В современных условиях, когда технологии развиваются стремительными темпами, использование специализированных программных решений для создания и управления проектной документацией становится все более актуальным.
Современные технологии позволяют значительно упростить процесс создания и управления проектной документацией. Существуют различные программные решения, которые помогают автоматизировать многие рутинные задачи, связанные с оформлением документов, их хранением и обменом. К таким решениям относятся системы управления проектами, CAD-программы для создания чертежей и схем, а также специализированные платформы для совместной работы.
Одним из ключевых аспектов проектной документации является ее структурированность. Каждый документ должен быть оформлен в соответствии с установленными стандартами и требованиями. Это включает в себя правильное наименование файлов, использование единого формата и стиля, а также четкое указание версий документов. Структурированная документация облегчает поиск нужной информации и способствует более эффективному взаимодействию между участниками проекта.
Кроме того, важно учитывать, что проектная документация должна быть доступна для всех заинтересованных сторон. Это означает, что необходимо организовать систему хранения и обмена документами, которая обеспечит легкий доступ к информации. В современных условиях часто используются облачные технологии, которые позволяют хранить документы в интернете и обеспечивать к ним доступ из любой точки мира. Это особенно актуально для проектов, в которых участвуют команды, расположенные в разных регионах или странах.
Не менее важным аспектом является соблюдение норм и стандартов, регулирующих проектирование и документацию в конкретной области. В зависимости от типа проекта могут применяться различные нормативные документы, такие как строительные нормы и правила (СНиП), стандарты ISO и другие. Соблюдение этих норм не только обеспечивает качество и безопасность проекта, но и позволяет избежать юридических проблем в будущем.
В процессе разработки проектной документации также необходимо учитывать возможные изменения и корректировки. Проекты редко идут по плану, и часто возникают ситуации, когда требуется внести изменения в уже утвержденные документы. В таких случаях важно иметь четкую процедуру для внесения изменений, которая позволит сохранить актуальность документации и избежать путаницы.
В заключение, состав проектной документации — это комплексный и многоуровневый процесс, который требует внимательного подхода и тщательной организации. Правильное оформление и управление проектной документацией являются залогом успешной реализации технологических решений и достижения поставленных целей. Важно помнить, что качественная документация не только облегчает работу команды, но и способствует повышению доверия со стороны заказчиков и партнеров.
Проект организации строительства
Проектная документация является основой для успешной реализации любого строительного проекта. Она включает в себя множество различных документов, которые обеспечивают четкое понимание всех этапов строительства, а также соответствие проектных решений действующим нормам и стандартам. Важно отметить, что состав проектной документации может варьироваться в зависимости от типа и масштаба проекта, однако существуют общие элементы, которые присутствуют практически в каждом проекте.
Основные элементы проектной документации:
- Техническое задание (ТЗ) - это документ, который определяет цели и задачи проекта, а также требования к его реализации. Техническое задание служит основой для разработки всех последующих документов.
- Предварительное проектирование - на этом этапе разрабатываются концептуальные решения, которые включают в себя общие схемы и эскизы. Это позволяет оценить целесообразность проекта и его соответствие требованиям заказчика.
- Рабочая документация - включает в себя детализированные чертежи, спецификации и расчеты, необходимые для выполнения строительных работ. Рабочая документация должна быть максимально точной и понятной для исполнителей.
- Сметная документация - содержит информацию о стоимости всех работ и материалов, необходимых для реализации проекта. Смета позволяет контролировать бюджет и планировать финансовые затраты.
- График выполнения работ - это план, который определяет последовательность и сроки выполнения всех этапов строительства. График помогает организовать работу и контролировать сроки.
- Документы по охране труда и технике безопасности - включают в себя инструкции и правила, которые должны соблюдаться на строительной площадке для обеспечения безопасности работников.
- Экологическая документация - содержит оценку воздействия проекта на окружающую среду и меры по минимизации негативных последствий. Это особенно важно для крупных и сложных проектов.
- Заключения и согласования - это документы, подтверждающие соответствие проекта всем необходимым нормам и требованиям. Они могут включать в себя заключения экспертиз, согласования с государственными органами и другими заинтересованными сторонами.
Каждый из этих элементов играет важную роль в процессе проектирования и строительства. Правильное оформление и согласование проектной документации позволяет избежать множества проблем на этапе реализации проекта, а также обеспечивает его успешное завершение в установленные сроки и в рамках бюджета.
Важным аспектом проектной документации является ее актуальность. Все изменения, вносимые в проект, должны быть отражены в документации, чтобы избежать недоразумений и ошибок в процессе строительства. Это требует постоянного контроля и обновления документов на всех этапах реализации проекта.
Заключение - на данном этапе мы рассмотрели основные элементы проектной документации, которые являются необходимыми для успешной организации строительства. В следующих частях статьи мы подробнее остановимся на каждом из этих элементов, а также рассмотрим их взаимосвязь и влияние на общий процесс проектирования и строительства.
Одним из ключевых документов в проектной документации является техническое задание (ТЗ). Оно формируется на основании требований заказчика и включает в себя описание функциональных характеристик, технических параметров и условий эксплуатации объекта. Техническое задание должно быть максимально детализированным, чтобы избежать недопонимания на этапе проектирования. Важно, чтобы все заинтересованные стороны согласовали ТЗ, так как оно служит основой для дальнейшей работы.
На этапе предварительного проектирования разрабатываются концептуальные решения, которые могут включать в себя различные варианты планировок, архитектурные стили и инженерные системы. Этот этап позволяет визуализировать проект и оценить его соответствие требованиям заказчика. Важно, чтобы на этом этапе были учтены все возможные ограничения, такие как земельные и строительные нормы, а также особенности местности.
После утверждения концепции начинается разработка рабочей документации. Этот этап включает в себя создание детализированных чертежей, спецификаций и расчетов. Рабочая документация должна быть понятной и доступной для всех участников процесса, включая архитекторов, инженеров и строителей. Чертежи должны содержать все необходимые размеры, материалы и технологии, которые будут использоваться в процессе строительства.
Сметная документация, как правило, разрабатывается параллельно с рабочей. Она включает в себя смету, которая детализирует все затраты на проект, включая стоимость материалов, работ и услуг. Смета должна быть основана на актуальных ценах и учитывать возможные риски и непредвиденные расходы. Это позволяет заказчику заранее оценить финансовые затраты и принять обоснованные решения.
График выполнения работ является важным инструментом для управления проектом. Он позволяет определить последовательность выполнения всех этапов строительства, а также установить сроки для каждого из них. График должен быть реалистичным и учитывать возможные задержки, связанные с погодными условиями, поставками материалов и другими факторами. Регулярный мониторинг выполнения графика позволяет своевременно выявлять отклонения и принимать меры для их устранения.
Не менее важными являются документы по охране труда и технике безопасности. Они содержат инструкции и правила, которые должны соблюдаться на строительной площадке для обеспечения безопасности работников. Эти документы разрабатываются с учетом специфики проекта и должны быть доступны всем участникам процесса. Обучение работников правилам безопасности и регулярные инструктажи помогают минимизировать риски и предотвратить несчастные случаи.
Экологическая документация становится все более актуальной в современных условиях. Она включает в себя оценку воздействия проекта на окружающую среду и меры по минимизации негативных последствий. Важно, чтобы проект соответствовал экологическим нормам и требованиям, что может потребовать дополнительных исследований и согласований с государственными органами.
Заключения и согласования, полученные на различных этапах проектирования, подтверждают соответствие проекта всем необходимым нормам и требованиям. Это может включать в себя заключения экспертиз, согласования с местными властями и другими заинтересованными сторонами. Наличие всех необходимых согласований является обязательным условием для получения разрешения на строительство.
Таким образом, проектная документация представляет собой комплекс взаимосвязанных документов, которые обеспечивают успешную реализацию строительного проекта. Каждый элемент этой документации играет важную роль и требует внимательного подхода на всех этапах проектирования и строительства. В следующей части статьи мы подробнее рассмотрим каждый из элементов проектной документации, их содержание и значение для успешного завершения строительного проекта.
Мероприятия по охране окружающей среды
Проектная документация является важным элементом в процессе реализации мероприятий по охране окружающей среды. Она включает в себя различные документы, которые обеспечивают планирование, выполнение и контроль за выполнением экологических мероприятий. Важно, чтобы проектная документация была составлена с учетом всех требований законодательства и стандартов, а также учитывала специфику конкретного проекта.
Основные компоненты проектной документации
- Техническое задание - это документ, который определяет цели и задачи проекта, а также требования к его выполнению. В техническом задании должны быть четко прописаны экологические аспекты, которые необходимо учитывать.
- Экологическая оценка - это анализ потенциального воздействия проекта на окружающую среду. Включает в себя оценку рисков и возможных последствий для экосистемы, а также предложения по минимизации негативного воздействия.
- Проектные решения - это конкретные меры и технологии, которые будут применяться для достижения поставленных целей. Важно, чтобы проектные решения были основаны на современных научных данных и лучших практиках.
- Сметная документация - включает в себя расчеты затрат на реализацию проекта. Смета должна учитывать все расходы, связанные с охраной окружающей среды, включая затраты на оборудование, материалы и рабочую силу.
- График выполнения работ - это план, который определяет сроки выполнения различных этапов проекта. График должен быть реалистичным и учитывать возможные риски и задержки.
- Отчетность и мониторинг - это система, которая позволяет отслеживать выполнение проекта и его воздействие на окружающую среду. Включает в себя регулярные отчеты о ходе выполнения работ и оценку их эффективности.
Требования к проектной документации
Проектная документация должна соответствовать ряду требований, чтобы обеспечить ее эффективность и законность:
- Соответствие законодательству - все документы должны соответствовать действующим нормам и правилам в области охраны окружающей среды.
- Научная обоснованность - проектные решения должны основываться на актуальных научных данных и исследованиях.
- Прозрачность и доступность - документация должна быть доступна для всех заинтересованных сторон, включая общественность и экологические организации.
- Учет мнения заинтересованных сторон - важно учитывать мнения и предложения местных жителей, экологов и других заинтересованных сторон при разработке проектной документации.
Процесс разработки проектной документации
Разработка проектной документации проходит несколько этапов:
- Сбор информации - на этом этапе собираются данные о проекте, его целях, а также информация о состоянии окружающей среды в районе реализации проекта.
- Анализ данных - полученные данные анализируются для выявления потенциальных экологических рисков и возможностей для их минимизации.
- Разработка проектных решений - на основе анализа разрабатываются конкретные меры и технологии, которые будут применяться в проекте.
- Составление документации - все собранные данные и проектные решения оформляются в виде официальных документов.
- Согласование и утверждение - проектная документация проходит процедуру согласования с соответствующими органами и утверждается.
Таким образом, проектная документация играет ключевую роль в реализации мероприятий по охране окружающей среды, обеспечивая системный подход к решению экологических проблем.
Виды проектной документации
Существует несколько видов проектной документации, которые могут быть использованы в зависимости от специфики проекта и его масштабов:
- Предпроектная документация - включает в себя предварительные исследования и анализы, которые помогают определить целесообразность проекта. Это может быть предварительная экологическая оценка, которая выявляет основные риски и возможности.
- Проектная документация - это основная документация, которая разрабатывается на этапе проектирования. Она включает в себя все необходимые расчеты, схемы, чертежи и описания проектных решений.
- Рабочая документация - это более детализированная документация, которая разрабатывается на этапе подготовки к реализации проекта. Она включает в себя инструкции, спецификации и другие документы, необходимые для выполнения работ.
- Исполнительная документация - составляется по завершении проекта и включает в себя отчеты о выполненных работах, результаты мониторинга и оценки воздействия на окружающую среду.
Качество проектной документации
Качество проектной документации имеет решающее значение для успешной реализации мероприятий по охране окружающей среды. Для обеспечения высокого качества документации необходимо:
- Проведение экспертизы - все проектные документы должны проходить независимую экологическую экспертизу, которая оценит их соответствие требованиям и стандартам.
- Использование современных технологий - применение современных программных средств и технологий для разработки проектной документации позволяет повысить ее точность и эффективность.
- Обучение специалистов - важно, чтобы специалисты, занимающиеся разработкой проектной документации, имели соответствующую квалификацию и опыт работы в области охраны окружающей среды.
Роль общественности в разработке проектной документации
Общественность играет важную роль в процессе разработки проектной документации. Участие местных жителей и экологических организаций может значительно повысить качество и приемлемость проектных решений:
- Обсуждения и консультации - проведение общественных слушаний и консультаций позволяет учесть мнения и предложения граждан, что способствует более полному пониманию местных экологических проблем.
- Обратная связь - активное вовлечение общественности в процесс разработки документации позволяет получить ценную обратную связь, которая может быть использована для улучшения проектных решений.
- Прозрачность процесса - открытость и доступность информации о проекте способствуют повышению доверия со стороны общественности и снижению конфликтов.
Заключение
Таким образом, проектная документация является основой для успешной реализации мероприятий по охране окружающей среды. Она должна быть качественной, научно обоснованной и учитывать мнения всех заинтересованных сторон. Важно, чтобы процесс разработки документации был прозрачным и открытым, что позволит обеспечить устойчивое развитие и защиту окружающей среды.
Мероприятия по обеспечению пожарной безопасности
Проектная документация по обеспечению пожарной безопасности является важным элементом в процессе проектирования и строительства объектов. Она включает в себя различные документы, которые помогают определить меры по предотвращению и ликвидации пожаров, а также обеспечивают безопасность людей и имущества.
Основные компоненты проектной документации по пожарной безопасности можно разделить на несколько ключевых разделов:
- Общие сведения о проекте
- Описание объекта строительства.
- Цели и задачи проектирования.
- Условия эксплуатации и назначения объекта.
- Анализ пожарной опасности
- Оценка потенциальных источников возгорания.
- Анализ материалов, используемых в строительстве.
- Определение категорий помещений по пожарной опасности.
- Пожарная безопасность зданий и сооружений
- Проектирование систем противопожарной защиты.
- Разработка планов эвакуации.
- Определение требований к огнестойкости конструкций.
- Системы противопожарной защиты
- Автоматические системы пожарной сигнализации.
- Системы оповещения и управления эвакуацией.
- Системы водяного и порошкового пожаротушения.
- Организация пожарной безопасности
- Разработка инструкций по пожарной безопасности.
- Обучение персонала и проведение тренировок.
- Создание пожарных постов и назначение ответственных лиц.
- Документация по пожарной безопасности
- Составление актов и протоколов проверок.
- Ведение журналов учета и регистрации.
- Подготовка отчетов о состоянии пожарной безопасности.
Каждый из этих разделов требует тщательной проработки и согласования с соответствующими органами. Важно учитывать не только действующие нормы и правила, но и специфику самого объекта, его расположение и потенциальные риски.
Проектная документация должна быть составлена с учетом всех требований законодательства, а также рекомендаций специализированных организаций. Это позволит минимизировать риски возникновения пожаров и обеспечить безопасность людей, находящихся на объекте.
В процессе разработки проектной документации необходимо также учитывать мнения и рекомендации специалистов в области пожарной безопасности, что позволит создать более эффективные и безопасные решения.
При разработке проектной документации по обеспечению пожарной безопасности важно учитывать не только технические аспекты, но и организационные. Это включает в себя взаимодействие с различными службами и организациями, которые могут быть вовлечены в процесс обеспечения пожарной безопасности на объекте.
Согласование проектной документации
Проектная документация должна быть согласована с местными органами пожарного надзора, а также с другими контролирующими инстанциями. Это необходимо для получения разрешений на строительство и эксплуатацию объекта. Согласование включает в себя:
- Проверку соответствия проектных решений действующим нормам и правилам.
- Оценку рисков и предложений по их минимизации.
- Рекомендации по улучшению проектных решений в области пожарной безопасности.
Разработка планов эвакуации
Одним из ключевых элементов проектной документации является разработка планов эвакуации. Эти планы должны быть четкими и понятными, чтобы обеспечить быструю и безопасную эвакуацию людей в случае возникновения пожара. Важно учитывать:
- Количество людей, находящихся в здании.
- Расположение выходов и путей эвакуации.
- Наличие специальных условий для людей с ограниченными возможностями.
Планы эвакуации должны быть размещены в доступных местах и регулярно обновляться в соответствии с изменениями в проекте или эксплуатации здания.
Обучение и тренировки
Обучение персонала и проведение тренировок по действиям в случае пожара являются важными аспектами обеспечения пожарной безопасности. Все сотрудники должны быть ознакомлены с:
- Правилами поведения при возникновении пожара.
- Порядком использования средств пожаротушения.
- Планами эвакуации и местами сбора.
Регулярные тренировки помогут не только повысить уровень готовности персонала, но и выявить возможные недостатки в организации эвакуации и действиях в экстренных ситуациях.
Контроль и мониторинг
После завершения строительства и ввода объекта в эксплуатацию необходимо организовать контроль за соблюдением требований пожарной безопасности. Это включает в себя:
- Регулярные проверки состояния систем противопожарной защиты.
- Мониторинг соблюдения правил пожарной безопасности персоналом.
- Анализ инцидентов и разработку мер по их предотвращению в будущем.
Эффективный контроль и мониторинг помогут своевременно выявлять и устранять недостатки, что в свою очередь снизит риск возникновения пожаров и обеспечит безопасность людей.
Заключение
Таким образом, проектная документация по обеспечению пожарной безопасности является комплексным документом, который охватывает все аспекты, связанные с предотвращением и ликвидацией пожаров. Важно, чтобы она была разработана с учетом всех требований и рекомендаций, а также регулярно обновлялась в соответствии с изменениями в законодательстве и практике. Это позволит обеспечить высокий уровень безопасности на объекте и защитить жизни людей.
Требования к обеспечению безопасной эксплуатации объектов капитального строительства
Проектная документация является основным инструментом, обеспечивающим безопасную эксплуатацию объектов капитального строительства. Она включает в себя набор документов, которые содержат все необходимые сведения о проекте, его характеристиках, а также требования к его реализации и эксплуатации. Важность проектной документации трудно переоценить, так как от ее качества зависит не только успешность строительства, но и безопасность эксплуатации готового объекта.
Состав проектной документации может варьироваться в зависимости от типа и сложности объекта, однако существуют общепринятые элементы, которые должны быть включены в любой проект. К ним относятся:
- Техническое задание — документ, в котором определяются основные требования к проекту, его цели и задачи, а также условия, в которых будет осуществляться строительство.
- Эскизный проект — предварительная версия проекта, которая позволяет визуализировать основные идеи и концепции. Он включает в себя общие планы, схемы и описания.
- Рабочая документация — детализированные чертежи и спецификации, которые содержат все необходимые данные для выполнения строительных работ. Включает в себя архитектурные, конструктивные, инженерные и другие разделы.
- Сметная документация — расчет стоимости строительства, который включает в себя все затраты на материалы, работы и услуги, необходимые для реализации проекта.
- Документы по охране труда и технике безопасности — инструкции и рекомендации, которые обеспечивают безопасность работников на строительной площадке и в процессе эксплуатации объекта.
- Экологическая экспертиза — оценка воздействия проекта на окружающую среду, которая позволяет выявить возможные негативные последствия и разработать меры по их минимизации.
- Документы по обеспечению пожарной безопасности — требования и рекомендации, направленные на предотвращение и ликвидацию пожаров, а также на защиту людей и имущества.
Каждый из этих элементов играет важную роль в обеспечении безопасной эксплуатации объектов капитального строительства. Например, техническое задание задает направление для всех последующих этапов проектирования, а рабочая документация является основой для выполнения строительных работ. Без качественной сметной документации невозможно правильно оценить затраты и обеспечить финансирование проекта.
Кроме того, важно учитывать, что проектная документация должна соответствовать действующим нормативным требованиям и стандартам. Это включает в себя как федеральные, так и региональные нормы, которые могут различаться в зависимости от местоположения объекта. Поэтому проектировщики должны быть хорошо осведомлены о всех актуальных требованиях и изменениях в законодательстве.
Также стоит отметить, что проектная документация должна быть доступна для всех участников процесса — от заказчика до подрядчиков и контролирующих органов. Это обеспечивает прозрачность и позволяет избежать недоразумений и конфликтов в процессе реализации проекта.
Важным аспектом проектной документации является ее актуализация на всех этапах строительства. В процессе реализации проекта могут возникать изменения, которые требуют внесения корректив в проектные документы. Это может быть связано с изменением условий строительства, новыми требованиями законодательства или же с выявлением недостатков в проекте. Поэтому необходимо обеспечить постоянный мониторинг и обновление проектной документации, чтобы она оставалась актуальной и соответствовала реальным условиям.
Кроме того, проектная документация должна быть согласована с различными контролирующими органами. Это включает в себя получение разрешений и согласований от местных властей, пожарной инспекции, экологических служб и других организаций, которые могут иметь отношение к проекту. Процесс согласования может быть длительным и сложным, поэтому важно заранее предусмотреть все необходимые шаги и документы.
Не менее важным является и вопрос качества проектной документации. Для этого необходимо привлекать квалифицированных специалистов, которые обладают необходимыми знаниями и опытом в области проектирования. Качество проектной документации напрямую влияет на безопасность эксплуатации объекта, поэтому к этому вопросу следует подходить с особой тщательностью.
В процессе разработки проектной документации также важно учитывать мнения и пожелания всех заинтересованных сторон. Это может включать в себя как заказчика, так и будущих пользователей объекта, а также местное население. Участие всех заинтересованных сторон в процессе проектирования позволяет учесть различные точки зрения и сделать проект более эффективным и безопасным.
Важным элементом проектной документации является также раздел, посвященный эксплуатации объекта. Он должен содержать рекомендации по техническому обслуживанию, ремонту и модернизации объекта, а также инструкции по безопасной эксплуатации. Это позволит обеспечить долговечность и надежность объекта, а также минимизировать риски, связанные с его эксплуатацией.
В заключение, проектная документация является основой для безопасной эксплуатации объектов капитального строительства. Она должна быть тщательно разработана, актуализирована и согласована с контролирующими органами. Качество проектной документации, а также участие всех заинтересованных сторон в процессе проектирования играют ключевую роль в обеспечении безопасности и эффективности эксплуатации объектов.
Мероприятия по обеспечению доступа инвалидов к объекту капитального строительства
Проектная документация является основой для реализации мероприятий по обеспечению доступа инвалидов к объектам капитального строительства. Она включает в себя ряд документов, которые детализируют требования и решения, направленные на создание безбарьерной среды. Важность проектной документации нельзя переоценить, так как именно она определяет, как будет организован доступ к зданию, какие элементы инфраструктуры будут предусмотрены и как будет обеспечена безопасность пользователей.
Состав проектной документации для обеспечения доступа инвалидов включает в себя несколько ключевых компонентов:
- Техническое задание — документ, в котором определяются основные требования к проекту, включая спецификации по доступности для людей с ограниченными возможностями.
- Архитектурные решения — раздел, в котором описываются архитектурные элементы, такие как пандусы, лифты, широкие двери и другие конструкции, обеспечивающие доступность.
- Конструктивные решения — включает в себя детали, касающиеся материалов и технологий, которые будут использоваться для создания доступной среды.
- Инженерные системы — проектирование систем освещения, отопления, вентиляции и других инженерных решений, которые должны учитывать потребности людей с ограниченными возможностями.
- План благоустройства территории — включает в себя проектирование подходов, парковок, тротуаров и других элементов, обеспечивающих доступ к зданию.
- Сметная документация — расчет стоимости всех работ и материалов, необходимых для реализации проекта, с учетом специфики доступности.
- Технические условия — требования к подключению к инженерным сетям, которые также должны учитывать потребности инвалидов.
Каждый из этих компонентов играет важную роль в создании доступной среды. Например, архитектурные решения должны учитывать не только физические параметры, но и удобство использования для людей с различными формами инвалидности. Это может включать в себя не только пандусы, но и специальные указатели, тактильные элементы и другие вспомогательные средства.
При разработке проектной документации необходимо учитывать действующие нормативные документы и стандарты, регулирующие доступность объектов капитального строительства. В России это, в частности, Свод правил СП 59.13330.2016, который устанавливает требования к доступности зданий и сооружений для инвалидов и других маломобильных групп населения.
Кроме того, проектная документация должна проходить экспертизу, в ходе которой проверяется соответствие всех решений установленным нормам и требованиям. Это важный этап, который позволяет выявить возможные недостатки и внести необходимые коррективы до начала строительных работ.
В процессе разработки проектной документации также важно учитывать мнение самих инвалидов и организаций, представляющих их интересы. Это позволит создать более удобные и функциональные решения, которые действительно будут отвечать потребностям пользователей.
Одним из ключевых аспектов проектной документации является разработка детальных чертежей, которые иллюстрируют все элементы доступности. Эти чертежи должны включать в себя:
- Планы этажей — показывают расположение пандусов, лифтов, туалетов для инвалидов и других важных элементов.
- Разрезы и фасады — демонстрируют высоту и уклон пандусов, ширину дверных проемов и другие конструктивные особенности.
- Схемы инженерных систем — показывают, как будут организованы системы освещения и сигнализации для людей с ограниченными возможностями.
Важно, чтобы все чертежи были выполнены с учетом эргономических требований, что позволит обеспечить максимальный комфорт и безопасность для пользователей. Например, уклон пандуса не должен превышать 5%, а ширина дверных проемов должна быть не менее 90 см для обеспечения проезда инвалидных колясок.
Кроме того, проектная документация должна содержать описания материалов, которые будут использоваться в строительстве. Это касается как конструктивных элементов, так и отделки. Например, полы должны быть выполнены из нескользящих материалов, а поверхности стен — иметь тактильные элементы для ориентирования слабовидящих людей.
Не менее важным является раздел, посвященный безопасности. В проектной документации должны быть предусмотрены меры по обеспечению безопасности людей с ограниченными возможностями в экстренных ситуациях. Это включает в себя:
- Планы эвакуации — должны быть адаптированы для людей с ограниченными возможностями, с указанием доступных выходов и путей.
- Системы оповещения — должны учитывать потребности людей с нарушениями слуха и зрения, включая визуальные и тактильные сигналы.
Также необходимо предусмотреть обучение персонала, который будет работать в здании. Это может включать в себя тренинги по оказанию помощи людям с ограниченными возможностями, а также обучение использованию специальных устройств и оборудования.
Важным этапом является согласование проектной документации с местными органами власти и специализированными организациями, занимающимися вопросами доступности. Это позволит избежать возможных проблем на этапе реализации проекта и гарантировать, что все решения соответствуют действующим нормам и требованиям.
После завершения проектирования и получения всех необходимых согласований, начинается этап реализации проекта. Важно, чтобы на этом этапе соблюдались все требования, указанные в проектной документации. Для этого необходимо проводить регулярные проверки и контроль качества работ.
В процессе строительства также следует учитывать возможность внесения изменений в проект, если это необходимо для улучшения доступности. Например, если в ходе работ выясняется, что предусмотренные решения не обеспечивают должного уровня комфорта, необходимо оперативно вносить коррективы.
После завершения строительства важно провести финальную проверку объекта на соответствие всем требованиям доступности. Это может включать в себя тестирование всех систем и элементов, а также оценку удобства использования для людей с ограниченными возможностями.
Таким образом, проектная документация играет ключевую роль в обеспечении доступа инвалидов к объектам капитального строительства. Она не только определяет технические решения, но и формирует подход к созданию безбарьерной среды, учитывающей потребности всех пользователей.
Смета на строительство, реконструкцию, капитальный ремонт, снос объекта капитального строительства
Проектная документация является основой для успешного выполнения строительных, реконструкционных и капитальных ремонтных работ. Она включает в себя все необходимые документы, которые обеспечивают правильное планирование, проектирование и реализацию строительного процесса. Важно отметить, что состав проектной документации может варьироваться в зависимости от типа объекта, его назначения и масштабов работ.
Основные элементы проектной документации можно разделить на несколько категорий:
- Техническая документация — включает в себя чертежи, схемы, спецификации и другие документы, которые описывают технические характеристики объекта. Эти документы необходимы для понимания того, как будет выглядеть объект после завершения строительства.
- Сметная документация — содержит расчеты стоимости строительства, включая материалы, трудозатраты и другие расходы. Смета является важным инструментом для контроля бюджета проекта.
- Организационная документация — включает в себя графики выполнения работ, планы по обеспечению безопасности и охране труда, а также другие документы, касающиеся организации строительного процесса.
- Экологическая документация — необходима для оценки воздействия строительства на окружающую среду. Включает в себя экологические экспертизы и заключения.
- Правовая документация — включает в себя разрешения, лицензии и другие документы, необходимые для законного выполнения строительных работ.
Каждый из этих элементов играет важную роль в процессе проектирования и строительства. Рассмотрим их более подробно.
Техническая документация является основой для проектирования. Она включает в себя:
- Архитектурные чертежи — показывают внешний вид здания, его планировку и размеры.
- Конструктивные чертежи — описывают несущие конструкции, их материалы и размеры.
- Инженерные схемы — показывают расположение систем водоснабжения, канализации, отопления и электроснабжения.
- Спецификации — содержат подробные описания используемых материалов и оборудования.
Эти документы должны быть разработаны с учетом всех норм и стандартов, действующих в строительной отрасли. Они также должны быть согласованы с соответствующими органами, чтобы избежать проблем в процессе строительства.
Сметная документация включает в себя:
- Смету на строительство — расчет всех затрат, связанных с выполнением строительных работ.
- Смету на проектирование — включает в себя затраты на разработку проектной документации.
- Смету на эксплуатацию — расчет затрат на содержание и эксплуатацию объекта после его завершения.
Смета должна быть составлена с учетом всех возможных рисков и непредвиденных обстоятельств, что позволит избежать перерасхода бюджета в процессе реализации проекта.
Организационная документация включает в себя:
- Графики выполнения работ — показывают последовательность и сроки выполнения различных этапов строительства.
- Планы по охране труда — описывают меры, которые будут предприняты для обеспечения безопасности работников на строительной площадке.
- Планы по организации строительного процесса — включают в себя схемы размещения строительной техники и материалов.
Эти документы помогают организовать работу на строительной площадке, минимизируя риски и повышая эффективность выполнения работ.
Экологическая документация становится все более важной в современных условиях. Она включает в себя:
- Экологические экспертизы — проводятся для оценки воздействия строительства на окружающую среду.
- Заключения о соответствии — подтверждают, что проект соответствует экологическим нормам и требованиям.
Соблюдение экологических норм не только защищает окружающую среду, но и способствует улучшению имиджа компании-застройщика.
Правовая документацияПравовая документация включает в себя все необходимые разрешения и лицензии, которые требуются для законного выполнения строительных работ. К основным элементам правовой документации относятся:
- Разрешение на строительство — документ, который выдается местными органами власти и подтверждает, что проект соответствует градостроительным нормам и правилам.
- Лицензии на выполнение строительных работ — подтверждают право компании на осуществление строительной деятельности.
- Договоры с подрядчиками — регулируют отношения между заказчиком и подрядчиком, определяя права и обязанности сторон.
- Акты приемки выполненных работ — подтверждают, что работы выполнены в соответствии с проектной документацией и приняты заказчиком.
Правовая документация обеспечивает защиту интересов всех участников строительного процесса и помогает избежать юридических споров.
При разработке проектной документации важно учитывать не только технические и экономические аспекты, но и социальные и культурные факторы. Например, проект должен соответствовать архитектурному стилю района, учитывать потребности местных жителей и обеспечивать доступность для людей с ограниченными возможностями.
Проектная документация также должна быть адаптирована к современным требованиям, таким как использование энергосберегающих технологий и материалов, а также внедрение систем автоматизации и управления. Это не только повышает эффективность эксплуатации объекта, но и способствует снижению его воздействия на окружающую среду.
Важным этапом в процессе разработки проектной документации является ее согласование с различными инстанциями. Это может включать в себя:
- Согласование с архитектурными и градостроительными органами — необходимо для получения разрешения на строительство.
- Экологическая экспертиза — проводится для оценки воздействия проекта на окружающую среду.
- Согласование с пожарной службой — необходимо для обеспечения безопасности объекта.
- Согласование с коммунальными службами — для подключения к инженерным сетям.
Каждый из этих этапов требует тщательной подготовки и внимательного подхода, так как несогласованные изменения могут привести к задержкам в строительстве и дополнительным расходам.
В заключение, состав проектной документации — это сложный и многоступенчатый процесс, который требует участия различных специалистов, таких как архитекторы, инженеры, экономисты и юристы. Каждый из них вносит свой вклад в создание качественного и безопасного объекта капитального строительства. Правильная организация и тщательная проработка всех этапов проектирования и согласования документации являются залогом успешного завершения строительного проекта.


















