Рабочая документация стадия р
Рабочая документация стадия р
В современном строительстве важным аспектом является соблюдение нормативных требований и стандартов, что особенно актуально в контексте 87 постановления правительства. Это постановление регламентирует процесс строительного проектирования, обеспечивая высокое качество и безопасность возводимых объектов. В данной статье мы рассмотрим ключевые моменты, касающиеся рабочей документации на стадии Р, а также ее соответствие установленным нормам.
Статья включает в себя следующие разделы:
- Общие требования к рабочей документации
- Структура и содержание документации на стадии Р
- Процессы согласования и утверждения
- Роль проектировщиков и подрядчиков
- Актуальные изменения в законодательстве
Мы надеемся, что данная информация будет полезна как профессионалам в области строительства, так и тем, кто только начинает знакомиться с основами проектирования. Понимание требований 87 постановления правительства поможет избежать ошибок и повысить качество проектируемых объектов.
Согласно 87 ПП (87 постановление правительства)
Рабочая документация на стадии Р (рабочая документация) является важным этапом в процессе проектирования и строительства. Она включает в себя все необходимые чертежи, спецификации и расчеты, которые обеспечивают реализацию проектных решений на практике. В соответствии с 87 постановлением правительства, рабочая документация должна соответствовать определенным требованиям и стандартам, что обеспечивает ее качество и соответствие действующим нормам.
На стадии Р разрабатываются следующие основные разделы рабочей документации:
- Архитектурные чертежи - включают планы, фасады, разрезы и детали, которые показывают архитектурные решения проекта.
- Конструктивные решения - содержат информацию о конструкциях здания, включая фундаменты, стены, перекрытия и кровлю.
- Инженерные системы - охватывают проектирование систем водоснабжения, канализации, отопления, вентиляции и электроснабжения.
- Спецификации - описывают материалы и изделия, которые будут использоваться в строительстве, включая их характеристики и количество.
- Сметная документация - включает в себя расчет стоимости строительства, что позволяет контролировать бюджет проекта.
Каждый из этих разделов должен быть тщательно проработан и согласован с проектными решениями, утвержденными на предыдущих стадиях проектирования. Важно, чтобы рабочая документация была понятной и доступной для всех участников строительного процесса, включая строителей, подрядчиков и инспекторов.
Согласно 87 ПП, рабочая документация должна разрабатываться с учетом всех действующих норм и правил, включая строительные нормы и правила (СНиП), а также другие нормативные документы. Это обеспечивает безопасность и надежность построенных объектов, а также их соответствие требованиям эксплуатации.
Кроме того, рабочая документация должна проходить экспертизу, которая включает в себя проверку на соответствие проектным решениям, а также на соответствие действующим нормам и стандартам. Экспертиза может быть как государственной, так и независимой, в зависимости от требований конкретного проекта.
В процессе разработки рабочей документации важно учитывать не только технические аспекты, но и экологические, экономические и социальные факторы. Это позволяет создать проект, который будет не только функциональным, но и устойчивым, а также соответствовать современным требованиям к строительству.
Одним из ключевых аспектов разработки рабочей документации является согласование проектных решений с заказчиком и другими заинтересованными сторонами. На этом этапе важно учитывать пожелания и требования заказчика, а также возможные ограничения, связанные с бюджетом и сроками выполнения работ. Согласование позволяет избежать недоразумений и конфликтов в дальнейшем, а также обеспечивает более высокую степень удовлетворенности конечным результатом.
Важным элементом рабочей документации является графическая часть, которая должна быть выполнена в соответствии с установленными стандартами. Чертежи должны быть четкими, понятными и содержать все необходимые размеры и аннотации. Это позволяет строителям точно следовать проекту и минимизировать вероятность ошибок в процессе строительства.
Кроме того, рабочая документация должна включать технические условия на проектируемые системы и конструкции. Эти условия определяют требования к материалам, технологиям и методам выполнения работ. Они также могут включать в себя рекомендации по эксплуатации и обслуживанию систем, что особенно важно для обеспечения долговечности и надежности построенных объектов.
Не менее важным аспектом является учет норм и стандартов при разработке рабочей документации. В соответствии с 87 ПП, все проектные решения должны соответствовать действующим строительным нормам и правилам, а также другим нормативным документам. Это включает в себя требования к безопасности, энергоэффективности, экологии и другим аспектам, которые могут повлиять на качество и безопасность объекта.
Рабочая документация также должна содержать инструкции по монтажу и эксплуатации проектируемых систем. Эти инструкции помогают строителям правильно установить оборудование и системы, а также обеспечивают их эффективное использование в дальнейшем. Важно, чтобы инструкции были написаны доступным языком и содержали все необходимые детали, чтобы избежать ошибок в процессе монтажа.
На стадии Р также разрабатываются планы по организации строительного процесса, которые включают в себя графики выполнения работ, распределение ресурсов и определение последовательности выполнения операций. Это позволяет оптимизировать процесс строительства и минимизировать затраты времени и средств.
В заключение, рабочая документация на стадии Р является основой для успешной реализации проектных решений. Она должна быть тщательно проработана, согласована и соответствовать всем действующим нормам и стандартам. Это обеспечивает не только качество и безопасность построенных объектов, но и удовлетворенность заказчика и других заинтересованных сторон.
Пояснительная записка
Рабочая документация на стадии Р (рабочая документация) является важным этапом в процессе проектирования и строительства. Она включает в себя все необходимые чертежи, спецификации и расчеты, которые обеспечивают реализацию проектных решений на практике. На этой стадии проектировщики должны детализировать все аспекты проекта, чтобы обеспечить его успешное выполнение.
Основной целью рабочей документации является создание четкого и понятного руководства для строителей и подрядчиков. Это позволяет избежать недоразумений и ошибок в процессе строительства, что, в свою очередь, способствует соблюдению сроков и бюджета проекта. Рабочая документация должна быть составлена с учетом всех норм и стандартов, действующих в данной области.
Рабочая документация на стадии Р включает в себя несколько ключевых элементов:
- Чертежи – это графическое представление проектных решений, включая планы, разрезы и фасады. Чертежи должны быть выполнены в соответствии с установленными стандартами и содержать все необходимые размеры и аннотации.
- Спецификации – это текстовые документы, в которых описываются материалы, конструкции и оборудование, используемые в проекте. Спецификации должны содержать информацию о качестве и характеристиках материалов, а также о поставщиках.
- Расчеты – это инженерные расчеты, которые подтверждают правильность проектных решений. Они могут включать в себя расчеты нагрузок, теплотехнические расчеты, гидравлические расчеты и другие.
- Сметы – это документы, в которых содержится информация о стоимости строительства, включая стоимость материалов, работ и услуг. Сметы помогают контролировать бюджет проекта и планировать финансовые затраты.
При разработке рабочей документации необходимо учитывать требования заказчика, а также действующие строительные нормы и правила. Важно, чтобы все элементы документации были согласованы между собой и соответствовали проектным решениям, принятым на стадии П (проектирование).
Рабочая документация должна быть оформлена в соответствии с установленными стандартами и требованиями. Это включает в себя правильное использование графических и текстовых элементов, а также соблюдение единых форматов и размеров документов. Важно, чтобы документация была понятной и доступной для всех участников строительного процесса.
На стадии Р также происходит взаимодействие с различными службами и организациями, которые могут быть вовлечены в реализацию проекта. Это может включать в себя согласование проектных решений с местными органами власти, получение разрешений на строительство и взаимодействие с поставщиками материалов и оборудования.
Кроме того, рабочая документация должна быть подготовлена с учетом возможных изменений и корректировок, которые могут возникнуть в процессе строительства. Это требует гибкости и готовности к адаптации проектных решений в зависимости от реальных условий на строительной площадке.
Таким образом, рабочая документация на стадии Р является ключевым элементом успешного завершения строительного проекта. Она обеспечивает четкость и последовательность в реализации проектных решений, что в конечном итоге влияет на качество и срок выполнения работ.
Одним из важных аспектов рабочей документации является ее согласование с различными участниками проекта. На стадии Р проектировщики должны активно взаимодействовать с инженерами, строителями и другими специалистами, чтобы убедиться, что все аспекты проекта учтены и согласованы. Это взаимодействие помогает выявить потенциальные проблемы на ранних этапах и минимизировать риски, связанные с реализацией проекта.
В процессе согласования рабочей документации могут возникать различные изменения и корректировки. Например, в ходе обсуждений могут быть выявлены более эффективные решения, которые позволят оптимизировать проект. Важно, чтобы все изменения были документированы и отражены в рабочей документации, чтобы избежать путаницы и недоразумений в будущем.
Рабочая документация также должна учитывать требования по охране труда и технике безопасности. Это особенно важно на строительных площадках, где соблюдение правил безопасности может предотвратить несчастные случаи и травмы. В документации должны быть прописаны все необходимые меры предосторожности, а также инструкции по безопасному выполнению работ.
Кроме того, рабочая документация должна включать в себя графики выполнения работ и планирование этапов строительства. Это позволяет контролировать процесс и своевременно реагировать на возможные задержки или проблемы. Графики должны быть реалистичными и учитывать все возможные риски, связанные с выполнением работ.
Не менее важным элементом рабочей документации является контроль качества. В процессе строительства необходимо проводить регулярные проверки и инспекции, чтобы убедиться, что все работы выполняются в соответствии с проектными решениями и стандартами. Рабочая документация должна содержать инструкции по контролю качества, а также критерии, по которым будет оцениваться выполнение работ.
В заключение, рабочая документация на стадии Р является основой для успешной реализации строительного проекта. Она обеспечивает четкость, последовательность и контроль на всех этапах строительства. Качественно подготовленная документация позволяет минимизировать риски, связанные с проектом, и способствует его успешному завершению в установленные сроки и в рамках бюджета.
Важно отметить, что рабочая документация не является статичным документом. В процессе строительства могут возникать новые обстоятельства, которые требуют внесения изменений в проект. Поэтому проектировщики должны быть готовы к адаптации документации и внесению необходимых корректировок, чтобы обеспечить успешное выполнение проекта.
Таким образом, рабочая документация на стадии Р играет ключевую роль в процессе проектирования и строительства. Она обеспечивает необходимую информацию для всех участников проекта и способствует его успешной реализации. Качественная и детализированная документация является залогом успешного завершения строительного проекта и достижения поставленных целей.
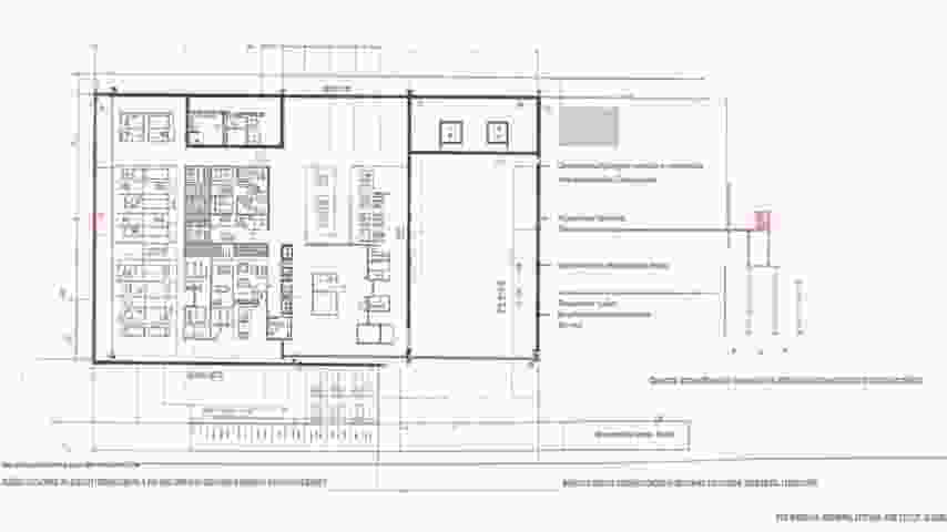
Схема планировочной организации земельного участка
Рабочая документация на стадии Р (рабочая документация) является важным этапом в проектировании планировочной организации земельного участка. На этой стадии разрабатываются детализированные чертежи и спецификации, которые необходимы для реализации проектных решений. Основной задачей рабочей документации является создание четкого и понятного руководства для строителей и подрядчиков, что позволяет избежать ошибок и недоразумений в процессе строительства.
В рамках рабочей документации на стадии Р разрабатываются следующие ключевые элементы:
- План земельного участка – это основной документ, который отображает расположение всех объектов на участке, включая здания, дороги, тротуары, зеленые насаждения и другие элементы. Он должен содержать точные размеры и координаты всех объектов.
- Схемы инженерных сетей – включают в себя планы расположения водопроводных, канализационных, электрических и других инженерных коммуникаций. Эти схемы должны быть согласованы с соответствующими службами и учитывать все действующие нормы и правила.
- Детали конструкций – это чертежи, которые показывают, как будут строиться отдельные элементы, такие как фундаменты, стены, крыши и другие конструкции. Они должны содержать все необходимые размеры, материалы и технологии.
- Спецификации материалов – в этом разделе указываются все материалы, которые будут использоваться в строительстве, их количество, характеристики и поставщики. Это позволяет точно рассчитать смету и избежать недоразумений при закупке.
- План благоустройства – включает в себя проектирование ландшафта, размещение зеленых насаждений, малых архитектурных форм и других элементов, которые создают комфортную и эстетически привлекательную среду.
Каждый из этих элементов требует тщательной проработки и согласования с различными инстанциями. Например, план земельного участка должен соответствовать градостроительным нормам и правилам, а схемы инженерных сетей – требованиям местных коммунальных служб. Важно также учитывать экологические аспекты, такие как сохранение природных ресурсов и минимизация воздействия на окружающую среду.
На стадии Р также происходит взаимодействие с заказчиком, который может вносить изменения и дополнения в проект. Это может касаться как функционального назначения объектов, так и их внешнего вида. Важно, чтобы все изменения были документально оформлены и согласованы, чтобы избежать конфликтов в будущем.
Кроме того, рабочая документация должна быть подготовлена в соответствии с действующими стандартами и нормами. Это включает в себя как общие строительные нормы, так и специфические требования для конкретного типа объектов. Например, для жилых зданий могут действовать одни нормы, а для промышленных – совершенно другие.
В процессе разработки рабочей документации также важно учитывать сроки выполнения работ. Каждый этап должен быть четко спланирован, чтобы избежать задержек и перерасхода бюджета. Для этого часто используются графики выполнения работ, которые позволяют контролировать процесс и вносить необходимые коррективы.
Одним из ключевых аспектов рабочей документации на стадии Р является согласование проектных решений с различными инстанциями. Это может включать в себя получение разрешений от местных органов власти, согласование с экологическими службами, а также взаимодействие с коммунальными службами для обеспечения подключения к инженерным сетям. Каждый из этих этапов требует внимательного подхода и соблюдения всех необходимых процедур.
Важным элементом рабочей документации является проектная смета, которая включает в себя все затраты на строительство. Смета должна быть составлена на основе спецификаций материалов и работ, а также учитывать возможные непредвиденные расходы. Это позволяет заказчику заранее оценить финансовые затраты и спланировать бюджет.
При разработке рабочей документации также необходимо учитывать технологические процессы, которые будут использоваться на строительной площадке. Это включает в себя выбор методов строительства, порядок выполнения работ и использование специализированной техники. Все эти аспекты должны быть четко прописаны в документации, чтобы обеспечить эффективное выполнение проекта.
Не менее важным является учет безопасности на строительной площадке. Рабочая документация должна содержать разделы, посвященные мерам по охране труда и технике безопасности. Это включает в себя инструкции для рабочих, правила поведения на площадке и меры по предотвращению несчастных случаев. Соблюдение этих норм является обязательным и должно контролироваться на всех этапах строительства.
Кроме того, рабочая документация должна включать в себя план контроля качества выполненных работ. Это может включать в себя регулярные проверки на соответствие проектным требованиям, а также тестирование материалов и конструкций. Такой подход позволяет выявить возможные недостатки на ранних стадиях и избежать серьезных проблем в будущем.
В процессе разработки рабочей документации также важно учитывать пожарную безопасность. Все проектные решения должны соответствовать требованиям пожарной безопасности, включая размещение эвакуационных выходов, системы противопожарной защиты и другие меры, направленные на обеспечение безопасности людей и имущества.
Рабочая документация на стадии Р также должна быть доступна для всех участников проекта. Это включает в себя как заказчика, так и подрядчиков, архитекторов и инженеров. Все изменения и дополнения должны быть документированы и доведены до сведения всех заинтересованных сторон, чтобы избежать недоразумений и конфликтов.
В заключение, рабочая документация на стадии Р является основой для успешной реализации проекта по планировочной организации земельного участка. Она включает в себя множество элементов, которые требуют тщательной проработки и согласования. Важно, чтобы все участники процесса были вовлечены в разработку и согласование документации, что позволит обеспечить высокое качество выполнения работ и соблюдение всех норм и требований.
Объемно-планировочные и архитектурные решения
Рабочая документация на стадии Р (рабочая документация) является важным этапом в процессе проектирования зданий и сооружений. На этой стадии разрабатываются детализированные чертежи и спецификации, которые необходимы для реализации проектных решений. Объемно-планировочные и архитектурные решения играют ключевую роль в создании функционального и эстетически привлекательного пространства.
На стадии Р основное внимание уделяется следующим аспектам:
- Объемно-планировочные решения: Это решения, касающиеся общей конфигурации здания, его высоты, ширины и глубины. Важно учитывать не только внешние параметры, но и внутренние планировочные решения, которые обеспечивают удобство и комфорт для пользователей.
- Архитектурные решения: Они включают в себя выбор материалов, цветовых решений, а также стилистических направлений. Архитектурные решения должны гармонично сочетаться с объемно-планировочными, создавая единый образ здания.
- Функциональное зонирование: На стадии Р необходимо четко определить функциональные зоны внутри здания. Это включает в себя размещение жилых, общественных и служебных помещений, а также их взаимосвязь и доступность.
- Эстетические аспекты: Важно учитывать не только функциональность, но и визуальную привлекательность здания. Архитектурные элементы, такие как фасады, окна, двери и крыши, должны быть продуманы с точки зрения дизайна.
- Инженерные системы: На стадии Р также разрабатываются схемы размещения инженерных систем, таких как отопление, вентиляция, кондиционирование, электроснабжение и водоснабжение. Эти системы должны быть интегрированы в общий объемно-планировочный замысел.
Каждый из этих аспектов требует тщательной проработки и согласования с другими участниками проектирования, такими как инженеры, дизайнеры и заказчики. Важно, чтобы все решения были взаимосвязаны и соответствовали требованиям строительных норм и правил.
Рабочая документация на стадии Р должна включать в себя:
- Чертежи: Подробные планы этажей, разрезы и фасады, которые показывают все архитектурные и объемно-планировочные решения.
- Спецификации: Документы, в которых указаны все используемые материалы, их количество и характеристики.
- Сметы: Оценка стоимости строительства, основанная на разработанных чертежах и спецификациях.
- Технические условия: Документы, которые содержат требования к инженерным системам и другим техническим аспектам проекта.
Таким образом, рабочая документация на стадии Р является основой для успешной реализации проектных решений и строительства объекта. Она обеспечивает четкое понимание всех аспектов проекта и позволяет избежать ошибок на более поздних стадиях.
При разработке объемно-планировочных и архитектурных решений на стадии Р необходимо учитывать множество факторов, которые могут повлиять на конечный результат. К ним относятся:
- Топография участка: Рельеф местности может существенно повлиять на проектирование. Неровности, уклоны и другие природные особенности требуют адаптации проектных решений, чтобы обеспечить устойчивость и безопасность здания.
- Климатические условия: Условия окружающей среды, такие как температура, влажность, скорость ветра и уровень осадков, должны быть учтены при выборе материалов и проектировании инженерных систем. Это поможет обеспечить комфортные условия для пользователей и снизить эксплуатационные расходы.
- Нормативные требования: Все проектные решения должны соответствовать действующим строительным нормам и правилам. Это касается как архитектурных, так и объемно-планировочных решений, которые должны учитывать требования к безопасности, доступности и энергоэффективности.
- Социальные и культурные аспекты: Архитектурные решения должны учитывать контекст местности, в которой будет расположено здание. Это включает в себя уважение к историческим и культурным традициям региона, а также потребности местного населения.
Важным этапом на стадии Р является согласование проектных решений с заказчиком и другими заинтересованными сторонами. Это позволяет выявить возможные несоответствия и внести необходимые изменения до начала строительных работ. В процессе согласования могут возникнуть следующие вопросы:
- Функциональность помещений: Заказчик может предложить изменения в планировке, чтобы лучше соответствовать своим потребностям. Это может касаться как изменения размеров помещений, так и их назначения.
- Эстетические предпочтения: Заказчик может иметь свои предпочтения в отношении внешнего вида здания, что может потребовать пересмотра архитектурных решений.
- Бюджетные ограничения: В процессе согласования может возникнуть необходимость пересмотра проектных решений с целью оптимизации затрат. Это может включать в себя выбор более доступных материалов или упрощение конструктивных решений.
После завершения согласования проектных решений начинается этап подготовки рабочей документации. На этом этапе важно обеспечить высокое качество чертежей и спецификаций, чтобы избежать ошибок в процессе строительства. Качество документации можно обеспечить следующими способами:
- Использование современных программных средств: Применение CAD-систем и других программ для проектирования позволяет создавать точные и детализированные чертежи, а также упрощает внесение изменений.
- Проверка документации: Необходимо проводить многоуровневую проверку чертежей и спецификаций, чтобы выявить возможные ошибки и неточности до начала строительства.
- Согласование с инженерами: Важно, чтобы архитектурные решения были согласованы с инженерами, отвечающими за проектирование инженерных систем. Это поможет избежать конфликтов между архитектурными и инженерными решениями.
Таким образом, объемно-планировочные и архитектурные решения на стадии Р являются основой для успешного строительства. Они требуют тщательной проработки, согласования и проверки, чтобы обеспечить соответствие всем требованиям и ожиданиям заказчика.
Конструктивные решения
Рабочая документация на стадии Р (рабочая документация) является важным этапом в процессе проектирования, так как именно на этом этапе формируются все необходимые чертежи, спецификации и другие документы, которые будут использоваться для реализации проекта. Конструктивные решения, представленные в рабочей документации, должны быть тщательно проработаны и соответствовать требованиям действующих норм и стандартов.
На стадии Р основное внимание уделяется детализации проектных решений, которые были разработаны на предыдущих стадиях. Это включает в себя выбор конструктивных систем, материалов, а также методов их соединения и монтажа. Важно, чтобы все конструктивные элементы были оптимально спроектированы с точки зрения прочности, устойчивости и долговечности.
Одним из ключевых аспектов конструктивных решений является выбор типа фундамента. В зависимости от геологических условий, нагрузки на здание и других факторов, проектировщик может выбрать различные типы фундаментов, такие как:
- Ленточный фундамент - используется для зданий с равномерной нагрузкой и подходит для большинства типов грунтов.
- Свайный фундамент - применяется в условиях слабых или подвижных грунтов, где необходимо передать нагрузку на более прочные слои.
- Плитный фундамент - используется для зданий с большой площадью и равномерной нагрузкой, обеспечивая равномерное распределение веса.
После выбора типа фундамента, проектировщик переходит к разработке конструктивных решений для стен, перекрытий и кровли. Важно учитывать не только прочностные характеристики, но и теплоизоляцию, звукоизоляцию, а также другие эксплуатационные характеристики.
При проектировании стен необходимо учитывать их конструктивные особенности, такие как:
- Материалы - выбор между кирпичом, бетоном, газобетоном и другими материалами.
- Толщина стен - должна соответствовать требованиям по теплоизоляции и прочности.
- Армирование - для повышения прочности стен, особенно в местах, подверженных нагрузкам.
Перекрытия также требуют внимательного подхода. В зависимости от назначения помещений и их нагрузки, проектировщик может выбрать различные типы перекрытий:
- Монолитные перекрытия - обеспечивают высокую прочность и жесткость, но требуют больше времени на строительство.
- Сборные перекрытия - позволяют сократить сроки строительства, но могут иметь ограничения по нагрузке.
- Деревянные перекрытия - используются в легких конструкциях, но требуют дополнительной обработки для защиты от влаги и вредителей.
Кровля является завершающим элементом конструкции здания и должна обеспечивать надежную защиту от атмосферных воздействий. При проектировании кровли учитываются:
- Тип кровли - плоская или скатная, в зависимости от климатических условий и архитектурных решений.
- Материалы - выбор между металлочерепицей, битумной черепицей, мягкой кровлей и другими материалами.
- Система водостока - необходима для предотвращения накопления воды на кровле и защиты фасадов здания.
При разработке конструктивных решений также необходимо учитывать системы инженерного обеспечения здания. Это включает в себя проектирование систем отопления, вентиляции, кондиционирования, водоснабжения и канализации. Каждая из этих систем должна быть интегрирована в общую конструкцию здания, обеспечивая его функциональность и комфорт для пользователей.
Для систем отопления проектировщик выбирает подходящие радиаторы, котлы и трубопроводы, учитывая тепловые нагрузки и распределение тепла по помещениям. Важно также предусмотреть возможность автоматизации управления системой отопления для повышения энергоэффективности.
Вентиляция и кондиционирование воздуха играют ключевую роль в обеспечении комфортного микроклимата. Проектировщик должен определить:
- Тип вентиляции - естественная или механическая, в зависимости от назначения помещений и требований к воздухообмену.
- Системы фильтрации - для очистки воздуха от загрязнений и аллергенов.
- Кондиционеры - выбор между сплит-системами, центральными системами и другими решениями.
Водоснабжение и канализация также требуют тщательной проработки. Проектировщик должен учитывать:
- Схемы разводки труб - для обеспечения равномерного распределения воды по всем точкам потребления.
- Системы очистки сточных вод - для обеспечения экологической безопасности и соблюдения норм.
- Резервуары и насосные станции - для обеспечения бесперебойного водоснабжения.
Не менее важным аспектом является проектирование конструктивных решений для фасадов. Фасад не только определяет внешний вид здания, но и влияет на его энергоэффективность. При проектировании фасадов учитываются:
- Материалы отделки - выбор между кирпичом, штукатуркой, стеклом и другими материалами.
- Теплоизоляция - для снижения теплопотерь и повышения энергоэффективности.
- Архитектурные элементы - балконы, эркеры, навесы, которые могут добавлять эстетическую ценность и функциональность.
Важным этапом на стадии Р является также разработка деталей и узлов, которые обеспечивают надежность соединений между различными конструктивными элементами. Это включает в себя:
- Узлы соединения - проектирование мест стыковки стен, перекрытий и кровли.
- Армирование - для повышения прочности и устойчивости конструкций.
- Гидроизоляция - для защиты от влаги и предотвращения разрушения материалов.
В процессе разработки рабочей документации на стадии Р необходимо также учитывать требования к безопасности и охране труда. Все конструктивные решения должны соответствовать нормам, обеспечивающим безопасность эксплуатации здания, включая:
- Противопожарные меры - проектирование систем оповещения и эвакуации, а также использование огнестойких материалов.
- Системы безопасности - видеонаблюдение, сигнализация и другие меры для защиты здания.
- Доступность - проектирование пандусов, лифтов и других элементов для обеспечения доступа маломобильных групп населения.
Таким образом, конструктивные решения на стадии Р являются основой для успешной реализации проекта. Они должны быть тщательно проработаны и согласованы с другими разделами проектной документации, чтобы обеспечить высокое качество и безопасность будущего здания.
Системы электроснабжения
Рабочая документация на стадии Р (рабочая документация) является важным этапом в проектировании систем электроснабжения. На этой стадии разрабатываются детализированные чертежи, схемы и спецификации, которые необходимы для реализации проекта. Рабочая документация должна быть максимально точной и соответствовать требованиям действующих норм и стандартов.
Основные элементы рабочей документации включают в себя:
- Чертежи - это графическое представление всех элементов системы электроснабжения, включая распределительные устройства, трансформаторы, кабельные линии и другие компоненты.
- Схемы - электрические схемы, которые показывают взаимосвязи между различными элементами системы, их подключения и функциональные характеристики.
- Спецификации - документы, в которых указаны технические характеристики оборудования, материалов и компонентов, используемых в проекте.
- Технические условия - требования, которые должны быть соблюдены при проектировании и монтаже системы электроснабжения.
При разработке рабочей документации на стадии Р необходимо учитывать множество факторов, таких как:
- Нормативные документы - все проектные решения должны соответствовать действующим строительным нормам и правилам (СНиП, ПУЭ и др.).
- Технические условия заказчика - необходимо учитывать требования и пожелания заказчика, которые могут касаться как функциональности системы, так и ее эстетических характеристик.
- Экономические аспекты - проект должен быть не только технически обоснованным, но и экономически целесообразным, что подразумевает оптимизацию затрат на материалы и оборудование.
На стадии Р также происходит детальная проработка всех узлов и соединений, что позволяет избежать ошибок на этапе монтажа. Важно, чтобы все элементы системы были согласованы между собой и соответствовали проектным требованиям.
Одним из ключевых аспектов рабочей документации является проверка и согласование всех чертежей и схем с соответствующими службами и инстанциями. Это может включать в себя:
- Согласование с энергетическими компаниями, которые будут осуществлять подключение системы к электросети.
- Получение разрешений от местных органов власти на выполнение строительных работ.
- Проверка проектной документации на соответствие требованиям безопасности и охраны труда.
Рабочая документация должна быть оформлена в соответствии с установленными стандартами, что включает в себя правильное оформление заголовков, обозначений, легенд и других элементов. Это необходимо для того, чтобы все участники проекта могли легко ориентироваться в документации и понимать ее содержание.
Кроме того, на стадии Р важно учитывать планирование сроков выполнения работ и составление графиков. Это позволяет организовать процесс монтажа и наладки системы электроснабжения, а также избежать задержек и дополнительных затрат.
В заключение, рабочая документация на стадии Р является основой для успешной реализации проекта систем электроснабжения. Она должна быть тщательно проработана и согласована, чтобы обеспечить высокое качество и надежность будущей системы.
На стадии рабочей документации также важно уделить внимание выбору оборудования. Это включает в себя не только выбор производителей, но и оценку технических характеристик, таких как мощность, эффективность, надежность и срок службы. Важно, чтобы выбранное оборудование соответствовало проектным требованиям и было совместимо с другими элементами системы.
При выборе оборудования необходимо учитывать:
- Технические характеристики - мощность, напряжение, ток, частота и другие параметры, которые должны соответствовать расчетам и требованиям проекта.
- Условия эксплуатации - оборудование должно быть адаптировано к условиям, в которых оно будет использоваться, включая климатические условия, уровень влажности и наличие агрессивных сред.
- Сервисное обслуживание - важно учитывать доступность сервисного обслуживания и запасных частей для выбранного оборудования.
Кроме того, на стадии Р разрабатываются планы по монтажу и наладке системы. Эти планы должны включать в себя последовательность выполнения работ, необходимые инструменты и оборудование, а также требования к квалификации рабочих. Четкое планирование позволяет минимизировать риски и повысить эффективность выполнения работ.
Не менее важным аспектом является безопасность при проектировании и монтаже систем электроснабжения. Все проектные решения должны учитывать требования по охране труда и технике безопасности. Это включает в себя:
- Обеспечение защиты от электрического тока, включая использование защитных устройств и заземление.
- Организацию безопасных рабочих мест и соблюдение норм по освещению и вентиляции.
- Обучение персонала правилам безопасной работы с электрическим оборудованием.
Рабочая документация также должна содержать инструкции по эксплуатации и техническому обслуживанию системы. Эти инструкции помогут пользователям правильно использовать оборудование и проводить его регулярное обслуживание, что в свою очередь увеличит срок службы системы и снизит вероятность аварийных ситуаций.
На стадии Р также важно провести анализ рисков, связанных с проектом. Это включает в себя идентификацию потенциальных проблем, которые могут возникнуть в процессе монтажа и эксплуатации системы, а также разработку мер по их предотвращению. Такой подход позволяет заранее подготовиться к возможным трудностям и минимизировать их влияние на проект.
Важным элементом рабочей документации является согласование с подрядчиками, которые будут выполнять монтажные работы. Это включает в себя обсуждение всех деталей проекта, а также установление четких сроков и условий выполнения работ. Согласование позволяет избежать недоразумений и конфликтов в процессе реализации проекта.
Наконец, на стадии Р необходимо подготовить финансовую смету проекта, которая включает в себя все затраты на материалы, оборудование, монтажные работы и другие расходы. Смета должна быть обоснованной и учитывать все возможные риски, что позволит избежать перерасхода бюджета в процессе реализации проекта.
Таким образом, рабочая документация на стадии Р является ключевым этапом в проектировании систем электроснабжения. Она включает в себя множество аспектов, от выбора оборудования до планирования сроков и анализа рисков, что позволяет обеспечить успешную реализацию проекта и его дальнейшую эксплуатацию.
системы водоснабжения
Рабочая документация на стадии Р (рабочая документация) является важным этапом в проектировании систем водоснабжения. На этой стадии разрабатываются детализированные чертежи, спецификации и расчеты, которые необходимы для реализации проекта. Основная цель рабочей документации — обеспечить точное выполнение проектных решений, а также соответствие всем нормам и стандартам.
Рабочая документация включает в себя несколько ключевых элементов, которые необходимо учитывать при проектировании систем водоснабжения:
- Чертежи: На этой стадии разрабатываются все необходимые чертежи, включая планы, разрезы и схемы. Чертежи должны содержать информацию о расположении трубопроводов, насосных станций, резервуаров и других элементов системы.
- Спецификации: В спецификациях указываются все материалы и оборудование, которые будут использоваться в проекте. Это включает в себя трубы, фитинги, насосы, фильтры и другие компоненты. Спецификации должны содержать информацию о марках, размерах и количестве необходимых материалов.
- Расчеты: На стадии Р проводятся все необходимые гидравлические и теплотехнические расчеты. Это позволяет определить параметры системы, такие как давление, расход воды и теплопотери. Расчеты должны быть обоснованы и соответствовать действующим нормам.
- Технические условия: Важно учитывать технические условия, которые могут быть установлены местными органами власти или другими регулирующими организациями. Эти условия могут касаться качества воды, допустимых уровней шума и других факторов.
При разработке рабочей документации необходимо учитывать не только технические аспекты, но и экономические. Это включает в себя оценку стоимости материалов и работ, а также анализ возможных рисков и затрат на эксплуатацию системы в будущем.
Одним из важных аспектов на стадии Р является согласование документации с заказчиком и другими заинтересованными сторонами. Это позволяет избежать недоразумений и обеспечить, чтобы проект соответствовал ожиданиям всех участников. Согласование может включать в себя обсуждение чертежей, спецификаций и расчетов, а также внесение необходимых изменений.
Кроме того, на стадии Р важно учитывать вопросы экологии и устойчивого развития. Проектирование систем водоснабжения должно соответствовать современным требованиям по охране окружающей среды, включая минимизацию воздействия на экосистемы и рациональное использование водных ресурсов.
Рабочая документация также должна быть подготовлена с учетом возможных изменений в проекте, которые могут возникнуть в процессе его реализации. Это может включать в себя изменения в технологии, материалах или условиях эксплуатации. Поэтому важно, чтобы документация была гибкой и могла быть адаптирована к новым условиям.
В заключение, рабочая документация на стадии Р является основой для успешной реализации проекта систем водоснабжения. Она должна быть тщательно проработана и согласована, чтобы обеспечить высокое качество и надежность системы в будущем.
На стадии рабочей документации также важно учитывать требования к безопасности. Проектирование систем водоснабжения должно включать в себя меры по предотвращению аварийных ситуаций и обеспечению безопасности пользователей. Это может включать в себя установку защитных устройств, таких как предохранительные клапаны, а также разработку планов действий в случае аварий.
Важным аспектом является также выбор оборудования. При проектировании систем водоснабжения необходимо учитывать не только технические характеристики, но и надежность, долговечность и экономичность используемых материалов и оборудования. Это позволит снизить затраты на эксплуатацию и обслуживание системы в будущем.
При разработке рабочей документации следует также учитывать возможность автоматизации процессов управления системой водоснабжения. Современные технологии позволяют внедрять системы автоматического контроля и управления, что значительно повышает эффективность работы системы и снижает риски ошибок, связанных с человеческим фактором.
Не менее важным является вопрос интеграции системы водоснабжения с другими инженерными системами, такими как канализация, отопление и электроснабжение. Это требует комплексного подхода и взаимодействия между различными проектными группами, чтобы обеспечить совместимость всех систем и их эффективное функционирование.
На стадии Р также разрабатываются инструкции по монтажу и эксплуатации системы. Эти документы содержат рекомендации по установке оборудования, настройке систем и проведению регулярного обслуживания. Правильная эксплуатация системы водоснабжения является ключевым фактором для обеспечения ее надежности и долговечности.
Кроме того, рабочая документация должна включать в себя графики выполнения работ и планирование сроков. Это позволяет контролировать процесс реализации проекта и своевременно выявлять возможные отклонения от графика. Четкое планирование помогает избежать задержек и дополнительных затрат.
Важным элементом рабочей документации является также составление сметной документации. Смета должна содержать полную информацию о стоимости всех работ и материалов, что позволяет заказчику оценить бюджет проекта и принять обоснованные решения.
Необходимо также учитывать, что рабочая документация должна быть подготовлена в соответствии с действующими стандартами и нормами. Это включает в себя как национальные, так и международные стандарты, которые регулируют проектирование и строительство систем водоснабжения. Соблюдение этих норм является обязательным для обеспечения качества и безопасности системы.
В процессе разработки рабочей документации важно также проводить экспертизу проектных решений. Это позволяет выявить возможные недостатки и ошибки на ранних стадиях, что значительно снижает риски в процессе реализации проекта. Экспертиза может проводиться как внутренними, так и внешними специалистами.
Таким образом, рабочая документация на стадии Р является комплексным и многоуровневым процессом, который требует внимательного подхода и учета множества факторов. От качества этой документации зависит успешность реализации проекта систем водоснабжения и его соответствие современным требованиям и стандартам.
системы водоотведения
Рабочая документация на стадии Р (рабочая документация) является важным этапом проектирования систем водоотведения. На этой стадии разрабатываются детализированные чертежи, спецификации и расчеты, которые необходимы для реализации проекта. Основная цель рабочей документации — обеспечить точное выполнение проектных решений, а также соответствие всем нормам и стандартам.
В процессе разработки рабочей документации для систем водоотведения необходимо учитывать множество факторов, таких как:
- Гидрологические условия: анализ осадков, уровень грунтовых вод и другие параметры, влияющие на проектирование.
- Топография местности: рельеф, наличие водоемов и другие природные особенности, которые могут повлиять на расположение трубопроводов.
- Существующая инфраструктура: наличие и состояние существующих систем водоотведения, а также других инженерных сетей.
- Экологические требования: соблюдение норм по охране окружающей среды и минимизация негативного воздействия на природу.
Рабочая документация включает в себя несколько ключевых элементов:
- Чертежи: детализированные планы, схемы и разрезы, показывающие расположение трубопроводов, колодцев, насосных станций и других элементов системы.
- Спецификации: перечень материалов, оборудования и конструкций, необходимых для реализации проекта, с указанием их характеристик и количества.
- Расчеты: гидравлические и прочностные расчеты, которые подтверждают правильность проектных решений и обеспечивают надежность системы.
- Технические условия: требования к материалам и оборудованию, а также условия их монтажа и эксплуатации.
При разработке рабочей документации важно учитывать требования действующих нормативных документов, таких как СНиП, ГОСТ и другие. Это позволит избежать ошибок и недочетов, которые могут привести к серьезным последствиям в процессе эксплуатации системы водоотведения.
Кроме того, на стадии Р необходимо провести согласование проектных решений с заинтересованными сторонами, включая заказчика, местные органы власти и экологические службы. Это поможет избежать конфликтов и обеспечить поддержку проекта на всех этапах его реализации.
Важным аспектом является также подготовка документации для проведения тендера на выполнение строительных работ. Рабочая документация должна быть оформлена таким образом, чтобы потенциальные подрядчики могли точно оценить объем работ и стоимость проекта.
Таким образом, рабочая документация на стадии Р является основой для успешной реализации проекта систем водоотведения. Она обеспечивает четкость и прозрачность всех процессов, связанных с проектированием, строительством и эксплуатацией системы.
На стадии разработки рабочей документации также важно учитывать различные технологии и методы, которые могут быть применены при строительстве систем водоотведения. Это может включать в себя как традиционные подходы, так и современные инновационные решения, такие как:
- Модульные системы: использование готовых модульных конструкций, которые позволяют ускорить процесс монтажа и снизить затраты.
- Технологии trenchless: безтраншейные методы прокладки трубопроводов, которые минимизируют воздействие на окружающую среду и сокращают время работ.
- Автоматизация: внедрение систем автоматического управления и мониторинга, которые позволяют повысить эффективность работы системы водоотведения.
При проектировании систем водоотведения также необходимо учитывать вопросы обслуживания и эксплуатации. Рабочая документация должна содержать рекомендации по техническому обслуживанию, а также инструкции по эксплуатации оборудования. Это поможет обеспечить долговечность системы и снизить вероятность аварийных ситуаций.
Не менее важным аспектом является оценка экономической эффективности проекта. В рамках рабочей документации необходимо провести анализ затрат на строительство, эксплуатацию и обслуживание системы водоотведения. Это позволит заказчику принять обоснованное решение о целесообразности реализации проекта.
В процессе разработки рабочей документации также следует учитывать возможные риски, связанные с реализацией проекта. Это может включать в себя как технические, так и финансовые риски. Для каждого из выявленных рисков необходимо разработать меры по их минимизации и управлению.
Рабочая документация должна быть оформлена в соответствии с установленными стандартами и требованиями. Это включает в себя не только графическую часть, но и текстовые документы, такие как пояснительные записки, отчеты о расчетах и спецификации. Все документы должны быть четко структурированы и легко воспринимаемы.
После завершения разработки рабочей документации необходимо провести ее экспертизу. Это позволит выявить возможные недостатки и недочеты, а также подтвердить соответствие проектных решений действующим нормам и стандартам. Экспертиза может проводиться как внутренними специалистами, так и независимыми организациями.
Важным этапом является также согласование рабочей документации с подрядчиками, которые будут выполнять строительные работы. Это позволит избежать недоразумений и обеспечить четкое понимание всех аспектов проекта со стороны всех участников.
Таким образом, рабочая документация на стадии Р является ключевым элементом успешного проектирования систем водоотведения. Она обеспечивает не только техническую реализацию проекта, но и его экономическую целесообразность, а также соответствие всем требованиям и стандартам.
системы отопление вентиляции и кондиционирования воздуха
Рабочая документация на стадии Р (рабочая документация) является важным этапом в проектировании систем отопления, вентиляции и кондиционирования воздуха (ОВК). На этой стадии разрабатываются детализированные чертежи, спецификации и расчеты, которые необходимы для реализации проекта. Основная цель рабочей документации — обеспечить точное выполнение проектных решений на этапе строительства и монтажа.
Рабочая документация включает в себя несколько ключевых элементов, которые обеспечивают полное понимание и реализацию проектных решений. К ним относятся:
- Чертежи систем ОВК: Это графические материалы, которые показывают расположение оборудования, трубопроводов, воздуховодов и других элементов систем. Чертежи должны быть выполнены в соответствии с установленными стандартами и содержать все необходимые размеры и обозначения.
- Спецификации оборудования: В этом разделе указываются характеристики и параметры всех используемых устройств, таких как котлы, вентиляторы, кондиционеры и т.д. Спецификации помогают выбрать подходящее оборудование и гарантируют его соответствие проектным требованиям.
- Расчеты: На стадии Р проводятся детальные расчеты, включая тепловые нагрузки, воздухообмен, гидравлические расчеты и другие. Эти данные необходимы для правильного выбора оборудования и его настройки.
- Сметная документация: Включает в себя расчет стоимости материалов и работ, необходимых для реализации проекта. Смета помогает контролировать бюджет и планировать финансовые затраты.
- Технические условия: Это документы, которые содержат требования к проектированию и эксплуатации систем ОВК, установленные местными органами власти или другими регулирующими организациями.
Каждый из этих элементов играет важную роль в успешной реализации проекта. Например, чертежи систем ОВК должны быть четкими и понятными, чтобы монтажники могли без труда следовать им. Спецификации оборудования должны содержать актуальные данные, чтобы избежать проблем с совместимостью и эксплуатацией.
При разработке рабочей документации на стадии Р необходимо учитывать множество факторов, таких как:
- Нормативные требования: Все проектные решения должны соответствовать действующим строительным нормам и правилам, а также стандартам безопасности.
- Условия эксплуатации: Важно учитывать климатические условия региона, в котором будет эксплуатироваться система, а также особенности здания и его использования.
- Экономические аспекты: Проект должен быть не только технически обоснованным, но и экономически целесообразным. Это включает в себя выбор оптимальных решений по стоимости и эффективности.
Рабочая документация на стадии Р должна быть тщательно проверена и согласована с заказчиком и другими заинтересованными сторонами. Это позволяет избежать недоразумений и ошибок на этапе реализации проекта. Важно, чтобы все изменения и дополнения вносились в документацию своевременно, чтобы обеспечить актуальность информации.
Кроме того, на стадии Р может быть разработан план по контролю качества выполнения работ. Это включает в себя определение критериев приемки работ, а также методов контроля за их выполнением. Такой подход позволяет минимизировать риски и гарантировать высокое качество конечного продукта.
На стадии рабочей документации также важно учитывать взаимодействие различных систем ОВК. Это включает в себя:
- Согласование систем: Все системы отопления, вентиляции и кондиционирования должны быть согласованы между собой, чтобы избежать конфликтов и обеспечить их эффективное функционирование. Например, необходимо учитывать, как система вентиляции будет взаимодействовать с системой отопления, чтобы избежать перегрева или переохлаждения помещений.
- Интеграция с другими инженерными системами: Системы ОВК должны быть интегрированы с другими инженерными системами здания, такими как электроснабжение, водоснабжение и канализация. Это требует тщательного планирования и координации между различными проектными группами.
- Учет санитарных норм: При проектировании систем ОВК необходимо соблюдать санитарные нормы и правила, касающиеся качества воздуха, уровня шума и других факторов, влияющих на комфорт и здоровье людей.
Важным аспектом рабочей документации является также подготовка инструкций по эксплуатации и обслуживанию систем ОВК. Эти инструкции должны содержать:
- Рекомендации по эксплуатации: Описание правильного использования оборудования, включая режимы работы и советы по оптимизации его работы.
- План обслуживания: График регулярного обслуживания и проверки оборудования, а также рекомендации по замене фильтров и других расходных материалов.
- Устранение неисправностей: Инструкции по диагностике и устранению распространенных проблем, которые могут возникнуть в процессе эксплуатации.
Кроме того, на стадии Р важно предусмотреть возможность модернизации систем в будущем. Это может включать в себя:
- Гибкость проектных решений: Проект должен быть разработан с учетом возможности добавления новых элементов или замены существующих без значительных затрат.
- Современные технологии: Внедрение новых технологий, таких как системы автоматизации и управления, которые могут повысить эффективность работы систем ОВК.
Рабочая документация на стадии Р должна быть оформлена в соответствии с установленными стандартами и требованиями. Это включает в себя:
- Стандарты оформления: Все документы должны быть оформлены в едином стиле, с четкими обозначениями и понятными графиками.
- Актуальность данных: Вся информация должна быть актуальной и проверенной, чтобы избежать ошибок в процессе реализации проекта.
В заключение, рабочая документация на стадии Р является основой для успешной реализации проектов систем отопления, вентиляции и кондиционирования воздуха. Она обеспечивает четкое понимание проектных решений, позволяет избежать ошибок и недоразумений, а также гарантирует высокое качество выполнения работ. Важно, чтобы все участники процесса — проектировщики, строители и заказчики — были вовлечены в процесс согласования и проверки документации, что позволит достичь наилучших результатов.
слаботочные системы
Рабочая документация на стадии Р (рабочая документация) является важным этапом в проектировании слаботочных систем. На этой стадии разрабатываются детализированные чертежи, схемы и спецификации, которые необходимы для реализации проекта. Основная цель рабочей документации — обеспечить точное и полное понимание всех аспектов проекта как для исполнителей, так и для заказчиков.
Рабочая документация включает в себя несколько ключевых элементов, которые необходимо учитывать при проектировании слаботочных систем. К ним относятся:
- Схемы подключения — это графические представления, которые показывают, как различные компоненты системы будут соединены друг с другом. Схемы могут включать в себя как электрические, так и логические соединения.
- Чертежи монтажных узлов — детализированные чертежи, которые показывают, как будут установлены различные элементы системы, такие как камеры видеонаблюдения, датчики, контроллеры и другие устройства.
- Спецификации оборудования — документы, в которых перечислены все компоненты системы, их характеристики, производители и артикулы. Это позволяет легко идентифицировать и закупить необходимое оборудование.
- Пояснительная записка — текстовый документ, в котором описываются основные решения, принятые в процессе проектирования, а также обоснования выбора тех или иных компонентов и технологий.
При разработке рабочей документации важно учитывать требования действующих норм и стандартов, а также специфику объекта, на котором будет реализована слаботочная система. Это может включать в себя требования по безопасности, энергоэффективности и совместимости с другими системами.
Одним из ключевых аспектов на стадии Р является создание проектной документации, которая должна быть понятной и доступной для всех участников проекта. Это включает в себя использование стандартных обозначений и символов, а также четкое оформление всех документов. Важно, чтобы рабочая документация была согласована с заказчиком и другими заинтересованными сторонами, чтобы избежать недоразумений и ошибок в процессе реализации проекта.
Кроме того, на стадии Р необходимо уделить внимание планированию сроков и бюджета проекта. Рабочая документация должна включать в себя смету, в которой будут указаны все затраты на оборудование, материалы и работы. Это позволит контролировать расходы и своевременно вносить коррективы в проект при необходимости.
Важным этапом является также координация с другими проектами, которые могут пересекаться с проектом слаботочных систем. Это может включать в себя взаимодействие с проектами по электроснабжению, системам безопасности, автоматизации и другим слаботочным системам. Правильная координация поможет избежать конфликтов и обеспечит эффективное функционирование всех систем на объекте.
На стадии Р также важно провести тестирование и проверку проектных решений. Это может включать в себя моделирование работы системы, проверку совместимости оборудования и тестирование на соответствие требованиям безопасности. Все результаты тестирования должны быть задокументированы и учтены в рабочей документации.
При разработке рабочей документации на стадии Р также необходимо учитывать требования к качеству и надежности слаботочных систем. Это включает в себя выбор компонентов, которые соответствуют установленным стандартам и имеют необходимые сертификаты. Важно, чтобы все элементы системы были проверены на соответствие требованиям, что обеспечит их долговечность и стабильную работу.
Одним из важных аспектов является планирование системы управления. В зависимости от типа слаботочной системы, может потребоваться разработка программного обеспечения для управления и мониторинга. Рабочая документация должна включать в себя описание функционала системы управления, а также схемы взаимодействия между различными компонентами.
Не менее важным является обучение персонала, который будет заниматься эксплуатацией и обслуживанием слаботочных систем. В рамках рабочей документации следует предусмотреть раздел, посвященный обучению, где будут описаны основные процедуры, инструкции и рекомендации по работе с системой. Это поможет избежать ошибок в эксплуатации и повысит общую эффективность работы системы.
Также стоит обратить внимание на планирование технического обслуживания и ремонта. Рабочая документация должна содержать график обслуживания, а также инструкции по проведению профилактических работ. Это позволит поддерживать систему в исправном состоянии и минимизировать время простоя.
Важным элементом рабочей документации является документация по безопасности. В ней должны быть описаны все меры, которые необходимо предпринять для обеспечения безопасности при установке и эксплуатации слаботочных систем. Это может включать в себя требования к защите от короткого замыкания, перегрева, а также меры по предотвращению несанкционированного доступа к оборудованию.
На стадии Р также необходимо учитывать экологические аспекты проектирования. Рабочая документация должна содержать информацию о том, как проект соответствует экологическим нормам и стандартам. Это может включать в себя использование экологически чистых материалов, а также меры по утилизации отходов, возникающих в процессе установки и эксплуатации системы.
Необходимо также предусмотреть план по управлению рисками. Рабочая документация должна содержать анализ возможных рисков, связанных с реализацией проекта, а также меры по их минимизации. Это поможет избежать непредвиденных ситуаций и обеспечит успешное завершение проекта.
В заключение, рабочая документация на стадии Р является основой для успешной реализации слаботочных систем. Она должна быть тщательно проработана и включать в себя все необходимые элементы, чтобы обеспечить высокое качество, безопасность и надежность системы. Важно, чтобы все участники проекта имели доступ к актуальной документации и могли оперативно вносить изменения при необходимости.
системы газоснабжения
Рабочая документация на стадии Р (рабочая документация) является важным этапом в проектировании систем газоснабжения. На этой стадии разрабатываются детализированные чертежи, схемы и спецификации, которые необходимы для реализации проекта. Основная цель рабочей документации — обеспечить точное выполнение проектных решений, а также соответствие всем нормам и стандартам.
Рабочая документация включает в себя несколько ключевых элементов, которые необходимо учитывать при проектировании систем газоснабжения:
- Чертежи: Это основа рабочей документации. Чертежи должны содержать все необходимые детали, включая планы, разрезы и схемы. Они должны быть выполнены в соответствии с установленными стандартами и содержать все необходимые размеры и обозначения.
- Спецификации: В спецификациях указываются все материалы и оборудование, которые будут использоваться в проекте. Это включает в себя трубы, арматуру, газовые счетчики и другое оборудование. Спецификации должны содержать информацию о производителе, марке и количестве материалов.
- Сметы: Смета — это документ, в котором рассчитываются затраты на выполнение работ. Она должна включать в себя стоимость материалов, оборудования, а также трудозатраты. Смета помогает контролировать бюджет проекта и обеспечивает прозрачность расходов.
- Технические условия: В рабочей документации должны быть указаны технические условия, которым должно соответствовать оборудование и материалы. Это может включать в себя требования к прочности, устойчивости к коррозии, температурным режимам и другим характеристикам.
- Инструкции по монтажу: Важно предоставить инструкции по монтажу систем газоснабжения. Эти инструкции должны быть понятными и доступными для исполнителей, чтобы избежать ошибок при установке оборудования.
При разработке рабочей документации на стадии Р необходимо учитывать требования действующего законодательства и нормативных актов. Это включает в себя правила безопасности, охраны труда и экологические нормы. Все проектные решения должны быть согласованы с соответствующими органами и организациями, чтобы избежать проблем на этапе реализации проекта.
Кроме того, важно учитывать особенности конкретного объекта, для которого разрабатывается проект. Это может включать в себя архитектурные особенности здания, его расположение, а также наличие существующих инженерных коммуникаций. Все эти факторы могут существенно повлиять на проектирование системы газоснабжения и должны быть учтены в рабочей документации.
Рабочая документация также должна быть подготовлена с учетом возможных изменений в проекте. В процессе реализации могут возникнуть непредвиденные обстоятельства, которые потребуют корректировки проектных решений. Поэтому важно, чтобы документация была гибкой и могла быть адаптирована к изменяющимся условиям.
В заключение, рабочая документация на стадии Р является ключевым элементом в проектировании систем газоснабжения. Она обеспечивает точность и соответствие проектных решений всем необходимым требованиям и стандартам. Правильная подготовка рабочей документации позволяет избежать ошибок и проблем на этапе реализации проекта, что в конечном итоге способствует успешному завершению работ.
Одним из важных аспектов рабочей документации является координация с другими проектами. Системы газоснабжения часто пересекаются с другими инженерными системами, такими как водоснабжение, канализация, электроснабжение и вентиляция. Поэтому необходимо обеспечить согласование проектных решений с другими проектами, чтобы избежать конфликтов и обеспечить эффективное функционирование всех систем.
Для этого на стадии разработки рабочей документации проводятся совещания и согласования с другими проектировщиками и специалистами. Это позволяет выявить возможные проблемы на ранних этапах и внести необходимые изменения в проект. Также важно учитывать требования и рекомендации служб, ответственных за эксплуатацию газовых систем, чтобы обеспечить безопасность и надежность работы.
Важным элементом рабочей документации является проверка и экспертиза. Перед началом реализации проекта документация должна пройти проверку на соответствие всем требованиям и стандартам. Это может включать в себя внутреннюю проверку в проектной организации, а также внешнюю экспертизу, проводимую специализированными органами. Проверка позволяет выявить возможные ошибки и недочеты, которые могут привести к проблемам в процессе реализации.
После завершения всех проверок и согласований рабочая документация должна быть оформлена и передана в эксплуатацию. Важно, чтобы все документы были правильно оформлены, подписаны и заверены. Это необходимо для того, чтобы избежать проблем с юридической стороны и обеспечить легитимность всех проектных решений.
На этапе реализации проекта рабочая документация служит основой для контроля за выполнением работ. Исполнители должны строго следовать указанным в документации требованиям и рекомендациям. В случае необходимости в процессе выполнения работ могут вноситься изменения в документацию, которые должны быть должным образом оформлены и согласованы.
Кроме того, рабочая документация должна включать в себя план мероприятий по охране труда и безопасности. Это особенно важно для систем газоснабжения, так как работа с газом требует соблюдения строгих мер безопасности. В документации должны быть указаны все необходимые меры предосторожности, а также инструкции по действиям в случае аварийных ситуаций.
Не менее важным является обучение персонала, который будет заниматься монтажом и эксплуатацией систем газоснабжения. Рабочая документация должна содержать информацию о необходимых квалификациях и навыках, а также рекомендации по обучению и повышению квалификации работников. Это поможет обеспечить безопасность и эффективность работы системы в дальнейшем.
В заключение, рабочая документация на стадии Р является неотъемлемой частью проектирования систем газоснабжения. Она обеспечивает четкость и последовательность в реализации проекта, а также способствует соблюдению всех норм и стандартов. Правильная подготовка и оформление рабочей документации позволяют избежать множества проблем и обеспечить успешное завершение проекта.
Технологические решения
Рабочая документация на стадии Р (рабочая документация) является важным этапом в процессе проектирования и строительства. Она включает в себя все необходимые чертежи, спецификации и расчеты, которые обеспечивают реализацию проектных решений на практике. В этом разделе мы рассмотрим ключевые технологические решения, которые применяются при разработке рабочей документации.
Одним из основных аспектов рабочей документации является разработка чертежей. Чертежи должны быть выполнены в соответствии с установленными стандартами и нормами, что обеспечивает их понятность и точность. Важно учитывать, что чертежи должны содержать все необходимые размеры, аннотации и обозначения, чтобы избежать недоразумений на этапе строительства.
Для создания чертежей часто используются специализированные программные решения, такие как AutoCAD, Revit и другие CAD-системы. Эти программы позволяют не только создавать точные и детализированные чертежи, но и осуществлять автоматизированные расчеты, что значительно ускоряет процесс проектирования.
Кроме чертежей, в рабочую документацию также входят спецификации, которые содержат информацию о материалах, оборудовании и конструкциях, используемых в проекте. Спецификации должны быть максимально подробными и включать в себя данные о производителях, характеристиках и количестве необходимых материалов. Это позволяет избежать ошибок при закупке и обеспечивает соответствие проекту.
Еще одним важным элементом рабочей документации являются расчеты. Они могут включать в себя статические и динамические расчеты, а также расчеты по теплотехнике, электроснабжению и другим инженерным системам. Все расчеты должны быть выполнены в соответствии с действующими нормами и правилами, а также проверены на соответствие проектным требованиям.
В процессе разработки рабочей документации также необходимо учитывать технологические процессы, которые будут применяться на строительной площадке. Это включает в себя выбор методов и технологий строительства, а также организацию рабочих процессов. Например, при проектировании зданий важно учитывать, как будет осуществляться монтаж конструкций, какие инструменты и оборудование будут использоваться, а также как будет организовано взаимодействие между различными подрядчиками.
Для обеспечения качества и безопасности строительства необходимо также разрабатывать технологические карты, которые описывают последовательность выполнения работ, используемые материалы и оборудование, а также меры по охране труда и технике безопасности. Технологические карты помогают избежать ошибок и несчастных случаев на строительной площадке, а также обеспечивают эффективное использование ресурсов.
Важным аспектом является также координация проектных решений между различными разделами рабочей документации. Это позволяет избежать конфликтов и несоответствий, которые могут возникнуть при реализации проекта. Для этого часто проводятся совещания и согласования между проектировщиками, инженерами и подрядчиками.
Наконец, стоит отметить, что рабочая документация на стадии Р должна быть доступной и понятной для всех участников проекта. Это включает в себя не только проектировщиков и строителей, но и заказчиков, которые должны иметь возможность легко ориентироваться в документации и понимать основные проектные решения.
При разработке рабочей документации также важно учитывать нормативные требования и стандарты, действующие в конкретной стране или регионе. Это может включать в себя строительные нормы и правила (СНиП), а также международные стандарты, такие как ISO. Соблюдение этих требований не только обеспечивает законность проекта, но и гарантирует его безопасность и долговечность.
Важным аспектом является интеграция BIM-технологий (Building Information Modeling) в процесс разработки рабочей документации. BIM позволяет создавать трехмерные модели зданий, которые содержат всю необходимую информацию о проекте. Это значительно упрощает процесс координации между различными участниками проекта, а также позволяет проводить более точные расчеты и анализы. Использование BIM-технологий способствует повышению качества проектирования и снижению рисков, связанных с ошибками в документации.
Кроме того, необходимо уделять внимание управлению изменениями в проекте. В процессе разработки рабочей документации могут возникать изменения, связанные с требованиями заказчика, изменениями в законодательстве или новыми технологическими решениями. Важно иметь четкую процедуру для внесения изменений в документацию, чтобы избежать путаницы и обеспечить актуальность всех данных.
Также стоит отметить, что тестирование и проверка рабочей документации являются неотъемлемой частью процесса проектирования. Перед передачей документации на строительство необходимо провести ее детальную проверку на соответствие всем требованиям и стандартам. Это может включать в себя как внутренние проверки, так и внешние экспертизы, которые помогут выявить возможные ошибки и недочеты.
Важным элементом является обучение и подготовка персонала, который будет работать с рабочей документацией. Все участники проекта должны быть ознакомлены с основными принципами работы с документацией, а также с используемыми программными решениями. Это поможет избежать ошибок и повысить общую эффективность работы команды.
Не менее важным является документирование всех этапов разработки рабочей документации. Это включает в себя ведение протоколов совещаний, записей о внесенных изменениях и других важных моментов. Наличие такой документации позволяет отслеживать процесс разработки и обеспечивает прозрачность для всех участников проекта.
В заключение, рабочая документация на стадии Р является ключевым элементом успешного завершения строительного проекта. Она включает в себя множество аспектов, таких как чертежи, спецификации, расчеты и технологические карты, которые должны быть тщательно проработаны и согласованы. Применение современных технологий, соблюдение нормативных требований и эффективное управление изменениями способствуют созданию качественной и надежной документации, что, в свою очередь, обеспечивает успешную реализацию проектных решений на практике.
Проект организации строительства
Рабочая документация на стадии Р (рабочая документация) является важным этапом в процессе проектирования и строительства. Она включает в себя все необходимые чертежи, спецификации и расчеты, которые обеспечивают реализацию проектных решений на практике. На этой стадии проектировщики должны детализировать все аспекты проекта, чтобы обеспечить его успешное выполнение.
Основные элементы рабочей документации
- Чертежи - это графическое представление всех элементов проекта, включая планы, разрезы и фасады. Чертежи должны быть выполнены в соответствии с установленными стандартами и содержать все необходимые размеры и аннотации.
- Спецификации - это документы, которые содержат информацию о материалах, оборудовании и технологиях, которые будут использоваться в процессе строительства. Спецификации должны быть четкими и полными, чтобы избежать недоразумений на этапе реализации.
- Расчеты - это инженерные расчеты, которые подтверждают правильность проектных решений. Они могут включать в себя расчеты нагрузок, теплотехнические расчеты, а также расчеты по безопасности и устойчивости конструкций.
Процесс разработки рабочей документации
Разработка рабочей документации начинается с анализа проектных решений, которые были приняты на предыдущих стадиях проектирования. На этом этапе важно учитывать все замечания и рекомендации, которые были получены в ходе согласования проектной документации.
После этого проектировщики приступают к созданию чертежей. Каждый чертеж должен быть оформлен в соответствии с требованиями, установленными в нормативных документах. Важно, чтобы все элементы были четко обозначены, а размеры указаны с достаточной точностью.
Следующим шагом является составление спецификаций. В спецификациях необходимо указать не только наименования материалов, но и их характеристики, такие как прочность, устойчивость к воздействию внешней среды и другие важные параметры.
Координация между различными специалистами
На стадии разработки рабочей документации важно обеспечить координацию между различными специалистами, такими как архитекторы, инженеры-строители, электрики и сантехники. Это позволяет избежать конфликтов и несоответствий в проекте, которые могут возникнуть из-за недостаточной информации или недопонимания.
Для этого часто проводятся совместные совещания, на которых обсуждаются ключевые моменты проекта и принимаются решения по спорным вопросам. Также может быть полезно использовать программное обеспечение для совместной работы, которое позволяет всем участникам проекта видеть изменения в реальном времени.
Проверка и согласование рабочей документации
После завершения разработки рабочей документации необходимо провести ее проверку и согласование. Это включает в себя внутреннюю проверку документации командой проектировщиков, а также внешнюю проверку со стороны заказчика и контролирующих органов.
В процессе проверки могут быть выявлены ошибки или недочеты, которые необходимо исправить до начала строительства. Согласование документации также может потребовать дополнительных изменений, если заказчик или контролирующие органы имеют свои требования или пожелания.
Таким образом, рабочая документация на стадии Р является ключевым элементом успешного завершения строительного проекта. Она обеспечивает четкое понимание всех аспектов проекта и служит основой для его реализации.
Документация по безопасности
Одним из важнейших аспектов рабочей документации является раздел, посвященный безопасности. В этом разделе должны быть описаны все меры, которые будут предприняты для обеспечения безопасности на строительной площадке. Это включает в себя как общие правила безопасности, так и специфические меры, связанные с конкретными работами или материалами.
Документация по безопасности должна содержать:
- Оценку рисков - анализ потенциальных опасностей, которые могут возникнуть в процессе строительства, и меры по их минимизации.
- План действий в чрезвычайных ситуациях - инструкции по действиям в случае аварий или других непредвиденных ситуаций.
- Обучение персонала - программы обучения для рабочих, которые будут задействованы на строительной площадке, чтобы они знали, как правильно использовать оборудование и соблюдать правила безопасности.
Качество материалов и технологий
Рабочая документация также должна содержать информацию о качестве материалов и технологий, которые будут использоваться в строительстве. Это необходимо для обеспечения долговечности и надежности построенных объектов. В спецификациях должны быть указаны стандарты, которым должны соответствовать используемые материалы, а также методы их испытания.
Важно, чтобы все материалы имели соответствующие сертификаты качества и были проверены на соответствие проектным требованиям. Это поможет избежать проблем в будущем, связанных с использованием некачественных или неподходящих материалов.
Согласование с подрядчиками
После завершения разработки рабочей документации и ее согласования с заказчиком, необходимо провести согласование с подрядчиками, которые будут выполнять строительные работы. Это включает в себя обсуждение всех аспектов проекта, таких как сроки выполнения работ, стоимость и условия поставки материалов.
Подрядчики должны быть ознакомлены с рабочей документацией и иметь возможность задать вопросы по любым неясным моментам. Это поможет избежать недоразумений и обеспечит более гладкий процесс выполнения работ.
Контроль за выполнением работ
На этапе строительства важно обеспечить контроль за выполнением работ в соответствии с рабочей документацией. Это включает в себя регулярные проверки качества выполняемых работ, соответствия используемых материалов проектным требованиям и соблюдения сроков.
Контроль может осуществляться как внутренними специалистами, так и независимыми экспертами. Важно, чтобы все выявленные несоответствия были зафиксированы и устранены в кратчайшие сроки, чтобы избежать дальнейших проблем.
Заключение
Рабочая документация на стадии Р является основой для успешного выполнения строительного проекта. Она включает в себя все необходимые чертежи, спецификации, расчеты и документы по безопасности, которые обеспечивают реализацию проектных решений. Правильная разработка и согласование рабочей документации позволяют минимизировать риски и обеспечить высокое качество строительства.
Мероприятия по охране окружающей среды
Рабочая документация на стадии Р (рабочая документация) является важным этапом в проектировании мероприятий по охране окружающей среды. На этой стадии разрабатываются детализированные планы и схемы, которые обеспечивают реализацию экологических мероприятий в соответствии с действующими нормами и стандартами. Основная цель рабочей документации заключается в том, чтобы обеспечить минимизацию негативного воздействия на окружающую среду в процессе реализации проектируемых объектов.
В рамках рабочей документации на стадии Р разрабатываются следующие ключевые элементы:
- Экологические обоснования: Включают в себя анализ воздействия проектируемого объекта на окружающую среду, оценку рисков и предложенные меры по их минимизации.
- Технические решения: Описывают конкретные технологии и методы, которые будут использоваться для снижения негативного воздействия на природу, включая системы очистки, утилизации отходов и другие экологически безопасные технологии.
- План мероприятий: Содержит перечень мероприятий, направленных на охрану окружающей среды, включая сроки их выполнения и ответственных исполнителей.
- Мониторинг и контроль: Определяет методы и средства контроля за состоянием окружающей среды в процессе реализации проекта, а также после его завершения.
Каждый из этих элементов требует тщательной проработки и согласования с соответствующими государственными органами и экологическими службами. Важно, чтобы рабочая документация была основана на актуальных данных и исследованиях, что позволит избежать возможных экологических проблем в будущем.
При разработке рабочей документации на стадии Р необходимо учитывать следующие аспекты:
- Законодательные требования: Все мероприятия должны соответствовать действующему законодательству в области охраны окружающей среды, включая федеральные и региональные нормы.
- Экологические стандарты: Необходимо учитывать международные и национальные экологические стандарты, которые могут влиять на проект.
- Социальные аспекты: Важно учитывать мнение местного населения и заинтересованных сторон, что может повлиять на общественное восприятие проекта.
Рабочая документация на стадии Р также должна включать в себя разделы, посвященные оценке воздействия на окружающую среду (ОВОС). Этот процесс включает в себя:
- Сбор данных: Необходимость в сборе и анализе данных о состоянии окружающей среды в районе проектирования.
- Оценка воздействия: Анализ потенциальных негативных последствий для экосистем, здоровья человека и природных ресурсов.
- Разработка рекомендаций: Предложение мер по минимизации негативного воздействия и улучшению экологической ситуации.
Таким образом, рабочая документация на стадии Р является основой для успешной реализации мероприятий по охране окружающей среды и требует комплексного подхода, включающего в себя как технические, так и экологические аспекты. Важно, чтобы все разработанные решения были направлены на устойчивое развитие и сохранение природных ресурсов для будущих поколений.
Важным аспектом рабочей документации на стадии Р является интеграция принципов устойчивого развития. Это подразумевает не только соблюдение экологических норм, но и создание условий для социального и экономического благополучия. В рамках этого подхода необходимо учитывать следующие ключевые моменты:
- Энергоэффективность: Проектируемые объекты должны быть спроектированы с учетом использования возобновляемых источников энергии и технологий, способствующих снижению потребления ресурсов.
- Устойчивое управление отходами: Важно разработать систему, которая обеспечит минимизацию образования отходов и их эффективную утилизацию, включая переработку и повторное использование материалов.
- Сохранение биоразнообразия: Необходимо учитывать влияние проекта на местные экосистемы и виды, находящиеся под угрозой исчезновения, и разрабатывать меры по их защите.
Кроме того, рабочая документация должна включать в себя разделы, посвященные оценке и управлению рисками. Это включает в себя:
- Идентификация рисков: Определение потенциальных экологических и социальных рисков, связанных с реализацией проекта.
- Оценка вероятности и последствий: Анализ вероятности возникновения рисков и их возможных последствий для окружающей среды и общества.
- План управления рисками: Разработка мер по предотвращению и минимизации рисков, включая планы действий в чрезвычайных ситуациях.
Рабочая документация также должна содержать разделы, посвященные взаимодействию с заинтересованными сторонами. Это включает в себя:
- Консультации с общественностью: Проведение открытых встреч и обсуждений с местными жителями и организациями для получения их мнения и предложений.
- Информирование: Обеспечение прозрачности процесса проектирования и реализации мероприятий, включая регулярное информирование о ходе работ и их воздействии на окружающую среду.
- Обратная связь: Создание механизмов для получения обратной связи от заинтересованных сторон и учета их мнений в процессе реализации проекта.
Не менее важным является раздел, посвященный мониторингу и оценке эффективности мероприятий по охране окружающей среды. Это включает в себя:
- План мониторинга: Определение параметров, которые будут отслеживаться, и методов их измерения.
- Оценка результатов: Регулярный анализ данных мониторинга для оценки эффективности принятых мер и их воздействия на окружающую среду.
- Корректирующие действия: Разработка рекомендаций по корректировке мероприятий в случае выявления негативных последствий.
Таким образом, рабочая документация на стадии Р является комплексным документом, который охватывает все аспекты проектирования мероприятий по охране окружающей среды. Она должна быть основана на принципах устойчивого развития, учитывать мнения заинтересованных сторон и обеспечивать эффективный мониторинг и управление рисками. Это позволит не только минимизировать негативное воздействие на природу, но и создать условия для гармоничного сосуществования человека и окружающей среды.
Мероприятия по обеспечению пожарной безопасности
Рабочая документация на стадии Р (рабочая документация) является важным этапом в проектировании систем обеспечения пожарной безопасности. На этой стадии разрабатываются детализированные чертежи, схемы и спецификации, которые необходимы для реализации проектных решений, направленных на предотвращение и ликвидацию пожаров.
Основной задачей рабочей документации является создание четкого и понятного руководства для строителей и монтажников, которое позволит им правильно установить и настроить системы пожарной безопасности. Важно, чтобы все элементы проектирования были согласованы с действующими нормами и правилами, а также с требованиями заказчика.
На стадии Р разрабатываются следующие ключевые разделы рабочей документации:
- Чертежи систем противопожарной защиты: Включают в себя схемы расположения огнетушителей, систем автоматического пожаротушения, сигнализации и эвакуации.
- Спецификации оборудования: Описывают технические характеристики и параметры используемого оборудования, включая его количество и место установки.
- Технические условия: Указывают на требования к материалам и конструкциям, которые должны быть использованы для обеспечения пожарной безопасности.
- Планы эвакуации: Разрабатываются для каждого этажа здания и содержат информацию о путях эвакуации, расположении выходов и местонахождении средств пожаротушения.
Каждый из этих разделов требует тщательной проработки и согласования с различными инстанциями, включая пожарный надзор и другие контролирующие органы. Важно учитывать не только действующие нормативные документы, но и специфику самого объекта, его назначение и особенности эксплуатации.
При разработке рабочей документации на стадии Р необходимо также учитывать следующие аспекты:
- Анализ рисков: Оценка потенциальных угроз и уязвимостей, которые могут возникнуть в процессе эксплуатации объекта.
- Согласование с проектировщиками: Взаимодействие с другими специалистами, работающими над проектом, для обеспечения комплексного подхода к проектированию.
- Учет современных технологий: Применение новейших решений и технологий в области пожарной безопасности, которые могут повысить эффективность систем.
Рабочая документация должна быть оформлена в соответствии с установленными стандартами и требованиями, что включает в себя правильное оформление чертежей, использование стандартных обозначений и символов, а также наличие всех необходимых пояснительных записок и расчетов.
Кроме того, на стадии Р важно предусмотреть возможность внесения изменений и дополнений в проект, так как в процессе реализации могут возникнуть непредвиденные обстоятельства, требующие корректировки проектных решений. Это может касаться как изменения в требованиях заказчика, так и новых норм и правил, которые могут вступить в силу в процессе строительства.
Таким образом, рабочая документация на стадии Р является основой для успешной реализации мероприятий по обеспечению пожарной безопасности. Она должна быть тщательно проработана и согласована, чтобы гарантировать безопасность людей и имущества в случае возникновения пожара.
Важным аспектом разработки рабочей документации является соблюдение всех норм и стандартов, касающихся проектирования систем пожарной безопасности. Это включает в себя как федеральные, так и региональные требования, которые могут варьироваться в зависимости от типа здания, его назначения и расположения. Например, для общественных зданий могут быть установлены более строгие требования к системам эвакуации и сигнализации, чем для жилых объектов.
При проектировании систем противопожарной защиты необходимо учитывать:
- Классификация зданий: Разные типы зданий (жилые, офисные, производственные) имеют свои особенности, которые влияют на проектирование систем пожарной безопасности.
- Пожарные нагрузки: Оценка материалов и конструкций, которые могут способствовать распространению огня, а также определение зон с повышенной пожарной опасностью.
- Эвакуационные пути: Проектирование должно предусматривать достаточное количество выходов и путей эвакуации, которые должны быть свободны от препятствий и хорошо обозначены.
Кроме того, рабочая документация должна включать в себя расчеты, подтверждающие эффективность проектируемых систем. Это может включать:
- Расчеты по нагрузкам: Определение необходимого количества огнетушителей и других средств пожаротушения в зависимости от площади и назначения помещений.
- Расчеты по времени эвакуации: Оценка времени, необходимого для безопасной эвакуации людей из здания в случае пожара.
- Системы автоматического пожаротушения: Проектирование и расчет систем, таких как спринклерные установки, которые могут автоматически реагировать на возникновение пожара.
Не менее важным является выбор оборудования и материалов, которые будут использоваться в системах пожарной безопасности. Все компоненты должны соответствовать установленным стандартам и иметь необходимые сертификаты. Это касается как самих систем, так и материалов, из которых они изготовлены. Например, кабели и проводка должны быть огнестойкими, а двери и перегородки – иметь соответствующий класс огнестойкости.
Рабочая документация также должна содержать инструкции по эксплуатации и обслуживанию систем пожарной безопасности. Это включает в себя:
- Регулярные проверки: Установление графика проверок и технического обслуживания систем, чтобы гарантировать их работоспособность в случае необходимости.
- Обучение персонала: Проведение инструктажей для сотрудников по правилам поведения в случае пожара и использованию средств пожаротушения.
- Документация: Ведение журналов учета проверок и обслуживания, что поможет в случае проверки со стороны контролирующих органов.
Таким образом, рабочая документация на стадии Р является неотъемлемой частью проектирования систем пожарной безопасности. Она обеспечивает не только соответствие всем требованиям и стандартам, но и безопасность людей и имущества, что является главной целью всех мероприятий по обеспечению пожарной безопасности.
Требования к обеспечению безопасной эксплуатации объектов капитального строительства
Рабочая документация на стадии Р (рабочая документация) является важным этапом в процессе проектирования и строительства объектов капитального строительства. Она включает в себя все необходимые чертежи, спецификации и расчеты, которые обеспечивают реализацию проектных решений на практике. Важность этой стадии заключается в том, что именно на ней формируются все детали, которые будут использованы в процессе строительства, а также обеспечивается соблюдение требований безопасности.
На стадии Р рабочая документация должна соответствовать ряду требований, которые направлены на обеспечение безопасной эксплуатации объектов капитального строительства. Эти требования включают в себя:
- Соответствие проектным решениям: Все элементы рабочей документации должны соответствовать проектным решениям, утвержденным на стадии проектирования. Это включает в себя архитектурные, конструктивные и инженерные решения.
- Соблюдение норм и стандартов: Рабочая документация должна соответствовать действующим строительным нормам и правилам, а также стандартам безопасности. Это касается как материалов, так и технологий, используемых в процессе строительства.
- Учет специфики объекта: При разработке рабочей документации необходимо учитывать особенности конкретного объекта, такие как его назначение, местоположение, климатические условия и другие факторы, которые могут повлиять на безопасность эксплуатации.
- Детализация проектных решений: Рабочая документация должна содержать детализированные чертежи и схемы, которые позволяют точно воспроизвести проектные решения на строительной площадке. Это включает в себя планы, разрезы, фасады и узлы.
- Спецификации и расчеты: В документации должны быть представлены спецификации на используемые материалы и оборудование, а также расчеты, подтверждающие их соответствие требованиям безопасности и надежности.
Кроме того, рабочая документация должна быть оформлена в соответствии с установленными требованиями к документации, что включает в себя:
- Стандарты оформления: Все документы должны быть оформлены в соответствии с установленными стандартами, включая шрифты, размеры, обозначения и другие элементы оформления.
- Нумерация и маркировка: Каждый чертеж и документ должны иметь уникальную нумерацию и маркировку, что позволяет легко идентифицировать их и отслеживать изменения.
- Согласование и утверждение: Рабочая документация должна быть согласована с заинтересованными сторонами, включая заказчика, подрядчика и контролирующие органы, и утверждена в установленном порядке.
Важно отметить, что на стадии Р также осуществляется контроль за качеством проектных решений и их соответствием требованиям безопасности. Это может включать в себя:
- Проверка расчетов: Все расчеты, представленные в рабочей документации, должны быть проверены на соответствие действующим нормам и стандартам.
- Анализ рисков: Необходимо провести анализ возможных рисков, связанных с эксплуатацией объекта, и предусмотреть меры по их минимизации.
- Оценка воздействия на окружающую среду: Рабочая документация должна учитывать возможное воздействие объекта на окружающую среду и предусматривать меры по его снижению.
На стадии рабочей документации также важно учитывать требования к обеспечению безопасности труда на строительной площадке. Это включает в себя:
- Разработка инструкций по охране труда: В рабочей документации должны быть предусмотрены инструкции, касающиеся безопасных методов работы, а также правила поведения на строительной площадке.
- Обеспечение безопасных условий труда: Необходимо предусмотреть меры по обеспечению безопасных условий труда для рабочих, включая организацию безопасных проходов, установку ограждений и знаков безопасности.
- Обучение персонала: Рабочая документация должна содержать информацию о необходимости обучения работников безопасным методам работы и правилам охраны труда.
Кроме того, важным аспектом является взаимодействие с контролирующими органами. Рабочая документация должна быть подготовлена таким образом, чтобы обеспечить легкость в проведении проверок и инспекций. Это включает в себя:
- Подготовка отчетности: Необходимо предусмотреть возможность подготовки отчетов о ходе выполнения работ и соблюдении требований безопасности.
- Документирование изменений: Все изменения в рабочей документации должны быть документированы и согласованы с соответствующими органами.
- Соблюдение сроков: Важно соблюдать установленные сроки для предоставления документации и отчетов, что позволяет избежать штрафов и других санкций.
Рабочая документация на стадии Р также должна учитывать требования к эксплуатации объектов после завершения строительства. Это включает в себя:
- Разработка эксплуатационной документации: Необходимо подготовить документацию, которая будет использоваться в процессе эксплуатации объекта, включая инструкции по обслуживанию и ремонту.
- Планирование мероприятий по техническому обслуживанию: Важно предусмотреть графики и мероприятия по техническому обслуживанию, которые помогут поддерживать объект в исправном состоянии.
- Обеспечение доступа к информации: Рабочая документация должна содержать информацию о том, как получить доступ к необходимым данным и инструкциям в процессе эксплуатации.
Таким образом, рабочая документация на стадии Р является ключевым элементом, обеспечивающим безопасность эксплуатации объектов капитального строительства. Она должна быть тщательно разработана с учетом всех требований и норм, что позволит избежать потенциальных рисков и обеспечить надежность и безопасность объектов в процессе их эксплуатации.
В заключение, важно отметить, что качественная рабочая документация не только способствует успешному строительству, но и обеспечивает долгосрочную безопасность и эффективность эксплуатации объектов капитального строительства. Поэтому к ее разработке следует подходить с максимальной ответственностью и вниманием к деталям.
Мероприятия по обеспечению доступа инвалидов к объекту капитального строительства
Обеспечение доступа инвалидов к объектам капитального строительства является важной задачей, которая требует внимательного подхода на всех этапах проектирования и строительства. На стадии рабочей документации (стадия Р) необходимо детально проработать все аспекты, касающиеся доступности, чтобы гарантировать, что проект будет соответствовать современным стандартам и требованиям.
На этом этапе разрабатываются конкретные решения, которые будут реализованы в ходе строительства. Важно учитывать не только архитектурные и инженерные аспекты, но и социальные, чтобы создать комфортную среду для людей с ограниченными возможностями. Основные направления работы на стадии Р включают:
- Анализ существующих норм и стандартов. На стадии рабочей документации необходимо тщательно изучить действующие нормативные документы, касающиеся доступности для инвалидов. Это включает в себя как федеральные, так и региональные требования, а также международные стандарты.
- Разработка проектных решений. На основе анализа норм разрабатываются конкретные проектные решения, которые обеспечивают доступность. Это может включать в себя проектирование пандусов, лифтов, специальных туалетных комнат и других элементов, необходимых для комфортного передвижения.
- Учет особенностей пользователей. Важно учитывать различные категории инвалидов, включая людей с нарушениями слуха, зрения и опорно-двигательного аппарата. Каждая категория имеет свои специфические потребности, которые должны быть учтены в проекте.
- Создание доступной среды. Проект должен предусматривать не только доступ к зданию, но и создание комфортной среды внутри. Это включает в себя навигацию, освещение, тактильные элементы и другие аспекты, которые помогут инвалидам ориентироваться в пространстве.
Каждое из этих направлений требует детального проработки и согласования с заинтересованными сторонами, включая представителей общественных организаций инвалидов. Важно, чтобы проектировщики и строители работали в тесном сотрудничестве с этими организациями, чтобы учесть все нюансы и потребности конечных пользователей.
На стадии Р также осуществляется подготовка необходимых чертежей и спецификаций, которые будут использоваться в процессе строительства. Эти документы должны содержать четкие указания по реализации всех проектных решений, касающихся доступности. Важно, чтобы все элементы были согласованы и соответствовали требованиям безопасности.
Кроме того, на стадии рабочей документации необходимо предусмотреть возможность внесения изменений в проект в случае выявления недостатков или новых требований. Это позволит оперативно реагировать на изменения и обеспечивать высокое качество выполнения работ.
Важным аспектом является также обучение персонала, который будет работать с инвалидами. На стадии Р следует разработать программы обучения и инструктажей для сотрудников, чтобы они могли эффективно взаимодействовать с людьми с ограниченными возможностями и оказывать им необходимую помощь.
Таким образом, стадия рабочей документации является ключевым этапом в обеспечении доступа инвалидов к объектам капитального строительства. Внимательное и комплексное подход к проектированию на этом этапе позволит создать доступную и комфортную среду для всех пользователей.
На стадии рабочей документации также важно учитывать вопросы, связанные с финансированием и ресурсами, необходимыми для реализации проектных решений. Это включает в себя оценку стоимости работ, материалов и оборудования, а также возможные источники финансирования, такие как государственные программы, гранты или частные инвестиции. Прозрачность в вопросах финансирования поможет избежать задержек и недоразумений в процессе строительства.
Кроме того, необходимо разработать план контроля за выполнением проектных решений, касающихся доступности. Это может включать в себя регулярные проверки на соответствие строительных работ проектной документации, а также оценку качества выполненных работ. Важно, чтобы контроль осуществлялся как на этапе строительства, так и после завершения работ, чтобы гарантировать долговечность и функциональность всех элементов, обеспечивающих доступность.
Важным аспектом является также взаимодействие с местными органами власти и общественными организациями. На стадии Р необходимо наладить диалог с этими структурами, чтобы учесть их мнение и рекомендации. Это поможет не только улучшить проект, но и повысить его общественную значимость, что может способствовать привлечению дополнительных ресурсов и поддержки.
Не менее важным является создание системы обратной связи с пользователями. После завершения строительства необходимо организовать механизмы, позволяющие инвалидам и их представителям сообщать о проблемах, с которыми они сталкиваются при использовании объекта. Это может быть реализовано через специальные горячие линии, онлайн-платформы или регулярные встречи с представителями общественных организаций. Обратная связь поможет выявить недостатки и внести необходимые изменения в эксплуатацию объекта.
Также стоит обратить внимание на необходимость создания информационных материалов, которые будут доступны для пользователей. Это могут быть буклеты, схемы, навигационные указатели и другие элементы, которые помогут инвалидам ориентироваться в пространстве. Информация должна быть представлена в доступной форме, включая использование шрифта Брайля, аудиогидов и других средств, способствующих восприятию информации.
На стадии рабочей документации также следует предусмотреть возможность адаптации объекта в будущем. Это может быть связано с изменением законодательства, появлением новых технологий или изменением потребностей пользователей. Гибкость проектных решений позволит обеспечить долгосрочную доступность объекта и его соответствие современным требованиям.
В заключение, стадия рабочей документации является критически важным этапом в обеспечении доступа инвалидов к объектам капитального строительства. Комплексный подход, включающий анализ норм, разработку проектных решений, взаимодействие с заинтересованными сторонами и создание системы контроля, позволит создать доступную и комфортную среду для всех пользователей. Успешная реализация этих мероприятий не только улучшит качество жизни людей с ограниченными возможностями, но и станет важным шагом к созданию инклюзивного общества.
Смета на строительство, реконструкцию, капитальный ремонт, снос объекта капитального строительства
Рабочая документация на стадии Р (рабочая документация) является важным этапом в процессе проектирования и строительства объектов капитального строительства. Она включает в себя все необходимые чертежи, спецификации и расчеты, которые обеспечивают реализацию проектных решений, разработанных на предыдущих стадиях проектирования. На этой стадии происходит детальная проработка всех аспектов проекта, что позволяет избежать ошибок и недоразумений в процессе строительства.
Основной целью рабочей документации является создание полного и точного набора документов, который будет служить основой для выполнения строительных работ. Это включает в себя не только архитектурные и конструктивные решения, но и инженерные системы, такие как водоснабжение, канализация, отопление, вентиляция и электроснабжение.
Рабочая документация должна соответствовать действующим строительным нормам и правилам, а также учитывать требования заказчика и особенности конкретного объекта. Важно, чтобы все элементы документации были согласованы между собой и не противоречили друг другу.
На стадии Р разрабатываются следующие основные разделы рабочей документации:
- Архитектурные чертежи: включают планы этажей, фасады, разрезы и детали, которые показывают внешний вид и планировку здания.
- Конструктивные решения: содержат расчеты и чертежи конструкций, таких как фундаменты, стены, перекрытия и кровли.
- Инженерные системы: описывают проектирование систем водоснабжения, канализации, отопления, вентиляции и электроснабжения.
- Спецификации: содержат перечень материалов, изделий и оборудования, необходимых для строительства, с указанием их характеристик и количества.
- Сметная документация: включает в себя сметы на строительство, которые позволяют оценить стоимость проекта и обеспечить его финансирование.
Каждый из этих разделов требует тщательной проработки и согласования с другими участниками проекта, включая архитекторов, инженеров и строителей. Важно, чтобы рабочая документация была понятной и доступной для всех, кто будет участвовать в строительстве.
На стадии Р также происходит подготовка документации для получения разрешений на строительство. Это может включать в себя подготовку дополнительных материалов, таких как экологические заключения, согласования с местными органами власти и другие документы, необходимые для легализации строительных работ.
Кроме того, рабочая документация должна учитывать возможные изменения в проекте, которые могут возникнуть в процессе строительства. Поэтому важно, чтобы все изменения были документированы и согласованы с заказчиком и другими заинтересованными сторонами.
В процессе разработки рабочей документации также осуществляется контроль за качеством проектных решений. Это включает в себя проверку расчетов, соответствия проектных решений действующим нормам и стандартам, а также оценку возможных рисков, связанных с реализацией проекта.
Рабочая документация на стадии Р является основой для успешного завершения строительного проекта. Она обеспечивает четкое понимание всех этапов и процессов, необходимых для реализации проектных решений, и служит гарантией того, что строительство будет выполнено в соответствии с установленными требованиями и стандартами.
Одним из ключевых аспектов рабочей документации является ее соответствие требованиям заказчика. На стадии Р важно учитывать все пожелания и замечания, которые могут возникнуть у заказчика в процессе проектирования. Это может касаться как функциональных характеристик объекта, так и его эстетических качеств. Поэтому взаимодействие с заказчиком на этом этапе является критически важным.
Рабочая документация также должна включать в себя графики выполнения работ и планирование строительного процесса. Это позволяет не только организовать работу строительной бригады, но и контролировать сроки выполнения проекта. Графики могут включать в себя этапы строительства, сроки поставки материалов и оборудования, а также планирование работ по монтажу инженерных систем.
Важным элементом рабочей документации является также раздел, посвященный технике безопасности. Он должен содержать инструкции и рекомендации по безопасному выполнению строительных работ, а также меры по предотвращению несчастных случаев на строительной площадке. Это особенно актуально в условиях сложных и опасных работ, таких как высотные строительные операции или работы с тяжелым оборудованием.
Не менее важным является раздел, посвященный охране окружающей среды. В современных условиях проектирование и строительство должны учитывать экологические аспекты, такие как минимизация негативного воздействия на природу, утилизация отходов и использование экологически чистых материалов. Рабочая документация должна содержать рекомендации по соблюдению экологических норм и стандартов.
При разработке рабочей документации также необходимо учитывать возможные изменения в законодательстве и строительных нормах. Это требует постоянного мониторинга актуальных требований и стандартов, что может повлиять на проектные решения. Поэтому важно, чтобы проектировщики были в курсе последних изменений и могли оперативно вносить коррективы в документацию.
После завершения разработки рабочей документации она подлежит согласованию с различными инстанциями, включая архитектурные и строительные органы, а также с контролирующими организациями. Это необходимо для получения разрешений на строительство и подтверждения соответствия проектных решений действующим нормам и стандартам.
В процессе согласования могут возникать дополнительные требования и замечания, которые также должны быть учтены в рабочей документации. Это может потребовать внесения изменений в проектные решения, что, в свою очередь, может повлиять на сроки и стоимость строительства.
После получения всех необходимых согласований рабочая документация передается на строительную площадку. Важно, чтобы все участники строительного процесса имели доступ к актуальной версии документации, что позволит избежать недоразумений и ошибок в процессе выполнения работ.
Рабочая документация на стадии Р является основой для успешного завершения строительного проекта. Она обеспечивает четкое понимание всех этапов и процессов, необходимых для реализации проектных решений, и служит гарантией того, что строительство будет выполнено в соответствии с установленными требованиями и стандартами. В конечном итоге, качественно подготовленная рабочая документация способствует снижению рисков, связанных с реализацией проекта, и повышает вероятность его успешного завершения в установленные сроки и в рамках бюджета.


















