Проектный институт нижний новгород
Проектный институт нижний новгород
В современном строительстве проектирование играет ключевую роль, обеспечивая качественное и безопасное возведение объектов. В этой статье мы рассмотрим, как строительное проектирование ведется согласно 87 постановлению правительства, а также его влияние на деятельность проектных институтов, в частности, на примере Проектного института Нижний Новгород.
Мы проанализируем основные аспекты, касающиеся проектирования, включая:
- Значение 87 постановления правительства для строительной отрасли;
- Роль проектных институтов в реализации строительных проектов;
- Примеры успешных проектов, выполненных Проектным институтом Нижний Новгород;
- Перспективы и вызовы, стоящие перед проектными институтами в условиях современных требований.
Данная статья будет полезна как специалистам в области строительства, так и всем, кто интересуется вопросами проектирования и реализации строительных проектов в России.
Согласно 87 ПП (87 постановление правительства)
Проектный институт в Нижнем Новгороде играет важную роль в реализации различных строительных и инфраструктурных проектов. В соответствии с 87 постановлением правительства, проектные институты обязаны следовать определённым стандартам и требованиям, что обеспечивает высокое качество проектирования и строительства.
Согласно 87 ПП, проектные институты должны учитывать множество факторов при разработке проектной документации. Это включает в себя не только технические аспекты, но и экологические, экономические и социальные. Важно, чтобы проектные решения были не только эффективными, но и безопасными для окружающей среды и населения.
Одним из ключевых аспектов работы проектного института является соблюдение норм и стандартов, установленных законодательством. Это касается как проектирования, так и строительства. Проектные институты должны иметь в своём штате квалифицированных специалистов, которые способны разрабатывать проекты, соответствующие современным требованиям и стандартам.
В рамках 87 ПП проектные институты обязаны проводить экспертизу проектной документации. Это позволяет выявить возможные недостатки и ошибки на ранних стадиях, что в свою очередь снижает риски и затраты на последующих этапах реализации проекта. Экспертиза включает в себя проверку соответствия проектной документации действующим нормам и правилам, а также оценку экономической целесообразности предложенных решений.
Кроме того, проектные институты должны активно взаимодействовать с заказчиками и другими заинтересованными сторонами. Это позволяет учитывать их пожелания и требования, а также обеспечивать прозрачность и открытость процесса проектирования. Важно, чтобы все участники проекта были вовлечены в процесс на всех его этапах, начиная от разработки концепции и заканчивая реализацией.
В Нижнем Новгороде проектные институты также активно занимаются научной и исследовательской деятельностью. Это позволяет им быть в курсе последних тенденций и новшеств в области проектирования и строительства. Внедрение новых технологий и методов работы способствует повышению качества проектной документации и снижению сроков её разработки.
Согласно 87 ПП, проектные институты должны также учитывать требования по охране труда и технике безопасности. Это особенно важно в условиях современного строительства, где риски могут быть значительными. Проектные решения должны обеспечивать безопасность как работников, так и пользователей объектов, которые будут построены.
Важным аспектом работы проектного института является также работа с документацией. Все этапы проектирования должны быть документально оформлены, что позволяет обеспечить контроль за выполнением всех требований и стандартов. Это включает в себя как внутреннюю документацию, так и отчёты для заказчиков и контролирующих органов.
Таким образом, проектный институт в Нижнем Новгороде, действуя в соответствии с 87 постановлением правительства, выполняет множество функций, направленных на обеспечение качества и безопасности проектирования и строительства. Это требует от специалистов высокой квалификации, ответственности и готовности к постоянному обучению и совершенствованию.
Проектные институты в Нижнем Новгороде также активно участвуют в разработке градостроительной документации. Это включает в себя создание генеральных планов, проектирование жилых и коммерческих объектов, а также инфраструктурных решений, таких как дороги, мосты и системы водоснабжения. Важно, чтобы все эти проекты были интегрированы в единую градостроительную концепцию, что позволяет избежать хаотичного развития территории и обеспечивает гармоничное сосуществование различных объектов.
В рамках 87 ПП проектные институты обязаны учитывать мнения и интересы местного населения. Это может включать в себя проведение общественных слушаний, где жители могут высказать свои предложения и замечания по проектам. Такой подход способствует повышению доверия к проектным институтам и улучшает качество принимаемых решений, так как учитываются реальные потребности и ожидания граждан.
Кроме того, проектные институты должны активно использовать современные технологии в своей работе. Это включает в себя применение программного обеспечения для проектирования, моделирования и визуализации объектов. Использование BIM-технологий (информационного моделирования зданий) позволяет значительно повысить точность проектирования, а также упростить процесс внесения изменений и корректировок в проектную документацию.
Важным аспектом является также работа с подрядчиками и субподрядчиками. Проектные институты должны тщательно выбирать партнёров, с которыми будут работать, так как от этого зависит качество выполнения строительных работ. В рамках 87 ПП предусмотрены требования к квалификации подрядчиков, что позволяет минимизировать риски и обеспечить высокое качество строительства.
Проектные институты также должны следить за изменениями в законодательстве и нормативных актах, касающихся проектирования и строительства. Это требует постоянного обучения и повышения квалификации сотрудников, что является важным условием для успешной работы института. Регулярные семинары, тренинги и курсы повышения квалификации помогают специалистам оставаться в курсе последних изменений и тенденций в отрасли.
Важным направлением работы проектных институтов является также внедрение принципов устойчивого развития. Это включает в себя использование экологически чистых материалов, энергоэффективных технологий и решений, которые минимизируют негативное воздействие на окружающую среду. Проектные институты должны разрабатывать проекты, которые будут не только экономически целесообразными, но и экологически безопасными.
В заключение, проектный институт в Нижнем Новгороде, действуя в соответствии с 87 постановлением правительства, выполняет множество функций, направленных на обеспечение качества и безопасности проектирования и строительства. Это требует от специалистов высокой квалификации, ответственности и готовности к постоянному обучению и совершенствованию. Важно, чтобы проектные институты продолжали развиваться и адаптироваться к современным вызовам, обеспечивая тем самым устойчивое и гармоничное развитие городской инфраструктуры.
Пояснительная записка
Проектный институт в Нижнем Новгороде представляет собой важный элемент архитектурного и строительного процесса в регионе. Он играет ключевую роль в разработке проектной документации, обеспечивая высокое качество и соответствие современным стандартам. Институт занимается проектированием различных объектов, включая жилые и коммерческие здания, инфраструктурные объекты, а также специальные сооружения.
Одной из основных задач проектного института является создание проектной документации, которая включает в себя архитектурные, конструктивные, инженерные и сметные решения. Это позволяет обеспечить комплексный подход к проектированию и учесть все аспекты, начиная от эстетики и заканчивая функциональностью и безопасностью объектов.
Проектный институт Нижнего Новгорода активно сотрудничает с различными государственными и частными организациями, что позволяет ему быть в курсе последних тенденций и требований в области проектирования. Это сотрудничество включает в себя как участие в конкурсах на проектирование, так и выполнение заказов на разработку индивидуальных проектов.
Важным аспектом работы института является использование современных технологий и программного обеспечения для проектирования. Это позволяет значительно ускорить процесс разработки и повысить точность проектных решений. Например, применение BIM-технологий (информационного моделирования зданий) позволяет создавать трехмерные модели объектов, что облегчает визуализацию и анализ проектных решений.
Кроме того, проектный институт активно занимается научной и исследовательской деятельностью. Это включает в себя разработку новых методов проектирования, изучение современных материалов и технологий, а также участие в научных конференциях и семинарах. Такие инициативы способствуют повышению квалификации сотрудников и внедрению инновационных решений в практику проектирования.
Важным направлением работы проектного института является также экологическое проектирование. В условиях современного мира, где вопросы экологии становятся все более актуальными, институт уделяет особое внимание разработке проектов, которые минимизируют негативное воздействие на окружающую среду. Это включает в себя использование экологически чистых материалов, внедрение энергосберегающих технологий и проектирование объектов с учетом природных условий.
Проектный институт Нижнего Новгорода также активно участвует в реализации социальных проектов, направленных на улучшение качества жизни населения. Это может включать в себя проектирование общественных пространств, детских площадок, спортивных объектов и других социальных инфраструктур. Такие проекты способствуют созданию комфортной городской среды и повышению уровня жизни граждан.
В заключение, проектный институт Нижнего Новгорода является важным игроком на рынке проектирования, обеспечивая высокое качество и инновационные решения в области архитектуры и строительства. Его деятельность охватывает широкий спектр направлений, что позволяет ему успешно справляться с вызовами современного проектирования и вносить значительный вклад в развитие региона.
Одним из ключевых аспектов работы проектного института является его кадровый потенциал. В институте трудятся высококвалифицированные специалисты, обладающие опытом и знаниями в различных областях проектирования. Это архитекторы, инженеры, конструкторы, а также специалисты по сметному делу и управлению проектами. Постоянное повышение квалификации сотрудников, участие в тренингах и семинарах позволяет им быть в курсе последних тенденций и технологий в области проектирования.
Проектный институт также активно использует международный опыт в своей работе. Сотрудничество с зарубежными партнерами позволяет заимствовать лучшие практики и адаптировать их к условиям российского рынка. Это особенно важно в условиях глобализации, когда требования к проектированию становятся все более жесткими и разнообразными.
Важным направлением работы института является внедрение системы управления качеством. Это позволяет не только повысить уровень проектной документации, но и сократить сроки ее разработки. Внедрение стандартов ISO и других международных норм способствует улучшению процессов проектирования и повышению удовлетворенности клиентов.
Проектный институт также активно занимается маркетингом своих услуг. Это включает в себя участие в выставках, конференциях и других мероприятиях, где представляются достижения института и его проекты. Такой подход позволяет не только привлечь новых клиентов, но и укрепить имидж института как надежного партнера в области проектирования.
В последние годы проектный институт Нижнего Новгорода также уделяет внимание цифровизации процессов. Внедрение современных информационных технологий, таких как облачные решения и системы управления проектами, позволяет оптимизировать работу и повысить эффективность взаимодействия между различными подразделениями института. Это, в свою очередь, способствует более быстрому реагированию на запросы клиентов и улучшению качества предоставляемых услуг.
Не менее важным аспектом является работа с клиентами. Проектный институт стремится к тому, чтобы каждый заказчик чувствовал себя услышанным и понимал, что его пожелания и требования будут учтены в процессе проектирования. Это достигается через активное взаимодействие с клиентами на всех этапах работы, начиная от первичной консультации и заканчивая сдачей готового проекта.
В рамках своей деятельности проектный институт также активно занимается популяризацией архитектуры и проектирования среди молодежи. Это включает в себя проведение мастер-классов, лекций и экскурсий для студентов и школьников. Такие инициативы способствуют формированию интереса к профессии архитектора и инженера, а также помогают молодым специалистам лучше понять специфику работы в данной области.
Таким образом, проектный институт Нижнего Новгорода представляет собой динамично развивающуюся организацию, которая успешно справляется с вызовами современного проектирования. Его деятельность охватывает широкий спектр направлений, что позволяет ему оставаться конкурентоспособным на рынке и вносить значительный вклад в развитие архитектуры и строительства в регионе.
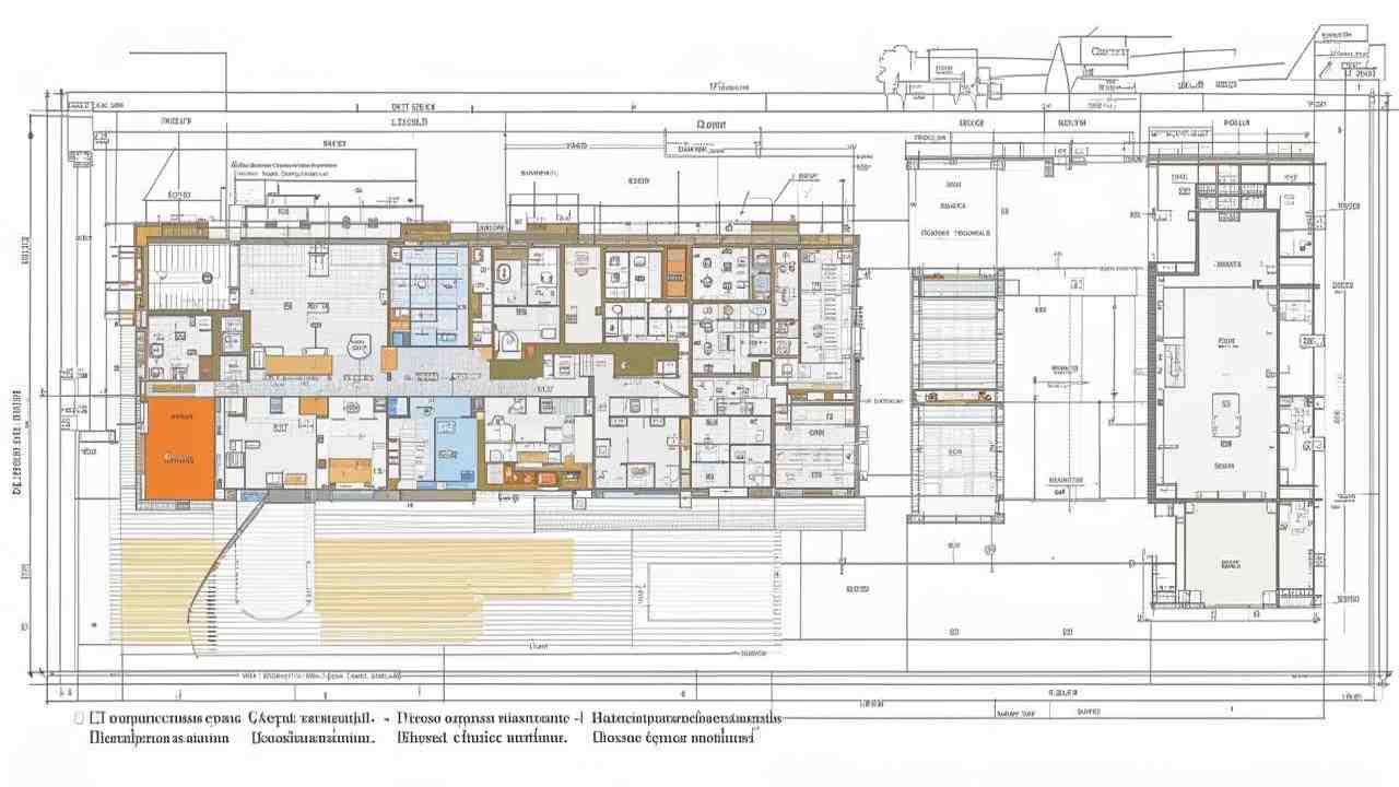
Схема планировочной организации земельного участка
Схема планировочной организации земельного участка является важным элементом проектирования, который определяет функциональное использование территории, ее зонирование и размещение объектов. В Нижнем Новгороде проектные институты играют ключевую роль в разработке таких схем, обеспечивая соответствие современным требованиям и стандартам.
Проектный институт в Нижнем Новгороде занимается комплексным подходом к планировке земельных участков, что включает в себя анализ существующих условий, разработку концепции и детальное проектирование. Важным аспектом работы института является учет всех факторов, влияющих на организацию пространства, таких как:
- Топография местности: Изучение рельефа и природных особенностей участка.
- Геологические условия: Оценка грунтовых характеристик и их влияние на строительство.
- Климатические условия: Учет погодных факторов, которые могут повлиять на использование участка.
- Инфраструктура: Наличие и состояние дорог, коммуникаций и других объектов.
- Социальные факторы: Потребности местного населения и требования к функциональному использованию территории.
Проектный институт разрабатывает схемы, которые включают в себя не только размещение зданий и сооружений, но и организацию зеленых зон, парков, площадок для отдыха и других общественных пространств. Это позволяет создать комфортную и безопасную среду для жителей и гостей города.
Одним из ключевых этапов в разработке схемы планировочной организации является зонирование земельного участка. Зонирование позволяет разделить территорию на функциональные зоны, каждая из которых имеет свои особенности и предназначение. Например, могут быть выделены зоны для жилой застройки, коммерческих объектов, общественных пространств и зеленых насаждений.
При разработке схемы проектный институт также учитывает требования законодательства и нормативных актов, регулирующих использование земельных участков. Это включает в себя соблюдение градостроительных норм, санитарных требований и экологических стандартов. Важно, чтобы проект соответствовал не только современным требованиям, но и был устойчивым к изменениям в будущем.
В процессе работы над схемой планировочной организации земельного участка проектный институт проводит консультации с различными заинтересованными сторонами, включая местные органы власти, общественные организации и жителей. Это позволяет учесть мнения и пожелания всех участников процесса, что в конечном итоге способствует созданию более гармоничной и функциональной городской среды.
Одним из важных аспектов проектирования является создание транспортной схемы, которая обеспечивает удобный доступ к различным зонам участка. Проектный институт разрабатывает схемы движения, учитывая как автомобильный, так и пешеходный трафик. Это включает в себя:
- Размещение дорог: Определение основных и второстепенных магистралей, а также пешеходных дорожек.
- Парковочные зоны: Проектирование мест для парковки автомобилей, что особенно важно в условиях городской застройки.
- Общественный транспорт: Учет маршрутов общественного транспорта и создание остановок для удобства пассажиров.
Кроме того, проектный институт уделяет внимание вопросам экологии и устойчивого развития. Важно не только создать функциональное пространство, но и минимизировать негативное воздействие на окружающую среду. Это может включать:
- Создание зеленых насаждений: Проектирование парков, скверов и озеленение территории.
- Управление водными ресурсами: Разработка систем для сбора и очистки дождевых вод, предотвращение затоплений.
- Энергоэффективные решения: Внедрение технологий, способствующих снижению потребления энергии и ресурсов.
Важным этапом в разработке схемы является согласование проекта с местными органами власти. Проектный институт подготавливает все необходимые документы и проводит презентации, чтобы донести до заинтересованных сторон преимущества предложенной схемы. Это позволяет избежать возможных конфликтов и ускорить процесс получения разрешений на строительство.
После получения всех необходимых согласований начинается этап детального проектирования, который включает в себя разработку рабочих чертежей и спецификаций. На этом этапе проектный институт работает в тесном сотрудничестве с инженерами, архитекторами и другими специалистами, чтобы обеспечить высокое качество и соответствие всем требованиям.
В процессе реализации проекта важно также учитывать возможность внесения изменений в схему в зависимости от возникающих условий. Гибкость проектирования позволяет адаптироваться к изменениям в законодательстве, экономической ситуации или потребностях местного населения.
Таким образом, проектный институт в Нижнем Новгороде выполняет важную роль в создании схем планировочной организации земельного участка, обеспечивая комплексный подход к проектированию и учитывая все аспекты, влияющие на функциональность и устойчивость территории. Это позволяет создавать комфортные и безопасные пространства для жизни и работы, способствуя развитию города и улучшению качества жизни его жителей.
Объемно-планировочные и архитектурные решения
Проектный институт в Нижнем Новгороде играет ключевую роль в разработке объемно-планировочных и архитектурных решений для различных объектов. Эти решения определяют не только внешний вид зданий, но и их функциональность, удобство использования и соответствие современным требованиям. Важность объемно-планировочных решений заключается в том, что они формируют общую концепцию пространства, обеспечивая гармоничное сочетание эстетики и практичности.
Одним из основных аспектов проектирования является анализ территории, на которой будет возводиться объект. Это включает в себя изучение существующей инфраструктуры, природных условий, а также социально-экономических факторов. На основе этого анализа разрабатываются предварительные концепции, которые затем обсуждаются с заказчиком и другими заинтересованными сторонами.
В процессе проектирования объемно-планировочных решений учитываются следующие ключевые элементы:
- Функциональное зонирование - распределение пространства на различные функциональные зоны, такие как жилые, коммерческие, общественные и рекреационные.
- Эстетические аспекты - выбор архитектурного стиля, цветовой гаммы и материалов, которые будут использоваться в строительстве.
- Транспортная доступность - проектирование подъездных путей, парковок и пешеходных зон для обеспечения удобного доступа к объекту.
- Экологические факторы - использование экологически чистых материалов и технологий, а также создание зеленых зон.
Архитектурные решения, в свою очередь, включают в себя детальную проработку фасадов, интерьеров и инженерных систем. Важно, чтобы архитектурные элементы не только соответствовали современным стандартам, но и отражали культурные и исторические особенности региона. Проектный институт Нижнего Новгорода активно сотрудничает с местными архитекторами и дизайнерами, что позволяет создавать уникальные проекты, которые гармонично вписываются в городской ландшафт.
Одним из примеров успешного объемно-планировочного решения является проект многофункционального комплекса, который включает в себя жилые, коммерческие и общественные пространства. Такой подход позволяет создать комфортную среду для жизни и работы, а также способствует развитию социальной инфраструктуры. Важно отметить, что подобные проекты требуют тщательной проработки всех деталей, начиная от планировки и заканчивая выбором материалов.
В процессе разработки архитектурных решений проектный институт также учитывает технические требования, такие как нормы безопасности, энергоэффективности и устойчивости к внешним воздействиям. Это позволяет создавать здания, которые не только красивы, но и безопасны для эксплуатации.
Важным этапом в разработке объемно-планировочных и архитектурных решений является моделирование. Современные технологии позволяют создавать трехмерные модели зданий и территорий, что значительно упрощает процесс визуализации и анализа проектных решений. С помощью программного обеспечения архитекторы могут не только увидеть, как будет выглядеть объект, но и оценить его функциональность, взаимодействие с окружающей средой и потенциальные проблемы, которые могут возникнуть в процессе эксплуатации.
Кроме того, моделирование позволяет проводить анализ световых и климатических условий, что особенно важно для зданий, расположенных в регионах с изменчивым климатом. Это помогает оптимизировать проект, обеспечивая максимальную энергоэффективность и комфорт для пользователей. Например, правильное расположение окон и использование естественного освещения могут значительно снизить затраты на отопление и освещение.
В рамках проектирования также осуществляется инженерное проектирование, которое включает в себя разработку систем отопления, вентиляции, кондиционирования, водоснабжения и канализации. Эти системы должны быть интегрированы в общий объемно-планировочный замысел, обеспечивая не только функциональность, но и эстетическую привлекательность. Важно, чтобы инженерные решения не нарушали архитектурный облик здания и были доступны для обслуживания.
Проектный институт Нижнего Новгорода активно применяет инновационные технологии в своих проектах. Это включает в себя использование современных строительных материалов, таких как легкие бетонные блоки, стекло с высокой теплоизоляцией и экологически чистые отделочные материалы. Такие решения не только улучшают характеристики зданий, но и способствуют снижению их воздействия на окружающую среду.
Важным аспектом является учет мнения общественности и заинтересованных сторон. Проектный институт проводит открытые обсуждения и презентации, на которых жители и представители местных организаций могут высказать свои пожелания и замечания. Это позволяет не только улучшить проект, но и повысить уровень доверия к институту со стороны общества.
В заключение, объемно-планировочные и архитектурные решения, разрабатываемые проектным институтом в Нижнем Новгороде, являются результатом комплексного подхода, который учитывает множество факторов. Это позволяет создавать не только функциональные и эстетически привлекательные здания, но и комфортные пространства для жизни и работы, способствующие развитию города и улучшению качества жизни его жителей.
Конструктивные решения
Проектный институт в Нижнем Новгороде представляет собой важный элемент архитектурного и строительного процесса в регионе. Его деятельность охватывает широкий спектр услуг, включая проектирование, экспертизу, а также консалтинг в области строительства. Важным аспектом работы института является разработка конструктивных решений, которые обеспечивают надежность и долговечность зданий и сооружений.
Конструктивные решения, предлагаемые проектным институтом, основываются на современных технологиях и материалах, что позволяет создавать эффективные и экономически целесообразные проекты. В процессе проектирования учитываются не только эстетические, но и функциональные характеристики объектов, что делает их максимально удобными для эксплуатации.
Одним из ключевых направлений работы института является разработка инновационных конструктивных систем. Это может включать в себя использование новых строительных материалов, таких как легкие бетоны, композитные материалы и другие, которые обеспечивают высокую прочность при меньшем весе. Такие решения позволяют значительно сократить затраты на строительство и эксплуатацию зданий.
Кроме того, проектный институт активно применяет модульное строительство, которое позволяет ускорить процесс возведения объектов. Модульные конструкции изготавливаются на заводе и затем собираются на строительной площадке, что минимизирует время, затрачиваемое на строительство, и снижает влияние погодных условий на процесс.
Важным аспектом конструктивных решений является учет сейсмической активности региона. Нижний Новгород находится в зоне, где возможны землетрясения, поэтому проектирование зданий с учетом сейсмостойкости становится приоритетом. Институт разрабатывает специальные конструкции, которые способны выдерживать нагрузки, возникающие при сейсмических явлениях, что обеспечивает безопасность и долговечность зданий.
Также стоит отметить, что проектный институт активно сотрудничает с научными учреждениями и исследовательскими центрами, что позволяет внедрять в практику последние достижения науки и техники. Это сотрудничество способствует созданию более эффективных и безопасных конструктивных решений, которые отвечают современным требованиям.
В рамках проектирования особое внимание уделяется энергетической эффективности зданий. Институт разрабатывает решения, которые позволяют минимизировать потребление энергии, используя современные технологии, такие как системы автоматизации, солнечные панели и другие альтернативные источники энергии. Это не только снижает эксплуатационные расходы, но и способствует охране окружающей среды.
Важным аспектом работы проектного института является интеграция различных инженерных систем в единое целое. Это включает в себя системы отопления, вентиляции, кондиционирования, водоснабжения и канализации. Правильное проектирование этих систем позволяет обеспечить комфортные условия для пользователей зданий и снизить затраты на их эксплуатацию.
Проектный институт также уделяет внимание экологическим аспектам проектирования. В условиях современного мира, где вопросы экологии становятся все более актуальными, разработка конструктивных решений должна учитывать влияние на окружающую среду. Институт применяет принципы устойчивого проектирования, что включает в себя использование экологически чистых материалов, а также технологий, способствующих снижению негативного воздействия на природу.
Важным направлением является реализация проектов по реконструкции и модернизации существующих зданий. Это позволяет не только продлить срок службы объектов, но и адаптировать их к современным требованиям. В процессе реконструкции учитываются как конструктивные, так и функциональные аспекты, что позволяет создать комфортные и безопасные условия для пользователей.
Проектный институт активно использует программное обеспечение для проектирования, что позволяет значительно повысить качество и скорость работы. Современные CAD-системы и BIM-технологии (информационное моделирование зданий) позволяют создавать точные трехмерные модели, что облегчает процесс проектирования и позволяет заранее выявлять возможные проблемы.
Важным этапом в разработке конструктивных решений является проведение расчетов и анализов. Институт использует современные методы расчета, включая численные методы и программные комплексы, что позволяет точно оценить прочность и устойчивость конструкций. Это особенно важно для сложных объектов, где необходимо учитывать множество факторов, влияющих на безопасность и долговечность.
Кроме того, проектный институт активно занимается разработкой стандартов и рекомендаций по проектированию. Это позволяет не только унифицировать подходы к проектированию, но и повысить общие стандарты качества в строительной отрасли. Внедрение таких стандартов способствует повышению безопасности и надежности зданий и сооружений.
Важным аспектом работы института является обучение и повышение квалификации специалистов. В условиях быстро меняющихся технологий и требований к проектированию, постоянное обучение становится необходимым. Институт организует семинары, тренинги и курсы, что позволяет специалистам быть в курсе последних тенденций и нововведений в области проектирования и строительства.
Таким образом, проектный институт в Нижнем Новгороде играет ключевую роль в разработке конструктивных решений, которые отвечают современным требованиям безопасности, устойчивости и экологичности. Его работа направлена на создание комфортной и безопасной городской среды, что является важной задачей для развития региона.
Системы электроснабжения
Проектный институт в Нижнем Новгороде играет важную роль в разработке и реализации систем электроснабжения. С момента своего основания он зарекомендовал себя как надежный партнер для различных предприятий и организаций, обеспечивая высококачественные проектные решения, соответствующие современным требованиям и стандартам.
Одной из ключевых задач проектного института является разработка проектной документации для систем электроснабжения. Это включает в себя не только проектирование новых объектов, но и модернизацию существующих систем. Проектировщики института используют современные программные средства и технологии, что позволяет им создавать эффективные и экономически обоснованные решения.
В процессе проектирования учитываются различные факторы, такие как:
- технические характеристики оборудования;
- особенности эксплуатации;
- нормативные требования;
- экологические аспекты;
- экономические условия.
Проектный институт активно сотрудничает с различными организациями, включая государственные и частные компании, что позволяет ему накапливать опыт и внедрять лучшие практики в свою работу. Важным аспектом является также взаимодействие с заказчиками на всех этапах проектирования, что обеспечивает учет их потребностей и пожеланий.
Кроме того, проектный институт занимается научными исследованиями в области электроснабжения. Это позволяет не только улучшать качество проектируемых систем, но и внедрять инновационные решения, которые могут значительно повысить эффективность работы электросетей. Исследования охватывают широкий спектр тем, включая:
- развитие новых технологий в области генерации и распределения электроэнергии;
- оптимизацию работы существующих систем;
- внедрение возобновляемых источников энергии;
- разработку систем автоматизации и управления.
Важным направлением работы проектного института является обучение и повышение квалификации специалистов в области электроснабжения. Институт проводит семинары, тренинги и курсы, что позволяет сотрудникам оставаться в курсе последних тенденций и технологий в данной области. Это, в свою очередь, способствует повышению качества проектируемых систем и их соответствию современным требованиям.
Проектный институт также активно участвует в реализации крупных инфраструктурных проектов, что требует высокой степени координации и взаимодействия с различными участниками процесса. Это может включать в себя как проектирование новых электросетей, так и модернизацию существующих, что особенно актуально в условиях растущих потребностей в электроэнергии.
В заключение, проектный институт в Нижнем Новгороде представляет собой важный элемент системы электроснабжения, обеспечивая высококачественное проектирование, научные исследования и обучение специалистов. Его работа способствует развитию энергетической инфраструктуры региона и повышению надежности электроснабжения.
Одним из значимых аспектов работы проектного института является интеграция современных технологий в проектирование систем электроснабжения. В последние годы наблюдается активное внедрение цифровых решений, таких как системы SCADA (Supervisory Control and Data Acquisition), которые позволяют осуществлять мониторинг и управление электросетями в реальном времени. Это значительно повышает эффективность работы систем и позволяет оперативно реагировать на возникающие неполадки.
Проектный институт также активно использует моделирование и симуляцию для оценки работы проектируемых систем. С помощью специализированного программного обеспечения проектировщики могут создавать виртуальные модели электросетей, что позволяет выявлять потенциальные проблемы на этапе проектирования и минимизировать риски в процессе эксплуатации. Это особенно важно для крупных инфраструктурных проектов, где ошибки могут привести к значительным финансовым потерям и задержкам в реализации.
Важным направлением работы института является разработка систем электроснабжения для промышленных объектов. В этом контексте проектировщики учитывают специфические требования различных отраслей, таких как металлургия, химическая промышленность и энергетика. Каждая из этих отраслей имеет свои особенности, которые необходимо учитывать при проектировании, чтобы обеспечить надежное и эффективное электроснабжение.
Кроме того, проектный институт активно работает над внедрением возобновляемых источников энергии в системы электроснабжения. Это включает в себя проектирование солнечных и ветровых электростанций, а также интеграцию этих источников в существующие сети. В условиях глобального изменения климата и необходимости перехода на устойчивые источники энергии, такие проекты становятся особенно актуальными.
Проектный институт также уделяет внимание энергетической эффективности систем электроснабжения. Это включает в себя оптимизацию распределительных сетей, использование высокоэффективного оборудования и внедрение технологий, позволяющих снизить потери электроэнергии. Энергетическая эффективность не только способствует снижению затрат, но и помогает уменьшить негативное воздействие на окружающую среду.
Важным аспектом работы проектного института является соблюдение нормативных требований и стандартов в области электроснабжения. Проектировщики должны быть в курсе всех изменений в законодательстве и новых стандартов, чтобы гарантировать, что проектируемые системы соответствуют всем необходимым требованиям. Это включает в себя как национальные, так и международные стандарты, что особенно важно для проектов, имеющих транснациональный характер.
В заключение, проектный институт в Нижнем Новгороде представляет собой важный центр компетенции в области проектирования систем электроснабжения. Его работа охватывает широкий спектр направлений, включая внедрение современных технологий, разработку решений для различных отраслей, а также внимание к вопросам энергетической эффективности и соблюдения нормативных требований. Все это способствует созданию надежной и эффективной энергетической инфраструктуры, что является ключевым фактором для устойчивого развития региона.
системы водоснабжения
Системы водоснабжения играют ключевую роль в обеспечении населения и промышленности необходимыми ресурсами. Проектный институт в Нижнем Новгороде активно участвует в разработке и внедрении современных решений в этой области. В рамках своей деятельности институт занимается проектированием, исследованием и оптимизацией систем водоснабжения, что позволяет обеспечить надежное и качественное водоснабжение для различных нужд.
Одной из основных задач проектного института является создание эффективных систем водоснабжения, которые учитывают специфику региона, потребности населения и требования к экологии. В Нижнем Новгороде, как и в других крупных городах, существует множество факторов, влияющих на проектирование водоснабжения, включая географические, климатические и социальные аспекты.
Этапы проектирования систем водоснабжения
Проектирование систем водоснабжения включает несколько ключевых этапов:
- Исследование и анализ потребностей: На этом этапе специалисты института проводят анализ текущих и прогнозируемых потребностей в воде, учитывая как бытовые, так и промышленные нужды.
- Гидрологические исследования: Изучение источников водоснабжения, таких как реки, водохранилища и подземные воды, позволяет определить их потенциал и качество.
- Проектирование сетей: На основе собранных данных разрабатываются схемы водоснабжения, включая распределительные сети, насосные станции и очистные сооружения.
- Экологическая оценка: Важно учитывать влияние проектируемых систем на окружающую среду, что требует проведения экологических экспертиз и оценок.
- Согласование и утверждение проектов: Все проекты должны пройти согласование с местными органами власти и другими заинтересованными сторонами.
Каждый из этих этапов требует высокой квалификации специалистов и применения современных технологий. Проектный институт в Нижнем Новгороде располагает необходимыми ресурсами и опытом для выполнения этих задач на высоком уровне.
Современные технологии в системах водоснабжения
В последние годы в области водоснабжения наблюдается активное внедрение новых технологий, которые позволяют повысить эффективность и надежность систем. Проектный институт активно использует:
- Системы автоматизации: Внедрение автоматизированных систем управления позволяет оптимизировать процессы распределения воды и мониторинга состояния сетей.
- Современные материалы: Использование новых трубопроводных материалов, таких как полиэтилен и композитные материалы, увеличивает срок службы систем и снижает затраты на обслуживание.
- Очистные технологии: Применение современных методов очистки воды, таких как мембранные технологии и биологические методы, обеспечивает высокое качество воды для потребителей.
Эти технологии не только улучшают качество водоснабжения, но и способствуют снижению негативного воздействия на окружающую среду. Проектный институт в Нижнем Новгороде активно исследует и внедряет такие решения, что позволяет ему оставаться на переднем крае в области проектирования систем водоснабжения.
Проектирование очистных сооружений
Одним из важнейших аспектов систем водоснабжения является проектирование очистных сооружений. Эти объекты обеспечивают необходимую степень очистки воды перед ее подачей в распределительную сеть. Проектный институт в Нижнем Новгороде разрабатывает проекты очистных сооружений, учитывая современные требования к качеству воды и экологическим стандартам.
Процесс проектирования очистных сооружений включает несколько ключевых этапов:
- Определение требований к качеству воды: На этом этапе специалисты анализируют нормативные документы и требования к качеству воды для различных категорий потребителей.
- Выбор технологии очистки: В зависимости от исходного качества воды и требований к конечному продукту выбираются наиболее подходящие технологии очистки, такие как механическая, биологическая или химическая очистка.
- Проектирование оборудования: Разработка проектной документации включает выбор и размещение оборудования, необходимого для очистки воды, а также систем управления и мониторинга.
- Оценка воздействия на окружающую среду: Важно провести оценку воздействия очистных сооружений на экосистему, что позволяет минимизировать негативные последствия.
Проектный институт также активно занимается модернизацией существующих очистных сооружений, что позволяет повысить их эффективность и соответствие современным стандартам. Это особенно актуально для старых объектов, которые требуют обновления и адаптации к новым условиям.
Инновации в системах водоснабжения
В последние годы наблюдается рост интереса к инновационным решениям в области водоснабжения. Проектный институт в Нижнем Новгороде активно исследует и внедряет такие технологии, как:
- Умные сети: Внедрение технологий «умных» сетей позволяет осуществлять мониторинг и управление системами водоснабжения в реальном времени, что значительно повышает их эффективность.
- Рециркуляция воды: Проектирование систем рециркуляции позволяет повторно использовать воду, что особенно актуально для промышленных предприятий и крупных жилых комплексов.
- Системы сбора дождевой воды: Разработка систем для сбора и использования дождевой воды помогает снизить нагрузку на централизованные системы водоснабжения и улучшить управление водными ресурсами.
Эти инновации не только способствуют улучшению качества водоснабжения, но и помогают в решении экологических проблем, связанных с водными ресурсами. Проектный институт в Нижнем Новгороде активно работает над внедрением таких решений, что позволяет ему оставаться в числе лидеров в области проектирования систем водоснабжения.
Сотрудничество с другими организациями
Проектный институт в Нижнем Новгороде понимает важность сотрудничества с другими организациями, включая государственные структуры, научные учреждения и частные компании. Это сотрудничество позволяет обмениваться опытом, внедрять новые технологии и находить оптимальные решения для сложных задач в области водоснабжения.
Институт активно участвует в научных исследованиях и проектах, направленных на улучшение систем водоснабжения. Это включает в себя как участие в грантах и конкурсах, так и сотрудничество с университетами и научными центрами. Такие инициативы способствуют развитию новых подходов и технологий, которые могут быть применены в проектировании и эксплуатации систем водоснабжения.
Таким образом, проектный институт в Нижнем Новгороде не только разрабатывает проекты, но и активно участвует в формировании будущего водоснабжения, внедряя инновации и обеспечивая высокое качество услуг для населения и промышленности.
системы водоотведения
Системы водоотведения играют ключевую роль в обеспечении санитарного состояния населенных пунктов и защиты окружающей среды. Проектный институт в Нижнем Новгороде активно занимается разработкой и внедрением современных решений в этой области. В рамках своей деятельности институт разрабатывает проекты, которые учитывают как технические, так и экологические аспекты систем водоотведения.
Одной из основных задач проектного института является создание эффективных и надежных систем, способных справляться с различными объемами сточных вод. Это включает в себя как ливневые, так и хозяйственно-бытовые сточные воды. Проектирование таких систем требует глубокого анализа местных условий, включая геологические, гидрологические и климатические факторы.
В процессе проектирования систем водоотведения специалисты института используют современные программные решения, которые позволяют моделировать различные сценарии работы систем. Это помогает не только оптимизировать проект, но и предсказать возможные проблемы, которые могут возникнуть в процессе эксплуатации.
Кроме того, проектный институт уделяет внимание вопросам устойчивого развития и экологии. В последние годы наблюдается рост интереса к системам, которые минимизируют негативное воздействие на окружающую среду. Это может включать в себя использование технологий очистки сточных вод, которые позволяют повторно использовать воду или минимизировать ее сброс в водоемы.
Важным аспектом работы проектного института является сотрудничество с местными властями и коммунальными службами. Это позволяет учитывать потребности и требования населения, а также обеспечивать интеграцию новых систем в существующую инфраструктуру. Проектирование систем водоотведения требует комплексного подхода, который включает в себя не только технические решения, но и социальные аспекты.
В рамках своей деятельности проектный институт также проводит научные исследования и разработки, направленные на улучшение существующих технологий. Это может включать в себя изучение новых материалов для строительства трубопроводов, а также разработку инновационных методов очистки сточных вод. Такие исследования помогают не только улучшить качество проектируемых систем, но и снизить их стоимость.
Важным направлением работы проектного института является также обучение и повышение квалификации специалистов в области водоотведения. Это включает в себя проведение семинаров, тренингов и курсов, которые помогают специалистам оставаться в курсе последних тенденций и технологий в данной области.
Таким образом, проектный институт в Нижнем Новгороде играет важную роль в разработке и внедрении систем водоотведения, которые отвечают современным требованиям и стандартам. Его работа направлена на создание эффективных, экологически чистых и надежных решений, которые способствуют улучшению качества жизни населения и защите окружающей среды.
Проектный институт также активно участвует в разработке нормативных документов и стандартов, касающихся систем водоотведения. Это включает в себя как участие в создании новых стандартов, так и обновление существующих, чтобы они соответствовали современным требованиям и технологиям. Важно, чтобы все проектируемые системы соответствовали действующим нормам и правилам, что обеспечивает их безопасность и эффективность.
В рамках своей работы институт проводит анализ существующих систем водоотведения в Нижнем Новгороде и других регионах. Это позволяет выявить слабые места и предложить решения для их улучшения. Например, в некоторых случаях может потребоваться модернизация устаревших систем, которые не справляются с возросшими объемами сточных вод. В таких ситуациях проектный институт разрабатывает планы по реконструкции и обновлению инфраструктуры.
Одним из примеров успешной реализации проектов является внедрение систем дождевой канализации, которые помогают предотвратить затопления в городах во время сильных дождей. Проектный институт разрабатывает такие системы с учетом особенностей местного климата и рельефа, что позволяет эффективно управлять ливневыми водами и минимизировать ущерб от наводнений.
Кроме того, проектный институт активно исследует возможности применения новых технологий в области водоотведения. Это может включать в себя использование биологических методов очистки сточных вод, а также внедрение систем, основанных на принципах замкнутого цикла. Такие технологии позволяют значительно снизить объемы сбрасываемых сточных вод и минимизировать негативное воздействие на экосистему.
Важным аспектом работы проектного института является также взаимодействие с научными учреждениями и исследовательскими центрами. Это сотрудничество позволяет обмениваться опытом и знаниями, а также проводить совместные исследования, направленные на решение актуальных проблем в области водоотведения. Например, совместные проекты могут быть направлены на изучение влияния сточных вод на качество воды в реках и водоемах.
Проектный институт также активно участвует в международных конференциях и выставках, где представляют свои разработки и достижения. Это позволяет не только продемонстрировать уровень своей работы, но и обменяться опытом с коллегами из других стран. Участие в таких мероприятиях способствует внедрению лучших практик и технологий, что в конечном итоге положительно сказывается на качестве проектируемых систем.
В заключение, проектный институт в Нижнем Новгороде является важным игроком в области проектирования систем водоотведения. Его работа охватывает широкий спектр задач, от разработки новых технологий до модернизации существующих систем. Благодаря комплексному подходу и сотрудничеству с различными организациями, институт вносит значительный вклад в улучшение инфраструктуры водоотведения и защиту окружающей среды.
системы отопление вентиляции и кондиционирования воздуха
Системы отопления, вентиляции и кондиционирования воздуха (ОВК) играют ключевую роль в обеспечении комфортного микроклимата в помещениях. Проектирование таких систем требует глубоких знаний и опыта, что делает выбор проектного института особенно важным. В Нижнем Новгороде существует несколько организаций, которые специализируются на проектировании систем ОВК, и одна из них — проектный институт, который зарекомендовал себя как надежный партнер в этой области.
Проектный институт в Нижнем Новгороде предлагает широкий спектр услуг, связанных с проектированием и внедрением систем отопления, вентиляции и кондиционирования. Основные направления работы института включают:
- Проектирование систем отопления: Разработка проектов для различных типов зданий, включая жилые, коммерческие и промышленные объекты. Учитываются все аспекты, такие как теплопотери, выбор оборудования и схемы подключения.
- Проектирование систем вентиляции: Создание эффективных систем вентиляции, которые обеспечивают необходимый воздухообмен и поддерживают оптимальный уровень влажности. Включает как естественную, так и механическую вентиляцию.
- Проектирование систем кондиционирования: Разработка проектов для систем кондиционирования, которые обеспечивают комфортную температуру и качество воздуха в помещениях. Учитываются различные типы систем, такие как сплит-системы, чиллеры и фанкойлы.
- Энергетическая эффективность: Оценка и оптимизация энергетических затрат систем ОВК, что позволяет снизить эксплуатационные расходы и минимизировать негативное воздействие на окружающую среду.
Проектный институт в Нижнем Новгороде использует современные технологии и программное обеспечение для проектирования систем ОВК. Это позволяет создавать высококачественные проекты, которые соответствуют современным стандартам и требованиям. В процессе работы специалисты института учитывают:
- Нормативные документы: Все проекты разрабатываются в соответствии с действующими строительными нормами и правилами, что гарантирует их безопасность и эффективность.
- Индивидуальные требования заказчика: Каждый проект разрабатывается с учетом специфики объекта и пожеланий клиента, что позволяет достичь максимального комфорта и функциональности.
- Современные технологии: Использование новейших технологий и материалов, что позволяет создавать системы, которые отличаются высокой надежностью и долговечностью.
Кроме проектирования, институт также предлагает услуги по:
- Консультированию: Специалисты института готовы предоставить консультации по вопросам выбора оборудования, проектирования и эксплуатации систем ОВК.
- Сопровождению проектов: Полное сопровождение проекта на всех этапах — от разработки до внедрения и наладки систем.
- Обучению персонала: Проведение обучающих семинаров и тренингов для сотрудников заказчика по эксплуатации и обслуживанию систем ОВК.
Таким образом, проектный институт в Нижнем Новгороде является надежным партнером для организаций и частных лиц, которые нуждаются в качественном проектировании систем отопления, вентиляции и кондиционирования воздуха. Высокий уровень профессионализма, использование современных технологий и индивидуальный подход к каждому проекту делают его одним из лидеров в данной области.
Одним из ключевых аспектов работы проектного института является использование современных программных решений для проектирования систем ОВК. Применение специализированного программного обеспечения позволяет не только ускорить процесс проектирования, но и повысить его точность. Например, такие программы, как AutoCAD, Revit и другие, позволяют создавать трехмерные модели систем, что значительно упрощает визуализацию и понимание проектируемых решений.
Кроме того, проектный институт активно использует методы компьютерного моделирования для анализа работы систем ОВК. Это позволяет заранее выявить возможные проблемы и оптимизировать проект до его реализации. Например, с помощью программного обеспечения можно смоделировать тепловые потоки в здании, что помогает определить оптимальное расположение радиаторов и воздуховодов.
Важным этапом проектирования является также выбор оборудования. Специалисты института тщательно анализируют рынок и предлагают клиентам наиболее подходящие решения, учитывая не только технические характеристики, но и экономические аспекты. Это позволяет заказчикам не только получить качественные системы, но и снизить затраты на их эксплуатацию.
Проектный институт также уделяет внимание вопросам экологии и устойчивого развития. В современных условиях все большее значение приобретает использование энергоэффективных технологий и возобновляемых источников энергии. Институт предлагает решения, которые позволяют минимизировать углеродный след и снизить негативное воздействие на окружающую среду. Например, внедрение систем рекуперации тепла и использование солнечных коллекторов становятся все более популярными.
Важным аспектом работы проектного института является взаимодействие с другими участниками строительного процесса. Это включает в себя сотрудничество с архитекторами, строителями и заказчиками. Такой подход позволяет обеспечить комплексное решение задач и избежать возможных конфликтов на этапе реализации проекта. Специалисты института активно участвуют в совещаниях и обсуждениях, что способствует более глубокому пониманию требований и ожиданий всех сторон.
После завершения проектирования и реализации систем ОВК, проектный институт предлагает услуги по техническому обслуживанию и ремонту. Это позволяет поддерживать системы в рабочем состоянии и продлить их срок службы. Регулярное обслуживание также помогает выявлять и устранять потенциальные проблемы до того, как они станут серьезными.
Таким образом, проектный институт в Нижнем Новгороде предлагает комплексный подход к проектированию систем отопления, вентиляции и кондиционирования воздуха. Высокий уровень профессионализма, использование современных технологий и индивидуальный подход к каждому проекту делают его надежным партнером для клиентов, стремящихся создать комфортные и эффективные условия в своих помещениях.
слаботочные системы
Слаботочные системы представляют собой важный аспект современного проектирования и строительства, обеспечивая эффективное функционирование различных коммуникаций и систем управления. В Нижнем Новгороде проектные институты активно занимаются разработкой и внедрением таких систем, что позволяет улучшить качество жизни и повысить безопасность объектов.
Слаботочные системы включают в себя множество компонентов, таких как:
- Системы видеонаблюдения
- Системы контроля доступа
- Системы охранной сигнализации
- Системы автоматизации зданий
- Телефонные и компьютерные сети
- Системы оповещения и информирования
Проектный институт в Нижнем Новгороде разрабатывает слаботочные системы с учетом специфики каждого объекта, будь то жилой дом, офисное здание или промышленный комплекс. В процессе проектирования учитываются требования заказчика, а также действующие нормы и стандарты. Это позволяет создать надежные и эффективные решения, которые соответствуют современным требованиям безопасности и комфорта.
Одним из ключевых этапов проектирования слаботочных систем является анализ потребностей клиента. Специалисты института проводят детальное обследование объекта, чтобы определить, какие системы необходимы для обеспечения безопасности и комфорта. На этом этапе также учитываются возможные риски и угрозы, что позволяет разработать комплексные решения.
После анализа потребностей начинается этап проектирования. Здесь разрабатываются схемы и чертежи, которые включают в себя расположение оборудования, прокладку кабелей и другие важные аспекты. Важно, чтобы проект соответствовал не только требованиям заказчика, но и действующим нормам и стандартам, что гарантирует безопасность и надежность системы.
В процессе проектирования также учитываются вопросы интеграции слаботочных систем с другими инженерными системами здания, такими как электроснабжение, вентиляция и отопление. Это позволяет создать единое целое, где все системы работают в гармонии друг с другом, обеспечивая максимальную эффективность и безопасность.
После завершения проектирования начинается этап реализации. Проектный институт в Нижнем Новгороде сотрудничает с проверенными подрядчиками, которые имеют опыт в установке слаботочных систем. Это позволяет гарантировать высокое качество выполнения работ и соблюдение сроков. Важно, чтобы все системы были установлены в соответствии с проектной документацией и действующими нормами.
После установки слаботочных систем проводится их тестирование и наладка. Специалисты проверяют работоспособность всех компонентов, а также их взаимодействие друг с другом. Это позволяет выявить возможные недостатки и устранить их до ввода системы в эксплуатацию.
Важным аспектом работы проектного института является и последующее обслуживание слаботочных систем. Специалисты предлагают услуги по техническому обслуживанию и ремонту, что позволяет поддерживать системы в исправном состоянии и продлить их срок службы. Регулярное обслуживание также позволяет своевременно выявлять и устранять возможные неисправности, что особенно важно для систем безопасности.
Таким образом, проектный институт в Нижнем Новгороде играет ключевую роль в разработке и внедрении слаботочных систем, обеспечивая безопасность и комфорт объектов различного назначения. Благодаря высокому уровню профессионализма и современным технологиям, специалисты института способны предложить эффективные решения, которые соответствуют всем требованиям современного строительства.
Одним из важных направлений работы проектного института является внедрение современных технологий в слаботочные системы. Это включает в себя использование интеллектуальных систем управления, которые позволяют автоматизировать процессы и повысить уровень безопасности. Например, системы видеонаблюдения могут быть интегрированы с системами аналитики, что позволяет не только фиксировать события, но и анализировать их в реальном времени.
Также стоит отметить, что проектный институт активно использует решения на базе Интернета вещей (IoT). Это позволяет создавать умные здания, где все системы связаны между собой и могут управляться через единый интерфейс. Такие системы обеспечивают не только безопасность, но и экономию ресурсов, что особенно актуально в условиях современного строительства.
Важным аспектом является и обучение персонала, который будет работать с установленными слаботочными системами. Проектный институт предлагает курсы и тренинги для сотрудников заказчика, что позволяет им эффективно использовать все возможности систем и быстро реагировать на возможные неисправности.
Кроме того, проектный институт в Нижнем Новгороде активно сотрудничает с производителями оборудования, что позволяет использовать только качественные и надежные компоненты. Это гарантирует долговечность и стабильность работы слаботочных систем, что особенно важно для объектов с повышенными требованиями к безопасности.
В процессе работы над проектами специалисты института также учитывают экологические аспекты. Использование энергоэффективных технологий и материалов позволяет снизить негативное воздействие на окружающую среду и сократить эксплуатационные расходы. Это становится особенно актуальным в свете современных тенденций к устойчивому развитию и охране окружающей среды.
Проектный институт также активно участвует в разработке нормативных документов и стандартов в области слаботочных систем. Это позволяет не только улучшать качество проектирования и установки, но и повышать уровень безопасности на объектах. Специалисты института принимают участие в конференциях и семинарах, делясь опытом и наработками с коллегами из других регионов и стран.
Таким образом, проектный институт в Нижнем Новгороде не только разрабатывает и внедряет слаботочные системы, но и активно участвует в формировании отрасли в целом. Благодаря высокому уровню профессионализма, современным технологиям и вниманию к потребностям клиентов, институт способен предложить решения, которые соответствуют самым высоким стандартам качества и безопасности.
В заключение, можно отметить, что слаботочные системы становятся неотъемлемой частью современного строительства. Их правильное проектирование и внедрение обеспечивают безопасность, комфорт и эффективность эксплуатации объектов. Проектный институт в Нижнем Новгороде играет ключевую роль в этом процессе, предлагая своим клиентам комплексные решения, которые отвечают всем современным требованиям.
системы газоснабжения
Системы газоснабжения играют ключевую роль в обеспечении энергетической безопасности и комфорта населения. Проектный институт в Нижнем Новгороде активно участвует в разработке и реализации проектов, связанных с газоснабжением, что позволяет эффективно использовать природные ресурсы и обеспечивать надежное снабжение газом как для промышленных, так и для бытовых нужд.
Одной из основных задач проектного института является создание комплексных решений для систем газоснабжения, которые включают в себя проектирование, строительство и эксплуатацию газопроводов, газораспределительных станций и других объектов инфраструктуры. В процессе работы учитываются современные технологии, требования безопасности и экологические нормы.
Проектный институт Нижнего Новгорода имеет богатый опыт в проектировании систем газоснабжения, что позволяет ему предлагать клиентам высококачественные и эффективные решения. Важным аспектом работы института является сотрудничество с различными государственными и частными организациями, что способствует интеграции новейших технологий и методов в проекты.
В рамках проектирования систем газоснабжения специалисты института проводят детальные исследования, которые включают:
- Анализ потребностей в газе для различных категорий потребителей;
- Оценку существующей инфраструктуры и ее состояния;
- Разработку схем газоснабжения с учетом географических и климатических условий;
- Проектирование систем автоматизации и управления газоснабжением;
- Разработку мероприятий по обеспечению безопасности и минимизации экологического воздействия.
Проектный институт также активно занимается внедрением инновационных технологий в области газоснабжения. Это включает в себя использование современных материалов для строительства газопроводов, а также внедрение систем мониторинга и управления, которые позволяют повысить эффективность и безопасность эксплуатации газовых сетей.
Одним из ключевых направлений работы института является проектирование газораспределительных станций (ГРС). Эти объекты играют важную роль в системе газоснабжения, так как обеспечивают распределение газа по потребителям и поддержание необходимого давления в газопроводах. Проектирование ГРС требует глубоких знаний в области газовой энергетики, а также соблюдения строгих норм и стандартов безопасности.
Специалисты проектного института разрабатывают проекты ГРС с учетом:
- Потребностей конкретного региона;
- Технических характеристик используемого оборудования;
- Требований к безопасности и охране окружающей среды;
- Экономической целесообразности и эффективности эксплуатации.
Кроме того, проектный институт Нижнего Новгорода активно участвует в модернизации существующих систем газоснабжения. Это включает в себя обновление устаревшего оборудования, внедрение новых технологий и оптимизацию процессов, что позволяет значительно повысить надежность и эффективность газоснабжения.
Важным аспектом работы института является также подготовка документации для получения разрешений на строительство и эксплуатацию объектов газоснабжения. Это включает в себя разработку проектной документации, проведение экспертиз и согласований с различными государственными органами и контролирующими организациями.
Таким образом, проектный институт Нижнего Новгорода является важным игроком в сфере проектирования и реализации систем газоснабжения, обеспечивая высокое качество и безопасность газоснабжения для населения и промышленности.
Важным аспектом проектирования систем газоснабжения является соблюдение всех норм и стандартов, установленных как на национальном, так и на международном уровнях. Проектный институт Нижнего Новгорода активно следит за изменениями в законодательстве и внедряет актуальные требования в свою практику. Это позволяет не только обеспечить безопасность объектов, но и минимизировать риски, связанные с эксплуатацией газовых сетей.
Одним из ключевых направлений работы института является разработка систем автоматизации для управления газоснабжением. Современные технологии позволяют значительно повысить эффективность работы газораспределительных систем, обеспечивая автоматический контроль за параметрами газа, такими как давление и расход. Это, в свою очередь, способствует более точному распределению ресурсов и снижению потерь.
Проектный институт также активно занимается вопросами энергоэффективности. В условиях растущих цен на энергоносители и необходимости снижения углеродного следа, внедрение энергоэффективных решений становится особенно актуальным. Специалисты института разрабатывают проекты, которые включают в себя использование альтернативных источников энергии, таких как биогаз, что позволяет снизить зависимость от традиционных углеводородов.
Важным элементом работы проектного института является обучение и повышение квалификации сотрудников. В условиях быстро меняющихся технологий и требований рынка, постоянное обучение становится необходимым условием для успешной работы. Институт организует семинары, тренинги и курсы повышения квалификации, что позволяет специалистам оставаться в курсе последних тенденций и технологий в области газоснабжения.
Кроме того, проектный институт активно сотрудничает с научными учреждениями и университетами, что позволяет внедрять в практику новейшие разработки и исследования. Это сотрудничество способствует не только повышению качества проектирования, но и развитию научных исследований в области газоснабжения.
Важным аспектом работы проектного института является также взаимодействие с местными органами власти и населением. Открытость и прозрачность в работе позволяют наладить доверительные отношения с населением, что особенно важно при реализации крупных проектов, связанных с газоснабжением. Институт проводит общественные слушания и консультации, что позволяет учитывать мнения и пожелания граждан при проектировании новых объектов.
В заключение, проектный институт Нижнего Новгорода представляет собой важный центр компетенции в области проектирования систем газоснабжения. Его работа направлена на создание безопасных, эффективных и экологически чистых решений, которые отвечают современным требованиям и потребностям общества. Благодаря высококвалифицированным специалистам, современным технологиям и активному сотрудничеству с различными организациями, институт вносит значительный вклад в развитие газоснабжения в регионе и стране в целом.
Технологические решения
Проектный институт в Нижнем Новгороде активно внедряет современные технологические решения, которые способствуют повышению эффективности проектирования и реализации строительных объектов. В условиях быстро меняющегося рынка и растущих требований к качеству и срокам выполнения работ, использование передовых технологий становится неотъемлемой частью работы института.
Одним из ключевых направлений является применение информационного моделирования зданий (BIM). Эта технология позволяет создавать трехмерные модели объектов, которые содержат всю необходимую информацию о проекте. Использование BIM-технологий обеспечивает:
- Улучшение координации между различными участниками проекта;
- Снижение рисков ошибок и недоразумений;
- Оптимизацию затрат на строительство;
- Ускорение сроков проектирования и строительства.
Проектный институт активно обучает своих сотрудников работе с BIM, что позволяет им эффективно использовать эту технологию на всех этапах проектирования. Внедрение BIM также способствует более качественному управлению проектами, так как позволяет отслеживать изменения и их влияние на общую стоимость и сроки выполнения работ.
Кроме того, институт применяет геоинформационные системы (ГИС), которые позволяют анализировать пространственные данные и принимать обоснованные решения на основе анализа местоположения объектов. ГИС-технологии помогают в:
- Оценке воздействия на окружающую среду;
- Планировании инфраструктуры;
- Оптимизации логистики и транспортных потоков;
- Создании карт и схем для проектирования.
Использование ГИС в проектировании позволяет значительно повысить точность и качество проектных решений, а также сократить время на их разработку. Это особенно актуально для крупных и сложных проектов, где необходимо учитывать множество факторов.
Важным аспектом технологических решений является автоматизация процессов проектирования. Проектный институт внедряет специализированные программные решения, которые позволяют автоматизировать рутинные задачи, такие как расчет смет, создание чертежей и документации. Это не только ускоряет процесс, но и снижает вероятность ошибок, связанных с человеческим фактором.
Также стоит отметить, что проектный институт активно использует дистанционные технологии для взаимодействия с клиентами и партнерами. В условиях пандемии и ограничений, связанных с COVID-19, удаленные технологии стали особенно актуальными. Институт предлагает своим клиентам возможность проводить онлайн-консультации, презентации и обсуждения проектных решений, что позволяет поддерживать высокий уровень сервиса и оперативности.
Внедрение инновационных материалов и технологий также занимает важное место в работе проектного института. Использование новых строительных материалов, таких как композитные и экологически чистые, позволяет создавать более устойчивые и долговечные конструкции. Институт активно сотрудничает с производителями, что позволяет быть в курсе последних тенденций и новинок на рынке.
Таким образом, проектный институт в Нижнем Новгороде демонстрирует высокую степень готовности к внедрению современных технологических решений, что позволяет ему оставаться конкурентоспособным и успешно реализовывать проекты различной сложности.
Важным направлением в работе проектного института является интеграция технологий интернета вещей (IoT) в процессы проектирования и эксплуатации зданий. Установка сенсоров и систем мониторинга позволяет собирать данные о состоянии объектов в реальном времени, что значительно улучшает управление эксплуатацией. Это включает в себя:
- Мониторинг состояния конструкций;
- Управление системами отопления, вентиляции и кондиционирования;
- Оптимизацию потребления ресурсов, таких как вода и электроэнергия;
- Предотвращение аварийных ситуаций через раннее выявление проблем.
Институт активно разрабатывает проекты, в которых используются IoT-решения, что позволяет не только повысить комфорт и безопасность для пользователей, но и снизить эксплуатационные расходы. Например, системы автоматизированного управления освещением и климатом могут адаптироваться к условиям окружающей среды и потребностям пользователей, что делает здания более энергоэффективными.
Также стоит отметить, что проектный институт уделяет внимание экологическим технологиям и устойчивому строительству. В условиях глобальных изменений климата и растущих требований к охране окружающей среды, использование экологически чистых технологий становится приоритетом. Институт разрабатывает проекты, которые включают:
- Использование возобновляемых источников энергии;
- Системы сбора и переработки дождевой воды;
- Энергоэффективные технологии и материалы;
- Зеленые крыши и вертикальные сады.
Эти решения не только способствуют снижению негативного воздействия на природу, но и повышают привлекательность объектов для арендаторов и покупателей, что является важным фактором в условиях современного рынка.
Важным аспектом является партнерство с научными и образовательными учреждениями. Проектный институт активно сотрудничает с университетами и научными центрами, что позволяет внедрять в практику последние достижения науки и техники. Это сотрудничество включает в себя:
- Совместные исследования и разработки;
- Обмен опытом и знаниями;
- Организацию стажировок и практик для студентов;
- Участие в научных конференциях и семинарах.
Такое взаимодействие не только способствует повышению квалификации сотрудников института, но и позволяет привлекать молодые таланты, что является важным для дальнейшего развития компании.
В заключение, проектный институт в Нижнем Новгороде демонстрирует активное внедрение современных технологических решений, что позволяет ему успешно справляться с вызовами современного рынка. Использование BIM, ГИС, IoT, экологических технологий и партнерство с научными учреждениями создают прочную основу для реализации амбициозных проектов и достижения высоких результатов в области проектирования и строительства.
Проект организации строительства
Проектный институт в Нижнем Новгороде играет ключевую роль в организации строительства и проектирования различных объектов. Он занимается разработкой проектной документации, которая включает в себя архитектурные, инженерные и строительные решения. Основная задача проектного института заключается в создании качественных и безопасных проектов, соответствующих современным требованиям и стандартам.
Проектный институт в Нижнем Новгороде имеет богатую историю и опыт работы в различных областях строительства. Он осуществляет проектирование жилых, коммерческих и промышленных объектов, а также инфраструктурных сооружений. В процессе работы институт активно сотрудничает с государственными органами, заказчиками и подрядчиками, что позволяет обеспечить высокое качество проектирования и соблюдение сроков выполнения работ.
Одним из основных этапов работы проектного института является предпроектное обследование. На этом этапе специалисты проводят анализ существующих условий, изучают территорию, на которой планируется строительство, а также определяют технические и экономические параметры будущего объекта. Это позволяет выявить возможные риски и ограничения, которые могут повлиять на проект.
После завершения предпроектного обследования начинается разработка проектной документации. Этот процесс включает в себя несколько ключевых этапов:
- Архитектурное проектирование — создание концепции здания, его внешнего вида и функционального назначения.
- Инженерное проектирование — разработка систем водоснабжения, канализации, отопления, вентиляции и электроснабжения.
- Строительное проектирование — определение конструктивных решений, выбор материалов и технологий строительства.
Каждый из этих этапов требует высокой квалификации специалистов и тщательной проработки всех деталей. Проектный институт в Нижнем Новгороде располагает командой опытных архитекторов, инженеров и проектировщиков, которые используют современные программные средства для создания проектной документации. Это позволяет не только повысить качество проектов, но и сократить время на их разработку.
После завершения проектирования документация проходит экспертизу, которая включает в себя проверку на соответствие действующим нормам и стандартам. Экспертиза может быть как государственной, так и независимой. В случае выявления недостатков проект может быть доработан и повторно представлен на экспертизу.
После успешного прохождения экспертизы проектная документация передается заказчику, который может приступить к строительству. Важно отметить, что проектный институт также может оказывать услуги по авторскому надзору, что подразумевает контроль за соблюдением проектных решений в процессе строительства. Это позволяет избежать ошибок и несоответствий, которые могут возникнуть на этапе реализации проекта.
Важным аспектом работы проектного института является инновационное проектирование. В условиях быстро меняющегося рынка и новых технологий проектировщики должны быть готовы к внедрению современных решений. Это может включать использование энергосберегающих технологий, экологически чистых материалов и умных систем управления зданиями. Институт активно исследует новые подходы и внедряет их в свою практику, что позволяет создавать не только функциональные, но и устойчивые к изменениям проекты.
Кроме того, проектный институт в Нижнем Новгороде уделяет внимание информационному моделированию зданий (BIM). Эта технология позволяет создавать трехмерные модели объектов, которые содержат всю необходимую информацию о проекте. Использование BIM-технологий значительно упрощает процесс проектирования, позволяет выявлять возможные проблемы на ранних стадиях и улучшает взаимодействие между всеми участниками проекта.
Проектный институт также активно участвует в научно-исследовательской деятельности. Специалисты института проводят исследования в области новых строительных материалов, технологий и методов проектирования. Это позволяет не только повышать качество проектируемых объектов, но и вносить вклад в развитие строительной отрасли в целом.
Важным направлением работы института является обучение и повышение квалификации сотрудников. В условиях постоянного развития технологий и изменения законодательства проектировщики должны быть в курсе последних новинок и трендов. Институт организует семинары, тренинги и курсы повышения квалификации, что позволяет специалистам оставаться конкурентоспособными на рынке труда.
Взаимодействие с заказчиками и подрядчиками также играет важную роль в работе проектного института. Установление доверительных отношений и открытое общение позволяют лучше понять потребности клиентов и предложить им оптимальные решения. Институт стремится к тому, чтобы каждый проект был выполнен в срок и с высоким качеством, что способствует формированию положительной репутации и привлечению новых клиентов.
В заключение, проектный институт в Нижнем Новгороде представляет собой важный элемент строительной отрасли, обеспечивая высокое качество проектирования и внедрение современных технологий. Его работа охватывает все этапы — от предпроектного обследования до авторского надзора, что позволяет создавать эффективные и безопасные объекты, соответствующие требованиям времени.
Мероприятия по охране окружающей среды
Проектный институт в Нижнем Новгороде активно участвует в мероприятиях по охране окружающей среды, разрабатывая и внедряя экологически безопасные технологии и решения. В последние годы внимание к вопросам экологии стало особенно актуальным, и институт стремится соответствовать современным требованиям и стандартам в этой области.
Одним из ключевых направлений работы института является разработка экологических проектов, которые направлены на минимизацию негативного воздействия на окружающую среду. Это включает в себя как проектирование новых объектов, так и модернизацию существующих, с акцентом на использование ресурсов с максимальной эффективностью и минимальными потерями.
В рамках своей деятельности проектный институт реализует следующие мероприятия:
- Оценка воздействия на окружающую среду (ОВОС) - обязательный этап для всех новых проектов, который позволяет выявить потенциальные экологические риски и разработать меры по их минимизации.
- Разработка экологических норм и стандартов - институт активно участвует в создании и внедрении новых стандартов, которые способствуют улучшению экологической ситуации в регионе.
- Сотрудничество с государственными и частными организациями - проектный институт работает в тесном сотрудничестве с различными организациями, что позволяет обмениваться опытом и внедрять лучшие практики в области охраны окружающей среды.
- Обучение и повышение квалификации специалистов - институт организует курсы и семинары для сотрудников, направленные на повышение их знаний в области экологии и устойчивого развития.
- Мониторинг экологической ситуации - регулярный мониторинг состояния окружающей среды позволяет своевременно выявлять проблемы и разрабатывать меры по их устранению.
Кроме того, проектный институт активно внедряет инновационные технологии, которые способствуют снижению негативного воздействия на природу. Это может включать в себя использование возобновляемых источников энергии, внедрение систем утилизации отходов и разработку технологий, позволяющих сократить выбросы загрязняющих веществ в атмосферу.
Важным аспектом работы института является информирование общественности о проводимых мероприятиях и достигнутых результатах. Это позволяет не только повысить уровень осведомленности населения о проблемах экологии, но и привлечь внимание к важности охраны окружающей среды.
Проектный институт в Нижнем Новгороде также активно участвует в государственных и региональных программах, направленных на улучшение экологической ситуации. Это сотрудничество позволяет не только получать финансирование для реализации экологических проектов, но и обмениваться опытом с другими регионами и странами.
Таким образом, проектный институт в Нижнем Новгороде играет важную роль в мероприятиях по охране окружающей среды, разрабатывая и внедряя эффективные решения, которые способствуют устойчивому развитию региона и улучшению качества жизни его жителей.
Важным направлением работы проектного института является разработка и внедрение систем управления отходами. В условиях растущего объема производственных и бытовых отходов, эффективное их управление становится критически важным. Институт разрабатывает проекты, направленные на создание современных систем сортировки, переработки и утилизации отходов, что позволяет значительно снизить нагрузку на окружающую среду.
Одним из примеров успешной реализации таких проектов является создание модульных комплексов по переработке отходов, которые могут быть установлены в различных районах города. Эти комплексы позволяют не только перерабатывать отходы, но и производить из них вторичные ресурсы, что способствует экономии природных ресурсов и снижению уровня загрязнения.
Кроме того, проектный институт активно занимается разработкой зеленых технологий, которые способствуют снижению углеродного следа. Это включает в себя использование альтернативных источников энергии, таких как солнечные и ветровые установки, а также внедрение энергоэффективных решений в строительстве и эксплуатации зданий. Например, проекты по созданию энергосберегающих зданий с использованием современных теплоизоляционных материалов и систем автоматизации позволяют значительно сократить потребление энергии.
Важным аспектом работы института является взаимодействие с местными сообществами. Проектный институт организует различные мероприятия, направленные на повышение экологической осведомленности населения. Это могут быть семинары, лекции, а также акции по очистке территорий и озеленению. Такие инициативы способствуют формированию у граждан ответственности за состояние окружающей среды и вовлечению их в процесс охраны природы.
Институт также активно участвует в научных исследованиях, направленных на изучение состояния экологии в регионе. Результаты этих исследований используются для разработки новых проектов и программ, а также для оценки эффективности уже реализованных инициатив. Сотрудничество с научными учреждениями и университетами позволяет привлекать к работе молодых специалистов и внедрять инновационные подходы в области охраны окружающей среды.
В рамках своей деятельности проектный институт также уделяет внимание экологическому мониторингу. Это включает в себя регулярные замеры уровня загрязнения воздуха, воды и почвы, а также оценку состояния экосистем. Полученные данные позволяют не только отслеживать изменения в окружающей среде, но и разрабатывать меры по их улучшению.
Таким образом, проектный институт в Нижнем Новгороде активно работает над реализацией мероприятий по охране окружающей среды, внедряя современные технологии и подходы, которые способствуют устойчивому развитию региона. Его деятельность направлена на создание безопасной и комфортной среды для жизни, что является важной задачей для будущих поколений.
Мероприятия по обеспечению пожарной безопасности
Проектный институт в Нижнем Новгороде активно занимается вопросами обеспечения пожарной безопасности на всех этапах проектирования и строительства объектов. Важность этой темы невозможно переоценить, так как соблюдение норм и правил пожарной безопасности является залогом безопасности людей и сохранности имущества.
Одним из ключевых аспектов работы проектного института является разработка проектной документации, которая включает в себя все необходимые расчеты и обоснования для обеспечения пожарной безопасности. Это касается как жилых, так и производственных зданий, а также общественных и административных объектов.
Проектирование систем противопожарной защиты начинается с анализа пожарных рисков, которые могут возникнуть в процессе эксплуатации здания. Специалисты института проводят детальное обследование территории, изучают архитектурные особенности и функциональное назначение объекта, что позволяет выявить потенциальные угрозы и разработать эффективные меры по их минимизации.
В рамках проектирования учитываются следующие ключевые элементы:
- Системы оповещения и управления эвакуацией – проектируются с учетом максимальной эффективности и быстроты реагирования в случае возникновения пожара.
- Системы автоматического пожаротушения – выбираются в зависимости от типа объекта и его назначения, включая спринклерные системы, системы водяного тумана и другие.
- Пожарные лестницы и выходы – проектируются с учетом норм и правил, обеспечивая безопасную эвакуацию людей в случае чрезвычайной ситуации.
- Материалы и конструкции – выбираются с учетом их огнестойкости и способности противостоять воздействию высоких температур.
Кроме того, проектный институт в Нижнем Новгороде активно сотрудничает с пожарными службами и другими государственными органами, что позволяет обеспечить соответствие проектной документации действующим нормативам и стандартам. Это сотрудничество включает в себя:
- Консультации по актуальным требованиям законодательства в области пожарной безопасности.
- Проведение экспертиз проектной документации.
- Участие в проверках и инспекциях на этапе строительства.
Важным этапом является обучение персонала, который будет работать в проектируемом здании. Проектный институт разрабатывает программы обучения, которые включают в себя:
- Основы пожарной безопасности.
- Правила поведения в случае возникновения пожара.
- Использование средств индивидуальной защиты и первичных средств пожаротушения.
Таким образом, проектный институт в Нижнем Новгороде обеспечивает комплексный подход к вопросам пожарной безопасности, начиная с проектирования и заканчивая обучением персонала. Это позволяет минимизировать риски и создать безопасные условия для жизни и работы людей.
Важным аспектом работы проектного института является интеграция современных технологий в системы пожарной безопасности. Это включает в себя использование автоматизированных систем управления, которые позволяют в реальном времени отслеживать состояние систем противопожарной защиты и оперативно реагировать на возможные угрозы.
Современные технологии, такие как интернет вещей (IoT), позволяют интегрировать датчики дыма, температуры и другие устройства в единую сеть, что обеспечивает более высокий уровень контроля и безопасности. Эти системы могут автоматически уведомлять службы экстренной помощи и инициировать процессы эвакуации, что значительно сокращает время реагирования.
Кроме того, проектный институт активно использует моделирование для оценки поведения огня и распространения дыма в проектируемых зданиях. Это позволяет более точно прогнозировать возможные сценарии и разрабатывать эффективные меры по предотвращению и тушению пожаров. Моделирование включает в себя:
- Создание трехмерных моделей зданий с учетом всех архитектурных особенностей.
- Анализ путей эвакуации и их эффективности в различных ситуациях.
- Оценка воздействия огня на конструкции и материалы.
Проектный институт также уделяет внимание экологическим аспектам пожарной безопасности. Использование экологически чистых и безопасных материалов в строительстве, а также внедрение систем, которые минимизируют выбросы вредных веществ при пожаре, становится все более актуальным. Это не только соответствует современным требованиям, но и способствует созданию более безопасной и здоровой среды для людей.
Важным элементом является постоянный мониторинг и обновление проектной документации в соответствии с изменениями в законодательстве и новыми научными разработками. Проектный институт регулярно проводит анализ актуальных норм и стандартов, что позволяет своевременно вносить изменения в проекты и обеспечивать их соответствие современным требованиям.
Также стоит отметить, что проектный институт активно участвует в научных исследованиях и разработках в области пожарной безопасности. Это сотрудничество с университетами и научными учреждениями позволяет внедрять инновационные решения и повышать уровень квалификации специалистов. Участие в конференциях и семинарах способствует обмену опытом и внедрению лучших практик в проектирование систем противопожарной защиты.
В заключение, проектный институт в Нижнем Новгороде демонстрирует высокие стандарты в области обеспечения пожарной безопасности, применяя комплексный подход, современные технологии и научные разработки. Это позволяет не только соответствовать требованиям законодательства, но и создавать безопасные условия для жизни и работы людей, что является приоритетом в деятельности института.
Требования к обеспечению безопасной эксплуатации объектов капитального строительства
Проектный институт в Нижнем Новгороде играет ключевую роль в обеспечении безопасной эксплуатации объектов капитального строительства. В условиях современного строительства, где требования к безопасности и качеству постоянно растут, проектные институты должны соответствовать строгим стандартам и нормам. Это касается как проектирования новых объектов, так и реконструкции существующих.
Одним из основных требований к проектным институтам является наличие квалифицированного персонала. Специалисты должны иметь соответствующее образование и опыт работы в области проектирования и строительства. Это включает в себя архитекторов, инженеров, конструкторов и других профессионалов, которые способны разрабатывать проекты, соответствующие современным требованиям безопасности.
Кроме того, проектные институты обязаны следовать актуальным строительным нормам и правилам, которые регулярно обновляются. Это включает в себя как федеральные, так и региональные нормативные документы, касающиеся проектирования и строительства. Важно, чтобы все проекты проходили экспертизу, которая подтверждает их соответствие установленным требованиям.
Важным аспектом является также использование современных технологий и программного обеспечения в процессе проектирования. Это позволяет не только повысить качество проектной документации, но и минимизировать риски, связанные с ошибками в расчетах и проектировании. Применение BIM-технологий (информационного моделирования зданий) становится все более распространенным, так как они позволяют создавать точные модели объектов и проводить их анализ на различных этапах проектирования.
Проектный институт в Нижнем Новгороде также должен учитывать экологические аспекты при проектировании. Это включает в себя оценку воздействия на окружающую среду, использование экологически чистых материалов и технологий, а также проектирование объектов с учетом энергоэффективности. Все эти факторы способствуют не только безопасности эксплуатации, но и устойчивому развитию региона.
Не менее важным является взаимодействие проектного института с другими участниками строительного процесса. Это включает в себя заказчиков, подрядчиков, государственные органы и общественные организации. Эффективное сотрудничество позволяет учитывать интересы всех сторон и минимизировать возможные конфликты на этапе реализации проекта.
В рамках обеспечения безопасной эксплуатации объектов капитального строительства проектные институты также должны проводить обучение и повышение квалификации своих сотрудников. Это позволяет им быть в курсе последних изменений в законодательстве и новых технологий, что, в свою очередь, способствует повышению качества проектирования и безопасности объектов.
Таким образом, проектный институт в Нижнем Новгороде выполняет множество функций, направленных на обеспечение безопасной эксплуатации объектов капитального строительства. От квалификации специалистов до соблюдения норм и стандартов — все эти аспекты играют важную роль в создании безопасной и комфортной городской среды.
Важным элементом работы проектного института является проведение технического обследования существующих объектов. Это позволяет выявить потенциальные проблемы и риски, связанные с эксплуатацией зданий и сооружений. Техническое обследование включает в себя анализ состояния конструкций, инженерных систем и других элементов, что позволяет своевременно принимать меры по их ремонту или реконструкции.
Проектные институты также должны активно участвовать в разработке и внедрении новых стандартов и норм в области безопасности. Это может включать в себя участие в научных исследованиях, разработку рекомендаций и методических материалов, а также сотрудничество с образовательными учреждениями для подготовки новых специалистов. Важно, чтобы проектные институты не только следовали существующим нормам, но и сами становились инициаторами изменений, направленных на улучшение безопасности в строительстве.
В рамках обеспечения безопасности эксплуатации объектов капитального строительства проектные институты должны также учитывать социальные аспекты. Это включает в себя взаимодействие с местными жителями и общественными организациями, которые могут иметь свои мнения и предложения по проектам. Участие общественности в процессе проектирования способствует повышению прозрачности и доверия к проектным решениям.
Современные технологии также играют важную роль в обеспечении безопасности. Использование дронов для обследования объектов, применение виртуальной реальности для визуализации проектов и моделирования различных сценариев — все это позволяет значительно повысить качество проектирования и снизить риски. Проектные институты должны активно внедрять такие технологии в свою практику, чтобы оставаться конкурентоспособными и соответствовать современным требованиям.
Не менее важным аспектом является управление рисками на всех этапах проектирования и строительства. Проектные институты должны разрабатывать стратегии управления рисками, которые помогут минимизировать возможные негативные последствия. Это включает в себя как оценку рисков на этапе проектирования, так и мониторинг их реализации в процессе строительства.
В заключение, проектный институт в Нижнем Новгороде должен быть не только исполнителем проектных решений, но и активным участником в процессе обеспечения безопасности эксплуатации объектов капитального строительства. Это требует комплексного подхода, включающего квалификацию специалистов, соблюдение норм и стандартов, использование современных технологий и активное взаимодействие с общественностью. Все эти факторы способствуют созданию безопасной и комфортной городской среды, что является приоритетом для любого проектного института.
Мероприятия по обеспечению доступа инвалидов к объекту капитального строительства
В последние годы в России значительно возросло внимание к вопросам доступности объектов капитального строительства для людей с ограниченными возможностями. Это связано не только с необходимостью соблюдения законодательства, но и с растущим пониманием важности инклюзии и равных прав для всех граждан. Проектный институт в Нижнем Новгороде активно участвует в разработке и реализации мероприятий, направленных на обеспечение доступа инвалидов к различным объектам.
Одним из ключевых аспектов работы проектного института является создание проектной документации, которая учитывает потребности людей с ограниченными возможностями. Это включает в себя не только архитектурные решения, но и инженерные системы, которые должны быть адаптированы для использования инвалидами. Важным этапом является проведение анализа существующих объектов и выявление их недостатков с точки зрения доступности.
Проектный институт Нижнего Новгорода применяет современные технологии и методы проектирования, чтобы обеспечить максимальную доступность. В частности, используются:
- Универсальный дизайн: концепция, которая предполагает создание объектов, удобных для всех пользователей, независимо от их физических возможностей.
- Специальные технические средства: такие как подъемники, пандусы и тактильные указатели, которые помогают инвалидам передвигаться по территории.
- Адаптация существующих объектов: модернизация старых зданий с учетом новых стандартов доступности.
Важным этапом в проектировании является взаимодействие с представителями общественных организаций инвалидов. Это позволяет учесть реальные потребности и пожелания людей с ограниченными возможностями. Проектный институт активно сотрудничает с такими организациями, проводя консультации и обсуждения на всех этапах проектирования.
Кроме того, проектный институт Нижнего Новгорода уделяет внимание обучению своих сотрудников. Специалисты проходят курсы повышения квалификации, на которых изучают современные подходы к проектированию доступной среды. Это позволяет им быть в курсе последних изменений в законодательстве и новых технологий, которые могут быть применены в их работе.
В рамках мероприятий по обеспечению доступа инвалидов к объектам капитального строительства также разрабатываются рекомендации по эксплуатации и обслуживанию таких объектов. Это включает в себя регулярные проверки состояния пандусов, подъемников и других технических средств, а также обучение персонала, работающего с инвалидами.
Таким образом, проектный институт Нижнего Новгорода активно работает над созданием доступной среды для людей с ограниченными возможностями. Это не только соответствует требованиям законодательства, но и способствует улучшению качества жизни инвалидов, позволяя им более полно участвовать в общественной жизни.
Одним из важных аспектов проектирования доступной среды является соблюдение норм и стандартов, установленных на федеральном уровне. В России действуют различные нормативные документы, такие как СНиП 35-01-2001 и Федеральный закон № 181-ФЗ «О социальной защите инвалидов в Российской Федерации», которые регламентируют требования к доступности объектов капитального строительства. Проектный институт Нижнего Новгорода строго придерживается этих норм, что позволяет создавать безопасные и удобные условия для всех пользователей.
В процессе проектирования также учитываются аспекты, касающиеся безопасности. Например, необходимо предусмотреть наличие достаточного освещения на пандусах и в местах общего пользования, а также обеспечить наличие четкой навигации для людей с нарушениями зрения. Это может включать в себя тактильные полосы, звуковые сигналы и визуальные указатели, которые помогут инвалидам ориентироваться в пространстве.
Проектный институт активно использует современные программные решения для моделирования доступной среды. Это позволяет не только визуализировать проект, но и проводить анализ его функциональности. С помощью 3D-моделирования можно заранее выявить возможные проблемы и внести необходимые изменения до начала строительных работ. Такой подход значительно снижает риски и повышает качество конечного продукта.
Кроме того, проектный институт Нижнего Новгорода участвует в разработке и внедрении новых технологий, которые могут улучшить доступность объектов. Например, использование умных технологий, таких как системы автоматизации, может значительно упростить жизнь людям с ограниченными возможностями. Это может включать в себя автоматические двери, системы управления освещением и климатом, которые могут быть адаптированы для использования инвалидами.
Важным направлением работы проектного института является также просвещение и информирование общества о проблемах доступности. Проводятся семинары, конференции и круглые столы, на которых обсуждаются актуальные вопросы и делятся успешные практики. Это способствует формированию общественного мнения о важности создания доступной среды и повышает уровень осведомленности среди архитекторов, строителей и проектировщиков.
В заключение, проектный институт Нижнего Новгорода активно работает над созданием доступной среды для людей с ограниченными возможностями. Это требует комплексного подхода, включающего в себя соблюдение норм, использование современных технологий и взаимодействие с общественными организациями. Все эти усилия направлены на то, чтобы каждый человек, независимо от своих физических возможностей, мог полноценно участвовать в жизни общества и пользоваться всеми благами, которые предоставляет современный мир.
Смета на строительство, реконструкцию, капитальный ремонт, снос объекта капитального строительства
Проектный институт в Нижнем Новгороде играет ключевую роль в процессе разработки смет на строительство, реконструкцию, капитальный ремонт и снос объектов капитального строительства. Эти процессы требуют высокой квалификации и точности, так как от них зависит не только финансовая сторона проекта, но и его успешная реализация в целом.
Смета — это документ, который содержит полную информацию о предполагаемых затратах на выполнение строительных работ. Она включает в себя все необходимые расчеты, которые позволяют определить стоимость материалов, труда, а также других ресурсов, необходимых для завершения проекта. Важно отметить, что смета должна быть составлена с учетом всех нюансов, связанных с конкретным объектом, его местоположением и особенностями строительства.
Проектный институт в Нижнем Новгороде осуществляет следующие этапы работы по составлению смет:
- Сбор исходных данных. На этом этапе специалисты собирают всю необходимую информацию о проекте, включая технические задания, архитектурные решения и требования заказчика.
- Разработка сметной документации. На основе собранных данных разрабатывается сметная документация, которая включает в себя расчеты стоимости всех работ и материалов.
- Анализ и корректировка сметы. После первичного расчета смета проходит анализ, в ходе которого выявляются возможные ошибки и неточности. При необходимости вносятся корректировки.
- Согласование сметы с заказчиком. Готовая смета представляется заказчику для согласования. Важно, чтобы все стороны были удовлетворены итоговыми цифрами.
- Утверждение сметы. После согласования смета утверждается, и на ее основе начинается реализация проекта.
Каждый из этих этапов требует высокой квалификации специалистов, работающих в проектном институте. Они должны быть знакомы с актуальными нормами и стандартами, а также иметь опыт работы с различными типами объектов. Это позволяет им не только точно рассчитывать смету, но и предлагать оптимальные решения для снижения затрат без ущерба для качества.
Кроме того, проектный институт в Нижнем Новгороде активно использует современные технологии и программное обеспечение для автоматизации процесса составления смет. Это позволяет значительно ускорить работу и минимизировать вероятность ошибок. Использование специализированных программных продуктов также позволяет проводить анализ затрат и прогнозировать возможные изменения в стоимости на разных этапах реализации проекта.
Важно отметить, что смета на строительство, реконструкцию, капитальный ремонт или снос объекта капитального строительства должна учитывать не только прямые затраты, но и косвенные расходы, такие как налоги, страхование, а также возможные риски, связанные с реализацией проекта. Проектный институт в Нижнем Новгороде уделяет особое внимание этим аспектам, что позволяет создавать более точные и обоснованные сметы.
Таким образом, проектный институт в Нижнем Новгороде выполняет важную функцию в процессе разработки сметной документации, обеспечивая высокое качество и точность расчетов, что в свою очередь способствует успешной реализации строительных проектов.
Одним из ключевых аспектов работы проектного института является соблюдение актуальных норм и стандартов, регулирующих сметное дело. В России существует множество нормативных документов, таких как СНиП, ГОСТ и другие, которые определяют правила составления сметной документации. Специалисты института должны быть в курсе всех изменений в законодательстве и новых требований, чтобы гарантировать соответствие смет всем необходимым стандартам.
Кроме того, проектный институт активно сотрудничает с различными поставщиками и подрядчиками, что позволяет получать актуальные данные о ценах на строительные материалы и услуги. Это сотрудничество также помогает в поиске оптимальных решений для снижения затрат, что является важным аспектом в условиях конкурентного рынка.
Важным этапом в процессе составления сметы является оценка рисков. Проектный институт проводит анализ возможных рисков, связанных с реализацией проекта, таких как изменения в ценах на материалы, задержки в поставках или изменения в законодательстве. На основе этого анализа разрабатываются стратегии минимизации рисков, что позволяет избежать непредвиденных затрат в будущем.
Также стоит отметить, что проектный институт в Нижнем Новгороде активно использует методы управления проектами, такие как Agile и Lean. Эти подходы позволяют более гибко реагировать на изменения в процессе реализации проекта и оптимизировать затраты. Например, использование методологии Agile позволяет вносить изменения в смету на этапе выполнения работ, что особенно важно в условиях динамично меняющегося рынка.
Важным аспектом работы проектного института является также обучение и повышение квалификации сотрудников. Специалисты регулярно проходят курсы и тренинги, что позволяет им быть в курсе последних тенденций в области сметного дела и строительных технологий. Это, в свою очередь, способствует повышению качества работы и улучшению конечного результата.
Проектный институт также активно использует современные технологии для повышения эффективности работы. Например, применение BIM-технологий (информационного моделирования зданий) позволяет создавать трехмерные модели объектов, что значительно упрощает процесс составления смет и позволяет более точно оценивать затраты. Использование таких технологий также способствует улучшению взаимодействия между всеми участниками проекта, что является важным фактором для успешной реализации строительных проектов.
В заключение, проектный институт в Нижнем Новгороде выполняет важную роль в процессе разработки смет на строительство, реконструкцию, капитальный ремонт и снос объектов капитального строительства. Высокая квалификация специалистов, соблюдение актуальных норм и стандартов, а также использование современных технологий и методов управления проектами позволяют создавать точные и обоснованные сметы, что в свою очередь способствует успешной реализации строительных проектов.


















