Проектирование в строительстве
Проектирование в строительстве
В современном строительстве проектирование играет ключевую роль, обеспечивая качественное и безопасное возведение объектов. Важным аспектом этого процесса является соблюдение нормативных актов, регулирующих проектные работы. Одним из таких документов является 87 постановление правительства, которое определяет основные принципы и требования к строительному проектированию.
В данной статье мы рассмотрим, как 87 постановление влияет на проектирование в строительстве, а также выделим ключевые моменты, которые необходимо учитывать при разработке проектной документации. Мы также представим оглавление, которое поможет вам лучше ориентироваться в содержании статьи:
- Общие положения 87 постановления
- Требования к проектной документации
- Процессы согласования и экспертизы
- Ответственность за нарушение норм
- Практические примеры применения
Следуя рекомендациям, изложенным в данной статье, вы сможете более эффективно организовать процесс проектирования и обеспечить соответствие всем необходимым стандартам и требованиям.
Согласно 87 ПП (87 постановление правительства)
Проектирование в строительстве является важным этапом, который определяет качество и безопасность будущих объектов. В соответствии с 87 постановлением правительства, проектирование должно осуществляться с учетом современных требований и стандартов, что обеспечивает надежность и долговечность зданий и сооружений.
Одним из ключевых аспектов проектирования является соблюдение норм и правил, установленных законодательством. 87 ПП регламентирует основные принципы проектирования, включая требования к архитектурным, конструктивным и инженерным решениям. Это постановление направлено на создание безопасной и комфортной городской среды, а также на защиту прав граждан.
В рамках проектирования необходимо учитывать следующие основные этапы:
- Исследование условий застройки - на этом этапе проводятся геодезические, геологические и экологические исследования, которые позволяют определить особенности участка и его пригодность для строительства.
- Разработка проектной документации - включает в себя создание архитектурных, конструктивных и инженерных решений, а также сметной документации. Проектная документация должна соответствовать требованиям 87 ПП и другим нормативным актам.
- Согласование проектной документации - проект должен быть согласован с различными инстанциями, включая органы местного самоуправления, пожарную безопасность и санитарные службы.
- Экспертиза проектной документации - обязательный этап, на котором проверяется соответствие проекта действующим нормам и стандартам. Экспертиза может быть государственной или негосударственной.
- Получение разрешения на строительство - после успешного прохождения экспертизы застройщик получает разрешение, которое позволяет начать строительные работы.
Каждый из этих этапов требует тщательной проработки и соблюдения всех норм, что в конечном итоге влияет на безопасность и качество построенного объекта. Важно отметить, что 87 ПП также акцентирует внимание на необходимости использования современных технологий и материалов, что позволяет повысить эффективность проектирования и строительства.
Кроме того, проектирование должно учитывать не только технические, но и социальные аспекты. Важно, чтобы здания и сооружения соответствовали потребностям населения, обеспечивали доступность и комфорт. Это особенно актуально для общественных объектов, таких как школы, больницы и спортивные комплексы.
В рамках проектирования также необходимо учитывать экологические аспекты. 87 ПП подчеркивает важность устойчивого развития и охраны окружающей среды. Проектировщики должны стремиться к минимизации негативного воздействия на природу, используя экологически чистые материалы и технологии.
Таким образом, проектирование в строительстве, согласно 87 ПП, представляет собой комплексный процесс, который требует учета множества факторов. Это не только технические и экономические аспекты, но и социальные, экологические и культурные. Важно, чтобы проектировщики работали в тесном сотрудничестве с различными специалистами и органами власти, что позволит создать качественные и безопасные объекты, соответствующие современным требованиям.
Важным аспектом проектирования является выбор проектной команды. Согласно 87 ПП, проектирование должно осуществляться квалифицированными специалистами, имеющими соответствующие лицензии и опыт работы. Это гарантирует, что проект будет выполнен на высоком уровне и в соответствии с установленными стандартами.
Проектная команда обычно включает в себя архитекторов, инженеров-строителей, проектировщиков систем отопления, вентиляции и кондиционирования, а также специалистов по электроснабжению и водоснабжению. Каждый из этих специалистов отвечает за свою область, что позволяет создать комплексное решение, учитывающее все аспекты будущего объекта.
Кроме того, 87 ПП акцентирует внимание на необходимости применения современных технологий в проектировании. Это включает в себя использование программного обеспечения для моделирования зданий (BIM-технологии), что позволяет визуализировать проект на ранних этапах и выявлять возможные проблемы до начала строительства. Такие технологии способствуют повышению точности проектирования и снижению рисков, связанных с ошибками.
Не менее важным является вопрос финансирования проектирования. В соответствии с 87 ПП, застройщики должны заранее планировать бюджет, который включает в себя не только затраты на проектирование, но и на строительство, а также на последующее обслуживание объекта. Это позволяет избежать финансовых трудностей и задержек в реализации проекта.
Также стоит отметить, что проектирование должно учитывать требования к энергоэффективности зданий. В соответствии с современными стандартами, здания должны быть спроектированы таким образом, чтобы минимизировать потребление энергии и снизить углеродный след. Это может быть достигнуто за счет использования энергоэффективных систем отопления, вентиляции и кондиционирования, а также за счет применения современных изоляционных материалов.
Важным элементом проектирования является также соблюдение норм безопасности. 87 ПП требует, чтобы все проекты проходили оценку рисков и соответствовали требованиям по пожарной безопасности, сейсмостойкости и другим критериям. Это особенно актуально для объектов, которые могут представлять опасность для жизни и здоровья людей.
В процессе проектирования необходимо также учитывать требования к доступности для людей с ограниченными возможностями. Это включает в себя проектирование пандусов, лифтов и других элементов, которые обеспечивают комфортный доступ к зданиям и сооружениям для всех категорий граждан.
Таким образом, проектирование в строительстве, согласно 87 ПП, представляет собой многогранный процесс, который требует комплексного подхода и учета множества факторов. Это не только технические и экономические аспекты, но и социальные, экологические и культурные. Важно, чтобы проектировщики работали в тесном сотрудничестве с различными специалистами и органами власти, что позволит создать качественные и безопасные объекты, соответствующие современным требованиям.
В заключение, проектирование в строительстве является основой для успешной реализации строительных проектов. Соблюдение норм и требований, установленных 87 ПП, позволяет обеспечить безопасность, комфорт и устойчивое развитие городской инфраструктуры. Важно, чтобы все участники процесса осознавали свою ответственность и стремились к созданию качественных и безопасных объектов, которые будут служить обществу на протяжении многих лет.
Пояснительная записка
Проектирование в строительстве – это сложный и многогранный процесс, который включает в себя множество этапов и аспектов. На начальном этапе проектирования важно определить основные цели и задачи, которые должны быть достигнуты в ходе реализации строительного проекта. Это может включать в себя как функциональные, так и эстетические требования к будущему объекту.
Одним из ключевых аспектов проектирования является исследование участка, на котором планируется строительство. Это исследование включает в себя анализ геологических, гидрологических и экологических условий, а также изучение существующей инфраструктуры. На основании полученных данных разрабатываются предварительные решения, которые помогут избежать возможных проблем в будущем.
Следующим этапом является разработка концепции проекта. На этом этапе архитекторы и инженеры работают над созданием общего видения объекта, включая его форму, размеры и функциональные зоны. Важно учитывать не только требования заказчика, но и нормы и правила, действующие в данной области. Концепция должна быть согласована с заказчиком и другими заинтересованными сторонами.
После утверждения концепции начинается разработка проектной документации. Этот этап включает в себя создание чертежей, спецификаций и других документов, необходимых для реализации проекта. Проектная документация должна быть детализированной и соответствовать всем требованиям законодательства. Важно также учитывать возможные изменения в процессе строительства и заранее предусмотреть их в проекте.
На этапе проектирования также необходимо провести расчеты, которые включают в себя определение нагрузок, выбор строительных материалов и технологий. Эти расчеты должны быть выполнены с учетом всех факторов, влияющих на безопасность и долговечность объекта. Важно, чтобы все расчеты были проверены и подтверждены специалистами.
Не менее важным является согласование проекта с различными инстанциями. Это может включать в себя получение разрешений на строительство, согласование с органами охраны окружающей среды и другими контролирующими организациями. На этом этапе могут возникнуть дополнительные требования, которые необходимо учесть в проекте.
После завершения всех подготовительных этапов начинается реализация проекта. Этот процесс включает в себя не только строительство, но и контроль за качеством выполняемых работ. Важно, чтобы все работы выполнялись в соответствии с проектной документацией и установленными стандартами. На этом этапе также осуществляется взаимодействие с подрядчиками и поставщиками материалов.
В процессе реализации проекта могут возникать различные проблемы и риски, которые необходимо своевременно выявлять и решать. Это может включать в себя как технические, так и финансовые вопросы. Эффективное управление проектом на этом этапе является залогом успешного завершения строительства.
После завершения строительных работ наступает этап приемки объекта. На этом этапе осуществляется проверка соответствия построенного здания проектной документации и действующим нормам. Приемка включает в себя как визуальный осмотр, так и технические испытания, которые позволяют оценить качество выполненных работ и безопасность объекта. Важно, чтобы все выявленные недостатки были устранены до передачи объекта заказчику.
Следующим шагом является ввод объекта в эксплуатацию. Для этого необходимо подготовить пакет документов, который включает в себя акты приемки, сертификаты на использованные материалы и другие необходимые документы. Ввод в эксплуатацию также требует согласования с различными инстанциями, что может занять определенное время. После успешного завершения всех процедур объект официально становится доступным для использования.
Не менее важным аспектом является последующий мониторинг и обслуживание объекта. После ввода в эксплуатацию необходимо следить за состоянием здания, проводить регулярные проверки и техническое обслуживание. Это поможет выявить возможные проблемы на ранних стадиях и предотвратить серьезные повреждения. Также важно учитывать, что в процессе эксплуатации могут возникать изменения в требованиях к объекту, что может потребовать внесения изменений в проект.
Важным элементом проектирования является учет устойчивого развития. Современные строительные проекты должны соответствовать принципам устойчивого развития, что включает в себя использование экологически чистых материалов, энергоэффективные технологии и минимизацию негативного воздействия на окружающую среду. Это не только способствует сохранению экологии, но и может значительно снизить эксплуатационные расходы объекта.
В заключение, проектирование в строительстве – это комплексный процесс, который требует внимательного подхода на каждом этапе. От начального исследования участка до ввода объекта в эксплуатацию, каждый шаг имеет значение для успешной реализации проекта. Важно учитывать все аспекты, включая технические, экономические и экологические, чтобы создать качественный и безопасный объект, который будет служить людям на протяжении многих лет.
Таким образом, проектирование в строительстве – это не просто создание чертежей, а целый процесс, включающий в себя множество этапов и взаимодействие различных специалистов. Успех проекта зависит от грамотного планирования, тщательной проработки всех деталей и эффективного управления на всех этапах его реализации.
Схема планировочной организации земельного участка
Проектирование в строительстве является важным этапом, который включает в себя множество аспектов, связанных с планировкой и организацией земельного участка. На этом этапе необходимо учитывать не только архитектурные и инженерные решения, но и требования к функциональности, безопасности и эстетике будущего объекта.
Одним из ключевых элементов проектирования является схема планировочной организации земельного участка, которая служит основой для дальнейших работ. Эта схема включает в себя размещение зданий, сооружений, дорожной сети, зеленых насаждений и других элементов, необходимых для полноценного функционирования территории.
При разработке схемы планировочной организации необходимо учитывать следующие факторы:
- Функциональное назначение участка: Определение целей использования земельного участка, таких как жилое, коммерческое или промышленное строительство.
- Топографические особенности: Изучение рельефа, наличия водоемов, лесов и других природных объектов, которые могут повлиять на проект.
- Градостроительные нормы: Соблюдение местных строительных норм и правил, включая ограничения по высоте зданий, плотности застройки и отступам от границ участка.
- Инженерные сети: Проектирование подключения к существующим инженерным коммуникациям, таким как водоснабжение, канализация, электроснабжение и газоснабжение.
- Экологические аспекты: Оценка воздействия на окружающую среду и соблюдение экологических норм, включая защиту зеленых насаждений и сохранение природных ландшафтов.
На этапе проектирования важно также провести анализ земельного участка, который включает в себя:
- Геодезические исследования: Определение границ участка, его площади и конфигурации.
- Геологические изыскания: Изучение состава грунта, уровня грунтовых вод и других геологических характеристик, которые могут повлиять на выбор фундамента и конструктивных решений.
- Экономический анализ: Оценка стоимости строительства, эксплуатационных расходов и потенциальной прибыли от использования объекта.
После сбора всех необходимых данных начинается разработка концепции проектирования, которая включает в себя:
- Создание эскизов и схем: Визуализация будущего объекта и его окружения, что позволяет лучше понять, как он будет вписываться в существующий ландшафт.
- Определение архитектурных решений: Выбор стиля, материалов и конструктивных решений, которые будут использоваться в строительстве.
- Планирование инфраструктуры: Разработка схемы транспортных и пешеходных путей, размещение парковок и зон отдыха.
Важным аспектом проектирования является учет мнения заинтересованных сторон, таких как местные жители, бизнесмены и представители власти. Это позволяет избежать конфликтов и обеспечить поддержку проекта на всех этапах его реализации.
Таким образом, проектирование в строительстве требует комплексного подхода и внимательного анализа множества факторов, что в конечном итоге влияет на успешность реализации проекта и его соответствие современным требованиям.
После разработки концепции проектирования и получения предварительных согласований, следующим этапом является подготовка проектной документации. Этот процесс включает в себя создание детализированных чертежей, спецификаций и расчетов, которые необходимы для реализации проекта. Проектная документация должна соответствовать всем действующим нормам и стандартам, а также учитывать требования заказчика.
Ключевыми элементами проектной документации являются:
- Архитектурные чертежи: Включают планы этажей, фасады, разрезы и детали, которые показывают, как будет выглядеть здание и его внутренние помещения.
- Конструктивные решения: Описывают типы используемых материалов, конструкций и систем, а также их прочностные характеристики.
- Инженерные системы: Проектирование систем водоснабжения, канализации, отопления, вентиляции и электроснабжения, включая схемы подключения и спецификации оборудования.
- План благоустройства: Включает в себя размещение зеленых насаждений, малых архитектурных форм, освещения и других элементов, которые создают комфортную среду для пользователей.
После завершения проектной документации необходимо провести экспертизу проекта. Это обязательная процедура, которая позволяет проверить соответствие проекта действующим нормам и требованиям. Экспертиза может быть как внутренней, так и внешней, и включает в себя оценку всех аспектов проектирования, включая архитектурные, конструктивные и инженерные решения.
В случае положительного заключения экспертизы проект может быть передан на стадию строительства. На этом этапе важно обеспечить качественное выполнение всех работ в соответствии с проектной документацией. Для этого необходимо:
- Выбор подрядчика: Проведение тендера или конкурсного отбора для выбора надежной строительной компании, которая будет отвечать за реализацию проекта.
- Контроль за выполнением работ: Организация регулярного мониторинга хода строительства, что позволяет своевременно выявлять и устранять возможные отклонения от проекта.
- Координация действий: Обеспечение взаимодействия между всеми участниками процесса, включая архитекторов, инженеров, строителей и заказчика.
Важным аспектом на этапе строительства является управление рисками. Необходимо заранее определить возможные риски, связанные с проектом, и разработать стратегии их минимизации. Это может включать в себя финансовые, технические и организационные риски, которые могут повлиять на сроки и качество выполнения работ.
После завершения строительных работ наступает этап приемки объекта. На этом этапе проводится проверка соответствия построенного объекта проектной документации и действующим нормам. Приемка включает в себя:
- Технический осмотр: Оценка качества выполненных работ, проверка всех систем и конструкций на соответствие проекту.
- Документальное оформление: Подготовка актов приемки, которые подтверждают завершение строительства и соответствие объекта всем требованиям.
- Передача объекта заказчику: Оформление всех необходимых документов для передачи прав собственности и начала эксплуатации объекта.
Таким образом, проектирование в строительстве — это многоэтапный процесс, который требует тщательной подготовки, анализа и контроля на всех стадиях. Успех проекта зависит от комплексного подхода, взаимодействия всех участников и соблюдения всех норм и стандартов.
Объемно-планировочные и архитектурные решения
Проектирование в строительстве является важным этапом, который определяет не только внешний вид здания, но и его функциональность, безопасность и экономическую эффективность. Объемно-планировочные и архитектурные решения играют ключевую роль в этом процессе, так как они формируют основу для дальнейших этапов проектирования и строительства.
Объемно-планировочные решения включают в себя определение размеров, форм и расположения зданий и сооружений на участке. Эти решения должны учитывать не только эстетические аспекты, но и функциональные требования, такие как удобство использования, доступность и соответствие нормам и стандартам. Важно, чтобы проектировщики учитывали особенности местности, климатические условия и окружающую застройку.
Архитектурные решения, в свою очередь, касаются внешнего облика здания, его стиля и материалов, используемых в строительстве. Архитектура должна гармонично вписываться в окружающую среду и отражать культурные и исторические особенности региона. При этом необходимо учитывать современные тенденции в архитектуре, такие как устойчивое строительство, энергоэффективность и использование экологически чистых материалов.
Процесс проектирования начинается с анализа требований заказчика и изучения условий участка. На этом этапе важно провести детальное обследование территории, чтобы выявить возможные ограничения и возможности для реализации проекта. После этого разрабатываются предварительные объемно-планировочные схемы, которые могут быть представлены в виде эскизов или 3D-моделей.
На следующем этапе проектировщики разрабатывают более детализированные планы, которые включают в себя размещение помещений, их размеры и функциональное назначение. Важно, чтобы все элементы здания были логично связаны между собой и обеспечивали комфортное использование пространства. Например, необходимо учитывать расположение входов и выходов, а также организацию внутренних коммуникаций.
При разработке архитектурных решений проектировщики должны учитывать не только эстетические, но и практические аспекты. Выбор материалов, цветовых решений и отделки может существенно повлиять на восприятие здания. Кроме того, необходимо учитывать долговечность и устойчивость материалов к внешним воздействиям, таким как осадки, ветер и солнечное излучение.
Важным аспектом проектирования является соблюдение строительных норм и правил. Каждое здание должно соответствовать требованиям безопасности, включая противопожарные меры, доступность для людей с ограниченными возможностями и устойчивость к природным катастрофам. Проектировщики должны быть в курсе актуальных норм и стандартов, чтобы избежать проблем на этапе строительства и эксплуатации.
Кроме того, объемно-планировочные и архитектурные решения должны учитывать экономические аспекты. Проект должен быть не только красивым и функциональным, но и экономически целесообразным. Это включает в себя оценку стоимости строительства, эксплуатационных расходов и потенциальной прибыли от использования здания. Важно находить баланс между качеством и стоимостью, чтобы проект был успешным и востребованным.
В заключение, объемно-планировочные и архитектурные решения являются основополагающими элементами проектирования в строительстве. Они определяют не только внешний вид и функциональность здания, но и его соответствие современным требованиям и стандартам. Успешное проектирование требует комплексного подхода, который учитывает все аспекты, от эстетики до экономики, и позволяет создать качественные и долговечные сооружения.
Одним из ключевых этапов в проектировании является создание концептуального дизайна, который служит основой для дальнейшей разработки проекта. На этом этапе архитекторы и проектировщики работают над созданием визуальных образов, которые отражают основные идеи и замыслы. Концептуальный дизайн может включать в себя различные стили, от классического до современного, и должен учитывать как функциональные, так и эстетические требования.
После утверждения концептуального дизайна начинается работа над детализированными чертежами и спецификациями. Это включает в себя создание архитектурных планов, разрезов и фасадов, а также проработку всех инженерных систем, таких как водоснабжение, отопление, вентиляция и электроснабжение. Важно, чтобы все эти системы были интегрированы в общий проект и не нарушали его гармонию.
В процессе проектирования также необходимо учитывать вопросы устойчивого развития. Современные здания должны быть энергоэффективными и минимизировать негативное воздействие на окружающую среду. Это может включать в себя использование возобновляемых источников энергии, таких как солнечные панели, а также применение экологически чистых материалов и технологий. Проектировщики должны быть готовы к внедрению инновационных решений, которые помогут снизить углеродный след здания.
Не менее важным аспектом является взаимодействие с различными заинтересованными сторонами, включая заказчиков, подрядчиков и местные органы власти. Эффективная коммуникация на всех этапах проектирования позволяет избежать недоразумений и конфликтов, а также обеспечивает соответствие проекта всем необходимым требованиям и стандартам. Регулярные встречи и обсуждения помогают выявить возможные проблемы на ранних стадиях и оперативно их решить.
Важным этапом является также согласование проектной документации с контролирующими органами. Это может включать в себя получение разрешений на строительство, согласование проектных решений с местными властями и соблюдение всех норм и стандартов. Проектировщики должны быть готовы к тому, что процесс согласования может занять значительное время и потребовать внесения изменений в проект.
После завершения проектирования и получения всех необходимых разрешений начинается этап строительства. На этом этапе важно обеспечить качественное выполнение всех работ в соответствии с проектной документацией. Для этого необходимо тщательно контролировать работу подрядчиков и проводить регулярные проверки. Важно, чтобы все строительные материалы соответствовали заявленным характеристикам и стандартам качества.
В процессе строительства также могут возникать непредвиденные обстоятельства, которые требуют оперативного реагирования. Это может быть связано с изменением условий на строительной площадке, нехваткой материалов или изменением требований заказчика. Проектировщики и строители должны быть готовы к гибкому подходу и внесению изменений в проект, чтобы обеспечить успешное завершение строительства.
После завершения строительных работ наступает этап эксплуатации здания. На этом этапе важно обеспечить его эффективное использование и поддержание в надлежащем состоянии. Это включает в себя регулярное техническое обслуживание, а также мониторинг состояния всех инженерных систем. Эффективное управление зданием позволяет продлить его срок службы и снизить эксплуатационные расходы.
Таким образом, объемно-планировочные и архитектурные решения являются неотъемлемой частью проектирования в строительстве. Они требуют комплексного подхода, который учитывает все аспекты, от концептуального дизайна до эксплуатации здания. Успешное проектирование позволяет создавать качественные, функциональные и эстетически привлекательные сооружения, которые отвечают современным требованиям и стандартам.
Конструктивные решения
Проектирование в строительстве – это сложный и многогранный процесс, который включает в себя множество аспектов, от выбора материалов до разработки конструктивных решений. Конструктивные решения играют ключевую роль в обеспечении безопасности, долговечности и функциональности зданий и сооружений. Они определяют, как будет выглядеть объект, как он будет взаимодействовать с окружающей средой и как будет восприниматься пользователями.
Одним из первых этапов проектирования является анализ требований к зданию. Это включает в себя изучение функционального назначения, условий эксплуатации, а также требований к безопасности и устойчивости. На этом этапе важно учитывать не только текущие, но и будущие потребности пользователей, что позволит избежать необходимости в значительных переделках в будущем.
Следующим шагом является выбор конструктивной системы. Существует множество различных систем, каждая из которых имеет свои преимущества и недостатки. Например, каркасные здания обеспечивают большую гибкость в планировке, в то время как монолитные конструкции могут предложить более высокую устойчивость к внешним нагрузкам. При выборе системы необходимо учитывать не только архитектурные требования, но и экономические аспекты, такие как стоимость материалов и работ.
При проектировании конструктивных решений также важно учитывать климатические условия региона. Например, в районах с высокой сейсмической активностью необходимо применять специальные технологии, которые обеспечат устойчивость зданий к землетрясениям. В то же время, в регионах с холодным климатом следует уделить внимание теплоизоляции и защите от снега и льда.
Кроме того, необходимо учитывать и экологические аспекты проектирования. Современные тенденции в строительстве направлены на создание устойчивых и энергоэффективных зданий. Это может включать в себя использование возобновляемых источников энергии, таких как солнечные панели, а также применение экологически чистых материалов. Важно, чтобы конструктивные решения способствовали минимизации негативного воздействия на окружающую среду.
В процессе проектирования также необходимо проводить расчеты, которые позволят определить прочность и устойчивость конструкций. Это включает в себя анализ нагрузок, которые будут действовать на здание, а также расчет его деформаций и устойчивости. Использование современных программных средств для моделирования и анализа конструкций значительно упрощает этот процесс и позволяет избежать ошибок.
Не менее важным аспектом является взаимодействие с другими участниками строительного процесса. Архитекторы, инженеры, строители и заказчики должны работать в тесном сотрудничестве, чтобы обеспечить успешное выполнение проекта. Это требует четкой коммуникации и согласования всех этапов проектирования и строительства.
В заключение, конструктивные решения в проектировании зданий и сооружений являются основой для создания безопасных, функциональных и устойчивых объектов. Каждый этап проектирования требует внимательного подхода и учета множества факторов, что делает этот процесс сложным, но в то же время увлекательным.
Одним из ключевых аспектов проектирования конструктивных решений является выбор материалов. Каждый материал имеет свои физические и механические свойства, которые влияют на общую прочность и долговечность конструкции. Например, бетон и сталь часто используются в сочетании, так как они дополняют друг друга: бетон хорошо воспринимает сжатие, а сталь – растяжение. При выборе материалов также следует учитывать их доступность, стоимость и экологические характеристики.
Важным этапом является также разработка чертежей и спецификаций. Чертежи должны быть максимально точными и детализированными, чтобы избежать недоразумений на этапе строительства. Спецификации содержат информацию о материалах, их количестве и способах монтажа. Это позволяет строителям точно следовать проекту и минимизировать риски ошибок.
Современные технологии, такие как Building Information Modeling (BIM), значительно упрощают процесс проектирования. BIM позволяет создавать трехмерные модели зданий, которые содержат всю необходимую информацию о конструкции, материалах и инженерных системах. Это не только улучшает визуализацию проекта, но и позволяет проводить анализ на ранних этапах, выявляя потенциальные проблемы до начала строительства.
Кроме того, важно учитывать строительные нормы и правила, которые регулируют проектирование и строительство. Эти нормы обеспечивают безопасность и качество зданий, а также защищают интересы пользователей. Проектировщики должны быть в курсе актуальных изменений в законодательстве и учитывать их в своих решениях.
На этапе реализации проекта конструктивные решения также могут подвергаться изменениям. Это может происходить по различным причинам: изменения в требованиях заказчика, возникновение непредвиденных обстоятельств или необходимость оптимизации затрат. Важно, чтобы все изменения были документированы и согласованы с участниками проекта, чтобы избежать конфликтов и недоразумений.
После завершения строительства необходимо провести проверку и испытания конструкций. Это позволяет убедиться в том, что здание соответствует проектным требованиям и безопасно для эксплуатации. В случае выявления недостатков, необходимо разработать план по их устранению, что также требует конструктивных решений.
В заключение, проектирование конструктивных решений в строительстве – это комплексный процесс, который требует глубоких знаний, опыта и взаимодействия между различными специалистами. Успех проекта зависит от тщательной проработки всех этапов, начиная от анализа требований и выбора материалов до реализации и последующей эксплуатации. Каждый из этих этапов играет важную роль в создании безопасных, функциональных и устойчивых зданий, которые будут служить людям на протяжении многих лет.
Системы электроснабжения
Проектирование систем электроснабжения в строительстве является важным этапом, который требует тщательного подхода и учета множества факторов. Основная цель проектирования заключается в создании надежной, безопасной и эффективной системы, способной обеспечить потребности здания в электроэнергии.
Процесс проектирования можно разделить на несколько ключевых этапов:
- Анализ потребностей: На этом этапе необходимо определить, какие электрические нагрузки будут в здании, включая освещение, отопление, вентиляцию и другие системы.
- Выбор источников питания: Важно рассмотреть различные источники электроэнергии, такие как центральные электросети, генераторы и альтернативные источники (солнечные панели, ветряные установки).
- Проектирование распределительных систем: Это включает в себя разработку схемы распределения электроэнергии, выбор кабелей, трансформаторов и других компонентов.
- Оценка нагрузки: Необходимо провести расчет электрических нагрузок, чтобы определить, какие элементы системы будут необходимы для обеспечения стабильной работы.
- Безопасность и защита: Проектирование должно учитывать меры безопасности, такие как автоматические выключатели, заземление и защитные устройства от перенапряжений.
Каждый из этих этапов требует глубоких знаний в области электротехники и строительных норм. Важно также учитывать местные правила и стандарты, которые могут варьироваться в зависимости от региона.
На этапе анализа потребностей необходимо провести детальное обследование объекта, чтобы понять, какие системы будут установлены и как они будут взаимодействовать друг с другом. Это поможет избежать перегрузок и обеспечить эффективное распределение электроэнергии.
При выборе источников питания важно учитывать не только доступность, но и экономическую целесообразность. Например, использование альтернативных источников может снизить затраты на электроэнергию в долгосрочной перспективе, но требует первоначальных инвестиций.
Проектирование распределительных систем включает в себя создание схемы, которая будет учитывать все электрические нагрузки и обеспечивать их равномерное распределение. Это также включает в себя выбор подходящих кабелей и оборудования, которые соответствуют требованиям по мощности и безопасности.
Оценка нагрузки является критически важным этапом, так как неправильные расчеты могут привести к перегрузкам и сбоям в работе системы. Необходимо учитывать все возможные сценарии использования электроэнергии, включая пиковые нагрузки.
Безопасность и защита систем электроснабжения должны быть приоритетом на всех этапах проектирования. Это включает в себя установку защитных устройств, которые могут предотвратить короткие замыкания и другие аварийные ситуации.
Таким образом, проектирование систем электроснабжения в строительстве требует комплексного подхода и учета множества факторов, чтобы обеспечить надежную и безопасную работу всех электрических систем в здании.
Следующим важным этапом проектирования является выбор оборудования для систем электроснабжения. Это включает в себя трансформаторы, распределительные щиты, автоматические выключатели и другие компоненты, которые должны соответствовать требованиям по мощности и безопасности. При выборе оборудования необходимо учитывать не только технические характеристики, но и условия эксплуатации, такие как температура, влажность и наличие агрессивных сред.
При проектировании систем электроснабжения также важно учитывать возможность будущего расширения или модернизации. Это может включать в себя резервирование мощности, установку дополнительных распределительных щитов или возможность подключения новых потребителей. Гибкость системы позволит избежать значительных затрат в будущем и обеспечит возможность адаптации к изменяющимся требованиям.
Не менее важным аспектом является проектирование системы освещения. Освещение должно быть не только функциональным, но и эстетически привлекательным. При проектировании освещения необходимо учитывать такие факторы, как уровень освещенности, распределение света и энергосбережение. Использование современных технологий, таких как светодиоды, может значительно снизить потребление электроэнергии и увеличить срок службы осветительных приборов.
Важным элементом проектирования является также создание схемы заземления. Заземление необходимо для защиты людей и оборудования от электрических ударов и перенапряжений. Проектирование системы заземления должно учитывать характеристики грунта, типы используемого оборудования и местные нормы и правила.
После завершения проектирования необходимо провести проверку всех расчетов и схем. Это может включать в себя моделирование работы системы, чтобы выявить возможные проблемы и оптимизировать проект. Также важно провести экспертизу проекта, чтобы убедиться, что он соответствует всем требованиям и стандартам.
На этапе реализации проекта необходимо обеспечить качественное выполнение всех работ. Это включает в себя контроль за установкой оборудования, прокладкой кабелей и выполнением всех электротехнических работ. Качество выполнения работ напрямую влияет на надежность и безопасность системы электроснабжения.
После завершения строительства необходимо провести испытания системы электроснабжения. Это включает в себя проверку всех компонентов на работоспособность, тестирование защитных устройств и проверку системы на соответствие проектным требованиям. Испытания помогут выявить возможные недостатки и устранить их до ввода системы в эксплуатацию.
Ввод в эксплуатацию системы электроснабжения требует составления документации, которая включает в себя схемы, инструкции по эксплуатации и технические паспорта на оборудование. Правильное оформление документации является важным этапом, так как она необходима для дальнейшего обслуживания и ремонта системы.
Таким образом, проектирование систем электроснабжения в строительстве — это сложный и многогранный процесс, который требует глубоких знаний и опыта. Каждый этап проектирования имеет свои особенности и требует внимательного подхода, чтобы обеспечить надежную и безопасную работу всех электрических систем в здании.
системы водоснабжения
Проектирование систем водоснабжения в строительстве является важным этапом, который требует тщательного подхода и учета множества факторов. Водоснабжение — это не просто подача воды в здания, но и создание надежной, эффективной и безопасной системы, способной обеспечить потребности пользователей. Проектирование включает в себя несколько ключевых этапов, каждый из которых играет свою роль в создании качественной системы.
Первым этапом проектирования является анализ потребностей. На этом этапе необходимо определить, сколько воды потребуется для различных нужд: бытовых, производственных, пожарных и других. Для этого проводятся расчеты, основанные на данных о количестве пользователей, типе здания и его назначении. Например, для жилых зданий потребление воды может варьироваться в зависимости от числа жильцов, а для коммерческих объектов — от типа бизнеса.
Следующим шагом является выбор источника водоснабжения. В зависимости от местоположения и доступных ресурсов, источником может быть центральное водоснабжение, подземные воды, реки или водоемы. При выборе источника необходимо учитывать качество воды, ее доступность и возможность подключения к существующим системам. Также важно провести анализ возможных рисков, связанных с загрязнением источника.
После выбора источника следует разработка схемы водоснабжения. На этом этапе проектировщики создают схему, которая включает в себя все элементы системы: насосные станции, резервуары, трубопроводы и распределительные сети. Важно учитывать не только технические характеристики, но и экономические аспекты, такие как стоимость материалов и работ, а также эксплуатационные расходы.
При проектировании систем водоснабжения также необходимо учитывать нормативные требования. Существуют различные стандарты и нормы, регулирующие проектирование и эксплуатацию водоснабжающих систем. Эти требования касаются как качества воды, так и безопасности систем. Например, необходимо обеспечить защиту от загрязнения, а также предусмотреть меры по предотвращению аварийных ситуаций.
Не менее важным этапом является выбор оборудования. В зависимости от проектируемой системы, необходимо подобрать насосы, фильтры, арматуру и другие элементы. При выборе оборудования важно учитывать его производительность, надежность и соответствие современным стандартам. Также следует обратить внимание на возможность автоматизации процессов, что может значительно повысить эффективность работы системы.
После завершения проектирования следует подготовка документации. Вся информация о проекте должна быть оформлена в виде технической документации, которая включает в себя чертежи, спецификации, расчеты и описания. Эта документация необходима для получения разрешений на строительство, а также для дальнейшей эксплуатации системы.
Наконец, важным этапом является монтаж и наладка системы. После завершения строительных работ необходимо провести установку всех элементов системы, а также их настройку. Это включает в себя проверку работоспособности насосов, герметичности соединений, а также тестирование системы на предмет возможных утечек и других неисправностей.
После завершения монтажа и наладки системы водоснабжения, необходимо провести проверку и тестирование всех ее компонентов. Это включает в себя проверку давления в трубопроводах, тестирование работы насосов и систем фильтрации, а также контроль за качеством подаваемой воды. Важно убедиться, что система функционирует в соответствии с проектными параметрами и отвечает всем установленным нормам.
На этапе эксплуатации системы водоснабжения необходимо организовать регулярное техническое обслуживание. Это включает в себя плановые проверки, очистку фильтров, замену изношенных деталей и мониторинг состояния оборудования. Регулярное обслуживание позволяет предотвратить аварийные ситуации и продлить срок службы системы. Также важно вести учет потребления воды и анализировать данные для оптимизации работы системы.
В процессе эксплуатации системы водоснабжения могут возникать различные проблемы и неисправности. К ним относятся утечки, засоры, сбои в работе насосов и другие. Важно иметь план действий на случай аварийных ситуаций, который включает в себя оперативное реагирование и устранение неисправностей. Также следует предусмотреть возможность временного отключения системы для проведения ремонтных работ.
Современные технологии также играют важную роль в оптимизации систем водоснабжения. Использование автоматизированных систем управления позволяет значительно повысить эффективность работы. Такие системы могут включать в себя датчики давления, уровнемеры, а также системы мониторинга качества воды. Это позволяет не только улучшить контроль за работой системы, но и снизить затраты на эксплуатацию.
Важным аспектом проектирования и эксплуатации систем водоснабжения является экологическая безопасность. Необходимо учитывать влияние на окружающую среду, а также применять технологии, которые минимизируют негативные последствия. Например, использование систем повторного использования воды или очистки сточных вод может значительно снизить нагрузку на природные ресурсы.
В заключение, проектирование систем водоснабжения в строительстве — это сложный и многогранный процесс, который требует комплексного подхода. Успех зависит от тщательного анализа потребностей, выбора правильных технологий и оборудования, а также организации эффективного обслуживания и эксплуатации. Важно помнить, что качественная система водоснабжения — это залог комфорта и безопасности пользователей.
системы водоотведения
Проектирование систем водоотведения в строительстве является важным этапом, который требует тщательного подхода и учета множества факторов. Системы водоотведения предназначены для сбора, транспортировки и очистки сточных вод, что позволяет предотвратить загрязнение окружающей среды и обеспечить санитарные условия для жизни и работы людей.
При проектировании систем водоотведения необходимо учитывать следующие ключевые аспекты:
- Типы сточных вод: Важно различать бытовые, производственные и ливневые сточные воды, так как для каждого типа требуются разные подходы к очистке и утилизации.
- Гидрологические условия: Необходимо учитывать уровень грунтовых вод, осадки и другие климатические факторы, которые могут повлиять на функционирование системы.
- Нормативные требования: Проектирование должно соответствовать действующим строительным нормам и правилам, а также экологическим стандартам.
- Топография местности: Рельеф местности влияет на выбор типа системы водоотведения, а также на проектирование трубопроводов и очистных сооружений.
- Экономические аспекты: Важно провести анализ затрат на строительство и эксплуатацию системы, чтобы обеспечить ее эффективность и рентабельность.
Процесс проектирования систем водоотведения можно разделить на несколько этапов:
- Исследование и анализ: На этом этапе проводятся гидрологические и геологические исследования, а также анализ существующих систем водоотведения в районе строительства.
- Разработка концепции: На основе собранных данных разрабатывается концепция системы, которая включает в себя выбор типа водоотведения, расположение трубопроводов и очистных сооружений.
- Проектирование: На этом этапе создаются детальные чертежи и схемы, а также рассчитываются необходимые параметры системы, такие как диаметр труб, уклон и пропускная способность.
- Согласование и экспертиза: Проект должен быть согласован с соответствующими органами и пройти экспертизу, чтобы убедиться в его соответствии всем требованиям.
- Строительство: После получения всех разрешений начинается строительство системы водоотведения, которое должно проводиться в соответствии с проектной документацией.
- Эксплуатация и обслуживание: После завершения строительства система должна быть введена в эксплуатацию, и необходимо организовать регулярное обслуживание для обеспечения ее надежной работы.
Каждый из этих этапов требует внимательного подхода и профессиональных знаний, так как ошибки на любом из них могут привести к серьезным последствиям, включая загрязнение водоемов, ухудшение санитарных условий и значительные финансовые потери.
Важным аспектом проектирования систем водоотведения является выбор материалов и технологий. Современные технологии позволяют создавать эффективные и долговечные системы, которые минимизируют негативное воздействие на окружающую среду. Например, использование пластиковых труб вместо металлических может значительно снизить коррозию и увеличить срок службы системы.
Также стоит отметить, что в последние годы наблюдается тенденция к внедрению инновационных решений, таких как системы дождевой воды, которые позволяют собирать и использовать ливневые стоки для полива и других нужд. Это не только снижает нагрузку на системы водоотведения, но и способствует более рациональному использованию водных ресурсов.
При проектировании систем водоотведения также необходимо учитывать влияние на экосистему. Важно, чтобы проектируемые системы не только эффективно справлялись с задачами по сбору и очистке сточных вод, но и минимизировали негативное воздействие на окружающую среду. Это может включать в себя использование технологий, которые способствуют восстановлению экосистем, таких как биологические очистные сооружения, которые используют естественные процессы для очистки сточных вод.
Одним из современных подходов к проектированию систем водоотведения является интеграция с системами управления водными ресурсами. Это позволяет не только эффективно управлять сточными водами, но и оптимизировать использование пресной воды. Например, системы, которые собирают и очищают дождевую воду, могут быть интегрированы с системами орошения, что позволяет значительно сократить потребление питьевой воды для полива.
Кроме того, важным аспектом является проектирование систем с учетом будущих изменений. Это может включать в себя прогнозирование роста населения, изменения климата и другие факторы, которые могут повлиять на объем сточных вод. Проектировщики должны учитывать возможность расширения и модернизации систем в будущем, чтобы избежать необходимости в значительных инвестициях и реконструкциях.
В процессе проектирования также следует уделить внимание вопросам безопасности. Системы водоотведения должны быть спроектированы таким образом, чтобы минимизировать риски аварий и утечек, которые могут привести к загрязнению окружающей среды и угрозе для здоровья населения. Это может включать в себя использование резервуаров для хранения сточных вод, а также системы мониторинга, которые позволяют оперативно реагировать на возможные проблемы.
Не менее важным является вопрос обучения и повышения квалификации специалистов, занимающихся проектированием систем водоотведения. Современные технологии и методы требуют от проектировщиков глубоких знаний и навыков, поэтому необходимо организовывать курсы и семинары, которые помогут им оставаться в курсе последних тенденций и разработок в этой области.
В заключение, проектирование систем водоотведения в строительстве — это сложный и многогранный процесс, который требует комплексного подхода и учета множества факторов. Успешное проектирование может значительно улучшить качество жизни населения, защитить окружающую среду и обеспечить устойчивое развитие городов и населенных пунктов. Важно, чтобы проектировщики, инженеры и другие специалисты работали в тесном сотрудничестве, чтобы создать эффективные и безопасные системы водоотведения, которые будут служить обществу на протяжении многих лет.
системы отопление вентиляции и кондиционирования воздуха
Проектирование систем отопления, вентиляции и кондиционирования воздуха (ОВК) в строительстве является важным этапом, который требует комплексного подхода и учета множества факторов. Эти системы обеспечивают комфортные условия для проживания и работы людей, а также способствуют поддержанию здоровья и безопасности. В процессе проектирования необходимо учитывать как технические, так и экономические аспекты, а также требования к энергоэффективности и экологии.
Первым шагом в проектировании систем ОВК является анализ требований. На этом этапе необходимо определить, какие именно условия необходимо создать в помещениях. Это может зависеть от назначения здания, его расположения, климатических условий и других факторов. Например, для жилых зданий важна поддержка комфортной температуры и влажности, тогда как для производственных помещений могут быть дополнительные требования к вентиляции и очистке воздуха.
Следующим этапом является выбор оборудования. На этом этапе проектировщики должны определить, какие системы и устройства будут использоваться для отопления, вентиляции и кондиционирования. Это может включать в себя котлы, радиаторы, кондиционеры, вентиляционные установки и другие элементы. Важно учитывать не только технические характеристики оборудования, но и его стоимость, а также затраты на эксплуатацию и обслуживание.
После выбора оборудования необходимо провести расчеты для определения необходимых параметров систем. Это включает в себя расчет тепловых нагрузок, воздухообмена, а также выбор диаметров воздуховодов и трубопроводов. Для этого используются специальные методики и программы, которые позволяют учитывать все необходимые параметры и условия.
Важным аспектом проектирования является учет норм и стандартов. Системы ОВК должны соответствовать действующим строительным нормам и правилам, а также требованиям безопасности. Это включает в себя как общие нормы, так и специфические требования для различных типов зданий и помещений. Например, для общественных зданий могут быть установлены более строгие требования к вентиляции и качеству воздуха.
Кроме того, проектировщики должны учитывать энергоэффективность систем. В современных условиях важно не только обеспечить комфортные условия, но и минимизировать затраты на энергоресурсы. Это может включать в себя использование современных технологий, таких как системы рекуперации тепла, а также применение альтернативных источников энергии.
На этапе проектирования также необходимо провести моделирование систем. Это позволяет визуализировать работу систем ОВК и выявить возможные проблемы на ранних стадиях. Моделирование может включать в себя как простые расчеты, так и использование сложных программных комплексов, которые позволяют учитывать множество факторов и параметров.
После завершения проектирования необходимо подготовить документацию, которая будет использоваться на этапе строительства. Это включает в себя чертежи, спецификации, расчеты и другие документы, которые необходимы для реализации проекта. Важно, чтобы документация была четкой и понятной, чтобы избежать недоразумений в процессе строительства.
После подготовки документации следует этап согласования проекта. На этом этапе проект должен быть представлен для проверки и утверждения соответствующим органам и инстанциям. Это может включать в себя местные строительные управления, санитарные службы и другие контролирующие организации. Согласование может занять значительное время, поэтому важно заранее учитывать все требования и рекомендации, чтобы избежать задержек.
Когда проект утвержден, начинается этап строительства. На этом этапе важно обеспечить качественную реализацию всех проектных решений. Для этого необходимо тщательно контролировать работу подрядчиков, а также проводить регулярные проверки соответствия выполненных работ проектной документации. Важно, чтобы все системы были установлены в соответствии с установленными стандартами и нормами.
В процессе строительства также может возникнуть необходимость в корректировках проекта. Это может быть вызвано различными факторами, такими как изменения в условиях строительства, новые требования со стороны заказчика или выявление проблем в процессе реализации. В таких случаях проектировщики должны быть готовы внести изменения и адаптировать проект, сохраняя при этом его основные цели и задачи.
После завершения строительства наступает этап пусконаладочных работ. Это важный процесс, который включает в себя проверку всех систем на работоспособность, настройку оборудования и его оптимизацию. Пусконаладочные работы позволяют выявить и устранить возможные недостатки, а также убедиться в том, что системы функционируют в соответствии с проектными параметрами.
После успешного завершения пусконаладочных работ осуществляется ввод в эксплуатацию систем ОВК. На этом этапе проводятся финальные проверки, составляются акты о приемке и передаются все необходимые документы заказчику. Важно, чтобы заказчик был полностью информирован о работе систем и их обслуживании, а также о правилах эксплуатации.
Не менее важным является обслуживание и эксплуатация систем ОВК после их ввода в эксплуатацию. Регулярное техническое обслуживание позволяет поддерживать системы в исправном состоянии, предотвращать поломки и продлевать срок их службы. Это может включать в себя плановые проверки, чистку фильтров, замену изношенных деталей и другие мероприятия.
В заключение, проектирование систем отопления, вентиляции и кондиционирования воздуха в строительстве – это сложный и многогранный процесс, который требует внимательного подхода на каждом этапе. От анализа требований до ввода в эксплуатацию, каждый шаг имеет значение для обеспечения комфортных и безопасных условий в помещениях. Успешное проектирование и реализация систем ОВК способствуют не только улучшению качества жизни, но и повышению энергоэффективности зданий, что особенно актуально в современных условиях.
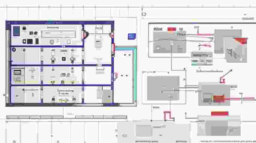
слаботочные системы
Проектирование слаботочных систем в строительстве является важным этапом, который требует тщательного подхода и глубоких знаний в области современных технологий. Слаботочные системы охватывают широкий спектр решений, включая системы видеонаблюдения, охранной сигнализации, контроля доступа, а также системы связи и автоматизации. Эти системы играют ключевую роль в обеспечении безопасности, комфорта и эффективности эксплуатации зданий.
На начальном этапе проектирования слаботочных систем необходимо провести анализ требований заказчика и определить основные цели, которые должны быть достигнуты. Это может включать в себя:
- Определение уровня безопасности, необходимого для объекта;
- Выбор типов систем, которые будут использоваться;
- Оценка бюджета и сроков реализации проекта;
- Учет специфики объекта и его назначения.
После определения требований следует перейти к этапу проектирования, который включает в себя несколько ключевых шагов:
1. Сбор информации о объекте. На этом этапе важно получить полное представление о здании или сооружении, где будут устанавливаться слаботочные системы. Это включает в себя изучение архитектурных чертежей, планов этажей, а также существующих инженерных систем. Необходимо учитывать такие факторы, как:
- Площадь и конфигурация помещений;
- Наличие окон, дверей и других проемов;
- Электрические и коммуникационные сети;
- Потенциальные источники помех и препятствий для сигналов.
2. Разработка концепции системы. На основе собранной информации разрабатывается концепция слаботочной системы. Это включает в себя выбор оборудования, определение его расположения и способа подключения. Важно учитывать:
- Типы используемых датчиков и камер;
- Способы передачи данных (проводные или беспроводные);
- Необходимость интеграции с другими системами (например, с системами управления зданием);
- Потенциальные возможности для расширения системы в будущем.
3. Создание проектной документации. На этом этапе разрабатываются все необходимые чертежи и схемы, которые будут использоваться при установке слаботочных систем. Документация должна включать:
- Схемы подключения оборудования;
- Планы размещения устройств;
- Технические характеристики оборудования;
- Инструкции по монтажу и настройке систем.
Проектная документация должна быть согласована с заказчиком и другими заинтересованными сторонами, чтобы избежать недоразумений и ошибок в процессе установки.
4. Выбор оборудования. На этом этапе необходимо провести анализ доступного на рынке оборудования для слаботочных систем. Важно учитывать не только технические характеристики, но и репутацию производителей, а также возможность получения технической поддержки и гарантии. При выборе оборудования следует обратить внимание на:
- Качество и надежность устройств;
- Совместимость с другими системами;
- Уровень защиты от внешних воздействий (влага, пыль и т.д.);
- Энергоэффективность и возможность удаленного управления.
5. Проектирование системы электропитания. Слаботочные системы требуют надежного электропитания, поэтому важно предусмотреть соответствующие решения. Это может включать в себя:
- Определение источников питания для каждого устройства;
- Проектирование схемы распределения электроэнергии;
- Установку резервных источников питания (например, ИБП) для обеспечения бесперебойной работы систем;
- Учет требований по электробезопасности.
6. Монтаж и настройка систем. После завершения проектирования и выбора оборудования наступает этап установки. Монтаж слаботочных систем требует высокой квалификации специалистов, так как ошибки на этом этапе могут привести к серьезным проблемам в будущем. Важно следовать проектной документации и учитывать:
- Правила установки и подключения оборудования;
- Требования по прокладке кабелей и проводов;
- Проверку работоспособности каждого устройства после установки;
- Настройку параметров системы для оптимальной работы.
7. Тестирование и ввод в эксплуатацию. После завершения монтажа необходимо провести комплексное тестирование всех компонентов системы. Это включает в себя:
- Проверку работоспособности каждого устройства;
- Тестирование взаимодействия между компонентами;
- Проверку системы на устойчивость к внешним воздействиям;
- Обучение персонала, который будет эксплуатировать систему.
Тестирование должно быть документировано, и все выявленные недостатки должны быть устранены до ввода системы в эксплуатацию. После успешного завершения всех этапов проектирования и установки слаботочных систем можно считать проект завершенным.
8. Обслуживание и поддержка. После ввода системы в эксплуатацию важно обеспечить ее регулярное обслуживание. Это включает в себя:
- Плановые проверки и техническое обслуживание;
- Обновление программного обеспечения;
- Замена устаревшего или вышедшего из строя оборудования;
- Обучение персонала новым функциям и возможностям системы.
Регулярное обслуживание позволяет поддерживать слаботочные системы в рабочем состоянии и продлевает их срок службы, что в свою очередь обеспечивает безопасность и комфорт пользователей.
системы газоснабжения
Проектирование систем газоснабжения в строительстве является важным этапом, который требует тщательного подхода и соблюдения множества норм и стандартов. Основной задачей проектирования является создание безопасной, эффективной и экономически целесообразной системы, которая будет обеспечивать потребности зданий и сооружений в газе.
Процесс проектирования систем газоснабжения можно разделить на несколько ключевых этапов:
- Исследование потребностей: На этом этапе необходимо определить, сколько газа потребуется для отопления, горячего водоснабжения и других нужд. Это включает в себя анализ проектируемого здания, его площади, назначения и количества жильцов или работников.
- Выбор источника газа: В зависимости от местоположения и доступности, проектировщики должны выбрать подходящий источник газа. Это может быть магистральный газопровод, сжиженный газ или другие альтернативные источники.
- Разработка схемы газоснабжения: На этом этапе создается предварительная схема, которая включает в себя расположение газопроводов, газовых приборов и оборудования. Важно учитывать не только технические, но и эстетические аспекты, чтобы система гармонично вписывалась в архитектуру здания.
- Расчет параметров системы: Необходимо произвести расчеты, которые включают в себя определение диаметра труб, давления газа, потерь давления и других важных параметров. Эти расчеты помогут обеспечить надежную и безопасную работу системы.
- Согласование проекта: После завершения проектирования необходимо согласовать проект с соответствующими органами, такими как газовые службы, пожарные инспекции и другие контролирующие организации. Это важно для получения разрешений на строительство и эксплуатацию системы.
Каждый из этих этапов требует глубоких знаний и опыта, а также соблюдения действующих норм и стандартов. Важно помнить, что проектирование систем газоснабжения должно учитывать не только текущие потребности, но и возможные изменения в будущем, такие как увеличение числа пользователей или изменение назначения здания.
Кроме того, проектировщики должны быть в курсе новых технологий и материалов, которые могут повысить эффективность и безопасность систем газоснабжения. Например, использование современных автоматизированных систем управления может значительно улучшить контроль за расходом газа и повысить уровень безопасности.
Также стоит отметить, что проектирование систем газоснабжения должно учитывать экологические аспекты. Снижение выбросов углекислого газа и других вредных веществ становится все более актуальной задачей, и проектировщики должны стремиться к созданию систем, которые минимизируют негативное воздействие на окружающую среду.
Важным аспектом проектирования является также выбор оборудования. Газовые котлы, плиты, водонагреватели и другое оборудование должны соответствовать современным стандартам качества и безопасности. При выборе оборудования необходимо учитывать его эффективность, срок службы и возможность обслуживания.
В процессе проектирования систем газоснабжения также следует уделить внимание вопросам безопасности. Это включает в себя установку газоанализаторов, автоматических систем отключения и других средств, которые помогут предотвратить аварийные ситуации. Безопасность должна быть приоритетом на всех этапах проектирования и эксплуатации системы.
При проектировании систем газоснабжения также необходимо учитывать требования к монтажу и эксплуатации. Правильная установка газопроводов и оборудования является залогом надежной работы всей системы. Проектировщики должны предусмотреть удобные условия для монтажа, а также обеспечить доступ к оборудованию для его обслуживания и ремонта.
Важным аспектом является выбор материалов для газопроводов. Они должны быть устойчивыми к коррозии, механическим повреждениям и другим негативным воздействиям. Наиболее распространенными материалами являются сталь, медь и полиэтилен. Каждый из этих материалов имеет свои преимущества и недостатки, и выбор зависит от конкретных условий эксплуатации.
Кроме того, проектировщики должны учитывать климатические условия региона, в котором будет установлена система газоснабжения. Например, в районах с низкими температурами необходимо предусмотреть утепление газопроводов, чтобы избежать их замерзания. Также следует учитывать возможность воздействия внешних факторов, таких как грунтовые воды или сейсмическая активность.
Не менее важным является вопрос о документации. Все этапы проектирования, монтажа и эксплуатации систем газоснабжения должны быть задокументированы. Это включает в себя проектную документацию, акты выполненных работ, инструкции по эксплуатации и техническому обслуживанию. Наличие полной и корректной документации является обязательным требованием для получения разрешений на эксплуатацию системы.
В процессе проектирования также следует учитывать возможность интеграции системы газоснабжения с другими инженерными системами здания, такими как вентиляция, отопление и кондиционирование. Это позволит создать более эффективную и экономичную систему, которая будет работать в гармонии с другими системами.
Современные технологии также открывают новые возможности для проектирования систем газоснабжения. Например, использование программного обеспечения для моделирования и расчета может значительно упростить процесс проектирования и повысить его точность. Такие программы позволяют визуализировать систему, проводить различные сценарные расчеты и оптимизировать проект.
В заключение, проектирование систем газоснабжения в строительстве — это сложный и многогранный процесс, который требует комплексного подхода и учета множества факторов. От правильного проектирования зависит не только эффективность работы системы, но и безопасность пользователей. Поэтому важно привлекать квалифицированных специалистов и следовать современным стандартам и технологиям.
Технологические решения
Проектирование в строительстве является ключевым этапом, который определяет успех всего строительного процесса. В последние годы технологии значительно изменили подходы к проектированию, что позволяет создавать более эффективные, безопасные и устойчивые здания. В этом контексте важно рассмотреть различные технологические решения, которые применяются на этапе проектирования.
Одним из наиболее значимых достижений в области проектирования является использование информационного моделирования зданий (BIM). Эта технология позволяет создавать трехмерные модели зданий, которые содержат всю необходимую информацию о проекте. BIM не только улучшает визуализацию, но и способствует более точному расчету затрат, сроков и ресурсов, необходимых для строительства.
С помощью BIM можно:
- Сократить время на проектирование за счет автоматизации рутинных задач;
- Уменьшить количество ошибок и недоразумений между участниками проекта;
- Оптимизировать использование материалов и ресурсов;
- Улучшить координацию между различными дисциплинами, такими как архитектура, инженерия и строительство.
Другим важным направлением является применение программного обеспечения для проектирования. Современные CAD-системы (Computer-Aided Design) позволяют архитекторам и инженерам создавать точные чертежи и схемы. Эти программы обеспечивают высокую степень детализации и позволяют легко вносить изменения в проект. Кроме того, многие CAD-системы интегрируются с BIM, что делает процесс проектирования еще более эффективным.
Среди популярных CAD-программ можно выделить:
- AutoCAD;
- Revit;
- SketchUp;
- Archicad.
Также стоит отметить важность использования облачных технологий в проектировании. Облачные платформы позволяют командам работать над проектом в реальном времени, независимо от их местоположения. Это особенно актуально для крупных проектов, где участвуют множество специалистов из разных городов и стран. Облачные решения обеспечивают доступ к актуальной информации и позволяют быстро реагировать на изменения в проекте.
Кроме того, моделирование и симуляция становятся все более распространенными в проектировании. Эти технологии позволяют заранее оценить поведение здания в различных условиях, таких как землетрясения, сильные ветры или наводнения. Это помогает выявить потенциальные проблемы и внести необходимые изменения до начала строительства, что значительно снижает риски и затраты.
Важным аспектом проектирования является также устойчивое строительство. Современные технологии позволяют учитывать экологические факторы и разрабатывать проекты, которые минимизируют негативное воздействие на окружающую среду. Это включает в себя использование энергоэффективных систем, переработанных материалов и технологий, снижающих углеродный след.
К числу таких технологий можно отнести:
- Системы солнечных панелей;
- Системы сбора дождевой воды;
- Энергоэффективные системы отопления и вентиляции;
- Зеленые крыши и стены.
Таким образом, технологические решения в проектировании в строительстве играют ключевую роль в создании современных, безопасных и устойчивых зданий. Внедрение новых технологий позволяет не только улучшить качество проектирования, но и значительно сократить время и затраты на строительство.
Еще одним важным направлением в проектировании является использование виртуальной и дополненной реальности (VR и AR). Эти технологии позволяют архитекторам и клиентам визуализировать проект в трехмерном пространстве, что значительно улучшает понимание конечного результата. С помощью VR можно «прогуляться» по зданию еще до его постройки, что помогает выявить недостатки и внести изменения на ранних стадиях проектирования.
Дополненная реальность, в свою очередь, позволяет накладывать цифровые элементы на реальный мир, что может быть полезно для демонстрации проекта заказчику или для обучения строителей. Эти технологии становятся все более доступными и начинают активно внедряться в строительную отрасль.
Не менее важным аспектом является интеграция систем управления зданием (BMS) на этапе проектирования. Современные здания требуют комплексного подхода к управлению всеми инженерными системами, такими как отопление, вентиляция, кондиционирование, освещение и безопасность. Проектирование с учетом BMS позволяет создать более эффективные и удобные для эксплуатации здания, которые могут адаптироваться к изменяющимся условиям и потребностям пользователей.
Системы BMS обеспечивают:
- Автоматизацию управления инженерными системами;
- Мониторинг и анализ данных о работе систем;
- Оптимизацию потребления энергии;
- Улучшение комфорта для пользователей.
Важным аспектом проектирования является также учет норм и стандартов. Современные строительные нормы и правила требуют от проектировщиков учитывать множество факторов, включая безопасность, доступность и устойчивость зданий. Это требует от специалистов глубоких знаний и постоянного обновления информации о действующих нормативных актах.
Для упрощения процесса соблюдения норм и стандартов разработаны специальные программные решения, которые помогают проектировщикам проверять соответствие проектируемых объектов действующим требованиям. Эти инструменты могут автоматически анализировать проект и выявлять потенциальные нарушения, что значительно упрощает работу и снижает риски.
В заключение, технологические решения в проектировании в строительстве продолжают развиваться, открывая новые возможности для создания более качественных и эффективных зданий. Интеграция современных технологий, таких как BIM, VR, AR и BMS, позволяет значительно улучшить процесс проектирования, повысить его эффективность и снизить затраты. Важно, чтобы специалисты в области проектирования оставались в курсе последних тенденций и активно внедряли новые технологии в свою практику.
Проект организации строительства
Проектирование в строительстве является ключевым этапом, который определяет успех всего строительного процесса. Этот этап включает в себя множество аспектов, начиная от концептуального проектирования и заканчивая детальной проработкой всех инженерных систем. Важно понимать, что проектирование не ограничивается только созданием чертежей, но и включает в себя анализ, планирование и координацию различных процессов.
На начальном этапе проектирования важно определить основные требования к объекту. Это включает в себя функциональные, эстетические и технические характеристики. Для этого необходимо провести анализ потребностей заказчика, а также учесть особенности местности, где будет осуществляться строительство. Важно также учитывать законодательные и нормативные требования, которые могут варьироваться в зависимости от региона.
Одним из первых шагов в проектировании является создание концептуального проекта. Этот этап включает в себя разработку общей идеи, которая будет служить основой для дальнейшей работы. Концептуальный проект должен учитывать не только архитектурные решения, но и инженерные системы, такие как водоснабжение, отопление, электроснабжение и вентиляция. На этом этапе также важно провести предварительные расчеты, которые помогут определить общую стоимость проекта и сроки его реализации.
После утверждения концептуального проекта начинается этап разработки рабочей документации. Этот процесс включает в себя создание детализированных чертежей, спецификаций и смет. Рабочая документация должна быть максимально точной и полной, чтобы избежать недоразумений в процессе строительства. Важно, чтобы все чертежи были согласованы с заказчиком и соответствовали действующим нормам и стандартам.
В процессе проектирования также необходимо учитывать вопросы экологии и устойчивого развития. Это включает в себя выбор материалов, которые минимизируют негативное воздействие на окружающую среду, а также проектирование систем, которые способствуют энергосбережению. В последние годы все большее внимание уделяется использованию возобновляемых источников энергии, таких как солнечные панели и ветряные турбины, что также должно быть отражено в проектной документации.
Не менее важным аспектом проектирования является координация работы различных специалистов. В процессе разработки проекта участвуют архитекторы, инженеры, конструкторы и другие специалисты. Важно, чтобы все они работали в едином ключе и были вовлечены в процесс на всех этапах проектирования. Это поможет избежать конфликтов и недоразумений, которые могут возникнуть в процессе строительства.
Кроме того, проектирование в строительстве включает в себя использование современных технологий и программного обеспечения. Системы автоматизированного проектирования (САПР) позволяют значительно ускорить процесс разработки и повысить точность проектных решений. Использование 3D-моделирования и виртуальной реальности также открывает новые возможности для визуализации проекта и его презентации заказчику.
В заключение, проектирование в строительстве — это сложный и многогранный процесс, который требует высокой квалификации и опыта. Успех всего строительного проекта зависит от того, насколько качественно и профессионально будет выполнено проектирование. Каждый этап, начиная от концепции и заканчивая рабочей документацией, играет важную роль в достижении конечной цели — создания качественного и безопасного объекта.
Одним из ключевых аспектов проектирования является инженерное проектирование, которое охватывает все технические системы здания. Это включает в себя проектирование систем водоснабжения, канализации, отопления, вентиляции и кондиционирования воздуха. Каждая из этих систем должна быть спроектирована с учетом специфики объекта, его назначения и требований безопасности.
При проектировании инженерных систем важно учитывать нагрузки, которые они будут испытывать, а также эффективность их работы. Например, системы отопления должны обеспечивать комфортную температуру в помещениях, а системы вентиляции — поддерживать необходимый уровень свежего воздуха. Для этого проводятся расчеты, которые помогают определить необходимую мощность оборудования и его расположение.
Также важным этапом является проектирование конструктивных элементов здания. Это включает в себя разработку фундамента, стен, перекрытий и кровли. Конструктивные решения должны обеспечивать не только прочность и устойчивость здания, но и его долговечность. На этом этапе также проводятся расчеты, которые помогают определить необходимые материалы и их количество.
В процессе проектирования необходимо учитывать нормативные требования, которые касаются безопасности и устойчивости зданий. Это включает в себя требования к сейсмостойкости, огнестойкости и защите от воздействия внешних факторов. Все проектные решения должны соответствовать действующим строительным нормам и правилам, что требует от проектировщиков высокой квалификации и внимательности.
Не менее важным аспектом является согласование проектной документации с различными инстанциями. Это может включать в себя получение разрешений на строительство, согласование проектных решений с органами местного самоуправления и другими заинтересованными сторонами. Процесс согласования может занять значительное время, поэтому важно заранее планировать этот этап и учитывать его в графике работ.
Современные технологии также играют важную роль в проектировании. Использование информационного моделирования зданий (BIM) позволяет создавать трехмерные модели, которые содержат всю необходимую информацию о проекте. Это значительно упрощает процесс координации между различными специалистами и позволяет выявлять возможные проблемы на ранних этапах проектирования.
Кроме того, BIM-технологии позволяют проводить анализ жизненного цикла здания, что помогает оценить его эксплуатационные характеристики и затраты на обслуживание. Это особенно важно для крупных объектов, где затраты на эксплуатацию могут значительно превышать первоначальные инвестиции.
Важным аспектом проектирования является также учет мнения общественности. В некоторых случаях проект может вызвать протесты со стороны местных жителей или экологических организаций. Поэтому важно проводить общественные слушания и учитывать мнения всех заинтересованных сторон. Это поможет избежать конфликтов и улучшить имидж компании-заказчика.
В заключение, проектирование в строительстве — это сложный и многогранный процесс, который требует высокой квалификации, опыта и внимательности. Каждый этап проектирования, от инженерных систем до согласования документации, играет важную роль в создании качественного и безопасного объекта. Успех всего строительного проекта зависит от того, насколько профессионально и ответственно будет выполнено проектирование.
Мероприятия по охране окружающей среды
Проектирование в строительстве является важным этапом, который определяет не только функциональность и эстетические качества зданий, но и их воздействие на окружающую среду. В условиях современного мира, где экологические проблемы становятся все более актуальными, проектировщики должны учитывать множество факторов, связанных с охраной окружающей среды.
Одним из ключевых аспектов проектирования является выбор материалов. Использование экологически чистых и перерабатываемых материалов позволяет значительно снизить негативное воздействие на природу. Например, древесина из сертифицированных лесов, переработанные строительные материалы и натуральные изоляционные материалы могут стать отличной альтернативой традиционным продуктам, которые наносят вред экосистемам.
Кроме того, энергетическая эффективность зданий также играет важную роль в проектировании. Это включает в себя:
- Оптимизацию архитектурных решений для максимального использования солнечного света.
- Применение современных технологий, таких как солнечные панели и системы рекуперации тепла.
- Использование высокоэффективных систем отопления, вентиляции и кондиционирования.
Следующим важным аспектом является управление водными ресурсами. Проектировщики должны учитывать:
- Системы сбора дождевой воды для повторного использования.
- Устойчивые ландшафтные решения, которые минимизируют сток и эрозию.
- Технологии, позволяющие снизить потребление воды в зданиях.
Также стоит отметить, что планирование территории должно учитывать не только сам объект, но и его окружение. Это включает в себя:
- Создание зеленых зон и общественных пространств.
- Сохранение существующих экосистем и биоразнообразия.
- Обеспечение доступности и удобства для пешеходов и велосипедистов.
Важным элементом проектирования является оценка воздействия на окружающую среду (ОВОС). Этот процесс позволяет выявить потенциальные негативные последствия строительства и разработать меры по их минимизации. ОВОС включает в себя:
- Анализ текущего состояния окружающей среды.
- Прогнозирование возможных изменений в экосистемах.
- Разработку рекомендаций по снижению негативного воздействия.
Таким образом, проектирование в строительстве должно быть направлено на создание устойчивых и экологически безопасных объектов, которые будут гармонично вписываться в окружающую среду и способствовать ее сохранению.
Важным аспектом проектирования является интеграция технологий умного дома. Эти технологии позволяют не только повысить комфорт проживания, но и значительно сократить потребление ресурсов. Умные системы управления освещением, отоплением и вентиляцией могут адаптироваться к потребностям жильцов, что приводит к снижению энергозатрат и уменьшению углеродного следа.
Также стоит обратить внимание на устойчивое транспортное планирование. Проектировщики должны учитывать доступность общественного транспорта, велосипедных дорожек и пешеходных маршрутов. Это способствует снижению зависимости от автомобилей, что, в свою очередь, уменьшает выбросы загрязняющих веществ в атмосферу. Важно создавать инфраструктуру, которая будет поддерживать экологически чистые способы передвижения.
Не менее значимым является учет климатических условий при проектировании. Здания должны быть адаптированы к местным климатическим особенностям, что позволит снизить потребление энергии на отопление и охлаждение. Например, в регионах с жарким климатом следует предусмотреть тени и вентиляцию, а в холодных — эффективные системы утепления и защиты от ветра.
Важным элементом является обучение и информирование всех участников процесса проектирования и строительства. Архитекторы, инженеры и строители должны быть осведомлены о современных экологических стандартах и технологиях. Это может быть достигнуто через семинары, курсы повышения квалификации и участие в специализированных выставках и конференциях.
Кроме того, сотрудничество с местными сообществами и заинтересованными сторонами также играет важную роль. Участие общественности в процессе проектирования может помочь выявить потребности и ожидания жителей, что в конечном итоге приведет к созданию более устойчивых и комфортных пространств. Открытые обсуждения и консультации могут способствовать более глубокому пониманию экологических проблем и путей их решения.
Необходимо также учитывать жизненный цикл зданий. Проектирование должно включать в себя не только этапы строительства, но и эксплуатацию, а также утилизацию. Это подразумевает использование материалов, которые можно легко переработать, а также проектирование зданий с учетом возможности их модификации или демонтажа в будущем.
В заключение, проектирование в строительстве должно быть направлено на создание устойчивых, экологически безопасных и комфортных объектов. Это требует комплексного подхода, который включает в себя выбор материалов, технологии, управление ресурсами и взаимодействие с обществом. Только так можно достичь гармонии между развитием инфраструктуры и охраной окружающей среды.
Мероприятия по обеспечению пожарной безопасности
Проектирование в строительстве является ключевым этапом, который определяет не только функциональность и эстетические качества здания, но и его безопасность, в том числе и пожарную. Пожарная безопасность в проектировании включает в себя множество аспектов, которые необходимо учитывать на всех стадиях разработки проекта. Это позволяет минимизировать риски возникновения пожаров и обеспечить безопасность людей, находящихся в здании.
Одним из первых шагов в проектировании является анализ рисков. На этом этапе специалисты оценивают потенциальные источники возгорания, а также возможные пути распространения огня. Важно учитывать не только внутренние факторы, такие как использование легковоспламеняющихся материалов, но и внешние, например, расположение здания относительно других объектов и природных факторов.
Следующим этапом является выбор строительных материалов. Все используемые в проекте материалы должны соответствовать требованиям пожарной безопасности. Это касается как несущих конструкций, так и отделочных материалов. Например, для стен и перекрытий рекомендуется использовать огнестойкие материалы, которые способны выдерживать высокие температуры и замедлять распространение огня.
Кроме того, необходимо учитывать планировку помещений. Правильная организация пространства может существенно снизить риски. Например, важно предусмотреть достаточное количество эвакуационных выходов, которые должны быть расположены так, чтобы обеспечить быструю и безопасную эвакуацию людей в случае пожара. Также следует учитывать ширину коридоров и лестниц, чтобы избежать заторов в экстренной ситуации.
Не менее важным аспектом является системы противопожарной защиты. На этапе проектирования необходимо предусмотреть установку автоматических систем пожаротушения, таких как спринклерные системы, а также системы оповещения о пожаре. Эти системы должны быть интегрированы в общий проект здания и соответствовать действующим нормам и стандартам.
Также стоит обратить внимание на обучение персонала. Важно, чтобы все сотрудники, работающие в здании, знали, как действовать в случае возникновения пожара. Это включает в себя регулярные тренировки и инструктажи, которые помогут людям быстро и правильно реагировать в экстренной ситуации.
В заключение, проектирование в строительстве с учетом пожарной безопасности требует комплексного подхода и внимательного отношения к деталям. Каждый этап, начиная от анализа рисков и выбора материалов до планировки и установки систем защиты, играет важную роль в обеспечении безопасности здания и его обитателей.
Важным аспектом проектирования является учет норм и стандартов, регулирующих пожарную безопасность. В каждой стране существуют свои законодательные акты и строительные нормы, которые необходимо соблюдать. Эти документы содержат требования к проектированию, строительству и эксплуатации зданий с точки зрения пожарной безопасности. Например, в России основным документом является Свод правил СП 1.13130.2009, который определяет требования к проектированию и устройству систем противопожарной защиты.
При проектировании зданий также следует учитывать зоны пожарной опасности. В зависимости от назначения здания и его расположения, могут быть установлены различные категории пожарной опасности. Например, производственные помещения, где используются легковоспламеняющиеся вещества, требуют более строгих мер безопасности по сравнению с жилыми зданиями. Это влияет на выбор материалов, проектирование систем вентиляции и установку противопожарных барьеров.
Необходимо также предусмотреть пожарные разделки и противопожарные преграды. Эти элементы помогают замедлить распространение огня и дыма, а также защищают эвакуационные пути. Проектировщики должны учитывать, как различные конструкции и материалы могут взаимодействовать друг с другом в случае пожара. Например, использование огнестойких перегородок может значительно повысить уровень безопасности.
Важным элементом проектирования является система вентиляции. Она должна быть спроектирована таким образом, чтобы в случае пожара предотвратить распространение дыма и токсичных газов. Для этого используются специальные дымоудалительные системы, которые активируются автоматически при обнаружении дыма. Также следует предусмотреть возможность отключения вентиляции в случае пожара, чтобы избежать распространения огня через воздуховоды.
Не менее важным является освещение эвакуационных путей. В случае пожара необходимо обеспечить достаточное освещение для безопасной эвакуации людей. Это может быть достигнуто с помощью установки аварийного освещения, которое будет работать даже в случае отключения основного электроснабжения. Также важно, чтобы знаки эвакуации были четкими и видимыми, что поможет людям быстро ориентироваться в пространстве.
На этапе проектирования также следует предусмотреть проверку и тестирование систем безопасности. После завершения строительства необходимо провести комплексное тестирование всех систем противопожарной защиты, чтобы убедиться в их работоспособности. Это включает в себя проверку автоматических систем пожаротушения, оповещения и вентиляции. Регулярные проверки и техническое обслуживание систем также являются важными для поддержания их эффективности на протяжении всего срока эксплуатации здания.
В заключение, проектирование в строительстве с учетом пожарной безопасности требует комплексного подхода и внимательного отношения к деталям. Каждый этап, начиная от анализа рисков и выбора материалов до планировки и установки систем защиты, играет важную роль в обеспечении безопасности здания и его обитателей. Соблюдение всех норм и стандартов, а также регулярное тестирование систем безопасности помогут минимизировать риски и обеспечить защиту людей и имущества.
Требования к обеспечению безопасной эксплуатации объектов капитального строительства
Проектирование в строительстве является одним из ключевых этапов, определяющих безопасность и надежность объектов капитального строительства. На этом этапе разрабатываются все необходимые документы, которые обеспечивают соответствие проектируемого объекта действующим нормам и требованиям. Важнейшими аспектами проектирования являются выбор конструктивных решений, оценка рисков, а также соблюдение экологических и санитарных норм.
Одним из первых шагов в проектировании является разработка проектной документации. Она включает в себя следующие разделы:
- архитектурные решения;
- конструктивные решения;
- инженерные системы;
- планировка территории;
- безопасность и охрана труда.
Каждый из этих разделов должен быть тщательно проработан, чтобы обеспечить не только функциональность, но и безопасность объекта. Например, архитектурные решения должны учитывать не только эстетические аспекты, но и соответствие требованиям по сейсмостойкости, ветровой нагрузке и другим факторам, влияющим на безопасность эксплуатации.
При проектировании также необходимо учитывать нормативные документы, которые регламентируют требования к безопасности. К ним относятся:
- СНиП (Строительные нормы и правила);
- ГОСТ (Государственные стандарты);
- Федеральные законы и постановления;
- Региональные строительные нормы.
Соблюдение этих норм позволяет минимизировать риски, связанные с эксплуатацией объектов. Например, проектирование зданий в сейсмоопасных районах требует особого внимания к выбору материалов и конструктивных решений, что в свою очередь влияет на общую безопасность объекта.
Кроме того, важным аспектом проектирования является оценка рисков. На этом этапе специалисты проводят анализ возможных угроз, которые могут возникнуть в процессе эксплуатации объекта. Это может включать в себя:
- анализ природных факторов (землетрясения, наводнения);
- анализ техногенных факторов (взрывы, пожары);
- оценка воздействия на окружающую среду;
- анализ потенциальных угроз для здоровья и безопасности людей.
Результаты оценки рисков должны быть учтены при разработке проектных решений. Например, если в процессе анализа выявлены высокие риски затопления, проектировщики могут предложить решения, такие как поднятие уровня фундамента или создание дренажных систем.
Также стоит отметить, что проектирование должно учитывать экологические аспекты. Современные требования к строительству предполагают минимизацию негативного воздействия на окружающую среду. Это включает в себя:
- использование экологически чистых материалов;
- оптимизацию энергопотребления;
- создание зеленых зон;
- системы утилизации отходов.
Таким образом, проектирование в строительстве — это комплексный процесс, который требует учета множества факторов, влияющих на безопасность и эксплуатацию объектов капитального строительства. Каждый этап проектирования должен быть тщательно проработан, чтобы обеспечить надежность и долговечность построенных объектов.
Важным аспектом проектирования является выбор строительных материалов. Они должны соответствовать не только требованиям прочности и долговечности, но и нормам безопасности. При выборе материалов необходимо учитывать их физико-механические свойства, устойчивость к воздействию внешней среды, а также возможность их переработки и утилизации. Например, использование легких и прочных материалов может снизить нагрузку на конструкцию и улучшить сейсмостойкость здания.
Кроме того, проектировщики должны учитывать инженерные системы, которые обеспечивают комфорт и безопасность эксплуатации объекта. Это включает в себя:
- системы отопления, вентиляции и кондиционирования;
- водоснабжение и водоотведение;
- электроснабжение;
- пожарную безопасность.
Каждая из этих систем должна быть спроектирована с учетом специфики объекта и его назначения. Например, в общественных зданиях необходимо предусмотреть системы, обеспечивающие быструю эвакуацию людей в случае чрезвычайной ситуации. Это может включать в себя специальные выходы, системы оповещения и автоматические двери.
Не менее важным является учет санитарных норм при проектировании. Это касается как внутреннего, так и внешнего пространства. Проектировщики должны обеспечить достаточное количество санитарных узлов, а также предусмотреть их доступность для людей с ограниченными возможностями. Внешние территории должны быть спроектированы с учетом норм по озеленению и благоустройству, что способствует созданию комфортной городской среды.
В процессе проектирования также необходимо проводить экспертизу проектной документации. Это позволяет выявить возможные недостатки и несоответствия на ранних этапах, что значительно снижает риски в дальнейшем. Экспертиза может быть как государственной, так и независимой, и включает в себя проверку всех разделов проектной документации на соответствие действующим нормам и требованиям.
После завершения проектирования и получения всех необходимых разрешений начинается строительство. На этом этапе важно обеспечить контроль за соблюдением проектных решений и норм безопасности. Для этого необходимо организовать регулярные проверки и инспекции, а также вести документацию о ходе строительства.
В процессе строительства могут возникать изменения в проекте, которые также должны быть документированы и согласованы с проектировщиками. Это может быть связано с изменением условий на строительной площадке, новыми требованиями или рекомендациями. Важно, чтобы все изменения не ухудшали безопасность и надежность объекта.
Таким образом, проектирование в строительстве — это многоступенчатый процесс, который требует комплексного подхода и учета множества факторов. От качества проектирования зависит не только безопасность эксплуатации объектов, но и их долговечность и комфорт для пользователей. Каждый этап, начиная от разработки проектной документации и заканчивая контролем на строительной площадке, играет важную роль в обеспечении безопасной эксплуатации объектов капитального строительства.
Мероприятия по обеспечению доступа инвалидов к объекту капитального строительства
Проектирование в строительстве является ключевым этапом, который определяет не только функциональность и эстетические качества объекта, но и его доступность для всех категорий граждан, включая людей с ограниченными возможностями. Важность обеспечения доступа инвалидов к объектам капитального строительства не может быть переоценена, так как это напрямую связано с правами человека и социальной справедливостью.
В процессе проектирования необходимо учитывать множество факторов, которые влияют на доступность. Это включает в себя как архитектурные, так и инженерные решения, которые должны быть интегрированы на всех этапах проектирования. Основные аспекты, которые следует учитывать, включают:
- Архитектурные особенности: Проектирование должно предусматривать наличие пандусов, широких дверных проемов, лифтов и других элементов, которые облегчают передвижение людей с ограниченными возможностями.
- Инженерные системы: Важно, чтобы системы освещения, отопления и вентиляции были адаптированы для людей с ограниченными возможностями, что включает в себя использование тактильных и звуковых сигналов.
- Безопасность: Проектирование должно учитывать безопасность передвижения инвалидов, включая наличие поручней, антискользящих покрытий и четкой навигации.
Одним из первых шагов в проектировании является анализ потребностей пользователей. Это может включать в себя консультации с организациями, представляющими интересы людей с ограниченными возможностями, а также проведение опросов и исследований. Такой подход позволяет выявить реальные потребности и ожидания, что в свою очередь способствует созданию более удобной и доступной среды.
Следующим этапом является разработка проектной документации, которая должна включать в себя все необходимые чертежи и спецификации. Важно, чтобы проектировщики имели доступ к актуальным нормативным документам и стандартам, регулирующим доступность объектов для инвалидов. В России, например, это могут быть строительные нормы и правила (СНиП), а также федеральные законы, касающиеся прав инвалидов.
При проектировании также необходимо учитывать различные типы инвалидности. Например, для людей с нарушениями опорно-двигательного аппарата важны пандусы и лифты, тогда как для людей с нарушениями слуха и зрения необходимы специальные системы оповещения и навигации. Это требует комплексного подхода и междисциплинарного взаимодействия между архитекторами, инженерами и специалистами по доступности.
Кроме того, проектирование должно учитывать не только сам объект, но и его окружение. Это включает в себя доступ к общественному транспорту, наличие парковочных мест для инвалидов, а также удобные маршруты передвижения от объекта до ближайших инфраструктурных объектов, таких как магазины, медицинские учреждения и другие социальные услуги.
Важным аспектом проектирования является также тестирование и оценка доступности. На этом этапе могут проводиться специальные проверки, которые помогут выявить недостатки и недочеты в проекте. Это может включать в себя как визуальные осмотры, так и тестирование с участием людей с ограниченными возможностями, что позволит получить обратную связь и внести необходимые коррективы.
Таким образом, проектирование в строительстве с учетом доступности для инвалидов требует комплексного подхода, который включает в себя анализ потребностей, разработку проектной документации, учет различных типов инвалидности и тестирование. Это не только способствует созданию более удобной и безопасной среды, но и способствует интеграции людей с ограниченными возможностями в общество.
Важным аспектом проектирования является соблюдение принципов универсального дизайна, который предполагает создание объектов и пространств, доступных для всех, независимо от их физических возможностей. Это подход позволяет избежать сегрегации и создает инклюзивную среду, где каждый человек может свободно передвигаться и пользоваться услугами.
При проектировании объектов капитального строительства необходимо учитывать следующие принципы универсального дизайна:
- Доступность: Все элементы здания должны быть доступны для людей с различными ограничениями. Это включает в себя не только физические аспекты, но и визуальные и слуховые.
- Гибкость в использовании: Проект должен предусматривать возможность использования пространства различными способами, что позволяет адаптировать его под индивидуальные потребности пользователей.
- Простота и интуитивность: Доступ к объекту и его функциональные элементы должны быть понятны и легки в использовании для всех категорий граждан.
- Безопасность и комфорт: Все элементы должны быть спроектированы с учетом безопасности пользователей, включая наличие четкой навигации и предупреждающих знаков.
Кроме того, проектировщики должны учитывать современные технологии, которые могут значительно улучшить доступность. Например, использование автоматических дверей, сенсорных систем управления освещением и звуковых навигаторов может существенно облегчить передвижение людей с ограниченными возможностями. Интеграция таких технологий в проект позволяет создать более комфортную и безопасную среду.
Не менее важным является и вопрос обучения персонала, который будет работать в проектируемом объекте. Обучение должно включать в себя основы работы с людьми с ограниченными возможностями, что позволит создать более дружелюбную атмосферу и повысить уровень обслуживания. Это может включать в себя тренинги по коммуникации, а также обучение использованию специальных средств и оборудования.
В процессе проектирования также важно учитывать возможность будущих изменений и адаптаций. Объекты должны быть спроектированы таким образом, чтобы их можно было легко модифицировать в случае изменения потребностей пользователей. Это может включать в себя возможность установки дополнительных пандусов, лифтов или других элементов, которые могут понадобиться в будущем.
В заключение, проектирование объектов капитального строительства с учетом доступности для инвалидов — это сложный и многогранный процесс, который требует внимания к деталям и комплексного подхода. Успешная реализация таких проектов зависит от взаимодействия различных специалистов, а также от соблюдения современных стандартов и норм. Важно помнить, что доступность — это не только юридическая обязанность, но и моральная ответственность перед обществом.
Смета на строительство, реконструкцию, капитальный ремонт, снос объекта капитального строительства
Проектирование в строительстве является ключевым этапом, который определяет успешность реализации любого строительного проекта. Этот процесс включает в себя множество аспектов, начиная от концептуального проектирования и заканчивая детальной проработкой всех инженерных систем. Важно отметить, что качественное проектирование напрямую влияет на стоимость строительства, сроки выполнения работ и эксплуатационные характеристики объекта.
Проектирование можно разделить на несколько основных этапов:
- Предпроектные исследования – на этом этапе осуществляется сбор и анализ информации о месте строительства, включая геодезические, геологические и экологические исследования.
- Концептуальное проектирование – разработка общей концепции объекта, его функционального назначения и архитектурного облика.
- Эскизное проектирование – создание эскизов и предварительных чертежей, которые позволяют визуализировать проект и внести необходимые изменения на ранних стадиях.
- Рабочее проектирование – на этом этапе разрабатываются детализированные чертежи, спецификации и сметы, которые будут использоваться в процессе строительства.
- Согласование и экспертиза проектной документации – проект проходит проверку на соответствие действующим нормам и требованиям, что является обязательным этапом перед началом строительных работ.
Каждый из этих этапов требует тщательной проработки и взаимодействия между различными специалистами, такими как архитекторы, инженеры, проектировщики и строители. Важно, чтобы все участники процесса имели четкое представление о конечной цели и задачах проекта.
На этапе предпроектных исследований необходимо учитывать множество факторов, таких как:
- Топография местности и ее особенности;
- Наличие коммуникаций и инфраструктуры;
- Экологические условия и возможные ограничения;
- Правовые аспекты, включая разрешения на строительство.
Концептуальное проектирование включает в себя не только создание архитектурного облика, но и определение функциональных зон, планировку помещений и их взаимосвязь. На этом этапе важно учитывать потребности будущих пользователей объекта, а также его соответствие современным требованиям по энергоэффективности и устойчивому развитию.
Эскизное проектирование позволяет визуализировать идеи и концепции, что помогает избежать ошибок на более поздних стадиях. Важно, чтобы эскизы были согласованы с заказчиком и другими заинтересованными сторонами, чтобы избежать недоразумений в будущем.
Рабочее проектирование – это наиболее трудоемкий этап, на котором создаются все необходимые документы для строительства. Это включает в себя:
- Архитектурные чертежи;
- Конструктивные решения;
- Инженерные системы (водоснабжение, отопление, электроснабжение и т.д.);
- Сметная документация.
Смета на строительство, реконструкцию, капитальный ремонт или снос объекта капитального строительства является важным документом, который отражает все затраты, связанные с реализацией проекта. Она включает в себя как прямые, так и косвенные расходы, и служит основой для финансового планирования и контроля на всех этапах строительства.
Сметная документация разрабатывается на основе рабочей проектной документации и включает в себя несколько ключевых элементов:
- Калькуляция затрат – детализированный расчет всех необходимых ресурсов, включая материалы, трудозатраты, аренду техники и прочие расходы.
- Сметные нормы и расценки – использование актуальных норм и расценок, которые определяют стоимость работ и материалов на момент составления сметы.
- Сметные статьи – группировка затрат по статьям, что позволяет более удобно анализировать и контролировать расходы.
Смета является основным инструментом для управления финансами проекта. Она позволяет не только оценить общую стоимость строительства, но и контролировать фактические затраты в процессе реализации. Важно, чтобы смета была составлена с учетом всех возможных рисков и непредвиденных обстоятельств, что поможет избежать перерасхода бюджета.
После завершения рабочего проектирования и составления сметы, проектная документация проходит этап согласования и экспертизы. Это обязательный процесс, который включает в себя:
- Проверка на соответствие нормам – эксперты анализируют проект на соответствие строительным нормам и правилам, а также экологическим требованиям.
- Согласование с заказчиком – заказчик должен утвердить проект, чтобы убедиться, что он соответствует его ожиданиям и требованиям.
- Получение разрешений – на основании экспертизы и согласования проект получает необходимые разрешения на строительство от государственных органов.
После успешного завершения всех этапов проектирования и получения разрешений, начинается этап строительства. Однако важно помнить, что проектирование не заканчивается на этом этапе. В процессе строительства могут возникать изменения и корректировки, которые требуют внесения изменений в проектную документацию. Это может быть связано с:
- Необходимостью адаптации проекта к реальным условиям на строительной площадке;
- Изменениями в требованиях заказчика;
- Появлением новых технологий и материалов, которые могут улучшить качество и снизить стоимость строительства.
Таким образом, проектирование в строительстве – это динамичный и многогранный процесс, который требует постоянного взаимодействия между всеми участниками проекта. Качественное проектирование позволяет не только снизить риски и затраты, но и обеспечить высокое качество конечного продукта, что в свою очередь влияет на удовлетворенность заказчика и пользователей объекта.
В заключение, проектирование является основой успешного строительства, и его важность нельзя переоценить. Каждый этап проектирования требует внимательного подхода и профессионализма, что в конечном итоге определяет успех всего строительного процесса.


















