Документация архитектурно строительного проектирования
Документация архитектурно строительного проектирования
В современном строительстве важным аспектом является соблюдение нормативных требований и стандартов, которые обеспечивают качество и безопасность возводимых объектов. Одним из ключевых документов, регулирующих процесс архитектурно-строительного проектирования, является 87 постановление правительства. Это постановление определяет основные принципы и правила, которым должны следовать проектировщики на всех этапах разработки документации.
В данной статье мы рассмотрим основные аспекты, связанные с документацией архитектурно-строительного проектирования, а также проанализируем, как 87 постановление влияет на процесс проектирования. Мы также представим оглавление, которое поможет вам лучше ориентироваться в материале:
- Общие положения 87 постановления
- Требования к проектной документации
- Этапы архитектурно-строительного проектирования
- Роль проектировщика в соответствии с постановлением
- Примеры успешных проектов, выполненных в соответствии с 87 постановлением
Следуя этим рекомендациям, проектировщики смогут создавать качественные и безопасные объекты, соответствующие современным требованиям и ожиданиям общества.
Согласно 87 ПП (87 постановление правительства)
Документация архитектурно-строительного проектирования является важным элементом в процессе создания зданий и сооружений. Она включает в себя набор документов, которые необходимы для проектирования, строительства и эксплуатации объектов. В соответствии с 87 постановлением правительства, данная документация должна соответствовать определённым требованиям и стандартам, что обеспечивает высокое качество проектирования и строительства.
Основные виды документации, которые входят в состав архитектурно-строительного проектирования, можно разделить на несколько категорий:
- Проектная документация — это основа для выполнения строительных работ. Она включает в себя архитектурные, конструктивные, инженерные и другие разделы, которые описывают все аспекты будущего объекта.
- Рабочая документация — это более детализированные документы, которые разрабатываются на основе проектной документации. Они содержат чертежи, спецификации и другие данные, необходимые для выполнения строительных работ.
- Сметная документация — включает в себя расчёты стоимости строительства, что позволяет оценить финансовые затраты на реализацию проекта.
- Техническая документация — это документы, которые содержат информацию о материалах, технологиях и оборудовании, используемом в процессе строительства.
Согласно 87 постановлению правительства, проектная документация должна разрабатываться в соответствии с установленными нормами и правилами. Это включает в себя соблюдение требований по безопасности, экологии, а также учёт градостроительных норм. Важно отметить, что проектная документация должна быть согласована с соответствующими органами, что обеспечивает её соответствие действующему законодательству.
Процесс разработки документации архитектурно-строительного проектирования включает в себя несколько этапов:
- Исследование и анализ — на этом этапе проводится анализ исходных данных, таких как геодезические, геологические и экологические условия участка, а также требования заказчика.
- Разработка концепции — на основе собранной информации разрабатывается концепция проекта, которая включает в себя общие идеи и решения по архитектуре и функциональному назначению объекта.
- Создание проектной документации — на этом этапе разрабатываются все необходимые чертежи и спецификации, которые будут использоваться в дальнейшем.
- Согласование и экспертиза — проектная документация проходит процедуру согласования с различными инстанциями, а также экспертизу, которая подтверждает её соответствие всем требованиям.
Каждый из этих этапов требует тщательной проработки и внимания к деталям, так как от качества документации зависит не только успешность строительства, но и безопасность эксплуатации объекта в будущем.
Важным аспектом является также использование современных технологий и программного обеспечения для разработки проектной документации. Это позволяет значительно ускорить процесс проектирования, повысить точность расчётов и улучшить визуализацию проекта. В последние годы всё большее внимание уделяется внедрению технологий информационного моделирования зданий (BIM), которые позволяют создавать трёхмерные модели объектов и интегрировать все данные в единую систему.
Таким образом, документация архитектурно-строительного проектирования является неотъемлемой частью строительного процесса, и её качество напрямую влияет на успешность реализации проектов. Соблюдение требований 87 постановления правительства и других нормативных актов обеспечивает высокие стандарты проектирования и строительства, что, в свою очередь, способствует созданию безопасных и комфортных объектов для жизни и работы людей.
Одним из ключевых аспектов проектирования является учёт требований безопасности. Это включает в себя как пожарную безопасность, так и безопасность конструкций. Проектировщики должны учитывать все возможные риски и предусмотреть меры по их минимизации. Важным элементом является также соблюдение норм по доступности зданий для людей с ограниченными возможностями.
В рамках проектирования также необходимо учитывать экологические аспекты. Это включает в себя выбор материалов, которые не наносят вреда окружающей среде, а также проектирование систем, способствующих энергосбережению и снижению негативного воздействия на природу. В последние годы всё большее внимание уделяется использованию возобновляемых источников энергии, таких как солнечные панели и ветряные турбины, что также должно отражаться в проектной документации.
Не менее важным является учёт градостроительных норм. Каждое новое строительство должно соответствовать установленным правилам и требованиям, которые регулируют использование земельных участков, высоту зданий, плотность застройки и другие параметры. Это позволяет избежать конфликтов с соседними объектами и обеспечивает гармоничное развитие городской инфраструктуры.
Процесс проектирования также включает в себя взаимодействие с заказчиком. Заказчик играет ключевую роль в определении требований к проекту, и его мнение должно учитываться на всех этапах разработки документации. Регулярные консультации и обсуждения позволяют избежать недопонимания и обеспечить соответствие конечного продукта ожиданиям заказчика.
Важным этапом является проверка и корректировка документации. На этом этапе проектировщики должны внимательно изучить все разделы документации, чтобы выявить возможные ошибки и неточности. Это может включать в себя как внутренние проверки, так и внешние экспертизы, которые обеспечивают дополнительный уровень контроля качества.
После завершения всех этапов проектирования и получения необходимых согласований, проектная документация передаётся в рабочую стадию. На этом этапе начинается непосредственное строительство объекта. Рабочая документация должна быть доступна всем участникам строительного процесса, включая подрядчиков и субподрядчиков, что обеспечивает слаженность работы и минимизирует риски возникновения ошибок.
В процессе строительства также важно вести учёт изменений, которые могут возникнуть в ходе реализации проекта. Это может быть связано с изменением условий на строительной площадке, новыми требованиями заказчика или изменениями в законодательстве. Все изменения должны быть документированы и согласованы, чтобы избежать конфликтов и обеспечить соответствие конечного результата первоначальному проекту.
Таким образом, документация архитектурно-строительного проектирования является сложным и многоуровневым процессом, который требует внимательного подхода на каждом этапе. Соблюдение всех норм и стандартов, а также активное взаимодействие с заказчиком и другими участниками процесса, обеспечивают успешную реализацию проектов и создание качественных объектов, отвечающих современным требованиям.
Пояснительная записка
Документация архитектурно-строительного проектирования является важным аспектом в процессе создания зданий и сооружений. Она включает в себя набор документов, которые необходимы для успешного выполнения проектных работ, а также для обеспечения соответствия проектных решений действующим нормам и стандартам.
Основные цели документации:
- Обеспечение качества проектирования: Документация помогает гарантировать, что проект будет выполнен в соответствии с установленными стандартами и требованиями.
- Согласование действий: Наличие четкой документации позволяет всем участникам проекта (архитекторам, инженерам, строителям) работать в одном направлении.
- Упрощение контроля: Документы служат основой для контроля за выполнением работ и позволяют выявлять отклонения от проекта на ранних стадиях.
Документация архитектурно-строительного проектирования включает в себя несколько ключевых разделов:
- Предпроектные материалы: Это исследования, которые проводятся до начала проектирования, включая анализ участка, геодезические и геологические изыскания.
- Эскизный проект: На этом этапе разрабатываются предварительные решения, которые затем обсуждаются с заказчиком и другими заинтересованными сторонами.
- Рабочая документация: Включает в себя детализированные чертежи, спецификации и расчеты, необходимые для строительства.
- Сметная документация: Содержит информацию о стоимости проектируемых работ и материалов, что позволяет планировать бюджет.
- Технические условия: Определяют требования к проекту со стороны различных служб и организаций, таких как электроснабжение, водоснабжение и другие.
Каждый из этих разделов играет свою уникальную роль в процессе проектирования и строительства. Например, предпроектные материалы помогают избежать ошибок на более поздних стадиях, а рабочая документация обеспечивает точность выполнения строительных работ.
Кроме того, важно отметить, что документация должна быть актуальной и соответствовать изменениям в законодательстве и строительных нормах. Это требует постоянного мониторинга и обновления документов в процессе проектирования и строительства.
Важным аспектом является также соблюдение сроков разработки документации. Задержки в подготовке документов могут привести к срыву сроков строительства и увеличению затрат. Поэтому необходимо заранее планировать все этапы проектирования и согласования документации.
В заключение, документация архитектурно-строительного проектирования является неотъемлемой частью успешного выполнения строительных проектов. Она обеспечивает качество, согласованность и контроль на всех этапах, начиная от идеи и заканчивая реализацией проекта.
Одним из ключевых аспектов документации является согласование проектных решений с различными инстанциями. Это включает в себя получение разрешений и согласований от местных органов власти, а также от специализированных служб, таких как пожарная безопасность, санитарные службы и другие. Процесс согласования может быть длительным и требует тщательной подготовки документов.
Для успешного прохождения согласования необходимо:
- Подготовить полную документацию: Все документы должны быть оформлены в соответствии с требованиями, установленными законодательством.
- Соблюдать сроки: Важно заранее планировать время, необходимое для получения всех согласований, чтобы избежать задержек в проекте.
- Взаимодействовать с заинтересованными сторонами: Налаживание контактов с представителями органов власти и служб может значительно упростить процесс согласования.
После получения всех необходимых согласований начинается этап разработки рабочей документации. Этот этап включает в себя создание детализированных чертежей, спецификаций и расчетов, которые будут использоваться в процессе строительства. Рабочая документация должна быть максимально точной и понятной для всех участников проекта.
Ключевые элементы рабочей документации:
- Чертежи: Включают в себя планы, разрезы и фасады, которые показывают все детали проектируемого объекта.
- Спецификации: Описывают материалы и изделия, которые будут использоваться в строительстве, а также их количество и качество.
- Расчеты: Включают в себя инженерные расчеты, которые подтверждают безопасность и надежность проектируемого объекта.
Важно, чтобы рабочая документация была проверена и утверждена всеми заинтересованными сторонами, прежде чем начнется строительство. Это поможет избежать ошибок и недоразумений в процессе реализации проекта.
Следующим этапом является сметная документация, которая играет важную роль в финансовом планировании проекта. Она включает в себя расчет стоимости всех работ и материалов, необходимых для строительства. Сметная документация должна быть составлена с учетом всех возможных рисков и непредвиденных расходов.
Основные компоненты сметной документации:
- Калькуляция затрат: Подробный расчет всех затрат, связанных с проектом, включая трудозатраты, стоимость материалов и оборудования.
- Сметные расценки: Использование актуальных расценок на строительные работы и материалы, что позволяет получить точную оценку стоимости.
- Анализ рисков: Оценка возможных рисков и непредвиденных обстоятельств, которые могут повлиять на стоимость проекта.
Сметная документация должна быть согласована с заказчиком и другими заинтересованными сторонами, чтобы избежать недоразумений в процессе финансирования проекта.
Важным аспектом является обновление документации в процессе строительства. В ходе реализации проекта могут возникать изменения, которые требуют корректировки документации. Это может быть связано с изменением проектных решений, выбором других материалов или изменением сроков выполнения работ.
Обновление документации должно быть систематическим и документированным, чтобы все изменения были зафиксированы и согласованы с заказчиком и другими участниками проекта. Это поможет избежать конфликтов и недоразумений в будущем.
Схема планировочной организации земельного участка
Документация архитектурно-строительного проектирования является важным этапом в процессе создания и реализации проектов, связанных с планировочной организацией земельного участка. Она включает в себя набор документов, которые обеспечивают правовую, техническую и организационную основу для строительства. Важность этой документации трудно переоценить, так как она не только определяет параметры будущего объекта, но и служит основой для его согласования с различными инстанциями.
Основные виды документации, которые разрабатываются в процессе архитектурно-строительного проектирования, можно разделить на несколько категорий:
- Предпроектная документация: включает в себя обоснование выбора места для строительства, анализ существующих условий, а также предварительные исследования, которые помогают определить целесообразность проекта.
- Проектная документация: это основной набор документов, который включает в себя архитектурные, конструктивные, инженерные и другие разделы, необходимые для реализации проекта. Она должна соответствовать действующим нормам и стандартам.
- Рабочая документация: представляет собой детализированные чертежи и спецификации, которые используются непосредственно в процессе строительства. Она включает в себя все необходимые данные для выполнения строительных работ.
- Сметная документация: содержит расчеты стоимости строительства, включая материалы, работы и услуги, что позволяет контролировать бюджет проекта.
- Техническая документация: включает в себя инструкции по эксплуатации, технические условия и другие документы, которые необходимы для дальнейшей эксплуатации объекта.
Каждый из этих видов документации играет свою уникальную роль в процессе проектирования и строительства. Например, предпроектная документация помогает выявить возможные проблемы на ранних стадиях, что позволяет избежать значительных затрат и задержек в будущем. Проектная документация, в свою очередь, является основой для получения разрешений на строительство и согласования с различными государственными органами.
Рабочая документация, как правило, разрабатывается на основе проектной документации и включает в себя более детализированные чертежи, которые необходимы для выполнения строительных работ. Она должна быть понятной и доступной для всех участников строительного процесса, включая строителей, инженеров и архитекторов.
Сметная документация является важным инструментом для управления финансами проекта. Она позволяет не только оценить общую стоимость строительства, но и контролировать расходы на каждом этапе реализации проекта. Техническая документация, в свою очередь, обеспечивает правильную эксплуатацию и обслуживание объекта после его завершения.
Таким образом, документация архитектурно-строительного проектирования представляет собой комплексный набор документов, который охватывает все этапы от идеи до реализации и эксплуатации объекта. Каждый из этих этапов требует тщательной проработки и согласования, что в конечном итоге влияет на успешность всего проекта.
При разработке документации архитектурно-строительного проектирования необходимо учитывать множество факторов, таких как местные строительные нормы, экологические требования, а также пожелания заказчика. Важным аспектом является также взаимодействие с различными государственными и муниципальными органами, которые могут требовать дополнительные документы или изменения в проекте.
Одним из ключевых этапов в процессе проектирования является разработка архитектурного решения. Этот этап включает в себя создание концепции здания или сооружения, выбор стиля, планировки и материалов. Архитектурное решение должно быть не только эстетически привлекательным, но и функциональным, обеспечивая комфорт и безопасность пользователей.
После утверждения архитектурного решения начинается работа над конструктивными решениями. На этом этапе разрабатываются чертежи, которые определяют, как будет возводиться здание, какие материалы будут использоваться, а также как будут организованы инженерные системы. Конструктивные решения должны учитывать нагрузки, которые будут действовать на здание, а также климатические условия региона.
Не менее важным является инженерное проектирование, которое охватывает все системы, необходимые для функционирования здания: водоснабжение, канализация, отопление, вентиляция и электроснабжение. Каждая из этих систем должна быть спроектирована с учетом современных технологий и стандартов, что обеспечит надежность и эффективность их работы.
После завершения проектирования всех разделов документации, необходимо провести экспертизу проектной документации. Это обязательный этап, который позволяет проверить соответствие проекта действующим нормам и требованиям. Экспертиза может быть как государственной, так и независимой, и ее результаты могут повлиять на дальнейшие действия по реализации проекта.
После успешного прохождения экспертизы проектная документация подлежит согласованию с различными инстанциями, включая архитектурные и строительные управления, а также другие государственные органы. На этом этапе могут возникнуть дополнительные требования или изменения, которые необходимо учесть перед началом строительства.
Когда все согласования получены, проектная документация передается в рабочую стадию, где начинается подготовка к строительству. Важно, чтобы все участники проекта были ознакомлены с документацией и понимали свои обязанности. Это включает в себя не только строителей, но и проектировщиков, инженеров и менеджеров проекта.
В процессе строительства также может потребоваться внесение изменений в проектную документацию. Это может быть связано с изменением условий на строительной площадке, новыми требованиями заказчика или изменениями в законодательстве. Важно, чтобы все изменения были документированы и согласованы с соответствующими инстанциями.
После завершения строительства необходимо провести приемку объекта, которая включает в себя проверку соответствия выполненных работ проектной документации. Приемка может быть как внутренней, так и внешней, и ее результаты фиксируются в акте приемки. Этот акт является важным документом, который подтверждает, что объект готов к эксплуатации.
Таким образом, документация архитектурно-строительного проектирования охватывает все этапы от идеи до завершения строительства и эксплуатации объекта. Каждый из этих этапов требует тщательной проработки и согласования, что в конечном итоге влияет на успешность всего проекта. Важно помнить, что качественная документация — это залог успешного и безопасного строительства.
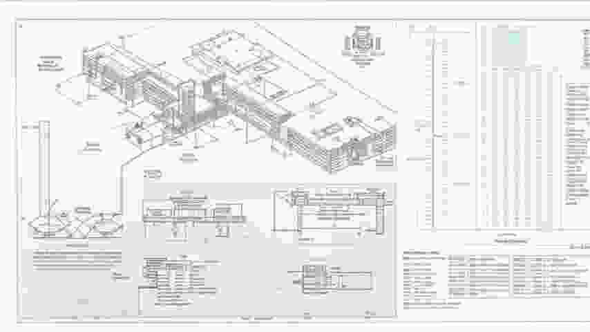
Объемно-планировочные и архитектурные решения
Документация архитектурно-строительного проектирования представляет собой комплекс документов, необходимых для реализации строительного проекта. Она включает в себя различные виды чертежей, спецификаций, расчетов и других материалов, которые обеспечивают правильное понимание и выполнение проектных решений. Важным аспектом этой документации являются объемно-планировочные и архитектурные решения, которые определяют функциональность, эстетические качества и технические характеристики зданий и сооружений.
Объемно-планировочные решения касаются организации пространства внутри и снаружи здания. Они включают в себя планировку помещений, их взаимосвязь, а также расположение здания на участке. Архитектурные решения, в свою очередь, охватывают стилистические и конструктивные аспекты, такие как форма, фасады, материалы и отделка. Эти решения должны быть согласованы с требованиями строительных норм и правил, а также учитывать пожелания заказчика и особенности местности.
Процесс разработки объемно-планировочных и архитектурных решений начинается с анализа исходных данных, таких как:
- Топографические характеристики участка;
- Климатические условия;
- Существующая инфраструктура;
- Нормативные требования и ограничения;
- Пожелания заказчика и функциональные требования к зданию.
На основе собранной информации разрабатываются концептуальные решения, которые затем детализируются в проектной документации. Важным этапом является создание эскизов и макетов, которые помогают визуализировать проект и оценить его соответствие заданным требованиям. Эти материалы могут быть представлены в виде 2D и 3D моделей, что позволяет более точно представить объемно-пространственные характеристики будущего объекта.
После утверждения концепции начинается работа над архитектурными чертежами, которые включают в себя:
- Планы этажей;
- Фасады;
- Разрезы;
- Схемы инженерных систем;
- Детали конструкций.
Каждый из этих элементов играет важную роль в понимании общего замысла проекта и его реализации. Например, планы этажей показывают расположение помещений, их размеры и взаимосвязь, в то время как фасады демонстрируют внешний вид здания и его интеграцию в окружающую среду.
Кроме того, объемно-планировочные и архитектурные решения должны учитывать аспекты устойчивого развития и энергоэффективности. Это включает в себя использование современных технологий и материалов, которые способствуют снижению энергозатрат и минимизации негативного воздействия на окружающую среду. Важно также предусмотреть возможность адаптации здания к изменяющимся условиям эксплуатации и требованиям пользователей.
В процессе проектирования необходимо учитывать не только эстетические и функциональные аспекты, но и вопросы безопасности. Это касается как конструктивной надежности здания, так и обеспечения комфортных условий для его пользователей. Все эти факторы должны быть отражены в проектной документации, что позволит избежать ошибок на этапе строительства и эксплуатации.
Таким образом, объемно-планировочные и архитектурные решения являются основой для успешного архитектурно-строительного проектирования. Они требуют комплексного подхода и взаимодействия различных специалистов, что обеспечивает создание качественных и функциональных объектов, отвечающих современным требованиям и ожиданиям заказчиков.
Важным аспектом проектирования является соблюдение норм и стандартов, которые регулируют объемно-планировочные и архитектурные решения. Эти нормы включают в себя требования к минимальным размерам помещений, высоте потолков, освещенности, вентиляции и другим параметрам, которые обеспечивают комфорт и безопасность пользователей. Например, проектирование жилых помещений требует учета норм по площади жилых комнат, кухонь и санузлов, что напрямую влияет на качество жизни жильцов.
При разработке архитектурных решений также необходимо учитывать доступность зданий для людей с ограниченными возможностями. Это включает в себя проектирование пандусов, лифтов и других элементов, которые обеспечивают беспрепятственный доступ к различным уровням здания. Важно, чтобы такие решения были интегрированы на этапе проектирования, а не добавлены позже, что может привести к дополнительным затратам и ухудшению функциональности.
Современные технологии играют значительную роль в процессе проектирования. Использование программного обеспечения для архитектурного моделирования, таких как BIM (Building Information Modeling), позволяет создавать более точные и детализированные модели зданий. Это не только упрощает процесс проектирования, но и позволяет выявлять потенциальные проблемы на ранних стадиях, что снижает риски и затраты на этапе строительства.
Кроме того, применение виртуальной и дополненной реальности в архитектурном проектировании открывает новые горизонты для визуализации проектов. Заказчики могут "прогуляться" по будущему зданию еще до начала его строительства, что позволяет лучше понять объемно-планировочные решения и внести необходимые коррективы. Это взаимодействие между архитекторами и заказчиками способствует более точному выполнению требований и ожиданий.
Не менее важным является и вопрос согласования проектной документации с различными инстанциями. На этапе проектирования необходимо получить разрешения от местных органов власти, что может включать в себя согласование архитектурных решений, проверку на соответствие градостроительным нормам и правилам. Этот процесс может занять значительное время, поэтому важно заранее учитывать все требования и ограничения, чтобы избежать задержек в реализации проекта.
После завершения проектирования и получения всех необходимых разрешений начинается этап строительства. На этом этапе объемно-планировочные и архитектурные решения становятся основой для выполнения строительных работ. Важно, чтобы все участники процесса — от строителей до инженеров — имели доступ к актуальной проектной документации, что обеспечивает согласованность действий и минимизирует вероятность ошибок.
Контроль за выполнением проектных решений также является важной частью процесса. Регулярные проверки и инспекции позволяют убедиться в том, что строительство ведется в соответствии с проектом, а также выявить и устранить возможные отклонения на ранних стадиях. Это особенно актуально для сложных объектов, где объемно-планировочные и архитектурные решения могут требовать особого внимания к деталям.
В заключение, объемно-планировочные и архитектурные решения являются ключевыми элементами документации архитектурно-строительного проектирования. Они требуют комплексного подхода, учета множества факторов и взаимодействия различных специалистов. Успешная реализация этих решений обеспечивает создание качественных, функциональных и эстетически привлекательных объектов, которые отвечают современным требованиям и ожиданиям пользователей.
Конструктивные решения
Документация архитектурно-строительного проектирования является важнейшим элементом в процессе создания зданий и сооружений. Она включает в себя набор документов, которые обеспечивают полное и детальное описание проектируемого объекта, его функциональных, эстетических и технических характеристик. Важность этой документации трудно переоценить, так как она служит основой для всех этапов проектирования, строительства и эксплуатации.
Основные виды документации, используемой в архитектурно-строительном проектировании, можно разделить на несколько категорий:
- Предпроектная документация — включает в себя исследования, анализы и обоснования, которые предшествуют началу проектирования. Это могут быть градостроительные обоснования, экологические исследования, а также анализ потребностей заказчика.
- Рабочая документация — представляет собой детализированные чертежи, схемы и спецификации, которые необходимы для реализации проекта. Она включает в себя архитектурные, конструктивные, инженерные и другие разделы, которые обеспечивают полное понимание проекта.
- Сметная документация — содержит информацию о стоимости строительства, включая расчеты затрат на материалы, работы и услуги. Она необходима для планирования бюджета и контроля расходов на всех этапах реализации проекта.
- Эксплуатационная документация — включает в себя инструкции по эксплуатации, технические паспорта и другие документы, которые необходимы для дальнейшего обслуживания и эксплуатации построенного объекта.
Каждый из этих видов документации играет свою уникальную роль в процессе проектирования и строительства. Например, предпроектная документация помогает определить целесообразность и возможности реализации проекта, а рабочая документация обеспечивает точность и качество выполнения строительных работ.
При разработке архитектурно-строительной документации необходимо учитывать множество факторов, таких как требования законодательства, нормы и стандарты, а также пожелания заказчика. Важно, чтобы все документы были согласованы и соответствовали друг другу, что позволит избежать недоразумений и ошибок в процессе реализации проекта.
Одним из ключевых аспектов документации является ее структурированность и доступность. Все документы должны быть организованы таким образом, чтобы их можно было легко найти и использовать в любой момент. Это особенно важно в крупных проектах, где количество документов может достигать сотен и даже тысяч страниц.
Для обеспечения качества документации архитектурно-строительного проектирования необходимо проводить регулярные проверки и ревизии. Это позволит выявить и устранить возможные ошибки на ранних стадиях, что в свою очередь снизит риски и затраты в будущем.
Современные технологии также играют важную роль в процессе создания документации. Использование программного обеспечения для проектирования, таких как CAD-системы, позволяет значительно упростить и ускорить процесс разработки чертежей и схем. Кроме того, такие системы обеспечивают возможность автоматической проверки на соответствие нормам и стандартам, что повышает качество документации.
Важным аспектом является также взаимодействие между различными участниками проектирования. Архитекторы, инженеры, строители и заказчики должны работать в тесном сотрудничестве, чтобы обеспечить согласованность всех элементов проекта. Для этого часто используются специальные платформы для совместной работы, которые позволяют всем участникам проекта обмениваться документами, комментариями и изменениями в реальном времени.
Кроме того, необходимо учитывать, что документация должна быть адаптирована к требованиям конкретного проекта и его особенностям. Например, для проектов, связанных с историческими зданиями или объектами культурного наследия, требуется особый подход к разработке документации, который учитывает необходимость сохранения исторической ценности и архитектурного облика.
В процессе проектирования также важно учитывать требования безопасности и устойчивости. Документация должна содержать все необходимые расчеты и обоснования, которые подтверждают, что проект соответствует современным стандартам безопасности. Это включает в себя не только конструктивные решения, но и аспекты, связанные с пожарной безопасностью, сейсмостойкостью и другими факторами.
Не менее важным является соблюдение экологических норм и стандартов. Современные проекты должны учитывать влияние на окружающую среду, что требует включения в документацию экологических исследований и обоснований. Это может включать в себя анализ воздействия на экосистему, использование устойчивых материалов и технологий, а также планирование зеленых зон и ландшафтного дизайна.
С учетом всех этих факторов, процесс разработки документации архитектурно-строительного проектирования становится сложным и многогранным. Он требует высокой квалификации специалистов, а также глубокого понимания всех аспектов проектирования и строительства. Важно, чтобы все участники процесса были готовы к постоянному обучению и адаптации к новым требованиям и технологиям.
В заключение, можно сказать, что качественная документация является основой успешного архитектурно-строительного проектирования. Она обеспечивает не только реализацию задуманных идей, но и безопасность, устойчивость и соответствие современным требованиям. Поэтому внимание к деталям и тщательная проработка всех аспектов документации должны быть приоритетом для всех участников проектирования.
Системы электроснабжения
Документация архитектурно-строительного проектирования является важным аспектом в создании систем электроснабжения. Она включает в себя набор документов, которые обеспечивают правильное проектирование, строительство и эксплуатацию электрических систем. Важно понимать, что качественная документация позволяет избежать множества проблем на всех этапах реализации проекта.
Основные виды документации
- Проектная документация - включает в себя все чертежи, схемы и спецификации, необходимые для реализации проекта. Она должна содержать информацию о расположении электрических сетей, типах используемого оборудования и расчетах нагрузок.
- Технические условия - это документы, которые определяют требования к проектированию и эксплуатации систем электроснабжения. Они могут включать в себя нормы и правила, которые необходимо соблюдать при проектировании.
- Сметная документация - включает в себя расчеты стоимости всех работ и материалов, необходимых для реализации проекта. Это позволяет контролировать бюджет и избегать перерасходов.
- Эксплуатационная документация - включает в себя инструкции по эксплуатации и обслуживанию систем электроснабжения. Она необходима для обеспечения безопасной и эффективной работы оборудования.
Проектная документация
Проектная документация является основой для всех последующих этапов. Она должна быть составлена с учетом всех норм и стандартов, действующих в области электроснабжения. В проектной документации должны быть указаны:
- Схемы электрических сетей, включая распределительные устройства и трансформаторы.
- Параметры электрических нагрузок, которые помогут определить необходимую мощность и тип оборудования.
- Планы размещения оборудования, что позволит оптимизировать пространство и обеспечить доступ к элементам системы.
Технические условия
Технические условия разрабатываются на основе анализа потребностей заказчика и требований действующих норм. Они могут включать в себя:
- Требования к качеству электроэнергии, включая допустимые уровни напряжения и частоты.
- Условия подключения к существующим электрическим сетям.
- Требования к безопасности и охране труда при эксплуатации систем электроснабжения.
Сметная документация
Сметная документация позволяет оценить стоимость проекта и контролировать расходы. Она должна включать:
- Расчет стоимости материалов, включая кабели, трансформаторы и другое оборудование.
- Оценку трудозатрат на выполнение работ.
- Прогнозирование возможных дополнительных расходов, связанных с изменениями в проекте.
Эксплуатационная документация
Эксплуатационная документация необходима для обеспечения безопасной и эффективной работы систем электроснабжения. Она должна содержать:
- Инструкции по эксплуатации оборудования, включая правила его включения и отключения.
- Рекомендации по техническому обслуживанию и ремонту.
- Порядок действий в случае аварийных ситуаций.
Разработка проектной документации
Процесс разработки проектной документации начинается с анализа исходных данных, которые включают в себя информацию о местоположении объекта, его назначении и потребностях в электроэнергии. На этом этапе важно провести обследование территории, чтобы учесть все особенности, которые могут повлиять на проектирование.
После сбора данных разрабатываются предварительные схемы, которые затем обсуждаются с заказчиком. Важно, чтобы все заинтересованные стороны были вовлечены в процесс, так как это позволяет учесть их пожелания и требования. На основе полученных отзывов вносятся изменения, и создается окончательная версия проектной документации.
Согласование проектной документации
После завершения разработки проектной документации необходимо пройти процедуру согласования. Это включает в себя:
- Проверку документации на соответствие действующим нормам и стандартам.
- Получение разрешений от местных органов власти и других контролирующих организаций.
- Согласование с поставщиками электроэнергии, если проект предполагает подключение к существующим сетям.
Согласование может занять значительное время, поэтому важно заранее планировать этот этап. Наличие всех необходимых разрешений и согласований является обязательным условием для начала строительных работ.
Строительство и монтаж систем электроснабжения
После получения всех разрешений начинается этап строительства и монтажа. Важно, чтобы все работы выполнялись в соответствии с проектной документацией. На этом этапе необходимо:
- Обеспечить контроль за качеством выполняемых работ.
- Проверять соответствие используемых материалов и оборудования проектным требованиям.
- Вести документацию по выполненным работам, что поможет в дальнейшем при эксплуатации системы.
Монтаж систем электроснабжения включает в себя установку распределительных устройств, прокладку кабелей, установку трансформаторов и другого оборудования. Все работы должны выполняться квалифицированными специалистами, что обеспечит безопасность и надежность системы.
Проверка и испытания систем электроснабжения
После завершения монтажа необходимо провести проверку и испытания всех систем. Это включает в себя:
- Проверку работоспособности оборудования и его соответствия проектным параметрам.
- Проведение испытаний на устойчивость к перегрузкам и коротким замыканиям.
- Проверку систем защиты и автоматизации.
Только после успешного завершения всех испытаний система может быть введена в эксплуатацию. Важно, чтобы все результаты испытаний были задокументированы, так как это может понадобиться в будущем для обслуживания и ремонта.
Обслуживание и эксплуатация систем электроснабжения
После ввода системы в эксплуатацию необходимо обеспечить ее регулярное обслуживание. Это включает в себя:
- Плановые проверки и техническое обслуживание оборудования.
- Мониторинг состояния электрических сетей и оборудования.
- Своевременное устранение выявленных неисправностей.
Обслуживание систем электроснабжения является важным аспектом, который позволяет продлить срок службы оборудования и обеспечить его надежную работу. Важно также проводить обучение персонала, который будет заниматься эксплуатацией системы, чтобы они знали все необходимые процедуры и правила безопасности.
системы водоснабжения
Документация архитектурно-строительного проектирования систем водоснабжения является важным аспектом, который обеспечивает правильное и эффективное проектирование, строительство и эксплуатацию водоснабжающих систем. Она включает в себя различные виды документов, которые необходимы для успешного завершения проекта.
Основные виды документации
- Техническое задание (ТЗ) - это документ, который определяет цели и задачи проектирования, а также требования к системе водоснабжения.
- Проектная документация - включает в себя схемы, чертежи и спецификации, которые детализируют проект системы водоснабжения.
- Рабочая документация - это набор документов, который используется непосредственно в процессе строительства, включая рабочие чертежи и инструкции.
- Сметная документация - содержит расчеты стоимости материалов, работ и услуг, необходимых для реализации проекта.
- Эксплуатационная документация - включает в себя инструкции по эксплуатации и обслуживанию системы водоснабжения после завершения строительства.
Каждый из этих видов документации играет свою уникальную роль в процессе проектирования и строительства систем водоснабжения.
Техническое задание
Техническое задание является основой для разработки проектной документации. Оно должно содержать:
- Описание объекта проектирования;
- Требования к качеству воды;
- Параметры системы водоснабжения;
- Сроки выполнения работ;
- Бюджетные ограничения.
Техническое задание должно быть согласовано со всеми заинтересованными сторонами, включая заказчика, проектировщиков и подрядчиков.
Проектная документация
Проектная документация включает в себя:
- Схемы водоснабжения - показывают расположение трубопроводов, насосных станций и других элементов системы.
- Чертежи - детализируют конструктивные элементы, такие как колодцы, резервуары и фильтры.
- Спецификации - содержат информацию о материалах и оборудовании, которые будут использоваться в проекте.
Эти документы должны быть выполнены в соответствии с действующими стандартами и нормами, чтобы обеспечить безопасность и надежность системы водоснабжения.
Рабочая документация
Рабочая документация разрабатывается на основе проектной документации и включает в себя:
- Рабочие чертежи - детализированные планы, которые используются строителями для выполнения работ.
- Инструкции по монтажу - описывают порядок выполнения работ и требования к качеству.
- Графики выполнения работ - показывают сроки и последовательность выполнения различных этапов строительства.
Рабочая документация должна быть четкой и понятной, чтобы избежать ошибок в процессе строительства.
Сметная документация
Сметная документация включает в себя:
- Сметы на материалы - расчеты стоимости всех необходимых материалов для строительства.
- Сметы на работы - оценка стоимости трудозатрат на выполнение строительных работ.
- Сметы на услуги - расчеты стоимости услуг сторонних организаций, таких как проектировщики и подрядчики.
Сметная документация является важным инструментом для контроля бюджета проекта и обеспечения его финансовой устойчивости.
Эксплуатационная документация
Эксплуатационная документация включает в себя:
- Инструкции по эксплуатации - описывают порядок использования системы водоснабжения.
- Правила включения и выключения системы;
- Рекомендации по регулярному обслуживанию и проверке оборудования;
- Методы устранения неполадок и аварийных ситуаций;
- Порядок обращения в сервисные службы.
- Инструкции по охране труда - описывают меры предосторожности, которые необходимо соблюдать при работе с оборудованием.
- Планы эвакуации - показывают пути выхода в случае аварийной ситуации.
- Оценка рисков - анализ потенциальных опасностей и разработка мер по их минимизации.
- Согласование с заказчиком - проверка соответствия документации требованиям и ожиданиям заказчика.
- Экспертиза проектной документации - оценка соответствия проектных решений действующим нормам и стандартам.
- Получение разрешений - оформление необходимых разрешений для начала строительных работ.
- Архивирование проектной документации - хранение всех чертежей, схем и спецификаций в доступном виде.
- Хранение эксплуатационной документации - обеспечение доступа к инструкциям и рекомендациям для пользователей.
- Обновление документации - регулярное внесение изменений в документацию в случае модернизации или ремонта системы.
Инструкции по эксплуатации
Инструкции по эксплуатации содержат важные рекомендации для пользователей системы водоснабжения, включая:
Эти инструкции помогают обеспечить надежную и безопасную эксплуатацию системы водоснабжения, а также продлить срок службы оборудования.
Документация по охране труда и технике безопасности
Важным аспектом проектирования систем водоснабжения является соблюдение норм охраны труда и техники безопасности. Документация в этой области включает:
Соблюдение этих норм является обязательным для обеспечения безопасности работников и пользователей системы водоснабжения.
Согласование и экспертиза документации
После разработки всей необходимой документации, она подлежит согласованию и экспертизе. Этот процесс включает:
Согласование и экспертиза документации являются важными этапами, которые помогают избежать ошибок и недоразумений в процессе реализации проекта.
Хранение и архивирование документации
После завершения проекта вся документация должна быть правильно организована и сохранена. Это включает:
Правильное хранение и архивирование документации обеспечивают возможность быстрого доступа к информации в будущем и упрощают процесс обслуживания системы водоснабжения.
Заключение
Документация архитектурно-строительного проектирования систем водоснабжения играет ключевую роль в успешной реализации проектов. Она обеспечивает соответствие всем требованиям, нормам и стандартам, а также способствует безопасной и эффективной эксплуатации систем водоснабжения.
системы водоотведения
Системы водоотведения играют ключевую роль в архитектурно-строительном проектировании, обеспечивая эффективное удаление сточных вод и предотвращая затопление территорий. В процессе проектирования таких систем необходимо учитывать множество факторов, включая типы сточных вод, характеристики местности, климатические условия и требования к экологии. Важно, чтобы проектировщики имели четкое представление о документации, необходимой для успешной реализации проектов водоотведения.
Документация архитектурно-строительного проектирования систем водоотведения включает в себя несколько основных компонентов, каждый из которых имеет свои особенности и требования. К ним относятся:
- Техническое задание (ТЗ) — это основной документ, который определяет цели и задачи проектирования, а также требования к системе водоотведения. В ТЗ должны быть указаны параметры, такие как объем сточных вод, типы загрязнений, а также требования к очистке и утилизации.
- Генеральный план — это документ, который отображает расположение всех элементов системы водоотведения на территории. Он должен включать в себя схемы расположения трубопроводов, колодцев, насосных станций и других объектов.
- Проектная документация — включает в себя чертежи, схемы и спецификации, которые детализируют конструкцию и функционирование системы. Важно, чтобы проектная документация соответствовала действующим строительным нормам и правилам.
- Сметная документация — необходима для определения стоимости строительства и эксплуатации системы водоотведения. Она включает в себя расчеты затрат на материалы, работы и оборудование.
- Экологическая экспертиза — обязательный этап, который позволяет оценить влияние проектируемой системы на окружающую среду. Экспертиза должна учитывать возможные риски и предлагать меры по их минимизации.
Каждый из этих документов требует тщательной проработки и согласования с различными инстанциями. Например, техническое задание должно быть согласовано с заказчиком и, возможно, с местными органами власти, чтобы учесть все требования и ограничения. Генеральный план, в свою очередь, должен соответствовать градостроительным нормам и учитывать существующую инфраструктуру.
Проектная документация должна быть подготовлена с учетом всех технических характеристик и особенностей местности. Это включает в себя выбор материалов, расчет диаметров труб, проектирование колодцев и насосных станций. Важно также учитывать возможные изменения в условиях эксплуатации, такие как увеличение объемов сточных вод или изменение их состава.
Сметная документация должна быть составлена с учетом всех возможных затрат, включая непредвиденные расходы. Это позволит избежать финансовых проблем в процессе реализации проекта. Кроме того, важно учитывать стоимость эксплуатации системы водоотведения, чтобы обеспечить ее экономическую целесообразность.
Экологическая экспертиза является важным этапом, который позволяет выявить потенциальные риски и предложить меры по их минимизации. Это может включать в себя рекомендации по выбору технологий очистки сточных вод, а также меры по защите водоемов и почвы от загрязнения.
При проектировании систем водоотведения также необходимо учитывать различные технологии, которые могут быть применены для очистки сточных вод. В зависимости от типа сточных вод и требований к их очистке, проектировщики могут выбирать между различными методами, такими как:
- Физико-химические методы — включают в себя процессы коагуляции, флотации и осаждения, которые позволяют удалять взвешенные вещества и загрязняющие вещества из сточных вод.
- Биологические методы — основаны на использовании микроорганизмов для разложения органических веществ. Это может быть как активный ил, так и биофильтры, которые обеспечивают высокую степень очистки.
- Фильтрация — используется для удаления твердых частиц из сточных вод. Это может быть как механическая фильтрация, так и использование мембранных технологий.
- Системы замкнутого водооборота — позволяют повторно использовать очищенные сточные воды для технических нужд, что значительно снижает потребление пресной воды.
Выбор технологии очистки зависит от множества факторов, включая состав сточных вод, требования к качеству очищенной воды и экономические аспекты. Важно, чтобы проектировщики имели доступ к актуальным данным о существующих технологиях и их эффективности.
Кроме того, проектирование систем водоотведения должно учитывать вопросы эксплуатации и обслуживания. Это включает в себя:
- Доступность для обслуживания — все элементы системы должны быть расположены так, чтобы обеспечить легкий доступ для проведения регулярного обслуживания и ремонта.
- Автоматизация процессов — внедрение автоматизированных систем управления может значительно повысить эффективность работы системы и снизить затраты на эксплуатацию.
- Обучение персонала — важно обеспечить квалифицированный персонал, который сможет эффективно управлять системой водоотведения и проводить необходимые работы по ее обслуживанию.
Также стоит отметить, что проектирование систем водоотведения должно учитывать требования законодательства и нормативных актов. Это включает в себя соблюдение санитарных норм, экологических стандартов и правил безопасности. Проектировщики должны быть в курсе всех изменений в законодательстве и адаптировать свои проекты в соответствии с новыми требованиями.
Важным аспектом является также взаимодействие с местными органами власти и общественностью. Проектировщики должны быть готовы к обсуждению своих проектов с заинтересованными сторонами и учитывать их мнения и предложения. Это может помочь избежать конфликтов и обеспечить поддержку проекта на всех этапах его реализации.
Таким образом, документация архитектурно-строительного проектирования систем водоотведения является многоуровневым процессом, который требует комплексного подхода и учета множества факторов. Каждый этап проектирования должен быть тщательно проработан, чтобы обеспечить эффективное функционирование системы и минимизировать ее воздействие на окружающую среду.
системы отопление вентиляции и кондиционирования воздуха
Документация архитектурно-строительного проектирования систем отопления, вентиляции и кондиционирования воздуха (ОВК) является важным аспектом в процессе проектирования и строительства зданий. Она включает в себя набор документов, которые обеспечивают правильное функционирование систем, их соответствие нормам и стандартам, а также безопасность эксплуатации. В данной статье мы рассмотрим основные виды документации, их содержание и значение в проектировании систем ОВК.
Системы отопления, вентиляции и кондиционирования воздуха требуют тщательной проработки на этапе проектирования. Это связано с тем, что от правильного выбора и расчета систем зависит не только комфорт пользователей, но и эффективность использования энергоресурсов. Поэтому документация должна включать в себя следующие ключевые элементы:
- Техническое задание (ТЗ) - это документ, который определяет требования к проектируемым системам. В ТЗ указываются цели и задачи проектирования, а также основные параметры, такие как мощность, тип систем, условия эксплуатации и т.д.
- Проектная документация - включает в себя чертежи, схемы и спецификации, которые детализируют проектируемые системы. Важно, чтобы проектная документация была выполнена в соответствии с действующими нормами и стандартами, а также учитывала особенности конкретного здания.
- Расчетные документы - содержат расчеты тепловых нагрузок, воздухообмена, а также гидравлические расчеты для систем отопления и водоснабжения. Эти документы необходимы для обоснования выбора оборудования и систем.
- Сметная документация - включает в себя сметы на проектирование и строительство систем ОВК. Она позволяет оценить стоимость работ и материалов, необходимых для реализации проекта.
- Технические условия (ТУ) - это документы, которые выдает организация, отвечающая за подключение систем к инженерным сетям. ТУ содержат требования к проектированию и эксплуатации систем, а также условия подключения.
Каждый из этих документов играет свою роль в процессе проектирования и строительства. Например, техническое задание определяет рамки проекта, а проектная документация визуализирует идеи и решения, предложенные в ТЗ. Расчетные документы обеспечивают научную обоснованность проектных решений, а сметная документация позволяет контролировать бюджет проекта.
Кроме того, важно учитывать, что документация должна быть актуальной и соответствовать современным требованиям. Это включает в себя не только соблюдение норм и стандартов, но и использование современных технологий и материалов, которые могут повысить эффективность систем ОВК. Например, применение энергоэффективного оборудования и автоматизированных систем управления может значительно снизить эксплуатационные расходы.
Также стоит отметить, что документация должна быть доступна для всех участников проекта, включая архитекторов, инженеров, строителей и заказчиков. Это обеспечивает прозрачность процесса и позволяет избежать недоразумений и ошибок на этапе реализации проекта.
Важным аспектом проектирования систем ОВК является соблюдение норм и стандартов, которые регулируют проектирование, монтаж и эксплуатацию данных систем. В России основными документами, определяющими эти нормы, являются строительные нормы и правила (СНиП), а также различные ГОСТы. Эти документы содержат требования к проектированию систем отопления, вентиляции и кондиционирования, а также к их эксплуатации и обслуживанию.
При разработке проектной документации необходимо учитывать климатические условия региона, в котором будет располагаться здание. Это влияет на выбор типа систем, их мощности и конфигурации. Например, в регионах с холодным климатом требуется более мощное отопление, в то время как в теплых регионах акцент может быть сделан на системы кондиционирования и вентиляции.
Кроме того, проектировщики должны учитывать архитектурные особенности здания. Например, форма и размеры помещений, наличие окон и дверей, а также их расположение могут существенно повлиять на распределение тепла и воздуха. Поэтому важно проводить детальные расчеты и моделирование, чтобы обеспечить оптимальные условия для пользователей.
В процессе проектирования также необходимо учитывать требования к энергоэффективности. Современные системы ОВК должны быть не только эффективными, но и экономичными. Это достигается за счет использования высокоэффективного оборудования, автоматизации процессов и применения альтернативных источников энергии, таких как солнечные панели или тепловые насосы.
Документация должна также включать в себя разделы, касающиеся безопасности систем. Это включает в себя оценку рисков, связанных с эксплуатацией оборудования, а также меры по предотвращению аварийных ситуаций. Например, необходимо предусмотреть системы автоматического отключения в случае перегрева или утечки газа.
Не менее важным является раздел, посвященный обслуживанию и ремонту систем ОВК. В документации должны быть указаны рекомендации по регулярному техническому обслуживанию, а также инструкции по устранению возможных неисправностей. Это поможет продлить срок службы оборудования и обеспечить его надежную работу.
В заключение, документация архитектурно-строительного проектирования систем отопления, вентиляции и кондиционирования воздуха является неотъемлемой частью успешного проектирования и строительства. Она обеспечивает соответствие проектных решений современным требованиям, а также безопасность и комфорт пользователей. Правильная организация и ведение документации на всех этапах проектирования и строительства способствуют созданию эффективных и надежных систем ОВК, которые будут служить долгие годы.
слаботочные системы
Документация архитектурно-строительного проектирования является важным аспектом в разработке слаботочных систем. Она включает в себя все необходимые документы, которые обеспечивают правильное проектирование, установку и эксплуатацию слаботочных систем, таких как системы видеонаблюдения, охранной сигнализации, системы контроля доступа и другие.
Основные виды документации, которые необходимы для проектирования слаботочных систем, включают:
- Техническое задание (ТЗ) - это документ, который определяет требования к проектируемой системе, включая функциональные и технические характеристики.
- Проектная документация - включает в себя схемы, чертежи и спецификации, которые описывают, как будет реализована система.
- Рабочая документация - это более детализированные документы, которые содержат инструкции по установке и настройке оборудования.
- Эксплуатационная документация - включает в себя руководства пользователя, инструкции по эксплуатации и техническому обслуживанию систем.
Каждый из этих документов играет свою роль в процессе проектирования и реализации слаботочных систем. Например, техническое задание является основой для разработки проектной документации, а рабочая документация необходима для успешной установки и настройки оборудования.
При разработке документации важно учитывать следующие аспекты:
- Соответствие нормативным требованиям - документация должна соответствовать действующим стандартам и нормам, регулирующим проектирование и установку слаботочных систем.
- Учет специфики объекта - необходимо учитывать особенности здания или сооружения, где будет установлена система, чтобы обеспечить ее эффективную работу.
- Координация с другими системами - важно учитывать взаимодействие слаботочных систем с другими инженерными системами, такими как электроснабжение, вентиляция и т.д.
Процесс разработки документации начинается с составления технического задания, которое должно быть согласовано с заказчиком. Важно, чтобы все требования были четко прописаны, чтобы избежать недоразумений на следующих этапах проектирования.
После утверждения технического задания разрабатывается проектная документация. На этом этапе создаются схемы и чертежи, которые показывают, как будет выглядеть система, где будут расположены устройства и как они будут соединены между собой.
Рабочая документация разрабатывается на основе проектной документации и включает в себя более детализированные инструкции по установке и настройке оборудования. Она должна быть понятной и доступной для монтажников, чтобы они могли без проблем выполнить установку.
Эксплуатационная документация разрабатывается для конечных пользователей системы. Она должна содержать все необходимые инструкции по эксплуатации и техническому обслуживанию, чтобы обеспечить надежную работу системы на протяжении всего срока ее эксплуатации.
Таким образом, документация архитектурно-строительного проектирования является неотъемлемой частью процесса разработки слаботочных систем. Она обеспечивает четкость и последовательность на всех этапах проектирования, установки и эксплуатации, что в конечном итоге влияет на эффективность и надежность работы систем.
После завершения разработки всех необходимых документов, важно провести их согласование с заинтересованными сторонами. Это может включать в себя заказчика, проектировщиков, монтажников и других участников процесса. Согласование документации позволяет выявить возможные недочеты и внести необходимые изменения до начала реализации проекта.
На этапе согласования также важно учитывать:
- Обратную связь от пользователей - мнения конечных пользователей могут помочь улучшить проект, учитывая их потребности и ожидания.
- Технические ограничения - необходимо учитывать ограничения, связанные с используемыми технологиями и оборудованием.
- Бюджетные ограничения - проект должен соответствовать установленному бюджету, что может потребовать пересмотра некоторых решений.
После согласования документации начинается этап реализации проекта. На этом этапе рабочая документация становится основным инструментом для монтажников. Они должны следовать инструкциям, указанным в документации, чтобы обеспечить правильную установку и настройку оборудования.
Важно, чтобы монтажники имели доступ к актуальной версии документации, так как изменения могут вноситься в процессе работы. Это может касаться как проектных решений, так и спецификаций оборудования. Поэтому рекомендуется вести журнал изменений, где будут фиксироваться все обновления документации.
После завершения установки слаботочных систем необходимо провести тестирование и наладку оборудования. Это включает в себя:
- Проверку работоспособности - все компоненты системы должны быть протестированы на предмет их функциональности.
- Настройку параметров - оборудование должно быть настроено в соответствии с требованиями, указанными в техническом задании.
- Обучение пользователей - конечные пользователи должны быть обучены работе с системой, чтобы они могли эффективно ее использовать.
После успешного завершения всех этапов установки и тестирования, проект считается завершенным. Однако это не означает, что работа с документацией закончена. Эксплуатационная документация должна быть передана пользователям, а также необходимо организовать техническое обслуживание системы.
Техническое обслуживание включает в себя регулярные проверки и обновления системы, что позволяет поддерживать ее работоспособность на высоком уровне. Важно, чтобы все процедуры обслуживания также были задокументированы, чтобы обеспечить их выполнение в будущем.
Таким образом, документация архитектурно-строительного проектирования для слаботочных систем играет ключевую роль на всех этапах — от разработки до эксплуатации. Она обеспечивает четкость, последовательность и надежность, что в конечном итоге влияет на успешность проекта.
системы газоснабжения
Документация архитектурно-строительного проектирования систем газоснабжения является важным аспектом, который обеспечивает безопасность, эффективность и соответствие всем нормативным требованиям. В процессе проектирования необходимо учитывать множество факторов, включая технические характеристики, требования к безопасности, а также экологические аспекты.
Основные виды документации, которые разрабатываются в рамках проектирования систем газоснабжения, включают:
- Техническое задание (ТЗ) — это документ, который определяет цели и задачи проектирования, а также требования к системе газоснабжения. ТЗ должно содержать информацию о предполагаемом объеме газоснабжения, типах используемого газа, а также условиях эксплуатации.
- Проектная документация — включает в себя все необходимые чертежи, схемы и спецификации, которые описывают конструкцию и функционирование системы. В проектной документации должны быть указаны все элементы системы, такие как газопроводы, арматура, приборы учета и контроля.
- Рабочая документация — это более детализированная версия проектной документации, которая используется для непосредственного выполнения строительных работ. Она включает в себя рабочие чертежи, спецификации материалов и оборудования, а также инструкции по монтажу.
- Сметная документация — содержит расчеты стоимости проектирования и строительства системы газоснабжения. Смета должна учитывать все затраты, включая материалы, оборудование, рабочую силу и прочие расходы.
- Документация по безопасности — включает в себя анализ рисков, инструкции по безопасной эксплуатации системы, а также планы действий в случае аварийных ситуаций. Безопасность является ключевым аспектом при проектировании систем газоснабжения, и все документы должны соответствовать действующим нормам и стандартам.
Каждый из этих видов документации играет свою уникальную роль в процессе проектирования и строительства систем газоснабжения. Например, техническое задание служит основой для разработки проектной документации, а рабочая документация необходима для успешного выполнения строительных работ.
При разработке проектной документации необходимо учитывать не только технические характеристики, но и требования местных органов власти, а также нормы и правила, действующие в данной области. Это может включать в себя требования к материалам, используемым в строительстве, а также к методам монтажа и эксплуатации систем газоснабжения.
Важным аспектом является также взаимодействие с различными службами и организациями, которые могут быть вовлечены в процесс проектирования и строительства. Это могут быть газовые компании, органы государственного контроля, а также проектные и строительные организации. Эффективное взаимодействие с этими структурами позволяет избежать многих проблем и ускорить процесс получения необходимых разрешений и согласований.
Кроме того, в процессе проектирования систем газоснабжения необходимо учитывать экологические аспекты. Это включает в себя оценку воздействия на окружающую среду, а также разработку мер по минимизации негативного влияния на природу. В некоторых случаях может потребоваться проведение экологической экспертизы, которая подтвердит соответствие проекта всем экологическим требованиям.
Таким образом, документация архитектурно-строительного проектирования систем газоснабжения является многоуровневым и комплексным процессом, который требует внимательного подхода и учета множества факторов. Каждый этап проектирования должен быть тщательно проработан, чтобы обеспечить безопасность и эффективность функционирования системы газоснабжения.
При разработке проектной документации для систем газоснабжения также важно учитывать требования к системам автоматизации и контроля. Современные технологии позволяют интегрировать системы мониторинга, которые обеспечивают постоянный контроль за состоянием газопроводов, арматуры и других элементов системы. Это позволяет оперативно выявлять и устранять неисправности, а также предотвращать аварийные ситуации.
Системы автоматизации могут включать в себя:
- Датчики давления и температуры — используются для контроля параметров газа в системе. Они позволяют отслеживать изменения в реальном времени и обеспечивают безопасность эксплуатации.
- Приборы учета газа — необходимы для точного измерения объема потребляемого газа. Это важно как для расчетов с поставщиками, так и для контроля за расходами.
- Системы сигнализации — предназначены для оповещения о возможных аварийных ситуациях, таких как утечки газа. Они могут включать в себя как звуковые, так и визуальные сигналы.
Важным аспектом проектирования является также выбор материалов для газопроводов и оборудования. Они должны соответствовать требованиям по прочности, коррозионной стойкости и долговечности. В зависимости от условий эксплуатации могут использоваться как стальные, так и пластиковые трубы, а также специальные покрытия для защиты от коррозии.
При проектировании систем газоснабжения необходимо учитывать и требования к вентиляции и газоотведению. Это особенно актуально для помещений, где происходит использование газа, таких как котельные, кухни и другие. Правильная организация вентиляции позволяет избежать накопления газа в помещениях и обеспечивает безопасность пользователей.
Не менее важным является и вопрос о проведении испытаний и пусконаладочных работ. После завершения строительства системы газоснабжения необходимо провести комплекс испытаний, которые подтвердят ее работоспособность и безопасность. Это может включать в себя гидравлические испытания, проверки на утечки, а также тестирование систем автоматизации и контроля.
После успешного завершения всех испытаний и получения необходимых разрешений, система газоснабжения может быть введена в эксплуатацию. Однако это не означает, что работа с документацией завершена. Важно обеспечить регулярное техническое обслуживание и контроль за состоянием системы, что также требует ведения соответствующей документации.
В процессе эксплуатации системы газоснабжения необходимо вести журналы учета, в которых фиксируются все проведенные работы, замены оборудования, а также результаты проверок и испытаний. Это позволяет не только поддерживать систему в исправном состоянии, но и обеспечивает возможность анализа ее работы для дальнейшего улучшения.
Таким образом, документация архитектурно-строительного проектирования систем газоснабжения охватывает широкий спектр вопросов, начиная от разработки технического задания и заканчивая эксплуатацией системы. Каждый этап требует внимательного подхода и соблюдения всех норм и стандартов, что в конечном итоге обеспечивает безопасность и эффективность функционирования газоснабжения.
Технологические решения
Документация архитектурно-строительного проектирования является важным аспектом в процессе создания зданий и сооружений. Она включает в себя набор документов, которые обеспечивают полное и детальное описание всех этапов проектирования, от концептуальной идеи до окончательной реализации. Важность этой документации трудно переоценить, так как она служит основой для всех последующих работ, включая строительство, эксплуатацию и обслуживание объектов.
Технологические решения в области архитектурно-строительного проектирования охватывают широкий спектр аспектов, включая выбор материалов, методы строительства, а также использование современных технологий для повышения эффективности и качества проектирования. В этом контексте документация играет ключевую роль, так как она фиксирует все принятые решения и обоснования, что позволяет избежать ошибок и недоразумений в процессе реализации проекта.
Одним из основных элементов документации является архитектурный проект, который включает в себя планы, разрезы и фасады здания. Эти документы содержат информацию о размерах, формах и пропорциях, а также о функциональном назначении помещений. Архитектурный проект должен быть согласован с требованиями строительных норм и правил, а также с пожеланиями заказчика.
Кроме того, важным аспектом является конструкторская документация, которая включает в себя чертежи и спецификации, необходимые для выполнения строительных работ. Эта документация должна содержать детальные указания по монтажу и установке конструктивных элементов, таких как фундаменты, стены, перекрытия и кровли. Конструкторская документация также должна учитывать нагрузки, которые будут действовать на здание, и обеспечивать его устойчивость и безопасность.
Не менее важной частью документации является инженерная часть, которая охватывает все системы, необходимые для функционирования здания, такие как водоснабжение, канализация, отопление, вентиляция и электроснабжение. Инженерные системы должны быть спроектированы с учетом современных технологий и требований к энергоэффективности, что позволяет снизить эксплуатационные расходы и повысить комфорт для пользователей.
Важным аспектом является также проектирование ландшафта, которое включает в себя разработку внешнего облика территории вокруг здания. Это может включать в себя планировку зеленых насаждений, дорожек, площадок и других элементов, которые создают комфортную и эстетически привлекательную среду. Ландшафтный проект должен быть согласован с архитектурным решением и учитывать климатические условия региона.
Современные технологии, такие как информационное моделирование зданий (BIM), значительно упрощают процесс проектирования и позволяют создавать более точные и детализированные модели. BIM-технологии позволяют интегрировать все аспекты проектирования в единую модель, что способствует лучшему взаимодействию между различными участниками проекта и снижает вероятность ошибок. Документация, созданная с использованием BIM, может быть легко обновлена и адаптирована в процессе работы, что делает ее более гибкой и актуальной.
В заключение, документация архитектурно-строительного проектирования является неотъемлемой частью успешной реализации любого строительного проекта. Она обеспечивает четкость и последовательность на всех этапах, от концепции до завершения строительства, и позволяет эффективно управлять ресурсами и временем. Внедрение современных технологий в процесс проектирования открывает новые возможности для повышения качества и эффективности работы, что в свою очередь способствует созданию более безопасных и комфортных зданий.
Одним из ключевых аспектов документации является согласование проектных решений с различными инстанциями и заинтересованными сторонами. На этапе проектирования необходимо учитывать требования местных органов власти, а также нормы и правила, действующие в конкретном регионе. Это может включать в себя получение разрешений на строительство, согласование проектной документации с санитарными и экологическими службами, а также с организациями, отвечающими за безопасность и защиту населения.
Процесс согласования может быть длительным и сложным, поэтому важно заранее предусмотреть все возможные требования и ограничения. Это позволит избежать задержек в реализации проекта и дополнительных затрат. В документации должны быть четко прописаны все согласования, а также указаны ответственные лица за выполнение тех или иных требований.
Также важным элементом является проектная смета, которая включает в себя расчет стоимости всех работ и материалов, необходимых для реализации проекта. Смета должна быть составлена с учетом всех этапов строительства и возможных рисков, что позволит более точно планировать бюджет и избегать перерасходов. Важно, чтобы смета была прозрачной и понятной для всех участников проекта, включая заказчика и подрядчиков.
В процессе проектирования также необходимо учитывать экологические аспекты. Современные требования к строительству все чаще акцентируют внимание на необходимости минимизации негативного воздействия на окружающую среду. Это может включать в себя использование экологически чистых материалов, проектирование систем утилизации отходов, а также внедрение технологий, способствующих энергосбережению. Все эти аспекты должны быть отражены в документации, что позволит обеспечить соответствие проекту современным экологическим стандартам.
Не менее важным является управление рисками в процессе проектирования. Каждый проект несет в себе определенные риски, связанные с изменением цен на материалы, задержками в поставках, а также возможными техническими проблемами. В документации должны быть прописаны меры по минимизации этих рисков, а также планы действий в случае их реализации. Это позволит обеспечить более стабильное выполнение проекта и снизить вероятность возникновения непредвиденных ситуаций.
Современные технологии также позволяют внедрять интерактивные элементы в проектную документацию. Это может включать в себя использование виртуальной реальности для визуализации проекта, что позволяет заказчику лучше понять конечный результат и внести необходимые коррективы на ранних этапах. Интерактивные элементы могут значительно повысить уровень взаимодействия между всеми участниками проекта и улучшить качество принимаемых решений.
Важным аспектом является обучение и подготовка персонала, который будет работать с проектной документацией. Необходимо обеспечить, чтобы все участники процесса имели необходимые знания и навыки для работы с современными технологиями и инструментами проектирования. Это может включать в себя проведение тренингов, семинаров и курсов повышения квалификации, что позволит повысить общую эффективность работы команды.
Таким образом, документация архитектурно-строительного проектирования представляет собой сложный и многоуровневый процесс, который требует внимательного подхода и учета множества факторов. Внедрение современных технологий и методов управления проектами позволяет значительно повысить качество и эффективность проектирования, что в конечном итоге приводит к созданию более безопасных и комфортных объектов. Важно помнить, что успешное проектирование — это не только технические решения, но и грамотное управление всеми аспектами процесса, включая взаимодействие с заказчиком, подрядчиками и другими заинтересованными сторонами.
Проект организации строительства
Документация архитектурно строительного проектирования является важным этапом в процессе организации строительства. Она включает в себя набор документов, которые необходимы для успешного выполнения строительных работ, а также для обеспечения соответствия проектируемого объекта действующим нормам и стандартам.
Основные виды документации, которые входят в архитектурно строительное проектирование, можно разделить на несколько категорий:
- Проектная документация - включает в себя все чертежи, схемы и спецификации, необходимые для реализации проекта.
- Техническая документация - содержит информацию о материалах, технологиях и методах, которые будут использоваться в процессе строительства.
- Сметная документация - включает в себя расчеты стоимости строительства, а также сметы на материалы и работы.
- Разрешительная документация - включает в себя все необходимые разрешения и согласования, которые должны быть получены перед началом строительства.
Каждый из этих видов документации играет свою уникальную роль в процессе проектирования и строительства. Рассмотрим их подробнее.
Проектная документация является основой для всех последующих этапов строительства. Она включает в себя:
- Архитектурные чертежи, которые показывают внешний вид здания и его планировку.
- Конструктивные чертежи, которые описывают несущие конструкции и их характеристики.
- Инженерные схемы, которые показывают расположение систем водоснабжения, отопления, электроснабжения и других коммуникаций.
Эти документы должны быть выполнены в соответствии с действующими стандартами и нормами, чтобы обеспечить безопасность и функциональность здания.
Техническая документация включает в себя:
- Технические условия на проектируемые материалы и изделия.
- Инструкции по монтажу и эксплуатации оборудования.
- Технологические карты, описывающие последовательность выполнения работ.
Эта документация необходима для того, чтобы все участники строительного процесса имели четкое представление о том, какие материалы и технологии будут использоваться, а также как правильно их применять.
Сметная документация включает в себя:
- Сметы на строительные работы, которые показывают стоимость всех этапов строительства.
- Сметы на материалы, которые необходимы для выполнения работ.
- Расчеты затрат на трудозатраты и другие расходы.
Эта документация позволяет контролировать бюджет проекта и обеспечивает прозрачность в расходах.
Разрешительная документация включает в себя:
- Разрешение на строительство, которое выдается местными органами власти.
- Согласования с различными инстанциями, такими как пожарная служба, санитарные органы и другие.
- Документы, подтверждающие право на земельный участок.
Получение всех необходимых разрешений является обязательным этапом, без которого невозможно начать строительство.
Важным аспектом проектной документации является ее соответствие требованиям законодательства и строительным нормам. Это включает в себя соблюдение правил по охране труда, экологии и безопасности. Каждый проект должен быть проверен и одобрен соответствующими органами, что требует наличия качественно подготовленной документации.
При разработке проектной документации необходимо учитывать следующие ключевые моменты:
- Согласование с заказчиком - все изменения и дополнения в проект должны быть согласованы с заказчиком, чтобы избежать недоразумений и конфликтов в будущем.
- Актуальность данных - проектная документация должна основываться на актуальных данных о земельном участке, климатических условиях и других факторах, влияющих на строительство.
- Качество чертежей - все чертежи должны быть выполнены с высокой точностью и четкостью, чтобы избежать ошибок при строительстве.
Кроме того, важным этапом является проверка проектной документации на соответствие нормам и стандартам. Это может включать в себя:
- Внутренние проверки, проводимые проектной организацией.
- Экспертизу проектной документации, которая может быть обязательной в зависимости от типа и сложности проекта.
- Согласование с контролирующими органами, которые могут требовать внесения изменений или дополнений.
После завершения всех этапов проектирования и получения необходимых разрешений, проектная документация передается в строительную организацию. На этом этапе важно обеспечить передачу всей необходимой информации для успешного выполнения строительных работ. Это включает в себя:
- Обучение рабочих и специалистов, которые будут задействованы в проекте.
- Обеспечение доступа к проектной документации на строительной площадке.
- Проведение инструктажей по технике безопасности и охране труда.
В процессе строительства документация может подвергаться изменениям. Это может быть вызвано различными факторами, такими как:
- Необходимость внесения изменений в проект в связи с изменением условий на строительной площадке.
- Пожелания заказчика, которые могут возникнуть в процессе реализации проекта.
- Технические проблемы, которые могут потребовать корректировок в проекте.
Все изменения должны быть документированы и согласованы с заказчиком и проектировщиками, чтобы избежать юридических и финансовых последствий.
Таким образом, документация архитектурно строительного проектирования является основой для успешного выполнения строительных работ. Она обеспечивает не только соответствие проектируемого объекта всем необходимым требованиям, но и позволяет контролировать процесс строительства на всех его этапах. Качественная документация способствует снижению рисков и повышению эффективности работы всех участников строительного процесса.
Мероприятия по охране окружающей среды
Документация архитектурно-строительного проектирования играет ключевую роль в обеспечении охраны окружающей среды. Она включает в себя различные документы, которые помогают в планировании, проектировании и реализации строительных объектов с учетом экологических норм и требований. Важность этой документации заключается в том, что она позволяет минимизировать негативное воздействие на природу и способствует устойчивому развитию.
Основные виды документации, которые необходимы для архитектурно-строительного проектирования, включают:
- Генеральный план - документ, который определяет расположение зданий, сооружений и других объектов на земельном участке, а также их взаимосвязь с окружающей природой.
- Архитектурные чертежи - детализированные планы и схемы, которые показывают конструктивные решения, материалы и технологии, используемые в строительстве.
- Экологические исследования - анализ состояния окружающей среды, который включает в себя оценку воздействия проектируемого объекта на экосистему.
- Технические условия - требования, которые должны быть соблюдены при проектировании и строительстве, включая нормы по охране окружающей среды.
- Сметная документация - расчеты затрат на строительство, которые также учитывают экологические аспекты, такие как утилизация отходов и использование экологически чистых материалов.
Каждый из этих документов имеет свои особенности и требования, которые необходимо учитывать на всех этапах проектирования. Например, при разработке генерального плана важно учитывать не только функциональное назначение территории, но и ее природные характеристики, такие как рельеф, наличие водоемов и растительности.
Архитектурные чертежи должны быть выполнены с учетом современных технологий и материалов, которые способствуют снижению негативного воздействия на окружающую среду. Это может включать использование энергосберегающих технологий, систем управления отходами и других решений, направленных на устойчивое развитие.
Экологические исследования являются обязательным этапом проектирования, так как они позволяют выявить потенциальные риски и разработать меры по их минимизации. Важно, чтобы эти исследования проводились на ранних стадиях проектирования, чтобы учесть все возможные воздействия на окружающую среду.
Технические условия, выданные местными органами власти, должны быть строго соблюдены, так как они содержат важные требования по охране окружающей среды. Это может включать ограничения на выбросы загрязняющих веществ, требования к шуму и другим факторам, влияющим на качество жизни населения.
Сметная документация также должна учитывать экологические аспекты, так как использование экологически чистых материалов и технологий может потребовать дополнительных затрат, но в долгосрочной перспективе это может привести к экономии ресурсов и снижению негативного воздействия на природу.
Таким образом, документация архитектурно-строительного проектирования является важным инструментом для обеспечения охраны окружающей среды. Она помогает проектировщикам и строителям учитывать экологические аспекты на всех этапах создания строительных объектов, что в конечном итоге способствует устойчивому развитию и сохранению природных ресурсов.
Важным аспектом документации архитектурно-строительного проектирования является оценка воздействия на окружающую среду (ОВОС). Этот процесс включает в себя систематический анализ потенциальных экологических последствий, которые могут возникнуть в результате реализации проектируемого объекта. ОВОС позволяет выявить возможные негативные эффекты на экосистему и разработать меры по их минимизации. В рамках этого процесса разрабатываются специальные отчеты, которые должны быть представлены на рассмотрение соответствующим государственным органам.
Кроме того, в документации должны быть предусмотрены меры по охране окружающей среды, которые включают в себя:
- Управление отходами - разработка системы сбора, переработки и утилизации строительных отходов.
- Сохранение биоразнообразия - меры по защите местной флоры и фауны, включая создание охраняемых зон.
- Снижение загрязнения - использование технологий, которые минимизируют выбросы загрязняющих веществ в атмосферу и водоемы.
- Энергетическая эффективность - внедрение систем, которые способствуют снижению потребления энергии и ресурсов.
Также важным элементом является информирование общественности о проекте и его возможных последствиях. Это может включать в себя проведение общественных слушаний, на которых жители могут высказать свои мнения и предложения. Такой подход способствует повышению прозрачности процесса проектирования и позволяет учитывать интересы местного населения.
В процессе проектирования необходимо также учитывать нормативные документы, регулирующие охрану окружающей среды. Это могут быть как федеральные, так и региональные законы и постановления, которые устанавливают требования к проектированию и строительству. Соблюдение этих норм является обязательным и позволяет избежать юридических последствий в будущем.
Не менее важным является мониторинг состояния окружающей среды в процессе эксплуатации построенного объекта. Это включает в себя регулярные проверки и анализы, которые позволяют выявить возможные негативные воздействия и принять меры по их устранению. Мониторинг может быть как внутренним, так и внешним, с привлечением независимых экспертов.
Таким образом, документация архитектурно-строительного проектирования должна быть комплексной и учитывать все аспекты охраны окружающей среды. Это не только способствует соблюдению законодательства, но и позволяет строить более устойчивые и безопасные объекты, которые будут служить обществу и природе.
В заключение, можно отметить, что эффективная документация архитектурно-строительного проектирования является основой для успешной реализации проектов с учетом охраны окружающей среды. Она требует от проектировщиков и строителей высокой степени ответственности и профессионализма, а также готовности к сотрудничеству с различными заинтересованными сторонами.
Мероприятия по обеспечению пожарной безопасности
Документация архитектурно-строительного проектирования играет ключевую роль в обеспечении пожарной безопасности объектов. Она включает в себя набор документов, которые регламентируют проектирование, строительство и эксплуатацию зданий и сооружений с учетом требований пожарной безопасности. Важность этой документации трудно переоценить, так как она не только обеспечивает соответствие проектируемых объектов действующим нормам и правилам, но и способствует созданию безопасной среды для жизни и работы людей.
Основные виды документации, касающиеся пожарной безопасности, включают:
- Проектная документация – это основа для строительства, которая включает в себя архитектурные, конструктивные и инженерные решения, а также специальные разделы, посвященные пожарной безопасности.
- Рабочая документация – детализированные чертежи и спецификации, которые используются непосредственно в процессе строительства. В ней также должны быть учтены все аспекты, касающиеся пожарной безопасности.
- Технические условия – документы, которые определяют требования к проектированию и строительству, включая аспекты, связанные с пожарной безопасностью.
- Сметная документация – включает в себя расчеты стоимости строительства, где также учитываются затраты на обеспечение пожарной безопасности.
При разработке проектной документации необходимо учитывать требования, установленные действующими нормативными актами, такими как:
- Федеральный закон «О пожарной безопасности»;
- Свод правил «Пожарная безопасность зданий и сооружений»;
- Нормативные документы, регулирующие проектирование систем противопожарной защиты.
Проектировщики обязаны проводить анализ пожарных рисков, который позволяет выявить потенциальные угрозы и разработать меры по их минимизации. Важно, чтобы проектная документация содержала:
- Планы эвакуации;
- Системы автоматической пожарной сигнализации;
- Системы оповещения и управления эвакуацией;
- Пожарные лестницы и выходы;
- Материалы, используемые в строительстве, которые должны соответствовать требованиям по огнестойкости.
Кроме того, проектная документация должна включать в себя разделы, посвященные организации противопожарных мероприятий на этапе эксплуатации здания. Это может включать в себя:
- Регламенты по обслуживанию систем противопожарной защиты;
- План обучения персонала по вопросам пожарной безопасности;
- Порядок проведения регулярных проверок и испытаний систем безопасности.
Важным аспектом является также согласование проектной документации с органами государственного пожарного надзора. Это позволяет убедиться в том, что проект соответствует всем требованиям и нормам, а также минимизирует риски возникновения пожаров в будущем.
При проектировании зданий и сооружений необходимо учитывать не только требования к пожарной безопасности, но и особенности эксплуатации объектов. Это включает в себя анализ потенциальных источников возгорания, а также оценку воздействия различных факторов, таких как климатические условия, расположение здания и его функциональное назначение. Все эти аспекты должны быть отражены в проектной документации.
Одним из ключевых элементов проектирования является выбор материалов, которые будут использоваться в строительстве. Они должны обладать необходимыми огнестойкими характеристиками и соответствовать установленным стандартам. Важно, чтобы проектировщики обращали внимание на:
- Классификацию строительных материалов по огнестойкости;
- Сертификаты соответствия и испытания на огнестойкость;
- Рекомендации по использованию материалов в зависимости от назначения помещений.
Также следует учитывать, что проектирование систем противопожарной защиты должно быть интегрировано в общую концепцию здания. Это означает, что системы автоматической пожарной сигнализации, спринклерные системы и другие элементы должны быть спроектированы таким образом, чтобы эффективно взаимодействовать друг с другом. Например, системы оповещения о пожаре должны быть связаны с системами управления эвакуацией, чтобы обеспечить быструю и безопасную эвакуацию людей в случае возникновения чрезвычайной ситуации.
Не менее важным является и вопрос организации путей эвакуации. Они должны быть спроектированы с учетом максимального количества людей, которые могут находиться в здании одновременно. Планы эвакуации должны быть четкими и доступными, а также размещены в видимых местах. Важно, чтобы все пути эвакуации были свободны от препятствий и обеспечивали быструю и безопасную эвакуацию.
В процессе проектирования необходимо также предусмотреть возможность проведения регулярных проверок и испытаний систем противопожарной защиты. Это позволит своевременно выявлять и устранять возможные недостатки, а также обеспечивать надежную работу всех систем в случае возникновения пожара. В проектной документации должны быть прописаны регламенты по обслуживанию и проверке систем, а также порядок действий в случае возникновения чрезвычайной ситуации.
Кроме того, проектировщики должны учитывать необходимость обучения персонала, который будет работать в здании. Это включает в себя как обучение по вопросам пожарной безопасности, так и проведение тренировок по эвакуации. Регулярные тренировки помогут людям лучше ориентироваться в ситуации и действовать быстро и слаженно в случае реальной угрозы.
В заключение, документация архитектурно-строительного проектирования, касающаяся пожарной безопасности, является важным инструментом для обеспечения безопасности зданий и сооружений. Она должна быть тщательно разработана с учетом всех требований и норм, а также включать в себя все необходимые аспекты, касающиеся проектирования, строительства и эксплуатации объектов. Только комплексный подход к проектированию и соблюдение всех норм и правил позволит создать безопасную среду для жизни и работы людей.
Требования к обеспечению безопасной эксплуатации объектов капитального строительства
Документация архитектурно-строительного проектирования является основой для обеспечения безопасной эксплуатации объектов капитального строительства. Она включает в себя множество различных документов, которые регламентируют все этапы проектирования, строительства и эксплуатации зданий и сооружений. Важность этой документации трудно переоценить, так как она не только определяет технические характеристики объектов, но и обеспечивает соблюдение норм и стандартов безопасности.
Основные виды документации, которые должны быть разработаны в процессе архитектурно-строительного проектирования, включают:
- Архитектурные решения — это документы, которые содержат общие сведения о проектируемом объекте, его функциональном назначении, архитектурных формах и эстетических решениях.
- Конструктивные решения — описывают основные конструктивные элементы здания, такие как фундаменты, стены, перекрытия и кровли, а также их прочностные характеристики.
- Инженерные системы — проектирование систем водоснабжения, канализации, отопления, вентиляции и электроснабжения, которые обеспечивают комфортные условия для эксплуатации объекта.
- Технические условия — документы, которые определяют требования к проектируемым системам и материалам, а также условия их эксплуатации.
- Сметная документация — включает в себя расчеты стоимости строительства, что позволяет контролировать бюджет проекта и избегать перерасходов.
Каждый из этих видов документации играет важную роль в процессе проектирования и строительства. Например, архитектурные решения должны учитывать не только эстетические аспекты, но и функциональные требования, такие как доступность для людей с ограниченными возможностями. Конструктивные решения, в свою очередь, должны обеспечивать надежность и долговечность здания, а также соответствовать действующим строительным нормам и правилам.
При разработке документации необходимо учитывать требования законодательства, а также стандарты и нормы, действующие в области строительства. Это включает в себя как общие строительные нормы, так и специальные требования, касающиеся безопасности, экологии и энергоэффективности. Например, проектирование зданий должно соответствовать требованиям по сейсмостойкости, если объект расположен в сейсмоактивной зоне.
Кроме того, документация должна быть согласована с различными государственными и муниципальными органами, что также является важным этапом в процессе проектирования. Это позволяет избежать возможных правовых проблем и обеспечивает соответствие проектируемого объекта всем необходимым требованиям.
Важным аспектом является также актуализация документации в процессе эксплуатации объекта. С течением времени могут изменяться требования к безопасности, а также технологии и материалы, используемые в строительстве. Поэтому необходимо регулярно пересматривать и обновлять проектную документацию, чтобы обеспечить безопасность и эффективность эксплуатации зданий и сооружений.
Одним из ключевых аспектов документации архитектурно-строительного проектирования является проектная документация, которая включает в себя рабочие чертежи, спецификации и пояснительные записки. Рабочие чертежи представляют собой детализированные изображения всех элементов здания, включая размеры, материалы и конструктивные решения. Эти чертежи служат основой для выполнения строительных работ и должны быть максимально точными и понятными для исполнителей.
Спецификации содержат информацию о материалах, которые будут использоваться в строительстве, а также о требованиях к их качеству. Пояснительные записки, в свою очередь, описывают основные решения, принятые в процессе проектирования, и обосновывают выбор тех или иных конструктивных и архитектурных решений. Все эти документы должны быть согласованы с проектировщиками, инженерами и другими специалистами, чтобы избежать недоразумений и ошибок в процессе строительства.
Не менее важным элементом является инженерная документация, которая охватывает проектирование всех инженерных систем, таких как электроснабжение, водоснабжение, отопление и вентиляция. Эти системы должны быть спроектированы с учетом не только функциональных требований, но и норм безопасности, а также энергоэффективности. Например, проектирование систем вентиляции должно учитывать требования по воздухообмену и фильтрации, чтобы обеспечить комфортные условия для пользователей.
В процессе проектирования также необходимо учитывать экологические аспекты. Это включает в себя оценку воздействия на окружающую среду, выбор экологически чистых материалов и технологий, а также проектирование систем, способствующих снижению негативного воздействия на природу. Например, использование систем дождевой воды для полива или проектирование зеленых крыш может значительно снизить нагрузку на городскую инфраструктуру и улучшить экологическую обстановку.
Кроме того, важным аспектом является безопасность на строительной площадке. Документация должна содержать разделы, посвященные мерам безопасности, которые необходимо соблюдать в процессе строительства. Это включает в себя инструкции по использованию строительной техники, правила работы с опасными материалами и требования к организации рабочего процесса. Соблюдение этих мер позволяет минимизировать риски травматизма и аварий на строительной площадке.
Необходимо также учитывать требования к документации на этапе эксплуатации объекта. После завершения строительства проектная документация должна быть передана в эксплуатацию, где она будет использоваться для обслуживания и ремонта здания. Важно, чтобы все изменения, внесенные в проект в процессе строительства, были отражены в окончательной документации, чтобы обеспечить ее актуальность и соответствие реальному состоянию объекта.
В заключение, документация архитектурно-строительного проектирования является важнейшим инструментом для обеспечения безопасной эксплуатации объектов капитального строительства. Она охватывает все этапы — от проектирования до эксплуатации — и должна быть тщательно разработана и актуализирована. Соблюдение всех норм и требований, отраженных в документации, позволяет минимизировать риски и обеспечить безопасность как для строителей, так и для пользователей зданий и сооружений.
Мероприятия по обеспечению доступа инвалидов к объекту капитального строительства
Обеспечение доступа инвалидов к объектам капитального строительства является важной задачей, требующей комплексного подхода на всех этапах проектирования и строительства. Важным аспектом этого процесса является документация архитектурно-строительного проектирования, которая должна учитывать потребности людей с ограниченными возможностями. В данном контексте необходимо рассмотреть основные элементы проектной документации, а также требования, которые должны быть учтены для создания доступной городской среды.
Проектная документация включает в себя несколько ключевых разделов, каждый из которых играет свою роль в обеспечении доступности. К основным разделам можно отнести:
- Техническое задание – документ, в котором определяются основные требования к проекту, включая аспекты доступности для инвалидов.
- Архитектурные решения – раздел, в котором разрабатываются планы и схемы, учитывающие особенности передвижения людей с ограниченными возможностями.
- Конструктивные решения – описывают, как будут реализованы архитектурные идеи с точки зрения материалов и технологий, обеспечивающих доступность.
- Инженерные системы – проектирование систем освещения, отопления, вентиляции и других, которые должны быть адаптированы для удобства пользователей с ограниченными возможностями.
- Сметная документация – включает в себя расчеты стоимости работ, связанных с обеспечением доступности.
Каждый из этих разделов должен быть разработан с учетом действующих норм и стандартов, таких как СНиП и ГОСТ, которые регламентируют требования к доступности объектов для инвалидов. Например, в архитектурных решениях необходимо предусмотреть наличие пандусов, лифтов, тактильных дорожек и других элементов, способствующих свободному передвижению.
Важным аспектом является также учет мнения пользователей. На этапе проектирования целесообразно проводить консультации с представителями организаций инвалидов, чтобы понять их потребности и ожидания. Это позволит создать более комфортную и безопасную среду для всех пользователей.
При разработке проектной документации необходимо учитывать не только физические аспекты доступности, но и психологические. Например, важно создать атмосферу, способствующую интеграции людей с ограниченными возможностями в общество. Это может быть достигнуто через использование открытых пространств, доступных для всех, а также через создание общественных зон, где инвалиды могут взаимодействовать с другими людьми.
Кроме того, проектная документация должна включать в себя план мероприятий по обеспечению доступности, который будет содержать конкретные шаги и сроки реализации. Это позволит не только контролировать процесс, но и обеспечивать его прозрачность для всех заинтересованных сторон.
Одним из ключевых аспектов проектирования является доступность входных групп. Входы в здания должны быть спроектированы таким образом, чтобы обеспечить легкий доступ для людей с ограниченными возможностями. Это включает в себя:
- Установку пандусов с соответствующим углом наклона, который не превышает 5%.
- Обеспечение наличия автоматических дверей или дверей с легким открыванием.
- Создание достаточного пространства для маневрирования инвалидных колясок у входа.
Также важным элементом является внутреннее пространство здания. Проектирование внутренних помещений должно учитывать:
- Ширину коридоров и дверных проемов, которые должны быть не менее 90 см.
- Наличие тактильных указателей и знаков для людей с нарушениями зрения.
- Обеспечение доступности санитарных узлов, включая установку поручней и специальных сидений.
При проектировании лифтов необходимо учитывать их размеры и функциональность. Лифты должны быть достаточно просторными для размещения инвалидной коляски, а также иметь кнопки управления на удобной высоте. Важно также предусмотреть наличие звуковых и визуальных сигналов для информирования пользователей о этажах.
Не менее важным является обеспечение доступности общественных пространств, таких как парки, площади и другие зоны отдыха. Проектирование таких объектов должно включать:
- Создание ровных и безопасных пешеходных дорожек.
- Установку скамеек и других элементов инфраструктуры, доступных для людей с ограниченными возможностями.
- Обеспечение доступности игровых площадок для детей с инвалидностью.
Важным аспектом является обучение персонала, который будет работать в проектируемых объектах. Сотрудники должны быть осведомлены о потребностях людей с ограниченными возможностями и уметь оказывать необходимую помощь. Это может включать в себя:
- Обучение основам общения с инвалидами.
- Знание особенностей работы с различными категориями инвалидов.
- Проведение регулярных тренингов по доступности и инклюзии.
В заключение, проектирование объектов капитального строительства с учетом потребностей инвалидов требует комплексного подхода и внимательного отношения к деталям. Каждый элемент проектной документации должен быть направлен на создание доступной и комфортной среды для всех пользователей, что в конечном итоге способствует интеграции людей с ограниченными возможностями в общество.
Смета на строительство, реконструкцию, капитальный ремонт, снос объекта капитального строительства
Документация архитектурно-строительного проектирования является важным этапом в процессе строительства, реконструкции, капитального ремонта и сноса объектов капитального строительства. Она включает в себя набор документов, которые необходимы для реализации проектных решений и обеспечения соответствия требованиям законодательства, нормам и стандартам.
Основные виды документации, которые разрабатываются в рамках архитектурно-строительного проектирования, можно разделить на несколько категорий:
- Архитектурные решения: Включают в себя эскизные проекты, архитектурные планы, фасады, разрезы и другие графические материалы, которые визуализируют внешний вид и планировку объекта.
- Конструктивные решения: Охватывают проектирование конструкций здания, включая фундаменты, стены, перекрытия и кровлю. Эти документы содержат расчеты прочности и устойчивости конструкций.
- Инженерные системы: Включают проектирование систем водоснабжения, канализации, отопления, вентиляции и электроснабжения. Эти документы обеспечивают функциональность и безопасность эксплуатации объекта.
- Сметная документация: Содержит расчеты стоимости строительства, включая материалы, работы и услуги, необходимые для реализации проекта.
- Технические условия: Определяют требования к проектируемым системам и материалам, которые должны быть соблюдены в процессе проектирования и строительства.
Каждый из этих видов документации играет свою уникальную роль в процессе проектирования и строительства. Например, архитектурные решения помогают визуализировать конечный результат, в то время как конструктивные решения обеспечивают безопасность и долговечность здания. Инженерные системы, в свою очередь, отвечают за комфорт и функциональность объекта.
Процесс разработки документации начинается с составления технического задания, которое определяет основные требования к проекту. На этом этапе важно учесть все пожелания заказчика, а также требования местных органов власти и нормативных документов. После этого начинается работа над эскизным проектом, который служит основой для дальнейшей разработки более детализированных решений.
После утверждения эскизного проекта разрабатываются рабочие чертежи, которые включают в себя все необходимые детали для строительства. Эти чертежи должны быть выполнены в соответствии с действующими стандартами и нормами, чтобы избежать проблем в процессе реализации проекта.
Кроме того, важным этапом является согласование проектной документации с различными инстанциями, такими как архитектурные и строительные управления, пожарные службы и другие контролирующие органы. Это необходимо для получения разрешений на строительство и обеспечения соответствия проектных решений действующим нормам и правилам.
В процессе разработки документации также учитываются экологические аспекты, такие как влияние строительства на окружающую среду, а также требования по энергоэффективности зданий. Современные проекты все чаще включают в себя решения, направленные на снижение негативного воздействия на природу и повышение комфорта для пользователей.
Таким образом, документация архитектурно-строительного проектирования является неотъемлемой частью любого строительного процесса. Она обеспечивает не только соответствие проектных решений требованиям законодательства, но и способствует созданию безопасных, функциональных и эстетически привлекательных объектов капитального строительства.
Важным аспектом архитектурно-строительного проектирования является соблюдение норм и стандартов, которые регулируют различные аспекты строительства. Эти нормы могут касаться как проектирования, так и эксплуатации зданий. Например, существуют строительные нормы и правила (СНиП), которые определяют требования к прочности, устойчивости и долговечности конструкций, а также к безопасности и комфорту эксплуатации зданий.
Кроме того, проектировщики должны учитывать требования к доступности объектов для людей с ограниченными возможностями. Это включает в себя проектирование пандусов, лифтов и других элементов, которые обеспечивают комфортный доступ к зданию для всех пользователей.
Проектирование также должно учитывать аспекты энергоэффективности. В современных условиях, когда вопросы экологии и экономии ресурсов становятся все более актуальными, проектировщики должны разрабатывать решения, которые минимизируют потребление энергии и ресурсов. Это может включать использование современных технологий, таких как солнечные панели, системы рекуперации тепла и энергоэффективные материалы.
Важным этапом в процессе проектирования является также разработка сметной документации. Смета на строительство включает в себя детализированный расчет всех затрат, связанных с реализацией проекта. Это позволяет заказчику получить полное представление о стоимости строительства и избежать непредвиденных расходов в процессе реализации проекта.
Сметная документация должна быть составлена в соответствии с действующими нормами и правилами, а также учитывать все возможные риски и неопределенности. Важно, чтобы смета была прозрачной и понятной для всех участников процесса, включая заказчика, подрядчика и проектировщика.
После завершения проектирования и получения всех необходимых согласований начинается этап строительства. На этом этапе проектная документация становится основой для выполнения строительных работ. Рабочие чертежи и спецификации используются для организации строительного процесса, а также для контроля качества выполняемых работ.
В процессе строительства важно соблюдать все требования проектной документации, а также проводить регулярные проверки и контроль качества. Это позволяет избежать ошибок и недочетов, которые могут привести к серьезным последствиям в будущем.
После завершения строительства объект подлежит приемке и проверке на соответствие проектной документации. Это включает в себя проверку всех систем и конструкций, а также оценку качества выполненных работ. В случае выявления недостатков, они должны быть устранены до ввода объекта в эксплуатацию.
Таким образом, документация архитектурно-строительного проектирования играет ключевую роль на всех этапах строительства, начиная от разработки концепции и заканчивая вводом объекта в эксплуатацию. Она обеспечивает соответствие проектных решений требованиям законодательства, нормам и стандартам, а также способствует созданию безопасных и комфортных объектов капитального строительства.


















