Архитектурное проектирование частных домов
Архитектурное проектирование частных домов
В современном строительстве архитектурное проектирование частных домов играет ключевую роль в создании комфортного и функционального жилья. Важным аспектом этого процесса является соблюдение нормативных актов, регулирующих проектирование и строительство. Одним из таких документов является 87 постановление правительства, которое определяет основные требования и правила, касающиеся проектирования жилых объектов.
В данной статье мы рассмотрим, как строительное проектирование ведется в соответствии с указанным постановлением, а также его влияние на архитектурные решения при проектировании частных домов. Мы также обсудим ключевые моменты, которые необходимо учитывать при разработке проектной документации.
В статье представлены следующие разделы:
- Общие положения 87 постановления правительства
- Требования к архитектурному проектированию
- Процесс согласования проектной документации
- Рекомендации по выбору материалов и технологий
- Примеры успешных проектов частных домов
Читая эту статью, вы сможете глубже понять, как соблюдение нормативных требований влияет на качество и безопасность строительства, а также на эстетические характеристики частных домов.
Согласно 87 ПП (87 постановление правительства)
Архитектурное проектирование частных домов является важным этапом в процессе строительства, который требует внимательного подхода и соблюдения множества норм и правил. В этом контексте 87 постановление правительства играет ключевую роль, так как оно регулирует основные аспекты проектирования и строительства жилых объектов.
Согласно 87 ПП, архитектурное проектирование частных домов должно учитывать не только эстетические, но и функциональные, экологические и экономические аспекты. Это постановление устанавливает требования к проектной документации, которая должна быть разработана в соответствии с действующими стандартами и нормами.
Одним из основных требований 87 ПП является необходимость проведения предварительного обследования земельного участка, на котором планируется строительство. Это обследование включает в себя анализ геологических, гидрологических и экологических условий, а также оценку влияния на окружающую среду. На основании полученных данных разрабатывается проект, который должен учитывать все выявленные особенности участка.
Проектирование частного дома начинается с выбора архитектурного стиля и планировки. Важно, чтобы проект соответствовал не только личным предпочтениям заказчика, но и требованиям 87 ПП. Например, необходимо учитывать размеры и форму участка, а также расстояние до соседних зданий и границ земельного надела.
При разработке проектной документации необходимо также учитывать нормы по безопасности и доступности. Это включает в себя требования к пожарной безопасности, санитарным условиям, а также доступности для людей с ограниченными возможностями. Все эти аспекты должны быть отражены в проекте, который будет представлен на утверждение в соответствующие органы.
Кроме того, 87 ПП устанавливает требования к инженерным системам, которые должны быть предусмотрены в проекте. Это включает в себя системы водоснабжения, канализации, отопления и электроснабжения. Проектировщики должны учитывать не только технические характеристики этих систем, но и их влияние на окружающую среду и экономическую эффективность эксплуатации.
Важным аспектом архитектурного проектирования является согласование проектной документации с местными органами власти. Это включает в себя получение разрешений на строительство, а также согласование проектных решений с учетом местных норм и правил. Процесс согласования может занять значительное время, поэтому его необходимо учитывать на этапе планирования.
После получения всех необходимых разрешений начинается реализация проекта. На этом этапе важно обеспечить контроль за качеством выполнения строительных работ и соблюдением проектной документации. Это включает в себя регулярные проверки и инспекции, которые должны проводиться как со стороны заказчика, так и со стороны государственных органов.
Таким образом, архитектурное проектирование частных домов в соответствии с 87 ПП требует комплексного подхода и внимательного соблюдения всех норм и правил. Это позволяет не только создать комфортное и безопасное жилье, но и минимизировать негативное воздействие на окружающую среду.
Одним из ключевых аспектов, который необходимо учитывать при проектировании частных домов, является зонирование земельного участка. Зонирование определяет, какие виды деятельности разрешены на конкретной территории, и может включать в себя ограничения по высоте зданий, плотности застройки и другим параметрам. Эти ограничения могут варьироваться в зависимости от местных норм и правил, поэтому важно заранее ознакомиться с ними.
Также стоит отметить, что 87 ПП требует от проектировщиков учитывать ландшафтный дизайн и благоустройство территории. Это включает в себя не только эстетические аспекты, но и функциональные, такие как создание зон отдыха, детских площадок и других объектов, которые могут повысить качество жизни жильцов. Проектирование ландшафта должно быть интегрировано в общий проект дома, чтобы обеспечить гармоничное сочетание архитектуры и природы.
При проектировании частного дома также необходимо учитывать энергетическую эффективность здания. В соответствии с 87 ПП, проект должен включать в себя решения, направленные на снижение потребления энергии, такие как использование современных теплоизоляционных материалов, установка энергоэффективных окон и систем отопления. Это не только снижает эксплуатационные расходы, но и способствует охране окружающей среды.
Важным аспектом является также выбор строительных материалов. 87 ПП устанавливает требования к качеству и безопасности материалов, которые используются в строительстве. Проектировщики должны выбирать материалы, которые соответствуют современным стандартам и обеспечивают долговечность и надежность конструкции. При этом необходимо учитывать не только стоимость материалов, но и их влияние на здоровье жильцов и окружающую среду.
Не менее важным является учет климатических условий региона, в котором планируется строительство. Проект должен быть адаптирован к местным климатическим особенностям, что включает в себя выбор подходящих систем отопления, вентиляции и кондиционирования. Это позволяет обеспечить комфортные условия проживания в любое время года.
Кроме того, 87 ПП акцентирует внимание на информационном моделировании зданий (BIM). Использование BIM-технологий позволяет создавать трехмерные модели зданий, что значительно упрощает процесс проектирования и согласования. Это также позволяет выявлять потенциальные проблемы на ранних стадиях и оптимизировать проектные решения.
В процессе проектирования важно также учитывать социальные аспекты. Это включает в себя создание комфортной и безопасной городской среды, которая будет способствовать развитию местного сообщества. Проект должен учитывать потребности будущих жильцов, а также их взаимодействие с окружающей инфраструктурой.
Таким образом, архитектурное проектирование частных домов в соответствии с 87 ПП требует комплексного подхода, который включает в себя множество аспектов — от соблюдения норм и правил до учета индивидуальных потребностей заказчика. Это позволяет создать не только красивое, но и функциональное, безопасное и комфортное жилье, которое будет служить своим владельцам долгие годы.
Пояснительная записка
Архитектурное проектирование частных домов — это сложный и многогранный процесс, который требует учета множества факторов. Важнейшими аспектами являются функциональность, эстетика, безопасность и устойчивость зданий. На начальном этапе проектирования необходимо определить основные требования и пожелания заказчика, а также учесть особенности участка, на котором будет возводиться дом.
Этапы архитектурного проектирования
Процесс проектирования можно разделить на несколько ключевых этапов:
- Предварительное исследование: На этом этапе архитектор собирает информацию о местности, анализирует климатические условия, изучает существующую инфраструктуру и определяет правовые ограничения, такие как зонирование и строительные нормы.
- Сбор требований: Важно провести беседу с заказчиком, чтобы понять его потребности и предпочтения. Это включает в себя обсуждение количества комнат, их назначения, стиля и других деталей.
- Эскизное проектирование: На этом этапе создаются предварительные эскизы, которые помогают визуализировать идеи. Архитектор разрабатывает несколько вариантов планировки и фасадов, которые затем обсуждаются с заказчиком.
- Разработка проектной документации: После утверждения эскизов начинается работа над детальной проектной документацией. Это включает в себя архитектурные чертежи, планы, разрезы и фасады, а также спецификации материалов.
- Согласование проекта: Проект необходимо согласовать с местными органами власти и другими заинтересованными сторонами. Это может включать получение разрешений на строительство и согласование с соседями.
- Строительство: После получения всех необходимых разрешений начинается процесс строительства. Архитектор может участвовать в этом этапе, контролируя соответствие выполненных работ проекту.
- Завершение и ввод в эксплуатацию: После завершения строительства проводится финальная проверка, и дом вводится в эксплуатацию. Важно убедиться, что все системы работают корректно и дом соответствует всем нормам.
Функциональные требования
При проектировании частного дома необходимо учитывать функциональные требования, которые могут варьироваться в зависимости от образа жизни заказчика. К ним относятся:
- Количество и назначение помещений: Определение количества спален, ванных комнат, кухонь и других помещений, а также их функционального назначения.
- Планировка: Эффективная планировка, которая обеспечивает удобное перемещение между помещениями и максимальное использование пространства.
- Энергоэффективность: Учет современных технологий и материалов, которые способствуют снижению энергозатрат и повышению комфорта.
- Безопасность: Проектирование с учетом всех норм безопасности, включая противопожарные меры и защиту от природных катастроф.
Таким образом, архитектурное проектирование частных домов — это комплексный процесс, который требует внимательного подхода и учета множества факторов. Каждый этап проектирования играет важную роль в создании комфортного и безопасного жилья.
Эстетические аспекты проектирования
Эстетика частного дома играет не менее важную роль, чем его функциональность. Архитектурный стиль, цветовая гамма, выбор материалов и отделки — все это влияет на общее восприятие здания. При выборе стиля важно учитывать не только личные предпочтения заказчика, но и гармонию с окружающей средой. Например, в загородных районах часто выбирают традиционные стили, такие как шале или кантри, в то время как в городских условиях могут быть уместны более современные решения.
Выбор материалов
Материалы, используемые в строительстве, также имеют значительное влияние на внешний вид и долговечность дома. Наиболее распространенные материалы включают:
- Кирпич: Обеспечивает хорошую теплоизоляцию и долговечность, а также позволяет создавать разнообразные архитектурные формы.
- Дерево: Придает дому уютный вид, но требует регулярного ухода и защиты от вредителей.
- Бетон: Используется для создания прочных и устойчивых конструкций, а также может быть отделан различными материалами для улучшения эстетики.
- Металл: Применяется в современных архитектурных решениях, обеспечивая легкость и прочность конструкций.
При выборе материалов важно учитывать не только их внешний вид, но и эксплуатационные характеристики, такие как теплоизоляция, звукоизоляция и устойчивость к внешним воздействиям.
Устойчивость и экология
Современное архитектурное проектирование также акцентирует внимание на устойчивом развитии и экологии. Это включает в себя использование экологически чистых материалов, внедрение энергосберегающих технологий и создание систем для сбора дождевой воды. Устойчивые дома не только снижают негативное воздействие на окружающую среду, но и обеспечивают экономию ресурсов в процессе эксплуатации.
Ключевыми аспектами устойчивого проектирования являются:
- Энергоэффективность: Использование современных технологий, таких как солнечные панели и системы отопления, которые снижают потребление энергии.
- Водосбережение: Установка систем для сбора и повторного использования дождевой воды, а также использование сантехники с низким расходом воды.
- Выбор экологически чистых материалов: Использование древесины из сертифицированных лесов, переработанных материалов и других экологически безопасных решений.
Таким образом, архитектурное проектирование частных домов требует комплексного подхода, который учитывает как функциональные, так и эстетические аспекты, а также вопросы устойчивости и экологии. Каждый проект уникален и требует индивидуального подхода, что делает работу архитектора интересной и многогранной.
Схема планировочной организации земельного участка
Архитектурное проектирование частных домов является важным этапом в создании комфортного и функционального жилья. Этот процесс включает в себя множество аспектов, начиная от выбора земельного участка и заканчивая детальной проработкой интерьеров. Важно учитывать не только эстетические, но и практические аспекты, чтобы дом стал не только красивым, но и удобным для жизни.
При проектировании частного дома необходимо учитывать следующие ключевые моменты:
- Выбор земельного участка:
- Расположение и доступность
- Топография и рельеф
- Климатические условия
- Инфраструктура и коммуникации
- Определение стиля и концепции:
- Классический, современный, минимализм и другие стили
- Сочетание с окружающей природой
- Функциональность и удобство
- Планировка помещений:
- Зонирование пространства
- Оптимизация площади
- Учет потребностей жильцов
- Энергоэффективность:
- Использование современных технологий
- Выбор материалов с низкой теплопроводностью
- Системы отопления и вентиляции
- Ландшафтный дизайн:
- Создание гармоничного окружения
- Выбор растений и элементов декора
- Учет функциональных зон (площадки для отдыха, детские площадки и т.д.)
Каждый из этих аспектов требует тщательной проработки и внимания к деталям. Например, выбор земельного участка может существенно повлиять на дальнейшее проектирование. Необходимо учитывать не только его размеры, но и расположение относительно соседних участков, наличие деревьев и других природных объектов.
При выборе стиля дома важно учитывать не только личные предпочтения, но и архитектурные традиции региона. Это поможет создать гармоничное здание, которое будет органично вписываться в окружающую среду.
Планировка помещений должна быть продумана с учетом потребностей всех членов семьи. Например, если в доме есть дети, стоит предусмотреть отдельные зоны для игр и учебы. Также важно обеспечить достаточное количество мест для хранения вещей.
Энергоэффективность становится все более актуальной темой в современном строительстве. Использование современных технологий и материалов позволяет значительно снизить затраты на отопление и кондиционирование, что в долгосрочной перспективе экономит средства владельцев.
Ландшафтный дизайн также играет важную роль в создании комфортного пространства. Правильный выбор растений и элементов декора может не только украсить участок, но и создать уютную атмосферу для отдыха и общения с семьей и друзьями.
При проектировании частного дома также важно учитывать аспекты, связанные с безопасностью и комфортом. Это включает в себя не только выбор качественных строительных материалов, но и продуманное расположение окон и дверей, а также системы безопасности, такие как сигнализация и видеонаблюдение.
Безопасность и комфорт:
- Проектирование входных групп с учетом удобства и безопасности
- Установка качественных окон и дверей для защиты от взлома
- Создание безопасных зон для детей и домашних животных
Кроме того, стоит обратить внимание на освещение. Правильное освещение не только создает уютную атмосферу, но и влияет на безопасность. Важно предусмотреть как естественное, так и искусственное освещение, особенно в тех зонах, где это необходимо, например, на лестницах и в коридорах.
Освещение:
- Использование больших окон для максимального естественного света
- Установка точечных светильников в ключевых зонах
- Создание акцентного освещения для выделения архитектурных особенностей
Не менее важным аспектом является выбор систем отопления и кондиционирования. Современные технологии позволяют создать комфортный микроклимат в доме, обеспечивая оптимальную температуру в любое время года. Это может включать в себя как традиционные системы, так и альтернативные источники энергии, такие как солнечные панели или тепловые насосы.
Системы отопления и кондиционирования:
- Выбор между радиаторным и теплым полом
- Установка систем вентиляции для поддержания свежего воздуха
- Использование умных технологий для управления климатом
При проектировании частного дома также стоит учитывать возможность будущих изменений и расширений. Гибкость в планировке позволит адаптировать пространство под изменяющиеся потребности семьи. Например, можно предусмотреть возможность добавления дополнительных комнат или переоборудования существующих помещений.
Гибкость проектирования:
- Создание многофункциональных пространств
- Планирование дополнительных выходов и входов
- Учет возможности надстройки или расширения
Важным этапом является также выбор строительной компании или архитектора. Профессионалы помогут не только с проектированием, но и с реализацией задуманного. Рекомендуется выбирать компании с хорошей репутацией и положительными отзывами, а также проверять их портфолио выполненных работ.
Выбор строительной компании:
- Проверка лицензий и сертификатов
- Изучение отзывов клиентов
- Сравнение цен и условий работы
Таким образом, архитектурное проектирование частных домов — это комплексный процесс, который требует внимательного подхода и учета множества факторов. От выбора земельного участка до деталей интерьера — каждый этап важен для создания комфортного и функционального жилья. Важно помнить, что дом — это не просто здание, а пространство, в котором будет проходить жизнь семьи, поэтому к его проектированию стоит подходить с особым вниманием и заботой.
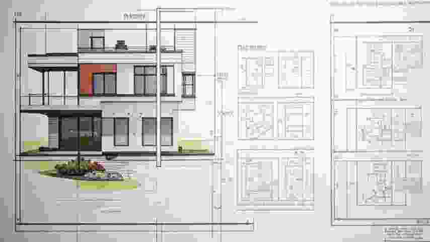
Объемно-планировочные и архитектурные решения
Архитектурное проектирование частных домов — это сложный и многогранный процесс, который требует учета множества факторов. Важнейшими аспектами являются объемно-планировочные и архитектурные решения, которые определяют не только внешний вид здания, но и его функциональность, комфорт и соответствие современным требованиям.
Объемно-планировочные решения
Объемно-планировочные решения включают в себя распределение пространства внутри дома, а также его внешние формы. Основные элементы, которые необходимо учитывать:
- Функциональное зонирование: Определение зон для различных видов деятельности, таких как отдых, работа, прием гостей и т.д. Это позволяет создать комфортное и удобное пространство.
- Поток света: Правильное расположение окон и дверей обеспечивает естественное освещение, что положительно сказывается на атмосфере в доме.
- Связь с окружающей средой: Важно учитывать ландшафт и окружающие постройки, чтобы дом гармонично вписывался в местность.
- Энергоэффективность: Проектирование должно учитывать современные технологии, позволяющие снизить потребление энергии и улучшить теплоизоляцию.
Архитектурные решения
Архитектурные решения касаются внешнего облика здания и его стиля. Важно учитывать:
- Стиль: Выбор архитектурного стиля (классический, современный, минимализм и т.д.) должен соответствовать предпочтениям заказчика и окружающей архитектуре.
- Материалы: Использование качественных и долговечных материалов, которые не только обеспечивают эстетический вид, но и соответствуют климатическим условиям.
- Фасад: Дизайн фасада должен быть продуманным, чтобы создать привлекательный внешний вид и обеспечить защиту от внешних факторов.
- Крыша: Выбор типа крыши (плоская, скатная) влияет на общий стиль дома и его функциональность, включая возможность использования чердачного пространства.
При проектировании частных домов важно учитывать не только эстетические, но и практические аспекты, чтобы создать комфортное и функциональное жилье. Каждый проект уникален и требует индивидуального подхода, что делает архитектурное проектирование увлекательным и творческим процессом.
В следующей части статьи мы рассмотрим более подробно этапы проектирования, включая подготовку технического задания, выбор участка и взаимодействие с различными специалистами.
Этапы проектирования
Процесс архитектурного проектирования частных домов можно разделить на несколько ключевых этапов, каждый из которых играет важную роль в создании качественного и функционального жилья.
- Подготовка технического задания: На этом этапе заказчик формулирует свои пожелания и требования к будущему дому. Это включает в себя количество комнат, их назначение, общую площадь, а также предпочтения по стилю и материалам.
- Выбор участка: Местоположение дома имеет огромное значение. Необходимо учитывать такие факторы, как доступность коммуникаций, рельеф местности, наличие зеленых насаждений и соседние постройки. Правильный выбор участка может значительно повлиять на комфорт проживания.
- Предварительное проектирование: На этом этапе создаются эскизы и концептуальные решения, которые позволяют визуализировать будущий дом. Архитектор разрабатывает несколько вариантов планировок и фасадов, которые обсуждаются с заказчиком.
- Разработка рабочей документации: После утверждения концепции начинается создание детальной проектной документации, включающей архитектурные, конструктивные и инженерные решения. Это важный этап, так как именно на основе этой документации будет осуществляться строительство.
- Согласование проекта: Необходимо получить все необходимые разрешения и согласования от местных органов власти. Это может включать в себя проверку на соответствие градостроительным нормам и правилам.
- Строительство: На этом этапе проект реализуется. Важно, чтобы все работы выполнялись в соответствии с проектной документацией и с соблюдением строительных норм и правил.
- Контроль качества: В процессе строительства необходимо осуществлять контроль за качеством выполняемых работ и используемых материалов. Это поможет избежать ошибок и недочетов, которые могут повлиять на эксплуатацию дома в будущем.
Взаимодействие с различными специалистами
Архитектурное проектирование требует сотрудничества с различными специалистами, такими как:
- Инженеры: Они занимаются проектированием систем отопления, вентиляции, кондиционирования, водоснабжения и канализации.
- Дизайнеры интерьеров: Помогают создать гармоничное и функциональное внутреннее пространство, учитывая пожелания заказчика.
- Ландшафтные дизайнеры: Разрабатывают план благоустройства территории вокруг дома, включая озеленение, дорожки и зоны отдыха.
- Строительные подрядчики: Выполняют строительные работы, обеспечивая качество и соблюдение сроков.
Эффективное взаимодействие между всеми участниками процесса проектирования и строительства является залогом успешного завершения проекта и создания комфортного жилья для заказчика.
Конструктивные решения
Архитектурное проектирование частных домов – это сложный и многогранный процесс, который требует учета множества факторов, начиная от функциональности и заканчивая эстетикой. Конструктивные решения играют ключевую роль в этом процессе, так как они определяют не только внешний вид здания, но и его долговечность, безопасность и комфорт для проживания.
При проектировании частного дома необходимо учитывать различные аспекты, такие как климатические условия, особенности участка, на котором будет возводиться здание, а также предпочтения будущих жильцов. Все эти факторы влияют на выбор конструктивных решений, которые могут варьироваться от традиционных до современных технологий.
1. Выбор строительных материалов
Одним из первых шагов в процессе проектирования является выбор строительных материалов. На сегодняшний день существует множество вариантов, каждый из которых имеет свои преимущества и недостатки. К наиболее распространенным материалам относятся:
- Кирпич: Обладает высокой прочностью и долговечностью, хорошими теплоизоляционными свойствами.
- Бетон: Используется для создания прочных и устойчивых конструкций, особенно в условиях сейсмической активности.
- Дерево: Экологически чистый материал, который обеспечивает хорошую теплоизоляцию, но требует дополнительной обработки для защиты от влаги и насекомых.
- Сэндвич-панели: Современный материал, который сочетает в себе легкость и высокие теплоизоляционные свойства.
Выбор материала зависит от множества факторов, включая бюджет, климатические условия и желаемый стиль дома. Например, в регионах с холодным климатом предпочтение может отдаваться кирпичу или бетону, тогда как в теплых регионах часто используются деревянные конструкции.
2. Фундамент
Фундамент – это основа любого здания, и его выбор также является важным этапом проектирования. Существует несколько типов фундаментов, каждый из которых подходит для определенных условий:
- Ленточный фундамент: Подходит для большинства типов грунтов и обеспечивает хорошую устойчивость.
- Свайный фундамент: Используется в условиях слабых или подвижных грунтов, где необходимо передать нагрузку на более глубокие слои.
- Плитный фундамент: Рекомендуется для участков с высоким уровнем грунтовых вод или неравномерными осадками.
При выборе фундамента необходимо учитывать не только тип грунта, но и размеры и вес будущего здания. Неправильный выбор может привести к серьезным проблемам, таким как трещины в стенах или даже обрушение конструкции.
3. Конструктивные системы
Конструктивные системы определяют, как будет организовано пространство внутри дома и как будут распределены нагрузки. Существует несколько основных типов конструктивных систем:
- Каркасная система: Позволяет создавать легкие и просторные конструкции, где стены не несут основную нагрузку.
- Монолитная система: Обеспечивает высокую прочность и устойчивость, но требует значительных затрат на материалы и трудозатраты.
- Системы с несущими стенами: Традиционный подход, который обеспечивает хорошую теплоизоляцию и звукоизоляцию.
Выбор конструктивной системы зависит от архитектурной концепции, а также от функциональных требований к зданию. Например, если необходимо создать открытое пространство без перегородок, лучше всего подойдет каркасная система.
4. Энергоэффективность
Современные требования к строительству все чаще акцентируют внимание на энергоэффективности зданий. Это включает в себя использование теплоизоляционных материалов, энергоэффективных окон и систем отопления. Энергоэффективные дома не только снижают затраты на отопление и кондиционирование, но и способствуют уменьшению негативного воздействия на окружающую среду.
При проектировании частного дома важно учитывать не только текущие потребности жильцов, но и возможные изменения в будущем. Например, установка солнечных панелей или систем рекуперации тепла может значительно повыс
ить энергоэффективность дома и снизить его углеродный след.
5. Планировка и зонирование
Планировка частного дома – это важный аспект, который влияет на комфорт проживания. Правильное зонирование пространства позволяет создать функциональные и удобные для жизни помещения. При проектировании необходимо учитывать:
- Функциональные зоны: Жилая зона, зона отдыха, рабочая зона и вспомогательные помещения должны быть четко разделены, но при этом гармонично сочетаться.
- Потоки движения: Важно продумать, как жильцы будут перемещаться по дому, чтобы избежать узких мест и обеспечить удобный доступ ко всем помещениям.
- Естественное освещение: Окна и двери должны быть расположены так, чтобы максимально использовать солнечный свет, что также способствует экономии энергии.
Зонирование может быть выполнено как с помощью перегородок, так и с помощью мебели. Открытые планировки становятся все более популярными, так как они создают ощущение простора и свободы.
6. Архитектурный стиль
Выбор архитектурного стиля также является важным аспектом проектирования. Он должен соответствовать не только вкусам владельцев, но и гармонично вписываться в окружающую среду. Популярные стили включают:
- Классический: Характеризуется симметрией, пропорциями и использованием традиционных материалов.
- Современный: Отличается простыми формами, минимализмом и использованием новых технологий.
- Эко-стиль: Основное внимание уделяется использованию натуральных материалов и интеграции с природой.
Выбор стиля может повлиять на выбор материалов, конструктивных решений и даже на планировку. Например, в классическом стиле часто используются массивные колонны и симметричные фасады, тогда как в современном акцент делается на открытые пространства и большие окна.
7. Устойчивость и безопасность
При проектировании частного дома необходимо учитывать вопросы устойчивости и безопасности. Это включает в себя не только выбор прочных и надежных материалов, но и соблюдение строительных норм и правил. Важно предусмотреть:
- Сейсмостойкость: В районах с высокой сейсмической активностью необходимо использовать специальные технологии и материалы для обеспечения устойчивости здания.
- Пожарная безопасность: Использование огнестойких материалов и систем противопожарной защиты.
- Защита от внешних факторов: Устойчивость к ветровым нагрузкам, защита от наводнений и других природных катастроф.
Эти аспекты не только обеспечивают безопасность жильцов, но и способствуют долговечности здания, что является важным фактором при проектировании частного дома.
8. Инновационные технологии
Современные технологии открывают новые горизонты в архитектурном проектировании. Использование умных систем управления, автоматизации и современных строительных технологий позволяет значительно повысить комфорт и функциональность жилья. Например, системы «умный дом» позволяют управлять освещением, отоплением и безопасностью через мобильные приложения, что делает жизнь более удобной и безопасной.
Также стоит отметить использование 3D-печати в строительстве, что позволяет сократить время и затраты на возведение зданий. Инновационные материалы, такие как самовосстанавливающийся бетон или экологически чистые изоляционные материалы, также становятся все более популярными.
Таким образом, конструктивные решения в архитектурном проектировании частных домов являются многогранными и требуют комплексного подхода. Учитывая все вышеперечисленные аспекты, можно создать не только красивое, но и функциональное, безопасное и энергоэффективное жилье, которое будет радовать своих владельцев на протяжении многих лет.
Системы электроснабжения
Архитектурное проектирование частных домов включает в себя множество аспектов, среди которых важное место занимает системы электроснабжения. Эти системы обеспечивают не только комфортное проживание, но и безопасность, а также энергоэффективность зданий. В процессе проектирования необходимо учитывать как технические, так и эстетические требования, чтобы создать гармоничное и функциональное пространство.
Первым шагом в проектировании систем электроснабжения является анализ потребностей. Это включает в себя определение количества и типа электрических приборов, которые будут использоваться в доме. Например, для кухни потребуется больше мощных приборов, таких как холодильник, плита и посудомоечная машина, в то время как в спальнях могут быть достаточно простые источники освещения и зарядные устройства для мобильных устройств.
После анализа потребностей следует разработка схемы электроснабжения. На этом этапе проектировщик создает план, который включает в себя расположение электрических щитов, розеток, выключателей и освещения. Важно учитывать не только удобство использования, но и безопасность. Все электрические элементы должны быть расположены с учетом норм и правил, чтобы избежать перегрузок и коротких замыканий.
При проектировании систем электроснабжения также необходимо учитывать разделение нагрузки. Это означает, что различные группы приборов должны быть подключены к отдельным цепям, чтобы избежать перегрузки одной линии. Например, освещение и розетки в жилых помещениях могут быть разделены, а также выделены отдельные цепи для мощных приборов, таких как стиральные машины и кондиционеры.
Кроме того, важным аспектом является выбор оборудования. На рынке представлено множество различных типов кабелей, автоматов защиты, розеток и выключателей. При выборе оборудования необходимо учитывать не только его стоимость, но и качество, а также соответствие современным стандартам. Например, использование кабелей с хорошей изоляцией и защитой от перегрева может значительно повысить безопасность системы.
Не менее важным является учет энергоэффективности. В современных условиях все большее внимание уделяется использованию энергосберегающих технологий. Это может включать в себя установку светодиодного освещения, использование умных систем управления, а также внедрение альтернативных источников энергии, таких как солнечные панели. Все эти меры помогут снизить потребление электроэнергии и сократить расходы на коммунальные услуги.
Также стоит обратить внимание на проектирование системы заземления. Это важный элемент безопасности, который защищает людей и оборудование от электрических ударов. Правильное заземление должно быть предусмотрено на всех уровнях электроснабжения, включая розетки, освещение и крупные бытовые приборы.
В процессе проектирования систем электроснабжения необходимо также учитывать потенциальные риски. Это включает в себя анализ возможных аварийных ситуаций, таких как короткие замыкания или перегрев оборудования. Проектировщик должен предусмотреть меры по предотвращению таких ситуаций, включая установку автоматических выключателей и защитных устройств.
Наконец, важным этапом является согласование проекта с местными органами власти и коммунальными службами. Это необходимо для получения разрешений на строительство и подключения к электросетям. Проект должен соответствовать всем местным нормам и стандартам, что может потребовать дополнительных доработок и изменений.
После завершения проектирования и согласования всех деталей, следующим этапом является монтаж системы электроснабжения. Этот процесс требует высокой квалификации и соблюдения всех норм безопасности. Работы должны выполняться только квалифицированными специалистами, которые имеют соответствующие лицензии и опыт. Важно, чтобы монтаж проводился в соответствии с разработанным проектом, что позволит избежать ошибок и обеспечить надежность системы.
Во время монтажа необходимо уделить внимание качеству соединений и изоляции проводов. Неправильные соединения могут привести к перегреву и коротким замыканиям, что в свою очередь может вызвать пожары. Поэтому все соединения должны быть выполнены с использованием качественных материалов и проверены на прочность и надежность.
После завершения монтажа следует тестирование системы. Это важный этап, который позволяет выявить возможные недостатки и убедиться в правильности работы всех элементов. Тестирование включает в себя проверку всех цепей, автоматов защиты, а также функциональности розеток и освещения. В случае выявления проблем, необходимо внести коррективы до того, как система будет введена в эксплуатацию.
После успешного тестирования можно переходить к ввод в эксплуатацию. На этом этапе важно провести инструктаж для жильцов о том, как правильно использовать электрические приборы и соблюдать правила безопасности. Также стоит обратить внимание на необходимость регулярного обслуживания системы, что поможет предотвратить возможные неисправности в будущем.
Регулярное обслуживание и проверка системы электроснабжения являются важными аспектами ее эксплуатации. Это включает в себя периодическую проверку состояния проводки, автоматов защиты и других элементов системы. Рекомендуется проводить такие проверки не реже одного раза в год, а также сразу после любых значительных изменений в системе или при возникновении подозрений на неисправности.
Важным аспектом является также обновление системы по мере необходимости. С развитием технологий появляются новые решения, которые могут повысить эффективность и безопасность электроснабжения. Например, установка умных систем управления может значительно упростить управление освещением и бытовыми приборами, а также снизить потребление электроэнергии.
В заключение, проектирование и монтаж систем электроснабжения в частных домах — это сложный и многогранный процесс, который требует внимательного подхода и профессионализма. Учитывая все вышеперечисленные аспекты, можно создать надежную, безопасную и энергоэффективную систему, которая будет служить долгие годы и обеспечивать комфортное проживание.
системы водоснабжения
Системы водоснабжения являются неотъемлемой частью архитектурного проектирования частных домов. Они обеспечивают жилье необходимыми ресурсами для комфортной жизни, включая питьевую воду, воду для хозяйственных нужд и полива. При проектировании систем водоснабжения важно учитывать множество факторов, таких как источники воды, типы систем, их эффективность и экономичность.
Первым шагом в проектировании системы водоснабжения является выбор источника воды. В зависимости от местоположения участка, это может быть:
- Централизованное водоснабжение: Вода поступает из городской сети, что обеспечивает стабильный и качественный ресурс.
- Скважина: Вода добывается из подземных источников, что может быть более экономичным вариантом, но требует дополнительных затрат на бурение и оборудование.
- Сбор дождевой воды: Использование систем для сбора и хранения дождевой воды может стать альтернативным источником для полива и технических нужд.
После выбора источника воды необходимо определить тип системы водоснабжения. Существуют два основных типа:
- Автономные системы: Включают в себя насосы, фильтры и резервуары, которые обеспечивают подачу воды непосредственно из источника. Такие системы требуют регулярного обслуживания и контроля качества воды.
- Централизованные системы: Вода поступает из городской сети, что упрощает процесс, но может быть ограничено в случае перебоев с подачей.
При проектировании системы водоснабжения также важно учитывать распределение воды по дому. Это включает в себя:
- Планирование трубопроводов: Трубопроводы должны быть спроектированы так, чтобы минимизировать потери давления и обеспечить равномерное распределение воды по всем точкам потребления.
- Выбор сантехнических приборов: Эффективные и экономичные приборы помогут снизить потребление воды и улучшить общую эффективность системы.
- Установка фильтров: Для обеспечения качества питьевой воды необходимо предусмотреть установку фильтров, которые будут очищать воду от примесей и загрязнений.
Не менее важным аспектом является проектирование системы водоотведения, которая должна быть интегрирована с системой водоснабжения. Это включает в себя:
- Канализация: Проектирование системы сточных вод, которая будет эффективно отводить использованную воду из дома.
- Ливневая канализация: Системы для отвода дождевой воды, что особенно важно в регионах с высоким уровнем осадков.
При проектировании систем водоснабжения необходимо также учитывать местные нормы и правила, которые могут варьироваться в зависимости от региона. Это включает в себя:
- Санитарные нормы: Требования к качеству воды и системам водоснабжения.
- Строительные нормы: Правила, касающиеся установки трубопроводов и сантехнических приборов.
Таким образом, проектирование систем водоснабжения в частных домах требует комплексного подхода, учитывающего множество факторов. Это позволит создать эффективную, экономичную и безопасную систему, которая будет служить долгие годы.
При проектировании систем водоснабжения также следует учитывать возможность автоматизации. Современные технологии позволяют интегрировать системы управления, которые обеспечивают:
- Удаленный контроль: Возможность мониторинга состояния системы через мобильные приложения или компьютеры.
- Автоматическое управление: Настройка автоматического включения и выключения насосов в зависимости от потребления воды.
- Системы сигнализации: Уведомления о возможных утечках или сбоях в системе, что позволяет оперативно реагировать на проблемы.
Кроме того, стоит обратить внимание на энергоэффективность системы водоснабжения. Использование современных насосов и оборудования, которые потребляют меньше энергии, может значительно снизить эксплуатационные расходы. Важно также рассмотреть возможность использования альтернативных источников энергии, таких как солнечные панели, для питания насосов и других устройств.
Важным аспектом является также выбор материалов для трубопроводов и сантехнических приборов. На рынке доступны различные варианты, включая:
- Пластиковые трубы: Легкие, устойчивые к коррозии и простые в установке, но могут быть менее прочными в условиях высоких температур.
- Металлические трубы: Обеспечивают высокую прочность и долговечность, но подвержены коррозии и требуют дополнительной изоляции.
- Композитные материалы: Сочетают в себе преимущества как пластиковых, так и металлических труб, обеспечивая высокую прочность и устойчивость к коррозии.
При выборе сантехнических приборов также стоит учитывать их эффективность. Современные унитазы, раковины и душевые кабины могут значительно снизить потребление воды без ущерба для комфорта. Например, унитазы с двойным смывом позволяют выбирать объем воды в зависимости от необходимости, что способствует экономии.
Необходимо также учитывать возможность установки систем повторного использования воды. Это может включать в себя:
- Системы серой воды: Позволяют повторно использовать воду из раковин и душей для полива или смыва унитазов.
- Системы фильтрации дождевой воды: Обеспечивают очистку и использование дождевой воды для технических нужд.
В заключение, проектирование систем водоснабжения в частных домах требует внимательного подхода и учета множества факторов. Это не только обеспечивает комфортное проживание, но и способствует экономии ресурсов и защите окружающей среды. Правильное проектирование и выбор оборудования помогут создать эффективную и надежную систему, которая будет служить долгие годы.
системы водоотведения
Системы водоотведения являются важным аспектом архитектурного проектирования частных домов. Они обеспечивают эффективное удаление сточных вод и предотвращают затопление территории. Правильное проектирование систем водоотведения позволяет избежать множества проблем, связанных с избыточной влагой и загрязнением окружающей среды.
При проектировании систем водоотведения необходимо учитывать несколько ключевых факторов:
- Типы сточных вод: Сточные воды могут быть бытовыми, дождевыми или производственными. Каждый тип требует своего подхода к обработке и отведению.
- Местоположение: Географические и климатические условия влияют на выбор системы водоотведения. В регионах с высоким уровнем осадков необходимо предусмотреть дополнительные меры для предотвращения затопления.
- Топография участка: Рельеф местности также играет важную роль. Наклон участка может способствовать естественному отведению воды, однако в некоторых случаях может потребоваться установка дренажных систем.
- Нормативные требования: Важно учитывать местные строительные нормы и правила, которые могут регулировать проектирование систем водоотведения.
Существует несколько основных типов систем водоотведения, которые могут быть использованы в частных домах:
- Гравитационные системы: Эти системы используют силу тяжести для отведения сточных вод. Они наиболее распространены и эффективны, если участок имеет достаточный уклон.
- Принудительные системы: В случаях, когда уклон участка недостаточен, могут быть использованы насосные станции, которые перекачивают сточные воды в нужное направление.
- Системы ливневой канализации: Эти системы предназначены для сбора и отвода дождевых вод. Они могут включать в себя дренажные канавы, колодцы и другие элементы.
- Системы очистки сточных вод: Важно предусмотреть очистные сооружения, которые будут обрабатывать сточные воды перед их сбросом в окружающую среду.
Проектирование систем водоотведения начинается с анализа участка и определения его особенностей. На этом этапе важно провести следующие мероприятия:
- Гидрологические исследования: Определение уровня грунтовых вод и их колебаний в зависимости от времени года.
- Изучение почвы: Анализ типа почвы поможет определить, насколько быстро вода будет впитываться в землю.
- Оценка существующих систем: Если на участке уже есть системы водоотведения, необходимо оценить их состояние и эффективность.
После сбора всех необходимых данных можно переходить к проектированию самой системы. Важно учитывать:
- Выбор материалов: Для трубопроводов и других элементов системы необходимо выбирать качественные и долговечные материалы.
- Расчет диаметров труб: Диаметр труб должен быть рассчитан с учетом максимального потока сточных вод.
- Планировка расположения элементов: Все элементы системы должны быть расположены так, чтобы обеспечить максимальную эффективность и минимальные затраты на обслуживание.
На этапе проектирования также следует предусмотреть возможность доступа к элементам системы для их обслуживания и ремонта. Это может включать в себя установку люков и колодцев в удобных местах.
Важным аспектом является также интеграция системы водоотведения с другими инженерными системами дома, такими как водоснабжение и отопление. Это позволит избежать конфликтов между системами и обеспечит их эффективное функционирование.
В заключение, проектирование систем водоотведения требует комплексного подхода и учета множества факторов. Правильное проектирование поможет избежать проблем с затоплением и загрязнением, а также обеспечит комфортные условия для проживания в частном доме.
После завершения проектирования системы водоотведения, следующим этапом является ее реализация. Этот процесс включает в себя несколько ключевых шагов:
- Подготовка участка: Перед началом строительных работ необходимо очистить участок от мусора и растительности, а также провести выемку грунта в местах, где будут установлены элементы системы.
- Установка трубопроводов: Трубопроводы должны быть уложены с учетом уклона, который обеспечит естественный отвод сточных вод. Важно следить за тем, чтобы соединения были герметичными и надежными.
- Монтаж очистных сооружений: Если проектом предусмотрены очистные сооружения, их установка должна быть выполнена в соответствии с проектной документацией. Необходимо обеспечить доступ к ним для последующего обслуживания.
- Проверка системы: После завершения монтажа следует провести тестирование системы на герметичность и эффективность. Это поможет выявить возможные проблемы до того, как система будет введена в эксплуатацию.
После установки системы водоотведения важно также предусмотреть ее регулярное обслуживание. Это включает в себя:
- Очистка трубопроводов: Регулярная очистка от засоров и отложений поможет поддерживать систему в рабочем состоянии.
- Проверка состояния элементов: Необходимо периодически проверять состояние труб, колодцев и очистных сооружений на предмет повреждений и износа.
- Обновление системы: В случае необходимости следует проводить модернизацию системы, чтобы она соответствовала современным требованиям и стандартам.
Кроме того, важно учитывать влияние систем водоотведения на окружающую среду. Неправильное проектирование или эксплуатация может привести к загрязнению грунтовых вод и окружающей среды. Поэтому необходимо:
- Соблюдать экологические нормы: Все работы должны проводиться с учетом экологических требований и стандартов.
- Использовать безопасные материалы: При проектировании и строительстве следует выбирать материалы, которые не наносят вреда окружающей среде.
- Обеспечить защиту водоемов: Если участок находится вблизи водоемов, необходимо предусмотреть меры по защите их от загрязнения сточными водами.
Важным аспектом является также взаимодействие с местными органами власти. Перед началом строительства необходимо получить все необходимые разрешения и согласования. Это поможет избежать юридических проблем и обеспечит законность всех проведенных работ.
В заключение, проектирование и реализация систем водоотведения в частных домах — это сложный и многогранный процесс, который требует внимательного подхода и учета множества факторов. Правильное проектирование и эксплуатация систем водоотведения обеспечивают комфортные условия проживания и защиту окружающей среды.
системы отопление вентиляции и кондиционирования воздуха
Архитектурное проектирование частных домов включает в себя множество аспектов, среди которых важное место занимают системы отопления, вентиляции и кондиционирования воздуха (ОВК). Эти системы играют ключевую роль в создании комфортного и здорового микроклимата в жилых помещениях. Правильное проектирование и интеграция ОВК в архитектурное решение дома могут значительно повысить его энергоэффективность и удобство для жильцов.
При проектировании систем ОВК необходимо учитывать несколько факторов, таких как климатические условия региона, особенности конструкции здания, а также потребности и предпочтения будущих жильцов. Важно, чтобы системы были не только эффективными, но и экономичными в эксплуатации.
1. Системы отопления
Системы отопления могут быть различными, и выбор конкретного типа зависит от множества факторов. Наиболее распространенные системы отопления включают:
- Водяное отопление – основано на циркуляции горячей воды по радиаторам или теплым полам. Это один из самых популярных и эффективных способов отопления.
- Электрическое отопление – включает в себя электрические радиаторы, конвекторы и теплые полы. Этот вариант удобен в эксплуатации, но может быть дорогим в плане энергозатрат.
- Газовое отопление – использование газовых котлов для обогрева помещений. Это один из самых экономичных способов отопления, особенно в регионах с развитой газовой инфраструктурой.
- Твердотопливные котлы – используют дрова, уголь или пеллеты. Это экологически чистый вариант, но требует больше усилий для организации хранения топлива и его загрузки.
При выборе системы отопления важно учитывать не только ее эффективность, но и возможность автоматизации, что позволит оптимизировать расходы на отопление и поддерживать комфортную температуру в доме.
2. Системы вентиляции
Вентиляция является неотъемлемой частью системы ОВК, обеспечивая приток свежего воздуха и удаление загрязненного. Существует несколько типов вентиляционных систем:
- Принудительная вентиляция – включает в себя использование вентиляторов для обеспечения необходимого воздухообмена. Это позволяет контролировать уровень влажности и качество воздуха в помещениях.
- Естественная вентиляция – основана на естественных потоках воздуха через окна, двери и вентиляционные каналы. Этот метод менее затратен, но зависит от погодных условий.
- Системы рекуперации – позволяют использовать тепло от удаляемого воздуха для подогрева поступающего, что значительно повышает энергоэффективность.
Правильное проектирование вентиляции позволяет избежать проблем с конденсатом, плесенью и неприятными запахами, что особенно важно для здоровья жильцов.
3. Системы кондиционирования воздуха
Кондиционирование воздуха обеспечивает комфортную температуру и влажность в помещениях в жаркие летние месяцы. Системы кондиционирования могут быть:
- Сплит-системы – состоят из внутреннего и наружного блока, обеспечивая эффективное охлаждение и обогрев.
- Мульти-сплит-системы – позволяют подключать несколько внутренних блоков к одному наружному, что удобно для больших домов.
- Центральные системы кондиционирования – обеспечивают охлаждение всего дома через систему воздуховодов, что позволяет поддерживать равномерную температуру в разных помещениях.
При проектировании систем кондиционирования важно учитывать не только их мощность, но и уровень шума, а также возможность интеграции с другими системами ОВК.
4. Энергоэффективность систем ОВК
Современные технологии позволяют значительно повысить энергоэффективность систем отопления, вентиляции и кондиционирования. Это достигается за счет использования высокоэффективных котлов, теплообменников, а также систем автоматизации, которые регулируют работу оборудования в зависимости от температуры и влажности воздуха.
При проектировании систем ОВК важно учитывать такие параметры, как:
- Коэффициент полезного действия (КПД) – показывает, насколько эффективно система использует энергию для обогрева или охлаждения.
- Класс энергоэффективности – обозначает уровень потребления энергии системой. Чем выше класс, тем меньше энергии требуется для работы.
- Системы управления – автоматизация позволяет оптимизировать работу систем, снижая затраты на энергоресурсы.
Энергоэффективные системы не только снижают расходы на отопление и кондиционирование, но и уменьшают негативное воздействие на окружающую среду, что становится все более актуальным в условиях глобальных изменений климата.
5. Интеграция систем ОВК в архитектурное проектирование
Архитектурное проектирование частных домов должно учитывать не только эстетические, но и функциональные аспекты систем ОВК. Важно, чтобы системы были гармонично интегрированы в общий дизайн здания, не нарушая его архитектурных решений.
При проектировании следует обратить внимание на:
- Расположение оборудования – котлы, кондиционеры и вентиляционные каналы должны быть размещены так, чтобы не нарушать интерьер и не создавать шум.
- Эстетика – внешние блоки кондиционеров и вентиляционные решетки должны быть оформлены таким образом, чтобы не портить внешний вид здания.
- Доступность для обслуживания – системы должны быть спроектированы так, чтобы обеспечить легкий доступ для технического обслуживания и ремонта.
Кроме того, важно учитывать возможность будущей модернизации систем, что позволит адаптировать дом к изменяющимся условиям и требованиям жильцов.
6. Учет климатических условий
Климатические условия региона, в котором строится дом, играют ключевую роль в проектировании систем ОВК. Важно учитывать:
- Температурные колебания – в регионах с холодными зимами необходимо предусмотреть более мощные системы отопления, в то время как в теплых климатах акцент следует делать на кондиционирование.
- Влажность – в районах с высокой влажностью важно предусмотреть эффективные системы вентиляции для предотвращения образования плесени и конденсата.
- Сезонные изменения – системы должны быть адаптированы к сезонным изменениям, чтобы обеспечить комфорт в любое время года.
Таким образом, проектирование систем отопления, вентиляции и кондиционирования воздуха в частных домах требует комплексного подхода, учитывающего множество факторов. Это позволит создать комфортное и здоровое пространство для жизни, а также снизить эксплуатационные расходы и негативное воздействие на окружающую среду.
слаботочные системы
Архитектурное проектирование частных домов включает в себя множество аспектов, среди которых важное место занимают слаботочные системы. Эти системы обеспечивают функциональность и комфорт в жилых помещениях, а также способствуют повышению уровня безопасности. В данной статье мы рассмотрим основные компоненты слаботочных систем, их проектирование и интеграцию в архитектурное решение частного дома.
Что такое слаботочные системы?
Слаботочные системы – это системы, работающие на низких напряжениях, которые обеспечивают передачу данных, управление и сигнализацию. К ним относятся:
- Системы видеонаблюдения
- Системы охранной сигнализации
- Системы контроля доступа
- Системы автоматизации зданий
- Телефонные и интерком-системы
- Системы связи и передачи данных
Эти системы играют ключевую роль в обеспечении безопасности и комфорта, а также в управлении различными функциями дома.
Проектирование слаботочных систем
Проектирование слаботочных систем начинается с анализа потребностей заказчика и особенностей объекта. Важно учитывать:
- Площадь и планировку дома
- Количество и расположение окон и дверей
- Наличие дополнительных помещений (гаражи, подвалы, чердаки)
- Потенциальные угрозы безопасности
- Технические возможности и бюджет
На основе собранной информации разрабатывается проект, который включает в себя схемы расположения оборудования, прокладки кабелей и подключения к электросети.
Системы видеонаблюдения
Системы видеонаблюдения являются важным элементом безопасности частного дома. Они позволяют контролировать территорию и фиксировать события в режиме реального времени. При проектировании таких систем необходимо учитывать:
- Количество камер и их расположение
- Тип камер (аналоговые или IP-камеры)
- Наличие ночного видения и других дополнительных функций
- Способы хранения и передачи данных (локально или в облаке)
Правильное размещение камер позволяет минимизировать слепые зоны и обеспечить максимальную видимость.
Системы охранной сигнализации
Системы охранной сигнализации предназначены для защиты дома от несанкционированного доступа. Они могут включать в себя:
- Датчики движения
- Датчики открытия дверей и окон
- Сирены и звуковые оповещатели
- Системы уведомления (SMS, мобильные приложения)
При проектировании охранной сигнализации важно учитывать уязвимые места в доме и выбирать соответствующие датчики для их защиты.
Системы контроля доступа
Системы контроля доступа обеспечивают ограничение доступа в определенные зоны дома. Они могут включать:
- Электронные замки
- Системы распознавания лиц
- Картридеры и кодовые замки
Эти системы позволяют управлять доступом не только для жильцов, но и для гостей, обеспечивая высокий уровень безопасности.
Системы автоматизации зданий
Системы автоматизации зданий позволяют управлять различными функциями дома, такими как освещение, отопление и вентиляция. Они могут включать:
- Умные термостаты
- Системы управления освещением
- Автоматические шторы и жалюзи
Проектирование таких систем требует интеграции с другими слаботочными системами для обеспечения их совместимости и функциональности.
Телефонные и интерком Телефонные и интерком-системы Телефонные и интерком-системы обеспечивают связь внутри дома и с внешним миром. Они могут включать в себя: При проектировании таких систем важно учитывать количество пользователей, расположение комнат и необходимость в видеонаблюдении. Интеркомы могут быть интегрированы с системами безопасности, что позволяет жильцам видеть, кто находится у двери, прежде чем открыть ее. Системы связи и передачи данных Системы связи и передачи данных обеспечивают доступ к интернету и локальным сетям. Они могут включать: Проектирование таких систем требует тщательного планирования, чтобы обеспечить стабильное соединение во всех помещениях дома. Важно учитывать расположение маршрутизаторов и точек доступа, а также прокладку кабелей для минимизации потерь сигнала. Интеграция слаботочных систем в архитектурное проектирование Интеграция слаботочных систем в архитектурное проектирование частного дома является важным этапом, который требует комплексного подхода. На этом этапе необходимо учитывать: Архитекторы и проектировщики должны работать в тесном сотрудничестве с инженерами, чтобы обеспечить правильное размещение всех компонентов и их интеграцию в общую концепцию дома. Это позволит избежать проблем на этапе монтажа и эксплуатации. Заключение Слаботочные системы играют важную роль в современном архитектурном проектировании частных домов. Они обеспечивают безопасность, комфорт и функциональность, что делает жизнь жильцов более удобной и безопасной. Правильное проектирование и интеграция этих систем в архитектурное решение позволяет создать гармоничное и технологичное пространство, отвечающее всем современным требованиям.
системы газоснабжения
Архитектурное проектирование частных домов включает в себя множество аспектов, среди которых важное место занимает система газоснабжения. Правильное проектирование газоснабжения не только обеспечивает комфорт и безопасность проживания, но и влияет на общую энергоэффективность здания. В этом разделе мы рассмотрим ключевые моменты, которые необходимо учитывать при проектировании систем газоснабжения для частных домов.
1. Выбор источника газа
Первым шагом в проектировании системы газоснабжения является выбор источника газа. В зависимости от местоположения и доступности, можно использовать:
- Природный газ – наиболее распространенный вид газа, который подается через газопроводы.
- Сжиженный газ – используется в районах, где нет доступа к магистральным газопроводам. Он хранится в баллонах или резервуарах.
- Биогаз – альтернативный источник, который может быть получен из органических отходов.
2. Проектирование газопровода
Проектирование газопровода включает в себя выбор диаметра труб, материалов и схемы разводки. Важно учитывать:
- Диаметр труб – должен быть рассчитан с учетом потребностей в газе и длины трубопровода.
- Материалы – для газопроводов используются стальные, медные или пластиковые трубы, каждая из которых имеет свои преимущества и недостатки.
- Схема разводки – должна обеспечивать равномерное распределение газа по всем точкам потребления.
3. Установка газового оборудования
При проектировании системы газоснабжения необходимо также учитывать установку газового оборудования, такого как:
- Газовые котлы – для отопления и горячего водоснабжения.
- Газовые плиты – для приготовления пищи.
- Газовые водонагреватели – для обеспечения горячей водой.
Каждое из этих устройств должно быть выбрано с учетом потребностей жильцов и соответствовать современным стандартам безопасности.
4. Безопасность газоснабжения
Безопасность является одним из главных аспектов при проектировании систем газоснабжения. Необходимо предусмотреть:
- Датчики утечки газа – для своевременного обнаружения утечек и предотвращения аварий.
- Вентиляцию – для обеспечения притока свежего воздуха и предотвращения накопления угарного газа.
- Элементы защиты – такие как запорные краны и предохранительные клапаны.
Каждый из этих элементов должен быть правильно спроектирован и установлен, чтобы гарантировать безопасность жильцов.
5. Проектирование системы автоматизации
Современные системы газоснабжения могут быть дополнены элементами автоматизации, что значительно повышает комфорт и безопасность. К таким системам относятся:
- Автоматические регуляторы давления – обеспечивают стабильное давление газа в системе, что предотвращает его колебания и возможные аварии.
- Системы дистанционного управления – позволяют управлять газовыми приборами через мобильные приложения или пульты, что удобно для пользователей.
- Интеллектуальные системы мониторинга – отслеживают состояние системы в реальном времени и могут отправлять уведомления о возможных неисправностях.
6. Энергоэффективность и экология
При проектировании систем газоснабжения важно учитывать не только комфорт, но и энергоэффективность. Это может быть достигнуто за счет:
- Выбора высокоэффективного оборудования – современные газовые котлы и плиты имеют высокий КПД, что позволяет сократить потребление газа.
- Использования альтернативных источников энергии – комбинирование газового отопления с солнечными панелями или тепловыми насосами.
- Системы рекуперации тепла – позволяют использовать тепло, выделяющееся при сжигании газа, для подогрева воды или воздуха.
7. Правила и нормы проектирования
Проектирование систем газоснабжения должно соответствовать действующим нормативам и правилам. Важно учитывать:
- Санитарные нормы – обеспечивают безопасность и здоровье жильцов.
- Строительные нормы – определяют требования к материалам и конструкциям.
- Правила эксплуатации газового оборудования – регламентируют порядок установки и обслуживания газовых приборов.
Соблюдение всех этих норм и правил является обязательным для обеспечения безопасной и эффективной работы системы газоснабжения.
8. Обслуживание и ремонт системы газоснабжения
После завершения проектирования и установки системы газоснабжения необходимо обеспечить ее регулярное обслуживание. Это включает в себя:
- Периодические проверки – для выявления возможных утечек и неисправностей.
- Чистка оборудования – для поддержания его в рабочем состоянии и повышения эффективности.
- Замена изношенных деталей – для предотвращения аварий и продления срока службы системы.
Регулярное обслуживание системы газоснабжения не только гарантирует безопасность, но и способствует экономии на расходах за счет повышения энергоэффективности.
Таким образом, проектирование систем газоснабжения для частных домов требует комплексного подхода, учитывающего множество факторов, от выбора источника газа до обеспечения безопасности и энергоэффективности. Правильное проектирование и обслуживание системы газоснабжения обеспечивают комфортное и безопасное проживание в доме.
Технологические решения
Архитектурное проектирование частных домов требует комплексного подхода, который включает в себя множество технологических решений. Эти решения помогают не только создать эстетически привлекательное здание, но и обеспечить его функциональность, энергоэффективность и долговечность. В этом разделе мы рассмотрим ключевые аспекты, которые необходимо учитывать при проектировании частных домов.
1. Выбор архитектурного стиля
Первым шагом в архитектурном проектировании является выбор стиля, который будет определять внешний вид и внутреннее оформление дома. Существует множество стилей, каждый из которых имеет свои особенности:
- Классический стиль – характеризуется симметрией, пропорциями и использованием традиционных материалов.
- Современный стиль – акцент на простоту форм, открытые пространства и использование новых технологий.
- Эко-стиль – включает в себя использование природных материалов и технологий, направленных на минимизацию воздействия на окружающую среду.
- Минимализм – фокус на функциональности и отказ от лишних деталей.
Выбор стиля зависит от предпочтений заказчика, а также от особенностей участка и окружающей застройки.
2. Планировка и зонирование
Планировка дома – это важный этап, который определяет, как будут распределены помещения внутри здания. Зонирование позволяет создать комфортные условия для проживания, учитывая потребности всех членов семьи:
- Жилая зона – включает в себя спальни, гостиную и другие помещения для отдыха.
- Кухонная зона – должна быть удобной и функциональной, с учетом современных стандартов.
- Вспомогательные помещения – такие как кладовые, прачечные и технические комнаты.
- Зона для работы – если это необходимо, можно выделить пространство для домашнего офиса.
При планировке важно учитывать не только функциональность, но и эргономику, чтобы обеспечить удобное передвижение по дому.
3. Выбор строительных материалов
Строительные материалы играют ключевую роль в архитектурном проектировании. Они влияют на внешний вид, долговечность и энергоэффективность дома. Основные категории материалов:
- Кирпич – прочный и долговечный материал, который обеспечивает хорошую теплоизоляцию.
- Дерево – экологически чистый материал, который придает дому уютный вид, но требует дополнительной обработки для защиты от влаги и вредителей.
- Бетон – используется для создания прочных конструкций, но требует хорошей теплоизоляции.
- Сэндвич-панели – современные решения для быстрого строительства, обеспечивающие хорошую теплоизоляцию.
Выбор материалов зависит от климатических условий, бюджета и предпочтений заказчика.
4. Энергоэффективность и устойчивость
Современные технологии позволяют значительно повысить энергоэффективность частных домов. Это достигается за счет:
- Использования качественной теплоизоляции, которая снижает теплопотери.
- Установки энергосберегающих окон и дверей, которые минимизируют проникновение холода.
- Применения систем вентиляции с рекуперацией тепла, что позволяет экономить на отоплении.
- Использования альтернативных источников энергии, таких как солнечные панели или ветряные турбины.
Эти решения не только снижают затраты на коммунальные услуги, но и способствуют охране окружающей среды.
5. Инженерные системы
При проектировании частных домов необходимо учитывать инженерные системы, которые обеспечивают комфортное проживание:
- Отопление – выбор системы отопления (газовое, электрическое, водяное) зависит от климатических условий и бюджета.
- Водоснабжение и канализация – проектирование этих систем должно учитывать местные условия и требования.
- Электроснабжение – проектирование электросистемы должно учитывать потребности всех помещений и возможность подключения дополнительных устройств.
- Системы безопасности – установка сигнализации, видеонаблюдения и других систем для обеспечения безопасности жильцов.
Правильное проектирование инженерных систем позволяет избежать проблем в будущем и обеспечивает комфортное проживание.
6. Ландшафтное проектирование
Ландшафтное проектирование играет важную роль в создании гармоничного пространства вокруг частного дома. Оно включает в себя:
- Планирование зеленых насаждений – выбор деревьев, кустарников и цветов, которые будут гармонировать с архитектурным стилем дома.
- Создание зон отдыха – проектирование террас, беседок и других мест для отдыха на свежем воздухе.
- Устройство дорожек и площадок – выбор материалов и форм для создания удобных и эстетически привлекательных дорожек.
- Системы полива – автоматизация полива для поддержания здоровья растений.
Ландшафтное проектирование помогает создать уютное и комфортное пространство, которое будет радовать глаз и служить местом для отдыха.
7. Устойчивое проектирование
Устойчивое проектирование становится все более актуальным в современном строительстве. Оно включает в себя:
- Использование экологически чистых и перерабатываемых материалов.
- Проектирование зданий с учетом их воздействия на окружающую среду.
- Создание систем, которые минимизируют потребление ресурсов и отходов.
- Внедрение технологий, которые способствуют сохранению биоразнообразия.
Устойчивое проектирование не только помогает сохранить природу, но и создает комфортные условия для жизни.
8. Инновационные технологии
Современные технологии открывают новые возможности в архитектурном проектировании. К ним относятся:
- 3D-моделирование – позволяет визуализировать проект на ранних стадиях и вносить изменения до начала строительства.
- Системы «умный дом» – автоматизация управления освещением, отоплением и другими системами для повышения комфорта.
- Использование BIM-технологий – Building Information Modeling, которые позволяют интегрировать все аспекты проектирования в единую модель.
- 3D-печать – возможность создания строительных элементов с помощью 3D-принтеров, что сокращает время и затраты на строительство.
Инновационные технологии делают процесс проектирования более эффективным и позволяют создавать уникальные архитектурные решения.
9. Согласование и разрешительная документация
Перед началом строительства необходимо пройти процесс согласования проекта и получения разрешительной документации. Это включает в себя:
- Подготовку проектной документации, соответствующей требованиям местных органов власти.
- Согласование с архитектурными и строительными инстанциями.
- Получение разрешений на строительство и ввод в эксплуатацию.
- Учет норм и правил, касающихся охраны окружающей среды и безопасности.
Соблюдение всех процедур позволяет избежать юридических проблем и задержек в строительстве.
10. Завершение проекта и ввод в эксплуатацию
После завершения строительства необходимо провести финальные проверки и подготовить дом к эксплуатации:
- Проверка всех инженерных систем на работоспособность.
- Устранение недочетов и дефектов, выявленных в процессе приемки.
- Оформление необходимых документов для ввода в эксплуатацию.
- Подготовка дома к заселению, включая уборку и обустройство интерьеров.
Завершение проекта – это важный этап, который требует внимательности и тщательной проверки всех аспектов.
<11. Обслуживание и эксплуатация
После ввода дома в эксплуатацию важным аспектом становится его обслуживание. Это включает в себя:
- Регулярное техническое обслуживание инженерных систем, таких как отопление, водоснабжение и электроснабжение, для предотвращения поломок и повышения их долговечности.
- Плановые проверки состояния здания, включая фасад, крышу и фундаменты, чтобы выявить и устранить возможные проблемы на ранних стадиях.
- Уход за ландшафтом, который включает в себя обрезку деревьев, уход за газонами и цветниками, а также контроль за состоянием дорожек и площадок.
- Обновление интерьеров, которое может включать в себя косметический ремонт, замену мебели и декора, чтобы поддерживать комфорт и эстетический вид дома.
Правильное обслуживание позволяет продлить срок службы дома и сохранить его привлекательность.
12. Учет современных тенденций
Архитектурное проектирование частных домов также должно учитывать современные тенденции и предпочтения. К ним относятся:
- Увеличение интереса к экологически чистым и устойчивым материалам, что приводит к росту популярности домов, построенных из переработанных и натуральных материалов.
- Развитие концепции открытых пространств, где кухня, гостиная и столовая объединены в одно целое, что создает ощущение простора и свободы.
- Интеграция технологий «умного дома», которые позволяют управлять всеми системами дома через мобильные приложения, обеспечивая удобство и безопасность.
- Популяризация многофункциональных пространств, которые могут адаптироваться под различные нужды жильцов, например, использование одной комнаты как рабочего кабинета и гостевой спальни.
Учет этих тенденций позволяет создавать современные и востребованные проекты, которые соответствуют ожиданиям клиентов.
13. Взаимодействие с клиентом
Успех архитектурного проектирования во многом зависит от взаимодействия с клиентом. Важно:
- Проводить детальные консультации на этапе сбора требований, чтобы понять потребности и предпочтения заказчика.
- Предоставлять визуализации и 3D-модели, чтобы клиент мог лучше представить конечный результат.
- Обсуждать изменения и корректировки на всех этапах проектирования, чтобы избежать недопонимания и разочарования.
- Поддерживать связь даже после завершения проекта, предлагая услуги по обслуживанию и модернизации.
Эффективное взаимодействие с клиентом способствует созданию успешных проектов и повышает уровень удовлетворенности заказчика.
14. Заключение
Архитектурное проектирование частных домов – это сложный и многогранный процесс, который требует учета множества факторов. Технологические решения, правильный выбор материалов, внимание к инженерным системам и взаимодействие с клиентом играют ключевую роль в создании комфортного и функционального жилья. Следуя современным тенденциям и применяя инновационные технологии, архитекторы могут создавать уникальные и устойчивые проекты, которые будут радовать своих владельцев на протяжении многих лет.
Проект организации строительства
Архитектурное проектирование частных домов – это сложный и многогранный процесс, который включает в себя множество этапов и аспектов. На начальном этапе важно определить основные требования и пожелания заказчика, а также учесть особенности участка, на котором будет возводиться дом. Это позволяет создать проект, который будет не только эстетически привлекательным, но и функциональным, удобным для проживания.
Первым шагом в архитектурном проектировании является анализ участка. Специалисты изучают его размеры, форму, рельеф, а также климатические условия. Важно учитывать расположение участка относительно сторон света, наличие природных объектов, таких как деревья или водоемы, а также инфраструктуру, которая может повлиять на проект. Например, близость к дорогам, школам и магазинам может стать решающим фактором при выборе планировки дома.
Следующим этапом является разработка концепции дома. На этом этапе архитектор совместно с заказчиком определяет стиль, форму и основные функциональные зоны. Важно учесть не только эстетические предпочтения, но и практические аспекты, такие как количество комнат, их назначение и взаимное расположение. Например, если семья планирует много времени проводить на кухне, стоит предусмотреть открытое пространство, соединяющее кухню с гостиной.
После того как концепция утверждена, начинается разработка эскизного проекта. Это предварительные чертежи, которые показывают общую компоновку дома, его внешний вид и основные размеры. Эскизный проект позволяет визуализировать идеи и внести изменения на ранних стадиях, что значительно упрощает дальнейшую работу. На этом этапе также могут быть предложены различные варианты фасадов, кровли и отделки, что дает возможность заказчику выбрать наиболее подходящий вариант.
Когда эскизный проект готов, переходим к разработке рабочей документации. Этот этап включает в себя создание детализированных чертежей, которые будут использоваться строителями. Рабочая документация должна содержать все необходимые сведения о конструкции, материалах, инженерных системах и других важных аспектах. Качественно выполненная документация позволяет избежать ошибок в процессе строительства и обеспечивает соответствие проекту.
Не менее важным этапом является согласование проекта с различными инстанциями. В зависимости от местных норм и правил, может потребоваться получение разрешений на строительство, согласование с архитектурными и градостроительными органами. Этот процесс может занять значительное время, поэтому его стоит учитывать в общем графике проекта.
После получения всех необходимых разрешений можно приступать к строительству. На этом этапе важно обеспечить контроль за качеством выполнения работ, чтобы гарантировать соответствие проекту. Архитектор или проектировщик может участвовать в процессе строительства, проводя регулярные проверки и консультируя строителей по возникающим вопросам.
В процессе строительства также важно учитывать инженерные системы, такие как электроснабжение, водоснабжение, отопление и вентиляция. Эти системы должны быть спроектированы с учетом особенностей дома и потребностей его жителей. Например, для обеспечения комфортного микроклимата в доме необходимо правильно рассчитать мощность отопительных приборов и систему вентиляции.
После завершения строительства наступает этап внутренней отделки и благоустройства территории. Здесь важно уделить внимание не только эстетике, но и функциональности. Выбор отделочных материалов, мебели и освещения должен соответствовать общему стилю дома и предпочтениям его жителей. Благоустройство участка также играет важную роль, так как оно создает комфортное пространство для отдыха и досуга.
Завершение строительства и отделки дома – это не конец, а лишь начало нового этапа, связанного с вводом в эксплуатацию. На этом этапе необходимо провести ряд проверок и испытаний, чтобы убедиться, что все системы функционируют должным образом. Это включает в себя проверку работы отопления, водоснабжения, электроснабжения и вентиляции. Также важно убедиться, что все отделочные работы выполнены качественно и соответствуют проекту.
После успешного завершения всех проверок можно переходить к оформлению документов для ввода дома в эксплуатацию. Это включает в себя получение актов о выполненных работах, а также регистрацию объекта недвижимости в соответствующих органах. Важно, чтобы все документы были оформлены правильно, так как это может повлиять на дальнейшую эксплуатацию дома и его продажу в будущем.
Не стоит забывать и о последующем обслуживании дома. После ввода в эксплуатацию важно следить за состоянием всех систем и проводить регулярные проверки. Это поможет избежать серьезных проблем в будущем и продлить срок службы дома. Рекомендуется составить график обслуживания, который будет включать в себя проверки отопления, водоснабжения, электрики и других систем.
Кроме того, стоит обратить внимание на ландшафтный дизайн и благоустройство территории вокруг дома. Правильное оформление участка не только улучшает внешний вид, но и создает комфортные условия для отдыха. Это может включать в себя создание садов, установку дорожек, освещения и других элементов, которые сделают пространство более уютным и функциональным.
Важным аспектом является энергетическая эффективность дома. Современные технологии позволяют значительно снизить потребление энергии, что не только экономит средства, но и способствует охране окружающей среды. При проектировании стоит учитывать использование энергоэффективных материалов, систем отопления и вентиляции, а также альтернативных источников энергии, таких как солнечные панели.
Также стоит обратить внимание на экологические аспекты проектирования. Использование экологически чистых материалов и технологий позволяет создать здоровую атмосферу внутри дома и минимизировать негативное воздействие на окружающую среду. Это может включать в себя использование натуральных материалов, систем утилизации отходов и водосберегающих технологий.
В заключение, архитектурное проектирование частных домов – это комплексный процесс, который требует внимательного подхода на каждом этапе. От анализа участка до ввода в эксплуатацию, каждый шаг важен для создания комфортного и функционального жилья. Учитывая все аспекты, можно создать дом, который будет радовать своих жителей на протяжении многих лет.
Мероприятия по охране окружающей среды
Архитектурное проектирование частных домов в контексте охраны окружающей среды становится все более актуальным. В условиях глобальных изменений климата и ухудшения экологической ситуации, важно учитывать не только эстетические и функциональные аспекты, но и влияние на природу. В этом разделе мы рассмотрим основные мероприятия, которые могут быть внедрены в процесс проектирования для минимизации негативного воздействия на окружающую среду.
Одним из ключевых аспектов является выбор участка для строительства. При выборе места необходимо учитывать не только его доступность и удобство, но и экосистему, которая там существует. Важно избегать застройки на территориях с высокой биологической ценностью, таких как леса, болота и водоемы. Также следует учитывать наличие природных ресурсов, таких как вода и солнечное освещение, которые могут быть использованы для обеспечения дома.
Следующим этапом является использование экологически чистых материалов. При проектировании частного дома стоит отдавать предпочтение местным и натуральным материалам, которые имеют низкий углеродный след. Это могут быть древесина, камень, глина и другие природные материалы. Кроме того, важно учитывать возможность вторичной переработки использованных материалов, что также способствует снижению нагрузки на окружающую среду.
Не менее важным является энергетическая эффективность здания. Проектирование должно включать в себя использование современных технологий, таких как солнечные панели, системы рекуперации тепла и энергоэффективные окна. Эти решения не только снижают потребление энергии, но и уменьшают выбросы углекислого газа в атмосферу. Важно также предусмотреть возможность использования альтернативных источников энергии, таких как ветер или биомасса.
При проектировании частного дома следует также учитывать водные ресурсы. Внедрение систем сбора дождевой воды и ее последующее использование для полива сада или технических нужд может значительно снизить потребление пресной воды. Кроме того, важно предусмотреть системы очистки сточных вод, которые позволят минимизировать загрязнение окружающей среды.
Еще одним важным аспектом является ландшафтное проектирование. Создание зеленых насаждений вокруг дома не только улучшает эстетический вид, но и способствует поддержанию местной экосистемы. Правильный выбор растений, которые адаптированы к местным условиям, поможет снизить потребление воды и уменьшить необходимость в химических удобрениях и пестицидах.
Также стоит обратить внимание на инфраструктуру вокруг частного дома. Проектирование должно учитывать возможность создания удобных и безопасных пешеходных и велосипедных дорожек, что способствует снижению использования автомобилей и, как следствие, уменьшению выбросов углекислого газа. Важно также предусмотреть доступ к общественному транспорту, что позволит жителям сократить время в пути и снизить углеродный след.
В заключение, архитектурное проектирование частных домов с учетом мероприятий по охране окружающей среды требует комплексного подхода. Это включает в себя выбор участка, использование экологически чистых материалов, внедрение энергосберегающих технологий, управление водными ресурсами, ландшафтное проектирование и развитие инфраструктуры. Все эти меры помогут создать не только комфортное, но и экологически безопасное жилье, что является важной задачей современного общества.
Важным аспектом архитектурного проектирования является интеграция технологий умного дома. Умные системы управления позволяют оптимизировать потребление энергии и ресурсов, а также повысить комфорт проживания. Например, автоматизированные системы освещения и отопления могут адаптироваться к потребностям жильцов, что снижает ненужные затраты и уменьшает углеродный след. Использование датчиков движения и температуры позволяет эффективно управлять ресурсами, что особенно актуально в условиях изменения климата.
Кроме того, стоит обратить внимание на устойчивость к климатическим изменениям. Проектирование должно учитывать возможные экстремальные погодные условия, такие как наводнения, ураганы или засухи. Это может включать в себя использование устойчивых к воздействию воды материалов, а также проектирование дренажных систем, которые помогут предотвратить затопление. Также важно предусмотреть защиту от сильных ветров и других природных явлений, что обеспечит долговечность и безопасность здания.
Не менее значимым является учет местных климатических условий. Архитектурное проектирование должно быть адаптировано к особенностям региона, включая температуру, влажность и количество осадков. Например, в регионах с жарким климатом стоит предусмотреть тени и вентиляцию, чтобы снизить потребность в кондиционировании воздуха. В то же время, в холодных регионах важно обеспечить хорошую теплоизоляцию и защиту от холодных ветров.
Также следует учитывать социальные аспекты проектирования. Создание комфортного и безопасного пространства для жизни должно включать в себя доступность для всех групп населения, включая людей с ограниченными возможностями. Проектирование должно предусматривать удобные входы, широкие коридоры и доступные санитарные узлы. Это не только улучшает качество жизни, но и способствует социальной интеграции.
Важным элементом является обучение и информирование жильцов о принципах устойчивого образа жизни. Проектирование должно включать в себя создание пространства для хранения и сортировки отходов, а также информационные материалы о том, как минимизировать негативное воздействие на окружающую среду. Обучение жильцов о важности энергосбережения и правильного использования ресурсов может значительно повысить эффективность всех внедренных технологий.
Наконец, стоит отметить, что сотрудничество с местными сообществами и организациями может значительно улучшить результаты проектирования. Вовлечение местных жителей в процесс проектирования и принятия решений позволяет учитывать их потребности и предпочтения, что способствует созданию более гармоничного и устойчивого пространства. Это также может включать в себя совместные инициативы по озеленению, организации общественных мероприятий и других активностей, направленных на улучшение качества жизни в районе.
Таким образом, архитектурное проектирование частных домов с учетом мероприятий по охране окружающей среды требует комплексного подхода, который включает в себя множество аспектов — от выбора участка и материалов до внедрения современных технологий и учета социальных факторов. Все эти меры направлены на создание комфортного, безопасного и экологически устойчивого жилья, что является важной задачей для современного общества.
Мероприятия по обеспечению пожарной безопасности
Архитектурное проектирование частных домов является важным этапом, который включает в себя множество аспектов, связанных с обеспечением пожарной безопасности. В процессе проектирования необходимо учитывать не только эстетические и функциональные характеристики здания, но и его безопасность в случае возникновения пожара.
Одним из ключевых моментов является выбор материалов для строительства. Пожаростойкие материалы должны использоваться в конструкциях, чтобы минимизировать риск распространения огня. К таким материалам относятся:
- Кирпич
- Бетон
- Металл
- Керамическая плитка
Кроме того, важно учитывать планировку здания. Правильное расположение помещений может значительно снизить риск возникновения пожара и его последствий. Например, следует избегать размещения кухонь рядом с спальнями и другими помещениями, где люди могут находиться во время сна.
Также необходимо предусмотреть эвакуационные выходы и пути. Они должны быть четко обозначены и свободны от препятствий. Важно, чтобы все жильцы знали, как быстро и безопасно покинуть здание в случае пожара.
При проектировании следует учитывать системы противопожарной защиты, такие как:
- Пожарные сигнализации
- Системы автоматического пожаротушения
- Огнетушители
Эти системы должны быть интегрированы в проект на этапе его разработки, чтобы обеспечить максимальную эффективность в случае возникновения чрезвычайной ситуации.
Не менее важным аспектом является обеспечение доступа к зданию для пожарных служб. Дороги и подъезды должны быть спроектированы таким образом, чтобы обеспечить быструю реакцию в случае пожара. Это включает в себя:
- Ширину дорог
- Наличие разворотных площадок
- Отсутствие препятствий на пути к зданию
Также стоит обратить внимание на озеленение территории. Деревья и кустарники могут стать источником возгорания, поэтому их расположение должно быть тщательно продумано. Рекомендуется оставлять расстояние между растениями и зданием, а также использовать огнестойкие растения.
Важным аспектом является обучение жильцов правилам пожарной безопасности. На этапе проектирования можно предусмотреть специальные места для проведения инструктажей и обучения, что поможет повысить уровень безопасности в доме.
Таким образом, архитектурное проектирование частных домов должно учитывать множество факторов, связанных с пожарной безопасностью. Это позволит создать не только красивое, но и безопасное жилье для его обитателей.
При проектировании частных домов также следует учитывать освещение и электропроводку. Неправильная установка электрических систем может привести к коротким замыканиям и возгораниям. Рекомендуется использовать:
- Качественные кабели и проводку, соответствующие стандартам безопасности
- Автоматические выключатели и предохранители
- Системы защиты от перенапряжений
Кроме того, важно предусмотреть системы вентиляции. Правильная вентиляция помогает предотвратить накопление горючих газов и дымовых веществ, что может снизить риск возгорания. Важно, чтобы вентиляционные каналы были спроектированы с учетом:
- Эффективного воздухообмена
- Отсутствия засоров и препятствий
- Регулярного обслуживания
Необходимо также учитывать пожарные разрывы между зданиями. Если на участке планируется строительство нескольких объектов, важно соблюдать минимальные расстояния между ними, чтобы предотвратить распространение огня. Эти расстояния зависят от типа зданий и используемых материалов.
При проектировании следует также обратить внимание на кровлю. Кровельные материалы должны быть огнестойкими, чтобы предотвратить возгорание от внешних источников, таких как искры или жар от соседних зданий. Рекомендуется использовать:
- Металлические кровли
- Керамическую черепицу
- Битумные материалы с огнестойкими свойствами
Важным аспектом является планирование системы хранения горючих материалов. Если в доме хранятся легковоспламеняющиеся вещества, такие как краски, растворители или газ, необходимо выделить для них отдельные помещения с хорошей вентиляцией и огнестойкими перегородками.
Также стоит рассмотреть пожарные лестницы и балконы. Они должны быть спроектированы так, чтобы обеспечить безопасный выход в случае пожара. Лестницы должны быть широкими, прочными и иметь огнестойкие перила.
Необходимо также учитывать пожарные знаки и инструкции. Они должны быть размещены в видимых местах, чтобы жильцы могли быстро сориентироваться в случае возникновения чрезвычайной ситуации. Знаки должны быть четкими и легко читаемыми.
В заключение, архитектурное проектирование частных домов требует комплексного подхода к обеспечению пожарной безопасности. Учитывая все вышеперечисленные аспекты, можно создать безопасное и комфортное жилье для его обитателей.
Требования к обеспечению безопасной эксплуатации объектов капитального строительства
Архитектурное проектирование частных домов является важным этапом в обеспечении безопасной эксплуатации объектов капитального строительства. В процессе проектирования необходимо учитывать множество факторов, которые влияют на безопасность, функциональность и комфорт будущего жилья.
Основные аспекты архитектурного проектирования
- Функциональное зонирование
- Эстетические характеристики
- Экологические требования
- Технические условия
- Безопасность и устойчивость конструкции
Каждый из этих аспектов требует тщательного анализа и проработки, чтобы обеспечить не только привлекательный внешний вид, но и долговечность, а также безопасность здания.
Функциональное зонирование
Функциональное зонирование подразумевает разделение пространства на различные функциональные области, такие как жилые, хозяйственные и вспомогательные помещения. Это позволяет оптимально использовать площадь и создать комфортные условия для проживания.
При проектировании частного дома важно учитывать:
- Количество членов семьи и их потребности
- Планируемые виды деятельности в доме
- Необходимость в дополнительных помещениях, таких как кабинеты, спортзалы или мастерские
Правильное зонирование помогает избежать конфликтов между различными функциями и создает гармоничное пространство.
Эстетические характеристики
Эстетика играет важную роль в архитектурном проектировании. Внешний вид дома должен соответствовать не только личным предпочтениям владельцев, но и гармонировать с окружающей средой. Важно учитывать:
- Стиль архитектуры (классический, современный, минимализм и т.д.)
- Цветовые решения и отделочные материалы
- Ландшафтный дизайн и озеленение
Эстетические характеристики влияют на общее восприятие дома и его интеграцию в окружающий ландшафт.
Экологические требования
Современное архитектурное проектирование должно учитывать экологические аспекты. Это включает в себя:
- Использование экологически чистых и безопасных материалов
- Энергоэффективные технологии (солнечные панели, системы отопления и вентиляции)
- Устойчивое управление водными ресурсами (дождевые воды, системы полива)
Соблюдение экологических требований не только способствует сохранению окружающей среды, но и снижает эксплуатационные расходы.
Технические условия
Технические условия включают в себя требования к инженерным системам, таким как:
- Электроснабжение
- Водоснабжение и канализация
- Отопление и вентиляция
Каждая из этих систем должна быть спроектирована с учетом безопасности, надежности и эффективности. Важно также предусмотреть возможность их модернизации в будущем.
Безопасность и устойчивость конструкции
Безопасность и устойчивость конструкции являются ключевыми аспектами архитектурного проектирования. Это включает в себя:
- Соблюдение строительных норм и правил
- Использование качественных материалов и технологий
- Проектирование с учетом сейсмической и ветровой нагрузки
Обеспечение безопасности конструкции позволяет избежать аварий и продлить срок службы здания.
Проектирование фасадов и кровли
Фасад и кровля являются важными элементами архитектурного проектирования, так как они не только формируют внешний облик здания, но и влияют на его функциональность и безопасность. При проектировании фасадов необходимо учитывать:
- Выбор материалов, которые обеспечивают теплоизоляцию и защиту от атмосферных воздействий
- Эстетические решения, которые гармонируют с общим стилем дома
- Функциональные элементы, такие как окна, двери и балконы, которые должны быть удобными и безопасными в использовании
Кровля также требует особого внимания. Важно учитывать:
- Тип кровли (плоская, скатная) и ее уклон, что влияет на отвод дождевой воды
- Материалы, которые обеспечивают долговечность и защиту от утечек
- Элементы безопасности, такие как ограждения и лестницы для доступа к крыше
Инженерные системы и их интеграция
Инженерные системы играют ключевую роль в обеспечении комфорта и безопасности в частном доме. Проектирование этих систем должно быть интегрировано в общий архитектурный замысел. Важно учитывать:
- Энергоэффективность систем отопления, вентиляции и кондиционирования воздуха
- Системы автоматизации, которые позволяют управлять инженерными системами удаленно
- Системы безопасности, такие как сигнализация и видеонаблюдение
Эффективная интеграция инженерных систем позволяет не только повысить комфорт, но и снизить эксплуатационные расходы.
Соблюдение строительных норм и правил
При проектировании частного дома необходимо строго соблюдать строительные нормы и правила, которые регулируют все аспекты строительства. Это включает в себя:
- Соблюдение санитарных норм и требований к безопасности
- Учет местных климатических условий и особенностей грунта
- Соблюдение норм по противопожарной безопасности
Нарушение строительных норм может привести к серьезным последствиям, включая аварии и юридические проблемы.
Учет потребностей жильцов
При проектировании важно учитывать индивидуальные потребности жильцов. Это может включать:
- Специальные требования для людей с ограниченными возможностями
- Пожелания по поводу планировки и дизайна интерьеров
- Необходимость в дополнительных помещениях для хобби или работы
Индивидуальный подход к проектированию позволяет создать комфортное и функциональное пространство, соответствующее всем требованиям жильцов.
Заключение этапа проектирования
Архитектурное проектирование частных домов — это сложный и многогранный процесс, который требует учета множества факторов. От правильного зонирования и выбора материалов до соблюдения норм безопасности — все это играет важную роль в создании безопасного и комфортного жилья. Каждый этап проектирования должен быть тщательно проработан, чтобы обеспечить долговечность и функциональность здания.
Мероприятия по обеспечению доступа инвалидов к объекту капитального строительства
Архитектурное проектирование частных домов с учетом потребностей инвалидов является важным аспектом современного строительства. Важно, чтобы каждый человек, независимо от физических возможностей, мог комфортно и безопасно пользоваться жилым пространством. Для этого необходимо учитывать ряд факторов, связанных с доступностью и удобством.
Одним из первых шагов в проектировании является анализ потребностей будущих жильцов. Это включает в себя:
- Определение типа инвалидности и связанных с ней ограничений.
- Изучение предпочтений жильцов в отношении планировки и функциональности помещений.
- Оценка необходимых технических средств и оборудования для обеспечения доступности.
Следующим этапом является разработка проектной документации, которая должна включать:
- Планировку помещений с учетом минимальных стандартов доступности.
- Указание на наличие безбарьерных входов и выходов.
- Проектирование санитарных узлов, которые должны быть адаптированы для использования людьми с ограниченными возможностями.
При проектировании частных домов необходимо учитывать доступность внешней среды. Это включает в себя:
- Создание удобных подходов к дому, включая пешеходные дорожки и парковочные места.
- Установку поручней и других вспомогательных средств для передвижения.
- Обеспечение освещения и видимости на подходах к дому.
Также важным аспектом является выбор материалов и технологий, которые будут использоваться в строительстве. Они должны быть:
- Безопасными и не скользкими.
- Легкими в уходе и обслуживании.
- Экологически чистыми и не вызывающими аллергии.
Не менее важным является учет технологий умного дома, которые могут значительно улучшить качество жизни инвалидов. Это может включать:
- Автоматизированные системы управления освещением и климатом.
- Системы безопасности, которые могут быть легко активированы.
- Умные устройства, помогающие в повседневных задачах.
В процессе проектирования также необходимо учитывать нормативные требования, которые регулируют доступность зданий для инвалидов. Это включает в себя:
- Соблюдение строительных норм и правил.
- Учет рекомендаций специализированных организаций.
- Проведение экспертиз и согласований на всех этапах проектирования.
Таким образом, архитектурное проектирование частных домов с учетом потребностей инвалидов требует комплексного подхода и внимательного отношения к деталям. Это не только улучшает качество жизни людей с ограниченными возможностями, но и способствует созданию более инклюзивного общества.
При проектировании частных домов для инвалидов также следует обратить внимание на планировку помещений. Она должна быть организована таким образом, чтобы обеспечить максимальную функциональность и удобство. Важно учитывать следующие аспекты:
- Ширина дверных проемов должна быть достаточной для проезда инвалидной коляски.
- Помещения должны быть свободны от лишних перегородок и мебели, чтобы обеспечить легкость передвижения.
- Расположение основных зон (кухня, ванная, спальня) должно быть логичным и удобным для доступа.
Кроме того, освещение играет ключевую роль в создании комфортной среды. Необходимо предусмотреть:
- Естественное освещение, которое должно быть максимально использовано в проекте.
- Искусственное освещение, которое должно быть равномерным и не создавать теней.
- Управление освещением, которое должно быть доступно для всех жильцов, включая возможность регулировки яркости.
Важным элементом является обустройство ванной комнаты. Она должна быть спроектирована с учетом следующих рекомендаций:
- Установка поручней и антискользящих покрытий.
- Доступность душевой кабины без порога или установка ванны с низким бортом.
- Регулируемая высота умывальника и унитаза для удобства использования.
Также стоит обратить внимание на кухонное пространство. Кухня должна быть спроектирована с учетом:
- Низких рабочих поверхностей, доступных для людей в колясках.
- Легкого доступа к бытовой технике и кухонным принадлежностям.
- Возможности использования кухни с минимальными физическими усилиями.
Не менее важным является обеспечение безопасности в доме. Это включает в себя:
- Установку сигнализаций и систем оповещения.
- Обеспечение наличия аварийных выходов и путей эвакуации.
- Использование материалов, которые не горят и не выделяют токсичных веществ.
В процессе проектирования также следует учитывать возможность адаптации пространства в будущем. Это может быть связано с изменением состояния здоровья жильцов или изменением их потребностей. Поэтому важно предусмотреть:
- Гибкость в планировке, позволяющую вносить изменения без значительных затрат.
- Возможность установки дополнительных вспомогательных средств.
- Создание пространства, которое можно легко переоборудовать.
Таким образом, архитектурное проектирование частных домов для инвалидов требует внимательного подхода к каждому аспекту. Это не только улучшает качество жизни людей с ограниченными возможностями, но и создает более комфортную и безопасную среду для всех жильцов. Важно помнить, что доступность — это не только физические барьеры, но и создание инклюзивной атмосферы, где каждый человек чувствует себя комфортно и защищенно.
Смета на строительство, реконструкцию, капитальный ремонт, снос объекта капитального строительства
Архитектурное проектирование частных домов – это сложный и многогранный процесс, который включает в себя множество этапов и аспектов. На начальном этапе важно определить основные требования и пожелания заказчика, а также учесть особенности участка, на котором будет возводиться дом. Это позволит создать проект, который будет не только эстетически привлекательным, но и функциональным, удобным для проживания.
Первым шагом в архитектурном проектировании является анализ участка. Специалисты должны оценить его размеры, форму, рельеф, а также наличие коммуникаций и инфраструктуры. Важно учитывать климатические условия региона, так как они могут существенно повлиять на выбор материалов и конструктивных решений. Например, в районах с холодным климатом необходимо предусмотреть хорошую теплоизоляцию, а в зонах с высокой влажностью – защиту от влаги.
Следующим этапом является разработка концепции дома. На этом этапе архитектор совместно с заказчиком определяет стиль, планировку и основные функциональные зоны. Важно учесть, сколько человек будет проживать в доме, какие у них потребности и предпочтения. Например, если в семье есть дети, стоит предусмотреть отдельные комнаты для них, а также игровые зоны. Если же заказчик планирует принимать гостей, необходимо продумать удобное размещение гостевых комнат.
После того как концепция будет утверждена, начинается разработка эскизного проекта. На этом этапе создаются чертежи, которые показывают общие пропорции и внешний вид здания. Эскизный проект включает в себя планы этажей, фасады, разрезы и другие необходимые элементы. Важно, чтобы на этом этапе заказчик мог внести свои коррективы и пожелания, так как изменения на более поздних стадиях могут потребовать значительных затрат.
Когда эскизный проект готов, переходим к разработке рабочей документации. Этот этап включает в себя создание детализированных чертежей, которые будут использоваться строителями. Рабочая документация должна содержать все необходимые сведения о материалах, конструкциях, инженерных системах и других аспектах строительства. Также на этом этапе разрабатываются сметы, которые помогут оценить стоимость строительства и планировать бюджет.
Не менее важным этапом является согласование проекта с различными инстанциями. В зависимости от региона, может потребоваться получение разрешений на строительство, согласование с архитектурными и градостроительными органами. Этот процесс может занять значительное время, поэтому важно заранее подготовить все необходимые документы и учесть требования местного законодательства.
После получения всех разрешений можно приступать к строительству. На этом этапе важно обеспечить контроль за качеством выполнения работ, соблюдением проектных решений и сроков. Архитектор может участвовать в процессе строительства, проводя регулярные проверки и консультируя строителей по возникающим вопросам. Это поможет избежать ошибок и недоразумений, которые могут привести к дополнительным затратам.
В процессе строительства также важно учитывать инженерные системы, такие как водоснабжение, канализация, отопление и электроснабжение. Эти системы должны быть спроектированы с учетом особенностей дома и потребностей его жителей. Например, для обеспечения комфортного проживания в доме необходимо предусмотреть эффективную систему отопления, а также качественную вентиляцию.
После завершения строительства наступает этап внутренней отделки. На этом этапе выбираются отделочные материалы, мебель и элементы декора. Важно, чтобы интерьер соответствовал общему стилю дома и создавал комфортную атмосферу для проживания. Заказчик может самостоятельно выбрать отделку или обратиться за помощью к дизайнеру интерьеров.
После завершения внутренней отделки наступает этап ландшафтного проектирования. Этот процесс включает в себя создание внешнего облика участка, который будет гармонично сочетаться с архитектурным стилем дома. Ландшафтный дизайнер разрабатывает план озеленения, размещения дорожек, зон для отдыха и других элементов, таких как беседки, пруды или фонтаны. Важно учитывать не только эстетические, но и функциональные аспекты, такие как освещение и дренаж.
На этапе ландшафтного проектирования также стоит обратить внимание на выбор растений. Они должны быть адаптированы к климатическим условиям региона и не требовать чрезмерного ухода. Правильный выбор растений поможет создать красивый и устойчивый к внешним воздействиям ландшафт. Кроме того, стоит предусмотреть автоматизированные системы полива, которые значительно упростят уход за садом.
После завершения всех строительных и отделочных работ, а также ландшафтного проектирования, наступает этап ввод в эксплуатацию. На этом этапе необходимо провести финальные проверки всех систем и убедиться, что дом соответствует проектным требованиям и нормам. Это включает в себя проверку работы инженерных систем, а также соответствие строительным стандартам. Важно, чтобы все документы были оформлены правильно, чтобы избежать проблем в будущем.
После успешного завершения всех проверок и получения необходимых разрешений, дом можно официально вводить в эксплуатацию. На этом этапе заказчик получает все документы, подтверждающие законность строительства, а также гарантии на выполненные работы и использованные материалы. Это важный момент, так как он обеспечивает защиту прав собственника и позволяет избежать возможных юридических проблем.
Не стоит забывать и о последующем обслуживании дома. После ввода в эксплуатацию важно регулярно проводить техническое обслуживание всех систем, чтобы обеспечить их надежную работу. Это включает в себя проверку и чистку систем отопления, вентиляции, кондиционирования, а также сантехнических и электрических систем. Регулярное обслуживание поможет избежать серьезных поломок и продлить срок службы всех систем.
Кроме того, стоит учитывать, что со временем могут возникнуть потребности в модернизации или изменении интерьера. Это может быть связано с изменением состава семьи, появлением новых технологий или просто с желанием обновить облик дома. Архитекторы и дизайнеры могут предложить различные решения для адаптации пространства под новые нужды, что позволит сохранить комфорт и функциональность жилья.
Таким образом, архитектурное проектирование частных домов – это комплексный процесс, который требует внимательного подхода на каждом этапе. От анализа участка и разработки концепции до ввода в эксплуатацию и последующего обслуживания – все эти этапы важны для создания качественного и комфортного жилья. Успех проекта зависит от взаимодействия всех участников процесса, включая заказчика, архитекторов, строителей и дизайнеров.
В заключение, стоит отметить, что архитектурное проектирование частных домов – это не только создание красивого здания, но и обеспечение его функциональности, безопасности и комфорта для будущих жильцов. Каждый проект уникален и требует индивидуального подхода, что делает работу архитекторов и дизайнеров особенно интересной и значимой.


















