Архитектурное проектирование цены
Архитектурное проектирование цены
В современном строительстве важным аспектом является архитектурное проектирование, которое требует соблюдения множества норм и правил. Одним из ключевых документов, регулирующих этот процесс, является 87 постановление правительства. В данной статье мы рассмотрим, как это постановление влияет на стоимость архитектурного проектирования и какие факторы необходимо учитывать при его оценке.
Статья будет содержать следующие разделы:
- Общие положения 87 постановления
- Влияние законодательства на стоимость проектирования
- Факторы, определяющие цены на архитектурные услуги
- Сравнение цен на проектирование в разных регионах
- Рекомендации по выбору архитектурной компании
Мы надеемся, что данная информация будет полезна как профессионалам в области строительства, так и тем, кто только начинает знакомиться с вопросами архитектурного проектирования.
Согласно 87 ПП (87 постановление правительства)
Архитектурное проектирование является важной частью строительной отрасли, и его стоимость может варьироваться в зависимости от множества факторов. В соответствии с 87 постановлением правительства, определяются основные принципы и правила, касающиеся ценообразования в этой сфере. Это постановление направлено на упрощение и стандартизацию процессов, связанных с проектированием, а также на обеспечение прозрачности в расчетах.
Одним из ключевых аспектов, рассматриваемых в 87 ПП, является методология расчета стоимости архитектурных услуг. В документе прописаны основные параметры, которые влияют на формирование цен, такие как:
- Сложность проекта: Чем сложнее проект, тем выше его стоимость. Это связано с необходимостью привлечения более квалифицированных специалистов и использования специализированного программного обеспечения.
- Объем работ: Объем проектируемых объектов также влияет на цену. Большие проекты требуют больше времени и ресурсов для разработки.
- Сроки выполнения: Ускоренные сроки могут привести к увеличению стоимости, так как компании могут привлекать дополнительные ресурсы для выполнения задач в сжатые сроки.
- Локация: Географическое положение объекта также играет роль в ценообразовании. В некоторых регионах стоимость услуг может быть выше из-за специфики местного рынка.
Кроме того, 87 ПП устанавливает нормативы и стандарты, которые должны соблюдаться при проектировании. Это включает в себя требования к качеству проектной документации, а также к соблюдению норм безопасности и экологии. Все эти факторы в совокупности влияют на конечную стоимость архитектурных услуг.
Важным моментом является то, что 87 ПП также регулирует порядок заключения договоров на проектирование. В соответствии с постановлением, все контракты должны быть оформлены в письменной форме и содержать четкие условия, касающиеся стоимости, сроков и объема работ. Это позволяет избежать недоразумений и споров между заказчиками и исполнителями.
В рамках 87 ПП также предусмотрены механизмы контроля за соблюдением установленных норм и стандартов. Это включает в себя как внутренние проверки со стороны проектных организаций, так и внешние проверки со стороны государственных органов. Такой контроль необходим для обеспечения качества проектирования и соблюдения всех требований законодательства.
Таким образом, 87 ПП играет ключевую роль в формировании цен на архитектурное проектирование, устанавливая четкие правила и нормы, которые должны соблюдаться всеми участниками процесса. Это позволяет не только упорядочить рынок, но и повысить качество предоставляемых услуг, что в конечном итоге сказывается на удовлетворенности клиентов и успешности реализуемых проектов.
Важным аспектом, который также затрагивается в 87 ПП, является разделение архитектурных услуг на категории. Это деление позволяет более точно определить стоимость услуг в зависимости от их сложности и специфики. Например, услуги по проектированию жилых зданий могут иметь одну ценовую категорию, в то время как проектирование коммерческих объектов или общественных зданий может относиться к другой, более высокой категории.
Кроме того, в постановлении прописаны рекомендации по формированию ценовых предложений. Архитектурные компании должны учитывать не только свои внутренние затраты, но и рыночные условия, а также уровень конкуренции. Это позволяет им оставаться конкурентоспособными и предлагать клиентам адекватные цены на свои услуги.
Также стоит отметить, что 87 ПП вводит принципы прозрачности в ценообразование. Все расценки должны быть четко прописаны и доступны для ознакомления клиентам. Это позволяет избежать скрытых платежей и недоразумений, что, в свою очередь, повышает доверие между заказчиками и исполнителями.
Важным элементом является обратная связь от клиентов. В соответствии с 87 ПП, архитектурные компании обязаны учитывать мнения и пожелания заказчиков при формировании ценовых предложений. Это может включать в себя как индивидуальные консультации, так и опросы удовлетворенности, что позволяет улучшать качество услуг и адаптировать их под потребности рынка.
Кроме того, 87 ПП акцентирует внимание на инновационных подходах в архитектурном проектировании. В условиях быстро меняющегося рынка и технологических изменений, компании должны быть готовы внедрять новые методы и технологии, что также может влиять на стоимость услуг. Например, использование современных программных решений для проектирования может сократить время на разработку и, соответственно, снизить стоимость для клиента.
Не менее важным является обучение и повышение квалификации специалистов в области архитектурного проектирования. 87 ПП подчеркивает необходимость постоянного обучения сотрудников, что позволяет им быть в курсе последних тенденций и технологий. Это, в свою очередь, способствует повышению качества проектирования и, как следствие, может положительно сказаться на ценообразовании.
В заключение, 87 ПП представляет собой важный инструмент для упорядочивания процесса ценообразования в архитектурном проектировании. Установленные в нем нормы и правила помогают создать более прозрачный и конкурентоспособный рынок, что в конечном итоге приводит к повышению качества услуг и удовлетворенности клиентов. Следуя рекомендациям и требованиям данного постановления, архитектурные компании могут не только оптимизировать свои процессы, но и укрепить свои позиции на рынке.
Пояснительная записка
Архитектурное проектирование является сложным и многогранным процессом, который включает в себя не только творческий подход, но и тщательное планирование, анализ и оценку различных факторов. Одним из ключевых аспектов этого процесса является формирование цен на архитектурные услуги. В данной записке мы рассмотрим основные факторы, влияющие на стоимость архитектурного проектирования, а также методы оценки и формирования цен.
Первым шагом в понимании ценовой политики в архитектурном проектировании является анализ факторов, которые влияют на стоимость услуг. К ним относятся:
- Сложность проекта: Чем более сложным и уникальным является проект, тем выше будет его стоимость. Это связано с необходимостью привлечения высококвалифицированных специалистов и использования специализированного программного обеспечения.
- Объем работ: Объем проектных работ также напрямую влияет на цену. Большие проекты требуют больше времени и ресурсов, что увеличивает общую стоимость.
- Географическое расположение: Цены на архитектурные услуги могут варьироваться в зависимости от региона. В крупных городах, где конкуренция выше, стоимость может быть ниже, чем в отдаленных районах.
- Сроки выполнения: Срочные проекты, требующие быстрого выполнения, могут обойтись дороже из-за необходимости переработки графиков и привлечения дополнительных ресурсов.
- Квалификация специалистов: Услуги опытных архитекторов и проектировщиков стоят дороже, но они могут обеспечить более высокое качество и эффективность работы.
Следующим важным аспектом является методология оценки стоимости архитектурных услуг. Существует несколько подходов, которые могут быть использованы для определения цены:
- Почасовая оплата: В этом случае стоимость услуг рассчитывается на основе количества часов, затраченных на проект. Этот метод часто используется для небольших и средних проектов.
- Фиксированная цена: При этом подходе стоимость проекта устанавливается заранее и не изменяется в процессе работы. Это может быть выгодно для клиентов, которые хотят избежать неожиданных расходов.
- Процент от стоимости строительства: В некоторых случаях архитекторы берут процент от общей стоимости строительства, что может быть оправдано для крупных и сложных проектов.
Кроме того, важно учитывать дополнительные расходы, которые могут возникнуть в процессе проектирования. К ним относятся:
- Расходы на исследования: Это могут быть затраты на геодезические, геологические и экологические исследования, которые необходимы для разработки проекта.
- Лицензии и разрешения: Получение необходимых разрешений и лицензий также может повлечь за собой дополнительные расходы.
- Координация с другими специалистами: Взаимодействие с инженерами, дизайнерами интерьеров и другими специалистами может потребовать дополнительных затрат.
Таким образом, формирование цен на архитектурное проектирование является сложным процессом, который требует учета множества факторов. Понимание этих аспектов поможет как архитекторам, так и клиентам более эффективно планировать и управлять проектами, а также достигать оптимального соотношения цены и качества.
Важным аспектом, который также следует учитывать при формировании цен на архитектурное проектирование, является конкуренция на рынке. Разные архитектурные бюро могут предлагать различные ценовые модели и уровни качества, что создает разнообразие в ценах. Клиенты часто сравнивают предложения нескольких компаний, что может влиять на конечную стоимость услуг.
Кроме того, тренды и инновации в архитектуре также могут оказывать влияние на ценообразование. Например, использование новых технологий, таких как 3D-моделирование и виртуальная реальность, может повысить стоимость проектирования, но в то же время улучшить качество и точность работы. Архитекторы, которые внедряют современные технологии, могут устанавливать более высокие расценки, так как их услуги становятся более востребованными.
Не менее важным является обратная связь от клиентов. Архитекторы, которые активно работают над улучшением качества своих услуг и учитывают пожелания клиентов, могут устанавливать более высокие цены, так как их репутация и уровень удовлетворенности клиентов способствуют привлечению новых заказчиков. Положительные отзывы и рекомендации могут значительно повысить конкурентоспособность компании.
Также стоит отметить, что экономическая ситуация в стране и мире может оказывать значительное влияние на стоимость архитектурных услуг. В периоды экономического роста спрос на строительство и, соответственно, на архитектурные услуги может увеличиваться, что может привести к повышению цен. В то же время в условиях экономической нестабильности архитекторы могут быть вынуждены снижать цены, чтобы оставаться конкурентоспособными.
При формировании цен также важно учитывать долгосрочные отношения с клиентами. Архитекторы, которые стремятся к установлению партнерских отношений с клиентами, могут предлагать скидки или специальные условия для постоянных заказчиков. Это не только способствует удержанию клиентов, но и создает положительный имидж компании на рынке.
В заключение, формирование цен на архитектурное проектирование — это многогранный процесс, который требует учета различных факторов, таких как сложность проекта, объем работ, квалификация специалистов и рыночные условия. Понимание этих аспектов поможет как архитекторам, так и клиентам более эффективно взаимодействовать и достигать взаимовыгодных условий.
Схема планировочной организации земельного участка
Архитектурное проектирование является важным этапом в процессе создания любого строительного объекта. Оно включает в себя не только разработку внешнего вида здания, но и его функциональности, удобства, а также соответствия современным требованиям и нормам. Важным аспектом архитектурного проектирования являются цены, которые могут варьироваться в зависимости от множества факторов.
Одним из ключевых факторов, влияющих на стоимость архитектурного проектирования, является сложность проекта. Чем более сложным и уникальным является проект, тем выше будут затраты на его разработку. Например, проектирование многофункционального комплекса с уникальными архитектурными решениями потребует больше времени и ресурсов, чем проектирование стандартного жилого дома.
Другим важным аспектом является размер земельного участка. Большие участки требуют более детального планирования и проектирования, что также увеличивает стоимость. Кроме того, необходимо учитывать особенности участка, такие как рельеф, наличие коммуникаций и другие факторы, которые могут повлиять на проект.
Также стоит отметить, что местоположение земельного участка играет значительную роль в формировании цен на архитектурное проектирование. В крупных городах, где конкуренция среди архитекторов и проектировщиков выше, цены могут быть значительно выше, чем в небольших населенных пунктах. Это связано с повышенным спросом на качественные архитектурные услуги и более высокими затратами на жизнь в таких регионах.
Не менее важным фактором является опыт и репутация архитектурного бюро. Услуги известных и опытных архитекторов стоят дороже, но они могут предложить более качественные решения и гарантировать успешное выполнение проекта. В то же время, начинающие специалисты могут предложить более низкие цены, но их опыт может быть ограничен.
При планировании бюджета на архитектурное проектирование также следует учитывать дополнительные расходы, такие как затраты на получение разрешений, согласования с различными инстанциями, а также возможные изменения в проекте в процессе его реализации. Эти факторы могут значительно увеличить общую стоимость проекта.
Важным аспектом является также выбор стиля и материалов, которые будут использоваться в проекте. Разные стили требуют различных подходов и технологий, что также влияет на стоимость. Например, использование экологически чистых материалов или современных технологий может увеличить затраты, но в то же время повысить ценность объекта в будущем.
Таким образом, стоимость архитектурного проектирования зависит от множества факторов, и для получения точной оценки необходимо учитывать все аспекты, связанные с конкретным проектом. Важно заранее проанализировать все возможные расходы и выбрать оптимальное решение, которое будет соответствовать как требованиям заказчика, так и его бюджету.
При выборе архитектурного бюро также стоит обратить внимание на методы работы и подходы к проектированию. Некоторые компании могут предлагать фиксированные расценки на услуги, в то время как другие работают по почасовой оплате. Фиксированные расценки могут быть более выгодными для заказчика, так как позволяют заранее оценить бюджет, однако в случае изменения требований проекта могут возникнуть дополнительные расходы.
Кроме того, технологические инновации также влияют на стоимость архитектурного проектирования. Использование современных программных решений, таких как BIM (Building Information Modeling), позволяет значительно сократить время на проектирование и повысить точность. Однако внедрение таких технологий требует дополнительных инвестиций, что может отразиться на конечной стоимости услуг.
Необходимо также учитывать сроки выполнения проекта. Если заказчику требуется срочное выполнение, это может привести к увеличению стоимости. Архитекторы могут быть вынуждены привлекать дополнительные ресурсы или работать в ускоренном режиме, что также отразится на цене. Поэтому важно заранее обсудить сроки и их влияние на бюджет.
Важным аспектом является консультация с заказчиком. На начальном этапе проектирования необходимо четко определить требования и пожелания клиента. Это поможет избежать недоразумений и дополнительных затрат в будущем. Регулярные встречи и обсуждения помогут поддерживать связь и контролировать процесс проектирования.
Также стоит учитывать постоянные изменения в законодательстве, касающемся строительства и проектирования. Новые нормы и правила могут потребовать дополнительных доработок проекта, что также может повлиять на стоимость. Поэтому важно следить за актуальными изменениями и вовремя вносить коррективы в проект.
В заключение, стоимость архитектурного проектирования является многогранной и зависит от множества факторов. Заказчику важно заранее проанализировать все аспекты, чтобы избежать неожиданных расходов и получить качественный проект, соответствующий его ожиданиям. Правильный выбор архитектурного бюро, четкое определение требований и учет всех возможных затрат помогут достичь успешного результата.
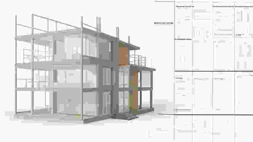
Объемно-планировочные и архитектурные решения
Архитектурное проектирование является важным этапом в создании любого здания или сооружения. Оно включает в себя не только разработку внешнего облика, но и функциональное распределение пространства, что в свою очередь влияет на стоимость проекта. В данной статье мы рассмотрим основные аспекты, касающиеся цен на архитектурное проектирование, а также факторы, которые на них влияют.
Факторы, влияющие на стоимость архитектурного проектирования
- Сложность проекта: Чем сложнее проект, тем выше его стоимость. Это связано с необходимостью привлечения специалистов для решения нестандартных задач.
- Размер объекта: Большие здания требуют больше времени и ресурсов на проектирование, что также увеличивает стоимость.
- Местоположение: Цены на услуги архитекторов могут варьироваться в зависимости от региона. В крупных городах стоимость может быть значительно выше.
- Тип здания: Жилые, коммерческие и промышленные здания имеют разные требования и стандарты, что также влияет на цену.
- Используемые материалы: Выбор материалов для строительства может существенно повлиять на общую стоимость проектирования.
Этапы архитектурного проектирования
- Предварительное проектирование: На этом этапе происходит сбор информации о требованиях заказчика, анализ участка и разработка концепции. Стоимость на этом этапе может варьироваться в зависимости от сложности задач.
- Эскизное проектирование: Создание эскизов и предварительных чертежей. Этот этап также требует значительных затрат времени и ресурсов.
- Рабочее проектирование: Разработка детализированных чертежей и спецификаций. На этом этапе стоимость значительно возрастает из-за необходимости точного расчета всех элементов.
- Согласование и экспертиза: Проект должен пройти согласование в различных инстанциях, что также может повлиять на общую стоимость.
Ценовые категории услуг архитекторов
- Часовая оплата: Некоторые архитекторы работают по почасовой ставке, что может быть выгодно для небольших проектов.
- Фиксированная стоимость: Для крупных проектов часто устанавливается фиксированная цена, что позволяет избежать неожиданных расходов.
- Процент от стоимости строительства: В некоторых случаях архитекторы берут процент от общей стоимости строительства, что может быть выгодно для обеих сторон.
Таким образом, стоимость архитектурного проектирования зависит от множества факторов, и понимание этих аспектов поможет заказчикам более эффективно планировать свои бюджеты и выбирать подходящих специалистов для реализации своих идей.
Рынок архитектурных услуг
Рынок архитектурных услуг в последние годы претерпел значительные изменения. С увеличением конкуренции и развитием технологий, архитекторы стали предлагать более разнообразные и гибкие условия для своих клиентов. Это, в свою очередь, повлияло на ценообразование и доступность услуг.
Тенденции в ценообразовании
- Использование технологий: Внедрение программного обеспечения для проектирования, таких как BIM (Building Information Modeling), позволяет архитекторам более эффективно управлять проектами и снижать затраты. Это может привести к снижению цен на услуги.
- Устойчивое проектирование: С увеличением интереса к экологии и устойчивому развитию, архитекторы начинают предлагать решения, которые учитывают экологические аспекты. Это может увеличить стоимость проектирования, но в долгосрочной перспективе сэкономить средства на эксплуатации.
- Гибкость в подходах: Архитекторы все чаще предлагают клиентам различные пакеты услуг, что позволяет выбрать оптимальный вариант в зависимости от бюджета и потребностей.
Сравнение цен на услуги архитекторов
При выборе архитектора важно сравнивать не только цены, но и качество услуг. Рекомендуется учитывать следующие аспекты:
- Портфолио работ: Изучение предыдущих проектов архитектора поможет оценить его стиль и качество работы.
- Отзывы клиентов: Отзывы и рекомендации могут дать представление о профессионализме и надежности архитектора.
- Сравнение предложений: Запрос нескольких коммерческих предложений позволит выбрать наиболее подходящий вариант по цене и условиям.
Заключение контракта
После выбора архитектора важно правильно оформить контракт. В контракте должны быть четко прописаны:
- Объем работ: Уточните, какие услуги будут предоставлены и в какие сроки.
- Стоимость услуг: Убедитесь, что цена фиксирована или четко прописаны условия изменения стоимости.
- Условия оплаты: Определите, как и когда будет производиться оплата за услуги.
Правильное оформление контракта поможет избежать недоразумений и защитит интересы обеих сторон.
Перспективы развития архитектурного проектирования
С учетом текущих тенденций, можно ожидать, что в будущем архитектурное проектирование станет еще более доступным и разнообразным. Развитие технологий, таких как виртуальная реальность и искусственный интеллект, откроет новые горизонты для архитекторов и их клиентов. Это позволит создавать более инновационные и эффективные решения, что, в свою очередь, может повлиять на ценообразование в этой сфере.
Конструктивные решения
Архитектурное проектирование является сложным и многогранным процессом, который включает в себя множество аспектов, от концептуального дизайна до детальной проработки конструктивных решений. Одним из ключевых факторов, влияющих на успешность проектирования, является цена. В этом разделе мы рассмотрим различные конструктивные решения, которые могут существенно повлиять на стоимость архитектурного проекта.
1. Выбор материалов
Материалы, используемые в строительстве, играют важную роль в формировании конечной стоимости проекта. Разные материалы имеют различные ценовые категории, и их выбор может значительно повлиять на бюджет. Например:
- Дерево: Экологически чистый и эстетически привлекательный материал, но может быть дороже в зависимости от породы.
- Бетон: Широко используемый материал, который может быть как экономичным, так и дорогим в зависимости от его качества и технологии производства.
- Металл: Прочный и долговечный, но его стоимость может варьироваться в зависимости от рыночных условий.
При выборе материалов важно учитывать не только их стоимость, но и долговечность, устойчивость к внешним воздействиям и требования к обслуживанию.
2. Конструктивные системы
Конструктивные системы определяют, как будет организовано пространство и как будут распределены нагрузки. Разные системы могут иметь разные затраты на проектирование и строительство:
- Каркасные системы: Позволяют создавать легкие и гибкие конструкции, но могут требовать дополнительных затрат на усиление.
- Монолитные конструкции: Обеспечивают высокую прочность и устойчивость, но могут быть более дорогими из-за затрат на формы и армирование.
- Сборные конструкции: Могут сократить время строительства, но требуют тщательного проектирования и логистики.
Выбор конструктивной системы должен основываться на анализе требований проекта, а также на оценке затрат и сроков строительства.
3. Энергоэффективность
Современные архитектурные проекты все чаще ориентируются на энергоэффективность. Внедрение энергосберегающих технологий может потребовать дополнительных инвестиций на этапе проектирования, но в долгосрочной перспективе это может привести к значительной экономии:
- Изоляция: Качественная теплоизоляция может снизить затраты на отопление и кондиционирование.
- Солнечные панели: Хотя их установка требует первоначальных затрат, они могут значительно сократить расходы на электроэнергию.
- Энергоэффективные окна: Способствуют снижению теплопотерь и повышению комфорта.
Таким образом, инвестиции в энергоэффективные решения могут окупиться за счет снижения эксплуатационных расходов.
4. Проектирование и планирование
Качественное проектирование и тщательное планирование могут существенно снизить затраты на строительство. На этом этапе важно учитывать:
- Оптимизация пространства: Эффективное использование площади может снизить затраты на материалы и строительство.
- Снижение количества изменений: Чем меньше изменений в проекте, тем ниже затраты на переработку и дополнительные материалы.
- Согласование с подрядчиками: Взаимодействие с подрядчиками на этапе проектирования может помочь избежать недоразумений и дополнительных затрат.
Эти аспекты помогут не только сократить затраты, но и улучшить качество конечного продукта.
5. Логистика и транспортировка
Логистика и транспортировка материалов и конструкций также могут существенно повлиять на стоимость проекта. Важно учитывать:
- Местоположение: Близость к поставщикам может снизить транспортные расходы.
- Склад
6. Устойчивость к внешним факторам
При проектировании зданий необходимо учитывать устойчивость конструкций к различным внешним факторам, таким как сейсмическая активность, ветер, снеговые нагрузки и другие климатические условия. Это может повлиять на выбор конструктивных решений и, соответственно, на стоимость проекта:
- Сейсмостойкие конструкции: В регионах с высокой сейсмической активностью требуется использование специальных технологий и материалов, что может увеличить затраты на проектирование и строительство.
- Устойчивость к ветровым нагрузкам: Проектирование зданий с учетом ветровых нагрузок может потребовать дополнительных расчетов и усилений, что также отразится на стоимости.
- Снеговые нагрузки: В районах с большим количеством снега необходимо учитывать дополнительные нагрузки на крышу, что может потребовать более прочных конструкций.
Таким образом, учет внешних факторов на этапе проектирования позволяет избежать дополнительных затрат на доработки и укрепления в будущем.
7. Инновационные технологии
Современные технологии, такие как 3D-печать, модульное строительство и использование BIM (Building Information Modeling), могут значительно изменить подход к архитектурному проектированию и снизить затраты:
- 3D-печать: Позволяет создавать сложные конструкции с минимальными затратами на материалы и время.
- Модульное строительство: Сокращает время на строительство и позволяет оптимизировать логистику, что может снизить общие затраты.
- BIM: Использование информационного моделирования зданий позволяет более точно планировать проект, выявлять потенциальные проблемы на ранних стадиях и минимизировать изменения.
Инновационные технологии могут потребовать первоначальных инвестиций, но в долгосрочной перспективе они способны существенно сократить затраты и повысить качество строительства.
8. Учет местных норм и стандартов
Каждый регион имеет свои строительные нормы и правила, которые необходимо учитывать при проектировании. Невыполнение этих норм может привести к штрафам и необходимости переделки проекта, что увеличивает затраты:
- Соблюдение норм безопасности: Проектирование должно соответствовать требованиям безопасности, что может потребовать дополнительных затрат на материалы и технологии.
- Экологические нормы: Учет экологических требований может потребовать использования специальных материалов и технологий, что также отразится на стоимости.
- Лицензирование и разрешения: Процесс получения разрешений может быть длительным и затратным, поэтому важно заранее учитывать эти аспекты в бюджете.
Соблюдение местных норм и стандартов не только помогает избежать дополнительных затрат, но и обеспечивает безопасность и устойчивость зданий.
9. Участие специалистов
Привлечение опытных специалистов на этапе проектирования может существенно повлиять на конечную стоимость проекта. Квалифицированные архитекторы и инженеры способны предложить оптимальные решения, которые помогут сократить затраты:
- Консультации: Специалисты могут дать рекомендации по выбору материалов и конструктивных решений, что поможет избежать ошибок и перерасхода.
- Оптимизация проектирования: Профессионалы могут предложить более эффективные решения, которые снизят затраты на строительство и эксплуатацию.
- Контроль качества: Привлечение специалистов на этапе строительства позволяет обеспечить высокое качество работ и избежать дополнительных затрат на переделки.
Таким образом, участие квалифицированных специалистов на всех этапах проектирования и строительства может значительно снизить риски и затраты.
10. Заключение
В заключение, конструктивные решения в архитектурном проектировании играют ключевую роль в формировании стоимости проекта. Учет всех вышеперечисленных факторов позволяет не только оптимизировать затраты, но и повысить качество и долговечность зданий. Важно подходить к проект
ирования с комплексным пониманием всех аспектов, влияющих на стоимость, и стремиться к созданию эффективных и устойчивых решений.
11. Влияние рыночной ситуации
Рынок строительных материалов и услуг подвержен колебаниям, которые могут существенно повлиять на стоимость архитектурного проектирования. Важно учитывать:
- Цены на материалы: Изменения в ценах на сырье могут привести к увеличению или снижению общих затрат на проект. Например, рост цен на сталь или бетон может значительно увеличить бюджет.
- Конкуренция среди подрядчиков: В условиях высокой конкуренции подрядчики могут предлагать более выгодные условия, что может снизить стоимость строительства.
- Экономическая ситуация: Влияние экономических факторов, таких как инфляция или экономический кризис, может отразиться на ценах на услуги и материалы.
Анализ рыночной ситуации и прогнозирование цен помогут архитекторам и заказчикам принимать более обоснованные решения при планировании бюджета.
12. Учет сроков реализации
Сроки реализации проекта также могут влиять на его стоимость. Чем быстрее необходимо завершить проект, тем выше могут быть затраты:
- Ускоренные сроки: При необходимости срочного завершения могут потребоваться дополнительные ресурсы, такие как увеличение числа рабочих или использование более дорогих технологий.
- Планирование этапов: Четкое планирование и распределение задач могут помочь избежать задержек и дополнительных затрат.
- Гибкость в сроках: Если есть возможность немного растянуть сроки, это может позволить сэкономить на некоторых аспектах, таких как выбор более экономичных материалов.
Учет сроков реализации и их влияние на бюджет поможет избежать неожиданных расходов и повысить эффективность проекта.
13. Устойчивое проектирование
С учетом современных тенденций устойчивого развития, архитекторы все чаще обращаются к принципам устойчивого проектирования. Это может включать:
- Использование переработанных материалов: Это может снизить затраты на сырье и уменьшить воздействие на окружающую среду.
- Проектирование с учетом жизненного цикла: Оценка затрат на эксплуатацию и утилизацию зданий может помочь в выборе более экономичных решений.
- Зеленые технологии: Внедрение технологий, таких как системы сбора дождевой воды или зеленые крыши, может потребовать первоначальных инвестиций, но в долгосрочной перспективе снизит эксплуатационные расходы.
Устойчивое проектирование не только отвечает современным требованиям, но и может привести к значительной экономии в будущем.
14. Заключение
В процессе архитектурного проектирования цена является важным аспектом, который требует внимательного анализа и учета множества факторов. Конструктивные решения, выбор материалов, технологии, рыночная ситуация и устойчивое проектирование — все это влияет на конечную стоимость проекта. Комплексный подход к проектированию, основанный на учете всех этих факторов, позволит создать качественные и экономически эффективные здания, соответствующие современным требованиям и ожиданиям заказчиков.
Системы электроснабжения
Архитектурное проектирование систем электроснабжения является важным этапом в создании эффективной и безопасной инфраструктуры. В этом процессе необходимо учитывать множество факторов, включая требования к мощности, распределению нагрузки и экономическим аспектам. Одним из ключевых вопросов, который возникает на этапе проектирования, является стоимость реализации систем электроснабжения.
Факторы, влияющие на стоимость проектирования
- Тип системы электроснабжения: различия в стоимости могут быть значительными в зависимости от того, используется ли система постоянного или переменного тока.
- Мощность и масштаб проекта: чем больше мощность и сложнее система, тем выше затраты на проектирование и установку.
- Выбор оборудования: стоимость трансформаторов, распределительных устройств и других компонентов может варьироваться в зависимости от производителя и характеристик.
- Требования к безопасности: соблюдение норм и стандартов безопасности может потребовать дополнительных затрат на проектирование и установку.
- Локация: стоимость работ может изменяться в зависимости от географического положения и доступности ресурсов.
Этапы проектирования систем электроснабжения
Процесс проектирования систем электроснабжения можно разделить на несколько ключевых этапов:
- Предварительное исследование: на этом этапе проводятся анализ потребностей, оценка существующих систем и определение основных требований к проекту.
- Разработка концепции: создание предварительных схем и выбор оптимальных решений для системы электроснабжения.
- Техническое проектирование: детальная проработка всех компонентов системы, включая выбор оборудования и расчет нагрузок.
- Согласование и утверждение: получение необходимых разрешений и согласований от регулирующих органов.
- Реализация проекта: установка и наладка системы, а также проведение тестирования.
Оценка стоимости проектирования
Оценка стоимости проектирования систем электроснабжения включает в себя несколько ключевых аспектов:
- Калькуляция затрат: необходимо учитывать все возможные расходы, включая проектные работы, закупку оборудования и монтаж.
- Сравнительный анализ: полезно сравнить стоимость различных решений и технологий, чтобы выбрать наиболее экономически эффективные варианты.
- Резервирование бюджета: важно предусмотреть резерв на непредвиденные расходы, которые могут возникнуть в процессе реализации проекта.
Таким образом, архитектурное проектирование систем электроснабжения требует комплексного подхода и тщательной оценки всех факторов, влияющих на стоимость. Важно учитывать как технические, так и экономические аспекты, чтобы обеспечить успешную реализацию проекта.
Методы снижения затрат на проектирование
Существует несколько методов, которые могут помочь снизить затраты на проектирование систем электроснабжения:
- Оптимизация проектных решений: использование современных технологий и программного обеспечения для моделирования может значительно сократить время и затраты на проектирование.
- Стандартизация компонентов: применение стандартных решений и компонентов может снизить стоимость закупок и упростить процесс проектирования.
- Эффективное управление проектом: грамотное планирование и управление ресурсами позволяют избежать перерасходов и задержек.
- Использование альтернативных источников энергии: интеграция возобновляемых источников энергии может снизить эксплуатационные расходы и повысить устойчивость системы.
Тенденции в проектировании систем электроснабжения
Современные технологии и изменения в законодательстве влияют на проектирование систем электроснабжения. К основным тенденциям можно отнести:
- Умные сети: внедрение технологий «умных» сетей позволяет оптимизировать распределение электроэнергии и повысить надежность систем.
- Автоматизация процессов: автоматизация управления системами электроснабжения снижает затраты на обслуживание и повышает эффективность.
- Интеграция IoT: использование Интернета вещей для мониторинга и управления системами позволяет оперативно реагировать на изменения и предотвращать аварии.
- Экологические стандарты: соблюдение экологических норм и стандартов становится важным аспектом проектирования, что может повлиять на выбор технологий и материалов.
Заключение по разделу
Архитектурное проектирование систем электроснабжения требует комплексного подхода, учитывающего как технические, так и экономические аспекты. Снижение затрат возможно за счет оптимизации проектных решений, стандартизации компонентов и эффективного управления проектом. Внедрение современных технологий и соблюдение экологических норм также играют важную роль в успешной реализации проектов. Важно помнить, что качественное проектирование систем электроснабжения не только снижает затраты, но и обеспечивает надежность и безопасность электроснабжения в будущем.
системы водоснабжения
Архитектурное проектирование систем водоснабжения является важным этапом в создании комфортной и функциональной городской инфраструктуры. В процессе проектирования необходимо учитывать множество факторов, включая технические требования, экологические нормы и, конечно же, финансовые аспекты. Цены на архитектурное проектирование систем водоснабжения могут варьироваться в зависимости от различных факторов, таких как сложность проекта, его масштаб, местоположение и требования заказчика.
Одним из ключевых факторов, влияющих на стоимость проектирования, является сложность системы водоснабжения. Простые системы, состоящие из минимального количества элементов, могут быть спроектированы за относительно небольшую сумму. Однако, если проект включает в себя сложные инженерные решения, такие как многоуровневые насосные станции, системы очистки воды или автоматизированные системы управления, стоимость проектирования значительно возрастает.
Также важным аспектом является масштаб проекта. Проектирование водоснабжения для небольшого жилого дома будет стоить значительно меньше, чем проектирование для крупного жилого комплекса или промышленного предприятия. В крупных проектах необходимо учитывать не только саму систему водоснабжения, но и ее интеграцию с другими инженерными системами, такими как канализация, отопление и электроснабжение.
Местоположение проекта также играет важную роль в формировании цен. В регионах с развитой инфраструктурой и большим количеством специалистов стоимость проектирования может быть ниже, чем в удаленных или сельских районах, где доступ к ресурсам и квалифицированным кадрам ограничен. Кроме того, в зависимости от региона могут действовать различные нормы и правила, что также может повлиять на стоимость.
Не менее важным фактором является требования заказчика. Заказчики могут иметь различные пожелания относительно дизайна, функциональности и устойчивости системы водоснабжения. Если заказчик требует уникальные решения или нестандартные материалы, это также может увеличить стоимость проектирования. Важно, чтобы архитекторы и инженеры работали в тесном сотрудничестве с заказчиком, чтобы понять его потребности и предложить оптимальные решения.
В процессе проектирования также необходимо учитывать экологические аспекты. Современные требования к охране окружающей среды требуют от проектировщиков разработки систем, которые минимизируют негативное воздействие на природу. Это может включать в себя использование экологически чистых материалов, систем повторного использования воды и технологий, снижающих потребление ресурсов. Такие решения могут потребовать дополнительных затрат на проектирование, но в долгосрочной перспективе они могут привести к экономии средств на эксплуатацию.
В заключение, стоимость архитектурного проектирования систем водоснабжения зависит от множества факторов, включая сложность и масштаб проекта, местоположение, требования заказчика и экологические аспекты. Каждый проект уникален, и для определения точной стоимости необходимо проводить детальный анализ всех этих факторов.
При оценке стоимости проектирования систем водоснабжения также следует учитывать конкуренцию на рынке. В регионах с большим количеством проектных организаций и специалистов цены могут быть более конкурентоспособными. Заказчики могут выбирать между различными предложениями, что позволяет им находить оптимальные решения по соотношению цена-качество. Однако в условиях низкой конкуренции стоимость услуг может быть значительно выше, что требует от заказчиков более тщательного выбора исполнителей.
Кроме того, опыт и репутация проектировщика также влияют на стоимость. Компании с большим опытом и положительными отзывами могут устанавливать более высокие расценки на свои услуги, так как они предлагают гарантии качества и надежности. Заказчики, как правило, готовы платить больше за уверенность в том, что проект будет выполнен на высоком уровне и в срок.
Необходимо также учитывать сроки выполнения проекта. Если заказчику требуется срочное проектирование, это может привести к увеличению стоимости. Проектировщики могут взимать дополнительные сборы за ускоренное выполнение работ, так как это требует перераспределения ресурсов и увеличения рабочей нагрузки. Важно заранее обсудить сроки и возможные дополнительные расходы с проектировщиком, чтобы избежать недоразумений.
В процессе проектирования систем водоснабжения также может возникнуть необходимость в дополнительных услугах, таких как геодезические исследования, анализ почвы или экологические экспертизы. Эти услуги могут значительно увеличить общую стоимость проекта, поэтому их следует учитывать на этапе планирования. Заказчики должны быть готовы к тому, что дополнительные исследования могут быть необходимы для обеспечения безопасности и эффективности системы.
Важным аспектом является финансирование проекта. Заказчики должны заранее определить бюджет, который они готовы выделить на проектирование систем водоснабжения. Это поможет избежать перерасхода средств и позволит проектировщикам предложить решения, соответствующие финансовым возможностям заказчика. В некоторых случаях возможно привлечение инвестиций или субсидий, что может снизить финансовую нагрузку на заказчика.
Также стоит отметить, что технологические инновации могут влиять на стоимость проектирования. Современные технологии, такие как автоматизация процессов, использование программного обеспечения для моделирования и анализа, могут как увеличить стоимость проектирования, так и снизить затраты на эксплуатацию системы в будущем. Инвестирование в новые технологии может быть оправданным шагом, если они обеспечивают более высокую эффективность и надежность систем водоснабжения.
В заключение, стоимость архитектурного проектирования систем водоснабжения является многогранной и зависит от множества факторов. Заказчикам важно учитывать все аспекты, начиная от сложности и масштаба проекта до репутации исполнителя и технологических решений. Правильный подход к планированию и выбору проектировщика поможет обеспечить успешное выполнение проекта в рамках установленного бюджета и сроков.
системы водоотведения
Архитектурное проектирование систем водоотведения является важным этапом в создании эффективной и безопасной инфраструктуры. В этом процессе необходимо учитывать множество факторов, включая типы систем, их расположение, а также стоимость проектирования и установки. В данной статье мы рассмотрим основные аспекты, влияющие на цены архитектурного проектирования систем водоотведения.
1. Виды систем водоотведения
Системы водоотведения можно разделить на несколько категорий, каждая из которых имеет свои особенности и требования к проектированию:
- Ливневая канализация: предназначена для отвода дождевых и талых вод. Проектирование таких систем требует учета местных климатических условий и рельефа местности.
- Сточные системы: используются для сбора и отвода сточных вод из жилых и производственных зданий. Важно учитывать тип сточных вод и их химический состав.
- Системы очистки: включают в себя сооружения для предварительной и глубокой очистки сточных вод перед их сбросом в водоемы или на рельеф.
2. Факторы, влияющие на стоимость проектирования
Стоимость архитектурного проектирования систем водоотведения зависит от множества факторов:
- Сложность проекта: Чем сложнее проект, тем выше его стоимость. Это может включать в себя необходимость в специальных расчетах, моделировании и использовании уникальных материалов.
- Размеры системы: Большие системы требуют больше времени на проектирование и больше ресурсов для их реализации, что также увеличивает стоимость.
- Местоположение: Географические и климатические условия могут влиять на стоимость проектирования. Например, в регионах с частыми наводнениями могут потребоваться дополнительные меры безопасности.
- Требования к нормативам: Проектирование должно соответствовать местным строительным нормам и правилам, что может потребовать дополнительных затрат на согласования и проверки.
3. Этапы проектирования
Процесс проектирования систем водоотведения включает несколько ключевых этапов:
- Предварительное исследование: На этом этапе проводятся геодезические и гидрологические исследования, которые помогают определить оптимальные решения для проектирования.
- Разработка концепции: Создается предварительная концепция системы, которая включает в себя основные элементы и их расположение.
- Подробное проектирование: На этом этапе разрабатываются детализированные чертежи и спецификации, которые будут использоваться для строительства.
- Согласование и утверждение: Проект должен быть согласован с местными органами власти и соответствовать всем нормативным требованиям.
4. Примеры цен на проектирование
Цены на архитектурное проектирование систем водоотведения могут варьироваться в зависимости от региона и сложности проекта. Примерные расценки могут быть следующими:
- Ливневая канализация: от 500 до 1500 рублей за квадратный метр.
- Сточные системы: от 700 до 2000 рублей за квадратный метр.
- Системы очистки: от 1000 до 3000 рублей за квадратный метр.
Эти расценки являются ориентировочными и могут изменяться в зависимости от конкретных условий и требований проекта.
5. Выбор подрядчика
Выбор подрядчика для проектирования систем водоотведения — это важный шаг, который может существенно повлиять на качество и стоимость проекта. При выборе подрядчика стоит учитывать следующие аспекты:
- Опыт и репутация: Необходимо изучить портфолио подрядчика, его опыт работы в данной области и отзывы клиентов. Надежные компании обычно имеют положительные рекомендации и успешные завершенные проекты.
- Квалификация специалистов: Важно, чтобы в команде подрядчика работали квалифицированные инженеры и архитекторы, обладающие необходимыми знаниями и опытом в проектировании систем водоотведения.
- Стоимость услуг: Сравните расценки различных подрядчиков, но не забывайте, что самая низкая цена не всегда означает лучшее качество. Важно найти баланс между стоимостью и качеством.
- Сроки выполнения: Уточните, сколько времени потребуется подрядчику для завершения проектирования. Сжатые сроки могут привести к снижению качества работы.
6. Современные технологии в проектировании
Современные технологии значительно упрощают процесс проектирования систем водоотведения и позволяют повысить его эффективность. К таким технологиям относятся:
- 3D-моделирование: Использование программного обеспечения для создания трехмерных моделей позволяет визуализировать проект и выявить возможные проблемы на ранних этапах.
- Геоинформационные системы (ГИС): ГИС-технологии помогают анализировать пространственные данные и принимать обоснованные решения при проектировании.
- Системы автоматизированного проектирования (САПР): Эти системы позволяют ускорить процесс проектирования и снизить вероятность ошибок.
7. Экологические аспекты
При проектировании систем водоотведения необходимо учитывать экологические аспекты. Это включает в себя:
- Минимизация воздействия на окружающую среду: Проект должен быть разработан с учетом минимизации негативного воздействия на экосистему, включая защиту водоемов и сохранение природных ресурсов.
- Использование экологически чистых технологий: Применение современных технологий очистки сточных вод и систем повторного использования воды может значительно снизить нагрузку на окружающую среду.
- Соблюдение экологических норм: Проектирование должно соответствовать действующим экологическим стандартам и требованиям, что может потребовать дополнительных затрат на согласования и проверки.
8. Заключение
Архитектурное проектирование систем водоотведения — это сложный и многогранный процесс, который требует внимательного подхода и учета множества факторов. Правильный выбор подрядчика, использование современных технологий и внимание к экологическим аспектам помогут создать эффективные и безопасные системы водоотведения, соответствующие всем требованиям и стандартам.
системы отопление вентиляции и кондиционирования воздуха
Архитектурное проектирование систем отопления, вентиляции и кондиционирования воздуха (ОВК) является важным этапом в создании комфортного и безопасного микроклимата в помещениях. Правильное проектирование этих систем требует учета множества факторов, включая климатические условия, тип здания, его назначение и потребности пользователей. В этом контексте цены на услуги архитектурного проектирования могут варьироваться в зависимости от различных аспектов.
Одним из ключевых факторов, влияющих на стоимость проектирования, является сложность системы. Например, проектирование системы отопления для небольшого жилого дома будет стоить значительно меньше, чем проектирование сложной системы вентиляции для крупного коммерческого здания. Сложные системы требуют более детального анализа и проектирования, что, в свою очередь, увеличивает затраты.
Также важным аспектом является объем работ. Чем больше площадь здания и чем больше помещений необходимо оснастить системами ОВК, тем выше будет стоимость проектирования. В крупных проектах может потребоваться привлечение дополнительных специалистов, таких как инженеры и консультанты, что также увеличивает общую стоимость.
Не менее важным фактором является местоположение объекта. В крупных городах, где конкуренция среди проектировщиков выше, цены на услуги могут быть значительно выше, чем в регионах. Кроме того, в зависимости от региона могут действовать различные строительные нормы и правила, что также может повлиять на стоимость проектирования.
При оценке цен на архитектурное проектирование систем ОВК стоит учитывать и технические требования. Например, если проект требует использования современных технологий и оборудования, таких как системы автоматизации или энергоэффективные решения, это может значительно увеличить стоимость проектирования. В то же время, использование устаревших технологий может снизить затраты, но негативно сказаться на эффективности системы.
Кроме того, сроки выполнения проекта также могут влиять на его стоимость. Если заказчик требует срочного выполнения работ, проектировщики могут установить более высокую цену за услуги. Это связано с необходимостью перераспределения ресурсов и увеличения рабочего времени для соблюдения сроков.
Важно отметить, что стоимость проектирования систем ОВК может включать в себя не только непосредственные затраты на услуги проектировщиков, но и дополнительные расходы, такие как получение разрешений, согласование проектной документации и другие административные процедуры. Эти расходы могут значительно варьироваться в зависимости от региона и специфики проекта.
В заключение, стоимость архитектурного проектирования систем отопления, вентиляции и кондиционирования воздуха зависит от множества факторов, включая сложность системы, объем работ, местоположение, технические требования и сроки выполнения. Заказчикам рекомендуется тщательно анализировать все эти аспекты при выборе проектировщика и составлении бюджета на проект.
При выборе проектировщика систем ОВК также стоит обратить внимание на репутацию и опыт компании. Услуги более опытных специалистов могут стоить дороже, но они часто обеспечивают более высокое качество проектирования и меньшее количество ошибок, что в конечном итоге может сэкономить средства на этапе строительства и эксплуатации. Рекомендуется изучить портфолио и отзывы клиентов, чтобы оценить уровень профессионализма и надежности компании.
Еще одним важным аспектом является инновационность решений, предлагаемых проектировщиками. Современные технологии, такие как системы управления микроклиматом, могут значительно повысить эффективность работы систем ОВК и снизить эксплуатационные расходы. Однако внедрение таких технологий может потребовать дополнительных затрат на проектирование и оборудование. Заказчики должны взвесить преимущества и недостатки, чтобы определить, стоит ли инвестировать в более дорогие, но эффективные решения.
Необходимо также учитывать сопутствующие услуги, которые могут предлагать проектировщики. Например, некоторые компании могут предоставлять услуги по монтажу и наладке систем, что может быть удобным для заказчика, так как позволяет избежать дополнительных затрат на поиск подрядчиков. Однако такие услуги могут также увеличить общую стоимость проекта, поэтому важно заранее обсудить все детали и условия.
При составлении бюджета на проектирование систем ОВК стоит учитывать и долгосрочные затраты, связанные с эксплуатацией систем. Энергоэффективные решения могут потребовать больших первоначальных инвестиций, но в дальнейшем они могут существенно снизить расходы на отопление и кондиционирование. Поэтому важно рассматривать проектирование не только как разовую затрату, но и как инвестицию в будущее.
Важным этапом в процессе проектирования является согласование проектной документации с соответствующими органами. Это может занять значительное время и потребовать дополнительных затрат, особенно если проект требует получения специальных разрешений или согласований. Заказчикам стоит заранее ознакомиться с требованиями и сроками, чтобы избежать задержек и дополнительных расходов.
Наконец, стоит отметить, что тренды и изменения в законодательстве также могут влиять на стоимость проектирования. Например, новые нормы по энергоэффективности могут потребовать пересмотра проектных решений и, соответственно, увеличения затрат. Заказчикам рекомендуется следить за изменениями в законодательстве и учитывать их при планировании бюджета.
Таким образом, стоимость архитектурного проектирования систем отопления, вентиляции и кондиционирования воздуха зависит от множества факторов, и для успешного завершения проекта важно учитывать все аспекты, начиная от выбора проектировщика и заканчивая долгосрочными затратами на эксплуатацию систем. Правильный подход к планированию и анализу всех факторов поможет избежать непредвиденных расходов и обеспечить создание эффективной и надежной системы ОВК.
слаботочные системы
Архитектурное проектирование слаботочных систем является важным аспектом в создании современных зданий и сооружений. Слаботочные системы включают в себя различные технологии, такие как системы видеонаблюдения, охранные сигнализации, системы контроля доступа, а также сети передачи данных. Эти системы требуют тщательного проектирования, чтобы обеспечить их эффективное функционирование и интеграцию в общую архитектуру здания.
При проектировании слаботочных систем необходимо учитывать множество факторов, включая:
- Технические требования: Определение необходимых характеристик систем, таких как разрешение камер видеонаблюдения, типы датчиков для охранных систем и пропускная способность сетей передачи данных.
- Эстетические аспекты: Слаботочные системы должны быть интегрированы в архитектурное решение здания, не нарушая его внешний вид и внутреннюю планировку.
- Функциональность: Проектирование должно учитывать, как системы будут использоваться, и обеспечивать их простоту в эксплуатации и обслуживании.
- Безопасность: Важно предусмотреть защиту от несанкционированного доступа и возможность быстрого реагирования на инциденты.
Цены на архитектурное проектирование слаботочных систем могут варьироваться в зависимости от ряда факторов:
- Сложность проекта: Чем сложнее проект, тем выше стоимость. Это связано с необходимостью привлечения специалистов и использования более дорогих технологий.
- Объем работ: Большие проекты требуют больше времени и ресурсов, что также влияет на цену.
- Используемые технологии: Современные и высокотехнологичные решения могут значительно увеличить стоимость проектирования.
- Географическое расположение: Цены на услуги проектирования могут различаться в зависимости от региона, в котором осуществляется проект.
При выборе подрядчика для проектирования слаботочных систем важно учитывать не только цену, но и опыт компании, отзывы клиентов и качество предоставляемых услуг. Рекомендуется проводить тендеры и сравнивать предложения нескольких компаний, чтобы выбрать наиболее подходящее решение.
Также стоит отметить, что стоимость проектирования может включать в себя не только непосредственные затраты на услуги, но и дополнительные расходы, такие как:
- Консультации: Оплата консультационных услуг специалистов в области слаботочных систем.
- Тестирование: Проведение тестов и проверок систем после их установки.
- Обучение персонала: Обучение сотрудников работе с новыми системами.
Таким образом, архитектурное проектирование слаботочных систем требует комплексного подхода и внимательного анализа всех факторов, влияющих на стоимость и качество конечного продукта. Важно заранее определить бюджет и четко сформулировать требования к проекту, чтобы избежать непредвиденных расходов и задержек в процессе реализации.
Одним из ключевых этапов архитектурного проектирования слаботочных систем является разработка проектной документации. Эта документация включает в себя схемы, чертежи, спецификации и описания всех компонентов системы. Правильно оформленная проектная документация позволяет избежать ошибок при установке и эксплуатации систем, а также служит основой для получения разрешений и согласований от контролирующих органов.
Важным аспектом проектирования является выбор оборудования. На рынке представлено множество производителей и моделей, и выбор должен основываться на:
- Качество и надежность: Оборудование должно быть проверенным и иметь положительные отзывы пользователей.
- Совместимость: Все компоненты системы должны быть совместимы друг с другом и с существующими системами в здании.
- Гарантия и сервисное обслуживание: Наличие гарантии и возможности быстрого ремонта или замены оборудования.
После выбора оборудования необходимо разработать план установки. Этот план должен учитывать:
- Расположение оборудования: Определение мест установки камер, датчиков и других компонентов с учетом их функциональности и эстетики.
- Прокладка кабелей: Разработка схемы прокладки кабелей, чтобы минимизировать их видимость и избежать помех.
- Энергоснабжение: Обеспечение надежного источника питания для всех компонентов системы.
Не менее важным является тестирование систем после их установки. Это позволяет выявить возможные проблемы и убедиться в правильности работы всех компонентов. Тестирование должно включать:
- Проверка функциональности: Убедиться, что все системы работают в соответствии с проектными требованиями.
- Тестирование на устойчивость: Проверка работы систем в различных условиях, включая отключение электроэнергии.
- Обучение пользователей: Проведение обучающих сессий для персонала, который будет работать с новыми системами.
После успешного завершения всех этапов проектирования и установки, важно обеспечить дальнейшую поддержку и обслуживание систем. Это включает в себя регулярные проверки, обновления программного обеспечения и замену устаревших компонентов. Наличие четкого плана обслуживания позволяет продлить срок службы систем и обеспечить их надежную работу.
В заключение, архитектурное проектирование слаботочных систем требует комплексного подхода, включающего в себя тщательное планирование, выбор качественного оборудования, разработку проектной документации и обеспечение дальнейшей поддержки. Успешная реализация этих этапов позволяет создать эффективные и надежные системы, которые будут служить долгие годы.
системы газоснабжения
Архитектурное проектирование систем газоснабжения является важным этапом в создании эффективной и безопасной инфраструктуры. В этом процессе необходимо учитывать множество факторов, включая технические требования, экономические аспекты и экологические нормы. Цены на проектирование могут варьироваться в зависимости от различных условий и требований.
Факторы, влияющие на стоимость проектирования
- Сложность проекта: Чем сложнее проект, тем выше его стоимость. Это может включать в себя необходимость в специальных расчетах, сложных схемах и дополнительных согласованиях.
- Объем работ: Большие проекты требуют больше времени и ресурсов, что также увеличивает стоимость. Объем работ может включать в себя как проектирование, так и последующее сопровождение.
- Требования к документации: Наличие специфических требований к документации может увеличить затраты на проектирование. Это может включать в себя дополнительные проверки и согласования.
- Локация: Географическое положение объекта также влияет на стоимость. В удаленных или труднодоступных местах могут потребоваться дополнительные расходы на транспортировку и логистику.
- Квалификация специалистов: Услуги высококвалифицированных специалистов стоят дороже, но могут обеспечить более качественное проектирование и минимизацию рисков.
Типы проектирования
- Предварительное проектирование: На этом этапе разрабатываются концептуальные решения и предварительные сметы. Это позволяет оценить общие затраты и определить целесообразность проекта.
- Рабочее проектирование: На этом этапе создаются детализированные чертежи и спецификации. Рабочее проектирование требует больше времени и ресурсов, что отражается на стоимости.
- Сопровождение проекта: После завершения проектирования может потребоваться сопровождение проекта, включая авторский надзор и консультации. Это также влияет на общую стоимость.
Методы оценки стоимости
- Калькуляция по единичным расценкам: Этот метод основан на расчете стоимости по единичным расценкам на каждый элемент проектирования. Он позволяет получить более точную оценку.
- Сравнительный метод: Оценка стоимости на основе анализа аналогичных проектов. Этот метод может быть менее точным, но позволяет быстро получить ориентировочную стоимость.
- Метод экспертных оценок: Привлечение экспертов для оценки стоимости проектирования. Этот метод может быть полезен в сложных случаях, когда требуется глубокий анализ.
Таким образом, стоимость архитектурного проектирования систем газоснабжения зависит от множества факторов, и для получения точной оценки необходимо учитывать все аспекты проекта. Важно проводить тщательный анализ и выбирать оптимальные решения для достижения наилучших результатов.
Этапы проектирования систем газоснабжения
Процесс проектирования систем газоснабжения можно разделить на несколько ключевых этапов, каждый из которых имеет свои особенности и требования. Эти этапы включают в себя:
- Исследование и анализ: На этом этапе проводится анализ существующих условий, включая изучение местности, потребностей пользователей и требований законодательства. Это позволяет определить основные параметры проектирования.
- Разработка концепции: На основе собранной информации разрабатывается концепция системы газоснабжения. Это включает в себя выбор типа газоснабжения, определение основных узлов и схемы подключения.
- Проектирование: На этом этапе создаются детализированные чертежи и спецификации, которые включают в себя все необходимые элементы системы. Важно учитывать все технические требования и нормы безопасности.
- Согласование: После завершения проектирования необходимо согласовать проект с соответствующими органами и службами. Это может включать в себя получение разрешений и лицензий.
- Реализация: На этом этапе осуществляется строительство и монтаж системы газоснабжения. Важно, чтобы все работы выполнялись в соответствии с проектной документацией и стандартами.
- Тестирование и ввод в эксплуатацию: После завершения монтажа проводится тестирование системы, чтобы убедиться в ее работоспособности и безопасности. После успешного тестирования система вводится в эксплуатацию.
Влияние технологий на стоимость проектирования
Современные технологии играют важную роль в процессе проектирования систем газоснабжения. Использование программного обеспечения для проектирования, моделирования и анализа может значительно сократить время и затраты на проектирование. Например, применение BIM-технологий (Building Information Modeling) позволяет создавать трехмерные модели систем, что упрощает процесс согласования и выявления потенциальных проблем на ранних этапах.
Кроме того, автоматизация процессов проектирования и использования специализированных программ может снизить вероятность ошибок и повысить качество проектной документации. Это, в свою очередь, может привести к снижению затрат на исправление ошибок и доработки проекта.
Экономические аспекты проектирования
Экономические аспекты проектирования систем газоснабжения также имеют большое значение. Важно учитывать не только стоимость проектирования, но и потенциальные затраты на эксплуатацию и обслуживание системы в будущем. Эффективное проектирование может привести к снижению эксплуатационных расходов, что является важным фактором для инвесторов и владельцев объектов.
При оценке экономической целесообразности проекта необходимо учитывать такие факторы, как:
- Сроки окупаемости: Оценка времени, необходимого для возврата инвестиций в проект.
- Операционные расходы: Прогнозирование затрат на эксплуатацию и обслуживание системы газоснабжения.
- Потенциальные риски: Оценка рисков, связанных с проектом, включая технические, финансовые и экологические аспекты.
Таким образом, архитектурное проектирование систем газоснабжения требует комплексного подхода, учитывающего множество факторов, влияющих на стоимость и эффективность проекта. Важно проводить тщательный анализ на каждом этапе, чтобы обеспечить успешную реализацию проекта и его соответствие всем требованиям.
Технологические решения
Архитектурное проектирование цен – это важный аспект, который требует внимательного подхода и использования современных технологических решений. В условиях растущей конкуренции на рынке архитектурных услуг, правильное ценообразование становится ключевым фактором для успешного ведения бизнеса.
В данной статье мы рассмотрим основные технологические решения, которые могут помочь в оптимизации процесса ценообразования в архитектурном проектировании.
1. Использование программного обеспечения для расчета стоимости
Современные архитектурные компании все чаще обращаются к специализированному программному обеспечению для автоматизации процессов расчета стоимости проектов. Это позволяет значительно сократить время на подготовку смет и повысить точность расчетов.
- Программные решения могут включать в себя базы данных с актуальными ценами на строительные материалы и услуги.
- Интеграция с CAD-системами позволяет автоматически извлекать данные о проекте и рассчитывать стоимость на основе заданных параметров.
- Некоторые программы предлагают возможность моделирования различных сценариев, что помогает в оценке влияния изменений на общую стоимость проекта.
2. Применение BIM-технологий
BIM (Building Information Modeling) – это методология, которая позволяет создавать и управлять цифровыми моделями зданий. Использование BIM-технологий в архитектурном проектировании открывает новые горизонты для ценообразования.
- С помощью BIM можно более точно оценить объемы работ и материалы, что снижает риск ошибок в сметах.
- Модели, созданные в BIM, могут быть использованы для анализа жизненного цикла здания, что позволяет учитывать не только первоначальные затраты, но и эксплуатационные расходы.
- Интеграция с другими системами (например, ERP) позволяет автоматизировать процесс управления проектом и финансами.
3. Анализ данных и прогнозирование
Современные технологии анализа данных позволяют архитектурным компаниям более точно прогнозировать стоимость проектов на основе исторических данных и рыночных тенденций.
- Использование аналитических инструментов помогает выявить закономерности в изменении цен на материалы и услуги.
- Прогнозирование позволяет заранее учитывать возможные колебания цен и адаптировать стратегию ценообразования.
- Анализ данных может быть использован для оценки конкурентоспособности цен на услуги компании.
4. Внедрение систем управления проектами
Системы управления проектами помогают организовать работу команды и контролировать все этапы проектирования, включая ценообразование.
- Эти системы позволяют отслеживать затраты в реальном времени и сравнивать их с запланированными.
- Управление проектами помогает оптимизировать распределение ресурсов и минимизировать затраты.
- Интеграция с финансовыми системами позволяет более точно учитывать все расходы и доходы, связанные с проектом.
Таким образом, внедрение современных технологических решений в процесс архитектурного проектирования цен может значительно повысить эффективность работы компаний и улучшить их финансовые показатели.
5. Использование облачных технологий
Облачные технологии становятся все более популярными в архитектурном проектировании, так как они обеспечивают доступ к данным и инструментам из любой точки мира. Это особенно важно для команд, работающих над проектами в разных географических локациях.
- Облачные платформы позволяют хранить и обмениваться проектной документацией, что упрощает совместную работу и ускоряет процесс принятия решений.
- Доступ к облачным решениям обеспечивает возможность работы с актуальными данными в реальном времени, что критически важно для точного ценообразования.
- Облачные технологии также позволяют легко масштабировать ресурсы в зависимости от потребностей проекта, что может снизить затраты на IT-инфраструктуру.
6. Внедрение систем управления взаимоотношениями с клиентами (CRM)
Системы CRM помогают архитектурным компаниям лучше управлять взаимодействием с клиентами и оптимизировать процесс ценообразования.
- CRM-системы позволяют отслеживать историю взаимодействия с клиентами, что помогает в формировании индивидуальных предложений и более точном расчете стоимости услуг.
- Анализ данных о клиентах и их предпочтениях может помочь в разработке более эффективных стратегий ценообразования.
- Интеграция CRM с другими системами (например, ERP) позволяет автоматизировать процессы и улучшить общую эффективность бизнеса.
7. Применение искусственного интеллекта и машинного обучения
Искусственный интеллект (ИИ) и машинное обучение (МО) открывают новые возможности для архитектурного проектирования и ценообразования.
- ИИ может анализировать большие объемы данных и выявлять закономерности, которые могут быть использованы для более точного прогнозирования цен.
- Машинное обучение может помочь в автоматизации процессов, таких как составление смет и оценка стоимости, что снижает вероятность ошибок.
- Использование ИИ для анализа рыночных тенденций позволяет компаниям адаптировать свои стратегии ценообразования в реальном времени.
8. Обратная связь и оценка удовлетворенности клиентов
Сбор обратной связи от клиентов является важным элементом в процессе ценообразования. Оценка удовлетворенности клиентов позволяет выявить сильные и слабые стороны предлагаемых услуг.
- Регулярные опросы и интервью с клиентами помогают понять, насколько они удовлетворены ценой и качеством услуг.
- Анализ отзывов может помочь в корректировке ценовой политики и улучшении качества обслуживания.
- Учет мнения клиентов в процессе ценообразования способствует повышению лояльности и укреплению репутации компании.
Таким образом, внедрение современных технологических решений в архитектурное проектирование цен не только оптимизирует процессы, но и способствует повышению конкурентоспособности компаний на рынке. Использование программного обеспечения, облачных технологий, систем CRM, а также ИИ и МО позволяет значительно улучшить качество услуг и повысить удовлетворенность клиентов.
Проект организации строительства
Архитектурное проектирование является важным этапом в организации строительства, который включает в себя множество аспектов, таких как разработка концепции, создание проектной документации и определение стоимости. В данной статье мы рассмотрим, как формируются цены на архитектурное проектирование, какие факторы влияют на их изменение и как правильно оценить стоимость услуг архитекторов.
Факторы, влияющие на стоимость архитектурного проектирования
- Сложность проекта: Чем сложнее проект, тем выше его стоимость. Это связано с необходимостью более детального анализа, проработки всех деталей и возможных решений.
- Объем работ: Объем проектируемых объектов также влияет на цену. Большие здания или комплексы требуют больше времени и ресурсов для проектирования.
- Местоположение: Цены на услуги архитекторов могут варьироваться в зависимости от региона. В крупных городах стоимость может быть значительно выше, чем в небольших населенных пунктах.
- Опыт и репутация архитектора: Услуги известных и опытных архитекторов стоят дороже, так как они могут предложить уникальные решения и гарантировать высокое качество работы.
- Сроки выполнения: Если проект необходимо реализовать в сжатые сроки, это может привести к увеличению стоимости из-за необходимости привлечения дополнительных ресурсов.
Типы услуг архитектурного проектирования
- Эскизное проектирование: На этом этапе создаются предварительные эскизы и концепции, которые помогают визуализировать будущий объект. Стоимость таких услуг может варьироваться от 5% до 15% от общей стоимости проекта.
- Рабочая документация: Это более детализированный этап, на котором разрабатываются все необходимые чертежи и спецификации. Обычно стоимость этой услуги составляет 30% - 50% от общего бюджета проектирования.
- Авторский надзор: Услуга, которая включает в себя контроль за реализацией проекта на строительной площадке. Стоимость авторского надзора может составлять 5% - 10% от общей стоимости строительства.
Методы расчета стоимости архитектурного проектирования
- Почасовая оплата: Архитекторы могут взимать плату за свои услуги на основе количества часов, затраченных на проект. Этот метод часто используется для небольших проектов или консультационных услуг.
- Фиксированная цена: В этом случае стоимость услуг определяется заранее и не изменяется в процессе работы. Это удобно для клиентов, так как позволяет заранее планировать бюджет.
- Процент от стоимости строительства: Некоторые архитекторы берут процент от общей стоимости строительства, что может быть выгодно для крупных проектов, где стоимость услуг может быть значительной.
Таким образом, стоимость архитектурного проектирования зависит от множества факторов, и важно учитывать все аспекты при выборе архитектора и планировании бюджета. В следующей части статьи мы рассмотрим, как правильно выбрать архитектора и на что обратить внимание при заключении договора.
Выбор архитектора: ключевые аспекты
При выборе архитектора для вашего проекта важно учитывать несколько ключевых аспектов, которые помогут вам найти подходящего специалиста и избежать возможных проблем в будущем.
- Портфолио работ: Ознакомьтесь с предыдущими проектами архитектора. Это даст вам представление о его стиле, качестве работы и опыте в реализации аналогичных проектов.
- Отзывы клиентов: Поинтересуйтесь мнением предыдущих клиентов о работе архитектора. Это поможет вам понять, насколько он надежен и профессионален.
- Специализация: Убедитесь, что архитектор имеет опыт работы с проектами, аналогичными вашему. Например, если вы планируете строительство жилого дома, ищите специалиста, который уже работал с подобными проектами.
- Коммуникация: Важно, чтобы архитектор был открыт для общения и готов обсуждать ваши идеи и пожелания. Хорошая коммуникация поможет избежать недопонимания и сделает процесс проектирования более эффективным.
- Договор: Обязательно заключите официальный договор, в котором будут прописаны все условия сотрудничества, включая стоимость услуг, сроки выполнения и ответственность сторон.
Этапы работы с архитектором
Работа с архитектором обычно проходит в несколько этапов, каждый из которых имеет свои особенности и требования.
- Первичная консультация: На этом этапе архитектор знакомится с вашими идеями и требованиями, а также проводит предварительный анализ участка и условий строительства.
- Разработка концепции: Архитектор создает несколько концептуальных решений, которые обсуждаются с вами. На этом этапе важно дать обратную связь, чтобы скорректировать проект в соответствии с вашими пожеланиями.
- Создание проектной документации: После утверждения концепции архитектор разрабатывает детализированные чертежи и спецификации, которые будут использоваться на этапе строительства.
- Авторский надзор: На этапе строительства архитектор может осуществлять авторский надзор, контролируя соответствие выполненных работ проектной документации и внося необходимые коррективы.
Заключение
Выбор архитектора и понимание процесса проектирования являются важными шагами на пути к успешной реализации строительного проекта. Учитывая все вышеперечисленные аспекты, вы сможете сделать осознанный выбор и обеспечить высокое качество архитектурного проектирования.
Мероприятия по охране окружающей среды
Архитектурное проектирование в современном мире становится все более важным аспектом, особенно в контексте охраны окружающей среды. С каждым годом растет осознание необходимости создания устойчивых и экологически чистых зданий, что напрямую влияет на стоимость проектирования. В этом разделе мы рассмотрим, как экологические инициативы и требования к устойчивому строительству влияют на цены архитектурного проектирования.
Одним из ключевых факторов, определяющих стоимость архитектурного проектирования, является использование экологически чистых материалов. Экологически чистые материалы часто стоят дороже, чем традиционные, но их использование может значительно снизить негативное воздействие на окружающую среду. Например, древесина из сертифицированных лесов, переработанные материалы и низковыбросные краски могут увеличить общую стоимость проекта, но в долгосрочной перспективе они могут привести к экономии на эксплуатационных расходах.
Кроме того, энергетическая эффективность зданий также играет важную роль в формировании цен на архитектурное проектирование. Проекты, которые включают в себя элементы, такие как солнечные панели, системы сбора дождевой воды и высокоэффективные системы отопления и охлаждения, требуют дополнительных затрат на проектирование и установку. Однако эти инвестиции могут окупиться за счет снижения затрат на энергию и воды в будущем.
Важным аспектом является также законодательство и нормативные акты, касающиеся охраны окружающей среды. В некоторых регионах существуют строгие требования к экологическим стандартам, которые архитекторы обязаны учитывать при проектировании. Это может привести к увеличению времени и затрат на проектирование, так как необходимо проводить дополнительные исследования и получать разрешения.
Не менее важным является инновационный подход к проектированию. Архитекторы, стремящиеся создать устойчивые здания, часто используют новые технологии и методы, такие как 3D-моделирование и BIM (информационное моделирование зданий). Эти технологии могут повысить стоимость проектирования, но они также позволяют более точно прогнозировать затраты и минимизировать ошибки, что в конечном итоге может привести к экономии.
В заключение, стоимость архитектурного проектирования в контексте охраны окружающей среды зависит от множества факторов, включая выбор материалов, технологии, законодательные требования и инновационные подходы. Все эти аспекты необходимо учитывать при планировании бюджета на проектирование, чтобы создать не только красивое, но и экологически устойчивое здание.
Еще одним важным аспектом, влияющим на стоимость архитектурного проектирования, является планирование и проектирование ландшафта. Устойчивые ландшафтные решения, такие как использование местных растений, системы дренажа и зеленые крыши, требуют дополнительных затрат на проектирование и реализацию. Однако такие меры не только способствуют улучшению экологии, но и могут повысить стоимость недвижимости в будущем.
Также стоит отметить, что социальные аспекты проектирования становятся все более актуальными. Архитекторы должны учитывать потребности местных сообществ и создавать пространства, которые будут способствовать социальной интеграции и улучшению качества жизни. Это может потребовать дополнительных исследований и консультаций с жителями, что также влияет на стоимость проектирования.
Важным элементом является интеграция технологий в архитектурное проектирование. Умные здания, которые используют системы автоматизации для управления освещением, отоплением и безопасностью, требуют более сложного проектирования и, соответственно, увеличивают стоимость. Тем не менее, такие технологии могут значительно повысить комфорт и безопасность пользователей, а также снизить эксплуатационные расходы.
Необходимо также учитывать долговечность материалов и конструкций. Использование высококачественных и устойчивых к воздействию окружающей среды материалов может увеличить первоначальные затраты, но в долгосрочной перспективе это может привести к снижению затрат на обслуживание и ремонт. Архитекторы должны находить баланс между первоначальными инвестициями и долгосрочной экономией.
Важным аспектом является образование и подготовка специалистов в области устойчивого проектирования. Архитекторы, обладающие знаниями в области экологии и устойчивого развития, могут предложить более эффективные решения, которые помогут снизить затраты на проектирование и строительство. Инвестиции в обучение и повышение квалификации специалистов могут оказаться выгодными в долгосрочной перспективе.
Наконец, сотрудничество с другими специалистами также играет важную роль в процессе проектирования. Архитекторы, работающие в команде с инженерами, экологами и другими профессионалами, могут создать более эффективные и устойчивые проекты. Это может потребовать дополнительных затрат на координацию и коммуникацию, но в конечном итоге приведет к более качественным результатам.
Таким образом, стоимость архитектурного проектирования в контексте охраны окружающей среды зависит от множества факторов, включая выбор материалов, технологии, социальные аспекты и сотрудничество с другими специалистами. Устойчивое проектирование требует комплексного подхода и готовности инвестировать в будущее, что в конечном итоге может привести к созданию более комфортных и безопасных пространств для жизни.
Мероприятия по обеспечению пожарной безопасности
Пожарная безопасность является одной из ключевых составляющих архитектурного проектирования. В процессе разработки проектов зданий и сооружений необходимо учитывать множество факторов, которые могут повлиять на безопасность людей и имущества в случае возникновения пожара. Одним из таких факторов являются цены на мероприятия по обеспечению пожарной безопасности, которые могут значительно варьироваться в зависимости от различных условий и требований.
При проектировании зданий важно учитывать не только эстетические и функциональные аспекты, но и требования пожарной безопасности, которые регламентируются различными нормами и стандартами. Эти требования могут включать в себя:
- Выбор материалов, устойчивых к огню;
- Проектирование эвакуационных выходов;
- Установка систем автоматического пожаротушения;
- Обеспечение доступа для пожарных служб;
- Разработка планов эвакуации.
Каждое из этих мероприятий требует определенных затрат, которые могут существенно повлиять на общую стоимость проекта. Например, использование огнестойких материалов может увеличить стоимость строительства, но в то же время это может снизить риски и потенциальные убытки в случае пожара.
Цены на мероприятия по обеспечению пожарной безопасности могут зависеть от ряда факторов, таких как:
- Тип здания: Жилые, коммерческие и промышленные здания могут иметь разные требования к пожарной безопасности, что влияет на стоимость проектирования.
- Местоположение: Региональные особенности, такие как климатические условия и наличие пожарных служб, также могут влиять на цены.
- Сложность проекта: Чем сложнее проект, тем больше мероприятий по обеспечению пожарной безопасности потребуется, что увеличивает затраты.
- Требования законодательства: Изменения в законодательстве могут привести к необходимости дополнительных затрат на соответствие новым нормам.
В процессе проектирования важно проводить тщательный анализ всех этих факторов, чтобы определить оптимальные решения, которые обеспечат необходимый уровень безопасности при разумных затратах. Это может включать в себя как выбор более доступных материалов, так и внедрение современных технологий, которые могут снизить общие расходы на мероприятия по пожарной безопасности.
Кроме того, стоит отметить, что инвестиции в пожарную безопасность могут окупиться в будущем, так как они снижают риски и потенциальные убытки от пожаров. Поэтому важно рассматривать эти затраты не только как дополнительные расходы, но и как необходимую меру для защиты людей и имущества.
Одним из ключевых аспектов проектирования является выбор систем автоматического пожаротушения. Эти системы могут варьироваться от простых спринклерных систем до сложных газовых систем, которые требуют значительных инвестиций. Стоимость установки таких систем зависит от:
- Типа системы: Разные системы имеют разные уровни эффективности и стоимости. Например, спринклерные системы могут быть более доступными, но менее эффективными в определенных условиях.
- Площади здания: Чем больше площадь, тем больше оборудования и материалов потребуется для установки системы.
- Сложности проектирования: Если здание имеет сложную архитектуру, это может потребовать дополнительных затрат на проектирование и установку систем.
Также важным аспектом является обучение персонала и проведение тренировок по действиям в случае пожара. Это может включать в себя:
- Обучение сотрудников правильному использованию средств пожаротушения;
- Проведение регулярных тренировок по эвакуации;
- Создание инструкций и планов действий в экстренных ситуациях.
Затраты на обучение и тренировки могут варьироваться в зависимости от количества сотрудников и частоты проведения мероприятий. Однако эти инвестиции являются необходимыми для обеспечения безопасности и минимизации рисков.
Не менее важным является разработка планов эвакуации. Эти планы должны быть четкими и доступными для всех сотрудников и посетителей. Затраты на их разработку могут включать:
- Создание графических схем эвакуации;
- Установку указателей и знаков безопасности;
- Проведение информационных кампаний для повышения осведомленности о планах эвакуации.
Эти меры не только повышают уровень безопасности, но и могут снизить страховые взносы, так как страховые компании часто учитывают уровень пожарной безопасности при расчете премий.
В заключение, мероприятия по обеспечению пожарной безопасности в архитектурном проектировании требуют комплексного подхода и учета множества факторов. Инвестиции в эти мероприятия могут значительно снизить риски и потенциальные убытки, что делает их важной частью любого строительного проекта. Важно помнить, что безопасность — это не только соблюдение норм и стандартов, но и забота о жизни и здоровье людей.
Требования к обеспечению безопасной эксплуатации объектов капитального строительства
Архитектурное проектирование является важным этапом в процессе создания объектов капитального строительства. Оно включает в себя не только разработку эстетических и функциональных решений, но и соблюдение требований безопасности, что особенно актуально в условиях современных реалий. Важным аспектом архитектурного проектирования является цена, которая может варьироваться в зависимости от множества факторов.
Факторы, влияющие на стоимость архитектурного проектирования:
- Сложность проекта: Чем сложнее проект, тем выше его стоимость. Это связано с необходимостью привлечения специалистов различных профилей, а также с увеличением времени на разработку.
- Местоположение: Цены на услуги архитекторов могут значительно различаться в зависимости от региона. В крупных городах стоимость может быть выше из-за повышенного спроса и конкуренции.
- Тип объекта: Разные типы объектов (жилые, коммерческие, промышленные) требуют различных подходов и технологий, что также влияет на цену.
- Используемые материалы: Выбор материалов для строительства может существенно повлиять на общую стоимость проекта. Дорогие и редкие материалы увеличивают затраты.
- Сроки выполнения: Ускоренные сроки выполнения проекта могут привести к увеличению стоимости из-за необходимости привлечения дополнительных ресурсов.
При планировании бюджета на архитектурное проектирование важно учитывать все вышеперечисленные факторы. Это позволит избежать неожиданных расходов и обеспечить более точное планирование.
Этапы архитектурного проектирования:
- Предварительное проектирование: На этом этапе происходит сбор информации о требованиях заказчика, анализ участка и разработка концепции. Стоимость на этом этапе может быть минимальной, но она закладывает основу для дальнейших работ.
- Разработка проектной документации: Этот этап включает в себя создание чертежей, спецификаций и других документов. Стоимость может значительно возрасти в зависимости от сложности и объема документации.
- Согласование и экспертиза: Проект должен пройти согласование в различных инстанциях, что также может повлиять на стоимость. Необходимость внесения изменений в проект может привести к дополнительным затратам.
- Авторский надзор: Услуги архитектора во время строительства, чтобы гарантировать соответствие проекта, также могут быть включены в общую стоимость.
Каждый из этих этапов требует тщательного планирования и оценки, чтобы обеспечить успешное завершение проекта в рамках бюджета.
Методы снижения стоимости архитектурного проектирования:
- Оптимизация проектных решений: Использование стандартных решений и технологий может снизить затраты на проектирование.
- Сравнение предложений: Запрос нескольких предложений от различных архитектурных бюро поможет выбрать наиболее выгодное по цене и качеству.
- Планирование бюджета: Четкое планирование и контроль за расходами на всех этапах проекта помогут избежать перерасходов.
Таким образом, архитектурное проектирование требует комплексного подхода к оценке стоимости, учитывающего множество факторов и этапов. Это позволит не только создать качественный проект, но и оптимизировать затраты на его реализацию.
Рынок архитектурных услуг:
Рынок архитектурных услуг в последние годы претерпел значительные изменения. С увеличением конкуренции и развитием технологий, архитекторы и проектные бюро вынуждены адаптироваться к новым условиям. Это привело к появлению различных моделей ценообразования, которые могут быть полезны как для заказчиков, так и для исполнителей.
Модели ценообразования:
- Фиксированная цена: В этом случае стоимость услуг заранее оговаривается и не изменяется в процессе работы. Это удобно для заказчиков, так как позволяет точно планировать бюджет.
- Почасовая оплата: Архитекторы могут взимать плату за фактически затраченное время. Этот метод может быть выгоден для небольших проектов, где объем работ сложно оценить заранее.
- Процент от стоимости строительства: В некоторых случаях архитекторы получают процент от общей стоимости строительства. Это может быть выгодно для крупных проектов, где стоимость может значительно варьироваться.
Каждая из моделей имеет свои плюсы и минусы, и выбор подходящей зависит от конкретных условий и предпочтений сторон.
Тенденции в архитектурном проектировании:
Современное архитектурное проектирование также подвержено влиянию различных тенденций, которые могут оказывать влияние на стоимость и подходы к проектированию. К числу таких тенденций можно отнести:
- Устойчивое проектирование: В последние годы наблюдается рост интереса к экологически чистым и устойчивым решениям. Это может потребовать дополнительных затрат на проектирование, но в долгосрочной перспективе может привести к экономии на эксплуатации.
- Интеграция технологий: Использование современных технологий, таких как BIM (информационное моделирование зданий), позволяет оптимизировать проектирование и снизить затраты. Однако внедрение таких технологий может потребовать первоначальных инвестиций.
- Гибкость и адаптивность: Современные проекты все чаще требуют гибкости и возможности адаптации к изменяющимся условиям. Это может увеличить стоимость проектирования, но в конечном итоге повысит ценность объекта.
Таким образом, архитектурное проектирование становится все более сложным и многогранным процессом, требующим учета множества факторов, влияющих на стоимость. Заказчикам важно понимать эти аспекты, чтобы эффективно управлять своими ресурсами и достигать желаемых результатов.
Заключение: Важно помнить, что стоимость архитектурного проектирования — это не только цифры, но и качество, безопасность и функциональность создаваемого объекта. Правильный подход к планированию и оценке затрат поможет обеспечить успешное завершение проекта и его дальнейшую эксплуатацию.
Мероприятия по обеспечению доступа инвалидов к объекту капитального строительства
Архитектурное проектирование является важным этапом в создании объектов капитального строительства, особенно когда речь идет о доступности для инвалидов. В этом контексте необходимо учитывать множество факторов, которые влияют на стоимость проектирования и строительства.
Факторы, влияющие на стоимость архитектурного проектирования
- Сложность проекта: Чем сложнее архитектурное решение, тем выше стоимость проектирования. Это связано с необходимостью привлечения специалистов, которые могут разработать уникальные решения для обеспечения доступности.
- Требования к доступности: Включение специальных требований для инвалидов, таких как пандусы, лифты и специальные туалеты, может значительно увеличить стоимость проекта.
- Местоположение: Цены на проектирование могут варьироваться в зависимости от региона. В крупных городах стоимость услуг архитекторов может быть выше из-за конкуренции и спроса.
- Используемые материалы: Выбор материалов также влияет на общую стоимость. Например, использование высококачественных и долговечных материалов для создания доступных объектов может увеличить затраты.
- Сроки выполнения: Ускоренные сроки проектирования могут привести к увеличению стоимости, так как потребуется больше ресурсов для выполнения работы в сжатые сроки.
Этапы архитектурного проектирования
Процесс архитектурного проектирования можно разделить на несколько ключевых этапов, каждый из которых требует внимательного подхода к вопросам доступности для инвалидов.
- Предварительное исследование: На этом этапе проводится анализ требований и норм, касающихся доступности. Это включает в себя изучение законодательства и стандартов, которые необходимо соблюдать.
- Концептуальное проектирование: Разработка первых эскизов и концепций, которые учитывают доступность. Важно на этом этапе учесть все возможные потребности пользователей с ограниченными возможностями.
- Разработка проектной документации: Создание детализированных чертежей и спецификаций, которые включают все элементы, обеспечивающие доступность. Это может включать в себя схемы расположения пандусов, лифтов и других вспомогательных средств.
- Согласование проекта: Получение необходимых разрешений и согласований от государственных органов и организаций, занимающихся вопросами доступности.
- Реализация проекта: На этом этапе происходит непосредственное строительство объекта, где важно следить за соблюдением всех проектных решений, касающихся доступности.
Роль архитекторов в обеспечении доступности
Архитекторы играют ключевую роль в создании доступной среды для инвалидов. Их задача не только разработать красивый и функциональный проект, но и обеспечить его соответствие всем требованиям доступности.
- Обучение и осведомленность: Архитекторы должны быть осведомлены о современных методах и технологиях, которые помогают создавать доступные объекты.
- Сотрудничество с экспертами: Важно работать в команде с экспертами по доступности, чтобы учесть все нюансы и потребности пользователей с ограниченными возможностями.
- Инновационные решения: Архитекторы должны быть готовы применять инновационные подходы и технологии для улучшения доступности объектов.
Таким образом, архитектурное проектирование, ориентированное на доступность для инвалидов, требует комплексного подхода и учета множества факторов, влияющих на стоимость и качество конечного продукта.
Нормативные документы и стандарты
Важным аспектом архитектурного проектирования, связанного с доступностью для инвалидов, является соблюдение нормативных документов и стандартов. В разных странах существуют свои законодательные акты, регулирующие вопросы доступности. Например, в России основным документом является Свод правил СП 59.13330.2016, который определяет требования к доступности зданий и сооружений для маломобильных групп населения.
Соблюдение этих норм не только обеспечивает доступность, но и защищает архитекторов и застройщиков от возможных юридических последствий. Невыполнение требований может привести к штрафам и необходимости переделки уже построенных объектов.
Финансирование проектов
Финансирование архитектурных проектов, направленных на обеспечение доступности, может осуществляться из различных источников. Это могут быть государственные программы, частные инвестиции или гранты от некоммерческих организаций. Важно отметить, что наличие финансирования может существенно повлиять на качество проектирования и строительства.
- Государственные программы: Многие страны имеют специальные программы, направленные на улучшение доступности общественных объектов. Эти программы могут включать в себя финансирование проектирования и строительства.
- Частные инвестиции: Частные компании также могут инвестировать в проекты, которые обеспечивают доступность, особенно если это связано с их корпоративной социальной ответственностью.
- Гранты и субсидии: НКО и международные организации часто предоставляют гранты на реализацию проектов, направленных на улучшение условий для инвалидов.
Технологические инновации
Современные технологии играют важную роль в архитектурном проектировании доступных объектов. Использование новых материалов и технологий может значительно улучшить доступность и снизить затраты на строительство. Например, применение умных технологий позволяет создавать более удобные и безопасные условия для пользователей с ограниченными возможностями.
- Автоматизированные системы: Установка автоматических дверей, лифтов и других систем может значительно упростить передвижение для инвалидов.
- Интерактивные элементы: Использование интерактивных карт и навигационных систем помогает людям с ограниченными возможностями лучше ориентироваться в пространстве.
- Экологически чистые материалы: Применение экологически чистых и безопасных для здоровья материалов также является важным аспектом, который следует учитывать при проектировании.
Обратная связь и оценка
После завершения проектирования и строительства важно получить обратную связь от пользователей. Это поможет выявить недостатки и улучшить будущие проекты. Оценка доступности может проводиться как на этапе эксплуатации, так и в процессе проектирования новых объектов.
Таким образом, архитектурное проектирование, ориентированное на доступность для инвалидов, требует комплексного подхода, учета множества факторов и постоянного совершенствования. Важно, чтобы архитекторы, застройщики и государственные органы работали в тесном сотрудничестве для создания доступной и комфортной среды для всех.
Смета на строительство, реконструкцию, капитальный ремонт, снос объекта капитального строительства
Архитектурное проектирование является важным этапом в процессе строительства, реконструкции и капитального ремонта объектов капитального строительства. Оно включает в себя разработку проектной документации, которая определяет внешний вид, функциональность и технические характеристики здания или сооружения. В этом разделе мы рассмотрим основные аспекты, влияющие на цены архитектурного проектирования.
Факторы, влияющие на стоимость архитектурного проектирования
- Сложность проекта: Чем сложнее проект, тем выше его стоимость. Это связано с необходимостью привлечения специалистов различных профилей, а также с увеличением времени на разработку.
- Размер объекта: Большие объекты требуют больше ресурсов и времени на проектирование, что также увеличивает стоимость.
- Местоположение: Цены на проектирование могут варьироваться в зависимости от региона. В крупных городах стоимость услуг архитекторов может быть значительно выше, чем в небольших населенных пунктах.
- Тип здания: Жилые, коммерческие и промышленные здания имеют разные требования к проектированию, что также отражается на цене.
- Сроки выполнения: Срочные проекты могут потребовать дополнительных затрат, так как архитекторы могут работать в условиях сжатых сроков.
Этапы архитектурного проектирования
Процесс архитектурного проектирования можно разделить на несколько ключевых этапов, каждый из которых имеет свои особенности и влияет на общую стоимость:
- Предварительное проектирование: На этом этапе происходит сбор информации о требованиях заказчика, анализ участка и разработка концепции. Стоимость этого этапа может варьироваться в зависимости от сложности задач.
- Эскизное проектирование: Создание эскизов и предварительных чертежей. Этот этап включает в себя визуализацию проекта и его обсуждение с заказчиком.
- Рабочее проектирование: Разработка детализированной проектной документации, включая архитектурные, конструктивные и инженерные решения. Это наиболее затратный этап, так как требует высокой квалификации специалистов.
- Согласование и экспертиза: Получение разрешений и согласований от государственных органов. Этот процесс может занять много времени и потребовать дополнительных затрат.
- Авторский надзор: Услуги архитектора во время строительства для контроля за соблюдением проектных решений. Это также может повлиять на общую стоимость проекта.
Средние цены на архитектурное проектирование
Цены на услуги архитекторов могут значительно варьироваться в зависимости от вышеуказанных факторов. В среднем, стоимость проектирования может составлять:
- От 500 до 1500 рублей за квадратный метр для жилых зданий.
- От 1000 до 3000 рублей за квадратный метр для коммерческих объектов.
- От 1500 до 5000 рублей за квадратный метр для специализированных промышленных объектов.
Важно отметить, что эти цифры являются ориентировочными и могут изменяться в зависимости от конкретных условий и требований проекта.
В следующем разделе мы рассмотрим, как правильно выбрать архитектурное бюро и на что обратить внимание при заключении договора на проектирование.
Выбор архитектурного бюро
Правильный выбор архитектурного бюро является ключевым моментом для успешного завершения проекта. Вот несколько рекомендаций, которые помогут вам сделать осознанный выбор:
- Опыт и репутация: Изучите портфолио бюро, обратите внимание на реализованные проекты и отзывы клиентов. Опытные архитекторы смогут предложить более качественные решения.
- Специализация: Убедитесь, что бюро имеет опыт в проектировании объектов, аналогичных вашему. Специализация может существенно повлиять на качество работы.
- Команда: Узнайте, кто будет работать над вашим проектом. Наличие квалифицированных специалистов в команде — важный фактор для успешного завершения проекта.
- Прозрачность цен: Обсудите стоимость услуг заранее и уточните, какие услуги включены в цену. Это поможет избежать неожиданных расходов в будущем.
- Сроки выполнения: Убедитесь, что бюро сможет выполнить проект в установленные сроки. Это особенно важно, если у вас есть жесткие временные рамки.
Заключение договора на проектирование
После выбора архитектурного бюро необходимо заключить договор, который должен включать следующие ключевые моменты:
- Объем работ: Четко определите, какие услуги будут предоставлены, включая этапы проектирования и авторский надзор.
- Сроки выполнения: Установите конкретные сроки для каждого этапа проекта, чтобы избежать задержек.
- Стоимость услуг: Укажите общую стоимость проекта и условия оплаты. Это может быть фиксированная сумма или почасовая оплата.
- Ответственность сторон: Определите ответственность архитекторов за качество работы и соблюдение сроков.
- Условия расторжения: Укажите условия, при которых договор может быть расторгнут, и последствия для обеих сторон.
Заключение
Архитектурное проектирование — это сложный и многогранный процесс, который требует внимательного подхода и тщательной проработки всех деталей. Правильный выбор архитектурного бюро и четкое понимание всех этапов проектирования помогут вам избежать проблем и достичь желаемого результата.


















