Архитектурное проектирование реконструкция
Архитектурное проектирование реконструкция
В современном строительстве важным аспектом является соблюдение нормативных актов, регулирующих процесс проектирования. Одним из таких документов является 87 постановление правительства, которое определяет основные принципы и требования к строительному проектированию. В данной статье мы рассмотрим, как это постановление влияет на архитектурное проектирование и реконструкцию объектов, а также какие ключевые моменты необходимо учитывать при разработке проектной документации.
Статья включает в себя следующие разделы:
- Общие положения 87 постановления
- Требования к архитектурному проектированию
- Особенности реконструкции зданий и сооружений
- Процесс согласования проектной документации
- Рекомендации по соблюдению норм и стандартов
Мы надеемся, что данная информация будет полезна как профессиональным архитекторам и проектировщикам, так и всем заинтересованным в вопросах строительства и реконструкции.
Согласно 87 ПП (87 постановление правительства)
Архитектурное проектирование и реконструкция зданий и сооружений являются важными аспектами градостроительной деятельности, которые регулируются различными нормативными актами, включая 87 постановление правительства. Это постановление определяет основные принципы и требования к проектированию, а также к проведению реконструкции объектов недвижимости.
Согласно 87 ПП, архитектурное проектирование включает в себя несколько ключевых этапов, каждый из которых имеет свои особенности и требования. В первую очередь, необходимо провести анализ существующего состояния объекта, который подлежит реконструкции. Это включает в себя оценку технического состояния здания, его архитектурных и исторических ценностей, а также соответствие современным требованиям безопасности и комфорта.
На следующем этапе разрабатывается проект реконструкции, который должен учитывать не только технические аспекты, но и эстетические. Важно, чтобы новое решение гармонично вписывалось в существующую городскую среду и соответствовало архитектурным традициям региона. Проект должен быть согласован с местными органами власти и соответствовать действующим нормам и стандартам.
Одним из ключевых моментов, на который обращает внимание 87 ПП, является необходимость проведения общественных слушаний. Это позволяет учесть мнение местных жителей и заинтересованных сторон, что способствует более качественному и социально ориентированному проектированию. Общественные слушания должны быть организованы на этапе разработки проектной документации, чтобы все заинтересованные лица могли высказать свои предложения и замечания.
После завершения проектирования и получения всех необходимых согласований, начинается этап реализации проекта. Важно, чтобы в процессе реконструкции соблюдались все требования, указанные в проектной документации. Это включает в себя как строительные нормы, так и экологические требования, которые направлены на минимизацию негативного воздействия на окружающую среду.
Кроме того, 87 ПП акцентирует внимание на необходимости проведения экспертизы проектной документации. Экспертиза позволяет выявить возможные недостатки и риски, связанные с реализацией проекта, и внести необходимые коррективы до начала строительных работ. Это особенно важно для сложных объектов, где ошибки на этапе проектирования могут привести к значительным финансовым потерям и угрозе безопасности.
В процессе реконструкции также необходимо учитывать вопросы энергоэффективности и устойчивого развития. Современные требования к зданиям предполагают использование новых технологий и материалов, которые способствуют снижению потребления энергии и уменьшению негативного воздействия на окружающую среду. Это может включать в себя установку современных систем отопления, вентиляции и кондиционирования, а также использование возобновляемых источников энергии.
Таким образом, архитектурное проектирование и реконструкция зданий в соответствии с 87 ПП требуют комплексного подхода, который включает в себя анализ, проектирование, согласование, реализацию и экспертизу. Каждый из этих этапов играет важную роль в создании качественного и безопасного объекта, который будет служить людям на протяжении многих лет.
Важным аспектом, который также регулируется 87 ПП, является необходимость учета историко-культурного наследия при проведении реконструкции. Если объект имеет статус памятника архитектуры или находится в зоне охраны культурного наследия, то проект должен соответствовать специальным требованиям, направленным на сохранение его исторической ценности. Это может включать в себя использование оригинальных материалов, восстановление утраченных элементов и соблюдение традиционных архитектурных приемов.
При проектировании реконструкции необходимо также учитывать функциональное назначение здания. Изменение его назначения может потребовать дополнительных согласований и пересмотра проектной документации. Например, если здание, ранее использовавшееся как жилое, планируется переоборудовать под офисные помещения, это может повлечь за собой необходимость в изменении планировки, установки новых систем коммуникаций и обеспечения соответствия современным требованиям к безопасности.
Кроме того, 87 ПП подчеркивает важность взаимодействия между различными участниками процесса реконструкции. Это включает в себя архитекторов, инженеров, строителей, а также представителей местных органов власти и общественности. Эффективное сотрудничество между всеми сторонами позволяет избежать конфликтов и недоразумений, а также способствует более качественному выполнению проекта.
Не менее важным является вопрос финансирования реконструкции. Проект должен быть экономически обоснованным, что подразумевает наличие четкого сметного расчета и плана финансирования. В некоторых случаях возможно привлечение инвестиций или использование государственных субсидий, что может значительно облегчить финансовую нагрузку на заказчика.
В процессе реализации проекта реконструкции также необходимо учитывать вопросы безопасности труда. Строительные работы должны проводиться с соблюдением всех норм и правил охраны труда, что включает в себя обучение работников, использование средств индивидуальной защиты и регулярные проверки состояния строительных площадок. Это особенно актуально для сложных и многоэтапных проектов, где риски могут быть значительно выше.
После завершения всех строительных работ необходимо провести приемку объекта. Это включает в себя проверку соответствия выполненных работ проектной документации, а также оценку качества выполненных строительных и отделочных работ. Приемка должна проводиться с участием всех заинтересованных сторон, включая заказчика, проектировщиков и представителей местных органов власти.
В заключение, архитектурное проектирование и реконструкция в соответствии с 87 ПП представляют собой сложный и многоступенчатый процесс, который требует внимательного подхода на каждом этапе. Учет всех вышеописанных аспектов позволяет создать качественный, безопасный и функциональный объект, который будет служить интересам общества и соответствовать современным требованиям.
Пояснительная записка
Архитектурное проектирование реконструкции представляет собой сложный и многогранный процесс, который требует глубокого понимания как архитектурных принципов, так и специфики существующих объектов. Реконструкция зданий и сооружений может быть вызвана различными факторами, включая необходимость обновления функциональности, улучшения энергоэффективности, а также сохранения исторического наследия. В этом контексте важно учитывать не только технические аспекты, но и культурные, социальные и экономические факторы.
Процесс архитектурного проектирования реконструкции можно разделить на несколько ключевых этапов:
- Анализ существующего состояния объекта. На этом этапе проводится детальное обследование здания, включая его конструктивные элементы, инженерные системы, а также состояние фасадов и интерьеров. Важно выявить все недостатки и потенциальные проблемы, которые могут возникнуть в процессе реконструкции.
- Определение целей и задач реконструкции. На основании анализа существующего состояния формулируются цели реконструкции. Это может быть улучшение функциональности, изменение назначения, повышение энергоэффективности или сохранение исторической ценности.
- Разработка концепции реконструкции. На этом этапе архитекторы и проектировщики разрабатывают концептуальные решения, которые учитывают как технические, так и эстетические аспекты. Важно, чтобы концепция была согласована с требованиями заказчика и соответствовала действующим нормам и стандартам.
- Создание проектной документации. После утверждения концепции начинается работа над проектной документацией, которая включает в себя архитектурные, конструктивные и инженерные решения. Важно, чтобы документация была максимально детализированной и соответствовала всем требованиям законодательства.
- Согласование проекта. На этом этапе проект проходит экспертизу и согласование в различных инстанциях, включая архитектурные и градостроительные органы. Это важный этап, так как от него зависит возможность реализации проекта.
- Реализация проекта. После получения всех необходимых разрешений начинается этап реализации, который включает в себя строительство, реконструкцию и отделку. Важно обеспечить контроль за качеством выполнения работ и соблюдением проектных решений.
- Эксплуатация и мониторинг. После завершения реконструкции здание вводится в эксплуатацию. Важно проводить регулярный мониторинг состояния объекта, чтобы выявлять возможные проблемы и своевременно их устранять.
Каждый из этих этапов требует тщательной проработки и взаимодействия между различными специалистами, включая архитекторов, инженеров, строителей и заказчиков. Успех реконструкции во многом зависит от качества проектирования и способности команды адаптироваться к изменяющимся условиям и требованиям.
Одним из ключевых аспектов архитектурного проектирования реконструкции является учет историко-культурной ценности объекта. При работе с историческими зданиями необходимо соблюдать баланс между современными требованиями и сохранением аутентичности. Это может включать в себя использование традиционных материалов, восстановление оригинальных архитектурных элементов и соблюдение исторических пропорций. Важно также учитывать мнение общественности и экспертов в области охраны культурного наследия.
В процессе проектирования реконструкции также необходимо учитывать современные технологии, которые могут значительно повысить функциональность и энергоэффективность здания. Например, внедрение систем умного дома, использование возобновляемых источников энергии и современных систем отопления и вентиляции могут существенно улучшить условия эксплуатации. Архитекторы должны быть в курсе последних тенденций и инноваций, чтобы предложить заказчику оптимальные решения.
Не менее важным является учет экологических аспектов при проектировании. Реконструкция должна способствовать снижению негативного воздействия на окружающую среду. Это может включать в себя использование экологически чистых материалов, внедрение систем утилизации отходов и оптимизацию потребления ресурсов. Архитекторы и проектировщики должны стремиться к созданию устойчивых и экологически безопасных зданий.
Важным этапом является взаимодействие с заказчиком. На протяжении всего процесса проектирования необходимо поддерживать открытый диалог, чтобы учитывать пожелания и требования клиента. Это поможет избежать недопонимания и конфликтов на более поздних этапах, а также обеспечит более высокую степень удовлетворенности конечным результатом.
Кроме того, необходимо проводить оценку рисков, связанных с реконструкцией. Это может включать в себя анализ финансовых, технических и временных рисков. Понимание возможных проблем и их последствий позволит разработать стратегии для их минимизации и обеспечить успешное завершение проекта.
В заключение, архитектурное проектирование реконструкции – это сложный и многогранный процесс, который требует комплексного подхода и взаимодействия различных специалистов. Успех проекта зависит от тщательной проработки всех этапов, учета историко-культурной ценности, применения современных технологий и экологических решений, а также от эффективного взаимодействия с заказчиком. Важно помнить, что каждая реконструкция – это не только техническая задача, но и возможность создать новое пространство, которое будет служить людям и сохранять свою ценность на протяжении многих лет.
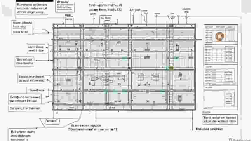
Схема планировочной организации земельного участка
Архитектурное проектирование реконструкции земельного участка представляет собой сложный и многогранный процесс, который требует глубокого понимания как архитектурных, так и инженерных аспектов. Важным этапом в этом процессе является создание схемы планировочной организации земельного участка, которая служит основой для дальнейших проектных решений.
Схема планировочной организации земельного участка включает в себя несколько ключевых элементов, которые необходимо учитывать при разработке проекта. К ним относятся:
- Анализ существующих условий: Перед началом проектирования важно провести детальный анализ текущего состояния участка. Это включает в себя изучение топографии, геологии, существующих зданий и сооружений, а также инфраструктуры.
- Определение функционального назначения: На этом этапе необходимо определить, какие функции будут выполняться на участке. Это может быть жилое, коммерческое или общественное использование, а также сочетание нескольких функций.
- Разработка концепции планировки: На основе анализа и функционального назначения разрабатывается концепция планировки, которая включает в себя размещение зданий, дорожной сети, зеленых зон и других элементов.
- Учет нормативных требований: Важно учитывать все действующие строительные нормы и правила, которые могут повлиять на проект. Это включает в себя требования к высоте зданий, отступам от границ участка и другим параметрам.
- Экологические аспекты: При проектировании необходимо учитывать влияние на окружающую среду. Это может включать в себя защиту природных ресурсов, создание зеленых зон и обеспечение устойчивого развития.
Каждый из этих элементов требует тщательной проработки и согласования с различными заинтересованными сторонами, включая местные органы власти, архитекторов, инженеров и будущих пользователей. Важно, чтобы схема планировочной организации земельного участка была не только функциональной, но и эстетически привлекательной.
На этапе проектирования также необходимо учитывать возможные ограничения, связанные с существующими зданиями и сооружениями. Реконструкция может потребовать изменения в структуре зданий, их перепланировки или даже сноса. Поэтому важно заранее оценить состояние существующих объектов и определить, какие из них могут быть сохранены, а какие требуют замены.
Кроме того, необходимо учитывать вопросы транспортной доступности и организации движения на участке. Это включает в себя проектирование дорог, парковок и пешеходных зон, что является важным аспектом для обеспечения комфортного и безопасного передвижения.
В процессе разработки схемы планировочной организации земельного участка также следует уделить внимание вопросам благоустройства. Это может включать в себя создание зеленых насаждений, установку малых архитектурных форм, освещение и другие элементы, которые сделают пространство более привлекательным и удобным для пользователей.
Таким образом, архитектурное проектирование реконструкции земельного участка требует комплексного подхода и учета множества факторов. Схема планировочной организации является важным инструментом, который помогает организовать пространство и создать функциональную, безопасную и эстетически привлекательную среду.
При разработке схемы планировочной организации земельного участка также важно учитывать аспекты, связанные с инженерными системами. Это включает в себя:
- Водоснабжение и водоотведение: Необходимо спроектировать системы водоснабжения и водоотведения, которые обеспечат надежное и эффективное функционирование всех объектов на участке. Важно учитывать как существующие сети, так и необходимость создания новых.
- Электроснабжение: Проектирование электроснабжения должно учитывать потребности всех зданий и сооружений, а также возможность подключения к существующим электросетям. Важно предусмотреть резервные источники питания для обеспечения бесперебойной работы.
- Теплоснабжение: В зависимости от назначения объектов, необходимо разработать систему теплоснабжения, которая может включать как централизованные, так и автономные источники тепла.
- Канализация: Проектирование системы канализации должно учитывать как ливневую, так и хозяйственно-бытовую канализацию, обеспечивая эффективное удаление сточных вод.
Кроме того, важным аспектом является интеграция современных технологий в проектирование. Это может включать в себя:
- Умные технологии: Внедрение систем автоматизации и управления, которые позволяют оптимизировать использование ресурсов и повысить комфорт пользователей.
- Энергоэффективные решения: Использование современных материалов и технологий, которые способствуют снижению энергозатрат и минимизации воздействия на окружающую среду.
- Инфраструктура для электромобилей: Проектирование зарядных станций для электромобилей, что становится все более актуальным в современных условиях.
Не менее важным является вопрос взаимодействия с местным сообществом. В процессе проектирования необходимо учитывать мнения и пожелания жителей, что поможет создать пространство, которое будет отвечать их потребностям и ожиданиям. Это может быть достигнуто через:
- Обсуждения и консультации: Проведение открытых встреч с жителями, где они смогут высказать свои мнения и предложения.
- Опросы и анкетирования: Сбор информации о предпочтениях и потребностях местного населения через опросы.
- Презентации проектов: Организация презентаций, на которых будут представлены концепции и идеи, чтобы жители могли ознакомиться с планами и внести свои коррективы.
Таким образом, архитектурное проектирование реконструкции земельного участка требует комплексного подхода, который включает в себя не только технические и инженерные аспекты, но и социальные, экологические и экономические факторы. Успешная реализация проекта зависит от способности команды проектировщиков учитывать все эти аспекты и находить оптимальные решения.
В заключение, важно отметить, что схема планировочной организации земельного участка является основой для дальнейшего проектирования и реализации всех этапов реконструкции. Она должна быть гибкой и адаптивной, чтобы учитывать изменения в потребностях и условиях, а также обеспечивать устойчивое развитие территории.
Объемно-планировочные и архитектурные решения
Архитектурное проектирование реконструкции представляет собой сложный и многогранный процесс, который требует глубокого понимания как существующих зданий, так и современных архитектурных тенденций. Важным аспектом этого процесса является объемно-планировочное решение, которое включает в себя не только функциональное использование пространства, но и эстетические, экологические и социальные факторы.
При разработке объемно-планировочных решений для реконструкции необходимо учитывать множество факторов, таких как:
- Состояние существующего здания: Оценка прочности конструкций, состояния фасадов, кровли и инженерных систем.
- Функциональные требования: Определение новых функций, которые будут выполняться в здании, и соответствие их современным стандартам.
- Эстетические аспекты: Сохранение исторической ценности здания и его интеграция в окружающую архитектурную среду.
- Экологические факторы: Использование устойчивых материалов и технологий, а также внедрение энергосберегающих решений.
- Социальные аспекты: Учет потребностей местного сообщества и создание комфортной городской среды.
Одним из ключевых этапов архитектурного проектирования реконструкции является анализ существующих объемно-планировочных решений. Это включает в себя изучение планировочной структуры, пропорций и взаимосвязей между различными пространствами. Важно выявить, какие элементы можно сохранить, а какие требуют изменения или полной замены.
При этом необходимо учитывать не только внутренние, но и внешние факторы. Например, расположение здания относительно окружающей инфраструктуры, доступность для пешеходов и транспорта, а также влияние на окружающую среду. Все эти аспекты должны быть интегрированы в проект, чтобы обеспечить гармоничное сосуществование нового и старого.
В процессе проектирования также важно учитывать современные технологии и материалы, которые могут значительно улучшить функциональность и эстетические качества здания. Например, использование стеклянных фасадов может не только улучшить внешний вид, но и обеспечить естественное освещение внутри помещений. В то же время, применение современных теплоизоляционных материалов позволит значительно снизить энергозатраты.
Кроме того, архитектурное проектирование реконструкции должно учитывать требования к доступности для людей с ограниченными возможностями. Это может включать в себя установку пандусов, лифтов и других элементов, которые обеспечивают комфортное передвижение по зданию.
Важным аспектом является также взаимодействие с местными властями и сообществом. Процесс реконструкции часто вызывает общественные обсуждения, и важно учитывать мнения и пожелания жителей. Это может помочь избежать конфликтов и создать проект, который будет принят и поддержан местным населением.
При разработке объемно-планировочных решений также необходимо учитывать аспекты безопасности. Это включает в себя как конструктивную безопасность, так и защиту от пожаров. Важно провести анализ рисков и разработать соответствующие меры, которые обеспечат безопасность пользователей здания. Например, проект может предусматривать установку современных систем противопожарной безопасности, а также создание безопасных эвакуационных путей.
Важным этапом является создание концептуального проекта, который включает в себя предварительные эскизы и схемы. На этом этапе архитекторы и проектировщики могут экспериментировать с различными планировочными решениями, чтобы найти оптимальный вариант. Концептуальный проект должен быть представлен на обсуждение заинтересованным сторонам, включая местные власти, жителей и потенциальных пользователей здания.
После утверждения концепции начинается этап детального проектирования, который включает в себя разработку рабочих чертежей, спецификаций и смет. На этом этапе важно учитывать все ранее обсужденные аспекты, включая функциональность, эстетику, безопасность и экологические требования. Также необходимо провести согласования с различными инстанциями, чтобы получить разрешения на строительство и реконструкцию.
В процессе реализации проекта важно обеспечить качественный контроль за выполнением работ. Это включает в себя регулярные проверки соответствия выполненных работ проектной документации, а также контроль за соблюдением сроков и бюджета. Важно, чтобы все изменения, возникающие в процессе строительства, были документированы и согласованы с проектной командой.
После завершения реконструкции необходимо провести финальную проверку и оценку выполненных работ. Это включает в себя проверку всех систем и конструкций, а также оценку соответствия здания современным стандартам и требованиям. Важно также организовать процесс передачи здания в эксплуатацию, что может включать в себя обучение персонала и подготовку необходимой документации.
Таким образом, объемно-планировочные и архитектурные решения в процессе реконструкции требуют комплексного подхода, который учитывает множество факторов. Успешная реконструкция может не только улучшить функциональность и эстетические качества здания, но и внести вклад в развитие городской среды, повысив качество жизни местных жителей.
В заключение, архитектурное проектирование реконструкции — это не просто технический процесс, а творческое взаимодействие между архитектурой, историей, современными технологиями и потребностями общества. Каждый проект уникален и требует индивидуального подхода, что делает эту область архитектуры особенно интересной и значимой.
Конструктивные решения
Архитектурное проектирование реконструкции представляет собой сложный и многогранный процесс, который требует глубокого понимания как архитектурных принципов, так и специфики существующих зданий. Важным аспектом этого процесса является выбор конструктивных решений, которые обеспечивают не только функциональность и эстетическую привлекательность, но и безопасность, долговечность и экономическую целесообразность. В данной статье мы рассмотрим основные конструктивные решения, применяемые в архитектурном проектировании реконструкции.
Первым шагом в процессе реконструкции является анализ существующей конструкции здания. Это включает в себя оценку состояния несущих элементов, таких как стены, перекрытия и фундаменты. В зависимости от результатов этого анализа, могут быть выбраны различные подходы к реконструкции:
- Укрепление существующих конструкций. В некоторых случаях возможно сохранить оригинальные элементы здания, усилив их с помощью современных материалов и технологий. Это может включать в себя использование стальных или композитных вставок, которые увеличивают прочность и устойчивость конструкции.
- Замена несущих элементов. Если состояние существующих конструкций не позволяет их использовать, может потребоваться полная замена несущих элементов. Это решение требует тщательного проектирования, чтобы обеспечить соответствие новым элементам с остальной частью здания.
- Добавление новых конструктивных элементов. В процессе реконструкции может возникнуть необходимость в добавлении новых конструктивных элементов, таких как дополнительные стены или колонны, для улучшения функциональности и распределения нагрузки.
При выборе конструктивных решений также необходимо учитывать архитектурный стиль здания и его историческую ценность. Важно, чтобы новые элементы гармонично вписывались в общий облик здания и не нарушали его историческую целостность. Это может потребовать использования традиционных материалов и технологий, которые были характерны для времени постройки здания.
Кроме того, необходимо учитывать современные требования к энергоэффективности и устойчивости зданий. Внедрение новых технологий, таких как системы теплоизоляции, солнечные панели и системы управления энергией, может значительно повысить эффективность здания и снизить его эксплуатационные расходы.
Важным аспектом является также соблюдение норм и стандартов, регулирующих реконструкцию зданий. Это включает в себя как строительные нормы, так и требования к охране культурного наследия. Проектировщики должны быть в курсе всех актуальных норм и стандартов, чтобы избежать юридических проблем и обеспечить безопасность пользователей здания.
В процессе проектирования реконструкции также важно учитывать потребности будущих пользователей. Это может включать в себя создание удобных и доступных пространств, а также обеспечение необходимой инфраструктуры, такой как системы отопления, вентиляции и кондиционирования воздуха. Участие пользователей в процессе проектирования может помочь выявить их потребности и предпочтения, что в конечном итоге приведет к более успешному проекту.
Одним из ключевых аспектов конструктивных решений в архитектурном проектировании реконструкции является выбор материалов. Современные технологии предлагают широкий спектр строительных материалов, которые могут быть использованы для укрепления и восстановления существующих конструкций. Например, использование высокопрочных бетонов, легких стальных конструкций и композитных материалов позволяет значительно улучшить характеристики зданий, сохраняя при этом их историческую ценность.
При выборе материалов необходимо учитывать не только их прочностные характеристики, но и экологические аспекты. В последние годы наблюдается рост интереса к устойчивым и экологически чистым материалам, которые минимизируют негативное воздействие на окружающую среду. Это может включать в себя использование переработанных материалов, а также материалов с низким уровнем углеродного следа.
Также важным аспектом является интеграция новых технологий в процесс реконструкции. Например, применение BIM-технологий (информационного моделирования зданий) позволяет более точно планировать и визуализировать проект, а также выявлять потенциальные проблемы на ранних стадиях. Это значительно снижает риски и затраты, связанные с реконструкцией.
Не менее важным является вопрос о взаимодействии с местными властями и сообществом. Процесс реконструкции может вызывать различные мнения и эмоции у жителей, особенно если речь идет о зданиях, имеющих историческую ценность. Поэтому важно проводить общественные обсуждения и учитывать мнения местных жителей при разработке проектных решений. Это не только способствует лучшему восприятию проекта, но и может привести к более качественным и востребованным решениям.
В процессе реконструкции также необходимо учитывать аспекты безопасности. Это включает в себя как безопасность строительных работ, так и безопасность эксплуатации здания после завершения реконструкции. Проектировщики должны предусмотреть все возможные риски и разработать соответствующие меры по их минимизации. Это может включать в себя установку современных систем безопасности, таких как видеонаблюдение, системы контроля доступа и противопожарные системы.
В заключение, конструктивные решения в архитектурном проектировании реконструкции требуют комплексного подхода, который учитывает множество факторов, включая состояние существующих конструкций, выбор материалов, современные технологии, экологические аспекты и потребности пользователей. Успешная реконструкция может не только продлить срок службы здания, но и значительно улучшить его функциональность и эстетическую привлекательность, что в конечном итоге способствует развитию городской среды и повышению качества жизни ее жителей.
Системы электроснабжения
Архитектурное проектирование реконструкции систем электроснабжения является важным этапом в процессе модернизации и обновления существующих объектов. В условиях постоянного роста потребностей в электроэнергии и увеличения требований к качеству электроснабжения, необходимо учитывать множество факторов, которые влияют на эффективность и безопасность работы систем.
Первым шагом в архитектурном проектировании является анализ существующих систем. Это включает в себя оценку текущего состояния электроснабжения, выявление недостатков и проблем, а также определение возможностей для улучшения. Важно провести детальное обследование всех компонентов системы, включая трансформаторы, распределительные устройства, кабельные линии и системы защиты.
На основе полученных данных разрабатывается концепция реконструкции. Она должна учитывать не только технические аспекты, но и архитектурные особенности здания, в котором расположены системы электроснабжения. Важно, чтобы новые решения гармонично вписывались в существующую архитектуру и не нарушали ее эстетические качества.
При проектировании необходимо учитывать нормативные требования и стандарты, которые регулируют проектирование и эксплуатацию систем электроснабжения. Это включает в себя правила по безопасности, энергоэффективности и экологии. Все изменения должны соответствовать действующим законодательным актам и требованиям местных органов власти.
Следующим этапом является разработка проектной документации. Она включает в себя схемы, чертежи, спецификации и расчеты, которые необходимы для реализации проекта. Важно, чтобы документация была максимально подробной и понятной для всех участников процесса, включая строителей и инженеров.
В процессе проектирования также необходимо учитывать инновационные технологии, которые могут повысить эффективность систем электроснабжения. Это может включать в себя использование современных материалов, автоматизированных систем управления и альтернативных источников энергии. Внедрение таких технологий может значительно снизить эксплуатационные расходы и повысить надежность систем.
Не менее важным аспектом является координация с другими проектами, которые могут быть реализованы на объекте. Это может включать в себя работы по реконструкции других инженерных систем, таких как водоснабжение, отопление и вентиляция. Важно, чтобы все работы проводились в едином ключе и не мешали друг другу.
После завершения проектирования наступает этап реализации проекта. Он включает в себя монтаж и наладку оборудования, а также проверку работоспособности всех систем. Важно, чтобы все работы проводились квалифицированными специалистами, которые имеют опыт в области электроснабжения и реконструкции.
По завершении всех работ необходимо провести тестирование и ввод в эксплуатацию обновленных систем. Это включает в себя проверку всех функций, тестирование на соответствие нормативам и получение необходимых разрешений от контролирующих органов. Только после успешного завершения всех этапов проект может быть признан завершенным.
Одним из ключевых аспектов успешной реконструкции систем электроснабжения является управление проектом. Это включает в себя планирование, организацию и контроль всех этапов реализации. Эффективное управление проектом позволяет минимизировать риски, связанные с задержками и перерасходом бюджета. Важно установить четкие сроки выполнения работ и определить ответственных за каждый этап.
В процессе управления проектом необходимо также учитывать взаимодействие с подрядчиками. Выбор надежных и квалифицированных подрядчиков играет важную роль в успешной реализации проекта. Необходимо проводить тщательный отбор, основываясь на опыте, репутации и финансовой стабильности компаний. Регулярные встречи и обсуждения с подрядчиками помогут избежать недоразумений и обеспечить высокое качество выполнения работ.
Кроме того, важным элементом является обучение персонала. После завершения реконструкции необходимо провести обучение сотрудников, которые будут эксплуатировать и обслуживать новые системы. Это поможет избежать ошибок в работе и повысить общую эффективность системы. Обучение может включать как теоретические занятия, так и практические тренировки на месте.
Не стоит забывать и о последующем обслуживании систем электроснабжения. Регулярное техническое обслуживание и плановые проверки помогут предотвратить возможные неисправности и продлить срок службы оборудования. Разработка графика обслуживания и четких инструкций для персонала является важной частью успешной эксплуатации систем.
Важным аспектом является также мониторинг и анализ работы систем. Современные технологии позволяют внедрять системы автоматизированного мониторинга, которые обеспечивают постоянный контроль за состоянием оборудования и его работоспособностью. Это позволяет оперативно реагировать на возникающие проблемы и проводить необходимые корректировки.
В заключение, архитектурное проектирование реконструкции систем электроснабжения требует комплексного подхода, который включает в себя анализ, проектирование, реализацию и последующее обслуживание. Успех проекта зависит от множества факторов, включая квалификацию специалистов, использование современных технологий и эффективное управление. Важно помнить, что каждая реконструкция уникальна и требует индивидуального подхода, учитывающего специфику объекта и потребности его пользователей.
системы водоснабжения
Архитектурное проектирование реконструкции систем водоснабжения представляет собой сложный и многогранный процесс, который требует глубокого понимания как технических, так и эстетических аспектов. В условиях постоянного роста населения и увеличения потребностей в ресурсах, необходимость в модернизации существующих систем становится все более актуальной. Реконструкция систем водоснабжения включает в себя не только обновление оборудования, но и переосмысление архитектурных решений, которые могут значительно повысить эффективность и надежность водоснабжения.
Первым этапом в процессе реконструкции является анализ существующей системы. Это включает в себя оценку текущего состояния инфраструктуры, выявление узких мест и проблемных зон, а также анализ потребностей пользователей. Важно учитывать не только технические характеристики, но и социальные аспекты, такие как доступность воды для различных групп населения.
На основе проведенного анализа разрабатывается концепция реконструкции. Она должна учитывать как современные технологии, так и требования к устойчивому развитию. Важно, чтобы проект был не только функциональным, но и эстетически привлекательным. Это может включать в себя использование новых материалов, которые гармонично вписываются в окружающую среду, а также внедрение инновационных решений, таких как системы сбора дождевой воды или очистки сточных вод.
Следующим шагом является разработка проектной документации. На этом этапе создаются детализированные чертежи и схемы, которые включают в себя все элементы системы водоснабжения: от источников воды до распределительных сетей и конечных точек потребления. Важно, чтобы проектная документация соответствовала всем действующим нормам и стандартам, а также учитывала возможные риски и ограничения.
При проектировании необходимо также учитывать экологические аспекты. Реконструкция систем водоснабжения должна минимизировать негативное воздействие на окружающую среду. Это может включать в себя использование экологически чистых технологий, а также внедрение систем мониторинга и управления, которые позволяют отслеживать состояние водных ресурсов и предотвращать их загрязнение.
После завершения проектирования начинается этап реализации. Он включает в себя не только строительство и монтаж новых элементов системы, но и демонтаж устаревших конструкций. Важно, чтобы этот процесс проходил с минимальными неудобствами для населения и не нарушал привычный ритм жизни города. Для этого может потребоваться разработка временных схем водоснабжения и информирование жителей о предстоящих работах.
В процессе реализации проекта также необходимо проводить контроль качества выполняемых работ. Это включает в себя регулярные проверки соответствия выполненных работ проектной документации, а также тестирование новых систем на предмет их эффективности и надежности. Важно, чтобы все работы выполнялись в соответствии с установленными стандартами и нормами безопасности.
После завершения всех строительных работ наступает этап ввода в эксплуатацию. На этом этапе проводятся финальные проверки и тестирования системы, а также обучение персонала, который будет отвечать за ее обслуживание. Важно, чтобы все сотрудники были хорошо подготовлены и знали, как правильно использовать новые технологии и оборудование.
Таким образом, архитектурное проектирование реконструкции систем водоснабжения является многоступенчатым процессом, который требует комплексного подхода и взаимодействия различных специалистов. Успешная реализация таких проектов может значительно улучшить качество жизни населения и обеспечить устойчивое развитие городов.
После ввода системы в эксплуатацию важным этапом является мониторинг и оценка эффективности работы обновленной инфраструктуры. Это включает в себя регулярные проверки состояния оборудования, анализ данных о потреблении воды и выявление возможных проблем. Использование современных технологий, таких как системы автоматизированного управления и мониторинга, позволяет оперативно реагировать на изменения и предотвращать аварийные ситуации.
Кроме того, необходимо обеспечить обратную связь с пользователями системы. Это может быть реализовано через опросы, горячие линии или онлайн-платформы, где жители могут сообщать о проблемах или давать предложения по улучшению работы водоснабжения. Учет мнения населения способствует повышению доверия к системе и улучшению ее работы.
Важным аспектом является обучение и повышение квалификации персонала, который будет обслуживать обновленную систему. Регулярные тренинги и семинары помогут сотрудникам быть в курсе новых технологий и методов работы, что, в свою очередь, повысит общую эффективность системы водоснабжения.
Не менее значимым является планирование дальнейшего развития системы. Реконструкция не должна рассматриваться как конечный этап, а скорее как часть непрерывного процесса улучшения. Важно заранее предусмотреть возможность дальнейшего расширения и модернизации системы, чтобы она могла адаптироваться к изменяющимся условиям и потребностям населения.
Также стоит обратить внимание на финансирование проектов по реконструкции. Эффективное распределение бюджетных средств и привлечение инвестиций могут значительно ускорить процесс обновления инфраструктуры. Важно разработать четкие финансовые модели, которые позволят обеспечить устойчивое финансирование на всех этапах реализации проекта.
В заключение, архитектурное проектирование реконструкции систем водоснабжения требует комплексного подхода, который включает в себя анализ, проектирование, реализацию и последующий мониторинг. Успешная реализация таких проектов не только улучшает качество водоснабжения, но и способствует устойчивому развитию городов, повышая уровень жизни населения и защищая окружающую среду.
Таким образом, архитектурное проектирование реконструкции систем водоснабжения является важным инструментом для обеспечения устойчивого развития и повышения качества жизни в городах. Важно, чтобы все этапы этого процесса были тщательно продуманы и реализованы с учетом современных технологий и потребностей общества.
системы водоотведения
Архитектурное проектирование систем водоотведения является важным аспектом в процессе реконструкции зданий и сооружений. Водоотведение играет ключевую роль в обеспечении санитарных условий, предотвращении затоплений и поддержании устойчивости конструкций. При проектировании систем водоотведения необходимо учитывать множество факторов, включая тип здания, его расположение, климатические условия и существующую инфраструктуру.
Первым этапом в проектировании систем водоотведения является анализ существующих условий. Это включает в себя изучение текущих систем водоотведения, их состояния и эффективности. Важно провести обследование, чтобы выявить возможные проблемы, такие как засоры, повреждения трубопроводов или недостаточная пропускная способность. Также следует учитывать изменения в использовании здания, которые могут повлиять на объем сточных вод.
На основе собранной информации разрабатывается концепция новой системы водоотведения. Это может включать в себя как полную замену существующих систем, так и их модернизацию. Важно определить, какие технологии и материалы будут использоваться, чтобы обеспечить долговечность и эффективность системы. Например, в современных проектах часто применяются пластиковые трубы, которые обладают высокой коррозионной стойкостью и легкостью в установке.
Следующим шагом является разработка проектной документации. Включает в себя создание чертежей, схем и спецификаций, которые детализируют все элементы системы водоотведения. Важно, чтобы проект соответствовал действующим строительным нормам и правилам, а также учитывал требования местных органов власти. На этом этапе также следует провести расчеты, чтобы определить необходимую пропускную способность системы и оптимальные диаметры труб.
После завершения проектирования начинается этап реализации. Важно тщательно планировать все этапы работ, чтобы минимизировать влияние на функционирование здания и окружающей инфраструктуры. В процессе реконструкции могут возникнуть непредвиденные обстоятельства, такие как необходимость в дополнительных работах по укреплению фундамента или изменению ландшафта. Поэтому важно иметь гибкий подход и готовность к изменениям в проекте.
Кроме того, необходимо учитывать экологические аспекты при проектировании систем водоотведения. Современные технологии позволяют использовать системы, которые минимизируют негативное воздействие на окружающую среду. Например, можно внедрять системы дождевой воды, которые позволяют собирать и использовать дождевую воду для полива или технических нужд, что снижает нагрузку на канализацию и экономит ресурсы.
Важным аспектом является обучение и информирование пользователей о правильной эксплуатации систем водоотведения. После завершения реконструкции необходимо провести инструктаж для сотрудников и жильцов, чтобы они знали, как правильно использовать систему и предотвращать ее засоры. Это поможет продлить срок службы системы и избежать дополнительных затрат на ее обслуживание.
Следующим важным этапом является мониторинг и обслуживание системы водоотведения после ее установки. Регулярные проверки и техническое обслуживание позволяют выявлять и устранять потенциальные проблемы до того, как они станут серьезными. Это включает в себя очистку трубопроводов, проверку состояния насосов и резервуаров, а также контроль за уровнем сточных вод. Эффективное обслуживание системы водоотведения способствует ее долговечности и надежности.
В процессе эксплуатации системы водоотведения также важно учитывать инновационные технологии, которые могут повысить эффективность и снизить затраты. Например, использование датчиков уровня и автоматизированных систем управления позволяет оптимизировать работу насосов и предотвратить переполнение резервуаров. Такие технологии могут значительно снизить риск затоплений и улучшить общую производительность системы.
Не менее важным аспектом является интеграция систем водоотведения с другими инженерными системами здания. Это может включать в себя взаимодействие с системами отопления, вентиляции и кондиционирования воздуха, а также с системами управления отходами. Комплексный подход к проектированию и эксплуатации всех инженерных систем позволяет создать более устойчивую и эффективную инфраструктуру.
При проектировании систем водоотведения также следует учитывать социальные аспекты. Важно вовлекать местное население в процесс планирования и реконструкции, чтобы учесть их потребности и ожидания. Открытое общение с жителями может помочь избежать конфликтов и повысить уровень доверия к проекту. Кроме того, информирование о преимуществах новой системы может способствовать ее более эффективному использованию.
В заключение, архитектурное проектирование и реконструкция систем водоотведения требуют комплексного подхода, который учитывает технические, экологические и социальные аспекты. Успешная реализация таких проектов зависит от тщательного планирования, использования современных технологий и постоянного мониторинга. Это позволит создать эффективные и устойчивые системы, которые будут служить на благо общества и окружающей среды.
системы отопление вентиляции и кондиционирования воздуха
Архитектурное проектирование в области систем отопления, вентиляции и кондиционирования воздуха (ОВК) играет ключевую роль в создании комфортной и безопасной среды для проживания и работы. В процессе реконструкции зданий и сооружений необходимо учитывать множество факторов, включая существующие конструкции, требования к энергоэффективности и современные технологии. В этом контексте важно рассмотреть основные этапы проектирования систем ОВК, а также их интеграцию в архитектурное решение.
Первым этапом является анализ существующих условий. Это включает в себя оценку текущих систем отопления, вентиляции и кондиционирования, а также их состояния и эффективности. Специалисты проводят обследование зданий, чтобы выявить недостатки и возможности для улучшения. Важно учитывать не только технические характеристики, но и архитектурные особенности, такие как планировка помещений, высота потолков и расположение окон.
На следующем этапе разрабатывается концепция реконструкции. Это включает в себя выбор оптимальных решений для систем ОВК, которые будут соответствовать современным стандартам и требованиям. Важно учитывать не только функциональность, но и эстетические аспекты, чтобы системы не нарушали общий архитектурный стиль здания. Например, в исторических зданиях может потребоваться скрыть вентиляционные каналы или использовать специальные решения для кондиционирования, которые не будут заметны снаружи.
После разработки концепции начинается проектирование систем. На этом этапе создаются детализированные чертежи и схемы, которые включают в себя расположение оборудования, воздуховодов, радиаторов и других элементов. Важно учитывать не только технические характеристики, но и возможность их интеграции в существующую архитектуру. Например, при проектировании вентиляционных систем необходимо учитывать, как воздух будет поступать в помещения и как будет обеспечиваться его циркуляция.
Кроме того, на этапе проектирования необходимо провести расчеты для определения необходимых мощностей оборудования. Это включает в себя теплотехнические расчеты для систем отопления, а также гидравлические расчеты для систем вентиляции. Специалисты должны учитывать климатические условия региона, а также особенности эксплуатации здания. Например, в офисных зданиях может потребоваться более мощное кондиционирование в летний период, в то время как жилые помещения могут требовать более равномерного распределения тепла.
Следующим важным этапом является выбор оборудования. На этом этапе необходимо учитывать не только технические характеристики, но и энергоэффективность, уровень шума и стоимость. Современные системы ОВК предлагают широкий выбор оборудования, включая тепловые насосы, котлы, кондиционеры и системы вентиляции с рекуперацией тепла. Важно выбрать такие решения, которые будут соответствовать требованиям проекта и обеспечивать максимальную эффективность.
После выбора оборудования начинается монтаж систем. Этот этап включает в себя установку всех элементов, включая воздуховоды, радиаторы, кондиционеры и другое оборудование. Важно, чтобы монтаж проводился в соответствии с проектной документацией и с соблюдением всех норм и стандартов. На этом этапе также проводятся испытания систем для проверки их работоспособности и эффективности.
Завершающим этапом является обслуживание и эксплуатация систем ОВК. После завершения реконструкции необходимо обеспечить регулярное техническое обслуживание, чтобы гарантировать надежную работу систем и их эффективность. Это включает в себя чистку фильтров, проверку работы оборудования и устранение возможных неисправностей. Регулярное обслуживание позволяет продлить срок службы систем и снизить затраты на энергоресурсы.
Важным аспектом архитектурного проектирования систем ОВК является интеграция с другими инженерными системами. Это включает в себя взаимодействие с системами электроснабжения, водоснабжения и канализации. При проектировании необходимо учитывать, как системы будут взаимодействовать друг с другом, чтобы избежать конфликтов и обеспечить эффективную работу всего комплекса. Например, системы вентиляции могут требовать электрического питания, а также могут быть связаны с системами автоматизации для управления климатом в помещениях.
Также стоит обратить внимание на экологические аспекты проектирования. Современные требования к устойчивому развитию и охране окружающей среды требуют от проектировщиков учитывать влияние систем ОВК на природу. Это может включать в себя использование возобновляемых источников энергии, таких как солнечные панели или геотермальные системы, а также применение энергоэффективных технологий, которые снижают потребление ресурсов. Важно также учитывать возможность использования систем рекуперации, которые позволяют повторно использовать тепло, выделяемое в процессе работы.
Не менее важным является учет нормативных требований. Проектирование систем ОВК должно соответствовать действующим строительным нормам и правилам, а также стандартам безопасности. Это включает в себя требования к вентиляции, отоплению и кондиционированию, которые могут варьироваться в зависимости от типа здания и его назначения. Например, для общественных зданий могут быть установлены более строгие требования к качеству воздуха и уровню шума.
В процессе проектирования также необходимо учитывать потребности пользователей. Это включает в себя опросы и исследования, которые помогут понять, какие условия являются наиболее комфортными для людей, которые будут использовать здание. Например, в офисах важно обеспечить оптимальную температуру и уровень влажности, а в жилых помещениях – создать уютную атмосферу. Учет потребностей пользователей позволяет создать более комфортные и функциональные пространства.
При реализации проектов реконструкции систем ОВК также важно учитывать финансовые аспекты. Проектировщики должны проводить анализ затрат на установку и эксплуатацию систем, чтобы обеспечить их экономическую целесообразность. Это включает в себя не только первоначальные инвестиции, но и долгосрочные расходы на обслуживание и энергопотребление. Эффективное управление бюджетом позволяет избежать перерасходов и обеспечить успешную реализацию проекта.
В заключение, архитектурное проектирование систем отопления, вентиляции и кондиционирования воздуха в процессе реконструкции зданий требует комплексного подхода. Успешная реализация проектов зависит от тщательного анализа существующих условий, разработки концепции, проектирования, выбора оборудования, монтажа и последующего обслуживания. Учет всех этих факторов позволяет создать эффективные и комфортные системы, которые будут служить долгие годы.
слаботочные системы
Архитектурное проектирование реконструкции слаботочных систем представляет собой важный аспект в процессе обновления и модернизации существующих зданий и сооружений. Слаботочные системы включают в себя различные технологии, такие как системы видеонаблюдения, охранной сигнализации, системы контроля доступа, а также системы связи и автоматизации. Эти системы играют ключевую роль в обеспечении безопасности, комфорта и функциональности зданий.
При проектировании реконструкции слаботочных систем необходимо учитывать множество факторов, включая существующую инфраструктуру, требования к безопасности, а также современные технологии и стандарты. Важно провести детальный анализ текущего состояния систем, чтобы определить, какие элементы нуждаются в обновлении или замене.
Этапы проектирования реконструкции слаботочных систем:
- Анализ существующих систем: На этом этапе проводится оценка текущих слаботочных систем, их функциональности и состояния. Важно выявить недостатки и определить, какие системы требуют модернизации.
- Определение требований: На основе анализа необходимо сформулировать требования к новым системам. Это может включать в себя требования по безопасности, удобству использования, интеграции с другими системами и т.д.
- Проектирование новых решений: На этом этапе разрабатываются новые решения, которые будут внедрены в процессе реконструкции. Это может включать в себя выбор оборудования, проектирование схем подключения и т.д.
- Согласование проектных решений: После разработки проектных решений необходимо согласовать их с заказчиком и другими заинтересованными сторонами. Это может включать в себя получение разрешений и согласований от органов власти.
- Внедрение и тестирование: После согласования проектных решений начинается процесс внедрения новых систем. Важно провести тестирование всех систем, чтобы убедиться в их корректной работе.
Каждый из этих этапов требует внимательного подхода и профессионализма, так как от качества проектирования зависит не только функциональность, но и безопасность всего здания. Важно также учитывать, что слаботочные системы должны быть интегрированы с другими инженерными системами здания, такими как электроснабжение, вентиляция и отопление.
Современные технологии в слаботочных системах: В последние годы наблюдается активное внедрение новых технологий в области слаботочных систем. Это включает в себя использование IP-камер для видеонаблюдения, беспроводные системы охранной сигнализации, а также системы умного дома, которые позволяют управлять различными функциями здания через мобильные приложения.
При проектировании реконструкции слаботочных систем важно учитывать не только текущие потребности, но и перспективы на будущее. Это означает, что системы должны быть гибкими и масштабируемыми, чтобы их можно было легко адаптировать под изменяющиеся условия и требования.
Кроме того, необходимо учитывать вопросы энергоэффективности и устойчивого развития. Современные слаботочные системы должны быть не только функциональными, но и экономичными в эксплуатации. Это может включать в себя использование энергосберегающего оборудования, а также внедрение систем автоматизации, которые позволяют оптимизировать потребление ресурсов.
Таким образом, архитектурное проектирование реконструкции слаботочных систем является сложным и многогранным процессом, который требует глубоких знаний и опыта. Успешная реализация таких проектов может значительно повысить уровень безопасности и комфорта в зданиях, а также продлить срок их службы.
Интеграция слаботочных систем: Одним из ключевых аспектов проектирования является интеграция различных слаботочных систем в единую сеть. Это позволяет обеспечить более высокий уровень безопасности и удобства для пользователей. Например, системы видеонаблюдения могут быть связаны с системами охранной сигнализации, что позволяет автоматически активировать камеры при срабатывании сигнализации. Также важно учитывать возможность интеграции с системами управления зданием (BMS), что позволяет централизованно управлять всеми инженерными системами.
Выбор оборудования: При проектировании необходимо тщательно подбирать оборудование, которое будет использоваться в слаботочных системах. Важно учитывать не только технические характеристики, но и репутацию производителей, а также возможность получения технической поддержки и сервисного обслуживания. Современные технологии предлагают широкий выбор оборудования, включая IP-камеры, системы контроля доступа, датчики движения и другие устройства, которые могут быть адаптированы под конкретные условия эксплуатации.
Документация и проектирование: В процессе проектирования необходимо создавать полную документацию, которая будет включать в себя схемы подключения, спецификации оборудования, а также инструкции по монтажу и настройке систем. Это поможет избежать ошибок при установке и обеспечит правильную эксплуатацию систем в будущем. Документация также должна содержать информацию о проведенных испытаниях и тестированиях, что является важным аспектом для подтверждения качества выполненных работ.
Обучение персонала: После завершения установки слаботочных систем необходимо провести обучение персонала, который будет отвечать за их эксплуатацию и обслуживание. Это включает в себя обучение работе с оборудованием, а также правилам безопасности. Квалифицированный персонал способен быстро реагировать на возможные неисправности и обеспечивать бесперебойную работу систем.
Мониторинг и обслуживание: Важно организовать регулярный мониторинг и техническое обслуживание слаботочных систем. Это позволяет выявлять и устранять потенциальные проблемы до того, как они приведут к серьезным сбоям в работе. Регулярные проверки и профилактическое обслуживание помогают продлить срок службы оборудования и снизить затраты на его эксплуатацию.
Заключение: Архитектурное проектирование реконструкции слаботочных систем требует комплексного подхода и учета множества факторов. Успешная реализация таких проектов позволяет значительно повысить уровень безопасности и комфорта в зданиях, а также обеспечить их эффективное функционирование на протяжении многих лет. Важно следовать современным тенденциям и технологиям, чтобы обеспечить максимальную эффективность и надежность слаботочных систем.
системы газоснабжения
Архитектурное проектирование реконструкции систем газоснабжения представляет собой сложный и многогранный процесс, который требует глубокого понимания как технических, так и архитектурных аспектов. В условиях постоянного роста потребностей в энергообеспечении и необходимости модернизации существующих систем, проектирование реконструкции становится особенно актуальным.
Первым этапом в процессе реконструкции является анализ существующей системы газоснабжения. Это включает в себя оценку текущего состояния газопроводов, оборудования, а также их соответствия современным стандартам безопасности и эффективности. Важно учитывать не только технические характеристики, но и возраст оборудования, его износ, а также возможность дальнейшей эксплуатации.
На этом этапе также проводится инвентаризация объектов, что позволяет выявить все элементы системы, включая газовые котлы, компрессоры, регуляторы давления и другие компоненты. Инвентаризация помогает определить, какие элементы требуют замены, а какие могут быть модернизированы или оставлены без изменений.
Следующим шагом является разработка проектной документации. Этот процесс включает в себя создание схем и чертежей, которые отражают новые решения по реконструкции. Важно, чтобы проектная документация соответствовала действующим нормам и правилам, а также учитывала требования местных органов власти и экологические стандарты.
При проектировании необходимо учитывать потребности пользователей и особенности эксплуатации системы. Это может включать в себя анализ потребления газа, прогнозирование роста потребностей, а также оценку влияния реконструкции на окружающую среду. Важно, чтобы проект учитывал не только текущие, но и будущие потребности, что позволит избежать необходимости повторной реконструкции в ближайшие годы.
Одним из ключевых аспектов является выбор технологий и материалов, которые будут использоваться в процессе реконструкции. Современные технологии позволяют значительно повысить эффективность систем газоснабжения, снизить потери и улучшить безопасность. При выборе материалов необходимо учитывать их долговечность, устойчивость к коррозии и другие эксплуатационные характеристики.
Не менее важным является учет архитектурных особенностей зданий и сооружений, в которых будет осуществляться реконструкция. Это может включать в себя как внешние, так и внутренние изменения, которые могут повлиять на общий облик и функциональность объектов. Архитектурное проектирование должно гармонично сочетать технические решения с эстетическими требованиями, что позволит создать не только эффективную, но и привлекательную систему газоснабжения.
В процессе проектирования также необходимо учитывать безопасность и экологические аспекты. Это включает в себя разработку мер по предотвращению аварийных ситуаций, а также минимизацию негативного воздействия на окружающую среду. Важно, чтобы проект соответствовал всем требованиям безопасности и экологическим стандартам, что позволит избежать потенциальных рисков.
После завершения проектирования наступает этап реализации проекта. Это включает в себя не только строительство и монтаж новых элементов системы, но и демонтаж устаревших компонентов. Важно, чтобы все работы проводились в соответствии с проектной документацией и с соблюдением всех норм и правил. На этом этапе также осуществляется контроль качества выполняемых работ, что позволяет выявить и устранить возможные недостатки на ранних стадиях.
Завершение реконструкции системы газоснабжения требует проверки и тестирования всех новых элементов. Это включает в себя испытания на герметичность, проверку работы оборудования и систем управления. Только после успешного завершения всех тестов система может быть введена в эксплуатацию.
После успешного завершения всех тестов и проверок, система газоснабжения вводится в эксплуатацию. На этом этапе важно обеспечить обучение персонала, который будет отвечать за эксплуатацию и обслуживание новой системы. Обучение должно охватывать все аспекты работы с оборудованием, включая правила безопасности, методы диагностики и устранения неисправностей.
Кроме того, необходимо разработать план технического обслуживания, который будет включать регулярные проверки, профилактические работы и плановые ремонты. Это позволит поддерживать систему в исправном состоянии и продлить срок ее службы. Важно, чтобы план технического обслуживания был адаптирован к специфике эксплуатации системы и учитывал все возможные риски.
В процессе эксплуатации системы газоснабжения также необходимо мониторить ее эффективность. Это включает в себя сбор данных о потреблении газа, анализ работы оборудования и оценку его производительности. Мониторинг позволяет выявлять возможные проблемы на ранних стадиях и принимать меры для их устранения, что способствует повышению общей эффективности системы.
Не менее важным аспектом является взаимодействие с потребителями. Важно обеспечить прозрачность в вопросах поставок газа, а также информировать пользователей о возможных изменениях в работе системы. Это может включать в себя регулярные отчеты о состоянии системы, а также уведомления о плановых работах и возможных отключениях.
В условиях постоянного развития технологий и изменения нормативных требований, системы газоснабжения требуют постоянной модернизации. Это может включать в себя как замену устаревшего оборудования, так и внедрение новых технологий, которые позволяют повысить эффективность и безопасность системы. Модернизация должна проводиться с учетом всех предыдущих этапов проектирования и эксплуатации, чтобы обеспечить максимальную эффективность и минимальные риски.
Важным аспектом является экологическая устойчивость системы газоснабжения. Современные технологии позволяют значительно снизить выбросы вредных веществ и минимизировать негативное воздействие на окружающую среду. При проектировании и реконструкции систем необходимо учитывать экологические аспекты, что позволит создать более безопасные и устойчивые решения.
В заключение, архитектурное проектирование реконструкции систем газоснабжения является многогранным процессом, который требует комплексного подхода и учета множества факторов. От анализа существующей системы до внедрения новых технологий, каждый этап играет важную роль в создании эффективной и безопасной системы газоснабжения. Успешная реализация проекта зависит от грамотного планирования, тщательного контроля и постоянного мониторинга, что в конечном итоге обеспечивает надежное и безопасное газоснабжение для потребителей.
Технологические решения
Архитектурное проектирование реконструкции представляет собой сложный и многогранный процесс, который требует применения различных технологических решений. В условиях постоянного изменения требований к зданиям и сооружениям, а также с учетом необходимости их адаптации к современным условиям, архитекторы и проектировщики сталкиваются с рядом задач, которые требуют инновационных подходов и технологий.
Одним из ключевых аспектов архитектурного проектирования реконструкции является анализ существующих объектов. Это включает в себя оценку состояния зданий, их конструктивных элементов, а также изучение исторической и культурной ценности. Для этого используются современные методы обследования, такие как лазерное сканирование, которое позволяет получить точные трехмерные модели объектов. Эти модели служат основой для дальнейшего проектирования и позволяют выявить скрытые дефекты, которые могут повлиять на безопасность и долговечность реконструируемого здания.
Следующим этапом является разработка концепции реконструкции. На этом этапе архитекторы определяют цели и задачи проекта, а также разрабатывают предварительные эскизы и планы. Важно учитывать не только функциональные требования, но и эстетические аспекты, которые помогут сохранить уникальность объекта. В этом контексте активно применяются программные решения, такие как CAD-системы, которые позволяют создавать детализированные чертежи и визуализации.
При проектировании реконструкции также необходимо учитывать нормативные требования и стандарты, которые регулируют строительство и реконструкцию объектов. Это включает в себя соблюдение правил безопасности, энергоэффективности и доступности для людей с ограниченными возможностями. Важно, чтобы проект соответствовал современным требованиям, что может потребовать внедрения новых технологий, таких как системы автоматизации и управления зданием.
Одним из современных подходов в архитектурном проектировании является использование BIM-технологий (Building Information Modeling). Эти технологии позволяют создавать цифровые модели зданий, которые содержат всю необходимую информацию о проекте, включая данные о материалах, конструкциях и инженерных системах. BIM-модели облегчают координацию между различными участниками проекта, что особенно важно при реконструкции, где часто задействовано множество специалистов.
Кроме того, экологические аспекты играют важную роль в процессе реконструкции. Современные технологии позволяют использовать экологически чистые материалы и внедрять системы, способствующие снижению энергопотребления. Например, использование солнечных панелей, систем рекуперации тепла и зеленых кровель может значительно повысить энергоэффективность реконструируемого здания.
Не менее важным является учет социальных факторов. Реконструкция зданий часто затрагивает интересы местных сообществ, поэтому важно проводить консультации с жителями и учитывать их мнение при разработке проекта. Это может включать в себя создание общественных пространств, которые будут способствовать развитию местной инфраструктуры и улучшению качества жизни.
В заключение, архитектурное проектирование реконструкции требует комплексного подхода и применения современных технологических решений. Каждый этап процесса, от анализа существующих объектов до внедрения инновационных технологий, играет важную роль в создании функциональных и эстетически привлекательных зданий, которые соответствуют современным требованиям и ожиданиям общества.
Важным аспектом архитектурного проектирования реконструкции является интеграция новых технологий в существующие конструкции. Это может включать в себя использование современных строительных материалов, таких как легкие бетонные смеси, композитные материалы и высокопрочные стали, которые позволяют улучшить прочностные характеристики зданий и продлить их срок службы. Также стоит отметить, что применение новых технологий может значительно ускорить процесс реконструкции, что особенно важно в условиях ограниченных временных рамок.
При проектировании реконструкции необходимо учитывать инженерные системы, которые могут требовать модернизации или полной замены. Это касается как систем отопления, вентиляции и кондиционирования, так и электрических и сантехнических систем. Внедрение современных технологий, таких как умные системы управления, может повысить комфорт и безопасность эксплуатации зданий. Например, автоматизированные системы управления освещением и климатом могут значительно снизить энергозатраты и улучшить условия для пользователей.
Не менее важным является учет исторической ценности объектов, подлежащих реконструкции. В случае, если здание имеет статус памятника архитектуры, необходимо соблюдать строгие правила и рекомендации, касающиеся его сохранения. Это может включать в себя использование традиционных материалов и технологий, а также сохранение оригинальных архитектурных элементов. В таких случаях важно привлекать специалистов, обладающих опытом работы с историческими зданиями, чтобы обеспечить качественное выполнение работ.
В процессе реконструкции также необходимо учитывать факторы устойчивого развития. Это включает в себя не только использование экологически чистых материалов, но и внедрение технологий, способствующих снижению негативного воздействия на окружающую среду. Например, системы сбора дождевой воды, зеленые крыши и вертикальные сады могут значительно улучшить экологическую обстановку в urban среде и повысить качество жизни горожан.
Кроме того, проектирование общественных пространств в рамках реконструкции становится все более актуальным. Создание открытых площадок, парков и зон отдыха способствует улучшению социальной инфраструктуры и повышению уровня комфорта для жителей. Важно, чтобы такие пространства были доступны и удобны для всех категорий граждан, включая людей с ограниченными возможностями.
В заключение, архитектурное проектирование реконструкции требует комплексного подхода, который включает в себя как технические, так и социальные аспекты. Применение современных технологий, учет исторической ценности, экологические факторы и создание комфортных общественных пространств — все это играет ключевую роль в успешной реализации проектов реконструкции. Важно, чтобы архитекторы и проектировщики работали в тесном сотрудничестве с другими специалистами и местными сообществами, чтобы создать здания и пространства, которые будут служить интересам общества и способствовать его развитию.
Проект организации строительства
Архитектурное проектирование реконструкции представляет собой сложный и многогранный процесс, который требует глубокого понимания как архитектурных принципов, так и специфики существующих зданий. Реконструкция может включать в себя как частичное обновление, так и полное переосмысление функциональности и эстетики объекта. Важным аспектом является необходимость учитывать не только современные требования к комфорту и безопасности, но и историческую ценность зданий, которые подлежат реконструкции.
На первом этапе проектирования необходимо провести детальный анализ существующего состояния объекта. Это включает в себя:
- Техническое обследование - оценка состояния конструктивных элементов, инженерных систем и отделки.
- Историко-культурная экспертиза - изучение исторической ценности здания, его архитектурных особенностей и значимости для местного сообщества.
- Функциональный анализ - определение текущих и будущих потребностей пользователей, а также выявление недостатков в планировке и функциональности.
После завершения анализа, архитекторы и проектировщики переходят к разработке концепции реконструкции. На этом этапе важно учитывать:
- Сохранение исторических элементов - необходимо определить, какие части здания следует сохранить, а какие можно изменить или удалить.
- Современные технологии - внедрение новых строительных и инженерных решений, которые могут повысить энергоэффективность и комфорт.
- Эстетические аспекты - создание гармоничного внешнего вида, который будет сочетаться с окружающей застройкой и историческим контекстом.
Следующим шагом является разработка проектной документации, которая включает в себя:
- Архитектурные чертежи - планы, фасады, разрезы, которые показывают изменения в конструкции и планировке.
- Инженерные системы - проектирование систем отопления, вентиляции, кондиционирования, электроснабжения и водоснабжения.
- Сметная документация - расчет стоимости работ и материалов, необходимых для реализации проекта.
Важно отметить, что на этапе проектирования реконструкции необходимо активно взаимодействовать с различными заинтересованными сторонами, включая:
- Заказчиков - определение их потребностей и ожиданий от проекта.
- Государственные органы - получение разрешений и согласований, особенно если здание имеет статус памятника архитектуры.
- Сообщество - учет мнения местных жителей и организаций, которые могут быть затронуты изменениями.
Таким образом, архитектурное проектирование реконструкции требует комплексного подхода, который включает в себя как технические, так и культурные аспекты. Успешная реализация проекта зависит от тщательной проработки всех этапов, начиная от анализа существующего состояния и заканчивая разработкой детальной проектной документации.
После завершения проектирования и получения всех необходимых согласований, начинается этап подготовки к строительству. Этот процесс включает в себя несколько ключевых шагов, которые обеспечивают успешную реализацию проекта реконструкции.
Первым шагом является подбор подрядчиков. Важно выбрать квалифицированные компании, которые имеют опыт работы с реконструкцией зданий, особенно если они имеют историческую ценность. Подрядчики должны быть способны не только выполнить строительные работы, но и учитывать особенности, связанные с сохранением архитектурного наследия.
Следующим этапом является подготовка строительной площадки. Это включает в себя:
- Очистка территории - удаление ненужных конструкций, мусора и растительности.
- Ограждение строительной площадки - установка заборов и знаков, чтобы обеспечить безопасность и предотвратить доступ посторонних.
- Подготовка временных коммуникаций - обеспечение строительной площадки необходимыми ресурсами, такими как вода, электричество и доступ к интернету.
На этапе строительства важно обеспечить контроль качества выполняемых работ. Это включает в себя регулярные проверки на соответствие проектной документации, а также соблюдение строительных норм и правил. Специальные инспекции могут быть назначены для контроля за выполнением работ, связанных с сохранением исторических элементов здания.
Кроме того, необходимо учитывать экологические аспекты реконструкции. Это может включать в себя:
- Утилизацию строительных отходов - разработка плана по утилизации и переработке материалов, которые не будут использованы в новом проекте.
- Сохранение зеленых насаждений - если на территории находятся деревья или кустарники, важно разработать план их сохранения или пересадки.
- Энергоэффективность - внедрение технологий, которые помогут снизить потребление энергии и уменьшить углеродный след здания.
По мере завершения строительных работ начинается этап ввод в эксплуатацию. Это включает в себя:
- Проверка всех систем - тестирование инженерных систем, таких как отопление, вентиляция, электроснабжение и водоснабжение.
- Получение разрешений - оформление всех необходимых документов для легализации нового состояния здания.
- Подготовка к открытию - организация мероприятий, связанных с презентацией обновленного объекта для общественности и заинтересованных сторон.
Таким образом, процесс архитектурного проектирования реконструкции включает в себя множество этапов, каждый из которых требует внимательного подхода и профессионализма. Успешная реализация проекта зависит от тщательной проработки всех деталей, начиная от анализа существующего состояния и заканчивая вводом здания в эксплуатацию. Важно помнить, что реконструкция — это не только технический процесс, но и возможность сохранить культурное наследие и улучшить качество жизни людей, которые будут использовать обновленное пространство.
Мероприятия по охране окружающей среды
Архитектурное проектирование и реконструкция зданий играют важную роль в охране окружающей среды. В условиях глобальных изменений климата и растущего давления на природные ресурсы, необходимо учитывать экологические аспекты на всех этапах проектирования и реконструкции. Это включает в себя использование устойчивых материалов, оптимизацию энергетических систем и внедрение технологий, способствующих снижению негативного воздействия на окружающую среду.
Одним из ключевых аспектов архитектурного проектирования является выбор материалов. Устойчивые строительные материалы, такие как переработанный бетон, древесина из сертифицированных лесов и экологически чистые изоляционные материалы, помогают снизить углеродный след зданий. При этом важно учитывать не только экологические характеристики материалов, но и их долговечность и возможность повторного использования.
В процессе реконструкции зданий также следует обращать внимание на энергетическую эффективность. Это может включать в себя установку современных систем отопления, вентиляции и кондиционирования воздуха (HVAC), а также использование солнечных панелей и других возобновляемых источников энергии. Энергетически эффективные здания не только снижают потребление ресурсов, но и уменьшают эксплуатационные расходы для владельцев.
Кроме того, важным аспектом является планирование зеленых пространств вокруг зданий. Создание зеленых крыш, садов и ландшафтного дизайна с использованием местных растений способствует улучшению качества воздуха, снижению температуры в городских условиях и созданию комфортной городской среды. Такие решения также помогают в управлении дождевыми водами, уменьшая риск наводнений и эрозии почвы.
При проектировании и реконструкции зданий необходимо учитывать социальные аспекты. Важно, чтобы новые и обновленные здания соответствовали потребностям местных сообществ. Это может включать в себя создание общественных пространств, доступных для всех, а также обеспечение доступности для людей с ограниченными возможностями. Участие местных жителей в процессе проектирования может помочь выявить их потребности и предпочтения, что в свою очередь повысит качество жизни в районе.
Также стоит отметить, что инновационные технологии играют важную роль в современном архитектурном проектировании. Использование программного обеспечения для моделирования информации о здании (BIM) позволяет архитекторам и инженерам более точно планировать и визуализировать проекты, а также оценивать их воздействие на окружающую среду. Это способствует более эффективному использованию ресурсов и снижению отходов на всех этапах строительства.
В заключение, архитектурное проектирование и реконструкция зданий должны быть направлены на создание устойчивых и экологически чистых решений. Это требует комплексного подхода, включающего выбор материалов, оптимизацию энергетических систем, создание зеленых пространств и учет социальных аспектов. Внедрение инновационных технологий также способствует достижению этих целей, позволяя создавать здания, которые не только отвечают современным требованиям, но и способствуют охране окружающей среды.
Одним из важных направлений в архитектурном проектировании является интеграция технологий умного дома. Эти технологии позволяют оптимизировать потребление энергии и ресурсов, а также повысить комфорт и безопасность пользователей. Умные системы управления освещением, отоплением и вентиляцией могут адаптироваться к потребностям жильцов, что способствует снижению энергозатрат и уменьшению углеродного следа.
Важным аспектом является также устойчивое водопользование. Внедрение систем сбора дождевой воды и повторного использования серой воды может значительно снизить потребление пресной воды. Архитекторы и проектировщики должны учитывать возможности для интеграции таких систем в свои проекты, что не только поможет сохранить водные ресурсы, но и снизит нагрузку на канализационные системы.
При проектировании новых зданий и реконструкции существующих важно учитывать климатические условия региона. Это включает в себя выбор подходящих конструктивных решений, которые обеспечат максимальную энергоэффективность и комфорт в условиях местного климата. Например, в регионах с жарким климатом следует предусмотреть тени и вентиляцию, а в холодных — эффективные системы утепления и отопления.
Не менее важным является учет жизненного цикла зданий. Архитекторы должны оценивать не только первоначальные затраты на строительство, но и эксплуатационные расходы, а также стоимость утилизации и возможного демонтажа в будущем. Это позволяет создать более устойчивые и экономически целесообразные решения, которые будут служить долго и не нанесут вреда окружающей среде.
Важным аспектом является сотрудничество с местными сообществами и организациями. Участие общественности в процессе проектирования может помочь выявить важные аспекты, которые могут быть упущены при традиционном подходе. Это может включать в себя проведение общественных слушаний, опросов и других форм взаимодействия, что способствует созданию более гармоничных и устойчивых городских пространств.
Также стоит отметить, что законодательные инициативы и стандарты в области устойчивого строительства играют важную роль в формировании архитектурной практики. Введение норм и стандартов, направленных на снижение воздействия на окружающую среду, может способствовать более широкому внедрению устойчивых практик в архитектурное проектирование и реконструкцию.
В заключение, архитектурное проектирование и реконструкция зданий должны быть направлены на создание устойчивых, комфортных и безопасных пространств, которые учитывают потребности как людей, так и окружающей среды. Это требует комплексного подхода, включающего выбор материалов, внедрение новых технологий, учет климатических условий и активное взаимодействие с местными сообществами. Только так можно достичь гармонии между архитектурой и природой, создавая здания, которые будут служить людям и планете.
Мероприятия по обеспечению пожарной безопасности
Архитектурное проектирование и реконструкция зданий играют ключевую роль в обеспечении пожарной безопасности. На этапе проектирования необходимо учитывать множество факторов, которые могут повлиять на безопасность людей и имущества в случае возникновения пожара. Важно, чтобы архитекторы и проектировщики работали в тесном сотрудничестве с пожарными инженерами и специалистами по безопасности, чтобы создать эффективные решения, соответствующие современным требованиям.
Одним из первых шагов в проектировании является анализ существующих зданий и их функционального назначения. Это позволяет выявить потенциальные риски и уязвимости, которые могут быть устранены в процессе реконструкции. Например, здания, предназначенные для массового скопления людей, должны иметь специальные выходы и пути эвакуации, которые соответствуют нормам и стандартам безопасности.
При проектировании новых объектов или реконструкции старых необходимо учитывать следующие аспекты:
- Планировка помещений: Эффективная планировка должна обеспечивать свободный доступ к выходам и минимизировать количество препятствий на пути эвакуации.
- Материалы: Использование огнестойких и негорючих материалов в строительстве и отделке помещений значительно снижает риск распространения огня.
- Системы противопожарной защиты: Включение автоматических систем пожаротушения, сигнализации и оповещения о пожаре в проект является обязательным требованием.
- Эвакуационные выходы: Проектирование должно предусматривать достаточное количество выходов, их ширину и расположение, чтобы обеспечить быструю и безопасную эвакуацию людей.
- Зоны безопасности: Создание специальных зон, где люди могут находиться в безопасности до прибытия спасательных служб, также является важным аспектом проектирования.
Кроме того, необходимо учитывать требования местных норм и правил, которые могут варьироваться в зависимости от региона. Это включает в себя соблюдение стандартов по высоте зданий, расстояниям между ними, а также правилам по установке систем противопожарной защиты.
В процессе реконструкции зданий важно не только улучшить их архитектурные и функциональные характеристики, но и адаптировать их к современным требованиям безопасности. Это может включать в себя замену устаревших систем противопожарной защиты, модернизацию эвакуационных выходов и улучшение материалов, используемых в строительстве.
Также стоит отметить, что проектирование и реконструкция зданий должны учитывать не только пожарную безопасность, но и другие аспекты, такие как доступность для людей с ограниченными возможностями, энергоэффективность и устойчивость к природным катастрофам. Все эти факторы в совокупности способствуют созданию безопасной и комфортной городской среды.
В заключение, архитектурное проектирование и реконструкция зданий являются важными этапами в обеспечении пожарной безопасности. Комплексный подход к проектированию, включающий анализ рисков, выбор материалов и систем безопасности, а также соблюдение норм и стандартов, позволяет создать безопасные и функциональные здания, которые будут служить людям на протяжении многих лет.
Важным аспектом архитектурного проектирования является интеграция современных технологий, которые могут значительно повысить уровень пожарной безопасности. Например, использование систем умного дома позволяет автоматизировать процессы оповещения и управления эвакуацией. Такие системы могут включать в себя датчики дыма, которые автоматически активируют системы вентиляции и освещения, указывая безопасные пути эвакуации.
Также стоит обратить внимание на проектирование систем противопожарной защиты, которые должны быть адаптированы к специфике каждого здания. Это может включать в себя:
- Системы автоматического пожаротушения: В зависимости от назначения здания, могут быть установлены спринклерные системы, системы водяного тумана или порошкового тушения.
- Системы дымоудаления: Эффективные системы дымоудаления помогают поддерживать видимость и чистоту воздуха в коридорах и эвакуационных выходах, что критически важно в случае пожара.
- Сигнализация и оповещение: Современные системы сигнализации могут не только обнаруживать пожар, но и автоматически уведомлять службы экстренной помощи, а также оповещать людей о необходимости эвакуации.
При проектировании новых зданий или реконструкции старых важно также учитывать возможность будущих изменений в функциональном назначении. Например, здание, изначально спроектированное как офисное, может быть переоборудовано в жилое. В таких случаях необходимо заранее предусмотреть возможность установки дополнительных систем безопасности и изменения планировки.
Не менее важным является обучение персонала и пользователей зданий правилам пожарной безопасности. Даже самые современные системы не смогут обеспечить безопасность, если люди не знают, как ими пользоваться. Поэтому на этапе проектирования следует предусмотреть места для проведения тренировок и инструктажей по эвакуации.
В процессе реконструкции зданий также необходимо учитывать историческую и культурную ценность объектов. В таких случаях важно найти баланс между сохранением архитектурного наследия и внедрением современных технологий безопасности. Это может потребовать дополнительных исследований и консультаций с экспертами в области охраны памятников.
В заключение, архитектурное проектирование и реконструкция зданий с учетом пожарной безопасности требуют комплексного подхода, который включает в себя анализ рисков, выбор современных технологий и материалов, а также обучение пользователей. Только так можно создать безопасную и комфортную среду для жизни и работы людей.
Требования к обеспечению безопасной эксплуатации объектов капитального строительства
Архитектурное проектирование и реконструкция объектов капитального строительства являются важными аспектами обеспечения их безопасной эксплуатации. В процессе проектирования необходимо учитывать множество факторов, которые влияют на безопасность, функциональность и долговечность зданий и сооружений. В данном контексте особое внимание следует уделить требованиям, касающимся как новых объектов, так и реконструируемых.
При архитектурном проектировании реконструкции необходимо учитывать следующие ключевые аспекты:
- Анализ существующего состояния объекта. Перед началом проектирования важно провести детальный анализ текущего состояния здания, включая его конструктивные элементы, инженерные системы и архитектурные особенности. Это позволит выявить слабые места и определить, какие элементы требуют замены или усиления.
- Соответствие современным нормам и стандартам. Реконструкция должна соответствовать действующим строительным нормам и правилам, включая требования по безопасности, энергоэффективности и доступности. Это особенно актуально для объектов, построенных в разные исторические периоды, когда нормы могли значительно отличаться.
- Учет функционального назначения. При проектировании необходимо учитывать новое функциональное назначение объекта, если оно изменяется. Это может потребовать переработки планировочных решений, изменения инженерных систем и адаптации пространства под новые нужды пользователей.
- Сохранение исторической ценности. Если объект имеет историческую или культурную ценность, важно сохранить его архитектурные особенности и элементы, которые делают его уникальным. Это может потребовать специальных подходов и технологий, направленных на сохранение оригинальных материалов и конструкций.
- Экологические аспекты. В процессе реконструкции следует учитывать экологические требования, включая использование устойчивых и экологически чистых материалов, а также внедрение технологий, способствующих снижению негативного воздействия на окружающую среду.
Кроме того, важным этапом является разработка проектной документации, которая должна включать:
- Архитектурные чертежи. Они должны содержать все необходимые детали, включая планы, фасады, разрезы и узлы, которые помогут в дальнейшем строительстве и реконструкции.
- Инженерные системы. Проектирование систем отопления, вентиляции, кондиционирования, водоснабжения и канализации должно быть выполнено с учетом новых требований и стандартов.
- Сметная документация. Необходимо составить смету, которая отразит все затраты на реконструкцию, включая материалы, работы и услуги.
Важным аспектом является также взаимодействие с различными государственными и муниципальными органами, которые могут требовать согласования проектной документации и проведения экспертиз. Это может включать:
- Получение разрешений на строительство. Перед началом работ необходимо получить все необходимые разрешения, что может занять значительное время.
- Согласование с историко-культурными экспертами. Если объект имеет статус памятника архитектуры, потребуется согласование всех изменений с соответствующими органами.
Таким образом, архитектурное проектирование реконструкции объектов капитального строительства требует комплексного подхода, учитывающего множество факторов, влияющих на безопасность и функциональность зданий. Важно, чтобы все этапы проектирования и реализации работ были тщательно продуманы и согласованы с действующими нормами и стандартами.
При проектировании реконструкции также необходимо учитывать аспекты, связанные с безопасностью эксплуатации объектов. Это включает в себя:
- Оценка рисков. Необходимо провести оценку потенциальных рисков, связанных с эксплуатацией здания, включая возможность возникновения аварийных ситуаций, таких как обрушение конструкций или утечка инженерных систем. Это позволит заранее разработать меры по минимизации таких рисков.
- Устойчивость конструкций. Все изменения, вносимые в конструктивные элементы здания, должны обеспечивать его устойчивость и безопасность. Это может потребовать проведения расчетов и экспертиз, чтобы убедиться, что новые нагрузки не приведут к ухудшению состояния здания.
- Пожарная безопасность. Важно учитывать требования по пожарной безопасности, включая проектирование эвакуационных выходов, установку систем противопожарной защиты и использование огнестойких материалов.
Кроме того, в процессе реконструкции необходимо уделить внимание вопросам доступности для людей с ограниченными возможностями. Это может включать:
- Создание безбарьерной среды. Проектирование должно предусматривать наличие пандусов, лифтов и других элементов, обеспечивающих доступность для всех категорий граждан.
- Информирование пользователей. Важно обеспечить наличие информационных табличек и указателей, которые помогут людям с ограниченными возможностями ориентироваться в пространстве.
Не менее важным аспектом является взаимодействие с подрядчиками и рабочими, которые будут осуществлять реконструкцию. Для этого необходимо:
- Обучение персонала. Рабочие должны быть обучены безопасным методам работы и знать о потенциальных рисках, связанных с реконструкцией.
- Контроль за выполнением работ. Важно осуществлять регулярный контроль за качеством выполняемых работ и соблюдением проектной документации.
В процессе реализации проекта реконструкции также следует учитывать временные факторы. Это включает в себя:
- Составление графика работ. Необходимо разработать детализированный график, который позволит эффективно организовать все этапы реконструкции и минимизировать время простоя.
- Учет сезонных факторов. Важно учитывать влияние погодных условий на выполнение работ, что может потребовать корректировки графика.
В заключение, архитектурное проектирование реконструкции объектов капитального строительства требует комплексного подхода, который включает в себя анализ существующего состояния, соблюдение норм и стандартов, а также внимание к вопросам безопасности и доступности. Все эти аспекты должны быть учтены на этапе проектирования, чтобы обеспечить безопасную и эффективную эксплуатацию зданий в будущем.
Мероприятия по обеспечению доступа инвалидов к объекту капитального строительства
Архитектурное проектирование и реконструкция объектов капитального строительства с учетом потребностей инвалидов является важной задачей, направленной на создание доступной среды для всех граждан. В процессе проектирования необходимо учитывать различные аспекты, которые обеспечивают комфорт и безопасность пользователей с ограниченными возможностями. Это включает в себя как физические, так и функциональные характеристики зданий и сооружений.
Одним из ключевых этапов в проектировании является анализ существующих условий. На этом этапе необходимо провести обследование объекта, выявить его недостатки и определить, какие изменения потребуются для обеспечения доступности. Важно учитывать не только архитектурные особенности, но и окружающую инфраструктуру, такую как дороги, тротуары и общественный транспорт.
Следующим шагом является разработка проектных решений, которые будут соответствовать современным стандартам доступности. Это может включать в себя:
- Установку пандусов с соответствующим углом наклона и шириной;
- Создание лифтов и подъемников для преодоления высотных перепадов;
- Обеспечение наличия тактильных и звуковых указателей для людей с нарушениями зрения;
- Проектирование широких дверных проемов и коридоров для удобного передвижения на инвалидных колясках;
- Установку специальных санитарных узлов, оборудованных для людей с ограниченными возможностями.
При проектировании также необходимо учитывать эргономику пространства. Это означает, что все элементы интерьера и экстерьера должны быть расположены таким образом, чтобы минимизировать физические усилия пользователей. Например, высота ручек дверей, выключателей и других элементов должна быть удобной для людей с различными физическими возможностями.
Кроме того, важно предусмотреть доступность информации. Все навигационные знаки, указатели и информационные таблички должны быть выполнены в доступном формате, включая шрифт Брайля и контрастные цвета для людей с нарушениями зрения. Это поможет создать интуитивно понятную среду, в которой каждый сможет легко ориентироваться.
Не менее важным аспектом является участие пользователей в процессе проектирования. Вовлечение людей с ограниченными возможностями в обсуждение и разработку проектных решений позволяет учесть их реальные потребности и предпочтения. Это может быть реализовано через опросы, фокус-группы или консультации с организациями, представляющими интересы инвалидов.
На этапе реализации проекта необходимо обеспечить строгий контроль за выполнением всех норм и стандартов доступности. Это включает в себя как проверку качества строительных работ, так и соответствие проектной документации фактическому исполнению. Важно, чтобы все изменения и дополнения, вносимые в проект, также соответствовали требованиям доступности.
После завершения реконструкции объекта необходимо провести оценку его доступности. Это может включать в себя как внутренние проверки, так и независимые экспертизы, проводимые организациями, специализирующимися на вопросах доступности. Полученные результаты помогут выявить возможные недостатки и определить направления для дальнейшего улучшения.
Важным аспектом архитектурного проектирования является интеграция современных технологий, которые могут значительно улучшить доступность объектов. Например, использование автоматизированных систем управления освещением и климатом может облегчить жизнь людям с ограниченными возможностями. Такие системы могут быть настроены на голосовые команды или управляться с помощью мобильных приложений, что делает их более доступными.
Также стоит обратить внимание на доступность общественных пространств, таких как парки, площади и зоны отдыха. Проектирование таких объектов должно учитывать потребности всех пользователей, включая людей с ограниченными возможностями. Это может включать в себя:
- Создание ровных и широких дорожек для передвижения на колясках;
- Установку скамеек с учетом высоты и удобства для людей с ограниченной подвижностью;
- Обеспечение доступности игровых площадок для детей с инвалидностью;
- Создание зон для отдыха с тактильными элементами для людей с нарушениями зрения.
Необходимо также учитывать экологические аспекты при проектировании доступной среды. Использование экологически чистых материалов и технологий может не только улучшить качество жизни пользователей, но и способствовать сохранению окружающей среды. Например, применение зеленых крыш и стен может улучшить микроклимат и создать комфортные условия для всех.
Важным элементом является обучение персонала, который будет работать в реконструированных объектах. Сотрудники должны быть осведомлены о потребностях людей с ограниченными возможностями и уметь оказывать необходимую помощь. Это может включать в себя тренинги по взаимодействию с инвалидами, а также обучение использованию специальных устройств и оборудования.
Кроме того, необходимо развивать общественное сознание и повышать уровень информированности о проблемах доступности. Это может быть достигнуто через различные кампании, семинары и мероприятия, направленные на привлечение внимания к вопросам инвалидов и их прав. Общество должно понимать важность создания доступной среды и поддерживать инициативы, направленные на улучшение качества жизни людей с ограниченными возможностями.
В заключение, архитектурное проектирование и реконструкция объектов капитального строительства с учетом потребностей инвалидов требует комплексного подхода. Это включает в себя анализ существующих условий, разработку проектных решений, интеграцию современных технологий, обучение персонала и развитие общественного сознания. Только совместными усилиями можно создать доступную и комфортную среду для всех граждан, независимо от их физических возможностей.
Смета на строительство, реконструкцию, капитальный ремонт, снос объекта капитального строительства
Архитектурное проектирование реконструкции объектов капитального строительства представляет собой сложный и многогранный процесс, который требует глубокого понимания как технических, так и эстетических аспектов. Реконструкция может включать в себя как частичное обновление существующих зданий, так и полное изменение их функционального назначения. Важно учитывать не только архитектурные, но и инженерные, экономические и экологические факторы.
На первом этапе проектирования необходимо провести детальный анализ существующего объекта. Это включает в себя:
- Оценка состояния здания: Исследование конструктивных элементов, материалов, а также выявление возможных дефектов и повреждений.
- Изучение исторической и культурной ценности: Если здание имеет историческую значимость, необходимо учитывать требования охраны памятников.
- Анализ функциональных требований: Определение новых функций, которые будут выполняться в здании, и соответствие их современным стандартам.
После анализа следует этап концептуального проектирования, на котором разрабатываются основные идеи и решения. Важно создать несколько альтернативных концепций, которые могут включать:
- Изменение планировочных решений: Оптимизация внутреннего пространства для улучшения функциональности.
- Эстетические изменения: Обновление фасадов, использование современных материалов и технологий.
- Энергетическая эффективность: Внедрение современных систем отопления, вентиляции и кондиционирования, а также использование возобновляемых источников энергии.
На следующем этапе разрабатывается рабочая документация, которая включает в себя:
- Архитектурные чертежи: Подробные планы, фасады и разрезы, которые показывают все изменения.
- Инженерные системы: Проектирование систем электроснабжения, водоснабжения, канализации и отопления.
- Сметная документация: Оценка стоимости работ и материалов, необходимых для реализации проекта.
Важным аспектом является согласование проекта с различными инстанциями. Это может включать:
- Получение разрешений: Необходимость в получении разрешений на строительство и реконструкцию от местных органов власти.
- Согласование с охранными организациями: Если здание является памятником архитектуры, требуется согласование с соответствующими организациями.
После получения всех необходимых согласований начинается этап реализации проекта. Важно обеспечить контроль за качеством выполнения работ, что включает в себя:
- Регулярные проверки: Проведение регулярных инспекций на строительной площадке для контроля за соблюдением проектных решений.
- Взаимодействие с подрядчиками: Эффективное управление подрядными организациями и поставщиками материалов.
После завершения строительных работ наступает этап приемки объекта. Этот процесс включает в себя:
- Проверка соответствия: Сравнение выполненных работ с проектной документацией для выявления возможных отклонений.
- Тестирование инженерных систем: Проверка работоспособности всех систем, включая электроснабжение, водоснабжение и отопление.
- Оформление актов приемки: Подготовка необходимых документов, подтверждающих завершение работ и их соответствие проекту.
После успешной приемки объекта важно обеспечить его дальнейшую эксплуатацию. Это включает в себя:
- Разработка эксплуатационной документации: Подготовка инструкций по эксплуатации и обслуживанию зданий и инженерных систем.
- Обучение персонала: Проведение тренингов для сотрудников, которые будут отвечать за эксплуатацию и обслуживание объекта.
- Планирование текущего и капитального ремонта: Создание графиков и планов по обслуживанию и ремонту для поддержания здания в надлежащем состоянии.
Не менее важным аспектом является оценка эффективности проведенной реконструкции. Это может включать:
- Анализ затрат и выгод: Оценка финансовых результатов и экономической целесообразности проекта.
- Сбор отзывов пользователей: Опросы и анкетирование пользователей для выявления их удовлетворенности новыми условиями.
- Мониторинг состояния здания: Регулярные проверки состояния конструкций и инженерных систем для предотвращения возможных проблем.
Архитектурное проектирование реконструкции требует комплексного подхода и взаимодействия различных специалистов. Важно, чтобы архитекторы, инженеры, строители и заказчики работали в единой команде, что позволит достичь наилучших результатов. Успешная реконструкция не только улучшает функциональность и эстетические качества здания, но и способствует его долговечности и устойчивости к изменениям внешней среды.
Таким образом, архитектурное проектирование реконструкции является важным этапом в жизни любого объекта капитального строительства. Оно требует тщательной подготовки, анализа и планирования, что в конечном итоге приводит к созданию современных, удобных и безопасных пространств для жизни и работы.


















