Архитектурное проектирование планы
Архитектурное проектирование планы
В современном строительстве важным аспектом является соблюдение нормативных актов, регулирующих процесс проектирования. Одним из таких документов является 87 постановление правительства, которое определяет основные принципы и требования к строительному проектированию. В данной статье мы рассмотрим, как архитектурное проектирование осуществляется в соответствии с этим постановлением, а также представим оглавление, которое поможет вам лучше понять структуру и содержание материала.
Статья включает в себя следующие разделы:
- Общие положения 87 постановления
- Этапы архитектурного проектирования
- Требования к проектной документации
- Роль архитекторов и проектировщиков
- Примеры успешных проектов
Мы надеемся, что данная информация будет полезна как профессионалам в области архитектуры и строительства, так и тем, кто только начинает знакомиться с основами проектирования.
Согласно 87 ПП (87 постановление правительства)
Архитектурное проектирование является важным этапом в процессе создания зданий и сооружений. Оно включает в себя множество аспектов, которые необходимо учитывать для достижения качественного результата. В соответствии с 87 постановлением правительства, архитектурное проектирование должно соответствовать определённым стандартам и требованиям, что обеспечивает безопасность, функциональность и эстетическую привлекательность объектов.
Одним из ключевых элементов архитектурного проектирования является разработка планов. Эти планы служат основой для дальнейшего проектирования и строительства, и их качество напрямую влияет на успешность всего проекта.
Основные этапы разработки архитектурных планов:
- Исследование участка: Перед началом проектирования необходимо провести детальное исследование участка, на котором будет возводиться здание. Это включает в себя анализ геологических, климатических и экологических условий.
- Определение функциональных требований: На этом этапе важно определить, какие функции будет выполнять здание. Это может включать в себя жилые, коммерческие или общественные функции, а также требования к доступности и безопасности.
- Создание концептуального дизайна: На основе собранной информации разрабатывается концептуальный дизайн, который включает в себя общие идеи и стилистические решения. Этот этап позволяет визуализировать проект и определить его основные характеристики.
- Разработка архитектурных чертежей: После утверждения концепции начинается работа над детальными чертежами. Это включает в себя планы этажей, фасады, разрезы и другие необходимые документы, которые будут использоваться в процессе строительства.
- Согласование с заинтересованными сторонами: Важно получить согласование от всех заинтересованных сторон, включая заказчиков, архитекторов, инженеров и местные органы власти. Это помогает избежать возможных конфликтов и недоразумений в будущем.
- Корректировка и доработка: На основе полученных отзывов и замечаний вносятся необходимые изменения в проект. Этот этап может потребовать нескольких итераций, чтобы достичь окончательного варианта.
Каждый из этих этапов требует тщательной проработки и внимания к деталям. Важно помнить, что архитектурное проектирование — это не только создание красивых зданий, но и обеспечение их функциональности и безопасности.
Требования к архитектурным планам:
- Соответствие нормам и стандартам: Все архитектурные планы должны соответствовать действующим строительным нормам и правилам, что гарантирует безопасность и долговечность зданий.
- Эстетическая привлекательность: Архитектурные планы должны учитывать эстетические аспекты, чтобы здание гармонично вписывалось в окружающую среду.
- Функциональность: Здание должно быть удобным и функциональным для пользователей, что требует тщательного планирования внутренних пространств.
- Экологические аспекты: Важно учитывать влияние здания на окружающую среду и стремиться к минимизации негативных последствий.
Таким образом, архитектурное проектирование и разработка планов — это сложный и многогранный процесс, который требует профессионального подхода и глубоких знаний в различных областях. Следование установленным требованиям и стандартам, таким как 87 постановление правительства, помогает обеспечить высокое качество проектирования и строительства.
Важным аспектом архитектурного проектирования является интеграция инженерных систем. На этом этапе необходимо учитывать все инженерные коммуникации, такие как водоснабжение, канализация, отопление, вентиляция и электроснабжение. Правильная интеграция этих систем в архитектурный проект обеспечивает комфорт и безопасность пользователей.
Процесс интеграции инженерных систем включает в себя следующие шаги:
- Анализ потребностей: Определение необходимых инженерных систем в зависимости от функционального назначения здания и его размеров.
- Проектирование систем: Разработка проектных решений для каждой системы, включая схемы и спецификации. Это позволяет заранее предусмотреть возможные проблемы и оптимизировать размещение коммуникаций.
- Координация с архитекторами: Важно, чтобы проектировщики инженерных систем работали в тесном сотрудничестве с архитекторами, чтобы избежать конфликтов между архитектурными и инженерными решениями.
- Согласование с нормативами: Все проектные решения должны соответствовать действующим нормам и стандартам, что гарантирует безопасность и эффективность работы систем.
Кроме того, учет экологических факторов становится все более актуальным в современном архитектурном проектировании. Это включает в себя использование экологически чистых материалов, внедрение энергосберегающих технологий и проектирование зданий с учетом их воздействия на окружающую среду.
Ключевые аспекты экологического проектирования:
- Выбор материалов: Использование местных и экологически чистых материалов снижает углеродный след и поддерживает устойчивое развитие.
- Энергоэффективность: Проектирование зданий с учетом энергосберегающих технологий, таких как солнечные панели и системы рекуперации тепла, позволяет значительно снизить потребление энергии.
- Управление водными ресурсами: Внедрение систем сбора дождевой воды и эффективного водоснабжения помогает сохранить водные ресурсы и минимизировать затраты.
- Зеленые крыши и фасады: Использование зеленых технологий, таких как озеленение крыш и фасадов, способствует улучшению микроклимата и повышению эстетической привлекательности зданий.
Важным этапом в процессе архитектурного проектирования является проведение экспертизы проектной документации. Это позволяет выявить возможные недостатки и несоответствия на ранних стадиях, что значительно снижает риски в процессе строительства.
Этапы экспертизы проектной документации:
- Проверка соответствия: Оценка проектной документации на соответствие действующим нормам и стандартам.
- Анализ проектных решений: Оценка целесообразности и эффективности предложенных архитектурных и инженерных решений.
- Выявление недостатков: Определение возможных проблем и недостатков, которые могут возникнуть в процессе строительства или эксплуатации здания.
- Рекомендации по доработке: Предоставление рекомендаций по внесению изменений и улучшений в проектную документацию.
Таким образом, архитектурное проектирование — это комплексный процесс, который требует внимательного подхода и учета множества факторов. Следование установленным требованиям и стандартам, а также интеграция современных технологий и экологических решений, позволяет создавать качественные и безопасные здания, которые будут служить людям на протяжении многих лет.
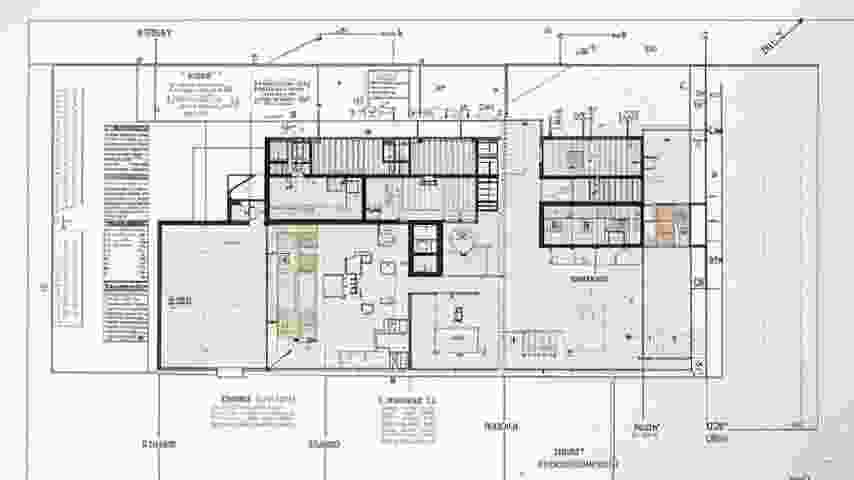
Пояснительная записка
Архитектурное проектирование является сложным и многогранным процессом, который включает в себя множество этапов и аспектов. Одним из ключевых элементов этого процесса являются планы, которые служат основой для дальнейшей разработки проекта. Планы представляют собой графическое изображение будущего здания или сооружения, на котором отображаются все важные элементы, такие как стены, окна, двери, коммуникации и другие архитектурные детали.
В процессе архитектурного проектирования планы выполняют несколько важных функций. Во-первых, они позволяют визуализировать концепцию проекта и понять, как будет выглядеть конечный результат. Во-вторых, планы служат основой для расчета необходимых материалов и ресурсов, а также для определения стоимости строительства. В-третьих, они являются важным инструментом для согласования проекта с заказчиком и другими заинтересованными сторонами.
Существует несколько типов планов, которые используются в архитектурном проектировании. Каждый из них имеет свои особенности и предназначение. Рассмотрим основные из них:
- План этажей — это наиболее распространенный тип плана, который показывает расположение помещений на каждом этаже здания. Он включает в себя размеры комнат, расположение окон и дверей, а также размещение мебели и оборудования.
- План фасадов — этот план отображает внешний вид здания с разных сторон. Он помогает понять, как здание будет выглядеть в контексте окружающей застройки и ландшафта.
- План кровли — на этом плане изображается конструкция крыши, включая ее уклон, тип покрытия и расположение вентиляционных систем.
- План коммуникаций — этот план показывает расположение всех инженерных систем, таких как водоснабжение, канализация, электричество и отопление. Он необходим для обеспечения функциональности здания и его безопасности.
Каждый из этих планов разрабатывается на основе архитектурного замысла и требований заказчика. Важно отметить, что планы должны соответствовать действующим строительным нормам и правилам, а также учитывать особенности местности, на которой будет возводиться здание.
Процесс создания планов начинается с разработки концептуального дизайна, который включает в себя общие идеи и стилистические решения. На этом этапе архитектор определяет основные параметры здания, такие как его форма, размеры и функциональное назначение. После этого начинается работа над детальными планами, которые требуют более глубокого анализа и проработки.
Важным аспектом архитектурного проектирования является использование современных технологий, таких как компьютерное моделирование и 3D-визуализация. Эти инструменты позволяют архитекторам создавать более точные и реалистичные планы, а также быстро вносить изменения в проект по мере необходимости. Использование программного обеспечения для архитектурного проектирования значительно упрощает процесс и повышает его эффективность.
Кроме того, в процессе разработки планов необходимо учитывать мнения и пожелания заказчика, а также проводить консультации с инженерами и другими специалистами. Это позволяет избежать возможных ошибок и недоразумений на этапе строительства, а также гарантирует, что конечный результат будет соответствовать ожиданиям всех сторон.
После завершения этапа разработки детальных планов, архитектор переходит к следующему важному шагу — созданию рабочих чертежей. Рабочие чертежи представляют собой более детализированные и технически обоснованные версии планов, которые используются непосредственно в процессе строительства. Они включают в себя все необходимые размеры, спецификации материалов и инструкции по монтажу.
Рабочие чертежи могут быть разделены на несколько категорий, в зависимости от их назначения:
- Архитектурные чертежи — содержат информацию о планах этажей, фасадах, разрезах и деталях, необходимых для понимания архитектурного решения.
- Конструктивные чертежи — показывают детали конструкций, таких как фундаменты, стены, перекрытия и крыши, а также их соединения и узлы.
- Инженерные чертежи — включают в себя схемы всех инженерных систем, таких как электроснабжение, водоснабжение, отопление и вентиляция.
- Ландшафтные чертежи — отображают планировку внешней территории, включая озеленение, дорожки, площадки и другие элементы благоустройства.
Создание рабочих чертежей требует высокой точности и внимательности, так как любые ошибки на этом этапе могут привести к серьезным проблемам в процессе строительства. Поэтому архитекторы часто работают в тесном сотрудничестве с инженерами и строителями, чтобы убедиться, что все аспекты проекта учтены и правильно реализованы.
После завершения рабочих чертежей проект проходит этап согласования и утверждения. На этом этапе важно получить все необходимые разрешения и согласования от местных органов власти, а также от других заинтересованных сторон, таких как соседи или экологические организации. Это может включать в себя проведение общественных слушаний и обсуждений, где представляется проект и собираются мнения общественности.
После получения всех необходимых разрешений проект может быть передан на стадию строительства. Важно отметить, что архитектурное проектирование не заканчивается на этапе создания чертежей. Архитектор продолжает участвовать в процессе строительства, осуществляя авторский надзор. Это позволяет контролировать соответствие выполненных работ проектной документации и вносить изменения в случае необходимости.
Авторский надзор включает в себя регулярные проверки строительного процесса, участие в совещаниях с подрядчиками и решение возникающих вопросов. Это важный этап, который помогает избежать ошибок и недоразумений, а также гарантирует, что проект будет реализован в соответствии с первоначальной концепцией.
В заключение, архитектурное проектирование и создание планов — это сложный и многогранный процесс, который требует высокой квалификации, творческого подхода и внимательности к деталям. Каждый этап, начиная от концептуального дизайна и заканчивая авторским надзором, играет важную роль в успешной реализации проекта. Важно помнить, что архитектура — это не только создание красивых зданий, но и обеспечение их функциональности, безопасности и комфорта для пользователей.
Схема планировочной организации земельного участка
Архитектурное проектирование является важным этапом в создании функциональных и эстетически привлекательных зданий и сооружений. В рамках этого процесса особое внимание уделяется планировочной организации земельного участка, которая включает в себя не только размещение зданий, но и обустройство прилегающей территории. Схема планировочной организации земельного участка (ПОЗУ) служит основой для дальнейшего проектирования и реализации архитектурных решений.
При разработке схемы планировочной организации земельного участка необходимо учитывать множество факторов, таких как:
- Функциональное назначение участка. Определение целей использования земельного участка (жилое, коммерческое, общественное строительство) влияет на выбор архитектурных решений и планировочных решений.
- Топографические особенности. Рельеф местности, наличие водоемов, лесов и других природных объектов могут существенно повлиять на проектирование.
- Климатические условия. Учет климатических факторов, таких как направление ветра, солнечное освещение и осадки, позволяет оптимизировать расположение зданий и их ориентацию.
- Нормативные требования. Соблюдение строительных норм и правил, а также местных градостроительных регламентов является обязательным условием для успешного проектирования.
- Социальные аспекты. Учет потребностей будущих пользователей, таких как доступность, безопасность и комфорт, играет важную роль в создании качественной городской среды.
На начальном этапе проектирования важно провести анализ существующих условий на земельном участке. Это включает в себя:
- Геодезические исследования. Определение границ участка, его площади, а также изучение рельефа и других природных характеристик.
- Экологические исследования. Оценка состояния окружающей среды, наличие охраняемых природных территорий и объектов, а также влияние проектируемого строительства на экосистему.
- Инженерные изыскания. Изучение существующих инженерных коммуникаций (водоснабжение, канализация, электроснабжение) и их возможности для подключения к новому объекту.
После сбора и анализа всех необходимых данных начинается разработка концепции планировочной организации земельного участка. На этом этапе формируются основные принципы, которые будут лежать в основе проектирования. Важно определить:
- Зонирование участка. Разделение территории на функциональные зоны (жилые, коммерческие, рекреационные) с учетом их взаимосвязи и удобства использования.
- Транспортная инфраструктура. Проектирование дорог, пешеходных и велосипедных дорожек, а также мест для парковки автомобилей.
- Ландшафтное оформление. Разработка зеленых насаждений, площадок для отдыха и других элементов благоустройства.
На основе концепции разрабатывается предварительная схема планировочной организации земельного участка, которая включает в себя размещение зданий, инженерных сетей и благоустроенных территорий. Эта схема служит основой для дальнейшего детального проектирования и согласования с соответствующими органами.
После разработки предварительной схемы планировочной организации земельного участка, следующим этапом является создание детализированного проектного решения. Этот процесс включает в себя более глубокую проработку всех элементов, которые были обозначены на предварительной схеме. Важно учитывать не только архитектурные, но и инженерные аспекты, чтобы обеспечить функциональность и безопасность будущего объекта.
Одним из ключевых аспектов детального проектирования является разработка архитектурных планов. Эти планы должны включать:
- Планы этажей. На этих планах отображаются все помещения, их размеры, расположение окон и дверей, а также элементы внутренней отделки.
- Фасады. Проектирование внешнего вида здания, включая выбор материалов, цветовых решений и архитектурных деталей.
- Разрезы. Сечения здания, которые показывают его высоту, конструктивные элементы и взаимосвязь между этажами.
Кроме того, необходимо уделить внимание инженерным системам, которые будут обеспечивать комфортное проживание и работу в здании. Это включает в себя:
- Системы отопления, вентиляции и кондиционирования (ОВК). Проектирование этих систем должно учитывать климатические условия и потребности пользователей.
- Электроснабжение. Разработка схемы электропроводки, размещение розеток и освещения, а также подключение к внешним источникам энергии.
- Водоснабжение и канализация. Проектирование систем водоснабжения, сточных вод и ливневой канализации, с учетом существующих инженерных сетей.
На этапе детального проектирования также важно учитывать благоустройство территории. Это включает в себя:
- Ландшафтный дизайн. Проектирование зеленых насаждений, газонов, цветников и других элементов, которые создают комфортную и эстетически привлекательную среду.
- Элементы благоустройства. Разработка площадок для отдыха, детских и спортивных площадок, а также освещения и малых архитектурных форм.
- Транспортная инфраструктура. Проектирование дорог, тротуаров, велосипедных дорожек и мест для парковки, с учетом удобства передвижения и безопасности.
После завершения всех проектных работ, необходимо провести экспертизу проектной документации. Это важный этап, который позволяет проверить соответствие проекта действующим строительным нормам и правилам, а также оценить его экономическую целесообразность. Экспертиза может быть как внутренней, так и внешней, в зависимости от требований законодательства и специфики проекта.
После успешного прохождения экспертизы, проект может быть представлен на государственное согласование. Этот процесс включает в себя получение разрешений от различных государственных органов, таких как архитектурные и градостроительные комиссии, экологические службы и другие. На этом этапе важно обеспечить полное соответствие проектной документации всем требованиям и нормам.
После получения всех необходимых разрешений, проект переходит к этапу строительства. На этом этапе важно обеспечить контроль за качеством выполнения работ, соблюдением проектных решений и сроков. Строительство должно осуществляться в соответствии с утвержденной проектной документацией, а также с учетом всех норм и правил безопасности.
В процессе строительства также важно проводить мониторинг и оценку воздействия на окружающую среду. Это позволяет минимизировать негативные последствия и обеспечить устойчивое развитие территории. В случае выявления отклонений от проектных решений, необходимо оперативно вносить изменения и корректировки.
По завершении строительных работ, осуществляется приемка объекта. Этот процесс включает в себя проверку соответствия построенного здания проектной документации, а также его готовности к эксплуатации. Приемка может включать в себя как визуальный осмотр, так и проведение различных испытаний и проверок.
Таким образом, архитектурное проектирование и планировочная организация земельного участка являются сложными и многогранными процессами, требующими комплексного подхода и учета множества факторов. Каждый этап, начиная от анализа существующих условий и заканчивая приемкой объекта, играет важ
Таким образом, архитектурное проектирование и планировочная организация земельного участка являются сложными и многогранными процессами, требующими комплексного подхода и учета множества факторов. Каждый этап, начиная от анализа существующих условий и заканчивая приемкой объекта, играет важную роль в создании качественной и функциональной городской среды.
После успешной приемки объекта, наступает этап эксплуатации. На этом этапе важно обеспечить надлежащее обслуживание и управление зданием, чтобы гарантировать его долговечность и безопасность. Эффективное управление включает в себя:
- Техническое обслуживание. Регулярные проверки и ремонты инженерных систем, а также поддержание в хорошем состоянии общих пространств и фасадов.
- Управление ресурсами. Оптимизация потребления воды, электроэнергии и других ресурсов, что позволяет снизить эксплуатационные расходы и минимизировать воздействие на окружающую среду.
- Обратная связь с пользователями. Сбор мнений и предложений от жильцов или пользователей здания для улучшения качества обслуживания и создания комфортной среды.
Кроме того, важно учитывать планирование будущих изменений и модернизаций. Со временем потребности пользователей могут изменяться, и здание должно быть способно адаптироваться к этим изменениям. Это может включать в себя:
- Реконструкцию. Изменение внутренней планировки, добавление новых помещений или изменение функционального назначения существующих.
- Модернизацию инженерных систем. Обновление систем отопления, вентиляции, кондиционирования и электроснабжения для повышения их эффективности и соответствия современным стандартам.
- Благоустройство территории. Обновление ландшафтного дизайна, создание новых зон отдыха и улучшение транспортной инфраструктуры.
Важным аспектом является также учет экологических факторов в процессе эксплуатации. Это включает в себя использование экологически чистых материалов, внедрение систем утилизации отходов и оптимизацию потребления ресурсов. Устойчивое развитие становится все более актуальным, и архитекторы и проектировщики должны учитывать эти аспекты на всех этапах — от проектирования до эксплуатации.
В заключение, архитектурное проектирование и планировочная организация земельного участка — это не просто создание зданий, но и формирование комфортной и безопасной городской среды. Каждый этап, начиная от концепции и заканчивая эксплуатацией, требует тщательной проработки и учета множества факторов. Успешное завершение всех этапов позволяет создать не только функциональные, но и эстетически привлекательные объекты, которые будут служить людям на протяжении многих лет.
Объемно-планировочные и архитектурные решения
Архитектурное проектирование является важным этапом в создании любого здания или сооружения. Оно включает в себя разработку объемно-планировочных и архитектурных решений, которые определяют не только внешний вид объекта, но и его функциональность, удобство и безопасность. В этом контексте объемно-планировочные решения представляют собой основополагающие элементы, которые формируют структуру и организацию пространства.
Объемно-планировочные решения включают в себя распределение помещений, их размеры, формы и взаимное расположение. Эти решения должны учитывать не только эстетические аспекты, но и практические требования, такие как освещение, вентиляция, акустика и доступность. Важно, чтобы проектировщик учитывал все эти факторы на этапе разработки, чтобы создать гармоничное и функциональное пространство.
При проектировании объемно-планировочных решений необходимо учитывать следующие аспекты:
- Функциональность: Каждое помещение должно выполнять свою функцию и быть удобно расположенным относительно других помещений.
- Эстетика: Внешний вид здания и его интерьеров должен быть привлекательным и соответствовать окружающей среде.
- Безопасность: Проект должен учитывать все нормы и правила безопасности, включая эвакуационные пути и доступ для людей с ограниченными возможностями.
- Экономичность: Оптимизация затрат на строительство и эксплуатацию здания.
- Экологичность: Использование экологически чистых материалов и технологий, а также учет воздействия на окружающую среду.
Архитектурные решения, в свою очередь, касаются внешнего облика здания, его стиля и материалов, используемых в отделке. Архитектурный стиль может варьироваться от классического до современного, и выбор стиля зависит от множества факторов, включая назначение здания, его местоположение и предпочтения заказчика.
При разработке архитектурных решений важно учитывать:
- Контекст: Здание должно гармонично вписываться в окружающую застройку и ландшафт.
- Климатические условия: Архитектурные решения должны учитывать климатические особенности региона, чтобы обеспечить комфортные условия для проживания или работы.
- Технологические возможности: Современные технологии позволяют реализовать самые смелые архитектурные идеи, но важно учитывать их доступность и стоимость.
В процессе архитектурного проектирования также важно взаимодействие с различными специалистами, такими как инженеры, дизайнеры и строители. Это позволяет создать комплексный проект, который будет учитывать все аспекты строительства и эксплуатации здания.
Таким образом, объемно-планировочные и архитектурные решения являются ключевыми элементами в процессе проектирования. Они определяют не только внешний вид здания, но и его функциональность, безопасность и комфорт. Важно, чтобы проектировщики подходили к этому процессу с учетом всех современных требований и тенденций, что позволит создать качественные и долговечные объекты.
Одним из ключевых этапов в архитектурном проектировании является создание функциональных схем, которые помогают визуализировать объемно-планировочные решения. Эти схемы представляют собой графические изображения, на которых обозначены основные элементы здания, такие как стены, перегородки, окна и двери. Функциональные схемы позволяют архитекторам и заказчикам лучше понять, как будет организовано пространство, и вносят ясность в дальнейшую работу над проектом.
При разработке функциональных схем важно учитывать:
- Потоки людей: Необходимо продумать, как будут перемещаться люди внутри здания, чтобы избежать заторов и обеспечить комфортное передвижение.
- Зонирование: Разделение пространства на функциональные зоны, такие как жилые, рабочие и общественные, помогает создать гармоничное и удобное окружение.
- Связь между помещениями: Важно, чтобы помещения были связаны между собой логически и удобно, что способствует эффективному использованию пространства.
После создания функциональных схем архитекторы переходят к разработке архитектурных чертежей, которые включают в себя планы этажей, фасады и разрезы. Эти чертежи являются основой для дальнейшего проектирования и строительства. Они должны быть максимально точными и детализированными, чтобы избежать недоразумений на этапе реализации проекта.
Важным аспектом архитектурного проектирования является выбор строительных материалов. Материалы не только влияют на внешний вид здания, но и определяют его долговечность, теплоизоляцию и устойчивость к внешним воздействиям. При выборе материалов необходимо учитывать:
- Экономические факторы: Стоимость материалов и их доступность на рынке.
- Экологические характеристики: Влияние материалов на окружающую среду и здоровье человека.
- Эстетические качества: Как материалы будут сочетаться с общим стилем здания.
Современные технологии также открывают новые возможности для архитектурного проектирования. Использование программного обеспечения для 3D-моделирования позволяет архитекторам создавать более точные и реалистичные модели зданий, что значительно упрощает процесс проектирования и согласования с заказчиком. 3D-модели помогают визуализировать проект на ранних этапах, что позволяет вносить изменения до начала строительства.
Кроме того, применение технологий виртуальной и дополненной реальности в архитектурном проектировании позволяет заказчикам "прогуляться" по будущему зданию еще до его постройки. Это дает возможность лучше понять пространство и внести необходимые коррективы, что в конечном итоге приводит к более качественному результату.
Не менее важным аспектом является соблюдение норм и стандартов, регулирующих архитектурное проектирование. Эти нормы касаются как безопасности зданий, так и их доступности для людей с ограниченными возможностями. Архитекторы должны быть в курсе всех актуальных требований, чтобы их проекты соответствовали законодательству и обеспечивали комфорт для всех пользователей.
В заключение, объемно-планировочные и архитектурные решения играют ключевую роль в процессе проектирования. Они определяют не только внешний вид и функциональность здания, но и его взаимодействие с окружающей средой. Успешное архитектурное проектирование требует комплексного подхода, учитывающего множество факторов, от эстетики до технологий, что в конечном итоге приводит к созданию качественных и долговечных объектов.
Конструктивные решения
Архитектурное проектирование является сложным и многогранным процессом, который требует внимательного подхода к каждому этапу. Важным аспектом этого процесса являются конструктивные решения, которые определяют не только внешний вид здания, но и его функциональность, безопасность и долговечность. В данной статье мы рассмотрим основные аспекты конструктивных решений в архитектурном проектировании, а также их влияние на планы зданий.
Конструктивные решения включают в себя выбор материалов, технологий строительства, а также проектирование несущих и ограждающих конструкций. Эти решения должны быть основаны на анализе множества факторов, таких как климатические условия, тип грунта, назначение здания и требования к его эксплуатации.
1. Выбор материалов
- При выборе материалов для строительства необходимо учитывать их прочность, устойчивость к внешним воздействиям и долговечность.
- Современные технологии предлагают широкий ассортимент строительных материалов, включая бетон, сталь, дерево и композитные материалы.
- Каждый из этих материалов имеет свои преимущества и недостатки, которые необходимо учитывать при проектировании.
2. Технологии строительства
- Технологии строительства также играют важную роль в формировании конструктивных решений. Например, использование модульного строительства позволяет значительно сократить время на возведение зданий.
- Традиционные методы, такие как кирпичная кладка или монолитное строительство, могут быть более подходящими для определенных типов зданий.
- Важно также учитывать инновационные технологии, такие как 3D-печать зданий, которые открывают новые горизонты в архитектурном проектировании.
3. Проектирование несущих конструкций
- Несущие конструкции являются основой любого здания и должны быть спроектированы с учетом всех нагрузок, которые они будут испытывать.
- Это включает в себя как статические нагрузки (вес самого здания), так и динамические (ветровые и сейсмические нагрузки).
- Правильное проектирование несущих конструкций обеспечивает безопасность и долговечность здания.
4. Ограждающие конструкции
- Ограждающие конструкции, такие как стены и крыши, играют ключевую роль в обеспечении теплоизоляции, звукоизоляции и защиты от внешних факторов.
- При проектировании ограждающих конструкций необходимо учитывать не только их функциональные характеристики, но и эстетические аспекты.
- Современные технологии позволяют создавать ограждающие конструкции с высокими теплоизоляционными свойствами, что особенно важно в условиях изменяющегося климата.
Таким образом, конструктивные решения в архитектурном проектировании являются основополагающими для создания функциональных, безопасных и эстетически привлекательных зданий. Каждый из рассмотренных аспектов требует тщательного анализа и учета множества факторов, что делает процесс проектирования сложным, но в то же время увлекательным.
5. Учет климатических условий
- Климатические условия региона, в котором планируется строительство, оказывают значительное влияние на выбор конструктивных решений. Например, в районах с холодным климатом необходимо предусмотреть дополнительные меры по теплоизоляции.
- В условиях высокой влажности важно использовать материалы, устойчивые к гниению и коррозии, чтобы обеспечить долговечность конструкции.
- Также следует учитывать возможность воздействия природных катастроф, таких как ураганы или землетрясения, что требует применения специальных технологий и материалов для повышения устойчивости зданий.
6. Энергоэффективность и устойчивое строительство
- Современные тенденции в архитектурном проектировании акцентируют внимание на энергоэффективности и устойчивом строительстве. Это включает в себя использование возобновляемых источников энергии, таких как солнечные панели и ветряные турбины.
- Проектирование зданий с учетом принципов устойчивого развития позволяет снизить потребление энергии и уменьшить негативное воздействие на окружающую среду.
- Энергоэффективные конструкции также могут включать в себя системы рекуперации тепла и умные технологии управления, что делает здания более комфортными для проживания и работы.
7. Функциональное зонирование
- Функциональное зонирование является важным аспектом архитектурного проектирования, которое определяет, как различные пространства будут использоваться. Это включает в себя распределение жилых, коммерческих и общественных зон в здании.
- Правильное зонирование позволяет создать комфортную и эффективную среду, где каждый элемент здания выполняет свою функцию.
- При проектировании необходимо учитывать не только текущие потребности, но и возможные изменения в будущем, что позволит избежать необходимости в значительных переделках.
8. Эстетические аспекты
- Эстетика здания играет важную роль в его восприятии. Конструктивные решения должны гармонично сочетаться с архитектурным стилем и окружающей средой.
- Использование различных текстур, форм и цветов может значительно повлиять на общее впечатление от здания.
- Важно также учитывать культурные и исторические контексты, чтобы создать здание, которое будет не только функциональным, но и красивым.
В заключение, конструктивные решения в архитектурном проектировании являются основой для создания качественных и долговечных зданий. Учитывая все вышеперечисленные аспекты, архитекторы и инженеры могут разрабатывать проекты, которые будут отвечать современным требованиям и ожиданиям пользователей. Каждый проект уникален и требует индивидуального подхода, что делает архитектурное проектирование увлекательным и сложным процессом.
Системы электроснабжения
Архитектурное проектирование систем электроснабжения является важным этапом в создании эффективной и безопасной инфраструктуры. В этом процессе необходимо учитывать множество факторов, включая требования к мощности, распределению электроэнергии, а также соответствие современным стандартам и нормам. Важным аспектом является создание планов, которые будут служить основой для дальнейшей реализации проекта.
При разработке архитектурных планов систем электроснабжения следует учитывать следующие ключевые элементы:
- Определение потребностей в электроэнергии: На начальном этапе необходимо провести анализ потребностей в электроэнергии для различных зон здания или комплекса. Это включает в себя оценку нагрузки, которая будет возникать в результате работы оборудования, освещения и других электрических систем.
- Выбор типа электроснабжения: В зависимости от потребностей и особенностей объекта, проектировщики могут выбрать различные схемы электроснабжения, такие как однофазное или трехфазное, а также различные уровни напряжения.
- Разработка схемы распределения: Важно создать четкую схему распределения электроэнергии, которая будет включать в себя расположение трансформаторов, распределительных щитов, кабельных линий и других элементов системы. Это поможет избежать перегрузок и обеспечить надежность электроснабжения.
- Учет норм и стандартов: Все проектные решения должны соответствовать действующим нормам и стандартам, таким как ПУЭ (Правила устройства электроустановок) и другие регламенты, касающиеся безопасности и надежности электроснабжения.
- Интеграция с другими системами: Системы электроснабжения должны быть интегрированы с другими инженерными системами здания, такими как системы вентиляции, отопления и кондиционирования, что позволит оптимизировать энергопотребление и повысить общую эффективность.
На этапе проектирования также важно учитывать возможность будущих изменений и модернизации системы. Это может включать в себя возможность добавления новых потребителей, расширения существующих мощностей или внедрения новых технологий, таких как системы управления энергией и возобновляемые источники энергии.
Кроме того, необходимо уделить внимание вопросам безопасности. Проектирование должно включать в себя меры по защите от коротких замыканий, перегрузок и других аварийных ситуаций. Это может быть достигнуто с помощью установки автоматических выключателей, предохранителей и других защитных устройств.
Важным аспектом является также создание документации, которая будет включать в себя все необходимые чертежи, схемы и расчеты. Эта документация будет служить основой для дальнейшего строительства и эксплуатации системы электроснабжения.
При проектировании систем электроснабжения также необходимо учитывать различные факторы, влияющие на выбор оборудования и материалов. К ним относятся:
- Климатические условия: В зависимости от региона, в котором расположено здание, могут потребоваться специальные решения для защиты оборудования от воздействия внешней среды, таких как влагозащита, защита от коррозии и температурные ограничения.
- Тип здания: Разные типы зданий (жилые, коммерческие, промышленные) имеют различные требования к электроснабжению. Например, промышленные объекты могут требовать более мощных трансформаторов и специализированного оборудования для работы с высокими нагрузками.
- Энергоэффективность: В современных проектах все большее внимание уделяется энергоэффективности. Это может включать в себя использование светодиодного освещения, систем автоматизации и управления, а также внедрение возобновляемых источников энергии, таких как солнечные панели.
Проектирование систем электроснабжения также включает в себя выбор кабелей и проводников. Важно учитывать не только их сечение и материал, но и условия прокладки, такие как наличие механических повреждений, температура окружающей среды и возможность перегрева. Правильный выбор кабелей поможет избежать потерь энергии и повысить надежность системы.
Кроме того, необходимо предусмотреть места для установки оборудования, таких как распределительные щиты и трансформаторы. Эти места должны быть удобными для доступа, чтобы обеспечить легкость в обслуживании и ремонте. Также важно учитывать требования к вентиляции и охлаждению оборудования, чтобы предотвратить его перегрев.
На этапе проектирования следует также рассмотреть возможность внедрения систем мониторинга и управления. Такие системы позволяют отслеживать состояние электроснабжения в реальном времени, выявлять потенциальные проблемы и оптимизировать потребление энергии. Это особенно актуально для крупных объектов, где нагрузка может значительно варьироваться в зависимости от времени суток и сезона.
Не менее важным аспектом является планирование аварийного электроснабжения. В случае отключения основного источника питания необходимо предусмотреть резервные источники, такие как дизель-генераторы или источники бесперебойного питания (ИБП). Это обеспечит непрерывность работы критически важных систем и минимизирует риски для безопасности.
В заключение, архитектурное проектирование систем электроснабжения требует комплексного подхода и учета множества факторов. От правильного проектирования зависит не только эффективность работы системы, но и безопасность пользователей. Поэтому важно привлекать квалифицированных специалистов на всех этапах разработки проекта, начиная от анализа потребностей и заканчивая реализацией и эксплуатацией системы.
системы водоснабжения
Архитектурное проектирование систем водоснабжения является важным этапом в создании эффективной и надежной инфраструктуры для обеспечения водными ресурсами. В процессе проектирования необходимо учитывать множество факторов, включая требования к качеству воды, ее источники, методы распределения и хранения, а также особенности местности и климатические условия.
Первым шагом в архитектурном проектировании систем водоснабжения является анализ потребностей. Это включает в себя определение объема воды, необходимого для различных нужд, таких как бытовое использование, полив, промышленность и другие. Для этого необходимо провести исследование населения, а также оценить потребности предприятий и учреждений в конкретном районе.
Следующим этапом является выбор источников водоснабжения. В зависимости от географического положения и доступных ресурсов, источниками могут быть подземные воды, реки, озера или водохранилища. Важно провести гидрологические исследования, чтобы определить качество и количество доступной воды, а также оценить возможные риски, связанные с загрязнением или истощением источников.
После выбора источников необходимо разработать планы распределения воды. Это включает в себя проектирование сети трубопроводов, насосных станций и резервуаров для хранения воды. Важно учитывать не только технические характеристики, но и экономические аспекты, такие как стоимость материалов и работ, а также возможные затраты на эксплуатацию системы.
При проектировании систем водоснабжения также следует учитывать экологические аспекты. Это включает в себя оценку воздействия на окружающую среду, защиту водоемов от загрязнения и сохранение природных ресурсов. Важно разработать меры по минимизации негативного воздействия на экосистему, такие как использование современных технологий очистки и фильтрации воды.
Кроме того, необходимо учитывать нормативные требования и стандарты, регулирующие проектирование и эксплуатацию систем водоснабжения. Это включает в себя соблюдение санитарных норм, требований к качеству воды и безопасности, а также правил по охране окружающей среды. Проектировщики должны быть в курсе актуальных законодательных изменений и рекомендаций, чтобы обеспечить соответствие проектируемой системы всем необходимым стандартам.
Важным аспектом архитектурного проектирования является интеграция систем водоснабжения с другими инженерными сетями. Это может включать в себя взаимодействие с системами канализации, отопления, электроснабжения и другими. Правильная интеграция позволяет оптимизировать работу всех систем и снизить затраты на их эксплуатацию.
На этапе проектирования также следует уделить внимание долговечности и надежности систем водоснабжения. Это включает в себя выбор качественных материалов, которые способны выдерживать воздействие внешней среды и механических нагрузок. Также необходимо предусмотреть регулярное техническое обслуживание и модернизацию систем для обеспечения их бесперебойной работы.
При проектировании систем водоснабжения также важно учитывать потенциальные риски, связанные с авариями и чрезвычайными ситуациями. Это может включать в себя разработку планов на случай утечек, загрязнения или других непредвиденных обстоятельств. Создание резервных систем и аварийных запасов воды может значительно повысить устойчивость всей инфраструктуры.
Важным аспектом является модернизация существующих систем. Многие города и населенные пункты имеют устаревшие водопроводные сети, которые требуют обновления. Проектирование новых систем должно учитывать возможность интеграции с уже существующими, чтобы минимизировать затраты и время на реализацию. Это может включать в себя использование современных технологий, таких как автоматизированные системы управления и мониторинга, которые позволяют более эффективно управлять ресурсами.
Также стоит обратить внимание на инновационные технологии, которые могут быть применены в системах водоснабжения. Например, использование систем сбора дождевой воды, очистки сточных вод и повторного использования воды становится все более популярным. Эти технологии не только помогают сократить потребление пресной воды, но и способствуют устойчивому развитию и охране окружающей среды.
При проектировании систем водоснабжения необходимо также учитывать социальные аспекты. Важно вовлекать местное население в процесс проектирования и реализации, чтобы учесть их потребности и ожидания. Это может включать в себя проведение общественных слушаний, опросов и других форм взаимодействия с гражданами. Участие сообщества в проектировании может повысить уровень доверия и удовлетворенности конечных пользователей.
Не менее важным является финансирование проектов. Проектирование и реализация систем водоснабжения требуют значительных инвестиций. Поэтому необходимо заранее разработать финансовые модели, которые позволят обеспечить устойчивое финансирование на всех этапах — от проектирования до эксплуатации. Это может включать в себя привлечение частных инвестиций, государственное финансирование и международные гранты.
В заключение, архитектурное проектирование систем водоснабжения — это многогранный процесс, который требует комплексного подхода и учета множества факторов. Успешная реализация проектов зависит от грамотного планирования, использования современных технологий и активного взаимодействия с местным населением. Важно помнить, что системы водоснабжения не только обеспечивают жизненно важный ресурс, но и играют ключевую роль в устойчивом развитии городов и регионов.
системы водоотведения
Архитектурное проектирование систем водоотведения является важным этапом в создании эффективной и безопасной инфраструктуры. Водоотведение включает в себя не только сбор и транспортировку сточных вод, но и их очистку, что делает проектирование этих систем многогранным и сложным процессом. В данной статье мы рассмотрим ключевые аспекты архитектурного проектирования систем водоотведения, включая планирование, выбор технологий и материалов, а также интеграцию с другими инженерными системами.
Первым шагом в проектировании систем водоотведения является анализ территории, на которой будет осуществляться строительство. Это включает в себя изучение геологических и гидрологических условий, а также существующей инфраструктуры. Важно учитывать такие факторы, как уровень грунтовых вод, тип почвы, наличие природных водоемов и существующих систем водоотведения. Эти данные помогут определить оптимальные решения для проектирования.
Следующим этапом является разработка концепции системы водоотведения. На этом этапе проектировщики должны определить, какие технологии и методы будут использоваться для сбора, транспортировки и очистки сточных вод. В зависимости от типа застройки (жилые, коммерческие или промышленные объекты) могут быть выбраны различные подходы. Например, для жилых районов часто используются централизованные системы, тогда как для удаленных или малонаселенных мест могут быть более эффективными локальные очистные сооружения.
При проектировании систем водоотведения также необходимо учитывать нормативные требования и стандарты, действующие в данной области. Это включает в себя санитарные нормы, экологические требования и строительные кодексы. Проектировщики должны быть в курсе последних изменений в законодательстве, чтобы обеспечить соответствие проектируемой системы всем необходимым требованиям.
После разработки концепции системы водоотведения следует создание детальных планов и чертежей. На этом этапе проектировщики разрабатывают схемы расположения трубопроводов, колодцев, насосных станций и очистных сооружений. Важно учитывать не только технические характеристики, но и удобство эксплуатации и обслуживания системы. Чертежи должны быть четкими и понятными, чтобы обеспечить правильную реализацию проекта на строительной площадке.
Кроме того, необходимо провести расчеты для определения необходимых диаметров труб, пропускной способности систем и других параметров. Эти расчеты должны основываться на прогнозируемых объемах сточных вод, которые будут поступать в систему. Важно учитывать как текущие, так и будущие потребности, чтобы избежать необходимости в доработках и модернизации системы в будущем.
На этапе проектирования также следует уделить внимание интеграции систем водоотведения с другими инженерными системами, такими как водоснабжение, отопление и электроснабжение. Это позволит создать комплексное решение, которое будет эффективно функционировать в рамках всего объекта. Например, системы водоотведения могут быть связаны с системами дождевой воды, что позволит использовать очищенные сточные воды для полива или технических нужд.
Важным аспектом проектирования является учет экологических факторов. Проектировщики должны стремиться минимизировать негативное воздействие систем водоотведения на окружающую среду. Это может включать в себя использование технологий, которые снижают уровень загрязнения, а также проектирование систем, которые способствуют восстановлению природных экосистем.
Следующим важным этапом является выбор материалов для систем водоотведения. Правильный выбор труб, колодцев и других компонентов системы напрямую влияет на ее долговечность и эффективность. Наиболее распространенными материалами являются полиэтилен, полипропилен, бетон и сталь. Каждый из этих материалов имеет свои преимущества и недостатки, которые необходимо учитывать при проектировании. Например, полиэтиленовые трубы легкие и устойчивы к коррозии, но могут быть менее прочными в условиях высоких нагрузок.
Также следует обратить внимание на проектирование насосных станций, которые играют ключевую роль в транспортировке сточных вод. Насосные станции должны быть спроектированы с учетом их мощности, типа насосов и системы управления. Важно предусмотреть возможность автоматизации процессов, что позволит снизить затраты на эксплуатацию и повысить надежность системы.
Не менее важным аспектом является обеспечение доступа к элементам системы для обслуживания и ремонта. Проектировщики должны предусмотреть удобные подходы к колодцам, насосным станциям и очистным сооружениям. Это позволит сократить время и затраты на обслуживание, а также повысить безопасность работников, занимающихся эксплуатацией системы.
При проектировании систем водоотведения также необходимо учитывать потенциальные риски, связанные с их эксплуатацией. Это может включать в себя затопления, утечки сточных вод и другие аварийные ситуации. Проектировщики должны разработать меры по предотвращению таких ситуаций, а также планы действий на случай аварий. Это может включать в себя установку датчиков уровня, системы оповещения и резервных насосов.
Важным аспектом является мониторинг и управление системами водоотведения после их ввода в эксплуатацию. Современные технологии позволяют внедрять системы автоматизированного мониторинга, которые обеспечивают контроль за состоянием системы в реальном времени. Это позволяет оперативно реагировать на изменения и предотвращать возможные проблемы.
Наконец, проектировщики должны учитывать социальные аспекты проектирования систем водоотведения. Важно взаимодействовать с местными жителями и учитывать их мнение при разработке проектов. Это может включать в себя проведение общественных слушаний, информирование населения о планируемых работах и их последствиях, а также учет мнений и предложений граждан.
Таким образом, архитектурное проектирование систем водоотведения требует комплексного подхода, который включает в себя анализ территории, выбор технологий, учет нормативных требований, проектирование детальных планов, выбор материалов, обеспечение доступа, управление рисками и взаимодействие с обществом. Все эти аспекты должны быть тщательно проработаны для создания эффективной и безопасной системы водоотведения, которая будет служить на благо общества и окружающей среды.
системы отопление вентиляции и кондиционирования воздуха
Архитектурное проектирование систем отопления, вентиляции и кондиционирования воздуха (ОВК) является важным этапом в создании комфортной и безопасной среды для проживания и работы. Правильное проектирование этих систем позволяет не только обеспечить необходимый микроклимат, но и оптимизировать энергозатраты, что особенно актуально в условиях современных требований к энергоэффективности.
Процесс проектирования начинается с анализа требований к помещению, в котором будут установлены системы ОВК. Это включает в себя изучение назначения здания, его архитектурных особенностей, а также климатических условий региона. На этом этапе важно учитывать:
- Тип здания: жилое, коммерческое, промышленное или общественное.
- Площадь и объем помещений: это влияет на выбор оборудования и его мощности.
- Количество и расположение окон: окна являются основным источником теплопотерь и солнечного света.
- Количество людей: для общественных и коммерческих зданий важно учитывать плотность населения.
- Специфика использования помещений: например, в кухнях и ванных комнатах требуется особая вентиляция.
После сбора всех необходимых данных начинается разработка концепции системы ОВК. На этом этапе проектировщики выбирают типы оборудования, которые будут использоваться, а также определяют их расположение. Важно, чтобы системы были интегрированы в общую архитектурную концепцию здания, не нарушая его эстетические качества.
Одним из ключевых аспектов проектирования является создание планов систем. Эти планы включают в себя:
- Схемы расположения оборудования: котлы, кондиционеры, вентиляторы и другие элементы должны быть размещены с учетом удобства обслуживания и минимизации шумов.
- Планы воздуховодов и трубопроводов: необходимо продумать маршруты для воздуховодов и труб, чтобы избежать лишних изгибов и потерь давления.
- Электрические схемы: проектирование систем управления и автоматизации, которые обеспечивают эффективную работу оборудования.
При разработке планов также важно учитывать нормативные требования и стандарты, которые регулируют проектирование систем ОВК. Это включает в себя:
- Санитарные нормы: требования к качеству воздуха, уровню шума и другим параметрам.
- Энергетические стандарты: минимальные требования к энергоэффективности оборудования.
- Пожарные нормы: обеспечение безопасности систем в случае возникновения пожара.
После завершения проектирования и согласования всех планов, начинается этап реализации проекта. На этом этапе важно обеспечить качественную установку оборудования и его настройку, что напрямую влияет на эффективность работы систем ОВК. Также необходимо провести тестирование всех систем, чтобы убедиться в их правильной работе и соответствии проектным требованиям.
После успешной установки систем ОВК, важным этапом является обслуживание и эксплуатация оборудования. Регулярное техническое обслуживание позволяет не только продлить срок службы систем, но и поддерживать их эффективность на высоком уровне. К основным задачам обслуживания относятся:
- Проверка и очистка фильтров: загрязненные фильтры могут значительно снизить эффективность вентиляции и кондиционирования.
- Проверка герметичности воздуховодов: утечки могут привести к потере энергии и ухудшению качества воздуха.
- Регулировка систем управления: необходимо следить за работой автоматических систем и при необходимости вносить изменения.
- Проверка состояния теплообменников: их чистота и исправность критически важны для эффективной работы систем отопления и охлаждения.
Кроме того, важно проводить мониторинг качества воздуха в помещениях. Это включает в себя измерение уровня углекислого газа, влажности и температуры. Современные системы могут быть оснащены датчиками, которые автоматически регулируют работу вентиляции в зависимости от текущих условий.
Важным аспектом проектирования и эксплуатации систем ОВК является энергоэффективность. С учетом растущих цен на энергоносители и экологических требований, проектировщики должны стремиться к созданию систем, которые минимизируют потребление энергии. Это может быть достигнуто за счет:
- Использования высокоэффективного оборудования: современные котлы, кондиционеры и вентиляторы имеют высокие показатели энергоэффективности.
- Интеграции возобновляемых источников энергии: солнечные панели и тепловые насосы могут значительно снизить затраты на отопление и охлаждение.
- Автоматизации систем: использование интеллектуальных систем управления позволяет оптимизировать работу оборудования в зависимости от реальных потребностей.
Также стоит отметить, что инновационные технологии играют важную роль в проектировании систем ОВК. Например, системы с рекуперацией тепла позволяют использовать тепло, которое выделяется при вентиляции, для предварительного нагрева свежего воздуха. Это не только снижает затраты на отопление, но и улучшает качество воздуха в помещениях.
В заключение, архитектурное проектирование систем отопления, вентиляции и кондиционирования воздуха требует комплексного подхода, учитывающего множество факторов. От правильного проектирования и установки зависит не только комфорт, но и безопасность пользователей, а также эффективность использования ресурсов. Важно следовать современным тенденциям и требованиям, чтобы создавать системы, которые будут служить долго и эффективно.
слаботочные системы
Архитектурное проектирование слаботочных систем является важным аспектом современного строительства и реконструкции зданий. Слаботочные системы охватывают широкий спектр технологий, включая системы видеонаблюдения, охранной сигнализации, автоматизации, связи и управления. Правильное проектирование этих систем на этапе архитектурного планирования позволяет обеспечить их эффективное функционирование и интеграцию в общую инфраструктуру здания.
При проектировании слаботочных систем необходимо учитывать множество факторов, таких как тип здания, его назначение, количество пользователей, а также требования к безопасности и комфорту. Важно, чтобы архитектурные решения не только соответствовали эстетическим требованиям, но и обеспечивали функциональность и надежность слаботочных систем.
Одним из первых этапов проектирования является анализ требований заказчика. На этом этапе необходимо выяснить, какие именно слаботочные системы будут установлены, каковы их функции и какие задачи они должны решать. Например, для офисного здания может потребоваться установка системы видеонаблюдения, в то время как для жилого комплекса важна охранная сигнализация и системы управления доступом.
После определения требований следует провести обследование объекта. Это включает в себя изучение существующей инфраструктуры, оценку технического состояния зданий и коммуникаций, а также анализ возможных ограничений, таких как наличие несущих конструкций, расположение окон и дверей, а также другие архитектурные особенности.
На основе собранной информации разрабатывается предварительный план размещения слаботочных систем. Важно учитывать не только технические характеристики оборудования, но и его влияние на архитектурный облик здания. Например, размещение камер видеонаблюдения должно быть таким, чтобы они не портили внешний вид фасада, но при этом обеспечивали максимальную эффективность наблюдения.
При проектировании слаботочных систем также необходимо учитывать требования к электропитанию и прокладке кабелей. Важно заранее определить, где будут располагаться распределительные щиты, а также места для установки оборудования. Это позволит избежать проблем с доступом к системам в будущем и упростит их обслуживание.
Кроме того, следует обратить внимание на вопросы безопасности. Системы охранной сигнализации и видеонаблюдения должны быть спроектированы таким образом, чтобы минимизировать риски несанкционированного доступа и обеспечить защиту от внешних угроз. Это может включать в себя установку датчиков движения, камер с функцией ночного видения и других современных технологий.
Не менее важным аспектом является интеграция слаботочных систем с другими инженерными системами здания, такими как системы отопления, вентиляции и кондиционирования. Это позволит создать единое пространство, в котором все системы будут работать в гармонии друг с другом, обеспечивая комфорт и безопасность пользователей.
В процессе проектирования также необходимо учитывать возможность дальнейшего расширения и модернизации слаботочных систем. Технологии развиваются, и со временем может возникнуть необходимость в добавлении новых функций или оборудования. Поэтому важно предусмотреть возможность легкого доступа к системам и их компонентам.
Следующим этапом проектирования является создание детализированных чертежей и схем, которые будут служить основой для установки слаботочных систем. Эти документы должны включать в себя все необходимые данные о расположении оборудования, прокладке кабелей, а также схемы подключения. Чертежи должны быть понятными и доступными для монтажников, чтобы избежать ошибок при установке.
При разработке чертежей важно учитывать стандарты и нормы, действующие в данной области. Это касается как проектирования, так и установки слаботочных систем. Соблюдение норм позволит обеспечить безопасность эксплуатации систем и их соответствие требованиям законодательства.
После завершения проектирования и подготовки всех необходимых документов наступает этап согласования проекта с заказчиком и другими заинтересованными сторонами. На этом этапе важно получить одобрение всех участников, чтобы избежать недоразумений и конфликтов в будущем. Обсуждение проекта может включать в себя презентацию всех аспектов, включая технические характеристики, стоимость и сроки выполнения работ.
После получения всех необходимых согласований можно переходить к этапу реализации проекта. Установка слаботочных систем должна проводиться квалифицированными специалистами, которые имеют опыт работы с подобными системами. Важно, чтобы монтажники следовали разработанным чертежам и схемам, а также соблюдали все нормы и правила безопасности.
В процессе установки необходимо проводить регулярные проверки и тестирования систем, чтобы убедиться в их правильной работе. Это позволит выявить и устранить возможные проблемы на ранних стадиях, что значительно упростит дальнейшую эксплуатацию систем.
После завершения установки слаботочных систем следует провести финальное тестирование и наладку оборудования. Это включает в себя проверку всех функций, настройку параметров и обучение пользователей. Важно, чтобы конечные пользователи знали, как правильно использовать системы и какие меры безопасности необходимо соблюдать.
Не менее важным этапом является составление документации по эксплуатации и обслуживанию слаботочных систем. Эта документация должна включать в себя инструкции по использованию, схемы подключения, а также рекомендации по техническому обслуживанию. Наличие такой документации значительно упростит дальнейшую эксплуатацию систем и поможет избежать проблем в будущем.
В заключение, архитектурное проектирование слаботочных систем требует комплексного подхода и внимательного отношения к деталям. Успешная интеграция этих систем в общую архитектурную концепцию здания позволяет не только повысить уровень безопасности и комфорта, но и создать современное и функциональное пространство, соответствующее требованиям времени.
Таким образом, проектирование слаботочных систем является важным этапом, который требует тщательной проработки всех аспектов, начиная от анализа требований и заканчивая эксплуатацией и обслуживанием систем. Это позволяет обеспечить надежность, безопасность и эффективность работы всех установленных систем.
системы газоснабжения
Архитектурное проектирование систем газоснабжения является важным этапом в создании безопасной и эффективной инфраструктуры для подачи газа. Этот процесс включает в себя множество аспектов, начиная от выбора места установки оборудования и заканчивая разработкой детальных планов, которые учитывают все необходимые нормы и требования.
Первым шагом в архитектурном проектировании является анализ требований. На этом этапе проектировщики должны учитывать не только технические характеристики системы, но и требования местных органов власти, а также нормы безопасности. Важно провести исследование территории, на которой будет установлено оборудование, чтобы определить возможные риски и ограничения.
Следующим этапом является разработка концептуального плана. Этот план должен включать в себя расположение всех основных компонентов системы газоснабжения, таких как газовые котлы, распределительные шкафы, трубопроводы и другие элементы. При этом необходимо учитывать не только функциональность, но и эстетические аспекты, чтобы система гармонично вписывалась в окружающую среду.
После создания концептуального плана проектировщики переходят к детальному проектированию. На этом этапе разрабатываются чертежи и схемы, которые включают в себя все необходимые размеры, материалы и технологии. Важно, чтобы все элементы системы были согласованы между собой и соответствовали действующим стандартам. Также на этом этапе разрабатываются планы по монтажу и наладке оборудования.
Не менее важным аспектом является учет экологических факторов. Проектировщики должны оценить влияние системы газоснабжения на окружающую среду и разработать меры по минимизации негативных последствий. Это может включать в себя использование современных технологий, которые снижают выбросы вредных веществ, а также внедрение систем мониторинга и контроля.
Кроме того, необходимо учитывать экономические аспекты проектирования. Проектировщики должны провести анализ затрат на строительство и эксплуатацию системы, а также оценить возможные риски и выгоды. Это поможет определить оптимальные решения, которые будут не только эффективными, но и экономически целесообразными.
Важным этапом является согласование проекта с заинтересованными сторонами. Это может включать в себя встречи с представителями местных властей, экологическими организациями и другими заинтересованными сторонами. Получение всех необходимых разрешений и согласований является ключевым моментом для успешной реализации проекта.
Наконец, после завершения всех этапов проектирования, необходимо подготовить документацию для строительства. Это включает в себя не только чертежи и схемы, но и технические условия, спецификации и другие документы, которые будут необходимы для реализации проекта. Правильная подготовка документации поможет избежать проблем в процессе строительства и эксплуатации системы газоснабжения.
После подготовки всей необходимой документации, следующим шагом является выбор подрядчиков для реализации проекта. Важно, чтобы подрядчики имели опыт работы с системами газоснабжения и соответствовали всем требованиям, установленным в проекте. Проведение тендера и выбор надежного подрядчика могут существенно повлиять на качество и сроки выполнения работ.
На этапе монтажа системы газоснабжения необходимо строго следовать разработанным планам и чертежам. Все работы должны выполняться квалифицированными специалистами, которые имеют соответствующие лицензии и сертификаты. Важно также проводить регулярные проверки и контроль качества на каждом этапе монтажа, чтобы избежать возможных ошибок и недочетов.
После завершения монтажа следует проведение испытаний системы. Это включает в себя проверку всех компонентов на работоспособность, а также тестирование системы на герметичность и безопасность. Испытания должны проводиться в соответствии с установленными стандартами и нормами, чтобы гарантировать, что система будет функционировать без сбоев.
После успешного завершения испытаний, система газоснабжения может быть введена в эксплуатацию. На этом этапе важно провести обучение персонала, который будет отвечать за эксплуатацию и обслуживание системы. Обучение должно охватывать все аспекты работы с газовым оборудованием, включая правила безопасности и действия в экстренных ситуациях.
Не менее важным является разработка плана технического обслуживания. Регулярное обслуживание системы газоснабжения поможет предотвратить возможные неисправности и продлить срок службы оборудования. Важно установить график проверок и регламентировать действия по обслуживанию, чтобы обеспечить надежную и безопасную работу системы.
В процессе эксплуатации системы газоснабжения необходимо также проводить мониторинг ее состояния. Это может включать в себя использование современных технологий, таких как системы автоматизированного контроля, которые позволяют отслеживать параметры работы оборудования в реальном времени. Мониторинг поможет быстро выявлять и устранять возможные проблемы, что значительно повысит безопасность и эффективность системы.
В заключение, архитектурное проектирование систем газоснабжения требует комплексного подхода и внимательного отношения ко всем этапам — от анализа требований до эксплуатации. Каждый из этих этапов играет важную роль в создании безопасной и эффективной системы, способной удовлетворить потребности пользователей и соответствовать современным стандартам.
Технологические решения
Архитектурное проектирование является важным этапом в создании любого здания или сооружения. Оно включает в себя множество аспектов, таких как функциональность, эстетика, безопасность и устойчивость. В этом контексте технологические решения играют ключевую роль, обеспечивая реализацию задуманных идей и концепций.
1. Основные этапы архитектурного проектирования
Процесс архитектурного проектирования можно разделить на несколько ключевых этапов:
- Исследование и анализ - на этом этапе архитекторы изучают участок, на котором будет строиться здание, а также его окружение, климатические условия и местные нормы.
- Концептуальное проектирование - разработка первоначальных идей и концепций, которые будут служить основой для дальнейшей работы.
- Разработка проектной документации - создание детальных чертежей, спецификаций и других документов, необходимых для строительства.
- Согласование и утверждение - получение разрешений и согласований от различных инстанций, что является обязательным этапом перед началом строительства.
- Строительство - реализация проектных решений на практике, что требует постоянного контроля и корректировок.
2. Технологические решения в архитектурном проектировании
Современные технологии значительно изменили подход к архитектурному проектированию. К ним относятся:
- Системы автоматизированного проектирования (САПР) - позволяют создавать точные и детализированные чертежи, а также моделировать здания в 3D.
- Информационное моделирование зданий (BIM) - технология, которая позволяет интегрировать все аспекты проектирования, строительства и эксплуатации здания в единую модель.
- Энергоэффективные технологии - использование современных материалов и систем, которые способствуют снижению энергозатрат и повышению устойчивости зданий.
- Умные технологии - внедрение систем автоматизации, которые обеспечивают управление освещением, отоплением и другими системами здания.
3. Применение технологий в архитектурном проектировании
Технологические решения могут быть применены на различных этапах проектирования:
- На этапе исследования - использование геоинформационных систем (ГИС) для анализа участка и его окружения.
- На этапе концептуального проектирования - применение 3D-моделирования для визуализации идей и концепций.
- На этапе разработки документации - использование САПР для создания точных чертежей и спецификаций.
- На этапе строительства - применение технологий управления проектами для контроля сроков и бюджета.
Таким образом, технологические решения в архитектурном проектировании не только упрощают процесс, но и повышают качество конечного продукта, обеспечивая его соответствие современным требованиям и стандартам.
4. Инновационные материалы и технологии
Современное архитектурное проектирование невозможно без использования инновационных материалов и технологий, которые обеспечивают не только эстетическую привлекательность, но и функциональность зданий. К таким материалам относятся:
- Композитные материалы - легкие и прочные, они позволяют создавать сложные формы и конструкции, которые были бы невозможны с использованием традиционных материалов.
- Энергоэффективные стекла - такие как триплекс и стеклопакеты с низким коэффициентом теплопередачи, помогают снизить энергозатраты на отопление и кондиционирование.
- Зеленые кровли и фасады - использование растительности на крышах и стенах зданий способствует улучшению микроклимата и снижению уровня шума.
- Системы солнечных панелей - интеграция солнечных батарей в архитектурные решения позволяет значительно сократить потребление энергии.
5. Устойчивое архитектурное проектирование
Устойчивое архитектурное проектирование становится все более актуальным в условиях изменения климата и растущих требований к экологии. Основные принципы устойчивого проектирования включают:
- Энергоэффективность - проектирование зданий с минимальными энергозатратами, использование возобновляемых источников энергии.
- Экологические материалы - выбор материалов, которые не наносят вреда окружающей среде и могут быть переработаны.
- Оптимизация водных ресурсов - внедрение систем сбора дождевой воды и повторного использования сточных вод.
- Создание комфортной городской среды - проектирование общественных пространств, которые способствуют социальной активности и взаимодействию.
6. Взаимодействие с клиентами и заинтересованными сторонами
Успех архитектурного проектирования во многом зависит от эффективного взаимодействия с клиентами и другими заинтересованными сторонами. Важные аспекты этого взаимодействия включают:
- Сбор требований - тщательное изучение пожеланий и потребностей клиента на начальном этапе проектирования.
- Регулярные консультации - проведение встреч и обсуждений на всех этапах проектирования для получения обратной связи и корректировки решений.
- Презентация проектных решений - использование визуализаций и 3D-моделей для более наглядного представления идей клиенту.
- Учет мнений сообщества - вовлечение местных жителей и организаций в процесс проектирования для создания более гармоничных и приемлемых решений.
Таким образом, архитектурное проектирование становится многогранным процессом, в котором технологические решения, инновационные материалы и взаимодействие с клиентами играют ключевую роль. Это позволяет создавать не только функциональные и эстетически привлекательные здания, но и устойчивые решения, которые отвечают современным требованиям общества и окружающей среды.
Проект организации строительства
Архитектурное проектирование является важным этапом в организации строительства, так как именно на этом этапе формируются основные концепции и идеи, которые будут реализованы в будущем здании или сооружении. Процесс архитектурного проектирования включает в себя несколько ключевых этапов, каждый из которых требует внимательного подхода и профессиональных навыков.
Первым шагом в архитектурном проектировании является анализ требований заказчика. На этом этапе архитектор должен понять, какие функции должно выполнять здание, какие требования предъявляются к его внешнему виду, а также какие ограничения существуют в связи с местоположением и законодательством. Важно учитывать не только желания заказчика, но и особенности участка, на котором будет возводиться объект.
Следующим этапом является разработка концептуального проекта. На этом этапе архитектор создает несколько эскизов и вариантов планировок, которые могут быть предложены заказчику. Эти эскизы должны отражать основные идеи и концепции, которые будут реализованы в дальнейшем. Важно, чтобы на этом этапе были учтены все аспекты, включая функциональность, эстетику и экономическую целесообразность.
После утверждения концептуального проекта начинается разработка рабочей документации. Этот этап включает в себя создание детализированных чертежей, спецификаций и других документов, необходимых для строительства. Рабочая документация должна быть максимально точной и полной, чтобы избежать недоразумений и ошибок в процессе строительства. Важно также учитывать все строительные нормы и правила, чтобы проект соответствовал требованиям безопасности и качества.
На этапе координации с другими специалистами архитектор взаимодействует с инженерами, дизайнерами и другими профессионалами, которые участвуют в проекте. Это необходимо для того, чтобы все элементы проекта были согласованы между собой и соответствовали общему замыслу. Важно, чтобы все специалисты работали в едином ключе, что позволит избежать конфликтов и недоразумений в процессе реализации проекта.
После завершения рабочей документации и координации с другими специалистами, проект переходит к этапу экспертизы и согласования. На этом этапе проект проходит проверку на соответствие всем необходимым нормам и требованиям. Это может включать в себя как внутренние проверки, так и внешние экспертизы, проводимые государственными органами. Важно, чтобы проект был одобрен на этом этапе, так как это позволит избежать задержек и проблем в дальнейшем.
После успешного прохождения экспертизы проект может быть передан на строительство. На этом этапе архитектор продолжает участвовать в процессе, обеспечивая контроль за реализацией проекта и внося необходимые изменения в случае возникновения непредвиденных обстоятельств. Важно, чтобы архитектор оставался на связи с подрядчиками и другими участниками проекта, чтобы обеспечить его успешное завершение.
На этапе строительного контроля архитектор также может участвовать в проверке качества выполненных работ. Это включает в себя регулярные инспекции на строительной площадке, где архитектор оценивает, насколько точно подрядчики следуют проектной документации. Важно, чтобы все работы выполнялись в соответствии с утвержденными чертежами и спецификациями, а также с соблюдением строительных норм и стандартов. Если возникают отклонения от проекта, архитектор должен оперативно реагировать и вносить корректировки.
Кроме того, в процессе строительства может возникнуть необходимость в внесении изменений в проект. Это может быть вызвано различными факторами, такими как изменения в требованиях заказчика, непредвиденные обстоятельства на строительной площадке или новые строительные технологии. В таких случаях архитектор должен быть готов к адаптации проекта, сохраняя при этом его основные концепции и функциональность.
После завершения строительства наступает этап приемки объекта. На этом этапе архитектор и заказчик проверяют готовность здания к эксплуатации. Это включает в себя проверку всех систем и конструкций, а также соответствие объекта проектной документации. Если все требования выполнены, здание может быть передано в эксплуатацию. Важно, чтобы на этом этапе были оформлены все необходимые документы, включая акты приемки и сертификаты соответствия.
Не менее важным является последующий мониторинг и оценка эксплуатации здания. Архитектор может продолжать взаимодействовать с заказчиком, чтобы оценить, насколько эффективно здание выполняет свои функции. Это может включать в себя сбор отзывов от пользователей, анализ эксплуатационных расходов и выявление возможных проблем. На основе полученной информации архитектор может предложить рекомендации по улучшению функциональности и комфорта здания.
В заключение, архитектурное проектирование является многогранным и сложным процессом, который требует от специалистов высокой квалификации и внимательности на каждом этапе. От начального анализа требований до финальной приемки объекта, каждый шаг имеет значение для успешной реализации проекта. Важно, чтобы архитекторы работали в тесном сотрудничестве с другими участниками процесса, обеспечивая гармоничное сочетание функциональности, эстетики и безопасности в конечном результате.
Таким образом, архитектурное проектирование не только формирует облик зданий и сооружений, но и влияет на качество жизни людей, которые будут их использовать. Успешный проект — это результат совместной работы команды профессионалов, которые стремятся создать пространство, отвечающее современным требованиям и ожиданиям.
Мероприятия по охране окружающей среды
Архитектурное проектирование в контексте охраны окружающей среды становится все более актуальным. В условиях глобальных изменений климата и ухудшения экологической ситуации, архитекторы и проектировщики должны учитывать не только эстетические и функциональные аспекты зданий, но и их влияние на окружающую среду. Это требует внедрения новых подходов и технологий, которые помогут минимизировать негативное воздействие на природу.
Одним из ключевых аспектов архитектурного проектирования является устойчивое развитие. Устойчивое проектирование подразумевает создание зданий, которые эффективно используют ресурсы, минимизируют отходы и обеспечивают комфортные условия для жизни и работы людей. В этом контексте важно учитывать следующие принципы:
- Энергоэффективность: Использование современных технологий для снижения потребления энергии, таких как солнечные панели, системы рекуперации тепла и высокоэффективные изоляционные материалы.
- Водосбережение: Проектирование систем, которые позволяют эффективно использовать и очищать воду, включая дождевую воду и серую воду.
- Экологически чистые материалы: Применение материалов, которые не наносят вреда окружающей среде, таких как переработанные или местные ресурсы.
- Зеленые пространства: Интеграция зеленых насаждений в архитектурные проекты для улучшения качества воздуха и создания комфортной городской среды.
Важным этапом в архитектурном проектировании является анализ местоположения. Это включает в себя изучение климатических условий, рельефа, существующей инфраструктуры и экосистемы. Правильный выбор места для строительства может значительно снизить негативное воздействие на природу и улучшить качество жизни людей. Например, размещение зданий с учетом солнечной инсоляции и ветровых потоков может снизить потребность в отоплении и кондиционировании.
Также стоит отметить, что инновационные технологии играют важную роль в современном архитектурном проектировании. Использование программного обеспечения для моделирования и анализа позволяет архитекторам создавать более эффективные и устойчивые проекты. Например, технологии Building Information Modeling (BIM) позволяют учитывать все аспекты здания на этапе проектирования, что способствует более точному расчету ресурсов и снижению отходов.
Кроме того, участие сообщества в процессе проектирования становится все более важным. Архитекторы должны учитывать мнения и потребности местных жителей, чтобы создавать пространства, которые будут удобны и полезны для всех. Это может включать в себя проведение общественных слушаний, опросов и других форм взаимодействия с населением.
В заключение, архитектурное проектирование в контексте охраны окружающей среды требует комплексного подхода, который включает в себя устойчивое развитие, анализ местоположения, использование инновационных технологий и участие сообщества. Эти аспекты помогут создать здания, которые будут не только красивыми и функциональными, но и экологически безопасными.
Одним из важных направлений в архитектурном проектировании является интеграция возобновляемых источников энергии. Солнечные панели, ветряные турбины и геотермальные системы становятся неотъемлемой частью современных зданий. Архитекторы должны учитывать возможность установки таких систем на этапе проектирования, чтобы обеспечить максимальную эффективность их работы. Например, размещение солнечных панелей на крыше или фасаде здания может значительно снизить потребление электроэнергии и уменьшить углеродный след.
Также стоит обратить внимание на пассивные методы проектирования, которые позволяют минимизировать потребление энергии без использования активных систем. Это включает в себя правильное расположение окон для максимального использования солнечного света, использование естественной вентиляции и теплоизоляции. Пассивные дома, спроектированные с учетом этих принципов, могут значительно сократить потребление энергии на отопление и охлаждение.
Важным аспектом является управление отходами в процессе строительства и эксплуатации зданий. Архитекторы должны разрабатывать стратегии, которые помогут минимизировать количество отходов, образующихся на всех этапах — от проектирования до сноса. Это может включать в себя использование переработанных материалов, а также проектирование зданий с учетом возможности их последующей переработки или повторного использования.
Кроме того, экологический дизайн предполагает создание пространств, которые способствуют улучшению здоровья и благополучия людей. Это может включать в себя использование натуральных материалов, создание комфортных условий для работы и отдыха, а также обеспечение доступа к природным элементам, таким как зеленые насаждения и водоемы. Исследования показывают, что наличие зеленых пространств в городской среде положительно влияет на психическое здоровье и общее самочувствие жителей.
Не менее важным является информирование и образование всех участников процесса — от архитекторов до конечных пользователей. Создание осведомленности о важности устойчивого проектирования и охраны окружающей среды может способствовать более ответственному отношению к ресурсам и окружающей среде. Это может быть достигнуто через семинары, выставки и другие формы взаимодействия с общественностью.
В заключение, архитектурное проектирование, ориентированное на охрану окружающей среды, требует комплексного подхода, который включает в себя использование возобновляемых источников энергии, пассивные методы, управление отходами, экологический дизайн и образование. Эти элементы помогут создать устойчивые и комфортные пространства, которые будут служить людям и природе.
Мероприятия по обеспечению пожарной безопасности
Архитектурное проектирование играет ключевую роль в обеспечении пожарной безопасности зданий и сооружений. На этапе проектирования необходимо учитывать множество факторов, которые могут повлиять на безопасность людей и имущества в случае возникновения пожара. Важнейшими аспектами являются выбор материалов, планировка помещений, а также организация путей эвакуации.
При проектировании зданий следует учитывать нормативные требования, которые регламентируют правила пожарной безопасности. Эти требования включают в себя:
- Соблюдение расстояний между зданиями для предотвращения распространения огня;
- Использование огнестойких и негорючих материалов в конструкциях;
- Проектирование систем автоматической пожарной сигнализации и оповещения;
- Организация эффективных путей эвакуации для людей.
Одним из первых шагов в архитектурном проектировании является анализ участка, на котором планируется строительство. Важно учитывать не только природные условия, но и существующую инфраструктуру, а также близость к другим зданиям. Это поможет определить оптимальное расположение объекта и минимизировать риски в случае пожара.
При проектировании зданий необходимо также учитывать планировку помещений. Эффективная планировка может значительно снизить риски, связанные с пожаром. Например, следует избегать узких коридоров и длинных проходов, которые могут затруднить эвакуацию. Кроме того, важно правильно организовать размещение лестниц и выходов, чтобы обеспечить быстрый доступ к безопасным зонам.
Важным аспектом является выбор материалов для строительства. Использование огнестойких и негорючих материалов не только повышает безопасность, но и может снизить затраты на страхование. При выборе материалов необходимо учитывать их классы огнестойкости и соответствие современным стандартам.
Также следует обратить внимание на системы противопожарной защиты, которые должны быть интегрированы в проект. Это включает в себя установку автоматических систем пожаротушения, дымоудаления и сигнализации. Эти системы должны быть спроектированы таким образом, чтобы обеспечивать максимальную эффективность в случае возникновения пожара.
Не менее важным является обучение персонала и пользователей здания правилам пожарной безопасности. На этапе проектирования необходимо предусмотреть места для проведения тренировок и инструктажей, а также размещение информационных материалов о действиях в случае пожара.
В заключение, архитектурное проектирование с учетом пожарной безопасности требует комплексного подхода и внимательного анализа всех факторов, которые могут повлиять на безопасность людей и имущества. Каждый этап проектирования должен быть тщательно продуман, чтобы минимизировать риски и обеспечить защиту в случае возникновения чрезвычайной ситуации.
При проектировании зданий также необходимо учитывать зоны риска, которые могут возникнуть в результате различных факторов, таких как наличие легковоспламеняющихся материалов или оборудования. Эти зоны должны быть четко обозначены в проектной документации, а также в самом здании, чтобы обеспечить безопасность пользователей.
Кроме того, важно предусмотреть системы контроля доступа в зданиях, особенно в тех, где могут находиться ценные материалы или оборудование. Ограничение доступа к определенным зонам может снизить риск возникновения пожара, так как уменьшает вероятность несанкционированного использования электрооборудования или других источников возгорания.
На этапе проектирования также следует обратить внимание на освещение и сигнализацию. Эффективное освещение эвакуационных путей и выходов, а также наличие четких указателей помогут людям быстро ориентироваться в случае возникновения чрезвычайной ситуации. Системы сигнализации должны быть спроектированы так, чтобы обеспечивать своевременное оповещение о пожаре и минимизировать время реакции.
Необходимо также учитывать вентиляцию и климат-контроль в здании. Неправильная организация вентиляции может привести к накоплению дыма и токсичных газов, что значительно усложнит эвакуацию. Проектирование систем вентиляции должно включать в себя возможность их отключения в случае пожара, чтобы предотвратить распространение огня и дыма.
Важным аспектом является планирование зон отдыха и помещений для персонала. Эти зоны должны быть расположены так, чтобы в случае пожара люди могли быстро покинуть здание. Также следует предусмотреть наличие средств для оказания первой помощи и мест для временного укрытия, если эвакуация невозможна.
На этапе проектирования необходимо также учитывать пожарные дороги и доступ для пожарной техники. Обеспечение свободного доступа к зданию для пожарных машин и других служб экстренной помощи является критически важным для быстрого реагирования в случае пожара. Проектирование должно включать в себя четкие схемы движения и размещения пожарной техники.
В заключение, архитектурное проектирование с учетом пожарной безопасности требует комплексного подхода, который включает в себя анализ всех возможных рисков, выбор материалов, планировку помещений и организацию систем противопожарной защиты. Каждый элемент проектирования должен быть тщательно продуман, чтобы обеспечить максимальную безопасность для людей и имущества в случае возникновения пожара.
Требования к обеспечению безопасной эксплуатации объектов капитального строительства
Архитектурное проектирование является важным этапом в обеспечении безопасной эксплуатации объектов капитального строительства. Оно включает в себя разработку планов, которые должны учитывать не только эстетические, но и функциональные, а также безопасные аспекты. В этом контексте необходимо рассмотреть несколько ключевых аспектов, которые влияют на безопасность объектов.
1. Учет природных и климатических условий
При проектировании зданий и сооружений необходимо учитывать природные и климатические условия, в которых они будут эксплуатироваться. Это включает в себя:
- Анализ сейсмической активности региона;
- Оценка ветровых нагрузок;
- Изучение уровня грунтовых вод;
- Климатические особенности, такие как температура, влажность и осадки.
Эти факторы могут существенно повлиять на выбор материалов, конструктивные решения и общую безопасность объекта.
2. Проектирование с учетом функционального назначения
Каждый объект капитального строительства имеет свое функциональное назначение, которое должно быть учтено на этапе проектирования. Это включает в себя:
- Определение нагрузки на конструкции в зависимости от предполагаемого использования;
- Разработку планов эвакуации и обеспечения безопасности людей;
- Учет специфических требований для объектов с повышенными рисками (например, химические заводы, больницы и т.д.).
Функциональное назначение также влияет на выбор технологий и материалов, что в свою очередь сказывается на безопасности эксплуатации.
3. Инженерные системы и коммуникации
Архитектурное проектирование должно включать в себя разработку инженерных систем и коммуникаций, которые обеспечивают безопасную эксплуатацию объекта. Ключевые аспекты включают:
- Проектирование систем вентиляции и кондиционирования;
- Обеспечение надежного электроснабжения и системы освещения;
- Разработка систем водоснабжения и водоотведения;
- Учет требований к противопожарной безопасности.
Эти системы должны быть интегрированы в общий проект, чтобы обеспечить безопасность и комфорт пользователей.
4. Эстетические и культурные аспекты
Архитектурное проектирование также должно учитывать эстетические и культурные аспекты, которые могут влиять на восприятие объекта. Это включает в себя:
- Соблюдение архитектурных стилей и традиций региона;
- Учет общественного мнения и потребностей местного населения;
- Создание комфортной и безопасной городской среды.
Эстетические аспекты не должны противоречить требованиям безопасности, и их необходимо гармонично интегрировать в проект.
5. Нормативные и правовые требования
При проектировании объектов капитального строительства необходимо строго соблюдать нормативные и правовые требования, которые касаются безопасности. Это включает в себя:
- Соблюдение строительных норм и правил (СНиП);
- Учет требований государственных стандартов;
- Согласование проектной документации с контролирующими органами.
Нарушение этих требований может привести к серьезным последствиям, включая аварии и несчастные случаи.
Таким образом, архитектурное проектирование является многогранным процессом, который требует комплексного подхода к обеспечению безопасности объектов капитального строительства. Каждый из перечисленных аспектов играет важную роль в создании безопасной и функциональной среды для пользователей.
6. Устойчивость конструкций
Одним из ключевых аспектов архитектурного проектирования является обеспечение устойчивости конструкций. Это включает в себя:
- Расчет прочности и жесткости конструктивных элементов;
- Использование современных материалов, способных выдерживать нагрузки;
- Проектирование с учетом возможных аварийных ситуаций, таких как землетрясения или наводнения.
Устойчивость конструкций должна быть проверена с помощью расчетов и моделирования, чтобы гарантировать безопасность эксплуатации на протяжении всего срока службы объекта.
7. Энергоэффективность и экология
Современное архитектурное проектирование также должно учитывать вопросы энергоэффективности и экологии. Это включает в себя:
- Использование энергосберегающих технологий и материалов;
- Проектирование зданий с учетом солнечной инсоляции и естественного освещения;
- Учет воздействия на окружающую среду и минимизация негативных последствий.
Энергоэффективные здания не только снижают эксплуатационные расходы, но и способствуют устойчивому развитию и охране окружающей среды.
8. Инновационные технологии
В последние годы в архитектурном проектировании активно внедряются инновационные технологии, которые могут повысить безопасность и эффективность объектов. Это включает в себя:
- Использование BIM-технологий для создания трехмерных моделей зданий;
- Применение смарт-технологий для управления инженерными системами;
- Интеграция систем мониторинга состояния конструкций.
Инновационные технологии позволяют более точно прогнозировать поведение зданий и обеспечивать их безопасность в процессе эксплуатации.
9. Обучение и подготовка персонала
Не менее важным аспектом является обучение и подготовка персонала, который будет осуществлять эксплуатацию объектов. Это включает в себя:
- Обучение сотрудников правилам безопасности и эксплуатации;
- Проведение регулярных тренировок по эвакуации и действиям в экстренных ситуациях;
- Создание инструкций и регламентов по эксплуатации и обслуживанию.
Подготовленный персонал способен быстро реагировать на возможные угрозы и минимизировать риски для жизни и здоровья людей.
10. Оценка рисков
На этапе проектирования необходимо проводить оценку рисков, связанных с эксплуатацией объекта. Это включает в себя:
- Идентификацию потенциальных угроз и уязвимостей;
- Анализ вероятности возникновения аварийных ситуаций;
- Разработку мер по снижению рисков и минимизации последствий.
Оценка рисков позволяет заранее выявить проблемные зоны и принять меры для их устранения, что значительно повышает уровень безопасности.
Таким образом, архитектурное проектирование является сложным и многогранным процессом, который требует учета множества факторов для обеспечения безопасной эксплуатации объектов капитального строительства. Каждый из рассмотренных аспектов играет важную роль в создании безопасной и комфортной среды для пользователей.
Мероприятия по обеспечению доступа инвалидов к объекту капитального строительства
Архитектурное проектирование является ключевым этапом в создании объектов капитального строительства, особенно когда речь идет о доступности для людей с ограниченными возможностями. Важно учитывать, что архитектурные решения должны быть не только эстетически привлекательными, но и функциональными, обеспечивая комфортный доступ для всех категорий граждан.
При проектировании объектов капитального строительства необходимо следовать ряду принципов, которые помогут создать доступную среду. К ним относятся:
- Универсальный дизайн: Концепция универсального дизайна предполагает создание объектов, которые могут использоваться всеми людьми, независимо от их физических возможностей. Это включает в себя использование адаптивных технологий и материалов, которые облегчают доступ.
- Соблюдение норм и стандартов: Важно учитывать действующие строительные нормы и правила, касающиеся доступности. Это включает в себя требования к ширине дверных проемов, высоте подъемников, наличию поручней и других элементов, способствующих передвижению.
- Планировка пространства: Архитектурное проектирование должно предусматривать удобные маршруты передвижения, включая наличие пандусов, лифтов и других средств передвижения. Пространство должно быть организовано так, чтобы минимизировать препятствия и обеспечить свободный доступ.
- Использование тактильных и визуальных элементов: Для людей с нарушениями зрения важно предусмотреть тактильные указатели и контрастные цветовые решения, которые помогут ориентироваться в пространстве. Это может включать в себя тактильные плитки, звуковые сигналы и другие элементы навигации.
Одним из важных аспектов архитектурного проектирования является создание доступных входов в здания. Входные группы должны быть спроектированы с учетом следующих требований:
- Пандусы: Пандусы должны иметь соответствующий уклон, чтобы обеспечить легкий доступ для людей на инвалидных колясках. Ширина пандуса должна быть достаточной для комфортного передвижения.
- Автоматические двери: Установка автоматических дверей значительно упрощает доступ для людей с ограниченными возможностями, так как они не требуют физического усилия для открытия.
- Указатели: Наличие четких и понятных указателей, которые информируют о доступных маршрутах и услугах, является важным элементом проектирования.
Также стоит обратить внимание на внутреннюю планировку зданий. Внутренние пространства должны быть организованы так, чтобы обеспечить свободное передвижение. Это включает в себя:
- Широкие коридоры: Коридоры должны быть достаточно широкими, чтобы позволить проходить людям с ограниченными возможностями, а также сопровождать их.
- Доступные туалеты: Важно предусмотреть специальные туалетные комнаты, оборудованные всем необходимым для людей с ограниченными возможностями.
- Зоны отдыха: Создание зон отдыха с удобной мебелью и доступом к услугам также является важным аспектом проектирования.
В заключение, архитектурное проектирование объектов капитального строительства должно быть направлено на создание доступной и комфортной среды для всех пользователей. Это требует комплексного подхода, включающего в себя соблюдение норм, использование современных технологий и учет потребностей людей с ограниченными возможностями.
При проектировании объектов капитального строительства также необходимо учитывать элементы безопасности, которые играют важную роль в обеспечении доступности для людей с ограниченными возможностями. К таким элементам относятся:
- Сигнальные системы: Установка звуковых и визуальных сигналов на входах и выходах, а также в лифтах и переходах, поможет людям с нарушениями слуха и зрения ориентироваться в пространстве.
- Освещение: Правильное освещение является важным аспектом, который помогает предотвратить травмы и обеспечивает комфортное передвижение. Необходимо избегать резких теней и обеспечить равномерное освещение всех зон.
- Противопожарные меры: Проектирование должно включать в себя специальные маршруты эвакуации для людей с ограниченными возможностями, а также наличие необходимых средств для их безопасного вывода в экстренных ситуациях.
Кроме того, важно учитывать и другие аспекты, такие как:
- Адаптация существующих объектов: В случае реконструкции или модернизации старых зданий необходимо проводить оценку их доступности и вносить изменения, которые помогут улучшить условия для людей с ограниченными возможностями.
- Обучение персонала: Персонал, работающий в общественных зданиях, должен проходить обучение по вопросам доступности и взаимодействия с людьми с ограниченными возможностями, чтобы обеспечить им необходимую помощь и поддержку.
- Обратная связь: Важно организовать механизмы обратной связи с пользователями, чтобы они могли сообщать о проблемах с доступностью и предлагать свои идеи по улучшению условий.
Важным аспектом является также использование современных технологий в архитектурном проектировании. Инновационные решения могут значительно улучшить доступность объектов. К таким технологиям относятся:
- Интерактивные навигационные системы: Использование мобильных приложений и интерактивных карт, которые помогут людям с ограниченными возможностями находить оптимальные маршруты внутри зданий.
- Умные технологии: Внедрение систем автоматизации, которые могут управлять освещением, дверями и другими элементами, облегчая доступ для людей с ограниченными возможностями.
- Виртуальная реальность: Использование VR-технологий для проектирования и тестирования доступности объектов на этапе проектирования, что позволяет заранее выявить и устранить возможные проблемы.
Таким образом, архитектурное проектирование должно быть направлено на создание инклюзивной среды, где каждый человек, независимо от своих физических возможностей, сможет комфортно и безопасно передвигаться. Это требует комплексного подхода, включающего в себя как технические, так и социальные аспекты, что в конечном итоге приведет к улучшению качества жизни всех граждан.
Смета на строительство, реконструкцию, капитальный ремонт, снос объекта капитального строительства
Архитектурное проектирование является важным этапом в процессе строительства, реконструкции, капитального ремонта и сноса объектов капитального строительства. Этот процесс включает в себя создание проектной документации, которая служит основой для всех последующих работ. Важно понимать, что архитектурное проектирование не ограничивается лишь созданием красивых фасадов и интерьеров; оно охватывает множество аспектов, включая функциональность, безопасность, устойчивость и соответствие нормам и стандартам.
На начальном этапе архитектурного проектирования разрабатываются концептуальные планы, которые определяют общую идею и стиль будущего объекта. Эти планы могут включать в себя:
- Эскизные проекты – это предварительные наброски, которые помогают визуализировать основные идеи и решения.
- Функциональные схемы – показывают, как будут организованы пространства внутри здания, включая размещение комнат, коридоров и других элементов.
- Планировочные решения – детализируют, как будет выглядеть здание в плане, включая размеры и пропорции помещений.
После утверждения концептуальных планов начинается работа над более детализированными проектами. На этом этапе архитекторы и проектировщики учитывают множество факторов, таких как:
- Технические требования – соответствие проектируемого объекта строительным нормам и правилам.
- Экологические аспекты – оценка воздействия на окружающую среду и использование устойчивых материалов.
- Эстетические характеристики – выбор цветовой гаммы, материалов отделки и других элементов дизайна.
Важным аспектом архитектурного проектирования является также взаимодействие с другими участниками процесса, такими как инженеры, строители и заказчики. Это сотрудничество позволяет учесть все нюансы и избежать возможных проблем на этапе строительства.
Кроме того, архитектурное проектирование включает в себя создание различных видов документации, таких как:
- Архитектурные чертежи – детализированные планы, разрезы и фасады, которые служат основой для строительства.
- Спецификации – документы, описывающие используемые материалы и технологии.
- Модели и макеты – физические или цифровые модели, которые помогают визуализировать проект.
На этапе проектирования также важно учитывать бюджетные ограничения и сроки выполнения работ. Это требует от архитекторов умения находить компромиссы между качеством, стоимостью и сроками. В результате, архитектурное проектирование становится не только творческим, но и высокоорганизованным процессом, требующим тщательного планирования и координации.
Одним из ключевых этапов архитектурного проектирования является разработка проектной документации. Эта документация включает в себя не только чертежи, но и различные расчеты, которые необходимы для обеспечения безопасности и функциональности здания. Важными аспектами проектной документации являются:
- Строительные чертежи – это основа для выполнения строительных работ, включающая планы этажей, разрезы и фасады.
- Инженерные системы – проектирование систем отопления, вентиляции, кондиционирования, водоснабжения и канализации.
- Энергетические расчеты – анализ потребления энергии и выбор эффективных решений для снижения затрат на эксплуатацию.
После завершения проектирования и подготовки всей необходимой документации, наступает этап экспертизы проекта. Это важный процесс, который позволяет проверить соответствие проекта действующим нормам и стандартам. Экспертиза может быть как внутренней, так и внешней, и включает в себя:
- Техническую экспертизу – проверка на соответствие проектных решений строительным нормам.
- Экологическую экспертизу – оценка воздействия на окружающую среду и соблюдение экологических норм.
- Сметную экспертизу – анализ сметной документации на предмет обоснованности затрат.
Успешное прохождение экспертизы позволяет получить разрешение на строительство, что является необходимым условием для начала работ. На этом этапе важно также учитывать пожарную безопасность и доступность объекта для людей с ограниченными возможностями. Эти аспекты должны быть интегрированы в проект на ранних стадиях, чтобы избежать дополнительных затрат и изменений в будущем.
После получения всех необходимых разрешений начинается реализация проекта. На этом этапе архитекторы продолжают участвовать в процессе, обеспечивая контроль за качеством выполнения работ и соответствием проекту. Важно, чтобы все изменения, возникающие в процессе строительства, были согласованы с проектировщиками, чтобы избежать несоответствий и проблем в будущем.
Архитектурное проектирование также включает в себя последующий мониторинг и оценку выполненных работ. Это позволяет выявить возможные недостатки и внести коррективы в эксплуатацию здания. Важно, чтобы архитекторы и проектировщики оставались на связи с заказчиками и пользователями объекта, чтобы обеспечить его эффективное использование и долговечность.
Таким образом, архитектурное проектирование является многогранным и сложным процессом, который требует от специалистов высокой квалификации, креативности и способности к сотрудничеству. Успех проекта зависит от тщательной проработки всех этапов, начиная от концептуального дизайна и заканчивая эксплуатацией объекта. Каждый из этих этапов играет важную роль в создании качественного и функционального здания, которое будет служить своим пользователям на протяжении многих лет.


















