Архитектурно планировочное проектирование
Архитектурно планировочное проектирование
В современном строительстве архитектурно-планировочное проектирование играет ключевую роль в создании функциональных и эстетически привлекательных объектов. Важным аспектом этого процесса является соблюдение нормативных актов, таких как 87 постановление правительства, которое регламентирует основные принципы и требования к проектированию. В данной статье мы рассмотрим, как это постановление влияет на архитектурное проектирование, а также выделим основные этапы и аспекты, которые необходимо учитывать при разработке проектной документации.
Статья включает в себя следующие разделы:
- Общие положения 87 постановления правительства
- Основные этапы архитектурно-планировочного проектирования
- Требования к проектной документации
- Роль архитекторов и проектировщиков в процессе
- Примеры успешных проектов, соответствующих постановлению
Мы надеемся, что данная информация будет полезна как профессиональным архитекторам и проектировщикам, так и всем заинтересованным в вопросах строительного проектирования.
Согласно 87 ПП (87 постановление правительства)
Архитектурно-планировочное проектирование является важным этапом в процессе создания объектов недвижимости и городской инфраструктуры. Оно включает в себя разработку концепции, которая учитывает как функциональные, так и эстетические аспекты будущего строительства. В соответствии с 87 постановлением правительства, архитектурно-планировочное проектирование должно соответствовать определённым требованиям и стандартам, что обеспечивает гармоничное развитие городской среды.
Одним из ключевых аспектов архитектурно-планировочного проектирования является учёт градостроительных норм. Эти нормы определяют, как должны выглядеть здания и сооружения, их высота, плотность застройки, а также расстояния между ними. Важно, чтобы проектировщики учитывали не только существующую застройку, но и перспективы её развития, что позволяет избежать конфликтов между новыми и старыми объектами.
Процесс проектирования начинается с исследования территории, на которой планируется строительство. Это включает в себя анализ природных условий, существующей инфраструктуры, а также социально-экономических факторов. На этом этапе важно собрать данные о земельных участках, их назначении, а также о наличии коммуникаций, таких как водоснабжение, электроснабжение и канализация.
Следующим шагом является разработка концепции застройки. На этом этапе проектировщики создают предварительные эскизы и схемы, которые отражают основные идеи и принципы будущего строительства. Важно, чтобы концепция была согласована с местными органами власти и соответствовала требованиям градостроительного законодательства.
После утверждения концепции начинается разработка проектной документации. Этот этап включает в себя создание детальных чертежей, спецификаций и смет, которые необходимы для реализации проекта. Важно, чтобы проектная документация была выполнена в соответствии с действующими стандартами и нормами, что позволит избежать проблем на этапе строительства.
В рамках архитектурно-планировочного проектирования также необходимо учитывать экологические аспекты. Это включает в себя оценку воздействия на окружающую среду, а также разработку мероприятий по минимизации негативных последствий. Важно, чтобы проектировщики стремились к созданию устойчивых и экологически чистых объектов, которые будут способствовать улучшению качества жизни горожан.
Кроме того, архитектурно-планировочное проектирование должно учитывать социальные аспекты. Это означает, что проектировщики должны взаимодействовать с местными жителями и учитывать их мнения и потребности. Важно, чтобы новые объекты не только соответствовали требованиям законодательства, но и были удобны и комфортны для использования.
В заключение, архитектурно-планировочное проектирование является сложным и многогранным процессом, который требует от проектировщиков высокой квалификации и глубоких знаний в различных областях. Соблюдение требований 87 постановления правительства и других нормативных актов позволяет создавать качественные и функциональные объекты, которые будут служить людям на протяжении многих лет.
Важным элементом архитектурно-планировочного проектирования является интеграция современных технологий. В последние годы наблюдается активное внедрение цифровых инструментов, таких как Географические информационные системы (ГИС) и моделирование информации о здании (BIM). Эти технологии позволяют проектировщикам более точно анализировать данные, визуализировать проекты и оптимизировать процессы проектирования и строительства.
Использование ГИС позволяет создавать карты и модели, которые помогают в анализе территорий, оценке рисков и планировании застройки. С помощью этих систем можно учитывать различные факторы, такие как рельеф, наличие природных ресурсов и существующую инфраструктуру. Это, в свою очередь, способствует более обоснованному принятию решений на этапе проектирования.
BIM-технологии, в свою очередь, позволяют создавать трехмерные модели зданий, которые содержат всю необходимую информацию о проекте. Это включает в себя данные о материалах, конструкциях, инженерных системах и даже сроках эксплуатации. Использование BIM значительно упрощает процесс координации между различными участниками проекта, что снижает вероятность ошибок и упрощает управление проектом.
Не менее важным аспектом является учёт культурного наследия. При проектировании новых объектов в исторических районах необходимо учитывать существующие памятники архитектуры и культурные ценности. Это требует от проектировщиков особого подхода и уважения к историческому контексту, что может включать в себя реставрацию или интеграцию новых зданий в существующую застройку.
Также стоит отметить, что архитектурно-планировочное проектирование должно быть гибким и адаптивным. Учитывая быстро меняющиеся условия жизни и потребности общества, проектировщики должны быть готовы к изменениям и корректировкам в своих проектах. Это может включать в себя адаптацию зданий под новые функции или изменение планировки в ответ на запросы жителей.
Важным аспектом является социальная устойчивость проектируемых объектов. Это означает, что здания и инфраструктура должны быть доступны для всех категорий граждан, включая людей с ограниченными возможностями. Проектировщики должны учитывать принципы универсального дизайна, что позволит создать комфортную и безопасную среду для всех пользователей.
Кроме того, необходимо учитывать экономическую целесообразность проектов. Это включает в себя анализ затрат на строительство, эксплуатацию и обслуживание объектов. Проектировщики должны стремиться к созданию экономически эффективных решений, которые будут приносить пользу как инвесторам, так и обществу в целом.
В заключение, архитектурно-планировочное проектирование является многогранным процессом, который требует комплексного подхода и учёта множества факторов. Соблюдение требований 87 постановления правительства и использование современных технологий позволяет создавать качественные и устойчивые объекты, которые будут служить интересам общества и способствовать развитию городской среды.
Пояснительная записка
Архитектурно-планировочное проектирование представляет собой важный этап в создании зданий и сооружений, который включает в себя разработку функциональных, эстетических и технических решений. Этот процесс требует комплексного подхода, учитывающего множество факторов, таких как местоположение, климатические условия, требования заказчика и нормативные документы.
На начальном этапе проектирования необходимо провести анализ участка, на котором будет возводиться объект. Это включает в себя изучение геодезических данных, характеристик почвы, существующей инфраструктуры и окружающей застройки. Важно учитывать не только физические характеристики участка, но и его социальное окружение, что позволит создать гармоничное пространство.
Одним из ключевых аспектов архитектурно-планировочного проектирования является функциональное зонирование. Оно подразумевает разделение пространства на различные функциональные зоны, такие как жилые, коммерческие, общественные и рекреационные. Это позволяет оптимально использовать площадь и создать комфортные условия для пользователей. При этом необходимо учитывать не только текущие потребности, но и перспективы развития территории.
При разработке архитектурного решения важно учитывать стилистические и эстетические аспекты. Архитектура должна быть не только функциональной, но и привлекательной. Это достигается через использование различных архитектурных стилей, материалов и технологий. Важно, чтобы здание органично вписывалось в окружающую среду и соответствовало культурным традициям региона.
Кроме того, архитектурно-планировочное проектирование должно учитывать вопросы устойчивого развития. Это включает в себя использование экологически чистых материалов, энергоэффективные технологии и создание комфортной городской среды. Устойчивое проектирование направлено на минимизацию негативного воздействия на окружающую среду и создание комфортных условий для жизни.
Важным этапом проектирования является разработка проектной документации, которая включает в себя архитектурные чертежи, планы, разрезы и фасады. Эта документация должна соответствовать действующим строительным нормам и правилам, а также учитывать требования безопасности и доступности. Проектная документация является основой для дальнейшего строительства и должна быть тщательно проработана.
На этапе реализации проекта необходимо обеспечить контроль за качеством выполнения работ. Это включает в себя регулярные проверки соответствия строительных работ проектной документации, а также соблюдение сроков и бюджета. Важно, чтобы все участники процесса — архитекторы, инженеры, строители — работали в тесном сотрудничестве для достижения наилучшего результата.
Таким образом, архитектурно-планировочное проектирование — это многогранный процесс, который требует глубоких знаний и навыков в различных областях. Успех проекта зависит от способности команды учитывать все аспекты, начиная от анализа участка и заканчивая контролем за качеством выполнения работ. Важно помнить, что архитектура — это не только здания, но и создание комфортной и функциональной городской среды, которая будет служить людям на протяжении многих лет.
Одним из важных аспектов архитектурно-планировочного проектирования является интеграция современных технологий. В последние годы наблюдается активное внедрение информационных технологий в процесс проектирования, что позволяет значительно повысить качество и скорость работы. Использование программного обеспечения для моделирования зданий (BIM) позволяет создавать трехмерные модели, которые помогают визуализировать проект и выявлять возможные проблемы на ранних стадиях.
Также стоит отметить важность взаимодействия с заинтересованными сторонами. На этапе проектирования необходимо учитывать мнения и пожелания различных групп, таких как местные жители, бизнесмены и представители власти. Это позволяет создать проект, который будет соответствовать интересам всех участников и обеспечит гармоничное сосуществование различных функций на территории.
В процессе проектирования также необходимо учитывать вопросы безопасности. Это касается как конструктивной безопасности зданий, так и обеспечения безопасности пользователей. Проект должен включать в себя меры по предотвращению аварийных ситуаций, таких как пожары, наводнения или землетрясения. Важно, чтобы проектировщики работали в тесном сотрудничестве с инженерами и специалистами по безопасности для разработки эффективных решений.
Не менее важным является вопрос доступности. Архитектурно-планировочное проектирование должно учитывать потребности всех групп населения, включая людей с ограниченными возможностями. Это включает в себя создание безбарьерной среды, доступных входов, лифтов и других элементов, которые обеспечивают комфортное передвижение по территории.
Важным этапом является также оценка воздействия на окружающую среду. Проект должен учитывать экологические аспекты, такие как сохранение природных ресурсов, минимизация загрязнения и создание зеленых зон. Это позволяет не только улучшить качество жизни, но и сохранить экосистему для будущих поколений.
После завершения проектирования и строительства необходимо провести оценку эффективности реализованного проекта. Это включает в себя анализ того, насколько проект соответствует первоначальным целям и ожиданиям. Оценка может включать в себя как количественные, так и качественные показатели, такие как уровень удовлетворенности пользователей, экономическая эффективность и влияние на окружающую среду.
Таким образом, архитектурно-планировочное проектирование — это сложный и многогранный процесс, который требует учета множества факторов. Успех проекта зависит от способности команды работать в условиях многозадачности, взаимодействовать с различными заинтересованными сторонами и применять современные технологии. Важно помнить, что архитектура — это не только создание зданий, но и формирование комфортной и безопасной городской среды, которая будет служить людям на протяжении многих лет.
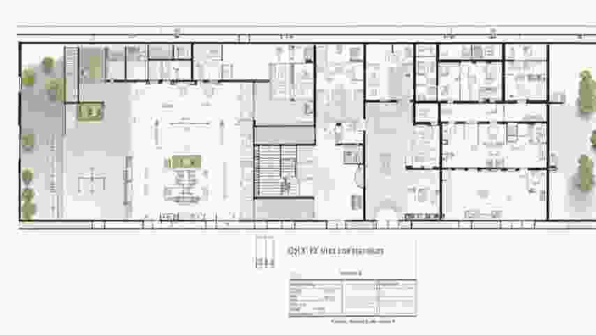
Схема планировочной организации земельного участка
Архитектурно-планировочное проектирование является важным этапом в создании функциональных и эстетически привлекательных земельных участков. Этот процесс включает в себя разработку схемы планировочной организации, которая определяет расположение зданий, сооружений, дорожной сети, зеленых насаждений и других элементов на участке. Основной целью проектирования является создание гармоничного пространства, которое будет удовлетворять потребности пользователей и соответствовать требованиям законодательства.
На начальном этапе проектирования необходимо провести анализ участка. Это включает в себя изучение его географического положения, рельефа, климата, а также существующих коммуникаций и инфраструктуры. Важно учитывать не только физические характеристики земли, но и социальные аспекты, такие как потребности местного населения и культурные особенности региона.
После анализа участка разрабатывается концепция планировочной организации. Она включает в себя следующие ключевые элементы:
- Зонирование территории. Это процесс разделения участка на функциональные зоны, такие как жилые, коммерческие, рекреационные и производственные. Зонирование позволяет оптимально использовать пространство и минимизировать конфликты между различными функциями.
- Расположение зданий и сооружений. Важно учитывать не только эстетические аспекты, но и функциональные. Здания должны быть расположены так, чтобы обеспечить удобный доступ, хорошую видимость и максимальное использование солнечного света.
- Дорожная сеть. Проектирование дорог и тротуаров должно обеспечивать безопасное и удобное передвижение пешеходов и транспортных средств. Необходимо учитывать интенсивность движения, а также возможность организации парковок.
- Зеленые насаждения. Озеленение территории играет важную роль в создании комфортной городской среды. Правильный выбор растений и их размещение могут значительно улучшить микроклимат и эстетическое восприятие участка.
- Инженерные сети. Проектирование систем водоснабжения, канализации, электроснабжения и других коммуникаций должно быть интегрировано в общую схему планировочной организации. Это обеспечит надежность и эффективность работы всех систем.
Каждый из этих элементов требует тщательной проработки и согласования с различными инстанциями. Важно учитывать действующие строительные нормы и правила, а также экологические требования. На этом этапе также может быть проведено общественное обсуждение проекта, что позволит учесть мнения и пожелания местных жителей.
После завершения концептуального проектирования разрабатывается детальный проект, который включает в себя все необходимые чертежи, схемы и спецификации. Этот этап требует высокой квалификации специалистов, так как ошибки могут привести к серьезным последствиям в будущем. Важно также предусмотреть возможность внесения изменений в проект в процессе его реализации, так как могут возникнуть непредвиденные обстоятельства.
Одним из ключевых аспектов архитектурно-планировочного проектирования является создание комфортной и безопасной городской среды. Для этого необходимо учитывать не только функциональные, но и эстетические характеристики проектируемого пространства. Важным элементом является создание визуальных акцентов, которые могут включать в себя архитектурные формы, скульптуры, фонтаны и другие элементы благоустройства.
При проектировании также следует учитывать принципы устойчивого развития. Это означает, что необходимо стремиться к минимизации негативного воздействия на окружающую среду. Включение зеленых технологий, таких как системы сбора дождевой воды, солнечные панели и энергоэффективные здания, может значительно повысить экологическую устойчивость проекта.
Важным этапом является также разработка системы освещения. Правильное освещение не только улучшает безопасность, но и создает комфортную атмосферу в общественных пространствах. Необходимо учитывать как искусственное, так и естественное освещение, а также возможность использования светодиодных технологий, которые позволяют снизить энергозатраты.
Кроме того, проектирование должно учитывать доступность для людей с ограниченными возможностями. Это включает в себя создание безбарьерной среды, которая позволит всем пользователям свободно перемещаться по территории. Важно предусмотреть пандусы, тактильные дорожки и другие элементы, способствующие комфортному передвижению.
На этапе реализации проекта необходимо обеспечить качественный контроль за строительством. Это включает в себя регулярные проверки соответствия выполненных работ проектной документации, а также соблюдение строительных норм и правил. Важно также учитывать мнение местных жителей и реагировать на их замечания и предложения в процессе строительства.
После завершения строительства необходимо провести комплексное обследование объекта, чтобы убедиться в его соответствии проекту и требованиям безопасности. Это может включать в себя проверку инженерных систем, оценку состояния зданий и сооружений, а также анализ функциональности созданного пространства.
Важным аспектом является и последующее обслуживание территории. Создание эффективной системы управления и эксплуатации позволит поддерживать объект в надлежащем состоянии и обеспечивать его долговечность. Это может включать в себя регулярное озеленение, уборку, а также мониторинг состояния инженерных систем.
Таким образом, архитектурно-планировочное проектирование представляет собой многогранный процесс, который требует комплексного подхода и взаимодействия различных специалистов. Успех проекта зависит от тщательной проработки всех его аспектов, начиная от анализа участка и заканчивая эксплуатацией готового объекта. Важно помнить, что конечной целью проектирования является создание комфортного, безопасного и функционального пространства, которое будет служить интересам общества и способствовать его развитию.
Объемно-планировочные и архитектурные решения
Архитектурно-планировочное проектирование представляет собой важный этап в создании зданий и сооружений, который включает в себя разработку объемно-планировочных решений, учитывающих функциональные, эстетические и технические требования. Этот процесс требует комплексного подхода, который сочетает в себе как творческие, так и инженерные аспекты. Важнейшими задачами архитектурно-планировочного проектирования являются создание комфортной и безопасной среды для пользователей, а также оптимизация использования пространства.
Объемно-планировочные решения формируют общую концепцию здания, определяя его форму, размеры, расположение и взаимосвязь с окружающей средой. В этом контексте необходимо учитывать не только внутренние функции помещений, но и их взаимодействие с внешней средой, включая ландшафт, климатические условия и существующую застройку.
Одним из ключевых аспектов архитектурно-планировочного проектирования является функциональное зонирование. Оно подразумевает разделение пространства на различные функциональные зоны, каждая из которых выполняет свою специфическую задачу. Например, в жилом доме могут быть выделены зоны для отдыха, работы, приема гостей и т.д. При этом важно обеспечить удобные и логичные связи между этими зонами, чтобы пользователи могли легко перемещаться по помещению.
При разработке объемно-планировочных решений также необходимо учитывать требования к освещению, вентиляции и акустике. Эти факторы напрямую влияют на комфортность проживания и работы в здании. Например, правильное расположение окон и дверей может значительно улучшить естественное освещение и обеспечить приток свежего воздуха, что особенно важно в условиях городской застройки.
Кроме того, архитектурно-планировочное проектирование должно учитывать требования к безопасности и доступности. Это включает в себя проектирование эвакуационных выходов, обеспечение доступности для людей с ограниченными возможностями, а также соблюдение норм и стандартов, касающихся противопожарной безопасности.
Важным этапом в процессе проектирования является создание концептуальных схем и эскизов, которые позволяют визуализировать объемно-планировочные решения. Эти схемы помогают архитекторам и проектировщикам оценить целостность и гармоничность будущего здания, а также выявить возможные проблемы на ранних стадиях разработки.
Современные технологии, такие как компьютерное моделирование и виртуальная реальность, значительно упрощают процесс архитектурно-планировочного проектирования. С их помощью можно создавать детализированные 3D-модели зданий, что позволяет не только визуализировать проект, но и проводить анализ его функциональности и эстетики.
В заключение, архитектурно-планировочное проектирование является многогранным процессом, который требует от специалистов глубоких знаний в различных областях, включая архитектуру, инженерное дело, экологии и социологии. Успешное выполнение этого этапа проектирования закладывает основу для создания качественных и комфортных зданий, которые будут служить людям на протяжении многих лет.
Одним из важных аспектов архитектурно-планировочного проектирования является выбор строительных материалов и технологий. Они должны соответствовать не только эстетическим требованиям, но и функциональным, а также обеспечивать долговечность и устойчивость конструкции. При выборе материалов необходимо учитывать их экологические характеристики, а также влияние на здоровье человека. Например, использование экологически чистых и безопасных материалов может значительно повысить качество внутренней среды здания.
Также стоит отметить, что архитектурно-планировочное проектирование должно учитывать экономические аспекты. Это включает в себя не только стоимость строительства, но и эксплуатационные расходы, такие как затраты на отопление, освещение и обслуживание. Энергоэффективные решения, такие как использование солнечных панелей или систем рекуперации тепла, могут существенно снизить эксплуатационные расходы и сделать здание более устойчивым к изменениям климата.
Важным элементом проектирования является также интеграция зданий в существующую городскую инфраструктуру. Это включает в себя анализ транспортных потоков, доступности общественного транспорта, а также наличие необходимых социальных объектов, таких как школы, магазины и медицинские учреждения. Успешная интеграция позволяет создать комфортную и безопасную среду для жизни и работы.
Архитектурно-планировочное проектирование также должно учитывать культурные и исторические контексты. Важно, чтобы новые здания гармонично вписывались в существующую архитектурную среду и не нарушали историческую целостность района. Это может потребовать от архитекторов глубокого понимания местной культуры и традиций, а также соблюдения норм охраны памятников.
Современные тенденции в архитектурно-планировочном проектировании также акцентируют внимание на устойчивом развитии. Это подразумевает создание зданий, которые минимизируют негативное воздействие на окружающую среду и способствуют сохранению природных ресурсов. Применение принципов устойчивого проектирования, таких как использование возобновляемых источников энергии, эффективное управление водными ресурсами и минимизация отходов, становится все более актуальным.
Важным аспектом является также участие пользователей в процессе проектирования. Учитывая мнения и пожелания будущих жильцов или пользователей, архитекторы могут создать более комфортные и функциональные пространства. Это может быть достигнуто через проведение опросов, фокус-групп или открытых обсуждений, что позволяет учесть разнообразные потребности и предпочтения.
В заключение, архитектурно-планировочное проектирование является сложным и многогранным процессом, который требует от специалистов глубоких знаний и навыков. Успешное выполнение этого этапа проектирования закладывает основу для создания качественных, функциональных и эстетически привлекательных зданий, которые будут служить людям на протяжении многих лет. Важно помнить, что каждое здание — это не просто конструкция, а часть более широкой городской среды, которая должна быть гармоничной и устойчивой.
Конструктивные решения
Архитектурно-планировочное проектирование является важным этапом в создании функциональных и эстетически привлекательных зданий и пространств. Этот процесс включает в себя множество аспектов, которые необходимо учитывать для достижения оптимального результата. В данной статье мы рассмотрим основные конструктивные решения, которые применяются в архитектурно-планировочном проектировании.
1. Функциональное зонирование
Одним из первых шагов в проектировании является функциональное зонирование пространства. Это позволяет организовать различные функции в здании таким образом, чтобы они не мешали друг другу и обеспечивали комфортное использование. Основные принципы функционального зонирования включают:
- Определение основных функций помещений (жилые, общественные, производственные и т.д.).
- Создание логических связей между различными зонами.
- Учет потоков людей и транспортных средств.
- Обеспечение доступа к необходимым ресурсам (свет, вода, вентиляция).
2. Пространственная организация
Пространственная организация включает в себя планировку помещений и их взаимное расположение. Важно учитывать не только размеры и форму помещений, но и их взаимосвязь. Основные аспекты пространственной организации:
- Оптимизация площади для максимального использования пространства.
- Создание комфортных условий для пользователей (освещение, акустика, температура).
- Учет эргономики и доступности для людей с ограниченными возможностями.
3. Конструктивные системы
Выбор конструктивной системы является ключевым моментом в архитектурно-планировочном проектировании. Конструктивные системы определяют не только внешний вид здания, но и его функциональные характеристики. Основные типы конструктивных систем:
- Каркасные системы: обеспечивают гибкость в планировке и позволяют создавать большие открытые пространства.
- Стеновые системы: обеспечивают хорошую тепло- и звукоизоляцию, но могут ограничивать планировку.
- Монолитные конструкции: позволяют создавать сложные формы и обеспечивают высокую прочность.
4. Эстетические решения
Эстетика здания играет важную роль в его восприятии. Архитекторы должны учитывать не только функциональные, но и визуальные аспекты проектирования. Основные принципы эстетических решений:
- Согласованность стиля с окружающей средой.
- Использование цветовых решений, которые подчеркивают архитектурные формы.
- Создание гармонии между различными элементами здания.
5. Устойчивое проектирование
Современное архитектурно-планировочное проектирование также включает в себя принципы устойчивого развития. Это означает, что здания должны быть не только функциональными и красивыми, но и экологически безопасными. Основные аспекты устойчивого проектирования:
- Использование экологически чистых материалов.
- Энергоэффективные технологии (солнечные панели, системы рекуперации и т.д.).
- Учет климатических условий при проектировании.
Таким образом, конструктивные решения в архитектурно-планировочном проектировании охватывают широкий спектр аспектов, от функционального зонирования до устойчивого проектирования. Каждый из этих элементов играет важную роль в создании качественного и комфортного пространства для жизни и работы.
6. Инженерные системы
Инженерные системы играют ключевую роль в обеспечении комфортных условий в здании. Они включают в себя системы отопления, вентиляции, кондиционирования, водоснабжения и электроснабжения. Основные аспекты проектирования инженерных систем:
- Оптимизация расположения инженерных коммуникаций для минимизации затрат на их установку и обслуживание.
- Обеспечение надежности и безопасности систем.
- Интеграция современных технологий для повышения энергоэффективности.
7. Архитектурные детали
Архитектурные детали, такие как окна, двери, балконы и фасады, также имеют большое значение в проектировании. Они не только влияют на внешний вид здания, но и на его функциональность. Основные аспекты проектирования архитектурных деталей:
- Выбор материалов, которые соответствуют общему стилю здания и обеспечивают долговечность.
- Учет климатических условий для обеспечения тепло- и звукоизоляции.
- Создание эстетически привлекательных решений, которые подчеркивают индивидуальность здания.
8. Ландшафтное проектирование
Ландшафтное проектирование является важной частью архитектурно-планировочного проектирования, так как оно создает гармоничное взаимодействие между зданием и окружающей природой. Основные аспекты ландшафтного проектирования:
- Создание зеленых зон, которые способствуют улучшению микроклимата.
- Учет местных экосистем и использование местных растений.
- Проектирование удобных и безопасных пешеходных и велосипедных дорожек.
9. Социальные аспекты проектирования
Социальные аспекты проектирования также имеют большое значение. Здания должны быть доступны для всех категорий населения, включая людей с ограниченными возможностями. Основные принципы учета социальных аспектов:
- Создание общественных пространств, способствующих взаимодействию между людьми.
- Обеспечение доступности зданий для людей с ограниченными возможностями.
- Учет культурных и социальных особенностей региона при проектировании.
10. Технологические инновации
Современные технологии открывают новые возможности в архитектурно-планировочном проектировании. Использование BIM-технологий, 3D-печати и других инновационных решений позволяет значительно повысить качество проектирования. Основные аспекты внедрения технологий:
- Создание цифровых моделей зданий для более точного планирования и визуализации.
- Использование автоматизированных систем для управления инженерными системами.
- Внедрение новых строительных технологий для повышения скорости и качества строительства.
Таким образом, конструктивные решения в архитектурно-планировочном проектировании охватывают широкий спектр аспектов, от инженерных систем до социальных и технологических инноваций. Каждый из этих элементов играет важную роль в создании качественного и комфортного пространства для жизни и работы.
Системы электроснабжения
Архитектурно-планировочное проектирование систем электроснабжения является важным этапом в создании эффективной и безопасной инфраструктуры. Этот процесс включает в себя разработку схемы размещения электрических сетей, оборудования и вспомогательных систем, что позволяет обеспечить надежное и бесперебойное электроснабжение объектов различного назначения.
При проектировании систем электроснабжения необходимо учитывать множество факторов, таких как:
- Тип объекта: жилые, коммерческие, промышленные или специальные здания требуют различных подходов к электроснабжению.
- Нагрузочные характеристики: расчет потребляемой мощности, пиковых нагрузок и резервирования мощности.
- Топография местности: рельеф и особенности участка могут влиять на выбор трасс для прокладки кабелей и установки оборудования.
- Климатические условия: необходимо учитывать влияние температуры, влажности и других факторов на работу электрических систем.
- Нормативные требования: соблюдение стандартов и правил, касающихся безопасности и надежности электроснабжения.
Одним из ключевых аспектов архитектурно-планировочного проектирования является выбор места для установки трансформаторных подстанций, распределительных щитов и других элементов системы. Эти объекты должны быть расположены так, чтобы обеспечить удобный доступ для обслуживания и ремонта, а также минимизировать влияние на окружающую среду и архитектурный облик здания.
При проектировании также важно учитывать возможность будущего расширения системы электроснабжения. Это может включать в себя резервирование мест для установки дополнительного оборудования, прокладку дополнительных кабелей и создание запасных мощностей. Такой подход позволяет избежать значительных затрат на модернизацию системы в будущем.
Кроме того, необходимо уделить внимание вопросам безопасности. Все элементы системы должны быть защищены от внешних воздействий, таких как вандализм, природные катастрофы и другие риски. Это может включать в себя использование защитных конструкций, установку систем видеонаблюдения и сигнализации.
Важным аспектом является также интеграция систем электроснабжения с другими инженерными системами здания, такими как системы вентиляции, отопления и кондиционирования. Это позволяет создать единое целое, где все системы работают в гармонии, обеспечивая комфорт и безопасность для пользователей.
В процессе проектирования необходимо также учитывать требования к энергоэффективности. Это может включать в себя использование современных технологий, таких как светодиодное освещение, системы автоматизации и управления, а также внедрение возобновляемых источников энергии, таких как солнечные панели или ветряные турбины.
Таким образом, архитектурно-планировочное проектирование систем электроснабжения требует комплексного подхода, учитывающего множество факторов и требований. Это позволяет создать надежную, безопасную и эффективную систему, способную удовлетворить потребности пользователей и соответствовать современным стандартам.
При проектировании систем электроснабжения также важно учитывать вопросы устойчивости и надежности. Это включает в себя создание резервных источников питания, таких как дизель-генераторы или источники бесперебойного питания (ИБП), которые могут обеспечить электроснабжение в случае аварийных ситуаций или отключений. Резервирование мощности позволяет минимизировать риски, связанные с перебоями в электроснабжении, что особенно критично для объектов с высокой степенью ответственности, таких как больницы, серверные и промышленные предприятия.
Важным аспектом является также выбор кабельных трасс и их прокладка. Необходимо учитывать не только технические характеристики кабелей, но и их защиту от механических повреждений, воздействия влаги и химических веществ. Для этого могут использоваться специальные кабельные каналы, трубы и другие защитные конструкции. Правильный выбор трассирования кабелей также способствует снижению потерь энергии и повышению общей эффективности системы.
При проектировании систем электроснабжения следует также учитывать вопросы экологии. Это может включать в себя использование экологически чистых материалов, минимизацию воздействия на окружающую среду и внедрение технологий, способствующих снижению углеродного следа. Например, использование солнечных панелей не только снижает зависимость от традиционных источников энергии, но и способствует улучшению экологической ситуации в регионе.
Не менее важным является вопрос интеграции систем электроснабжения с системами управления зданием (BMS). Современные технологии позволяют осуществлять мониторинг и управление потреблением электроэнергии в реальном времени, что способствует оптимизации работы всех систем и снижению затрат на энергоресурсы. Системы автоматизации могут включать в себя датчики движения, системы управления освещением и климатом, что позволяет значительно повысить комфорт и безопасность пользователей.
В процессе проектирования также необходимо учитывать требования к освещению. Правильное распределение света в помещениях и на территории объекта не только улучшает визуальное восприятие, но и повышает безопасность. Использование современных технологий освещения, таких как светодиоды, позволяет значительно снизить потребление электроэнергии и увеличить срок службы осветительных приборов.
Важным этапом является также согласование проектных решений с местными органами власти и коммунальными службами. Это позволяет избежать возможных конфликтов и обеспечить соответствие проектируемой системы действующим нормам и правилам. Согласование может включать в себя получение разрешений на строительство, согласование схем подключения к существующим сетям и другие административные процедуры.
В заключение, архитектурно-планировочное проектирование систем электроснабжения требует комплексного подхода, учитывающего множество факторов, таких как безопасность, надежность, энергоэффективность и экологические аспекты. Это позволяет создать систему, способную удовлетворить потребности пользователей и соответствовать современным требованиям, обеспечивая при этом устойчивое и безопасное электроснабжение.
системы водоснабжения
Архитектурно-планировочное проектирование систем водоснабжения является важным этапом в создании эффективной и надежной инфраструктуры. Этот процесс включает в себя множество аспектов, которые необходимо учитывать для обеспечения качественного водоснабжения.
Основные аспекты архитектурно-планировочного проектирования:
- Анализ территории: Перед началом проектирования необходимо провести детальный анализ территории, включая географические, климатические и экологические условия. Это поможет определить оптимальные места для размещения водозаборов, насосных станций и резервуаров.
- Определение потребностей: Важно оценить потребности населения и промышленных объектов в воде. Это включает в себя расчет суточного и часового водопотребления, а также учет сезонных колебаний.
- Выбор источников водоснабжения: На основании анализа территории и потребностей необходимо выбрать источники водоснабжения. Это могут быть подземные или поверхностные воды, а также альтернативные источники, такие как дождевые или сточные воды.
- Проектирование сети водоснабжения: Сеть водоснабжения должна быть спроектирована с учетом оптимального распределения воды. Это включает в себя выбор диаметра труб, расположение насосных станций и резервуаров, а также проектирование водопроводных узлов.
- Учет санитарных норм: При проектировании систем водоснабжения необходимо соблюдать санитарные нормы и правила, чтобы обеспечить безопасность и качество воды. Это включает в себя защитные зоны вокруг источников водоснабжения и контроль за качеством воды на всех этапах.
- Экономические аспекты: Важно учитывать экономические факторы, такие как стоимость строительства и эксплуатации систем водоснабжения. Это поможет определить целесообразность проектирования и выбрать наиболее эффективные решения.
Каждый из этих аспектов требует тщательного анализа и проработки, чтобы обеспечить надежное и эффективное водоснабжение для населения и промышленных объектов. Важно также учитывать современные технологии и инновации, которые могут повысить эффективность систем водоснабжения.
Современные технологии в проектировании:
- Автоматизация процессов: Внедрение автоматизированных систем управления позволяет оптимизировать работу насосных станций и систем распределения воды, что снижает затраты на эксплуатацию.
- Использование геоинформационных систем (ГИС): ГИС-технологии позволяют визуализировать данные о территории, что упрощает процесс проектирования и анализа.
- Инновационные материалы: Применение новых материалов для трубопроводов и резервуаров может значительно увеличить срок службы систем водоснабжения и снизить затраты на их обслуживание.
Таким образом, архитектурно-планировочное проектирование систем водоснабжения требует комплексного подхода и учета множества факторов, что в конечном итоге обеспечивает надежное и качественное водоснабжение для всех пользователей.
Проектирование насосных станций:
Насосные станции играют ключевую роль в системах водоснабжения, обеспечивая необходимое давление для транспортировки воды. При проектировании насосных станций необходимо учитывать:
- Выбор типа насосов: В зависимости от характеристик источника воды и требований к системе, выбираются центробежные, поршневые или другие типы насосов.
- Производительность: Необходимо рассчитать необходимую производительность насосной станции, учитывая пиковые нагрузки и суточное водопотребление.
- Энергетическая эффективность: Важно выбирать насосы с высокой энергетической эффективностью, что позволит снизить эксплуатационные расходы.
- Резервирование: Проектирование должно предусматривать резервные насосы для обеспечения бесперебойной работы системы в случае выхода основного оборудования из строя.
Проектирование резервуаров:
Резервуары для хранения воды необходимы для обеспечения стабильного водоснабжения и учета колебаний в потреблении. При проектировании резервуаров следует учитывать:
- Объем резервуара: Объем должен быть рассчитан с учетом суточного потребления и времени, необходимого для пополнения запаса воды.
- Материалы: Выбор материалов для строительства резервуаров должен обеспечивать долговечность и защиту от коррозии.
- Системы контроля: Необходимо предусмотреть системы контроля уровня воды и качества, чтобы обеспечить безопасность и надежность водоснабжения.
Учет экологических факторов:
При проектировании систем водоснабжения важно учитывать экологические аспекты, чтобы минимизировать негативное воздействие на окружающую среду. Это включает в себя:
- Защита водоисточников: Необходимо разрабатывать меры по охране источников воды от загрязнения и истощения.
- Устойчивое использование ресурсов: Проектирование должно предусматривать рациональное использование водных ресурсов, включая повторное использование сточных вод.
- Оценка воздействия на окружающую среду: Перед началом строительства необходимо провести оценку воздействия на окружающую среду, чтобы выявить возможные негативные последствия.
Согласование и разрешительная документация:
Проектирование систем водоснабжения требует получения различных разрешений и согласований от государственных органов. Это включает в себя:
- Разрешение на строительство: Необходимо получить разрешение на строительство объектов водоснабжения, что требует представления проектной документации.
- Согласование с экологическими службами: Проект должен быть согласован с экологическими службами для обеспечения соблюдения всех норм и правил.
- Участие общественности: Важно учитывать мнение местных жителей и общественных организаций, что может повлиять на проектирование и реализацию системы водоснабжения.
Таким образом, архитектурно-планировочное проектирование систем водоснабжения является многогранным процессом, который требует комплексного подхода и учета множества факторов. Это позволяет создать эффективные и надежные системы, способные удовлетворить потребности населения и обеспечить устойчивое развитие региона.
системы водоотведения
Архитектурно-планировочное проектирование систем водоотведения является важным аспектом градостроительства и проектирования жилых и производственных объектов. Эффективное проектирование таких систем требует учета множества факторов, включая характеристики местности, климатические условия, типы зданий и их назначения, а также требования к экологии и санитарии.
При проектировании систем водоотведения необходимо учитывать следующие ключевые аспекты:
- Географические и климатические условия: Важно учитывать уровень осадков, тип почвы, рельеф местности и наличие водоемов. Эти факторы влияют на выбор типа системы водоотведения и ее проектирование.
- Типы зданий: Разные типы зданий (жилые, коммерческие, промышленные) имеют различные требования к системам водоотведения. Например, промышленные объекты могут требовать более сложных систем для обработки сточных вод.
- Нормативные требования: Проектирование должно соответствовать действующим строительным нормам и правилам, которые регулируют проектирование и эксплуатацию систем водоотведения.
- Экологические аспекты: Важно учитывать влияние систем водоотведения на окружающую среду, включая защиту водоемов от загрязнения и минимизацию негативного воздействия на экосистему.
Процесс проектирования систем водоотведения начинается с анализа существующих условий и потребностей. На этом этапе важно провести детальное обследование территории, чтобы выявить все возможные источники сточных вод и определить оптимальные пути их отвода.
Следующим этапом является выбор типа системы водоотведения. Существуют различные подходы, включая:
- Централизованные системы: Включают в себя сеть трубопроводов, которые собирают сточные воды от нескольких объектов и направляют их на очистные сооружения.
- Децентрализованные системы: Предполагают использование локальных очистных сооружений, которые обрабатывают сточные воды непосредственно на месте их образования.
- Комбинированные системы: Сочетают элементы централизованных и децентрализованных систем, что позволяет более гибко подходить к решению задач водоотведения.
При выборе типа системы необходимо учитывать не только технические характеристики, но и экономические аспекты, такие как стоимость строительства и эксплуатации, а также возможность дальнейшего расширения системы.
После выбора типа системы начинается проектирование ее элементов, включая:
- Трубопроводы: Определение диаметра, материала и уклона трубопроводов, что влияет на скорость и эффективность отвода сточных вод.
- Очистные сооружения: Проектирование сооружений для предварительной и глубокой очистки сточных вод, включая выбор технологий очистки.
- Насосные станции: Если необходимо, проектируются насосные станции для перекачки сточных вод на большие расстояния или на более высокие уровни.
Кроме того, важно учитывать вопросы безопасности и надежности систем водоотведения. Это включает в себя защиту от затоплений, предотвращение аварийных ситуаций и обеспечение устойчивости системы к внешним воздействиям.
В процессе проектирования также необходимо учитывать возможность интеграции систем водоотведения с другими инженерными системами, такими как водоснабжение, отопление и электроснабжение. Это позволяет создать более эффективные и устойчивые решения для обеспечения жизнедеятельности объектов.
Одним из ключевых этапов проектирования систем водоотведения является разработка схемы водоотведения. Эта схема должна включать в себя все элементы системы, такие как трубопроводы, колодцы, насосные станции и очистные сооружения. Важно, чтобы схема была понятной и легко воспринимаемой, что позволит избежать ошибок на этапе строительства и эксплуатации.
При разработке схемы необходимо учитывать:
- Гидравлические расчеты: Определение необходимых параметров для обеспечения эффективного отвода сточных вод, включая расчет потерь давления и скорости потока.
- Планировку территории: Учет расположения зданий, дорог и других объектов, что поможет избежать конфликтов между инженерными сетями и существующей инфраструктурой.
- Доступность для обслуживания: Проектирование системы должно предусматривать легкий доступ к ключевым элементам для проведения регулярного обслуживания и ремонта.
После завершения проектирования схемы водоотведения следует этап подготовки проектной документации. Эта документация включает в себя все необходимые чертежи, спецификации и расчеты, которые будут использоваться на этапе строительства. Важно, чтобы документация была составлена в соответствии с действующими стандартами и нормами, что обеспечит ее легитимность и соответствие требованиям.
На этапе строительства системы водоотведения необходимо строго следовать проектной документации. Это включает в себя контроль за качеством используемых материалов, соблюдение технологий монтажа и выполнение всех необходимых испытаний. Важно также проводить регулярные проверки на соответствие выполненных работ проекту, что позволит избежать возможных проблем в будущем.
После завершения строительства системы водоотведения необходимо провести ее пусконаладочные работы. Это включает в себя:
- Проверка работоспособности: Тестирование всех элементов системы на предмет их функциональности и эффективности.
- Настройка оборудования: Регулировка насосов, клапанов и других устройств для достижения оптимальных параметров работы системы.
- Обучение персонала: Проведение инструктажей для сотрудников, которые будут обслуживать систему, что обеспечит ее надежную эксплуатацию.
После успешного завершения пусконаладочных работ система водоотведения вводится в эксплуатацию. Важно обеспечить регулярный мониторинг ее работы, что позволит выявлять и устранять возможные неисправности на ранних стадиях. Также необходимо проводить плановые проверки и техническое обслуживание, что продлит срок службы системы и повысит ее эффективность.
В заключение, архитектурно-планировочное проектирование систем водоотведения требует комплексного подхода и учета множества факторов. От правильного проектирования зависит не только эффективность работы системы, но и безопасность окружающей среды, а также комфорт проживания людей. Поэтому важно привлекать квалифицированных специалистов на всех этапах проектирования и реализации проектов.
системы отопление вентиляции и кондиционирования воздуха
Архитектурно-планировочное проектирование систем отопления, вентиляции и кондиционирования воздуха (ОВК) является важным этапом в создании комфортной и безопасной среды для проживания и работы. Этот процесс включает в себя множество аспектов, которые необходимо учитывать для достижения оптимального результата.
В первую очередь, необходимо учитывать особенности здания, такие как его форма, размеры, количество этажей и назначение. Эти факторы влияют на выбор системы ОВК, ее мощность и расположение оборудования.
Также важным аспектом является климатическая зона, в которой расположено здание. Разные регионы требуют различных подходов к проектированию систем отопления и кондиционирования. Например, в холодных климатах необходимо предусмотреть более мощные системы отопления, в то время как в теплых регионах акцент делается на эффективное кондиционирование воздуха.
При проектировании систем ОВК следует учитывать нормативные требования и стандарты, которые регулируют проектирование и эксплуатацию таких систем. Это включает в себя требования к воздухообмену, температурному режиму и качеству воздуха в помещениях.
Одним из ключевых этапов является анализ потребностей пользователей. Необходимо выяснить, какие условия необходимы для комфортного пребывания людей в здании. Это может включать в себя требования к температуре, влажности, уровню шума и качеству воздуха.
На основе собранной информации разрабатывается концепция системы ОВК, которая включает в себя выбор оборудования, его расположение и способ подключения. Важно, чтобы система была не только эффективной, но и экономически целесообразной.
При проектировании систем ОВК также необходимо учитывать инженерные сети, такие как электроснабжение, водоснабжение и канализация. Эти сети должны быть спроектированы таким образом, чтобы обеспечить бесперебойную работу системы ОВК и минимизировать затраты на эксплуатацию.
Кроме того, следует обратить внимание на экологические аспекты проектирования. Современные системы ОВК должны быть энергоэффективными и минимизировать негативное воздействие на окружающую среду. Это может включать в себя использование возобновляемых источников энергии, таких как солнечные панели или тепловые насосы.
Важным этапом является моделирование систем ОВК. С помощью специализированного программного обеспечения можно смоделировать работу системы в различных условиях и выявить возможные проблемы до начала строительства. Это позволяет оптимизировать проект и избежать дополнительных затрат.
Наконец, необходимо предусмотреть план обслуживания и эксплуатации системы ОВК. Это включает в себя регулярные проверки, техническое обслуживание и ремонт оборудования. Правильная эксплуатация системы позволяет продлить ее срок службы и обеспечить комфортные условия для пользователей.
Таким образом, архитектурно-планировочное проектирование систем отопления, вентиляции и кондиционирования воздуха требует комплексного подхода и учета множества факторов. Это позволяет создать эффективные и надежные системы, которые обеспечивают комфортные условия для жизни и работы.
При проектировании систем ОВК также важно учитывать зонирование помещений. Разные зоны в здании могут иметь различные требования к температуре и качеству воздуха. Например, в офисных помещениях, где люди проводят много времени, необходимо поддерживать комфортную температуру и уровень влажности, в то время как в складских помещениях могут быть менее строгие требования. Зонирование позволяет более эффективно управлять системой, обеспечивая индивидуальные настройки для каждой зоны.
Кроме того, следует обратить внимание на выбор оборудования. Современные системы отопления, вентиляции и кондиционирования предлагают широкий спектр решений, включая центральные и локальные системы, а также системы с рекуперацией тепла. Выбор оборудования зависит от множества факторов, включая размеры помещений, их назначение и бюджет проекта. Важно также учитывать энергоэффективность оборудования, так как это напрямую влияет на эксплуатационные расходы.
Не менее важным аспектом является интеграция систем управления. Современные системы ОВК могут быть оснащены интеллектуальными системами управления, которые позволяют автоматически регулировать параметры работы в зависимости от текущих условий. Это может включать в себя автоматическое открытие и закрытие вентиляционных клапанов, регулировку температуры и влажности, а также мониторинг качества воздуха. Интеграция таких систем позволяет значительно повысить комфорт и снизить затраты на энергоресурсы.
При проектировании систем ОВК также необходимо учитывать безопасность. Это включает в себя защиту от перегрева, утечек газа и других потенциальных опасностей. Важно предусмотреть системы аварийного отключения и сигнализации, которые будут работать в случае возникновения нештатных ситуаций. Также следует учитывать пожарную безопасность, обеспечивая правильное размещение вентиляционных каналов и систем дымоудаления.
Не стоит забывать и о долговечности систем ОВК. Правильный выбор материалов и технологий, а также регулярное техническое обслуживание помогут избежать преждевременных поломок и продлить срок службы оборудования. Важно также предусмотреть возможность модернизации системы в будущем, чтобы она могла адаптироваться к изменяющимся требованиям и технологиям.
В заключение, архитектурно-планировочное проектирование систем отопления, вентиляции и кондиционирования воздуха требует комплексного подхода и учета множества факторов. Это позволяет создать эффективные и надежные системы, которые обеспечивают комфортные условия для жизни и работы. Успешное проектирование систем ОВК не только улучшает качество жизни пользователей, но и способствует снижению энергозатрат и минимизации воздействия на окружающую среду.
слаботочные системы
Архитектурно-планировочное проектирование слаботочных систем является важным аспектом современного строительства и реконструкции зданий. Слаботочные системы охватывают широкий спектр технологий, включая системы видеонаблюдения, охранной сигнализации, контроля доступа, а также системы связи и автоматизации. Эти системы требуют тщательного проектирования, чтобы обеспечить их эффективное функционирование и интеграцию в общую архитектурную концепцию здания.
При проектировании слаботочных систем необходимо учитывать множество факторов, таких как:
- Функциональные требования: Определение целей и задач, которые должны быть решены с помощью слаботочных систем. Например, для системы видеонаблюдения важно определить зоны, которые необходимо контролировать, и уровень детализации изображения.
- Технические характеристики: Выбор оборудования, которое будет использоваться в системе, включая камеры, датчики, контроллеры и другое. Важно учитывать совместимость оборудования и его соответствие современным стандартам.
- Эстетические аспекты: Слаботочные системы должны гармонично вписываться в общий дизайн интерьера и экстерьера здания. Это может включать выбор мест установки оборудования, его цвет и форму.
- Безопасность: Проектирование должно учитывать вопросы безопасности, как физической, так и информационной. Это включает защиту от несанкционированного доступа к системам и данным.
- Энергоэффективность: Важно выбирать решения, которые минимизируют потребление энергии и обеспечивают устойчивую работу систем.
На этапе архитектурно-планировочного проектирования слаботочных систем необходимо провести детальный анализ объекта, на котором будут установлены системы. Это включает в себя:
- Изучение архитектурных чертежей: Анализ планов и разрезов здания для определения оптимальных мест установки оборудования.
- Оценка существующих коммуникаций: Проверка наличия и состояния существующих электрических и сетевых коммуникаций, которые могут быть использованы для подключения слаботочных систем.
- Проведение консультаций с заказчиком: Обсуждение требований и пожеланий заказчика, а также возможных ограничений, связанных с проектом.
После сбора всей необходимой информации начинается процесс разработки проектной документации. Важно создать подробные схемы и чертежи, которые будут включать:
- Схемы подключения: Подробные схемы, показывающие, как различные компоненты системы будут соединены друг с другом и с источниками питания.
- Планы размещения оборудования: Четкие указания на местах установки камер, датчиков и других устройств, с учетом их функциональности и эстетики.
- Технические спецификации: Описание всех используемых компонентов, включая их характеристики и требования к установке.
Кроме того, на этом этапе важно учитывать возможные изменения в проекте, которые могут возникнуть в процессе его реализации. Гибкость проектирования позволяет адаптироваться к новым требованиям и условиям, что особенно актуально в условиях быстро меняющегося технологического ландшафта.
После завершения проектирования и подготовки всей необходимой документации, следующим этапом является выбор подрядчика для установки слаботочных систем. Важно, чтобы подрядчик имел опыт работы с подобными системами и мог гарантировать качество выполнения работ. На этом этапе также стоит обратить внимание на:
- Репутацию компании: Изучение отзывов и рекомендаций от предыдущих клиентов поможет выбрать надежного подрядчика.
- Квалификацию специалистов: Убедитесь, что у подрядчика есть квалифицированные специалисты, способные выполнить установку в соответствии с проектной документацией.
- Гарантии и сервисное обслуживание: Наличие гарантий на выполненные работы и возможность последующего обслуживания систем.
После выбора подрядчика начинается этап установки слаботочных систем. Важно, чтобы установка проводилась в соответствии с проектной документацией и с соблюдением всех норм и стандартов. На этом этапе необходимо:
- Контролировать процесс установки: Регулярные проверки на соответствие выполненных работ проекту помогут избежать ошибок и недочетов.
- Проводить тестирование систем: После установки необходимо провести тестирование всех компонентов системы, чтобы убедиться в их работоспособности и корректности функционирования.
- Обучение персонала: Важно провести обучение сотрудников, которые будут работать с установленными системами, чтобы они знали, как правильно их использовать и обслуживать.
После успешной установки и тестирования слаботочных систем, следует этап ввода их в эксплуатацию. На этом этапе важно:
- Подготовить документацию: Все акты выполненных работ, инструкции по эксплуатации и технические паспорта должны быть собраны и переданы заказчику.
- Провести финальную проверку: Убедиться, что все системы работают корректно и соответствуют заявленным требованиям.
- Обсудить дальнейшее обслуживание: Установить график технического обслуживания и периодических проверок систем для обеспечения их надежной работы.
Таким образом, архитектурно-планировочное проектирование слаботочных систем требует комплексного подхода, включающего анализ, проектирование, установку и ввод в эксплуатацию. Каждый из этих этапов играет важную роль в создании эффективной и надежной системы, которая будет служить своим пользователям на протяжении многих лет.
В заключение, важно отметить, что успешное проектирование и внедрение слаботочных систем зависит не только от технических характеристик оборудования, но и от грамотного подхода к архитектурному планированию. Это позволяет создать гармоничное и функциональное пространство, где технологии работают на благо пользователей.
системы газоснабжения
Архитектурно-планировочное проектирование систем газоснабжения является важным этапом в создании эффективной и безопасной инфраструктуры для распределения газа. Этот процесс включает в себя множество аспектов, начиная от выбора места для установки оборудования и заканчивая проектированием внутренних систем газоснабжения в зданиях.
Одним из ключевых моментов в архитектурно-планировочном проектировании является выбор места для газораспределительных станций и других объектов. При этом необходимо учитывать не только технические характеристики, но и экологические, социальные и экономические факторы. Место установки должно обеспечивать легкий доступ для обслуживания и ремонта, а также минимизировать воздействие на окружающую среду и население.
При проектировании систем газоснабжения важно учитывать параметры безопасности. Это включает в себя создание безопасных зон вокруг газовых объектов, установку систем автоматического контроля и сигнализации, а также разработку планов эвакуации в случае аварийных ситуаций. Все эти меры направлены на снижение рисков и защиту как людей, так и окружающей среды.
Кроме того, архитектурно-планировочное проектирование должно учитывать технические требования к системам газоснабжения. Это включает в себя выбор материалов, которые будут использоваться для трубопроводов, а также проектирование узлов подключения и распределения газа. Важно, чтобы все элементы системы соответствовали действующим стандартам и нормам, что обеспечит надежность и долговечность газоснабжения.
Важным аспектом является также интеграция систем газоснабжения с другими инженерными системами зданий, такими как водоснабжение, канализация и электроснабжение. Это требует тщательного планирования и координации между различными проектными группами, чтобы избежать конфликтов и обеспечить эффективное функционирование всех систем.
При проектировании внутренних систем газоснабжения в зданиях необходимо учитывать архитектурные особенности и планировку помещений. Это включает в себя размещение газовых приборов, таких как котлы, плиты и водонагреватели, а также проектирование вентиляционных систем, которые обеспечивают безопасное удаление продуктов сгорания. Важно, чтобы все газовые приборы были установлены в соответствии с требованиями безопасности и удобства эксплуатации.
Также следует обратить внимание на проектирование систем контроля и учета газа. Это включает в себя установку счетчиков, систем мониторинга и управления, которые позволяют отслеживать потребление газа и обеспечивать его эффективное распределение. Современные технологии позволяют интегрировать эти системы в единую сеть, что значительно упрощает управление и контроль за газоснабжением.
Не менее важным является учет климатических условий и особенностей местности при проектировании систем газоснабжения. В зависимости от региона могут потребоваться различные решения, например, утепление трубопроводов в холодных климатах или защита от коррозии в условиях повышенной влажности. Эти факторы должны быть учтены на этапе проектирования, чтобы обеспечить надежность и эффективность работы системы в любых условиях.
В заключение, архитектурно-планировочное проектирование систем газоснабжения требует комплексного подхода, учитывающего множество факторов. Это позволяет создать безопасную, эффективную и надежную инфраструктуру, способствующую удовлетворению потребностей населения в газоснабжении.
При проектировании систем газоснабжения также необходимо учитывать нормативные и законодательные требования. В разных странах и регионах существуют свои правила и стандарты, касающиеся проектирования, установки и эксплуатации газовых систем. Эти нормы направлены на обеспечение безопасности, надежности и эффективности газоснабжения. Проектировщики должны быть в курсе актуальных изменений в законодательстве и следовать им на всех этапах проектирования.
Одним из важных аспектов является проведение геодезических и геологических изысканий. Эти исследования помогают определить характеристики грунта, уровень подземных вод и другие факторы, которые могут повлиять на проектирование и строительство газопроводов. Знание этих данных позволяет избежать проблем, связанных с осадкой, коррозией и другими негативными воздействиями на систему.
В процессе проектирования также следует учитывать потребности пользователей. Это включает в себя анализ потребления газа в различных секторах, таких как жилые, коммерческие и промышленные объекты. Понимание потребностей пользователей позволяет более точно спроектировать систему, которая будет соответствовать требованиям и обеспечивать необходимый уровень сервиса.
Не менее важным является разработка системы обслуживания и ремонта. Проектировщики должны предусмотреть доступ к ключевым элементам системы для проведения регулярного обслуживания и ремонта. Это включает в себя создание удобных подходов к газораспределительным станциям, установку необходимых инструментов и оборудования, а также разработку графиков обслуживания.
Важным этапом является моделирование и симуляция работы системы газоснабжения. Современные программные решения позволяют создавать виртуальные модели, которые помогают оценить эффективность проектируемой системы, выявить потенциальные проблемы и оптимизировать проект. Моделирование позволяет протестировать различные сценарии работы системы и выбрать наиболее эффективные решения.
При проектировании систем газоснабжения также следует учитывать влияние на окружающую среду. Это включает в себя оценку воздействия на экосистемы, воздух и водные ресурсы. Проектировщики должны разрабатывать меры по минимизации негативного воздействия, такие как использование экологически чистых технологий, а также внедрение систем мониторинга состояния окружающей среды.
Важным аспектом является взаимодействие с местными органами власти и сообществом. Проектировщики должны проводить консультации с местными жителями и организациями, чтобы учесть их мнения и опасения. Это помогает создать более приемлемые и устойчивые решения, а также способствует повышению доверия к проекту со стороны населения.
Наконец, следует отметить, что инновационные технологии играют важную роль в архитектурно-планировочном проектировании систем газоснабжения. Использование современных материалов, автоматизированных систем управления и технологий мониторинга позволяет значительно повысить эффективность и безопасность газоснабжения. Проектировщики должны быть открыты к новым решениям и внедрять их в свои проекты.
Таким образом, архитектурно-планировочное проектирование систем газоснабжения требует комплексного подхода, учитывающего множество факторов, включая безопасность, экологию, потребности пользователей и инновационные технологии. Это позволяет создать эффективную и надежную инфраструктуру, способствующую удовлетворению потребностей населения в газоснабжении.
Технологические решения
Архитектурно-планировочное проектирование представляет собой важный этап в создании функциональных и эстетически привлекательных зданий и сооружений. В этом процессе используются различные технологические решения, которые помогают оптимизировать проектирование, повысить его эффективность и снизить затраты. В данной статье мы рассмотрим ключевые аспекты технологических решений, применяемых в архитектурно-планировочном проектировании.
Одним из основных направлений в архитектурно-планировочном проектировании является использование программного обеспечения. Современные CAD-системы (Computer-Aided Design) позволяют архитекторам и проектировщикам создавать точные и детализированные чертежи, а также визуализировать проект на ранних стадиях его разработки. Программные решения, такие как AutoCAD, Revit и ArchiCAD, обеспечивают возможность работы с трехмерными моделями, что значительно упрощает процесс проектирования и позволяет избежать ошибок.
Кроме того, информационное моделирование зданий (BIM) становится все более популярным в архитектурной практике. BIM-технологии позволяют интегрировать все аспекты проектирования, включая архитектурные, инженерные и строительные данные, в единую модель. Это обеспечивает более высокую степень координации между различными участниками проекта и позволяет сократить время на его реализацию. Использование BIM также способствует более эффективному управлению жизненным циклом здания, начиная с проектирования и заканчивая эксплуатацией.
Важным аспектом архитектурно-планировочного проектирования является учет экологических факторов. Современные технологии позволяют интегрировать принципы устойчивого развития в проектирование зданий. Это включает в себя использование энергоэффективных систем, таких как солнечные панели, системы рекуперации тепла и водосберегающие технологии. Архитекторы также применяют методы пассивного солнечного отопления и естественной вентиляции, что позволяет снизить потребление энергии и уменьшить негативное воздействие на окружающую среду.
Еще одним важным направлением является модульное и промышленное строительство. Эти подходы позволяют значительно сократить время на возведение зданий и снизить затраты. Модульные конструкции изготавливаются на заводах и затем собираются на строительной площадке, что минимизирует влияние погодных условий и повышает качество строительства. Промышленное строительство также включает в себя использование стандартных элементов и конструкций, что упрощает проектирование и ускоряет процесс реализации.
В рамках архитектурно-планировочного проектирования также активно применяются инновационные строительные материалы. Современные технологии позволяют создавать легкие, прочные и долговечные материалы, которые обладают высокими теплоизоляционными свойствами. Например, использование композитных материалов, таких как стеклопластик и углепластик, открывает новые возможности для проектирования сложных форм и конструкций. Также стоит отметить развитие технологий 3D-печати, которые позволяют создавать строительные элементы непосредственно на месте, что значительно сокращает время и затраты на строительство.
Не менее важным аспектом является интеграция умных технологий в архитектурное проектирование. Умные здания, оснащенные системами автоматизации, позволяют значительно повысить комфорт и безопасность проживания. Это включает в себя системы управления освещением, отоплением, вентиляцией и охраной. Такие технологии не только улучшают качество жизни, но и способствуют снижению эксплуатационных расходов.
Важным аспектом архитектурно-планировочного проектирования является учет культурных и исторических контекстов. При проектировании новых зданий в исторических районах необходимо учитывать существующую архитектурную среду, чтобы сохранить гармонию и целостность городской структуры. Это требует от архитекторов глубокого понимания местной истории, традиций и стилей, что может быть достигнуто через использование современных технологий, таких как 3D-сканирование и моделирование, позволяющие точно воспроизводить детали исторических зданий.
Также стоит отметить, что коллаборация между различными специалистами играет ключевую роль в успешном архитектурно-планировочном проектировании. Архитекторы, инженеры, дизайнеры и строители должны работать в тесном сотрудничестве на всех этапах проекта. Использование облачных технологий и платформ для совместной работы позволяет всем участникам проекта обмениваться данными в реальном времени, что способствует более эффективному решению возникающих проблем и улучшению качества конечного продукта.
В последние годы наблюдается рост интереса к инклюзивному проектированию, которое направлено на создание доступной среды для всех пользователей, включая людей с ограниченными возможностями. Это требует применения специальных стандартов и технологий, таких как безбарьерные входы, тактильные указатели и адаптивные пространства. Инклюзивное проектирование не только улучшает качество жизни людей с ограниченными возможностями, но и создает более комфортную и безопасную среду для всех пользователей.
Не менее важным является учет социальных аспектов в архитектурном проектировании. Создание общественных пространств, таких как парки, площади и зоны отдыха, способствует улучшению качества жизни в городах. Архитекторы должны учитывать потребности местных сообществ, разрабатывать проекты, которые способствуют социальной интеграции и взаимодействию между жителями. Это может включать в себя создание многофункциональных пространств, которые могут использоваться для различных мероприятий и активностей.
В заключение, технологические решения в архитектурно-планировочном проектировании охватывают широкий спектр аспектов, от использования современных программных средств до внедрения устойчивых и инклюзивных практик. Эти решения не только повышают эффективность проектирования, но и способствуют созданию более комфортной, безопасной и экологически чистой городской среды. Важно, чтобы архитекторы и проектировщики продолжали исследовать и внедрять новые технологии, адаптируясь к меняющимся требованиям общества и окружающей среды.
Проект организации строительства
Архитектурно-планировочное проектирование является важнейшим этапом в организации строительства, так как именно на этом этапе закладываются основы будущего объекта. Этот процесс включает в себя разработку концепции, определение функционального назначения зданий и сооружений, а также их интеграцию в существующую городскую или природную среду.
На начальном этапе проектирования необходимо провести анализ территории, на которой планируется строительство. Это включает в себя изучение географических, климатических, экологических и социальных факторов. Важно учитывать не только текущие условия, но и прогнозируемые изменения, которые могут повлиять на эксплуатацию объекта в будущем.
Одним из ключевых аспектов архитектурно-планировочного проектирования является функциональное зонирование. Оно подразумевает разделение территории на различные зоны, каждая из которых будет выполнять свою специфическую функцию. Например, в жилых районах могут быть выделены зоны для жилых домов, общественных зданий, зеленых насаждений и инфраструктуры. Это позволяет создать гармоничное и удобное для проживания пространство.
При проектировании также необходимо учитывать архитектурные стили и традиции региона. Это важно для создания единого архитектурного облика, который будет гармонировать с окружающей средой. Архитекторы должны стремиться к тому, чтобы новые здания не только соответствовали современным требованиям, но и уважали историческое наследие и культурные особенности местности.
Важным этапом является разработка планировочных решений, которые включают в себя размещение зданий, их высоту, форму и ориентацию. Эти решения должны обеспечивать максимальную функциональность и комфорт для пользователей, а также учитывать аспекты безопасности и доступности. Например, необходимо предусмотреть удобные подходы к зданиям, а также обеспечить достаточное количество парковочных мест.
Кроме того, архитектурно-планировочное проектирование должно учитывать экологические аспекты. Это включает в себя использование экологически чистых материалов, внедрение энергосберегающих технологий и создание зеленых зон. Важно, чтобы проектируемые объекты не наносили вреда окружающей среде и способствовали улучшению качества жизни населения.
На этапе проектирования также разрабатываются инженерные сети, которые обеспечивают функционирование зданий. Это включает в себя водоснабжение, канализацию, электроснабжение, отопление и вентиляцию. Правильное проектирование инженерных систем является залогом надежной и безопасной эксплуатации объектов.
В процессе архитектурно-планировочного проектирования важно также учитывать нормативные требования и стандарты, которые регулируют строительство. Это включает в себя соблюдение строительных норм и правил, а также получение необходимых разрешений и согласований от государственных органов. Невыполнение этих требований может привести к задержкам в строительстве и дополнительным затратам.
Таким образом, архитектурно-планировочное проектирование является многогранным и сложным процессом, который требует комплексного подхода и учета множества факторов. Успешное завершение этого этапа закладывает основу для дальнейших работ и определяет качество и функциональность будущего объекта.
Следующим важным аспектом архитектурно-планировочного проектирования является разработка концепции благоустройства территории. Это включает в себя создание общественных пространств, таких как парки, скверы, площади и прогулочные зоны. Благоустройство должно способствовать созданию комфортной и привлекательной городской среды, где жители смогут проводить время на свежем воздухе, заниматься спортом и общаться.
При проектировании общественных пространств необходимо учитывать потребности различных групп населения. Это может включать в себя создание детских площадок, спортивных объектов, мест для отдыха и общения. Важно, чтобы такие пространства были доступны для всех, включая людей с ограниченными возможностями. Это требует особого внимания к проектированию пешеходных маршрутов, установке удобных скамеек и обеспечению безопасности.
Не менее важным является учет транспортной инфраструктуры. Проектирование дорог, тротуаров, велосипедных дорожек и остановок общественного транспорта должно быть интегрировано в общую концепцию. Это позволит обеспечить удобное и безопасное передвижение по территории, а также снизить нагрузку на транспортные сети. Важно предусмотреть возможность организации общественного транспорта, чтобы жители могли легко добираться до работы, учебы и других важных мест.
В рамках архитектурно-планировочного проектирования также необходимо учитывать социальные аспекты. Это включает в себя создание условий для взаимодействия жителей, развитие местного самоуправления и вовлечение граждан в процесс проектирования. Участие населения в обсуждении проектов позволяет учесть их мнения и пожелания, что в конечном итоге приводит к созданию более комфортной и удобной городской среды.
Кроме того, важным элементом является инновационное проектирование. Современные технологии и подходы, такие как использование BIM (Building Information Modeling), позволяют значительно повысить качество проектирования и сократить сроки реализации. BIM-технологии позволяют создавать трехмерные модели зданий и сооружений, что упрощает процесс согласования и позволяет выявлять возможные проблемы на ранних стадиях проектирования.
Также стоит отметить, что архитектурно-планировочное проектирование должно быть гибким и адаптивным. Учитывая быстро меняющиеся условия жизни и потребности общества, проектировщики должны быть готовы вносить изменения в свои решения. Это может касаться как функционального назначения зданий, так и их архитектурного облика. Гибкость проектирования позволяет создавать более устойчивые и жизнеспособные объекты, которые смогут адаптироваться к изменениям в будущем.
В заключение, архитектурно-планировочное проектирование является сложным и многогранным процессом, который требует комплексного подхода и учета множества факторов. Успешное завершение этого этапа закладывает основу для дальнейших работ и определяет качество и функциональность будущего объекта. Важно, чтобы проектировщики, архитекторы и другие специалисты работали в тесном сотрудничестве, чтобы создать гармоничное и удобное пространство для жизни и работы.
Мероприятия по охране окружающей среды
Архитектурно-планировочное проектирование играет ключевую роль в охране окружающей среды, так как оно определяет, как будут использоваться земельные ресурсы, как будут организованы пространства и как здания будут взаимодействовать с природой. Важность этого процесса заключается в том, что он может значительно снизить негативное воздействие на экосистемы и способствовать устойчивому развитию.
Одним из основных аспектов архитектурно-планировочного проектирования является интеграция природных элементов в городскую среду. Это может включать в себя:
- Создание зеленых зон и парков, которые способствуют улучшению качества воздуха и обеспечивают место для отдыха жителей.
- Использование водоемов и водных систем для управления дождевыми водами и предотвращения наводнений.
- Внедрение зеленых крыш и стен, которые помогают в изоляции зданий и способствуют биоразнообразию.
Кроме того, архитектурно-планировочное проектирование должно учитывать энергетическую эффективность зданий. Это включает в себя:
- Использование возобновляемых источников энергии, таких как солнечные панели и ветряные турбины.
- Проектирование зданий с учетом естественного освещения и вентиляции для снижения потребления электроэнергии.
- Применение энергоэффективных материалов и технологий, которые уменьшают теплопотери.
Также важным аспектом является устойчивое использование ресурсов. Это подразумевает:
- Оптимизацию использования воды через системы сбора дождевой воды и повторного использования серой воды.
- Выбор местных и экологически чистых материалов для строительства, что снижает углеродный след.
- Проектирование зданий с учетом их жизненного цикла, включая возможность переработки и утилизации материалов.
Архитектурно-планировочное проектирование также должно учитывать социальные аспекты, такие как:
- Создание доступной городской инфраструктуры для всех групп населения, включая людей с ограниченными возможностями.
- Разработка общественных пространств, которые способствуют взаимодействию и укреплению сообщества.
- Учет культурных и исторических особенностей местности при проектировании новых объектов.
Важным направлением является инновационное проектирование, которое включает в себя:
- Использование современных технологий, таких как 3D-моделирование и виртуальная реальность, для более точного планирования.
- Внедрение умных технологий в здания для повышения их функциональности и комфорта.
- Разработка адаптивных проектов, которые могут изменяться в зависимости от потребностей сообщества и окружающей среды.
Таким образом, архитектурно-планировочное проектирование является важным инструментом для достижения целей охраны окружающей среды и устойчивого развития. Оно требует комплексного подхода, который учитывает как экологические, так и социальные аспекты, что в конечном итоге способствует созданию более здоровой и комфортной городской среды.
Важным аспектом архитектурно-планировочного проектирования является учет климатических условий. Проектировщики должны анализировать местный климат, чтобы оптимизировать расположение зданий, их форму и ориентацию. Это позволяет:
- Снизить потребление энергии на отопление и охлаждение.
- Использовать природные ресурсы, такие как солнечная энергия, для повышения энергетической эффективности.
- Создавать комфортные условия для проживания и работы, учитывая особенности местного климата.
Также стоит отметить, что транспортная инфраструктура играет важную роль в архитектурно-планировочном проектировании. Эффективное планирование транспортных систем может снизить уровень загрязнения воздуха и уменьшить углеродный след. Это включает в себя:
- Создание удобных и безопасных пешеходных и велосипедных дорожек.
- Развитие общественного транспорта, что способствует снижению зависимости от личных автомобилей.
- Интеграцию различных видов транспорта для повышения их эффективности и доступности.
Важным направлением является экологическое зонирование, которое позволяет разделить территорию на функциональные зоны с учетом их экологических характеристик. Это помогает:
- Сохранить природные экосистемы и биоразнообразие.
- Минимизировать негативное воздействие на окружающую среду при строительстве новых объектов.
- Создать гармоничное сосуществование человека и природы.
Кроме того, участие общественности в процессе проектирования становится все более важным. Вовлечение местных жителей в обсуждение проектов позволяет учитывать их потребности и предпочтения, что способствует:
- Созданию более комфортной и безопасной городской среды.
- Укреплению чувства принадлежности и ответственности за окружающее пространство.
- Повышению прозрачности и доверия к процессу проектирования.
Не менее важным является мониторинг и оценка экологических последствий архитектурных проектов. Это позволяет:
- Оценить эффективность принятых мер по охране окружающей среды.
- Вносить коррективы в проектные решения на основе полученных данных.
- Обеспечить долгосрочную устойчивость и безопасность построенных объектов.
Таким образом, архитектурно-планировочное проектирование является многогранным процессом, который требует комплексного подхода и учета множества факторов. Устойчивое развитие, охрана окружающей среды и социальные аспекты должны быть в центре внимания проектировщиков, чтобы создать комфортные и безопасные условия для жизни и работы людей.
Мероприятия по обеспечению пожарной безопасности
Архитектурно-планировочное проектирование играет ключевую роль в обеспечении пожарной безопасности зданий и сооружений. На этапе проектирования необходимо учитывать множество факторов, которые могут повлиять на безопасность людей и имущества в случае возникновения пожара. Важно, чтобы проектировщики и архитекторы имели четкое представление о требованиях к пожарной безопасности и интегрировали их в свои проекты.
Одним из основных аспектов архитектурно-планировочного проектирования является рациональное зонирование пространства. Это включает в себя:
- Определение функциональных зон, таких как жилые, производственные и общественные помещения.
- Размещение помещений с учетом их назначения и потенциальной опасности.
- Создание безопасных путей эвакуации, которые должны быть четко обозначены и свободны от препятствий.
Также важным элементом является выбор материалов для строительства. Материалы должны соответствовать требованиям по огнестойкости и не способствовать распространению огня. Ключевые моменты включают:
- Использование огнеупорных и негорючих материалов в конструкциях.
- Обеспечение защиты конструктивных элементов от воздействия высоких температур.
- Применение огнезащитных покрытий и составов для повышения огнестойкости.
При проектировании зданий также необходимо учитывать системы противопожарной защиты. Это включает в себя:
- Установку автоматических систем пожаротушения, таких как спринклерные системы.
- Размещение огнетушителей в доступных местах.
- Проектирование систем дымоудаления и вентиляции для предотвращения накопления дыма.
Не менее важным является учет норм и стандартов, регулирующих проектирование с точки зрения пожарной безопасности. В разных странах существуют свои нормативные документы, которые необходимо соблюдать. К ним относятся:
- Национальные строительные нормы и правила.
- Международные стандарты, такие как ISO и EN.
- Локальные правила, касающиеся конкретных типов зданий и сооружений.
Кроме того, проектировщики должны учитывать планировку территории, на которой будет располагаться здание. Это включает в себя:
- Обеспечение достаточного расстояния между зданиями для предотвращения распространения огня.
- Создание зон безопасности вокруг зданий, свободных от легковоспламеняющихся материалов.
- Проектирование подъездных путей для пожарной техники.
Важным аспектом является обучение персонала и пользователей зданий. На этапе проектирования необходимо предусмотреть:
- Проведение инструктажей по действиям в случае пожара.
- Разработку планов эвакуации и размещение их в видимых местах.
- Организацию регулярных тренировок по эвакуации.
Таким образом, архитектурно-планировочное проектирование является основой для обеспечения пожарной безопасности. Оно требует комплексного подхода и учета множества факторов, чтобы минимизировать риски и защитить людей и имущество.
Важным аспектом архитектурно-планировочного проектирования является освещение эвакуационных путей. Эффективное освещение помогает людям быстро ориентироваться в пространстве в случае возникновения чрезвычайной ситуации. Ключевые моменты, которые следует учитывать:
- Установка аварийного освещения, которое будет работать в случае отключения основного питания.
- Обеспечение достаточной яркости и равномерности освещения на всех путях эвакуации.
- Использование световых указателей для обозначения выходов и направлений движения.
Также необходимо учитывать вентиляцию помещений. Правильная вентиляция может значительно снизить риск задымления и улучшить условия для эвакуации. Важно предусмотреть:
- Системы принудительной вентиляции, которые могут быть активированы в случае пожара.
- Дымоудаление, которое поможет очистить воздух от токсичных газов.
- Проветривание помещений, чтобы предотвратить накопление горючих газов.
При проектировании зданий также следует учитывать пожарные преграды, которые могут замедлить распространение огня. Это может включать:
- Создание огнестойких стен и перегородок.
- Установка огнеупорных дверей, которые будут закрываться автоматически.
- Использование специальных конструктивных решений, таких как защитные коридоры.
Необходимо также предусмотреть планирование доступа для экстренных служб. Это включает в себя:
- Обеспечение свободного доступа к зданиям для пожарных машин и другой техники.
- Создание удобных подъездных путей и площадок для разворота.
- Размещение знаков, указывающих на места для парковки экстренных служб.
Важным элементом является интеграция современных технологий в проектирование. Использование автоматизированных систем управления зданием может значительно повысить уровень пожарной безопасности. К таким технологиям относятся:
- Системы мониторинга и сигнализации о пожаре.
- Автоматизированные системы управления эвакуацией.
- Интеллектуальные системы управления вентиляцией и освещением.
Кроме того, необходимо учитывать психологические аспекты поведения людей в условиях стресса. Проектирование должно учитывать:
- Создание комфортной и понятной среды для пользователей.
- Обеспечение четкой навигации и доступности информации о действиях в случае пожара.
- Разработку сценариев поведения людей в экстренных ситуациях.
Таким образом, архитектурно-планировочное проектирование является многогранным процессом, который требует комплексного подхода и учета множества факторов. Это не только технические аспекты, но и человеческий фактор, который играет важную роль в обеспечении безопасности. Каждый проект должен быть уникальным и адаптированным к конкретным условиям, чтобы минимизировать риски и обеспечить безопасность людей и имущества.
Требования к обеспечению безопасной эксплуатации объектов капитального строительства
Архитектурно-планировочное проектирование является важным этапом в обеспечении безопасной эксплуатации объектов капитального строительства. Этот процесс включает в себя разработку проектных решений, которые учитывают не только эстетические и функциональные аспекты, но и требования безопасности, устойчивости и долговечности зданий и сооружений.
Одним из ключевых аспектов архитектурно-планировочного проектирования является соблюдение норм и стандартов, касающихся безопасности. Это включает в себя:
- Соблюдение строительных норм и правил (СНиП) – проектирование должно соответствовать действующим строительным нормам, которые регламентируют требования к безопасности зданий и сооружений.
- Учет природных и техногенных факторов – необходимо анализировать влияние окружающей среды, включая сейсмическую активность, ветровые нагрузки, уровень грунтовых вод и другие факторы, которые могут повлиять на безопасность эксплуатации объекта.
- Планировка территории – важно правильно организовать пространство вокруг здания, чтобы обеспечить безопасные подходы, эвакуационные пути и зоны для размещения инженерных систем.
При проектировании зданий необходимо учитывать их функциональное назначение. Например, для общественных зданий, таких как школы или больницы, требуется особое внимание к вопросам доступности и безопасности для всех категорий пользователей, включая людей с ограниченными возможностями. В этом контексте важно предусмотреть:
- Безбарьерный доступ – проектирование пандусов, лифтов и других элементов, обеспечивающих доступность для людей с ограниченными возможностями.
- Эвакуационные пути – четкое обозначение и планировка эвакуационных выходов, которые должны быть доступны и безопасны в случае чрезвычайной ситуации.
- Системы безопасности – интеграция систем видеонаблюдения, сигнализации и других технологий, которые обеспечивают безопасность пользователей.
Кроме того, архитектурно-планировочное проектирование должно учитывать требования к устойчивости зданий. Это включает в себя:
- Выбор материалов – использование современных и устойчивых к внешним воздействиям строительных материалов, которые обеспечивают долговечность и безопасность.
- Конструктивные решения – проектирование конструкций, способных выдерживать нагрузки и воздействия, такие как землетрясения, ураганы и другие природные катастрофы.
- Энергоэффективность – внедрение технологий, которые способствуют снижению энергозатрат и повышению устойчивости здания к внешним воздействиям.
Важным аспектом является также взаимодействие с различными службами и организациями, которые могут влиять на проект. Это включает в себя:
- Согласование с органами местного самоуправления – получение разрешений и согласований на строительство, которые подтверждают соответствие проекта действующим нормам и требованиям.
- Координация с инженерными службами – взаимодействие с поставщиками коммунальных услуг для обеспечения подключения к водоснабжению, электроснабжению и другим системам.
- Учет мнения общественности – проведение общественных слушаний и консультаций с местными жителями для учета их мнения и предложений по проекту.
Таким образом, архитектурно-планировочное проектирование является многогранным процессом, который требует комплексного подхода и учета множества факторов, влияющих на безопасность и эксплуатацию объектов капитального строительства. Важно, чтобы проектировщики и архитекторы работали в тесном сотрудничестве с инженерами, экологами и другими специалистами для создания безопасных и устойчивых зданий, которые будут служить обществу на протяжении многих лет.
Важным аспектом архитектурно-планировочного проектирования является также интеграция современных технологий и инновационных решений. Это позволяет не только повысить уровень безопасности, но и улучшить функциональность и комфортность зданий. К таким технологиям можно отнести:
- Системы автоматизации – внедрение «умных» технологий, которые позволяют управлять системами освещения, отопления и вентиляции, обеспечивая оптимальные условия для пользователей и снижая энергозатраты.
- Интеллектуальные системы безопасности – использование технологий распознавания лиц, датчиков движения и других средств, которые повышают уровень безопасности объектов.
- Экологические технологии – применение решений, направленных на минимизацию негативного воздействия на окружающую среду, таких как системы сбора дождевой воды, солнечные панели и зеленые крыши.
При проектировании также необходимо учитывать вопросы устойчивого развития. Это подразумевает создание зданий, которые не только отвечают современным требованиям, но и способствуют сохранению природных ресурсов. В этом контексте важными аспектами являются:
- Энергоэффективность – проектирование зданий с учетом их энергоэффективности, что включает в себя использование теплоизоляционных материалов, энергоэффективных окон и систем отопления.
- Снижение углеродного следа – применение экологически чистых материалов и технологий, которые минимизируют выбросы углерода в процессе строительства и эксплуатации.
- Устойчивое управление отходами – разработка системы утилизации строительных отходов и вторичного использования материалов.
Не менее важным является вопрос проектирования с учетом культурных и исторических особенностей региона. Это позволяет сохранить уникальность архитектурного облика и гармонично вписать новое здание в существующую застройку. В этом контексте проектировщики должны:
- Изучить исторический контекст – провести анализ архитектурного наследия и традиций региона, чтобы избежать конфликтов с существующими зданиями.
- Соблюдать стилистические особенности – учитывать местные архитектурные стили и элементы, чтобы новое здание органично вписывалось в окружающую среду.
- Взаимодействовать с местными сообществами – проводить консультации с жителями и представителями культурных организаций для учета их мнения и предложений.
Важным этапом в процессе архитектурно-планировочного проектирования является также оценка рисков. Это включает в себя:
- Идентификацию потенциальных угроз – анализ возможных рисков, связанных с природными катастрофами, техногенными авариями и другими факторами.
- Разработку мер по минимизации рисков – создание планов действий в чрезвычайных ситуациях, включая эвакуацию и защиту пользователей.
- Проведение регулярных проверок и оценок – мониторинг состояния здания и его систем для своевременного выявления и устранения проблем.
Таким образом, архитектурно-планировочное проектирование требует комплексного подхода, который включает в себя множество аспектов, от соблюдения норм безопасности до учета культурных и исторических особенностей. Это позволяет создавать безопасные, устойчивые и комфортные объекты капитального строительства, которые будут служить обществу на протяжении многих лет.
Мероприятия по обеспечению доступа инвалидов к объекту капитального строительства
Архитектурно-планировочное проектирование является ключевым этапом в создании объектов капитального строительства, особенно когда речь идет о доступности для людей с ограниченными возможностями. Важно учитывать, что архитектурная среда должна быть не только эстетически привлекательной, но и функциональной для всех категорий граждан. Это требует комплексного подхода, который включает в себя как проектирование, так и реализацию мероприятий по обеспечению доступности.
Одним из первых шагов в архитектурно-планировочном проектировании является анализ существующих норм и стандартов, касающихся доступности. В большинстве стран разработаны специальные нормативные документы, которые регламентируют требования к проектированию объектов с учетом потребностей инвалидов. Эти документы включают в себя рекомендации по ширине дверных проемов, высоте подъемников, наличию пандусов и других элементов, способствующих доступности.
При проектировании объектов капитального строительства необходимо учитывать следующие аспекты:
- Планировка территории: Важно предусмотреть удобные подходы к зданию, включая пешеходные дорожки, парковочные места для инвалидов и зоны отдыха.
- Архитектурные элементы: Все элементы здания, такие как двери, окна, лестницы и лифты, должны быть спроектированы с учетом потребностей людей с ограниченными возможностями.
- Информационная доступность: Необходимо обеспечить наличие информационных табличек и указателей, которые будут понятны всем пользователям, включая людей с нарушениями зрения.
- Безопасность: Проектирование должно учитывать безопасность передвижения инвалидов, включая наличие поручней, противоскользящих покрытий и освещения.
Одним из важных аспектов является создание безбарьерной среды. Это подразумевает, что все элементы инфраструктуры должны быть доступны для людей с различными формами инвалидности. Например, пандусы должны иметь соответствующий уклон, а двери должны открываться легко и без усилий. Также важно предусмотреть наличие лифтов, которые могут использоваться людьми на инвалидных колясках.
В процессе проектирования необходимо также учитывать потребности людей с различными формами инвалидности. Например, для людей с нарушениями слуха важно предусмотреть визуальные сигналы, а для людей с нарушениями зрения — тактильные элементы. Это может включать в себя тактильные плитки на тротуарах, звуковые сигналы на светофорах и другие элементы, которые помогут людям с ограниченными возможностями ориентироваться в пространстве.
Кроме того, важно проводить консультации с представителями организаций инвалидов на этапе проектирования. Это позволит учесть их мнение и потребности, а также выявить возможные проблемы, которые могут возникнуть в процессе эксплуатации объекта. Такой подход способствует созданию более комфортной и безопасной среды для всех пользователей.
Важным аспектом архитектурно-планировочного проектирования является интеграция современных технологий, которые могут значительно улучшить доступность объектов. Например, использование автоматических дверей, сенсорных лифтов и систем навигации может существенно облегчить передвижение людей с ограниченными возможностями. Эти технологии не только повышают уровень комфорта, но и способствуют созданию более инклюзивной среды.
Также стоит отметить, что проектирование должно учитывать различные сценарии использования объекта. Например, в общественных зданиях, таких как школы, больницы или торговые центры, необходимо предусмотреть зоны, которые будут удобны для людей с ограниченными возможностями. Это может включать в себя специальные туалеты, комнаты для отдыха и другие удобства, которые помогут создать комфортные условия для всех пользователей.
При проектировании жилых зданий важно учитывать потребности людей с ограниченными возможностями на этапе выбора квартир. Например, квартиры на первых этажах могут быть более удобными для людей с ограниченной мобильностью, а также необходимо предусмотреть возможность установки специальных устройств, таких как подъемники или поручни.
Не менее важным является и вопрос финансирования мероприятий по обеспечению доступности. В некоторых случаях проектировщики могут столкнуться с ограничениями бюджета, что может негативно сказаться на качестве проектирования. Поэтому важно заранее планировать расходы и искать возможности для привлечения дополнительных средств, например, через государственные программы или гранты.
В процессе реализации проекта необходимо также проводить контроль за соблюдением всех норм и стандартов. Это включает в себя как проверку на этапе строительства, так и последующий мониторинг эксплуатации объекта. Важно, чтобы все элементы, предусмотренные проектом, были реализованы в соответствии с установленными требованиями.
Обучение персонала, работающего в объектах капитального строительства, также играет важную роль в обеспечении доступности. Сотрудники должны быть осведомлены о том, как правильно взаимодействовать с людьми с ограниченными возможностями, а также о том, какие услуги и помощь они могут предоставить. Это поможет создать более дружелюбную и инклюзивную атмосферу.
В заключение, архитектурно-планировочное проектирование требует комплексного подхода, который учитывает потребности всех пользователей. Важно, чтобы проектировщики, строители и владельцы объектов работали в тесном сотрудничестве с представителями организаций инвалидов и другими заинтересованными сторонами. Это позволит создать доступную и комфортную среду для всех граждан, независимо от их физических возможностей.
Смета на строительство, реконструкцию, капитальный ремонт, снос объекта капитального строительства
Архитектурно-планировочное проектирование является важным этапом в процессе строительства, реконструкции и капитального ремонта объектов капитального строительства. Этот процесс включает в себя разработку концепции, которая определяет функциональное назначение, эстетические качества и технические характеристики будущего объекта. Важность архитектурно-планировочного проектирования трудно переоценить, так как именно на этом этапе закладываются основы для дальнейшей реализации проекта.
На начальном этапе проектирования необходимо провести анализ участка, на котором будет возводиться объект. Это включает в себя изучение геодезических, геологических и экологических условий, а также существующей инфраструктуры. Важно учитывать не только физические характеристики земли, но и социальные аспекты, такие как потребности местного населения и требования к доступности объекта.
Следующим шагом является разработка функционального зонирования. Это процесс, в ходе которого определяется, какие зоны будут отведены под различные функции: жилые, коммерческие, общественные и т.д. Функциональное зонирование позволяет оптимально распределить пространство, обеспечивая удобство и комфорт для пользователей.
После определения функциональных зон начинается работа над архитектурным решением. Здесь важно учитывать не только эстетические аспекты, но и соответствие проектируемого объекта действующим строительным нормам и правилам. Архитектурное решение должно быть гармоничным, сочетая в себе как внешние, так и внутренние элементы. В этом контексте особое внимание уделяется:
- Форме и объему здания - они должны быть пропорциональны и соответствовать окружающей застройке.
- Материалам - выбор строительных материалов влияет на долговечность и эксплуатационные характеристики объекта.
- Эстетике - внешний вид здания должен быть привлекательным и соответствовать стилю местности.
Кроме того, важным аспектом архитектурно-планировочного проектирования является инженерное обеспечение объекта. Это включает в себя проектирование систем водоснабжения, канализации, отопления, вентиляции и электроснабжения. Все эти системы должны быть интегрированы в общий проект, обеспечивая комфортные условия для пользователей и соответствуя современным требованиям по энергоэффективности.
Не менее важным является вопрос экологической устойчивости проектируемого объекта. Современные тенденции в архитектуре требуют учитывать влияние строительства на окружающую среду. Это может включать в себя использование экологически чистых материалов, внедрение систем утилизации отходов и оптимизацию потребления ресурсов.
На этапе архитектурно-планировочного проектирования также необходимо учитывать нормативные требования, которые регулируют строительство. Это включает в себя соблюдение строительных норм и правил, а также получение необходимых разрешений и согласований от государственных органов. Невыполнение этих требований может привести к задержкам в реализации проекта и дополнительным затратам.
В заключение, архитектурно-планировочное проектирование является многогранным процессом, который требует комплексного подхода и учета множества факторов. Успех всего проекта зависит от того, насколько тщательно и профессионально будет выполнен этот этап. Важно помнить, что качественное проектирование не только улучшает функциональность и эстетические качества объекта, но и способствует его долговечности и устойчивости в будущем.
Одним из ключевых аспектов архитектурно-планировочного проектирования является интеграция с окружающей средой. Это подразумевает не только физическое размещение объекта на участке, но и его взаимодействие с природными и искусственными ландшафтами. Важно учитывать такие факторы, как рельеф, наличие водоемов, растительности и существующей застройки. Правильная интеграция позволяет создать гармоничное пространство, которое будет комфортным для жизни и работы.
В процессе проектирования также необходимо уделить внимание доступности объекта. Это включает в себя создание удобных подходов, пешеходных и велосипедных дорожек, а также обеспечение доступности для людей с ограниченными возможностями. Удобная транспортная инфраструктура и наличие парковочных мест также играют важную роль в создании комфортной городской среды.
Не менее важным является учет культурных и исторических аспектов. При проектировании новых объектов в исторических районах необходимо учитывать архитектурное наследие и стилистику окружающих зданий. Это может включать в себя использование традиционных материалов и форм, а также сохранение исторических элементов, которые придают уникальность месту. Важно, чтобы новый объект не нарушал гармонию существующей застройки, а, наоборот, подчеркивал ее ценность.
Современные технологии также играют значительную роль в архитектурно-планировочном проектировании. Использование программного обеспечения для 3D-моделирования и визуализации позволяет архитекторам и проектировщикам более точно представлять, как будет выглядеть конечный результат. Это также облегчает процесс согласования проекта с заказчиком и другими заинтересованными сторонами, так как позволяет наглядно демонстрировать идеи и концепции.
Важным этапом является проектирование ландшафта, которое включает в себя создание зеленых зон, парков, скверов и других общественных пространств. Ландшафтный дизайн не только улучшает эстетические качества территории, но и способствует созданию комфортной и здоровой городской среды. Правильное озеленение может значительно улучшить микроклимат, снизить уровень шума и загрязнения, а также повысить качество жизни жителей.
На этапе архитектурно-планировочного проектирования также важно учитывать экономические аспекты. Это включает в себя оценку стоимости строительства, эксплуатационных расходов и потенциальной доходности объекта. Правильная финансовая оценка позволяет избежать перерасходов и обеспечивает рентабельность проекта. Важно, чтобы проект был не только красивым и функциональным, но и экономически обоснованным.
В заключение, архитектурно-планировочное проектирование является сложным и многогранным процессом, который требует учета множества факторов. Успех проекта зависит от профессионализма команды, способной интегрировать все аспекты в единое целое. Качественное проектирование не только создает комфортные и функциональные объекты, но и способствует развитию городской среды, улучшая качество жизни людей.


















