Архитектурно инженерное проектирование
Архитектурно инженерное проектирование
В современном строительстве архитектурно-инженерное проектирование играет ключевую роль в создании качественных и безопасных объектов. Важным аспектом этого процесса является соблюдение нормативных актов, таких как 87 постановление правительства, которое регламентирует основные принципы и требования к проектированию. В данной статье мы рассмотрим, как это постановление влияет на архитектурно-инженерное проектирование, а также выделим ключевые моменты, которые необходимо учитывать при разработке проектов.
Статья включает в себя следующие разделы:
- Общие положения 87 постановления правительства
- Основные этапы архитектурно-инженерного проектирования
- Требования к проектной документации
- Роль архитекторов и инженеров в проектировании
- Примеры успешных проектов, выполненных с учетом постановления
Мы надеемся, что данная информация будет полезна как профессионалам в области строительства, так и тем, кто только начинает знакомиться с основами архитектурного проектирования.
Согласно 87 ПП (87 постановление правительства)
Архитектурно-инженерное проектирование является важной частью строительного процесса, обеспечивая создание функциональных, эстетически привлекательных и безопасных зданий и сооружений. В соответствии с 87 постановлением правительства, данная область охватывает множество аспектов, включая проектирование, планирование и реализацию строительных проектов.
Одним из ключевых элементов архитектурно-инженерного проектирования является соблюдение норм и стандартов, установленных законодательством. Это включает в себя:
- Соблюдение строительных норм и правил (СНиП) - обязательные требования, которые должны быть учтены при проектировании.
- Учет экологических норм - проектирование должно учитывать влияние на окружающую среду и минимизировать негативные последствия.
- Соответствие требованиям безопасности - здания и сооружения должны быть безопасными для пользователей и соответствовать нормам пожарной безопасности.
Процесс архитектурно-инженерного проектирования включает несколько этапов, каждый из которых имеет свои особенности и требования:
- Предпроектные исследования - на этом этапе проводятся анализы и исследования, которые помогают определить целесообразность проекта.
- Разработка концепции - создание предварительных эскизов и концептуальных решений, которые отражают основные идеи проекта.
- Рабочая документация - на этом этапе разрабатываются детализированные чертежи и спецификации, необходимые для строительства.
Важным аспектом является также взаимодействие с различными заинтересованными сторонами, включая заказчиков, подрядчиков и государственные органы. Это взаимодействие обеспечивает:
- Координацию действий - все участники проекта должны быть вовлечены в процесс на всех этапах.
- Учет мнений и пожеланий - важно учитывать требования и пожелания заказчика, а также мнения экспертов.
- Соблюдение сроков и бюджета - проект должен быть реализован в установленные сроки и в рамках бюджета.
Кроме того, 87 постановление правительства акцентирует внимание на необходимости использования современных технологий и методов в архитектурно-инженерном проектировании. Это включает:
- Применение информационных технологий - использование программного обеспечения для проектирования и моделирования.
- Инновационные строительные материалы - применение новых материалов, которые повышают долговечность и энергоэффективность зданий.
- Устойчивое проектирование - создание зданий, которые минимизируют потребление ресурсов и воздействие на окружающую среду.
Таким образом, архитектурно-инженерное проектирование в соответствии с 87 постановлением правительства представляет собой комплексный процесс, который требует внимательного подхода и учета множества факторов. Это позволяет создавать качественные и безопасные объекты, соответствующие современным требованиям и стандартам.
Важным аспектом архитектурно-инженерного проектирования является интеграция различных дисциплин и специальностей. Это позволяет создать гармоничное и функциональное пространство, которое отвечает всем требованиям. Ключевые дисциплины, которые должны быть учтены, включают:
- Архитектура - отвечает за эстетическую и функциональную составляющую зданий.
- Строительная инженерия - фокусируется на прочности и устойчивости конструкций.
- Электротехника - проектирует системы электроснабжения и освещения.
- Системы отопления, вентиляции и кондиционирования (ОВК) - обеспечивают комфортные условия для пользователей.
Современные подходы к архитектурно-инженерному проектированию также включают использование методов проектирования, основанных на жизненном цикле (Life Cycle Assessment, LCA). Это позволяет оценить воздействие проекта на окружающую среду на всех этапах его существования, от разработки до сноса. Важные аспекты LCA включают:
- Оценка ресурсов - анализ потребления материалов и энергии на всех этапах.
- Утилизация отходов - разработка стратегий для минимизации отходов и их переработки.
- Экологические последствия - оценка воздействия на экосистемы и здоровье человека.
Важным элементом успешного проектирования является также соблюдение сроков и бюджета. Для этого используются различные методы управления проектами, такие как:
- Метод критического пути - позволяет определить ключевые задачи, которые влияют на сроки выполнения проекта.
- Анализ рисков - выявление потенциальных проблем и разработка стратегий их минимизации.
- Гибкие методологии - использование подходов, таких как Agile, для адаптации к изменениям в процессе проектирования.
Кроме того, важным аспектом является соблюдение норм и стандартов, касающихся доступности зданий для людей с ограниченными возможностями. Это включает:
- Проектирование безбарьерной среды - создание условий, позволяющих свободно передвигаться и пользоваться зданиями.
- Учет потребностей различных групп пользователей - проектирование с учетом особенностей людей с ограниченными возможностями.
В заключение, архитектурно-инженерное проектирование в соответствии с 87 постановлением правительства требует комплексного подхода, который включает взаимодействие различных дисциплин, соблюдение норм и стандартов, а также использование современных технологий и методов. Это позволяет создавать качественные, безопасные и устойчивые здания, которые отвечают требованиям времени и потребностям общества.
Пояснительная записка
Архитектурно-инженерное проектирование представляет собой сложный и многогранный процесс, который включает в себя создание функциональных, эстетически привлекательных и безопасных зданий и сооружений. Этот процесс требует глубоких знаний в области архитектуры, инженерии, экологии, экономики и многих других дисциплин. Важнейшими аспектами архитектурно-инженерного проектирования являются планирование, проектирование, строительство и эксплуатация объектов.
На первом этапе проектирования происходит формирование концепции будущего объекта. Это включает в себя анализ требований заказчика, изучение местоположения, а также оценку окружающей инфраструктуры. Важно учитывать не только эстетические, но и функциональные аспекты, такие как удобство использования, доступность и безопасность. На этом этапе также разрабатываются предварительные эскизы и схемы, которые помогают визуализировать идеи и концепции.
Следующим этапом является разработка архитектурного проекта. Этот процесс включает в себя создание детализированных чертежей, которые отражают все аспекты будущего здания: планировки, фасады, разрезы и другие элементы. Архитектурный проект должен соответствовать действующим строительным нормам и правилам, а также учитывать требования по энергоэффективности и устойчивому развитию.
После завершения архитектурного проектирования начинается этап инженерного проектирования. Он включает в себя разработку систем жизнеобеспечения, таких как водоснабжение, канализация, отопление, вентиляция и электроснабжение. Инженеры должны учитывать не только технические характеристики, но и экономические аспекты, такие как стоимость материалов и оборудования, а также эксплуатационные расходы.
Важным аспектом архитектурно-инженерного проектирования является интеграция всех систем и компонентов в единое целое. Это требует тесного сотрудничества между архитекторами и инженерами, а также другими специалистами, такими как ландшафтные дизайнеры и экологические эксперты. Совместная работа позволяет создать гармоничное и функциональное пространство, которое отвечает всем требованиям заказчика и современным стандартам.
На этапе подготовки проектной документации происходит сбор всех необходимых материалов для получения разрешений на строительство. Это включает в себя подготовку технических условий, согласование с местными органами власти и другими заинтересованными сторонами. Важно, чтобы проектная документация была максимально полной и соответствовала всем требованиям, чтобы избежать задержек и проблем в процессе строительства.
После получения всех необходимых разрешений начинается этап строительства. На этом этапе проектировщики продолжают участвовать в процессе, обеспечивая контроль за качеством выполнения работ и соответствием проектной документации. Важно, чтобы все работы выполнялись в соответствии с установленными стандартами и нормами, а также с учетом безопасности труда.
Завершение строительства не означает окончание работы архитекторов и инженеров. После завершения строительства начинается этап эксплуатации объекта. На этом этапе важно проводить регулярные проверки и техническое обслуживание, чтобы обеспечить долговечность и безопасность здания. Также необходимо учитывать изменения в потребностях пользователей и вносить соответствующие изменения в эксплуатацию объекта.
Таким образом, архитектурно-инженерное проектирование представляет собой комплексный процесс, который требует высокой квалификации и профессионализма. Успех проекта зависит от способности команды специалистов работать в едином ключе, учитывать все аспекты и находить оптимальные решения для достижения поставленных целей.
Одним из ключевых аспектов архитектурно-инженерного проектирования является использование современных технологий и программного обеспечения. В последние годы на рынке появились различные инструменты, которые значительно упрощают процесс проектирования и позволяют создавать более точные и детализированные модели. Программное обеспечение для трехмерного моделирования, такое как BIM (Building Information Modeling), позволяет архитекторам и инженерам работать с цифровыми моделями зданий, что способствует более эффективному взаимодействию между всеми участниками проекта.
Технологии BIM обеспечивают возможность интеграции всех данных о проекте в единую информационную модель, что позволяет отслеживать изменения, проводить анализ и оптимизацию проектных решений на всех этапах. Это также способствует более точному расчету стоимости и сроков строительства, что является важным фактором для заказчиков.
Кроме того, современные технологии позволяют учитывать экологические аспекты проектирования. Устойчивое архитектурное проектирование становится все более актуальным, и многие архитекторы стремятся создавать здания, которые минимизируют негативное воздействие на окружающую среду. Это включает в себя использование экологически чистых материалов, внедрение систем энергосбережения и использование возобновляемых источников энергии.
Важным направлением в архитектурно-инженерном проектировании является также создание умных зданий, которые используют современные технологии для повышения комфорта и безопасности пользователей. Умные системы управления позволяют автоматизировать процессы освещения, отопления, вентиляции и безопасности, что делает здания более удобными и эффективными в эксплуатации.
Не менее важным аспектом является соблюдение норм и стандартов, которые регулируют архитектурное проектирование. В разных странах существуют свои строительные кодексы и правила, которые необходимо учитывать на всех этапах проектирования и строительства. Это позволяет обеспечить безопасность и качество зданий, а также защитить интересы пользователей и окружающей среды.
В процессе архитектурно-инженерного проектирования также необходимо учитывать культурные и исторические аспекты. Важно, чтобы новые здания гармонично вписывались в существующую городскую среду и учитывали архитектурные традиции региона. Это требует от проектировщиков глубокого понимания местной культуры и истории, а также способности к творческому подходу.
В заключение, архитектурно-инженерное проектирование — это сложный и многогранный процесс, который требует от специалистов высокой квалификации, креативности и способности к сотрудничеству. Успех проекта зависит от умения команды работать в едином ключе, учитывать все аспекты и находить оптимальные решения для достижения поставленных целей. В условиях быстро меняющегося мира и новых вызовов, таких как изменение климата и рост населения, архитекторы и инженеры должны быть готовы к инновациям и адаптации своих подходов к проектированию.
Схема планировочной организации земельного участка
Архитектурно-инженерное проектирование является важным этапом в процессе создания функционального и эстетически привлекательного пространства на земельном участке. Этот процесс включает в себя множество аспектов, которые необходимо учитывать для достижения оптимального результата.
1. Определение целей проектирования
Перед началом проектирования важно четко определить цели и задачи, которые необходимо решить. Это может включать:
- Создание жилых или коммерческих объектов;
- Разработка общественных пространств;
- Улучшение инфраструктуры;
- Сохранение природных ресурсов и экологии.
2. Исследование участка
На этом этапе необходимо провести детальное исследование земельного участка, включая:
- Геодезические исследования для определения границ и рельефа;
- Геологические исследования для оценки состояния грунта;
- Экологические исследования для выявления природных ресурсов и защиты окружающей среды;
- Анализ существующей инфраструктуры и коммуникаций.
3. Разработка концепции
На основе собранной информации разрабатывается концепция проектирования, которая включает:
- Общие принципы планировки;
- Функциональное зонирование;
- Эстетические решения и архитектурные стили;
- Интеграцию с окружающей средой.
4. Создание проектной документации
Проектная документация включает в себя:
- Архитектурные чертежи;
- Инженерные схемы;
- Спецификации материалов;
- Сметы и графики выполнения работ.
5. Согласование и получение разрешений
Перед началом строительных работ необходимо получить все необходимые разрешения и согласования от местных органов власти. Это может включать:
- Разрешение на строительство;
- Согласование проектной документации;
- Экологические экспертизы;
- Согласование с соседями и заинтересованными сторонами.
6. Реализация проекта
На этапе реализации проекта важно следить за качеством выполнения работ и соблюдением сроков. Это включает:
- Контроль за строительными работами;
- Координацию действий подрядчиков;
- Проведение промежуточных проверок и экспертиз;
- Устранение возможных недостатков и проблем.
7. Завершение проекта и ввод в эксплуатацию
После завершения строительных работ необходимо провести финальные проверки и подготовить объект к вводу в эксплуатацию. Это включает:
- Проверку соответствия проектной документации;
- Получение актов приемки;
- Подготовку документации для регистрации объекта;
- Организацию мероприятий по благоустройству территории.
Таким образом, архитектурно-инженерное проектирование представляет собой комплексный процесс, требующий внимательного подхода и учета множества факторов. Каждый этап играет важную роль в создании качественного и функционального пространства на земельном участке.
8. Устойчивое проектирование
Современное архитектурно-инженерное проектирование все чаще ориентируется на принципы устойчивого развития. Это включает в себя:
- Использование экологически чистых и перерабатываемых материалов;
- Энергоэффективные технологии и системы;
- Оптимизация водопользования и управление сточными водами;
- Создание зеленых пространств и сохранение биологического разнообразия.
9. Инновационные технологии в проектировании
С развитием технологий архитектурно-инженерное проектирование стало более эффективным и точным. Внедрение новых технологий включает:
- Использование программного обеспечения для 3D-моделирования;
- Применение виртуальной и дополненной реальности для визуализации проектов;
- Автоматизацию процессов проектирования и строительства;
- Интеграцию «умных» технологий в здания и инфраструктуру.
10. Участие общественности
Важным аспектом современного проектирования является вовлечение общественности в процесс. Это может включать:
- Проведение общественных слушаний и консультаций;
- Сбор мнений и предложений от жителей;
- Учет интересов различных групп населения;
- Создание платформ для обсуждения и обратной связи.
11. Оценка и мониторинг
После завершения проекта важно проводить оценку его эффективности и воздействия на окружающую среду. Это включает:
- Мониторинг использования ресурсов;
- Оценку удовлетворенности пользователей;
- Анализ воздействия на экосистему;
- Корректировку проектных решений на основе полученных данных.
12. Будущее архитектурно-инженерного проектирования
С учетом глобальных вызовов, таких как изменение климата и рост населения, архитектурно-инженерное проектирование будет продолжать эволюционировать. Ожидается, что в будущем:
- Увеличится внимание к устойчивым и «умным» городам;
- Развиваться будут технологии, способствующие снижению углеродного следа;
- Участие общественности станет стандартом в проектировании;
- Инновации в области материалов и технологий будут определять новые подходы к проектированию.
Таким образом, архитектурно-инженерное проектирование представляет собой динамичную и многогранную область, которая требует постоянного обновления знаний и навыков. Успех в этой сфере зависит от способности адаптироваться к изменениям и учитывать интересы всех участников процесса.
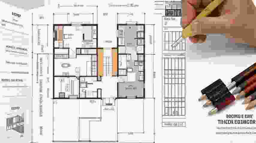
Объемно-планировочные и архитектурные решения
Архитектурно-инженерное проектирование представляет собой сложный и многогранный процесс, который включает в себя создание объемно-планировочных и архитектурных решений. Эти решения формируют основу для будущих зданий и сооружений, определяя их функциональность, эстетические качества и соответствие современным требованиям. Важность объемно-планировочных решений заключается в том, что они не только определяют внешний вид здания, но и влияют на его внутреннюю организацию, удобство использования и взаимодействие с окружающей средой.
Объемно-планировочные решения включают в себя разработку схемы расположения помещений, их размеров и взаимосвязей. На этом этапе проектировщики должны учитывать множество факторов, таких как назначение здания, его местоположение, климатические условия, а также требования к безопасности и доступности. Важно, чтобы проектировщики работали в тесном сотрудничестве с инженерами, чтобы обеспечить интеграцию всех систем здания, включая электрические, сантехнические и вентиляционные.
Архитектурные решения, в свою очередь, касаются эстетических и функциональных аспектов здания. Это включает в себя выбор материалов, цветовых решений, форм и текстур, которые будут использоваться в строительстве. Архитекторы должны учитывать не только современные тенденции в дизайне, но и культурные и исторические контексты, в которых будет находиться здание. Например, в исторических районах может потребоваться соблюдение определенных архитектурных стилей, чтобы новое здание гармонично вписывалось в существующую застройку.
При разработке объемно-планировочных и архитектурных решений также необходимо учитывать экологические аспекты. Устойчивое проектирование становится все более актуальным, и архитекторы должны стремиться к созданию зданий, которые минимизируют негативное воздействие на окружающую среду. Это может включать использование экологически чистых материалов, внедрение систем энергосбережения и оптимизацию природного освещения.
В процессе проектирования важно также учитывать потребности будущих пользователей. Это включает в себя создание комфортных и функциональных пространств, которые будут удовлетворять различные потребности жильцов или работников. Например, в жилых зданиях необходимо предусмотреть удобные планировки квартир, а в офисных – эффективные рабочие пространства, способствующие продуктивности.
Одним из ключевых этапов в разработке объемно-планировочных и архитектурных решений является создание концептуальных эскизов и моделей. Это позволяет визуализировать идеи и оценить их жизнеспособность еще до начала строительных работ. Современные технологии, такие как 3D-моделирование и виртуальная реальность, значительно упрощают этот процесс, позволяя проектировщикам и клиентам лучше понимать, как будет выглядеть конечный результат.
Кроме того, на этапе проектирования важно учитывать нормативные требования и стандарты, которые регулируют строительство. Это включает в себя соблюдение строительных норм и правил, а также получение необходимых разрешений и согласований. Проектировщики должны быть в курсе всех актуальных изменений в законодательстве, чтобы избежать возможных проблем в будущем.
Таким образом, объемно-планировочные и архитектурные решения являются основополагающими элементами архитектурно-инженерного проектирования. Они требуют комплексного подхода, учитывающего множество факторов, от функциональности и эстетики до экологичности и соблюдения нормативных требований. Важно, чтобы все участники процесса работали в команде, стремясь к созданию качественных и устойчивых зданий, которые будут служить людям на протяжении многих лет.
Важным аспектом объемно-планировочных решений является зонирование пространства. Это процесс, в ходе которого проектировщики определяют, какие функции будут выполняться в различных частях здания. Зонирование может быть как функциональным, так и эстетическим. Например, в жилых комплексах важно отделить зоны отдыха от рабочих, а в офисных зданиях – создать отдельные пространства для переговоров и открытых рабочих мест. Правильное зонирование способствует не только удобству, но и повышению продуктивности пользователей.
При проектировании также необходимо учитывать доступность зданий для людей с ограниченными возможностями. Это включает в себя создание безбарьерной среды, которая позволяет всем пользователям свободно перемещаться по зданию. Архитекторы должны предусмотреть пандусы, лифты и другие элементы, которые обеспечивают комфортный доступ к различным уровням и помещениям.
Современные технологии играют значительную роль в архитектурно-инженерном проектировании. Использование программного обеспечения для проектирования, таких как BIM (Building Information Modeling), позволяет создавать более точные и детализированные модели зданий. Это не только упрощает процесс проектирования, но и позволяет выявлять потенциальные проблемы на ранних стадиях, что снижает риски и затраты на этапе строительства.
Кроме того, технологии позволяют интегрировать системы «умного дома», которые обеспечивают автоматизацию различных процессов в здании. Это может включать управление освещением, отоплением, вентиляцией и другими системами, что не только повышает комфорт, но и способствует экономии ресурсов. Архитекторы должны быть в курсе последних тенденций в области технологий, чтобы предлагать своим клиентам современные и эффективные решения.
Не менее важным аспектом является взаимодействие с клиентами на всех этапах проектирования. Архитекторы должны активно слушать и учитывать пожелания заказчиков, чтобы создать пространство, которое будет соответствовать их ожиданиям. Это требует не только профессиональных навыков, но и умения вести диалог, объяснять свои решения и предлагать альтернативные варианты.
В процессе проектирования также важно учитывать культурные и социальные аспекты. Архитекторы должны быть внимательны к контексту, в котором будет находиться здание, и учитывать местные традиции и обычаи. Это может включать в себя выбор материалов, форм и цветовых решений, которые будут гармонично сочетаться с окружающей средой и культурным наследием региона.
В заключение, объемно-планировочные и архитектурные решения являются неотъемлемой частью архитектурно-инженерного проектирования. Они требуют комплексного подхода, учитывающего множество факторов, от функциональности и эстетики до технологий и культурных контекстов. Успешное проектирование возможно только при условии тесного сотрудничества всех участников процесса, что позволяет создавать качественные и устойчивые здания, которые будут служить людям на протяжении многих лет.
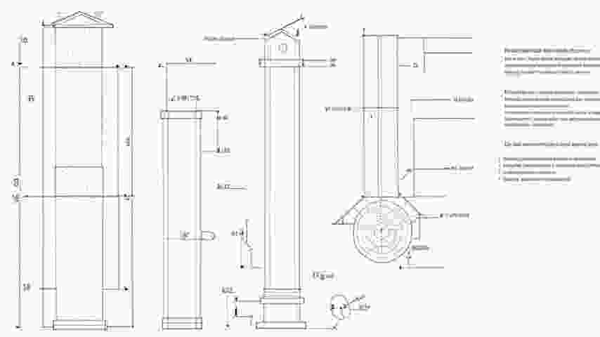
Конструктивные решения
Архитектурно-инженерное проектирование представляет собой сложный и многогранный процесс, который включает в себя множество аспектов, связанных с созданием функциональных, эстетически привлекательных и безопасных зданий и сооружений. Важным элементом этого процесса являются конструктивные решения, которые определяют, как будет реализована архитектурная концепция на практике.
Конструктивные решения охватывают выбор материалов, технологий и методов строительства, а также проектирование несущих и ограждающих конструкций. Они должны учитывать не только эстетические требования, но и функциональные, экономические и экологические аспекты. Важно, чтобы конструктивные решения были оптимальными, обеспечивая необходимую прочность и устойчивость зданий при минимальных затратах.
Одним из ключевых этапов в разработке конструктивных решений является анализ нагрузок, действующих на здание. Это включает в себя как постоянные нагрузки (собственный вес конструкций, оборудование), так и временные (ветровые, снеговые, сейсмические). На основе этого анализа разрабатываются схемы распределения нагрузок и выбираются соответствующие материалы и конструкции.
При проектировании конструктивных решений необходимо учитывать следующие факторы:
- Тип здания: жилые, коммерческие, промышленные и т.д.
- Климатические условия: температура, влажность, ветровые нагрузки.
- Геологические условия: тип грунта, уровень грунтовых вод.
- Экономические аспекты: стоимость материалов и работ, сроки строительства.
- Экологические требования: использование устойчивых и безопасных материалов.
Выбор конструктивных решений также зависит от архитектурной концепции. Например, для зданий с большими открытыми пространствами могут использоваться стальные или железобетонные каркасы, которые обеспечивают необходимую жесткость и устойчивость. В то же время, для более традиционных зданий могут быть выбраны кирпичные или каменные конструкции, которые придают им характерный внешний вид.
Современные технологии и материалы открывают новые возможности для архитекторов и инженеров. Например, использование композитных материалов позволяет создавать легкие и прочные конструкции, которые могут значительно снизить нагрузку на фундамент. Также активно применяются технологии 3D-печати, которые позволяют быстро и эффективно создавать сложные элементы зданий.
Важным аспектом конструктивных решений является также обеспечение безопасности зданий. Это включает в себя проектирование систем защиты от пожара, сейсмической устойчивости, а также защиту от воздействия внешних факторов, таких как ветер и осадки. Все эти аспекты должны быть учтены на этапе проектирования, чтобы избежать проблем в процессе эксплуатации.
Таким образом, конструктивные решения в архитектурно-инженерном проектировании играют ключевую роль в создании безопасных, функциональных и эстетически привлекательных зданий. Они требуют комплексного подхода и учета множества факторов, что делает процесс проектирования сложным, но в то же время увлекательным.
Одним из современных направлений в области конструктивных решений является применение BIM-технологий (Building Information Modeling). Эти технологии позволяют создавать трехмерные модели зданий, которые содержат всю необходимую информацию о конструкциях, материалах и инженерных системах. Использование BIM позволяет значительно повысить точность проектирования, упростить координацию между различными специалистами и сократить время на внесение изменений в проект.
В рамках BIM-технологий можно также проводить анализ различных сценариев эксплуатации здания, что позволяет заранее выявить потенциальные проблемы и оптимизировать конструктивные решения. Например, можно смоделировать поведение здания при различных нагрузках, что поможет выбрать наиболее эффективные решения для обеспечения его устойчивости и долговечности.
Еще одним важным аспектом конструктивных решений является выбор фундамента. Фундамент должен быть спроектирован с учетом геологических условий и нагрузок, действующих на здание. Существуют различные типы фундаментов, такие как ленточные, плитные, столбчатые и свайные, каждый из которых имеет свои преимущества и недостатки. Выбор типа фундамента зависит от характеристик грунта, высоты здания и его назначения.
При проектировании конструктивных решений также необходимо учитывать вопросы энергоэффективности. Современные здания должны соответствовать высоким стандартам по энергосбережению, что требует применения теплоизоляционных материалов, эффективных систем отопления и вентиляции, а также использования возобновляемых источников энергии. Все эти аспекты должны быть интегрированы в конструктивные решения на этапе проектирования.
Не менее важным является вопрос устойчивости зданий к воздействию внешней среды. Это включает в себя защиту от коррозии, воздействий влаги и температурных колебаний. Для этого используются специальные материалы и технологии, такие как антикоррозийные покрытия, гидроизоляция и термоизоляция. Эти меры помогают продлить срок службы конструкций и снизить затраты на их обслуживание.
Важным аспектом является также проектирование систем безопасности, таких как системы противопожарной защиты, эвакуации и охраны. Эти системы должны быть интегрированы в конструктивные решения и соответствовать действующим нормам и стандартам. Например, проектирование эвакуационных выходов должно учитывать максимальное количество людей, которые могут находиться в здании, а также время, необходимое для их безопасного выхода.
В заключение, конструктивные решения в архитектурно-инженерном проектировании являются основой для создания безопасных, функциональных и устойчивых зданий. Они требуют комплексного подхода, учета множества факторов и применения современных технологий. Важно, чтобы архитекторы и инженеры работали в тесном сотрудничестве, чтобы достичь оптимальных результатов и создать здания, которые будут служить людям на протяжении многих лет.
Системы электроснабжения
Архитектурно-инженерное проектирование систем электроснабжения является важным этапом в создании эффективной и надежной инфраструктуры для обеспечения электроэнергией различных объектов. Этот процесс включает в себя множество аспектов, начиная от выбора оборудования и заканчивая проектированием схем распределения электроэнергии.
Одним из ключевых элементов архитектурно-инженерного проектирования является анализ потребностей в электроэнергии. На этом этапе необходимо определить, сколько электроэнергии потребуется для функционирования всех систем и оборудования в здании или на территории. Это включает в себя как постоянные, так и временные нагрузки, которые могут возникнуть в процессе эксплуатации.
После анализа потребностей следует выбор источников электроснабжения. В зависимости от расположения объекта и доступных ресурсов, могут быть выбраны различные источники, такие как:
- централизованные источники (например, электростанции);
- дизельные генераторы;
- солнечные панели;
- ветровые турбины.
Каждый из этих источников имеет свои преимущества и недостатки, которые необходимо учитывать при проектировании. Например, использование возобновляемых источников энергии может снизить затраты на электроэнергию и уменьшить углеродный след, однако требует значительных первоначальных инвестиций и может зависеть от климатических условий.
Следующим этапом является проектирование распределительных сетей. Это включает в себя создание схемы, которая определяет, как электроэнергия будет распределяться от источника к конечным потребителям. Важно учитывать не только расстояние, но и возможные потери энергии, которые могут возникнуть в процессе передачи. Для этого используются различные методы, такие как:
- выбор оптимального сечения проводов;
- определение мест установки трансформаторов;
- разработка схемы защиты от перегрузок и коротких замыканий.
При проектировании распределительных сетей также необходимо учитывать нормативные требования и стандарты, которые регулируют безопасность и надежность электроснабжения. Это включает в себя соблюдение правил по установке оборудования, а также требования к его эксплуатации и обслуживанию.
Не менее важным аспектом является интеграция систем управления. Современные системы электроснабжения часто включают в себя автоматизированные системы управления, которые позволяют мониторить и управлять потреблением электроэнергии в реальном времени. Это может включать в себя:
- системы диспетчеризации;
- умные счетчики;
- системы управления нагрузкой.
Эти технологии помогают оптимизировать потребление электроэнергии, снижать затраты и повышать общую эффективность системы. Важно, чтобы проектировщики учитывали возможность интеграции таких систем на этапе проектирования, чтобы избежать дополнительных затрат на модернизацию в будущем.
Кроме того, архитектурно-инженерное проектирование должно учитывать экологические аспекты. Это включает в себя оценку воздействия на окружающую среду, выбор экологически чистых технологий и материалов, а также разработку решений, направленных на снижение негативного влияния на природу. Например, использование солнечных панелей и других возобновляемых источников энергии может значительно снизить углеродный след объекта.
В заключение, архитектурно-инженерное проектирование систем электроснабжения является многогранным процессом, который требует комплексного подхода и учета множества факторов. От правильного выбора оборудования и источников энергии до проектирования распределительных сетей и интеграции современных технологий — все эти аспекты играют ключевую роль в создании эффективной и надежной системы электроснабжения.
Следующим важным аспектом архитектурно-инженерного проектирования систем электроснабжения является выбор оборудования. Это включает в себя трансформаторы, распределительные устройства, кабели и другие компоненты, которые должны соответствовать требованиям по мощности, надежности и безопасности. При выборе оборудования необходимо учитывать:
- технические характеристики;
- срок службы;
- стоимость;
- возможности обслуживания и ремонта.
Также важно учитывать совместимость оборудования с существующими системами и возможность его интеграции в будущие проекты. Например, если планируется расширение системы электроснабжения, необходимо заранее предусмотреть возможность подключения дополнительных источников энергии или увеличения мощности.
При проектировании систем электроснабжения также следует уделить внимание безопасности. Это включает в себя разработку мер по защите от перегрузок, коротких замыканий и других аварийных ситуаций. Важно предусмотреть установку защитных устройств, таких как автоматические выключатели и предохранители, которые помогут предотвратить повреждение оборудования и обеспечить безопасность пользователей.
Кроме того, необходимо учитывать пожарную безопасность. Все электрические установки должны соответствовать требованиям пожарной безопасности, что включает в себя использование огнестойких материалов, правильное размещение проводки и установку систем автоматического пожаротушения. Проектировщики должны работать в тесном сотрудничестве с пожарными службами и соблюдать все действующие нормы и правила.
Не менее важным является обслуживание и эксплуатация систем электроснабжения. На этапе проектирования необходимо предусмотреть удобные условия для доступа к оборудованию, чтобы обеспечить его регулярное обслуживание и ремонт. Это может включать в себя создание специальных проходов, установку люков и других элементов, которые облегчают доступ к электрическим установкам.
Также стоит обратить внимание на документацию, которая должна сопровождать проект. Это включает в себя схемы, инструкции по эксплуатации и обслуживанию, а также протоколы испытаний и проверки оборудования. Наличие полной и актуальной документации поможет избежать ошибок в процессе эксплуатации и упростит работу обслуживающего персонала.
Важным аспектом является обучение персонала, который будет заниматься эксплуатацией и обслуживанием систем электроснабжения. Необходимо проводить регулярные тренинги и семинары, чтобы сотрудники были в курсе новых технологий и методов работы. Это поможет повысить уровень безопасности и эффективности работы системы.
В заключение, архитектурно-инженерное проектирование систем электроснабжения требует комплексного подхода и учета множества факторов. От выбора оборудования и проектирования распределительных сетей до обеспечения безопасности и удобства эксплуатации — все эти аспекты играют ключевую роль в создании эффективной и надежной системы электроснабжения. Успешная реализация проекта зависит от грамотного взаимодействия всех участников процесса, включая архитекторов, инженеров, подрядчиков и заказчиков.
системы водоснабжения
Архитектурно-инженерное проектирование систем водоснабжения является важным этапом в создании эффективной и надежной инфраструктуры для обеспечения населения и промышленных объектов водой. Этот процесс включает в себя множество аспектов, начиная от анализа потребностей и заканчивая разработкой детальных чертежей и спецификаций.
Первым шагом в проектировании систем водоснабжения является анализ потребностей. На этом этапе необходимо определить объемы потребления воды, которые могут варьироваться в зависимости от типа застройки, численности населения и специфики использования объектов. Для жилых районов, например, расчет потребления может основываться на среднем показателе потребления воды на душу населения, который составляет около 150-200 литров в день. В то же время для промышленных объектов потребление может значительно превышать эти значения.
После определения потребностей следует изучение источников водоснабжения. Это может быть как подземное, так и поверхностное водоснабжение. Важно оценить качество воды, доступность источников, а также возможность их эксплуатации в долгосрочной перспективе. На этом этапе также проводится анализ существующих систем водоснабжения, если таковые имеются, и их возможности по удовлетворению новых потребностей.
Следующим этапом является разработка концепции системы водоснабжения. Это включает в себя выбор схемы водоснабжения, которая может быть централизованной или децентрализованной. Централизованная система предполагает наличие одного или нескольких крупных источников, откуда вода распределяется по сети, тогда как децентрализованная система может включать в себя локальные источники, такие как колодцы или артезианские скважины.
При проектировании системы водоснабжения также необходимо учитывать топографические и геологические условия местности. Эти факторы могут существенно влиять на выбор трасс для трубопроводов, расположение насосных станций и резервуаров, а также на методы прокладки коммуникаций. Например, в гористой местности может потребоваться использование насосов для преодоления высотных перепадов, что увеличивает стоимость и сложность системы.
На этапе проектирования также важно учитывать экологические аспекты. Это включает в себя оценку воздействия на окружающую среду, защиту водоемов от загрязнения и соблюдение норм и стандартов, установленных законодательством. Проектировщики должны предусмотреть меры по минимизации негативного воздействия на экосистему, такие как создание защитных зон вокруг источников водоснабжения и использование технологий, снижающих уровень загрязнения.
После завершения концептуального проектирования начинается разработка детальных проектных решений. На этом этапе создаются чертежи, схемы и спецификации, которые включают в себя все элементы системы: трубопроводы, насосные станции, резервуары, фильтры и другие компоненты. Важно, чтобы проект был выполнен с учетом всех норм и стандартов, а также с использованием современных технологий и материалов, что обеспечит долговечность и надежность системы.
Кроме того, проектировщики должны учитывать экономические аспекты проектирования. Это включает в себя оценку стоимости строительства, эксплуатации и обслуживания системы водоснабжения. Важно провести анализ затрат и выгод, чтобы определить наиболее эффективные решения, которые обеспечат оптимальное соотношение цены и качества.
На завершающем этапе проектирования осуществляется подготовка документации для получения разрешений на строительство. Это включает в себя подготовку проектной документации, которая должна соответствовать требованиям местных органов власти и экологическим нормам. Проектировщики должны быть готовы к возможным корректировкам и доработкам, которые могут потребоваться в процессе согласования.
После получения всех необходимых разрешений начинается этап строительства системы водоснабжения. На этом этапе важно обеспечить строгий контроль за выполнением проектных решений и соблюдением технологий. Строительство включает в себя прокладку трубопроводов, установку насосных станций, монтаж резервуаров и других элементов системы. Важно, чтобы все работы выполнялись квалифицированными специалистами, что позволит избежать ошибок и обеспечить высокое качество выполнения.
В процессе строительства также необходимо проводить мониторинг качества материалов и оборудования, используемого в системе. Это включает в себя проверку сертификатов, испытания на прочность и устойчивость к коррозии, а также соответствие стандартам безопасности. Использование качественных материалов и оборудования является залогом долговечности и надежности системы водоснабжения.
После завершения строительных работ наступает этап пусконаладочных работ. На этом этапе осуществляется проверка всех систем и узлов на работоспособность. Проводятся испытания на герметичность трубопроводов, проверка работы насосов, а также тестирование систем управления. Важно выявить и устранить возможные недостатки до ввода системы в эксплуатацию, чтобы избежать проблем в будущем.
После успешного завершения пусконаладочных работ система водоснабжения вводится в эксплуатацию. На этом этапе важно обеспечить обучение персонала, который будет отвечать за эксплуатацию и обслуживание системы. Это включает в себя обучение работе с оборудованием, правилам безопасности и методам диагностики и устранения неисправностей.
Кроме того, необходимо разработать план технического обслуживания системы водоснабжения. Это включает в себя регулярные проверки, очистку фильтров, обслуживание насосов и трубопроводов, а также планирование мероприятий по ремонту и модернизации системы. Регулярное техническое обслуживание позволяет продлить срок службы системы и обеспечить ее надежную работу.
Важным аспектом является мониторинг и управление системой водоснабжения в процессе эксплуатации. Современные технологии позволяют внедрять системы автоматизации, которые обеспечивают контроль за расходом воды, давлением в трубопроводах и состоянием оборудования. Это позволяет оперативно реагировать на возможные аварийные ситуации и минимизировать потери воды.
Также стоит отметить, что инновационные технологии играют важную роль в проектировании и эксплуатации систем водоснабжения. Например, использование систем удаленного мониторинга и управления позволяет значительно повысить эффективность работы системы. Внедрение новых материалов, таких как композитные трубы, также способствует снижению затрат на обслуживание и увеличению срока службы системы.
В заключение, архитектурно-инженерное проектирование систем водоснабжения требует комплексного подхода, учитывающего множество факторов, таких как потребности пользователей, экологические аспекты, экономические условия и современные технологии. Каждый этап проектирования и строительства имеет свои особенности и требует внимательного подхода, что в конечном итоге обеспечивает создание надежной и эффективной системы водоснабжения, способной удовлетворить потребности населения и промышленности.
системы водоотведения
Системы водоотведения играют ключевую роль в архитектурно-инженерном проектировании, обеспечивая эффективное удаление сточных вод и предотвращая затопление территорий. Проектирование таких систем требует комплексного подхода, учитывающего как технические, так и экологические аспекты. Важно понимать, что системы водоотведения должны быть интегрированы в общую инфраструктуру здания и его окружения.
При проектировании систем водоотведения необходимо учитывать несколько основных факторов:
- Тип здания и его назначение: Разные типы зданий (жилые, коммерческие, промышленные) имеют различные требования к системам водоотведения. Например, в жилых домах достаточно стандартных систем, тогда как в промышленных объектах могут потребоваться более сложные решения.
- Географические и климатические условия: В зависимости от региона, в котором расположено здание, могут варьироваться требования к системам водоотведения. В районах с высоким уровнем осадков необходимо предусмотреть дополнительные меры по отведению воды.
- Нормативные требования: Проектирование систем водоотведения должно соответствовать действующим строительным нормам и правилам, которые могут различаться в зависимости от страны и региона.
- Экологические аспекты: Важно учитывать влияние систем водоотведения на окружающую среду. Это включает в себя минимизацию загрязнения водоемов и использование технологий, способствующих очистке сточных вод.
Процесс проектирования систем водоотведения можно разделить на несколько этапов:
- Исследование и анализ: На этом этапе проводятся геодезические и гидрологические исследования, которые помогают определить уровень грунтовых вод, тип почвы и другие важные параметры.
- Разработка концепции: На основе собранных данных разрабатывается концепция системы водоотведения, которая включает в себя выбор типа системы (открытая, закрытая, комбинированная) и ее основных элементов.
- Проектирование: На этом этапе создаются детализированные чертежи и схемы, которые включают в себя расположение трубопроводов, колодцев, насосных станций и других элементов системы.
- Согласование и утверждение: Проект должен быть согласован с соответствующими органами, что может включать в себя получение разрешений и лицензий.
- Строительство и монтаж: После утверждения проекта начинается строительство системы водоотведения, которое должно проводиться в соответствии с проектной документацией.
- Тестирование и ввод в эксплуатацию: После завершения строительства система проходит тестирование, чтобы убедиться в ее работоспособности и соответствии проектным требованиям.
Каждый из этих этапов требует тщательной проработки и внимания к деталям, так как ошибки на любом из них могут привести к серьезным последствиям, включая затопление, загрязнение окружающей среды и дополнительные финансовые затраты.
Одним из ключевых аспектов проектирования систем водоотведения является выбор материалов и технологий, которые будут использоваться. Это решение должно основываться на анализе долговечности, стоимости, доступности и экологичности материалов.
Среди наиболее распространенных материалов для трубопроводов можно выделить:
- ПВХ (поливинилхлорид): Легкий, устойчивый к коррозии и химическим веществам, ПВХ широко используется в системах водоотведения. Он также обладает хорошими гидравлическими свойствами.
- ПП (полипропилен): Этот материал отличается высокой прочностью и устойчивостью к высоким температурам, что делает его идеальным для систем, где возможны агрессивные сточные воды.
- Металлические трубы: Стальные и чугунные трубы используются в системах водоотведения благодаря своей прочности, но требуют дополнительной защиты от коррозии.
- Бетон: Бетонные конструкции, такие как колодцы и резервуары, обеспечивают долговечность и надежность, но могут быть подвержены трещинам и требуют качественного ухода.
При выборе технологии проектирования также важно учитывать:
- Гидравлический расчет: Определение необходимого диаметра труб, уклона и других параметров для обеспечения эффективного отведения сточных вод.
- Системы очистки: В зависимости от типа сточных вод могут потребоваться различные системы очистки, такие как септики, биологические очистные сооружения или системы фильтрации.
- Автоматизация: Внедрение автоматизированных систем управления может повысить эффективность работы систем водоотведения и снизить затраты на обслуживание.
Не менее важным аспектом является интеграция систем водоотведения с другими инженерными системами здания. Это включает в себя:
- Системы водоснабжения: Важно, чтобы системы водоотведения и водоснабжения были правильно спроектированы и согласованы, чтобы избежать перекрестного загрязнения.
- Электроснабжение: Для насосных станций и систем автоматизации требуется надежное электроснабжение, что также должно быть учтено на этапе проектирования.
- Ландшафтный дизайн: Системы водоотведения должны быть интегрированы в ландшафтный дизайн, чтобы избежать негативного воздействия на окружающую среду и обеспечить эстетическую привлекательность.
В заключение, проектирование систем водоотведения — это сложный и многогранный процесс, который требует глубоких знаний и опыта. Успешное проектирование не только обеспечивает эффективное удаление сточных вод, но и способствует устойчивому развитию и защите окружающей среды.
системы отопление вентиляции и кондиционирования воздуха
Архитектурно-инженерное проектирование систем отопления, вентиляции и кондиционирования воздуха (ОВК) является важным этапом в создании комфортной и безопасной среды для проживания и работы. Этот процесс включает в себя множество аспектов, начиная от анализа требований к помещению и заканчивая выбором оборудования и его размещением. Важно учитывать не только технические характеристики, но и архитектурные особенности здания, чтобы обеспечить гармоничное сочетание функциональности и эстетики.
Первым шагом в проектировании систем ОВК является анализ требований. На этом этапе необходимо определить, какие условия необходимо создать в помещениях. Это может включать в себя:
- температурный режим;
- влажность воздуха;
- качество воздуха;
- шумовые характеристики;
- энергетическую эффективность.
Для этого проводятся замеры и анализируются данные о климатических условиях региона, а также учитываются особенности эксплуатации здания. Например, в офисных помещениях могут быть более строгие требования к качеству воздуха, чем в складских помещениях.
Следующим этапом является выбор системы отопления. Существует множество различных систем, каждая из которых имеет свои преимущества и недостатки. Наиболее распространенные из них:
- водяное отопление;
- электрическое отопление;
- газовое отопление;
- тепловые насосы;
- котлы на биомассе.
Выбор системы зависит от множества факторов, включая доступность ресурсов, стоимость установки и эксплуатации, а также требования к экологии. Например, в регионах с холодным климатом часто выбирают водяное отопление, так как оно обеспечивает более равномерное распределение тепла.
После выбора системы отопления необходимо перейти к проектированию вентиляции. Вентиляция играет ключевую роль в обеспечении комфортного микроклимата в помещениях. Существует два основных типа вентиляции:
- естественная вентиляция;
- механическая вентиляция.
Естественная вентиляция основана на использовании природных потоков воздуха, тогда как механическая вентиляция требует установки вентиляторов и воздуховодов. Важно учитывать, что механическая вентиляция может быть более эффективной, но также требует больших затрат на установку и эксплуатацию.
При проектировании вентиляции необходимо учитывать потребности пользователей и особенности помещения. Например, в помещениях с высокой заполняемостью, таких как конференц-залы или спортивные комплексы, требуется более мощная система вентиляции для обеспечения необходимого обмена воздуха.
Следующий этап — это проектирование систем кондиционирования. Кондиционирование воздуха необходимо для поддержания комфортной температуры и влажности в помещениях, особенно в жаркие летние месяцы. Системы кондиционирования могут быть:
- централизованные;
- локальные;
- мульти-сплит-системы;
- VRF-системы.
Выбор системы кондиционирования зависит от размеров и назначения помещения, а также от бюджета. Например, для небольших офисов могут быть достаточно локальных систем, тогда как для крупных зданий лучше подойдут централизованные решения.
После выбора систем отопления, вентиляции и кондиционирования, следующим важным этапом является разработка проектной документации. Этот процесс включает в себя создание чертежей, схем и спецификаций, которые будут использоваться при установке систем. Важно, чтобы проектная документация была максимально детализированной и соответствовала действующим строительным нормам и правилам.
В проектной документации должны быть указаны:
- расположение оборудования;
- размеры и типы воздуховодов;
- схемы подключения;
- параметры систем отопления и кондиционирования;
- планировка помещений с учетом размещения систем.
Также необходимо учитывать энергетическую эффективность проектируемых систем. Это включает в себя выбор оборудования с высоким коэффициентом полезного действия (КПД) и применение современных технологий, таких как автоматизация и управление системами через интеллектуальные контроллеры. Энергетическая эффективность не только снижает эксплуатационные расходы, но и способствует уменьшению негативного воздействия на окружающую среду.
Следующим шагом является интеграция систем ОВК с другими инженерными системами здания. Это может включать в себя:
- электроснабжение;
- водоснабжение и канализацию;
- системы безопасности;
- системы автоматизации зданий.
Интеграция позволяет обеспечить более эффективное функционирование всех систем и улучшить общую эксплуатацию здания. Например, системы автоматизации могут управлять работой отопления и кондиционирования в зависимости от температуры и влажности, что позволяет значительно экономить ресурсы.
После завершения проектирования и интеграции систем, наступает этап монтажа и наладки. Этот процесс требует высокой квалификации специалистов, так как неправильная установка может привести к снижению эффективности работы систем и увеличению эксплуатационных расходов. Важно, чтобы монтажные работы проводились в соответствии с проектной документацией и действующими стандартами.
После завершения монтажа необходимо провести пусконаладочные работы. Это включает в себя:
- проверку работоспособности всех систем;
- настройку параметров работы;
- тестирование на соответствие проектным требованиям;
- обучение персонала по эксплуатации систем.
Пусконаладочные работы позволяют выявить и устранить возможные недостатки, а также убедиться в том, что системы работают эффективно и безопасно.
После успешного завершения всех этапов проектирования, монтажа и наладки, системы ОВК могут быть введены в эксплуатацию. Однако это не означает, что работа завершена. Важно проводить регулярное техническое обслуживание и мониторинг работы систем, чтобы обеспечить их надежную и эффективную работу на протяжении всего срока службы.
Техническое обслуживание включает в себя:
- проверку и очистку фильтров;
- проверку герметичности воздуховодов;
- проверку работы оборудования;
- замену изношенных деталей;
- проведение профилактических мероприятий.
Таким образом, архитектурно-инженерное проектирование систем отопления, вентиляции и кондиционирования воздуха — это комплексный процесс, который требует внимательного подхода на каждом этапе. От правильного проектирования зависит не только комфорт пользователей, но и эффективность работы систем, а также их влияние на окружающую среду.
слаботочные системы
Слаботочные системы играют важную роль в современном архитектурно-инженерном проектировании. Они обеспечивают функциональность и комфорт в зданиях, а также способствуют повышению безопасности и энергоэффективности. Слаботочные системы включают в себя различные технологии и решения, такие как системы видеонаблюдения, охранные сигнализации, системы контроля доступа, а также сети передачи данных и телефонные системы.
При проектировании слаботочных систем необходимо учитывать множество факторов, включая требования заказчика, специфику объекта, а также действующие нормы и стандарты. Важно, чтобы проектирование было интегрировано с другими инженерными системами здания, такими как электроснабжение, вентиляция и отопление.
Этапы проектирования слаботочных систем
- Анализ требований: На этом этапе происходит сбор информации о потребностях заказчика, а также анализ существующих условий. Важно понять, какие функции должны выполнять слаботочные системы, и какие технологии могут быть использованы для их реализации.
- Разработка концепции: На основе собранной информации разрабатывается концепция слаботочных систем. Это включает в себя выбор оборудования, определение его расположения и проектирование схемы подключения.
- Создание проектной документации: На этом этапе разрабатываются все необходимые чертежи и схемы, а также составляются спецификации на оборудование и материалы. Проектная документация должна соответствовать действующим нормам и стандартам.
- Согласование проекта: После завершения проектирования необходимо согласовать проект с заказчиком и другими заинтересованными сторонами. Это может включать в себя получение разрешений и согласований от органов власти.
- Монтаж и наладка: После согласования проекта начинается этап монтажа слаботочных систем. Важно, чтобы монтаж проводился квалифицированными специалистами, а также чтобы проводился контроль качества на всех этапах.
- Тестирование и ввод в эксплуатацию: После завершения монтажа необходимо провести тестирование всех систем, чтобы убедиться в их корректной работе. Ввод в эксплуатацию включает в себя обучение персонала и передачу документации.
Каждый из этих этапов требует внимательного подхода и профессионализма, так как от качества проектирования и монтажа слаботочных систем зависит не только комфорт, но и безопасность пользователей здания.
Требования к проектированию слаботочных систем
Проектирование слаботочных систем должно соответствовать ряду требований, которые обеспечивают их надежность и эффективность. К основным требованиям можно отнести:
- Соответствие нормам и стандартам: Все проектные решения должны соответствовать действующим строительным нормам и правилам, а также стандартам безопасности.
- Энергоэффективность: Системы должны быть спроектированы с учетом энергоэффективности, что позволит снизить эксплуатационные расходы.
- Модульность и масштабируемость: Проектируемые системы должны быть модульными, что позволит легко их расширять и модернизировать в будущем.
- Интеграция с другими системами: Слаботочные системы должны быть интегрированы с другими инженерными системами здания для обеспечения их совместной работы.
- Удобство эксплуатации: Проектирование должно учитывать удобство эксплуатации и обслуживания систем, что позволит минимизировать время на их обслуживание.
Типы слаботочных систем
Существует множество типов слаботочных систем, каждая из которых выполняет свои специфические функции. Рассмотрим основные из них:
- Системы видеонаблюдения: Эти системы обеспечивают мониторинг и запись видеоизображений с камер, установленных в различных зонах здания. Они могут использоваться для повышения безопасности, контроля доступа и мониторинга работы персонала.
- Охранные сигнализации: Системы охранной сигнализации предназначены для защиты объектов от несанкционированного доступа. Они могут включать в себя датчики движения, магнитные контакты на дверях и окнах, а также системы оповещения.
- Системы контроля доступа: Эти системы позволяют управлять доступом к различным зонам здания. Они могут использовать карты доступа, биометрические данные или PIN-коды для идентификации пользователей.
- Системы передачи данных: Включают в себя локальные сети, Wi-Fi, а также системы телефонной связи. Они обеспечивают связь между различными устройствами и пользователями внутри здания.
- Системы автоматизации зданий: Эти системы позволяют управлять различными инженерными системами, такими как освещение, отопление и вентиляция, с помощью центрального контроллера. Это способствует повышению энергоэффективности и комфорта.
Технологические решения для слаботочных систем
При проектировании слаботочных систем важно учитывать современные технологические решения, которые могут повысить их эффективность и надежность. К таким решениям относятся:
- IP-технологии: Использование IP-камер и сетевых устройств позволяет интегрировать видеонаблюдение и другие системы в единую сеть, что упрощает управление и мониторинг.
- Беспроводные технологии: Беспроводные системы контроля доступа и охранной сигнализации позволяют избежать сложных проводок и упростить установку.
- Системы облачного хранения: Облачные решения для хранения данных видеонаблюдения обеспечивают доступ к записям из любой точки мира и позволяют избежать затрат на локальное оборудование.
- Интеллектуальные алгоритмы: Использование алгоритмов машинного обучения и искусственного интеллекта в системах видеонаблюдения позволяет автоматически распознавать события и повышать уровень безопасности.
Интеграция слаботочных систем в архитектурное проектирование
Интеграция слаботочных систем в архитектурное проектирование является ключевым аспектом, который позволяет создать гармоничное и функциональное пространство. На этапе проектирования необходимо учитывать:
- Планировку помещений: Расположение слаботочных систем должно быть согласовано с планировкой помещений, чтобы обеспечить максимальную эффективность их работы.
- Эстетические аспекты: Установка оборудования должна учитывать эстетические требования, чтобы не нарушать общий стиль интерьера.
- Доступность для обслуживания: Все системы должны быть спроектированы так, чтобы обеспечить легкий доступ для обслуживания и ремонта.
Таким образом, проектирование слаботочных систем требует комплексного подхода, который включает в себя как технические, так и эстетические аспекты. Это позволяет создать безопасное, комфортное и функциональное пространство для пользователей.
системы газоснабжения
Архитектурно-инженерное проектирование систем газоснабжения представляет собой комплекс мероприятий, направленных на создание эффективной и безопасной инфраструктуры для доставки газа к потребителям. Этот процесс включает в себя множество этапов, начиная от предварительных исследований и заканчивая реализацией проекта на строительной площадке.
На первом этапе проектирования важно провести анализ потребностей в газоснабжении. Это включает в себя изучение существующих систем, оценку потребления газа в различных секторах, а также прогнозирование будущих потребностей. Важно учитывать как текущие, так и потенциальные изменения в потреблении, которые могут возникнуть в результате роста населения, изменения в экономике или внедрения новых технологий.
Следующим шагом является разработка концепции системы газоснабжения. На этом этапе проектировщики определяют основные параметры системы, такие как тип используемого газа, источники его получения, а также маршруты транспортировки. Важно также учитывать экологические аспекты, такие как минимизация выбросов и влияние на окружающую среду.
После этого начинается проектирование сетевой инфраструктуры. Это включает в себя создание схемы газопроводов, распределительных станций и других элементов системы. Проектировщики должны учитывать множество факторов, таких как рельеф местности, наличие существующих коммуникаций, а также требования к безопасности. Важно, чтобы проект соответствовал действующим нормам и стандартам, что требует тщательной проработки всех деталей.
На этапе проектирования также необходимо провести расчеты, которые включают в себя определение диаметров трубопроводов, расчет давления в системе, а также оценку потерь газа. Эти расчеты позволяют обеспечить надежную и эффективную работу системы, а также минимизировать риски аварийных ситуаций.
Кроме того, проектировщики должны учитывать технические условия для подключения к существующим системам газоснабжения. Это может включать в себя согласование с местными властями, а также получение необходимых разрешений и лицензий. Важно, чтобы все этапы проектирования были документированы и соответствовали требованиям законодательства.
На завершающем этапе проектирования создается проектная документация, которая включает в себя все необходимые чертежи, схемы и расчеты. Эта документация является основой для последующего строительства и должна быть доступна для всех участников проекта. Важно, чтобы проектная документация была понятной и детализированной, что позволит избежать недоразумений и ошибок в процессе реализации.
В процессе архитектурно-инженерного проектирования систем газоснабжения также необходимо учитывать инновационные технологии, которые могут повысить эффективность и безопасность системы. Это может включать в себя использование современных материалов, автоматизацию процессов, а также внедрение систем мониторинга и управления. Такие технологии позволяют не только улучшить качество газоснабжения, но и снизить затраты на эксплуатацию системы.
Таким образом, архитектурно-инженерное проектирование систем газоснабжения является сложным и многогранным процессом, который требует высокой квалификации специалистов и тщательной проработки всех деталей. Каждый этап проектирования играет важную роль в создании надежной и эффективной системы, способной удовлетворить потребности населения и обеспечить безопасность газоснабжения.
Важным аспектом архитектурно-инженерного проектирования систем газоснабжения является интеграция с другими инженерными системами. Это включает в себя взаимодействие с системами водоснабжения, электроснабжения, а также системами отопления и вентиляции. Правильная интеграция позволяет оптимизировать работу всех систем, повысить их эффективность и снизить эксплуатационные расходы.
При проектировании необходимо также учитывать потребительские требования. Это может включать в себя спецификации для различных типов потребителей, таких как жилые дома, промышленные предприятия или объекты социальной инфраструктуры. Каждый из этих типов потребителей имеет свои особенности и требования к газоснабжению, которые должны быть учтены на этапе проектирования.
Не менее важным является обеспечение безопасности газоснабжения. Проектировщики должны предусмотреть все возможные риски и разработать меры по их минимизации. Это может включать в себя установку систем автоматического отключения, датчиков утечки газа, а также создание аварийных планов. Безопасность должна быть приоритетом на всех этапах проектирования и эксплуатации системы.
В процессе проектирования также необходимо учитывать экономические аспекты. Это включает в себя оценку стоимости строительства и эксплуатации системы, а также анализ возможных источников финансирования. Проектировщики должны стремиться к созданию экономически эффективных решений, которые обеспечат максимальную отдачу от инвестиций.
После завершения проектирования наступает этап реализации проекта. Это включает в себя строительство газопроводов, установку оборудования и наладку систем. Важно, чтобы все работы выполнялись в соответствии с проектной документацией и действующими нормами. На этом этапе также проводятся контрольные проверки, которые позволяют выявить и устранить возможные недостатки.
После завершения строительства система газоснабжения проходит пусконаладочные работы. Это включает в себя тестирование всех компонентов системы, проверку их работоспособности и настройку оборудования. Пусконаладочные работы являются критически важными для обеспечения надежной и безопасной работы системы в дальнейшем.
После успешного завершения всех этапов проектирования и строительства система газоснабжения вводится в эксплуатацию. На этом этапе важно обеспечить регулярное техническое обслуживание и мониторинг работы системы. Это позволяет выявлять и устранять возможные проблемы на ранних стадиях, а также поддерживать высокую эффективность работы системы.
В заключение, архитектурно-инженерное проектирование систем газоснабжения требует комплексного подхода и учета множества факторов. От правильного проектирования зависит не только эффективность работы системы, но и безопасность потребителей. Поэтому важно, чтобы все этапы проектирования и реализации выполнялись высококвалифицированными специалистами с учетом современных технологий и стандартов.
Технологические решения
Архитектурно-инженерное проектирование представляет собой сложный и многогранный процесс, который включает в себя создание функциональных, эстетически привлекательных и безопасных зданий и сооружений. В современном мире, где технологии развиваются с невероятной скоростью, применение инновационных решений становится неотъемлемой частью проектирования. В этом контексте важно рассмотреть различные технологические решения, которые могут значительно улучшить качество проектирования и строительства.
Одним из ключевых аспектов архитектурно-инженерного проектирования является использование программного обеспечения для моделирования. Современные CAD-системы (Computer-Aided Design) позволяют архитекторам и инженерам создавать трехмерные модели зданий, что значительно упрощает процесс визуализации и анализа проектируемых объектов. Программные решения, такие как AutoCAD, Revit и ArchiCAD, предоставляют мощные инструменты для проектирования, позволяя интегрировать архитектурные, конструктивные и инженерные решения в единую модель.
Кроме того, информационное моделирование зданий (BIM) стало важным шагом вперед в архитектурно-инженерном проектировании. BIM-технологии позволяют создавать цифровые модели, которые содержат не только геометрическую информацию, но и данные о материалах, стоимости, сроках и других аспектах проекта. Это обеспечивает более эффективное управление проектом на всех его этапах, начиная от концептуального проектирования и заканчивая эксплуатацией здания.
Важным направлением в архитектурно-инженерном проектировании является устойчивое строительство. С учетом глобальных изменений климата и необходимости снижения негативного воздействия на окружающую среду, архитекторы и инженеры все чаще обращаются к экологически чистым материалам и технологиям. Использование возобновляемых источников энергии, таких как солнечные панели и ветряные турбины, а также внедрение систем управления энергопотреблением, позволяет создавать здания, которые не только соответствуют современным стандартам, но и способствуют сохранению экологии.
Также стоит отметить, что инновационные строительные материалы играют важную роль в проектировании. Современные технологии позволяют разрабатывать легкие, прочные и долговечные материалы, которые могут значительно улучшить характеристики зданий. Например, использование композитных материалов, таких как углеродные волокна, позволяет создавать конструкции с высокой прочностью при минимальном весе, что особенно актуально для высотных зданий и мостов.
Не менее важным аспектом является автоматизация и роботизация процессов в строительстве. Внедрение роботизированных систем и автоматизированных технологий позволяет значительно сократить время и затраты на строительство, а также повысить качество выполняемых работ. Например, использование 3D-печати в строительстве позволяет создавать сложные архитектурные формы с высокой точностью и минимальными отходами.
В заключение, технологические решения в архитектурно-инженерном проектировании открывают новые горизонты для создания современных, функциональных и устойчивых зданий. Применение передовых технологий и инновационных материалов позволяет не только улучшить качество проектирования, но и сделать его более эффективным и экологически безопасным.
Важным аспектом архитектурно-инженерного проектирования является интеграция систем умного дома. Современные здания все чаще оснащаются интеллектуальными системами, которые позволяют управлять освещением, отоплением, вентиляцией и другими инженерными системами через единый интерфейс. Это не только повышает комфорт проживания, но и способствует экономии ресурсов. Умные технологии позволяют оптимизировать потребление энергии, что особенно актуально в условиях растущих цен на энергоресурсы.
Также стоит отметить значение коллаборации между различными специалистами в процессе проектирования. Современные проекты требуют участия архитекторов, инженеров, дизайнеров и других профессионалов, которые должны работать в тесном сотрудничестве. Использование облачных технологий и платформ для совместной работы позволяет всем участникам проекта обмениваться данными в реальном времени, что значительно ускоряет процесс принятия решений и уменьшает вероятность ошибок.
Не менее важным является учет культурных и социальных аспектов при проектировании. Архитекторы должны учитывать не только функциональные требования, но и культурные особенности региона, в котором будет построено здание. Это позволяет создавать объекты, которые гармонично вписываются в окружающую среду и отвечают потребностям местного населения. Например, использование традиционных архитектурных элементов может помочь сохранить культурное наследие и создать уникальный облик нового здания.
В последние годы наблюдается рост интереса к модульному строительству, которое позволяет значительно сократить время возведения зданий. Модульные конструкции изготавливаются на заводе и затем собираются на строительной площадке. Это не только ускоряет процесс, но и снижает количество отходов, так как большинство работ выполняется в контролируемых условиях. Модульное строительство также позволяет легко адаптировать проект под изменяющиеся требования заказчика.
Среди новых технологий, которые активно внедряются в архитектурно-инженерное проектирование, можно выделить виртуальную и дополненную реальность. Эти технологии позволяют создавать интерактивные модели зданий, которые можно исследовать в реальном времени. Это дает возможность заказчикам и проектировщикам лучше понять проект и внести изменения на ранних стадиях, что значительно снижает риски и затраты.
Необходимо также упомянуть о безопасности зданий. Современные технологии позволяют интегрировать системы безопасности, такие как видеонаблюдение, контроль доступа и сигнализация, на этапе проектирования. Это обеспечивает защиту как для пользователей, так и для самого здания. Важно, чтобы архитекторы и инженеры учитывали эти аспекты, создавая безопасные и комфортные пространства.
В заключение, архитектурно-инженерное проектирование в современном мире требует применения множества технологических решений, которые помогают создавать качественные, устойчивые и безопасные здания. Инновации в области материалов, технологий и методов проектирования открывают новые возможности для архитекторов и инженеров, позволяя им реализовывать самые смелые идеи и проекты.
Проект организации строительства
Архитектурно-инженерное проектирование является важнейшим этапом в процессе организации строительства. Этот процесс включает в себя разработку концепции здания, его функционального назначения, а также технических решений, которые обеспечивают безопасность, комфорт и эстетическую привлекательность объекта. В рамках архитектурно-инженерного проектирования осуществляется интеграция различных инженерных систем, таких как водоснабжение, отопление, вентиляция и электроснабжение, что позволяет создать гармоничное и эффективное пространство.
На начальном этапе проектирования важно определить основные требования к объекту. Это включает в себя анализ потребностей заказчика, изучение особенностей участка, на котором будет возводиться здание, а также учет местных норм и правил. Важно также провести исследование рынка, чтобы понять, какие решения уже реализованы и какие из них могут быть применены в данном проекте.
Одним из ключевых аспектов архитектурно-инженерного проектирования является создание архитектурного концепта. Этот этап включает в себя разработку эскизов и моделей, которые визуализируют будущий объект. Архитекторы используют различные методы, такие как компьютерное моделирование и 3D-визуализация, чтобы представить, как здание будет выглядеть в реальности. На этом этапе также важно учитывать окружающую среду и интеграцию здания в существующий городской ландшафт.
После утверждения архитектурного концепта начинается работа над инженерными системами. Инженеры разрабатывают схемы и расчеты, которые обеспечивают эффективное функционирование всех систем здания. Это включает в себя проектирование систем отопления, вентиляции и кондиционирования воздуха, а также электроснабжения и водоснабжения. Важно, чтобы все системы были взаимосвязаны и работали в едином комплексе, что требует тщательной координации между архитекторами и инженерами.
На этапе проектирования также необходимо учитывать вопросы устойчивости и энергоэффективности здания. Современные технологии позволяют использовать возобновляемые источники энергии, такие как солнечные панели и системы рекуперации тепла, что значительно снижает эксплуатационные расходы и минимизирует воздействие на окружающую среду. Архитекторы и инженеры должны работать в тесном сотрудничестве, чтобы интегрировать эти технологии в проект.
Кроме того, важным аспектом является соблюдение строительных норм и правил. Каждое здание должно соответствовать требованиям безопасности, что включает в себя проектирование эвакуационных выходов, систем противопожарной безопасности и других мер, направленных на защиту жизни и здоровья людей. На этом этапе также проводятся расчеты нагрузок и устойчивости конструкций, что позволяет избежать возможных проблем в будущем.
После завершения проектирования архитектурно-инженерного решения, проект проходит экспертизу. Это важный этап, на котором проверяются все аспекты проекта, включая соответствие нормам, безопасность и экономическую целесообразность. Экспертиза может занять значительное время, и в процессе могут быть внесены изменения в проект, что требует дополнительной работы со стороны архитекторов и инженеров.
В заключение, архитектурно-инженерное проектирование является сложным и многогранным процессом, который требует высокой квалификации специалистов и тщательной координации между различными участниками проекта. Успех строительства во многом зависит от того, насколько качественно и профессионально будет выполнено проектирование, что в свою очередь определяет функциональность, безопасность и эстетическую привлекательность будущего объекта.
После успешного прохождения экспертизы проект переходит к следующему этапу — подготовке рабочей документации. Этот процесс включает в себя создание детализированных чертежей, спецификаций и расчетов, которые будут использоваться на строительной площадке. Рабочая документация должна быть максимально точной и понятной, чтобы избежать недоразумений и ошибок в процессе строительства.
Рабочие чертежи включают в себя планы этажей, разрезы, фасады, а также схемы инженерных систем. Каждый элемент должен быть четко обозначен, чтобы строители могли легко понять, как реализовать проект. Важно также учитывать, что рабочая документация должна соответствовать всем актуальным строительным нормам и правилам, что требует постоянного контроля со стороны проектировщиков.
На этапе подготовки рабочей документации также происходит взаимодействие с подрядчиками и поставщиками. Это позволяет уточнить детали, связанные с материалами и технологиями, которые будут использоваться в строительстве. Важно, чтобы все участники процесса были вовлечены на этом этапе, так как это поможет избежать проблем в будущем и обеспечит более гладкое выполнение работ.
После завершения рабочей документации начинается этап строительства. На этом этапе архитекторы и инженеры продолжают участвовать в проекте, обеспечивая контроль за выполнением работ и соответствием строительных процессов проектным решениям. Регулярные проверки и инспекции помогают выявить возможные отклонения от проекта и оперативно их исправить.
Важным аспектом на этапе строительства является управление изменениями. В процессе реализации проекта могут возникать ситуации, когда необходимо внести изменения в проектные решения. Это может быть связано с изменением условий на строительной площадке, новыми требованиями заказчика или изменениями в законодательстве. В таких случаях важно, чтобы изменения были документированы и согласованы с всеми заинтересованными сторонами.
По мере завершения строительных работ начинается этап приемки объекта. На этом этапе проводится комплексная проверка всех систем и конструкций, чтобы убедиться, что они соответствуют проектным требованиям и стандартам безопасности. Приемка включает в себя тестирование инженерных систем, проверку качества отделки и соответствие всех элементов здания проекту.
После успешной приемки объекта происходит его ввод в эксплуатацию. На этом этапе заказчик получает все необходимые документы, включая эксплуатационные инструкции и гарантии на выполненные работы. Важно, чтобы все системы здания были должным образом настроены и функционировали в соответствии с проектными решениями.
В заключение, архитектурно-инженерное проектирование — это сложный и многогранный процесс, который требует высокой квалификации и взаимодействия между различными специалистами. Успех проекта зависит от качества проектирования, тщательной подготовки рабочей документации и контроля на всех этапах строительства. Каждый из этих этапов играет важную роль в создании безопасного, функционального и эстетически привлекательного здания, которое будет служить своим пользователям на протяжении многих лет.
Мероприятия по охране окружающей среды
Архитектурно-инженерное проектирование играет ключевую роль в охране окружающей среды, так как именно на этом этапе закладываются основы для устойчивого развития и минимизации негативного воздействия на природу. В процессе проектирования необходимо учитывать множество факторов, которые могут повлиять на экосистему, включая выбор материалов, технологии строительства и планировку территории.
Одним из основных направлений в архитектурно-инженерном проектировании является устойчивое проектирование. Это подход, который направлен на создание зданий и сооружений, способствующих сохранению природных ресурсов и снижению углеродного следа. Устойчивое проектирование включает в себя:
- Использование экологически чистых и перерабатываемых материалов.
- Оптимизацию энергопотребления за счет внедрения современных технологий, таких как солнечные панели и системы рекуперации тепла.
- Создание зеленых крыш и стен, которые способствуют улучшению качества воздуха и увеличению биоразнообразия в городских условиях.
- Проектирование зданий с учетом естественного освещения и вентиляции, что позволяет снизить потребление электроэнергии.
Важным аспектом является также планирование территории. Это включает в себя анализ существующих природных условий, таких как рельеф, водные ресурсы и растительность. Правильное планирование позволяет минимизировать вмешательство в экосистему и сохранить природные ландшафты. Например, при проектировании новых жилых комплексов важно учитывать:
- Сохранение зеленых зон и мест обитания диких животных.
- Управление водными ресурсами, включая дренажные системы и ливневую канализацию.
- Создание общественных пространств, которые способствуют социальной интеграции и активному отдыху.
Кроме того, архитектурно-инженерное проектирование должно учитывать влияние на климат. Изменение климата требует от проектировщиков разработки адаптивных решений, которые помогут зданиям и инфраструктуре противостоять экстремальным погодным условиям. Это может включать:
- Использование материалов, устойчивых к воздействию влаги и высоких температур.
- Проектирование зданий с учетом возможности затопления и других климатических рисков.
- Внедрение систем управления микроклиматом, которые помогут поддерживать комфортные условия внутри зданий.
Важным элементом охраны окружающей среды в архитектурно-инженерном проектировании является интеграция технологий. Современные технологии, такие как Building Information Modeling (BIM), позволяют создавать точные модели зданий и анализировать их воздействие на окружающую среду еще на этапе проектирования. Это дает возможность:
- Оптимизировать проектные решения и снизить количество отходов.
- Проводить симуляции энергопотребления и оценивать экологические последствия.
- Упрощать процесс согласования проектов с экологическими нормами и стандартами.
Еще одним важным аспектом архитектурно-инженерного проектирования является учет жизненного цикла зданий. Это концепция, которая предполагает анализ всех этапов существования здания — от проектирования и строительства до эксплуатации и сноса. Учет жизненного цикла позволяет:
- Оценить экологические последствия на каждом этапе, включая потребление ресурсов и выбросы углерода.
- Разработать стратегии для эффективного управления отходами и переработки материалов.
- Снизить эксплуатационные расходы за счет внедрения энергоэффективных технологий.
В рамках учета жизненного цикла также важно проводить оценку воздействия на окружающую среду (ОВОС). Этот процесс включает в себя:
- Идентификацию потенциальных негативных воздействий на экосистему.
- Разработку мер по минимизации этих воздействий.
- Консультации с заинтересованными сторонами, включая местные сообщества и экологические организации.
Современные архитектурные практики также акцентируют внимание на инновационных решениях, которые способствуют охране окружающей среды. Например, использование умных технологий в зданиях позволяет:
- Автоматизировать управление освещением и климатом, что снижает потребление энергии.
- Внедрять системы мониторинга, которые отслеживают состояние окружающей среды и помогают в принятии решений.
- Создавать «умные» города, где инфраструктура интегрирована с технологиями для повышения качества жизни и снижения воздействия на природу.
Не менее важным является образование и просвещение в области охраны окружающей среды. Архитекторы и инженеры должны быть осведомлены о современных экологических проблемах и решениях. Это включает в себя:
- Участие в семинарах и конференциях по устойчивому проектированию.
- Изучение новых технологий и методов, направленных на охрану окружающей среды.
- Сотрудничество с экологическими организациями для обмена опытом и знаниями.
В заключение, архитектурно-инженерное проектирование является важным инструментом в охране окружающей среды. Устойчивое проектирование, учет жизненного цикла, инновационные технологии и просвещение — все это способствует созданию более безопасной и экологически чистой среды для будущих поколений. Важно, чтобы архитекторы и инженеры продолжали развивать свои навыки и знания, чтобы эффективно справляться с вызовами, которые ставит перед нами современный мир.
Мероприятия по обеспечению пожарной безопасности
Архитектурно-инженерное проектирование играет ключевую роль в обеспечении пожарной безопасности зданий и сооружений. На этапе проектирования важно учитывать множество факторов, которые могут повлиять на безопасность людей и имущества в случае возникновения пожара. В этом контексте необходимо рассмотреть основные аспекты, которые должны быть учтены при проектировании.
1. Выбор материалов
При проектировании зданий необходимо тщательно подбирать строительные материалы, которые обладают огнестойкими свойствами. Это включает в себя:
- Использование негорючих и трудногорючих материалов для стен, перекрытий и кровли.
- Применение огнезащитных составов для обработки деревянных конструкций.
- Выбор оконных и дверных систем с огнестойкими характеристиками.
2. Планировка помещений
Эффективная планировка помещений также является важным аспектом обеспечения пожарной безопасности. Необходимо учитывать:
- Создание свободных проходов и эвакуационных выходов, которые обеспечивают быструю эвакуацию людей.
- Размещение помещений с высокой пожарной нагрузкой (например, кухни, склады) вдали от основных путей эвакуации.
- Обеспечение доступа к системам пожаротушения и сигнализации.
3. Системы противопожарной защиты
На этапе проектирования необходимо предусмотреть установку систем противопожарной защиты, которые включают:
- Автоматические системы пожарной сигнализации, которые обеспечивают раннее обнаружение пожара.
- Системы автоматического пожаротушения, такие как спринклерные системы.
- Дымоудаление и вентиляционные системы, которые помогают предотвратить распространение дыма и огня.
4. Эвакуационные пути и выходы
Проектирование эвакуационных путей и выходов должно соответствовать установленным нормам и правилам. Важно учитывать:
- Ширину и количество эвакуационных выходов в зависимости от числа людей, которые могут находиться в здании.
- Наличие указателей и освещения эвакуационных путей.
- Обеспечение доступности эвакуационных выходов для людей с ограниченными возможностями.
5. Пожарные преграды и разделительные конструкции
Для предотвращения распространения огня и дыма необходимо использовать пожарные преграды и разделительные конструкции. Это включает:
- Создание огнестойких стен и перегородок, которые могут замедлить распространение огня.
- Использование огнестойких дверей и окон, которые обеспечивают защиту от огня.
- Проектирование лестничных клеток и коридоров как огнестойких зон.
6. Обучение и информирование
Не менее важным аспектом является обучение персонала и пользователей зданий правилам пожарной безопасности. Это включает:
- Проведение регулярных инструктажей по действиям в случае пожара.
- Разработка и распространение информационных материалов о правилах пожарной безопасности.
- Организация тренировок по эвакуации.
Таким образом, архитектурно-инженерное проектирование должно учитывать множество факторов, связанных с обеспечением пожарной безопасности. Каждый из этих аспектов играет важную роль в создании безопасной среды для людей и защиты имущества.
7. Учет норм и стандартов
При проектировании зданий необходимо строго следовать действующим нормам и стандартам в области пожарной безопасности. Это включает в себя:
- Соблюдение требований строительных норм и правил (СНиП), которые регламентируют проектирование и строительство зданий с учетом пожарной безопасности.
- Учет рекомендаций и стандартов, установленных национальными и международными организациями, такими как NFPA (Национальная ассоциация противопожарной защиты) и ISO (Международная организация по стандартизации).
- Проведение экспертиз проектной документации на соответствие требованиям пожарной безопасности.
8. Интеграция современных технологий
Современные технологии играют важную роль в повышении уровня пожарной безопасности. На этапе проектирования можно интегрировать:
- Системы умного дома, которые могут автоматически реагировать на возникновение пожара, включая отключение электропитания и открытие окон для дымоудаления.
- Датчики и системы мониторинга, которые позволяют отслеживать состояние зданий и выявлять потенциальные угрозы.
- Мобильные приложения для информирования пользователей о правилах безопасности и действиях в экстренных ситуациях.
9. Оценка рисков
На этапе проектирования важно провести оценку рисков, связанных с возможными пожарами. Это включает:
- Идентификацию потенциальных источников возгорания и оценку их опасности.
- Анализ возможных сценариев развития пожара и его последствий.
- Разработку мер по минимизации рисков и предотвращению возникновения пожара.
10. Периодическое обновление проектной документации
С учетом изменений в законодательстве и новых технологий, проектная документация должна периодически обновляться. Это включает:
- Регулярный пересмотр проектных решений на соответствие современным требованиям пожарной безопасности.
- Адаптацию проектных решений в зависимости от изменений в эксплуатации зданий.
- Обновление инструкций и рекомендаций для пользователей и обслуживающего персонала.
Таким образом, архитектурно-инженерное проектирование является важным этапом в обеспечении пожарной безопасности. Учитывая все вышеперечисленные аспекты, можно значительно снизить риски возникновения пожара и обеспечить безопасность людей и имущества. Важно помнить, что пожарная безопасность — это не только соблюдение норм и правил, но и комплексный подход, включающий в себя проектирование, эксплуатацию и обучение.
Требования к обеспечению безопасной эксплуатации объектов капитального строительства
Архитектурно-инженерное проектирование является важным этапом в процессе создания объектов капитального строительства. Оно включает в себя разработку проектной документации, которая должна соответствовать современным требованиям безопасности, функциональности и эстетики. Важнейшими аспектами архитектурно-инженерного проектирования являются соблюдение норм и стандартов, а также учет специфики эксплуатации объектов.
Одним из ключевых требований к проектированию является соответствие проектной документации действующим строительным нормам и правилам. Это включает в себя как общие строительные нормы, так и специальные требования, касающиеся конкретных типов зданий и сооружений. Например, для жилых зданий существуют особые требования к обеспечению комфортных условий проживания, а для промышленных объектов — к безопасности производственных процессов.
При проектировании необходимо учитывать функциональное назначение объекта. Каждый проект должен быть адаптирован под конкретные нужды пользователей. Это требует глубокого анализа требований к пространству, его организации и планировке. Например, в проектировании общественных зданий важно предусмотреть доступность для людей с ограниченными возможностями, а в жилых домах — создание комфортных условий для проживания.
Также важным аспектом является учет природных и климатических условий. Проектирование должно учитывать местные климатические особенности, такие как температура, влажность, скорость ветра и другие факторы, которые могут повлиять на эксплуатацию здания. Это позволяет не только повысить комфортность, но и продлить срок службы объекта.
В процессе архитектурно-инженерного проектирования необходимо также учитывать экологические аспекты. Современные требования к строительству предполагают минимизацию негативного воздействия на окружающую среду. Это может включать использование экологически чистых материалов, внедрение энергосберегающих технологий и систем утилизации отходов.
Не менее важным является инженерное обеспечение объектов. Это включает в себя проектирование систем водоснабжения, канализации, отопления, вентиляции и электроснабжения. Каждая из этих систем должна быть спроектирована с учетом требований безопасности и надежности, а также обеспечивать эффективное функционирование всего здания.
Важным этапом является проведение экспертизы проектной документации. Это позволяет выявить возможные недостатки и несоответствия на ранних стадиях, что значительно снижает риски при строительстве и эксплуатации объекта. Экспертиза должна проводиться квалифицированными специалистами, обладающими необходимыми знаниями и опытом.
Кроме того, необходимо учитывать технические и экономические аспекты проектирования. Проект должен быть не только безопасным и функциональным, но и экономически целесообразным. Это требует тщательного анализа затрат на строительство и последующую эксплуатацию, а также поиска оптимальных решений, которые позволят снизить расходы без ущерба для качества.
В заключение, архитектурно-инженерное проектирование — это сложный и многогранный процесс, который требует комплексного подхода и учета множества факторов. Соблюдение всех требований и норм на этом этапе является залогом безопасной эксплуатации объектов капитального строительства в будущем.
Важным аспектом архитектурно-инженерного проектирования является интеграция современных технологий. В последние годы наблюдается активное внедрение информационных технологий в процесс проектирования, что позволяет значительно повысить качество и скорость разработки проектной документации. Использование программного обеспечения для моделирования зданий (BIM-технологии) позволяет создавать трехмерные модели, которые помогают визуализировать проект и выявлять потенциальные проблемы на ранних стадиях.
Кроме того, моделирование позволяет проводить анализ различных сценариев эксплуатации, что способствует более точному прогнозированию поведения здания в различных условиях. Это особенно важно для объектов, которые будут подвергаться высоким нагрузкам или воздействию неблагоприятных факторов окружающей среды.
Не менее значимым является учет требований безопасности на всех этапах проектирования. Это включает в себя как пожарную безопасность, так и защиту от террористических актов, а также обеспечение безопасности при эксплуатации. Проектировщики должны предусмотреть все возможные риски и разработать меры по их минимизации. Например, для зданий с высокой посещаемостью необходимо предусмотреть эвакуационные выходы, системы оповещения и автоматические системы пожаротушения.
Также стоит отметить, что архитектурно-инженерное проектирование должно быть ориентировано на устойчивое развитие. Это подразумевает создание объектов, которые не только удовлетворяют текущие потребности, но и учитывают интересы будущих поколений. Важно, чтобы здания были энергоэффективными, использовали возобновляемые источники энергии и минимизировали негативное воздействие на окружающую среду.
В процессе проектирования необходимо также учитывать социальные аспекты. Объекты капитального строительства должны быть удобными и доступными для всех категорий населения. Это требует активного взаимодействия с местными сообществами и учета их мнений и потребностей. Например, при проектировании общественных пространств важно создать комфортные условия для отдыха и досуга, а также обеспечить безопасность и доступность для всех пользователей.
Неотъемлемой частью архитектурно-инженерного проектирования является согласование проектной документации с различными инстанциями. Это может включать в себя получение разрешений от местных органов власти, согласование с экологическими службами и другими контролирующими организациями. Процесс согласования может быть длительным и сложным, но он необходим для обеспечения законности и безопасности строительства.
Важным этапом является проведение строительного контроля на всех стадиях реализации проекта. Это позволяет обеспечить соответствие фактического строительства проектной документации и выявить возможные отклонения на ранних стадиях. Строительный контроль включает в себя как визуальные осмотры, так и лабораторные испытания материалов и конструкций.
В заключение, архитектурно-инженерное проектирование — это многогранный процесс, который требует комплексного подхода и учета множества факторов. Соблюдение всех требований и норм на этом этапе является залогом безопасной эксплуатации объектов капитального строительства в будущем. Важно, чтобы проектировщики, инженеры и другие специалисты работали в тесном сотрудничестве, что позволит создать качественные и безопасные объекты, отвечающие современным требованиям.
Мероприятия по обеспечению доступа инвалидов к объекту капитального строительства
Архитектурно-инженерное проектирование играет ключевую роль в обеспечении доступности объектов капитального строительства для людей с ограниченными возможностями. Важно учитывать различные аспекты, которые помогут создать комфортную и безопасную среду для всех пользователей.
Одним из основных принципов проектирования является универсальный дизайн, который подразумевает создание объектов, удобных для всех, независимо от их физических возможностей. Это включает в себя:
- Широкие проходы и двери, позволяющие свободно перемещаться на инвалидных колясках;
- Отсутствие порогов и ступеней, что облегчает доступ;
- Удобные и безопасные пандусы с соответствующим углом наклона;
- Наличие тактильных и звуковых указателей для людей с нарушениями зрения;
- Доступные туалетные комнаты, оборудованные специальными поручнями и пространством для маневра.
При проектировании важно также учитывать нормативные требования, которые регулируют доступность объектов. В большинстве стран существуют законы и стандарты, определяющие минимальные требования к доступности. К ним относятся:
- Санитарные нормы и правила, касающиеся доступности общественных туалетов;
- Стандарты по проектированию пандусов и подъемников;
- Требования к освещению и контрастности для людей с нарушениями зрения;
- Правила по размещению информационных табличек и указателей.
Кроме того, участие людей с ограниченными возможностями в процессе проектирования является важным аспектом. Их мнение и опыт могут помочь выявить реальные проблемы и предложить эффективные решения. Это может быть реализовано через:
- Консультации с представителями организаций инвалидов;
- Проведение опросов и анкетирования среди людей с ограниченными возможностями;
- Создание рабочих групп, включающих архитекторов, инженеров и людей с инвалидностью.
Также стоит отметить, что технологические инновации могут значительно улучшить доступность объектов. Например, использование автоматизированных систем управления дверями, лифтами и освещением может облегчить передвижение для людей с ограниченными возможностями. Важно следить за новыми разработками и внедрять их в проектирование.
В заключение, архитектурно-инженерное проектирование должно быть направлено на создание доступной и комфортной среды для всех пользователей. Это требует комплексного подхода, включающего соблюдение нормативных требований, участие людей с ограниченными возможностями и использование современных технологий.
Важным аспектом архитектурно-инженерного проектирования является планировка пространства. Правильная организация внутреннего и внешнего пространства позволяет создать удобные маршруты передвижения для людей с ограниченными возможностями. При этом необходимо учитывать:
- Логичное расположение основных функциональных зон, таких как входы, выходы, зоны ожидания и санитарные узлы;
- Создание зон отдыха с удобной мебелью, доступной для людей с ограниченными возможностями;
- Обеспечение достаточного пространства для маневра инвалидных колясок в коридорах и помещениях.
Также следует обратить внимание на материалы и отделку объектов. Использование нескользящих покрытий, контрастных цветов и текстур может значительно повысить безопасность и удобство передвижения. Например, полы с текстурированной поверхностью помогут людям с нарушениями зрения ориентироваться в пространстве, а контрастные цвета могут помочь выделить важные элементы, такие как ступени или пандусы.
Не менее важным является освещение. Правильное освещение не только улучшает видимость, но и создает комфортную атмосферу. Важно учитывать:
- Естественное освещение, которое должно быть максимально использовано в проекте;
- Искусственное освещение, которое должно быть равномерным и не создавать резких теней;
- Использование светодиодных ламп с возможностью регулировки яркости для создания комфортных условий.
При проектировании объектов также необходимо учитывать доступность транспортной инфраструктуры. Это включает в себя:
- Наличие удобных подъездных путей и парковок для людей с ограниченными возможностями;
- Обеспечение доступности общественного транспорта, включая низкопольные автобусы и специальные маршруты;
- Создание безопасных переходов и светофоров с тактильными и звуковыми сигналами.
Важным элементом является информационная доступность. Все указатели, таблички и информационные материалы должны быть доступны для людей с различными ограничениями. Это может включать:
- Использование шрифта Брайля на информационных табличках;
- Предоставление информации в аудиоформате;
- Размещение информации на доступной высоте для людей с ограниченной подвижностью.
В заключение, архитектурно-инженерное проектирование должно быть направлено на создание доступной и комфортной среды для всех пользователей. Это требует комплексного подхода, включающего соблюдение нормативных требований, участие людей с ограниченными возможностями и использование современных технологий. Важно, чтобы проектировщики и архитекторы осознавали свою ответственность за создание инклюзивной среды, способствующей равным возможностям для всех.
Смета на строительство, реконструкцию, капитальный ремонт, снос объекта капитального строительства
Архитектурно-инженерное проектирование является важнейшим этапом в процессе строительства, реконструкции и капитального ремонта объектов капитального строительства. Этот процесс включает в себя создание проектной документации, которая определяет не только внешний вид здания, но и его функциональные характеристики, безопасность, экономическую эффективность и соответствие современным требованиям.
Проектирование начинается с анализа требований заказчика и условий, в которых будет осуществляться строительство. На этом этапе важно учитывать не только пожелания клиента, но и нормативные документы, регулирующие строительство, а также особенности местности, где планируется возведение объекта.
Этапы архитектурно-инженерного проектирования:
- Предпроектные исследования: На этом этапе проводятся геодезические, геологические и экологические исследования, которые помогают определить целесообразность строительства в выбранном месте.
- Разработка концепции: Создается предварительная концепция проекта, которая включает в себя основные идеи и решения по архитектуре, планировке и инженерным системам.
- Создание проектной документации: На этом этапе разрабатываются все необходимые чертежи, схемы и спецификации, которые будут использоваться в процессе строительства.
- Согласование проекта: Проект должен пройти согласование в различных инстанциях, включая архитектурные и строительные органы, а также другие заинтересованные стороны.
- Рабочая документация: После получения всех необходимых согласований разрабатывается рабочая документация, которая содержит детализированные чертежи и инструкции для строителей.
Каждый из этих этапов требует высокой квалификации специалистов, работающих в области архитектуры и инженерии. Архитекторы и инженеры должны обладать не только техническими знаниями, но и творческим подходом, чтобы создать уникальные и функциональные объекты.
Ключевые аспекты архитектурно-инженерного проектирования:
- Функциональность: Здание должно соответствовать назначению и обеспечивать комфортные условия для пользователей.
- Эстетика: Внешний вид объекта должен гармонировать с окружающей средой и удовлетворять эстетическим требованиям заказчика.
- Экономичность: Проект должен быть экономически обоснованным, включая как затраты на строительство, так и эксплуатационные расходы.
- Безопасность: Все решения должны учитывать требования безопасности, включая противопожарные меры и защиту от стихийных бедствий.
- Устойчивость: Проект должен учитывать экологические аспекты и стремиться к минимизации негативного воздействия на окружающую среду.
Важным аспектом архитектурно-инженерного проектирования является интеграция различных инженерных систем, таких как водоснабжение, отопление, вентиляция и электроснабжение. Эти системы должны быть спроектированы таким образом, чтобы обеспечивать максимальную эффективность и надежность в эксплуатации.
Современные технологии, такие как компьютерное моделирование и использование Building Information Modeling (BIM), значительно упрощают процесс проектирования и позволяют создавать более точные и детализированные модели зданий. Это, в свою очередь, способствует более эффективному управлению проектом и снижению рисков, связанных с ошибками в проектной документации.
Таким образом, архитектурно-инженерное проектирование является сложным и многогранным процессом, который требует от специалистов высокой квалификации и глубоких знаний в различных областях. Успех проекта во многом зависит от того, насколько качественно и профессионально будет выполнено проектирование, что в конечном итоге влияет на стоимость строительства, сроки выполнения работ и удовлетворенность заказчика.
Одним из ключевых аспектов архитектурно-инженерного проектирования является выбор строительных материалов. Правильный выбор материалов не только влияет на внешний вид здания, но и на его долговечность, эксплуатационные характеристики и стоимость. При выборе материалов необходимо учитывать их физико-механические свойства, устойчивость к внешним воздействиям, а также экологические характеристики.
Классификация строительных материалов:
- Каменные материалы: Бетон, кирпич, камень. Эти материалы обладают высокой прочностью и долговечностью.
- Деревянные материалы: Дерево, фанера, ДСП. Используются в строительстве благодаря своей легкости и хорошим теплоизоляционным свойствам.
- Металлические материалы: Сталь, алюминий. Применяются для создания каркасных конструкций и несущих элементов.
- Пластиковые материалы: Полимеры, композиты. Используются в различных инженерных системах и отделке.
При проектировании также важно учитывать аспекты энергоэффективности. Современные здания должны быть спроектированы с учетом минимизации потребления энергии, что достигается за счет использования современных технологий, таких как солнечные панели, системы рекуперации тепла и высокоэффективные изоляционные материалы. Это не только снижает эксплуатационные расходы, но и способствует охране окружающей среды.
Энергоэффективные технологии:
- Солнечные панели: Используются для генерации электроэнергии и нагрева воды.
- Системы вентиляции с рекуперацией: Позволяют экономить тепло, возвращая его в систему отопления.
- Умные системы управления: Автоматизация управления освещением, отоплением и другими системами для повышения комфорта и экономии ресурсов.
Не менее важным аспектом является соблюдение норм и стандартов, регулирующих проектирование и строительство. Эти нормы обеспечивают безопасность и качество объектов, а также защищают интересы всех участников процесса. Важно, чтобы проектировщики были в курсе всех актуальных изменений в законодательстве и могли адаптировать свои проекты в соответствии с новыми требованиями.
Процесс проектирования также включает в себя взаимодействие с различными специалистами, такими как инженеры-строители, электрики, сантехники и другие. Это сотрудничество позволяет создать комплексный проект, который учитывает все аспекты будущего строительства. Важно, чтобы все участники проекта работали в едином ключе и были вовлечены на всех этапах, начиная с концепции и заканчивая реализацией.
В заключение, архитектурно-инженерное проектирование — это многогранный процесс, который требует от специалистов высокой квалификации, креативности и способности к сотрудничеству. Успех проекта зависит от тщательной проработки всех деталей, начиная с выбора места и заканчивая выбором материалов и технологий. В условиях современного строительства, где требования к качеству и эффективности постоянно растут, профессиональное проектирование становится залогом успешной реализации строительных проектов.


















